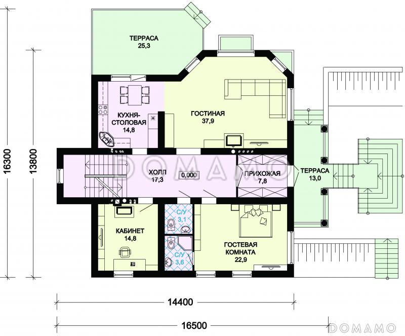
Элегантный особняк в классическом стиле, который отлично подойдет для проживания большой семьи из пяти-шести человек. Внешний вид постройки – масштабный и величественный, но в тоже время не перегруженный лишними деталями. Отличительной особенностью экстерьера являются массивные колонны и кованые перила у входа. Из дома есть выход на две террасы, расположенные по разные стороны постройки. Дом включает в себя 3 жилых этажа. На цокольном этаже – большая комната отдыха. Здесь достаточно места для бильярдного стола, а также отлично разместится домашний кинотеатр или настольный теннис. Большая широкая лестница ведет на первый этаж, где расположена кухня-столовая с выходом в просторную гостиную необычной формы. Здесь же кабинет и гостевая комната. Второй этаж полностью занимают спальные комнаты. Одну из них можно отвести под детскую, из другой есть выход на балкон.
Ключевые особенности:
| Цена, руб. | Сроки, дней | |||
| Комплект архитектурно-строительных чертежей (АС) | Входит в стоимость | 3 рабочих дня | ||
| Цена, руб. | Сроки, дней | |||
| Зеркальная версия проекта | Входит в стоимость | 3 рабочих дня | ||
| Паспорт рабочего проекта | 5 000 ₽ | 3 рабочих дня | в корзину | |
| Инженерные разделы: ВК + ОВ + ЭО | 25 000 ₽ | 3 рабочих дня | в корзину | |
| Дополнительная копия проекта формата А3 | 3 000 ₽ | 3 рабочих дня | в корзину | |
| Две дополнительные копии проекта формата А3 + 1 паспорт рабочего проекта | 10 100 ₽ | 3 рабочих дня | в корзину | |
| Электронная копия проекта (скан распечатанной версии) | 4 000 ₽ | 3 рабочих дня | в корзину | |
| Цена, руб. | Сроки, дней | |||
| Адаптация фундамента (изменение типа фундамента) | по запросу | 14 рабочих дней | ||
| Дизайн интерьера (стоимость от 2200руб. за квад.метр площади) | по запросу | 30 рабочих дней | ||
| Внесение изменений в проект | по запросу | 20 рабочих дней | ||
| Фэншуй дома | 20 000 ₽ | 14 рабочих дней | в корзину | |
| Фэншуй участка | 15 000 ₽ | 14 рабочих дней | в корзину | |
| Фэншуй полная консультация дом+участок с выездом на объект | 100 000 ₽ | 30 рабочих дней | в корзину | |
| Минимальная | 32 470 561 ₽ |
| Стандарт | 38 200 660 ₽ |
| Под чистовую отделку | 49 660 858 ₽ |
| Показать подробные комплектации | |
| Сравнить 0 комплектаций Свернуть все Развернуть все | Минимальная 32 470 561 ₽ | Стандарт 38 200 660 ₽ | Под чистовую отделку 49 660 858 ₽ |
| Кровля | |||
| Кровельное покрытие | Металлочерепица «Металл Профиль» | Металлочерепица «Металл Профиль» | Металлочерепица «Металл Профиль» |
| Обрешетка | Доска 20х95 мм, сухая, строганная | Доска 20х95 мм, сухая, строганная | Доска 20х95 мм, сухая, строганная |
| Контробрешетка | Брус 45х45 мм, сухой, строганный | Брус 45х45 мм, сухой, строганный | Брус 45х45 мм, сухой, строганный |
| Противоконденсатная (ветро-гидроизоляционная) пленка | | | |
| Стропильная система | Заводского изготовления. Доска 45х195 мм | Заводского изготовления. Доска 45х195 мм | Заводского изготовления. Доска 45х195 мм |
| Утепление чердачного перекрытия и стропильной системы | Базальтовый утеплитель Paroc Extra 250 мм | Базальтовый утеплитель Paroc Extra 250 мм | |
| Подшивка свесов кровли | | ||
| Подшивка потолков террас и лоджий | | ||
| Водосточная система | |||
| Система снегозадержания | |||
| Молниезащита | |||
| Фундамент | |||
| Сваи ж/бетонные | |||
| Сваи стальные винтовые | |||
| Лента ж/бетонная монолитная мелкозаглубленная | |||
| Лента ж/бетонная монолитная на глубину промерзания | |||
| Лента ж/бетонная сборная (из ФБС) на глубину промерзания | |||
| Плита ж/бетонная монолитная мелкозаглубленная | Высота цоколя 350 мм | Высота цоколя 350 мм | Высота цоколя 350 мм |
| УШП (Утепленная Шведская Плита) | |||
| Бетоннная отмостка по периметру дома | |||
| Дренажная система по периметру дома | |||
| Ливневая система | |||
| Облицовка цоколя фундамента | |||
| Система контурного заземления | |||
| Стены | |||
| Несущая часть стены | Газобетон Ytong 300х250х625 мм | Газобетон Ytong 300х250х625 мм | Газобетон Ytong 300х250х625 мм |
| Фасадная отделка | Силикатная штукатурка | Лицевой
кирпич | |
| Утепление стены | Базальтовый утеплитель ROCKWOOL Фасад Баттс 1200х600х50 | Базальтовый утеплитель ROCKWOOL Фасад Баттс 1200х600х50 | |
| Внутренняя обшивка/штукатурка со стороны помещения | |||
| Пол первого этажа | |||
| Несущая часть перекрытия | |||
| Теплоизоляция цокольного перекрытия | |||
| Стяжка/подготовка под чистый пол | OSB-3 18 мм | ||
| Перекрытия над первым и последующими этажами | |||
| Несущая часть перекрытия | Монолитные ж/б перекрытия 180-200 мм | Монолитные ж/б перекрытия 180-200 мм | Монолитные ж/б перекрытия 180-200 мм |
| Звукоизоляция/теплоизоляция в перекрытии | Базальтовый утеплитель 150 мм | ||
| Стяжка/подготовка под чистый пол | OSB-3 18 мм | ||
| Отделка потолка нижележащего этажа | |||
| Окна и внешние двери | |||
| Окна | VEKA Softline 70 мм | VEKA Softline 70 мм | |
| Оконные наличники | |||
| Откосы в помещении | |||
| Отливы снаружи | |||
| Подоконники | |||
| Входные двери | Jeld-Wen | Jeld-Wen | |
| Внутренние конструкции | |||
| Внутренние несущие стены | Газобетон Ytong D400 250х250х625 | Газобетон Ytong D400 250х250х625 | Газобетон Ytong D400 250х250х625 |
| Внутренние ненесущие стены | |||
| Звукоизоляция внутренних стен/перегородок | |||
| Межэтажная строительная (черновая) лестница | Маршевая | Маршевая | Маршевая |
| Межэтажная постоянная (чистовая) лестница | |||
| Межкомнатные двери | |||
| Высота потолков 1 этажа | 2700 мм | 2700 мм | 2700 мм |
| Высота потолков 2 этажа | 2500 мм | 2500 мм | 2500 мм |
| Настилы полов и ограждения крылец, террас, балконов | | ||
| Гидроизоляция полов балконов | |||
| Инженерное оснащение | |||
| Жидкостной теплый пол | |||
| Электрический теплый пол | |||
| Система вентиляции | |||
| Только вводы воды, электричества, выводы канализации | | | |
| Электроразводка и электрощит | |||
| Разводка хол. и гор. водоснабжения (ХВС и ГВС) | |||
| Разводка батарей и/или системы теплого пола. Без оборудования котельной. | |||
| Иное инженерное оснащение | |||
| Подготовка участка для строительства | |||
| Устройство временного щита электроснабжения | |||
| Устройство въезда на участок | |||
| Дорога на участке до пятна застройки | |||
| Подъем пятна застройки | |||
| Подготовка пятна застройки для фундаментных работ | |||
| Перемещение или вывоз грунта из котлована фундамента | |||
| Обеспечение строительного процесса | |||
| Доставка стройматериалов | 50 км от КАД, МКАД | 50 км от КАД, МКАД | 50 км от КАД, МКАД |
| Генератор для обеспечения электричеством | |||
| Уборка и вывоз строительного мусора | |||
| Организация проживания рабочих (бытовка) | |||
| Биотуалет для рабочих | |||
| Гарантия на все выполненные работы | |||
| Гарантия | 5 лет | 5 лет | 5 лет |
| Свернуть | |||
| Минимальная | 14 487 803 ₽ |
| Стандарт | 21 498 031 ₽ |
| Под чистовую отделку | 34 116 440 ₽ |
| Показать подробные комплектации | |
| Сравнить 0 комплектаций Свернуть все Развернуть все | Минимальная 14 487 803 ₽ | Стандарт 21 498 031 ₽ | Под чистовую отделку 34 116 440 ₽ |
| Кровля | |||
| Кровельное покрытие | Металлочерепица Grand Line 0,5мм/ битумная черепица Шинглас | Металлочерепица Grand Line 0,5мм/ битумная черепица Шинглас | Металлочерепица Grand Line 0,5мм/ битумная черепица Шинглас |
| Обрешетка | Доска 100х25 с обработкой огнебиозащитой | Доска 100х25 с обработкой огнебиозащитой | Доска 100х25 с обработкой огнебиозащитой |
| Контробрешетка | Брусок 50х50 с обработкой огнебиозащитой | Брусок 50х50 с обработкой огнебиозащитой | Брусок 50х50 с обработкой огнебиозащитой |
| Противоконденсатная (ветро-гидроизоляционная) пленка | 3-х слойная мембрана | 3-х слойная мембрана | 3-х слойная мембрана |
| Стропильная система | Доска 200х50 с обработкой огнебиозащитой | Доска 200х50 с обработкой огнебиозащитой | Доска 200х50 с обработкой огнебиозащитой |
| Утепление чердачного перекрытия и стропильной системы | Утеплитель Rockwool Лайт Баттс Скандик 200мм | Утеплитель Rockwool Лайт Баттс Скандик 200мм | |
| Подшивка свесов кровли | Софит пластиковый Grand Line | Софит пластиковый Grand Line | |
| Подшивка потолков террас и лоджий | Имитация бруса 145мм | ||
| Водосточная система | Водосточная система пластиковая Grand Line | Водосточная система пластиковая Grand Line | |
| Система снегозадержания | Снегозадержатели трубчатые | Снегозадержатели трубчатые | |
| Молниезащита | |||
| Фундамент | |||
| Сваи ж/бетонные | |||
| Сваи стальные винтовые | |||
| Лента ж/бетонная монолитная мелкозаглубленная | |||
| Лента ж/бетонная монолитная на глубину промерзания | |||
| Лента ж/бетонная сборная (из ФБС) на глубину промерзания | |||
| Плита ж/бетонная монолитная мелкозаглубленная | Монолитная железобетонная плита 300мм с утеплением и ги | Монолитная железобетонная плита 300мм с утеплением и ги | Монолитная железобетонная плита 300мм с утеплением и ги |
| УШП (Утепленная Шведская Плита) | |||
| Бетоннная отмостка по периметру дома | Утепленная отмостка по периметру дома | ||
| Дренажная система по периметру дома | Дренажная система с смотровыми колодцами | ||
| Ливневая система | Ливневая система с отводом дождевой воды | ||
| Облицовка цоколя фундамента | Облицовка цоколя камнем | ||
| Система контурного заземления | |||
| Стены | |||
| Несущая часть стены | Газобетонные блоки d500 Bonolit 375мм | Газобетонные блоки d500 Bonolit 375мм | Газобетонные блоки d500 Bonolit 375мм |
| Фасадная отделка | Облицовка кирпичом Braer | Облицовка кирпичом Braer | |
| Утепление стены | |||
| Внутренняя обшивка/штукатурка со стороны помещения | Штукатурка стен | ||
| Пол первого этажа | |||
| Несущая часть перекрытия | Пол первого этажа - фундаментная плита | Пол первого этажа - фундаментная плита | Пол первого этажа - фундаментная плита |
| Теплоизоляция цокольного перекрытия | Утепление пенополистиролом 100мм над плитой | ||
| Стяжка/подготовка под чистый пол | Стяжка полов 80мм | ||
| Перекрытия над первым и последующими этажами | |||
| Несущая часть перекрытия | Монолитная железобетонная плита 180мм | Монолитная железобетонная плита 180мм | Монолитная железобетонная плита 180мм |
| Звукоизоляция/теплоизоляция в перекрытии | |||
| Стяжка/подготовка под чистый пол | Стяжка полов 80мм | ||
| Отделка потолка нижележащего этажа | Штукатурка потолков | ||
| Окна и внешние двери | |||
| Окна | Пластиковые окна REHAU GRAZIO 70мм, двухкамерный стеклопакет | Пластиковые окна REHAU GRAZIO 70мм, двухкамерный стеклопакет | |
| Оконные наличники | |||
| Откосы в помещении | Штукатурка откосов | ||
| Отливы снаружи | Металлические оконный отливы | Металлические оконный отливы | |
| Подоконники | Подоконники ПВХ | ||
| Входные двери | Входная утепленная дверь Torex | Входная утепленная дверь Torex | |
| Внутренние конструкции | |||
| Внутренние несущие стены | Газобетонный блок d500 300мм | Газобетонный блок d500 300мм | Газобетонный блок d500 300мм |
| Внутренние ненесущие стены | Газобетонный блок d500 100мм | Газобетонный блок d500 100мм | |
| Звукоизоляция внутренних стен/перегородок | |||
| Межэтажная строительная (черновая) лестница | |||
| Межэтажная постоянная (чистовая) лестница | Монолитная железобетонная лестница | Монолитная железобетонная лестница | |
| Межкомнатные двери | |||
| Высота потолков 1 этажа | 3 метра | 3 метра | 3 метра |
| Высота потолков 2 этажа | 2,8 метра | 2,8 метра | 2,8 метра |
| Настилы полов и ограждения крылец, террас, балконов | |||
| Гидроизоляция полов балконов | Оклеечная гидроизоляция | Оклеечная гидроизоляция | |
| Инженерное оснащение | |||
| Жидкостной теплый пол | |||
| Электрический теплый пол | |||
| Система вентиляции | Разводка систем вентиляции | ||
| Только вводы воды, электричества, выводы канализации | Ввод всех коммуникаций | Ввод всех коммуникаций | Ввод всех коммуникаций |
| Электроразводка и электрощит | Разводка электрики | ||
| Разводка хол. и гор. водоснабжения (ХВС и ГВС) | Разводка ХВС и ГВС | ||
| Разводка батарей и/или системы теплого пола. Без оборудования котельной. | Разводка отопления | ||
| Иное инженерное оснащение | |||
| Подготовка участка для строительства | |||
| Устройство временного щита электроснабжения | |||
| Устройство въезда на участок | |||
| Дорога на участке до пятна застройки | |||
| Подъем пятна застройки | |||
| Подготовка пятна застройки для фундаментных работ | Устройство песчаного основания с проливкой трамбовко | Устройство песчаного основания с проливкой трамбовко | Устройство песчаного основания с проливкой трамбовко |
| Перемещение или вывоз грунта из котлована фундамента | Перемещение по участку | Перемещение по участку | Перемещение по участку |
| Обеспечение строительного процесса | |||
| Доставка стройматериалов | Контроль поставки и качества материалов | Контроль поставки и качества материалов | Контроль поставки и качества материалов |
| Генератор для обеспечения электричеством | |||
| Уборка и вывоз строительного мусора | Уборка и вывоз строительного мусора | Уборка и вывоз строительного мусора | Уборка и вывоз строительного мусора |
| Организация проживания рабочих (бытовка) | Доставка и вывоз бытового помещения | Доставка и вывоз бытового помещения | |
| Биотуалет для рабочих | Доставка, обслуживание и вывоз биотуалета | Доставка, обслуживание и вывоз биотуалета | |
| Гарантия на все выполненные работы | |||
| Гарантия | 10 лет | 10 лет | 10 лет |
| Свернуть | |||
| Минимальная | 14 223 650 ₽ |
| Стандарт | 17 068 380 ₽ |
| Под чистовую отделку | 19 100 330 ₽ |
| Показать подробные комплектации | |
| Сравнить 0 комплектаций Свернуть все Развернуть все | Минимальная 14 223 650 ₽ | Стандарт 17 068 380 ₽ | Под чистовую отделку 19 100 330 ₽ |
| Кровля | |||
| Кровельное покрытие | Мететаллочерепица Grand Line | Мететаллочерепица Grand Line / мягкая кровля SHINGLAS
| Мететаллочерепица Grand Line / мягкая кровля SHINGLAS / цементн |
| Обрешетка | Доска обрезная 25-100 | Доска обрезная 25-100 | Доска обрезная 25-100 |
| Контробрешетка | Брусок 50х50 | Брусок 50х50 | Брусок 50х50 |
| Противоконденсатная (ветро-гидроизоляционная) пленка | Isospan | Isospan | Isospan |
| Стропильная система | Доска обрезная 50х200 с пропиткой | Доска обрезная 50х200 с пропиткой | Доска обрезная 50х200 с пропиткой |
| Утепление чердачного перекрытия и стропильной системы | Минеральная вата Технониколь | Минеральная вата Технониколь | Минеральная вата Технониколь |
| Подшивка свесов кровли | AQUASYSTEM | AQUASYSTEM | |
| Подшивка потолков террас и лоджий | AQUASYSTEM | AQUASYSTEM | |
| Водосточная система | AQUASYSTEM | ||
| Система снегозадержания | GrandLine | ||
| Молниезащита | Torr | ||
| Фундамент | |||
| Сваи ж/бетонные | 150*150 | ||
| Сваи стальные винтовые | |||
| Лента ж/бетонная монолитная мелкозаглубленная | 700*400 мм | 700*400 мм | |
| Лента ж/бетонная монолитная на глубину промерзания | |||
| Лента ж/бетонная сборная (из ФБС) на глубину промерзания | |||
| Плита ж/бетонная монолитная мелкозаглубленная | 200 мм | ||
| УШП (Утепленная Шведская Плита) | |||
| Бетоннная отмостка по периметру дома | | 100*7000 мм | |
| Дренажная система по периметру дома | | ||
| Ливневая система | | ||
| Облицовка цоколя фундамента | | ||
| Система контурного заземления | Torr | ||
| Стены | |||
| Несущая часть стены | Газобетон Bonolit 400
D400 | Газобетон Bonolit 400
D400 | Газобетон Bonolit 400
D400 |
| Фасадная отделка | Штукатурка | Кирпич | |
| Утепление стены | |||
| Внутренняя обшивка/штукатурка со стороны помещения | |||
| Пол первого этажа | |||
| Несущая часть перекрытия | пустотные плиты | пустотные плиты | монолитная плита |
| Теплоизоляция цокольного перекрытия | Пеноплекс 50 мм | Пеноплекс 50 мм | Пеноплекс 50 мм |
| Стяжка/подготовка под чистый пол | |||
| Перекрытия над первым и последующими этажами | |||
| Несущая часть перекрытия | Деревянное переркрытие | Пустотные плиты | Монолитное перекрытие |
| Звукоизоляция/теплоизоляция в перекрытии | |||
| Стяжка/подготовка под чистый пол | |||
| Отделка потолка нижележащего этажа | |||
| Окна и внешние двери | |||
| Окна | REHAU DELIGHT-Design профиль 70мм | ||
| Оконные наличники | | ||
| Откосы в помещении | |||
| Отливы снаружи | | ||
| Подоконники | | ||
| Входные двери | Дверь входная с термо-разрывом входная | ||
| Внутренние конструкции | |||
| Внутренние несущие стены | Газобетон 250 мм Bonolit | Газобетон 250 мм Bonolit | Газобетон 250 мм Bonolit |
| Внутренние ненесущие стены | Газобетон 100 мм Bonolit | Газобетон 100 мм Bonolit | |
| Звукоизоляция внутренних стен/перегородок | |||
| Межэтажная строительная (черновая) лестница | есть | есть | есть |
| Межэтажная постоянная (чистовая) лестница | есть | ||
| Межкомнатные двери | |||
| Высота потолков 1 этажа | 3000 | 3250 | 3250 |
| Высота потолков 2 этажа | 2750 | 3000 | 3250 |
| Настилы полов и ограждения крылец, террас, балконов | |||
| Гидроизоляция полов балконов | есть | ||
| Инженерное оснащение | |||
| Жидкостной теплый пол | по выбору | ||
| Электрический теплый пол | по выбору | ||
| Система вентиляции | есть | ||
| Только вводы воды, электричества, выводы канализации | | | |
| Электроразводка и электрощит | | ||
| Разводка хол. и гор. водоснабжения (ХВС и ГВС) | | ||
| Разводка батарей и/или системы теплого пола. Без оборудования котельной. | | ||
| Иное инженерное оснащение | | ||
| Подготовка участка для строительства | |||
| Устройство временного щита электроснабжения | | | |
| Устройство въезда на участок | | ||
| Дорога на участке до пятна застройки | | ||
| Подъем пятна застройки | | ||
| Подготовка пятна застройки для фундаментных работ | | ||
| Перемещение или вывоз грунта из котлована фундамента | | ||
| Обеспечение строительного процесса | |||
| Доставка стройматериалов | | | |
| Генератор для обеспечения электричеством | | | |
| Уборка и вывоз строительного мусора | | | |
| Организация проживания рабочих (бытовка) | | | |
| Биотуалет для рабочих | | | |
| Гарантия на все выполненные работы | |||
| Гарантия | 3 года | 3 года | 3 года |
| Свернуть | |||
| Минимальная | 13 116 643 ₽ |
| Стандарт | 19 250 694 ₽ |
| Под чистовую отделку | 20 595 845 ₽ |
| Показать подробные комплектации | |
| Сравнить 0 комплектаций Свернуть все Развернуть все | Минимальная 13 116 643 ₽ | Стандарт 19 250 694 ₽ | Под чистовую отделку 20 595 845 ₽ |
| Кровля | |||
| Кровельное покрытие | Металочерепица Grand Line | Металочерепица Grand Line | Металочерепица Grand Line |
| Обрешетка | Доска 100х25, обработанная огне-биозащит | Доска 100х25, обработанная огне-биозащит | Доска 100х25, обработанная огне-биозащит |
| Контробрешетка | Брус 45х45, обработанный огне-биозащитн | Брус 45х45, обработанный огне-биозащитн | Брус 45х45, обработанный огне-биозащитн |
| Противоконденсатная (ветро-гидроизоляционная) пленка | Ветро - гидрозащита Изоспан АМ | Ветро - гидрозащита Изоспан АМ | Ветро - гидрозащита Изоспан АМ |
| Стропильная система | Доска 200х50, обработанная огне-биозащит | Доска 200х50, обработанная огне-биозащит | Доска 200х50, обработанная огне-биозащит |
| Утепление чердачного перекрытия и стропильной системы | Утеплитель минеральной ватой Rocwool Лай | Утеплитель минеральной ватой Rocwool Лай | |
| Подшивка свесов кровли | ПВХ перфорированный софит Doce | ПВХ перфорированный софит Doce | |
| Подшивка потолков террас и лоджий | ПВХ перфорированный софит Doce | ПВХ перфорированный софит Doce | |
| Водосточная система | Водосточная система Doce | ||
| Система снегозадержания | Трубчатый снегозадержатель | ||
| Молниезащита | |||
| Фундамент | |||
| Сваи ж/бетонные | |||
| Сваи стальные винтовые | |||
| Лента ж/бетонная монолитная мелкозаглубленная | |||
| Лента ж/бетонная монолитная на глубину промерзания | |||
| Лента ж/бетонная сборная (из ФБС) на глубину промерзания | |||
| Плита ж/бетонная монолитная мелкозаглубленная | Монолитная плита толщиной 300мм. Армиро | Монолитная плита толщиной 300мм. Армиро | Монолитная плита толщиной 300мм. Армиро |
| УШП (Утепленная Шведская Плита) | |||
| Бетоннная отмостка по периметру дома | Утеплённая отмостка 100мм. Шириной 1 мет | Утеплённая отмостка 100мм. Шириной 1 мет | |
| Дренажная система по периметру дома | Дренажная труба 100мм. Включая смотровы | Дренажная труба 100мм. Включая смотровы | |
| Ливневая система | |||
| Облицовка цоколя фундамента | Утеплённый цоколь Облицованный декор | ||
| Система контурного заземления | |||
| Стены | |||
| Несущая часть стены | Газосиликатный Блок Bonolit D400 толщиной 40 | Газосиликатный Блок Bonolit D400 толщиной 40 | Газосиликатный Блок Bonolit D400 толщиной 40 |
| Фасадная отделка | Облицовочный кирпич Терекс | ||
| Утепление стены | |||
| Внутренняя обшивка/штукатурка со стороны помещения | |||
| Пол первого этажа | |||
| Несущая часть перекрытия | Монолитная плита | Монолитная плита | Монолитная плита |
| Теплоизоляция цокольного перекрытия | |||
| Стяжка/подготовка под чистый пол | |||
| Перекрытия над первым и последующими этажами | |||
| Несущая часть перекрытия | Пустотные Ж/Б плиты перекрытия | Пустотные Ж/Б плиты перекрытия | Пустотные Ж/Б плиты перекрытия |
| Звукоизоляция/теплоизоляция в перекрытии | |||
| Стяжка/подготовка под чистый пол | |||
| Отделка потолка нижележащего этажа | |||
| Окна и внешние двери | |||
| Окна | REHAU Blitz ** 60 мм, стеклопакеты 3 камеры | REHAU Blitz ** 60 мм, стеклопакеты 3 камеры | REHAU Blitz ** 60 мм, стеклопакеты 3 камеры |
| Оконные наличники | |||
| Откосы в помещении | |||
| Отливы снаружи | |||
| Подоконники | |||
| Входные двери | |||
| Внутренние конструкции | |||
| Внутренние несущие стены | Газосиликатный Блок Bonolit D400 толщиной 30 | Газосиликатный Блок Bonolit D400 толщиной 30 | Газосиликатный Блок Bonolit D400 толщиной 30 |
| Внутренние ненесущие стены | |||
| Звукоизоляция внутренних стен/перегородок | |||
| Межэтажная строительная (черновая) лестница | |||
| Межэтажная постоянная (чистовая) лестница | Бетонная армированная лестница | ||
| Межкомнатные двери | |||
| Высота потолков 1 этажа | |||
| Высота потолков 2 этажа | |||
| Настилы полов и ограждения крылец, террас, балконов | |||
| Гидроизоляция полов балконов | Двойная гидроизоляция ХПП | ||
| Инженерное оснащение | |||
| Жидкостной теплый пол | |||
| Электрический теплый пол | |||
| Система вентиляции | |||
| Только вводы воды, электричества, выводы канализации | |||
| Электроразводка и электрощит | |||
| Разводка хол. и гор. водоснабжения (ХВС и ГВС) | |||
| Разводка батарей и/или системы теплого пола. Без оборудования котельной. | |||
| Иное инженерное оснащение | |||
| Подготовка участка для строительства | |||
| Устройство временного щита электроснабжения | |||
| Устройство въезда на участок | |||
| Дорога на участке до пятна застройки | |||
| Подъем пятна застройки | |||
| Подготовка пятна застройки для фундаментных работ | |||
| Перемещение или вывоз грунта из котлована фундамента | |||
| Обеспечение строительного процесса | |||
| Доставка стройматериалов | Доставка и разгрузка строительных мат | Доставка и разгрузка строительных мат | Доставка и разгрузка строительных мат |
| Генератор для обеспечения электричеством | |||
| Уборка и вывоз строительного мусора | |||
| Организация проживания рабочих (бытовка) | Обеспечение рабочих строительным гор | Обеспечение рабочих строительным гор | Обеспечение рабочих строительным гор |
| Биотуалет для рабочих | |||
| Гарантия на все выполненные работы | |||
| Гарантия | 5 лет | 5 лет | 5 лет |
| Свернуть | |||
| Минимальная | 9 899 660 ₽ |
| Стандарт | 11 313 897 ₽ |
| Под чистовую отделку | 14 849 490 ₽ |
| Показать подробные комплектации | |
| Сравнить 0 комплектаций Свернуть все Развернуть все | Минимальная 9 899 660 ₽ | Стандарт 11 313 897 ₽ | Под чистовую отделку 14 849 490 ₽ |
| Кровля | |||
| Кровельное покрытие | 450 | 640 | 910 |
| Обрешетка | 150 | 150 | 150 |
| Контробрешетка | 130 | 130 | 130
|
| Противоконденсатная (ветро-гидроизоляционная) пленка | 70 | 70 | 70 |
| Стропильная система | 650 | 750 | 850 |
| Утепление чердачного перекрытия и стропильной системы | 160 | 180 | 180 |
| Подшивка свесов кровли | 550 | 550 | 550 |
| Подшивка потолков террас и лоджий | 550 | 550 | 550 |
| Водосточная система | 550 | 550 | 550 |
| Система снегозадержания | 55 | 110 | 180 |
| Молниезащита | 110 | 110 | 110 |
| Фундамент | |||
| Сваи ж/бетонные | 7000 | 7000 | 7000 |
| Сваи стальные винтовые | |||
| Лента ж/бетонная монолитная мелкозаглубленная | 7000 | 7000 | 7000 |
| Лента ж/бетонная монолитная на глубину промерзания | 7000 | 7000 | 7000 |
| Лента ж/бетонная сборная (из ФБС) на глубину промерзания | |||
| Плита ж/бетонная монолитная мелкозаглубленная | 7000 | 7000 | 7000 |
| УШП (Утепленная Шведская Плита) | 7000 | 7000 | 7000 |
| Бетоннная отмостка по периметру дома | 320 | 320 | 320 |
| Дренажная система по периметру дома | 500 | 500 | 500 |
| Ливневая система | 450 | 450 | 450 |
| Облицовка цоколя фундамента | 1750 | 2000 | 2000 |
| Система контурного заземления | |||
| Стены | |||
| Несущая часть стены | 2600 | 2600 | 2600 |
| Фасадная отделка | 650 | 1300 | 1550 |
| Утепление стены | 380 | 380 | 380 |
| Внутренняя обшивка/штукатурка со стороны помещения | 420 | 450 | 480 |
| Пол первого этажа | |||
| Несущая часть перекрытия | 4800 | 4800 | 4800 |
| Теплоизоляция цокольного перекрытия | 280 | 300 | 320 |
| Стяжка/подготовка под чистый пол | 260 | 280 | 300 |
| Перекрытия над первым и последующими этажами | |||
| Несущая часть перекрытия | 4800 | 4800 | 4800 |
| Звукоизоляция/теплоизоляция в перекрытии | 280 | 300 | 320 |
| Стяжка/подготовка под чистый пол | 260 | 280 | 300 |
| Отделка потолка нижележащего этажа | 220 | 380 | 850 |
| Окна и внешние двери | |||
| Окна | 3800 | 4500 | 6500 |
| Оконные наличники | 150 | 150 | 150 |
| Откосы в помещении | 260 | 350 | 410 |
| Отливы снаружи | 120 | 120 | 120 |
| Подоконники | 320 | 320 | 320 |
| Входные двери | 3500 | 4800 | 9700 |
| Внутренние конструкции | |||
| Внутренние несущие стены | 1800 | 1900 | 2000 |
| Внутренние ненесущие стены | 320 | 450 | 600 |
| Звукоизоляция внутренних стен/перегородок | 220 | 260 | 330 |
| Межэтажная строительная (черновая) лестница | 100 | 100 | 100 |
| Межэтажная постоянная (чистовая) лестница | 9500 | 10500 | 15500 |
| Межкомнатные двери | 2700 | 3200 | 4500 |
| Высота потолков 1 этажа | 2700 | 2800 | 3000 |
| Высота потолков 2 этажа | 2700 | 2800 | 3000 |
| Настилы полов и ограждения крылец, террас, балконов | 450 | 480 | 670 |
| Гидроизоляция полов балконов | 80 | 320 | 380 |
| Инженерное оснащение | |||
| Жидкостной теплый пол | |||
| Электрический теплый пол | |||
| Система вентиляции | |||
| Только вводы воды, электричества, выводы канализации | |||
| Электроразводка и электрощит | |||
| Разводка хол. и гор. водоснабжения (ХВС и ГВС) | |||
| Разводка батарей и/или системы теплого пола. Без оборудования котельной. | |||
| Иное инженерное оснащение | |||
| Подготовка участка для строительства | |||
| Устройство временного щита электроснабжения | | | |
| Устройство въезда на участок | | | |
| Дорога на участке до пятна застройки | | | |
| Подъем пятна застройки | | | |
| Подготовка пятна застройки для фундаментных работ | | | |
| Перемещение или вывоз грунта из котлована фундамента | | | |
| Обеспечение строительного процесса | |||
| Доставка стройматериалов | | | |
| Генератор для обеспечения электричеством | | | |
| Уборка и вывоз строительного мусора | | | |
| Организация проживания рабочих (бытовка) | 35000 | 35000 | 35000 |
| Биотуалет для рабочих | 5000 | 5000 | 5000 |
| Гарантия на все выполненные работы | |||
| Гарантия | 5 | 5 | 5 |
| Свернуть | |||
| Минимальная | 11 443 942 ₽ |
| Стандарт | 13 004 480 ₽ |
| Под чистовую отделку | 16 661 990 ₽ |
| Показать подробные комплектации | |
| Сравнить 0 комплектаций Свернуть все Развернуть все | Минимальная 11 443 942 ₽ | Стандарт 13 004 480 ₽ | Под чистовую отделку 16 661 990 ₽ |
| Кровля | |||
| Кровельное покрытие | Меллочерепица | Гибкая черепица | Фальцевая кровля |
| Обрешетка | | | |
| Контробрешетка | | | |
| Противоконденсатная (ветро-гидроизоляционная) пленка | | | |
| Стропильная система | | | |
| Утепление чердачного перекрытия и стропильной системы | | | |
| Подшивка свесов кровли | | | |
| Подшивка потолков террас и лоджий | | | |
| Водосточная система | | ||
| Система снегозадержания | | ||
| Молниезащита | |||
| Фундамент | |||
| Сваи ж/бетонные | | ||
| Сваи стальные винтовые | |||
| Лента ж/бетонная монолитная мелкозаглубленная | | ||
| Лента ж/бетонная монолитная на глубину промерзания | |||
| Лента ж/бетонная сборная (из ФБС) на глубину промерзания | |||
| Плита ж/бетонная монолитная мелкозаглубленная | | ||
| УШП (Утепленная Шведская Плита) | |||
| Бетоннная отмостка по периметру дома | |||
| Дренажная система по периметру дома | |||
| Ливневая система | |||
| Облицовка цоколя фундамента | |||
| Система контурного заземления | |||
| Стены | |||
| Несущая часть стены | | | |
| Фасадная отделка | | | |
| Утепление стены | | | |
| Внутренняя обшивка/штукатурка со стороны помещения | |||
| Пол первого этажа | |||
| Несущая часть перекрытия | | | |
| Теплоизоляция цокольного перекрытия | | ||
| Стяжка/подготовка под чистый пол | |||
| Перекрытия над первым и последующими этажами | |||
| Несущая часть перекрытия | | | |
| Звукоизоляция/теплоизоляция в перекрытии | | ||
| Стяжка/подготовка под чистый пол | |||
| Отделка потолка нижележащего этажа | |||
| Окна и внешние двери | |||
| Окна | |||
| Оконные наличники | |||
| Откосы в помещении | |||
| Отливы снаружи | |||
| Подоконники | |||
| Входные двери | |||
| Внутренние конструкции | |||
| Внутренние несущие стены | | | |
| Внутренние ненесущие стены | | | |
| Звукоизоляция внутренних стен/перегородок | | ||
| Межэтажная строительная (черновая) лестница | | | |
| Межэтажная постоянная (чистовая) лестница | |||
| Межкомнатные двери | |||
| Высота потолков 1 этажа | |||
| Высота потолков 2 этажа | |||
| Настилы полов и ограждения крылец, террас, балконов | | ||
| Гидроизоляция полов балконов | | | |
| Инженерное оснащение | |||
| Жидкостной теплый пол | |||
| Электрический теплый пол | |||
| Система вентиляции | |||
| Только вводы воды, электричества, выводы канализации | | | |
| Электроразводка и электрощит | |||
| Разводка хол. и гор. водоснабжения (ХВС и ГВС) | |||
| Разводка батарей и/или системы теплого пола. Без оборудования котельной. | |||
| Иное инженерное оснащение | |||
| Подготовка участка для строительства | |||
| Устройство временного щита электроснабжения | | | |
| Устройство въезда на участок | | ||
| Дорога на участке до пятна застройки | |||
| Подъем пятна застройки | |||
| Подготовка пятна застройки для фундаментных работ | | | |
| Перемещение или вывоз грунта из котлована фундамента | | ||
| Обеспечение строительного процесса | |||
| Доставка стройматериалов | | | |
| Генератор для обеспечения электричеством | |||
| Уборка и вывоз строительного мусора | | | |
| Организация проживания рабочих (бытовка) | | | |
| Биотуалет для рабочих | |||
| Гарантия на все выполненные работы | |||
| Гарантия | 5 лет | 5 лет | 5 лет |
| Свернуть | |||
| Минимальная | 20 319 500 ₽ |
| Стандарт | 30 479 250 ₽ |
| Под чистовую отделку | 48 766 800 ₽ |
| Показать подробные комплектации | |
| Сравнить 0 комплектаций Свернуть все Развернуть все | Минимальная 20 319 500 ₽ | Стандарт 30 479 250 ₽ | Под чистовую отделку 48 766 800 ₽ |
| Кровля | |||
| Кровельное покрытие | | | |
| Обрешетка | | | |
| Контробрешетка | | | |
| Противоконденсатная (ветро-гидроизоляционная) пленка | | | |
| Стропильная система | | | |
| Утепление чердачного перекрытия и стропильной системы | | | |
| Подшивка свесов кровли | | ||
| Подшивка потолков террас и лоджий | | ||
| Водосточная система | | | |
| Система снегозадержания | | | |
| Молниезащита | |||
| Фундамент | |||
| Сваи ж/бетонные | |||
| Сваи стальные винтовые | |||
| Лента ж/бетонная монолитная мелкозаглубленная | |||
| Лента ж/бетонная монолитная на глубину промерзания | |||
| Лента ж/бетонная сборная (из ФБС) на глубину промерзания | |||
| Плита ж/бетонная монолитная мелкозаглубленная | | | |
| УШП (Утепленная Шведская Плита) | |||
| Бетоннная отмостка по периметру дома | |||
| Дренажная система по периметру дома | |||
| Ливневая система | |||
| Облицовка цоколя фундамента | |||
| Система контурного заземления | |||
| Стены | |||
| Несущая часть стены | | | |
| Фасадная отделка | | ||
| Утепление стены | | | |
| Внутренняя обшивка/штукатурка со стороны помещения | | ||
| Пол первого этажа | |||
| Несущая часть перекрытия | | | |
| Теплоизоляция цокольного перекрытия | | | |
| Стяжка/подготовка под чистый пол | | ||
| Перекрытия над первым и последующими этажами | |||
| Несущая часть перекрытия | | | |
| Звукоизоляция/теплоизоляция в перекрытии | | | |
| Стяжка/подготовка под чистый пол | | ||
| Отделка потолка нижележащего этажа | | ||
| Окна и внешние двери | |||
| Окна | | | |
| Оконные наличники | | ||
| Откосы в помещении | | ||
| Отливы снаружи | | | |
| Подоконники | | ||
| Входные двери | | | |
| Внутренние конструкции | |||
| Внутренние несущие стены | | | |
| Внутренние ненесущие стены | | | |
| Звукоизоляция внутренних стен/перегородок | | | |
| Межэтажная строительная (черновая) лестница | | | |
| Межэтажная постоянная (чистовая) лестница | |||
| Межкомнатные двери | |||
| Высота потолков 1 этажа | 2,85 | 2,85 | 2,85 |
| Высота потолков 2 этажа | 2,75 | 2,75 | 2,75 |
| Настилы полов и ограждения крылец, террас, балконов | | ||
| Гидроизоляция полов балконов | | ||
| Инженерное оснащение | |||
| Жидкостной теплый пол | | ||
| Электрический теплый пол | | ||
| Система вентиляции | естественная | естественная | естественная |
| Только вводы воды, электричества, выводы канализации | | | |
| Электроразводка и электрощит | | ||
| Разводка хол. и гор. водоснабжения (ХВС и ГВС) | | ||
| Разводка батарей и/или системы теплого пола. Без оборудования котельной. | | ||
| Иное инженерное оснащение | |||
| Подготовка участка для строительства | |||
| Устройство временного щита электроснабжения | | | |
| Устройство въезда на участок | |||
| Дорога на участке до пятна застройки | |||
| Подъем пятна застройки | |||
| Подготовка пятна застройки для фундаментных работ | | | |
| Перемещение или вывоз грунта из котлована фундамента | | | |
| Обеспечение строительного процесса | |||
| Доставка стройматериалов | | | |
| Генератор для обеспечения электричеством | |||
| Уборка и вывоз строительного мусора | | | |
| Организация проживания рабочих (бытовка) | | | |
| Биотуалет для рабочих | | | |
| Гарантия на все выполненные работы | |||
| Гарантия | | | |
| Свернуть | |||
| Минимальная | 20 725 890 ₽ |
| Стандарт | 22 676 562 ₽ |
| Под чистовую отделку | 25 805 765 ₽ |
| Показать подробные комплектации | |
| Сравнить 0 комплектаций Свернуть все Развернуть все | Минимальная 20 725 890 ₽ | Стандарт 22 676 562 ₽ | Под чистовую отделку 25 805 765 ₽ |
| Кровля | |||
| Кровельное покрытие | Гибкая черепица, керамическая черепица, фальцевое пок | Гибкая черепица, керамическая черепиц | Гибкая черепица, керамическая черепиц |
| Обрешетка | Доска калиброванная 30 х120 обработанна | Доска калиброванная 30 х120 обработанна | Доска калиброванная 30 х120 обработанна |
| Контробрешетка | Брусок калиброванная 50 х 50 обработанн | Брусок калиброванная 50 х 50 обработанн | Брусок калиброванная 50 х 50 обработанн |
| Противоконденсатная (ветро-гидроизоляционная) пленка | В соответствии с проектом. | В соответствии с проектом. | В соответствии с проектом. |
| Стропильная система | Доска 50 Х 200 обработанная огнебиозащи | Доска 50 Х 200 обработанная огнебиозащи | Доска 50 Х 200 обработанная огнебиозащи |
| Утепление чердачного перекрытия и стропильной системы | Базальтовыми утеплителями, перекрест | Базальтовыми утеплителями, перекрест | Базальтовыми утеплителями, перекрест |
| Подшивка свесов кровли | Планкен крашенный , софит металл. | ||
| Подшивка потолков террас и лоджий | Планкен крашенный , софит металл. | ||
| Водосточная система | Пластиковая , металлическая в цвет кро | ||
| Система снегозадержания | В соответствии с типом покрытия кровл | В соответствии с типом покрытия кровл | В соответствии с типом покрытия кровл |
| Молниезащита | По согласованию. | ||
| Фундамент | |||
| Сваи ж/бетонные | По проекту. | По проекту. | По проекту. |
| Сваи стальные винтовые | |||
| Лента ж/бетонная монолитная мелкозаглубленная | По проекту. | По проекту. | По проекту. |
| Лента ж/бетонная монолитная на глубину промерзания | По проекту. | По проекту. | По проекту. |
| Лента ж/бетонная сборная (из ФБС) на глубину промерзания | По проекту. | По проекту. | По проекту. |
| Плита ж/бетонная монолитная мелкозаглубленная | По проекту. | По проекту. | По проекту. |
| УШП (Утепленная Шведская Плита) | По проекту. | По проекту. | По проекту. |
| Бетоннная отмостка по периметру дома | По проекту. | ||
| Дренажная система по периметру дома | По проекту. | ||
| Ливневая система | По проекту. | ||
| Облицовка цоколя фундамента | По проекту. | ||
| Система контурного заземления | По согласованию. | ||
| Стены | |||
| Несущая часть стены | По проекту. | По проекту. | По проекту. |
| Фасадная отделка | По проекту. | По проекту. | По проекту. |
| Утепление стены | По проекту. | По проекту. | |
| Внутренняя обшивка/штукатурка со стороны помещения | По проекту. | ||
| Пол первого этажа | |||
| Несущая часть перекрытия | По проекту. | По проекту. | По проекту. |
| Теплоизоляция цокольного перекрытия | По проекту. | По проекту. | По проекту. |
| Стяжка/подготовка под чистый пол | По проекту. | ||
| Перекрытия над первым и последующими этажами | |||
| Несущая часть перекрытия | По проекту. | По проекту. | По проекту. |
| Звукоизоляция/теплоизоляция в перекрытии | По проекту. | ||
| Стяжка/подготовка под чистый пол | По проекту. | ||
| Отделка потолка нижележащего этажа | По проекту. | ||
| Окна и внешние двери | |||
| Окна | По проекту. Белый профиль. | По проекту. Белый профиль, энергоэффек | По проекту. Ламинированный теплый про |
| Оконные наличники | По проекту. | По проекту. | По проекту. |
| Откосы в помещении | | ||
| Отливы снаружи | По проекту. | По проекту. | По проекту. |
| Подоконники | По проекту. | ||
| Входные двери | Стандартные. | Усиленные. | Усиленные с тероморазрывом. |
| Внутренние конструкции | |||
| Внутренние несущие стены | По проекту. | По проекту. | По проекту. |
| Внутренние ненесущие стены | По проекту. | По проекту. | По проекту. |
| Звукоизоляция внутренних стен/перегородок | По проекту. | ||
| Межэтажная строительная (черновая) лестница | По проекту. | По проекту. | |
| Межэтажная постоянная (чистовая) лестница | По проекту. | ||
| Межкомнатные двери | |||
| Высота потолков 1 этажа | 2,5 + по проекту | 3,0 + по проекту. | 3,5 + по проекту |
| Высота потолков 2 этажа | 2,5 + по проекту | 3,0 + по проекту. | 3,5 + по проекту |
| Настилы полов и ограждения крылец, террас, балконов | По проекту. | По проекту. | |
| Гидроизоляция полов балконов | По проекту. | По проекту. | По проекту. |
| Инженерное оснащение | |||
| Жидкостной теплый пол | По проекту. | ||
| Электрический теплый пол | По проекту. | ||
| Система вентиляции | По проекту. | ||
| Только вводы воды, электричества, выводы канализации | По проекту. | По проекту. | |
| Электроразводка и электрощит | По проекту. | ||
| Разводка хол. и гор. водоснабжения (ХВС и ГВС) | По проекту. | ||
| Разводка батарей и/или системы теплого пола. Без оборудования котельной. | По проекту. | ||
| Иное инженерное оснащение | По проекту. | ||
| Подготовка участка для строительства | |||
| Устройство временного щита электроснабжения | | | |
| Устройство въезда на участок | | | |
| Дорога на участке до пятна застройки | | ||
| Подъем пятна застройки | | ||
| Подготовка пятна застройки для фундаментных работ | | | |
| Перемещение или вывоз грунта из котлована фундамента | | | |
| Обеспечение строительного процесса | |||
| Доставка стройматериалов | | | |
| Генератор для обеспечения электричеством | | | |
| Уборка и вывоз строительного мусора | | | |
| Организация проживания рабочих (бытовка) | | | |
| Биотуалет для рабочих | | | |
| Гарантия на все выполненные работы | |||
| Гарантия | | | |
| Свернуть | |||
| Минимальная | 15 036 430 ₽ |
| Стандарт | 17 068 380 ₽ |
| Под чистовую отделку | 23 164 230 ₽ |
| Показать подробные комплектации | |
| Сравнить 0 комплектаций Свернуть все Развернуть все | Минимальная 15 036 430 ₽ | Стандарт 17 068 380 ₽ | Под чистовую отделку 23 164 230 ₽ |
| Кровля | |||
| Кровельное покрытие | Металлочерепица
(Без утепления)
| Металлочерепица
(Без утепления) | Металлочерепица (Утепленная) |
| Обрешетка | Доска ЕВ 25х100х6000 мм (1-2 -й сорт)
| Доска ЕВ 25х100х6000 мм (1-2 -й сорт)
| Доска сухая 25х100х6000 мм (1-2 -й сорт)
|
| Контробрешетка | Брусок ЕВ 50х50х6000 мм (1-2-й сорт) | Брусок ЕВ 50х50х6000 мм (1-2-й сорт) | Брусок Сухой 50х50х6000 мм (1-2-й сорт) |
| Противоконденсатная (ветро-гидроизоляционная) пленка | Ветро-влагозащита для кровли/стен Изоспан AQ Proff 185
| Ветро-влагозащита для кровли/стен Изоспан AQ Proff 185 | Ветро-влагозащита для кровли/стен Изоспан AQ Proff 185 |
| Стропильная система | Доска ЕВ 50х150х6000 мм (1-2-й сорт) | Доска ЕВ 50х200х6000 мм (1-2-й сорт) | Доска Сухая 50х200х6000 мм (1-2-й сорт) |
| Утепление чердачного перекрытия и стропильной системы | Rockwool 200 мм | ||
| Подшивка свесов кровли | Сайдинг | Сайдинг | |
| Подшивка потолков террас и лоджий | Сайдинг | Сайдинг | |
| Водосточная система | Пластик | Пластик
Метал | |
| Система снегозадержания | Снегозадержатели | ||
| Молниезащита | |||
| Фундамент | |||
| Сваи ж/бетонные | |||
| Сваи стальные винтовые | |||
| Лента ж/бетонная монолитная мелкозаглубленная | |||
| Лента ж/бетонная монолитная на глубину промерзания | |||
| Лента ж/бетонная сборная (из ФБС) на глубину промерзания | |||
| Плита ж/бетонная монолитная мелкозаглубленная | 300 мм | 300 мм | 300 мм |
| УШП (Утепленная Шведская Плита) | |||
| Бетоннная отмостка по периметру дома | 1м 100 мм | ||
| Дренажная система по периметру дома | | ||
| Ливневая система | |||
| Облицовка цоколя фундамента | Клинкер | ||
| Система контурного заземления | |||
| Стены | |||
| Несущая часть стены | 400 мм | 400 мм | 400 мм |
| Фасадная отделка | Короед, Кирпич | ||
| Утепление стены | |||
| Внутренняя обшивка/штукатурка со стороны помещения | |||
| Пол первого этажа | |||
| Несущая часть перекрытия | Монолит | Монолит | Монолит |
| Теплоизоляция цокольного перекрытия | |||
| Стяжка/подготовка под чистый пол | |||
| Перекрытия над первым и последующими этажами | |||
| Несущая часть перекрытия | Дерево | Плиты ЖБИ | Монолит 150 мм |
| Звукоизоляция/теплоизоляция в перекрытии | | ||
| Стяжка/подготовка под чистый пол | | ||
| Отделка потолка нижележащего этажа | | ||
| Окна и внешние двери | |||
| Окна | | ||
| Оконные наличники | |||
| Откосы в помещении | |||
| Отливы снаружи | | ||
| Подоконники | |||
| Входные двери | | ||
| Внутренние конструкции | |||
| Внутренние несущие стены | | | |
| Внутренние ненесущие стены | | | |
| Звукоизоляция внутренних стен/перегородок | |||
| Межэтажная строительная (черновая) лестница | | | |
| Межэтажная постоянная (чистовая) лестница | Монолит | ||
| Межкомнатные двери | |||
| Высота потолков 1 этажа | 2,75 м | 2,75 м | 2,75 м |
| Высота потолков 2 этажа | 2,75 м | 2,75 м | 2,75 м |
| Настилы полов и ограждения крылец, террас, балконов | |||
| Гидроизоляция полов балконов | |||
| Инженерное оснащение | |||
| Жидкостной теплый пол | |||
| Электрический теплый пол | |||
| Система вентиляции | |||
| Только вводы воды, электричества, выводы канализации | | | |
| Электроразводка и электрощит | |||
| Разводка хол. и гор. водоснабжения (ХВС и ГВС) | |||
| Разводка батарей и/или системы теплого пола. Без оборудования котельной. | |||
| Иное инженерное оснащение | |||
| Подготовка участка для строительства | |||
| Устройство временного щита электроснабжения | |||
| Устройство въезда на участок | |||
| Дорога на участке до пятна застройки | |||
| Подъем пятна застройки | | | |
| Подготовка пятна застройки для фундаментных работ | | | |
| Перемещение или вывоз грунта из котлована фундамента | | | |
| Обеспечение строительного процесса | |||
| Доставка стройматериалов | | | |
| Генератор для обеспечения электричеством | | | |
| Уборка и вывоз строительного мусора | | | |
| Организация проживания рабочих (бытовка) | | | |
| Биотуалет для рабочих | | | |
| Гарантия на все выполненные работы | |||
| Гарантия | 10 лет | 10 лет | 10 лет |
| Свернуть | |||
| Минимальная | 7 518 215 ₽ |
| Стандарт | 7 924 605 ₽ |
| Под чистовую отделку | 9 143 775 ₽ |
| Показать подробные комплектации | |
| Сравнить 0 комплектаций Свернуть все Развернуть все | Минимальная 7 518 215 ₽ | Стандарт 7 924 605 ₽ | Под чистовую отделку 9 143 775 ₽ |
| Кровля | |||
| Кровельное покрытие | 960 | 1250 | 1500 |
| Обрешетка | 420 | 430 | 450 |
| Контробрешетка | 420 | 430 | 450 |
| Противоконденсатная (ветро-гидроизоляционная) пленка | 80 | 100 | 110 |
| Стропильная система | 650 | 650 | 650 |
| Утепление чердачного перекрытия и стропильной системы | 350 | 350 | 350 |
| Подшивка свесов кровли | 700 | 700 | 700 |
| Подшивка потолков террас и лоджий | 700 | 700 | 700 |
| Водосточная система | 700 | 700 | 700 |
| Система снегозадержания | 450 | 450 | 450 |
| Молниезащита | 3500 | ||
| Фундамент | |||
| Сваи ж/бетонные | 4500 | 4500 | 4500 |
| Сваи стальные винтовые | 8500 | 8500 | 8500 |
| Лента ж/бетонная монолитная мелкозаглубленная | 8500 | 8500 | 8500 |
| Лента ж/бетонная монолитная на глубину промерзания | 8500 | 8500 | 8500 |
| Лента ж/бетонная сборная (из ФБС) на глубину промерзания | 11500 | 11500 | 11500 |
| Плита ж/бетонная монолитная мелкозаглубленная | 8500 | 8500 | 8500 |
| УШП (Утепленная Шведская Плита) | 21500 | 21500 | 21500 |
| Бетоннная отмостка по периметру дома | 4700 | 4700 | 4700 |
| Дренажная система по периметру дома | 1500 | 1500 | 1500 |
| Ливневая система | 2150 | 2150 | 2150 |
| Облицовка цоколя фундамента | 1800 | 1800 | 1800 |
| Система контурного заземления | 2000 | 2000 | 2000 |
| Стены | |||
| Несущая часть стены | 6500 | 6500 | 6500 |
| Фасадная отделка | 3500 | 3500 | 3500 |
| Утепление стены | 1500 | 1500 | 1500 |
| Внутренняя обшивка/штукатурка со стороны помещения | 1500 | 1500 | 15000 |
| Пол первого этажа | |||
| Несущая часть перекрытия | 4500 | 4500 | 4500 |
| Теплоизоляция цокольного перекрытия | 2500 | 2500 | 2500 |
| Стяжка/подготовка под чистый пол | 5500 | 5500 | 5500 |
| Перекрытия над первым и последующими этажами | |||
| Несущая часть перекрытия | 4500 | 4500 | 4500 |
| Звукоизоляция/теплоизоляция в перекрытии | 3600 | 3600 | 3600 |
| Стяжка/подготовка под чистый пол | 5500 | 5500 | 5500 |
| Отделка потолка нижележащего этажа | 4500 | 4500 | 4500 |
| Окна и внешние двери | |||
| Окна | 7600 | 7600 | 7600 |
| Оконные наличники | 1500 | 1500 | 1500 |
| Откосы в помещении | 450 | 450 | 450 |
| Отливы снаружи | 2500 | 2500 | 2500 |
| Подоконники | 7500 | 7500 | 7500 |
| Входные двери | 11000 | 11000 | 11000 |
| Внутренние конструкции | |||
| Внутренние несущие стены | 2500 | 2500 | 2500 |
| Внутренние ненесущие стены | 2500 | 2500 | 2500 |
| Звукоизоляция внутренних стен/перегородок | 3000 | 3000 | 3000 |
| Межэтажная строительная (черновая) лестница | 25000 | 25000 | 25000 |
| Межэтажная постоянная (чистовая) лестница | 60000 | 60000 | 60000 |
| Межкомнатные двери | 11000 | 11000 | 11000 |
| Высота потолков 1 этажа | 2.7 | 2.7 | 2.7 |
| Высота потолков 2 этажа | 2.7 | 2.7 | 2.7 |
| Настилы полов и ограждения крылец, террас, балконов | 4600 | 4600 | 46000 |
| Гидроизоляция полов балконов | 3600 | 3600 | 3600 |
| Инженерное оснащение | |||
| Жидкостной теплый пол | 70 | 70 | 70 |
| Электрический теплый пол | 100 | 100 | 100 |
| Система вентиляции | 450 | 450 | 450 |
| Только вводы воды, электричества, выводы канализации | 650 | 650 | 650 |
| Электроразводка и электрощит | 150 | 150 | 150 |
| Разводка хол. и гор. водоснабжения (ХВС и ГВС) | 250 | 250 | 250 |
| Разводка батарей и/или системы теплого пола. Без оборудования котельной. | 45000 | 45000 | 45000 |
| Иное инженерное оснащение | 70 | 70 | 70 |
| Подготовка участка для строительства | |||
| Устройство временного щита электроснабжения | 25000 | 25000 | 25000 |
| Устройство въезда на участок | 25000 | 25000 | 25000 |
| Дорога на участке до пятна застройки | 15000 | 15000 | 15000 |
| Подъем пятна застройки | 15000 | 15000 | 15000 |
| Подготовка пятна застройки для фундаментных работ | 50000 | 50000 | 50000 |
| Перемещение или вывоз грунта из котлована фундамента | 25000 | 25000 | 25000 |
| Обеспечение строительного процесса | |||
| Доставка стройматериалов | 4500 | 4500 | 4500 |
| Генератор для обеспечения электричеством | 75000 | 75000 | 75000 |
| Уборка и вывоз строительного мусора | 4500 | 4500 | 4500 |
| Организация проживания рабочих (бытовка) | 115000 | 115000 | 115000 |
| Биотуалет для рабочих | 75000 | 75000 | 75000 |
| Гарантия на все выполненные работы | |||
| Гарантия | 1000000 | 1000000 | 1000000 |
| Свернуть | |||
| Минимальная | 14 630 040 ₽ |
| Стандарт | 18 693 940 ₽ |
| Под чистовую отделку | 26 821 740 ₽ |
| Показать подробные комплектации | |
| Сравнить 0 комплектаций Свернуть все Развернуть все | Минимальная 14 630 040 ₽ | Стандарт 18 693 940 ₽ | Под чистовую отделку 26 821 740 ₽ |
| Кровля | |||
| Кровельное покрытие | Металлочерепица | Мягкая черепица | Цементно-песчаная черепица |
| Обрешетка | Сухой строганый брус | Сухой строганый брус | Сухой строганый брус |
| Контробрешетка | Сухой строганый брус | Сухой строганый брус | Сухой строганый брус |
| Противоконденсатная (ветро-гидроизоляционная) пленка | ПВХ пленка GrandLine | ПВХ пленка GrandLine | ПВХ пленка GrandLine |
| Стропильная система | Доска строганная антисептированная | Доска строганная антисептированная | Доска строганная антисептированная |
| Утепление чердачного перекрытия и стропильной системы | Утепление 200 мм | Утепление 200 мм | Утепление 200 мм |
| Подшивка свесов кровли | Установка J- профиля, J - фаска, саморезы оцинкованные с | Установка J- профиля, J - фаска, саморезы оцинкованные с | Устройство подсистемы из бруска сухого, строганного 45 |
| Подшивка потолков террас и лоджий | |||
| Водосточная система | Водосточная система Grand Line пластиковая
Кронштейны мет | Водосточная система Grand Line пластиковая
Кронштейны мет | Водосточная система Grand Line пластиковая
Кронштейны мет |
| Система снегозадержания | Grand Line | Grand Line | Grand Line |
| Молниезащита | |||
| Фундамент | |||
| Сваи ж/бетонные | |||
| Сваи стальные винтовые | |||
| Лента ж/бетонная монолитная мелкозаглубленная | |||
| Лента ж/бетонная монолитная на глубину промерзания | |||
| Лента ж/бетонная сборная (из ФБС) на глубину промерзания | |||
| Плита ж/бетонная монолитная мелкозаглубленная | Плита монолитная 300 мм | Утепленная монолитная плита 300 мм | |
| УШП (Утепленная Шведская Плита) | Утепленная шведская плита | ||
| Бетоннная отмостка по периметру дома | | | |
| Дренажная система по периметру дома | | | |
| Ливневая система | |||
| Облицовка цоколя фундамента | |||
| Система контурного заземления | |||
| Стены | |||
| Несущая часть стены | Стены наружные Газобетон 300 мм | Стены наружные Газобетон 375 мм | Стены наружные Газобетон 400 мм |
| Фасадная отделка | Фасад "Виниловый сайдинг" | Фасад штукатурный "Шуба" по утеплителю
| Фасад утеплённый "Клинкерный кирпич" |
| Утепление стены | Утепление фасада утеплителем Paroc плотностью 110 кг\м3 | Утепление фасада утеплителем Paroc плотностью 110 кг\м3 | Утепление фасада утеплителем Paroc плотностью 110 кг\м3 |
| Внутренняя обшивка/штукатурка со стороны помещения | |||
| Пол первого этажа | |||
| Несущая часть перекрытия | Межэтажное перекрытие "Стропильная система" 200 мм | Межэтажное перекрытие "Плита пустотная" 220 мм | Межэтажное перекрытие "Плита монолитная" 180 мм |
| Теплоизоляция цокольного перекрытия | |||
| Стяжка/подготовка под чистый пол | Стяжка по проекту | Стяжка по проекту | Стяжка по проекту |
| Перекрытия над первым и последующими этажами | |||
| Несущая часть перекрытия | Межэтажное перекрытие "Стропильная система" 200 мм | Межэтажное перекрытие "Плита пустотная" 220 мм | Межэтажное перекрытие "Плита монолитная" 180 мм |
| Звукоизоляция/теплоизоляция в перекрытии | |||
| Стяжка/подготовка под чистый пол | |||
| Отделка потолка нижележащего этажа | |||
| Окна и внешние двери | |||
| Окна | Двухкамерный стеклопакет | Двухкамерный стеклопакет | Двухкамерный стеклопакет |
| Оконные наличники | Металлические наличники | Металлические наличники | Металлические наличники |
| Откосы в помещении | |||
| Отливы снаружи | Металлические отливы | Металлические отливы | Металлические отливы |
| Подоконники | |||
| Входные двери | Дверь металлическая огнеупорная | Дверь металлическая огнеупорная | Дверь металлическая огнеупорная |
| Внутренние конструкции | |||
| Внутренние несущие стены | Стены внутренние, несущие 200 мм | Стены внутренние, несущие 250 мм | Стены внутренние, несущие 250 мм |
| Внутренние ненесущие стены | Перегородки внутренние 100 мм | Перегородки внутренние 150 мм | Перегородки внутренние 150 мм |
| Звукоизоляция внутренних стен/перегородок | |||
| Межэтажная строительная (черновая) лестница | Черновая деревянная лестница | Лестница железобетонная | Лестница металлическая сварная |
| Межэтажная постоянная (чистовая) лестница | |||
| Межкомнатные двери | |||
| Высота потолков 1 этажа | В соответствии с проектом | В соответствии с проектом | В соответствии с проектом |
| Высота потолков 2 этажа | В соответствии с проектом | В соответствии с проектом | В соответствии с проектом |
| Настилы полов и ограждения крылец, террас, балконов | |||
| Гидроизоляция полов балконов | |||
| Инженерное оснащение | |||
| Жидкостной теплый пол | |||
| Электрический теплый пол | |||
| Система вентиляции | В соответствии с проектом | В соответствии с проектом | В соответствии с проектом |
| Только вводы воды, электричества, выводы канализации | В соответствии с проектом | В соответствии с проектом | В соответствии с проектом |
| Электроразводка и электрощит | В соответствии с проектом | В соответствии с проектом | В соответствии с проектом |
| Разводка хол. и гор. водоснабжения (ХВС и ГВС) | В соответствии с проектом | В соответствии с проектом | В соответствии с проектом |
| Разводка батарей и/или системы теплого пола. Без оборудования котельной. | В соответствии с проектом | В соответствии с проектом | В соответствии с проектом |
| Иное инженерное оснащение | В соответствии с проектом | В соответствии с проектом | В соответствии с проектом |
| Подготовка участка для строительства | |||
| Устройство временного щита электроснабжения | В соответствии с проектом производства работ | В соответствии с проектом производства работ | В соответствии с проектом производства работ |
| Устройство въезда на участок | В соответствии с проектом производства работ | В соответствии с проектом производства работ | В соответствии с проектом производства работ |
| Дорога на участке до пятна застройки | |||
| Подъем пятна застройки | |||
| Подготовка пятна застройки для фундаментных работ | В соответствии с проектом производства работ | В соответствии с проектом производства работ | В соответствии с проектом производства работ |
| Перемещение или вывоз грунта из котлована фундамента | В соответствии с проектом производства работ | В соответствии с проектом производства работ | В соответствии с проектом производства работ |
| Обеспечение строительного процесса | |||
| Доставка стройматериалов | В соответствии с проектом производства работ | В соответствии с проектом производства работ | В соответствии с проектом производства работ |
| Генератор для обеспечения электричеством | В соответствии с проектом производства работ | В соответствии с проектом производства работ | В соответствии с проектом производства работ |
| Уборка и вывоз строительного мусора | В соответствии с проектом производства работ | В соответствии с проектом производства работ | В соответствии с проектом производства работ |
| Организация проживания рабочих (бытовка) | В соответствии с проектом производства работ | В соответствии с проектом производства работ | В соответствии с проектом производства работ |
| Биотуалет для рабочих | В соответствии с проектом производства работ | В соответствии с проектом производства работ | В соответствии с проектом производства работ |
| Гарантия на все выполненные работы | |||
| Гарантия | 15 лет | 15 лет | 15 лет |
| Свернуть | |||
| Минимальная | 20 116 305 ₽ |
| Стандарт | 25 602 570 ₽ |
| Под чистовую отделку | 38 403 855 ₽ |
| Показать подробные комплектации | |
| Сравнить 0 комплектаций Свернуть все Развернуть все | Минимальная 20 116 305 ₽ | Стандарт 25 602 570 ₽ | Под чистовую отделку 38 403 855 ₽ |
| Кровля | |||
| Кровельное покрытие | |||
| Обрешетка | |||
| Контробрешетка | |||
| Противоконденсатная (ветро-гидроизоляционная) пленка | |||
| Стропильная система | |||
| Утепление чердачного перекрытия и стропильной системы | |||
| Подшивка свесов кровли | |||
| Подшивка потолков террас и лоджий | |||
| Водосточная система | |||
| Система снегозадержания | |||
| Молниезащита | |||
| Фундамент | |||
| Сваи ж/бетонные | |||
| Сваи стальные винтовые | |||
| Лента ж/бетонная монолитная мелкозаглубленная | |||
| Лента ж/бетонная монолитная на глубину промерзания | |||
| Лента ж/бетонная сборная (из ФБС) на глубину промерзания | |||
| Плита ж/бетонная монолитная мелкозаглубленная | |||
| УШП (Утепленная Шведская Плита) | |||
| Бетоннная отмостка по периметру дома | |||
| Дренажная система по периметру дома | |||
| Ливневая система | |||
| Облицовка цоколя фундамента | |||
| Система контурного заземления | |||
| Стены | |||
| Несущая часть стены | |||
| Фасадная отделка | |||
| Утепление стены | |||
| Внутренняя обшивка/штукатурка со стороны помещения | |||
| Пол первого этажа | |||
| Несущая часть перекрытия | |||
| Теплоизоляция цокольного перекрытия | |||
| Стяжка/подготовка под чистый пол | |||
| Перекрытия над первым и последующими этажами | |||
| Несущая часть перекрытия | |||
| Звукоизоляция/теплоизоляция в перекрытии | |||
| Стяжка/подготовка под чистый пол | |||
| Отделка потолка нижележащего этажа | |||
| Окна и внешние двери | |||
| Окна | |||
| Оконные наличники | |||
| Откосы в помещении | |||
| Отливы снаружи | |||
| Подоконники | |||
| Входные двери | |||
| Внутренние конструкции | |||
| Внутренние несущие стены | |||
| Внутренние ненесущие стены | |||
| Звукоизоляция внутренних стен/перегородок | |||
| Межэтажная строительная (черновая) лестница | |||
| Межэтажная постоянная (чистовая) лестница | |||
| Межкомнатные двери | |||
| Высота потолков 1 этажа | |||
| Высота потолков 2 этажа | |||
| Настилы полов и ограждения крылец, террас, балконов | |||
| Гидроизоляция полов балконов | |||
| Инженерное оснащение | |||
| Жидкостной теплый пол | |||
| Электрический теплый пол | |||
| Система вентиляции | |||
| Только вводы воды, электричества, выводы канализации | |||
| Электроразводка и электрощит | |||
| Разводка хол. и гор. водоснабжения (ХВС и ГВС) | |||
| Разводка батарей и/или системы теплого пола. Без оборудования котельной. | |||
| Иное инженерное оснащение | |||
| Подготовка участка для строительства | |||
| Устройство временного щита электроснабжения | |||
| Устройство въезда на участок | |||
| Дорога на участке до пятна застройки | |||
| Подъем пятна застройки | |||
| Подготовка пятна застройки для фундаментных работ | |||
| Перемещение или вывоз грунта из котлована фундамента | |||
| Обеспечение строительного процесса | |||
| Доставка стройматериалов | |||
| Генератор для обеспечения электричеством | |||
| Уборка и вывоз строительного мусора | |||
| Организация проживания рабочих (бытовка) | |||
| Биотуалет для рабочих | |||
| Гарантия на все выполненные работы | |||
| Гарантия | | | |
| Свернуть | |||
| Минимальная | 11 988 505 ₽ |
| Стандарт | 13 207 675 ₽ |
| Под чистовую отделку | 19 303 525 ₽ |
| Показать подробные комплектации | |
| Сравнить 0 комплектаций Свернуть все Развернуть все | Минимальная 11 988 505 ₽ | Стандарт 13 207 675 ₽ | Под чистовую отделку 19 303 525 ₽ |
| Кровля | |||
| Кровельное покрытие | Металлочерепица Grand Line классик Satin 0,5 RAL 8017 | Металлочерепица Grand Line классик Satin 0,5 RAL 8017 | Металлочерепица Grand Line классик Satin 0,5 RAL 8017 |
| Обрешетка | Доска обрезная 25*100 | Доска обрезная 25*100 | Доска обрезная 25*100 |
| Контробрешетка | Брусок 50*50 | Брусок 50*50 | Брусок 50*50 |
| Противоконденсатная (ветро-гидроизоляционная) пленка | | | |
| Стропильная система | Доска обрезная 50*200 с пропиткой | Доска обрезная 50*200 с пропиткой | Доска обрезная 50*200 с пропиткой |
| Утепление чердачного перекрытия и стропильной системы | Минераловатные плиты (35 кг/м3) | Минераловатные плиты (35 кг/м3) | Минераловатные плиты (35 кг/м3) |
| Подшивка свесов кровли | | | |
| Подшивка потолков террас и лоджий | | | |
| Водосточная система | | | |
| Система снегозадержания | | ||
| Молниезащита | |||
| Фундамент | |||
| Сваи ж/бетонные | |||
| Сваи стальные винтовые | |||
| Лента ж/бетонная монолитная мелкозаглубленная | | ||
| Лента ж/бетонная монолитная на глубину промерзания | | ||
| Лента ж/бетонная сборная (из ФБС) на глубину промерзания | |||
| Плита ж/бетонная монолитная мелкозаглубленная | | ||
| УШП (Утепленная Шведская Плита) | | ||
| Бетоннная отмостка по периметру дома | | | |
| Дренажная система по периметру дома | | ||
| Ливневая система | |||
| Облицовка цоколя фундамента | | ||
| Система контурного заземления | |||
| Стены | |||
| Несущая часть стены | Блок газосиликатный D600
600*375*250 | Блок газосиликатный D600
600*375*250 | Блок газосиликатный D600
600*375*250 |
| Фасадная отделка | | | |
| Утепление стены | | ||
| Внутренняя обшивка/штукатурка со стороны помещения | |||
| Пол первого этажа | |||
| Несущая часть перекрытия | Пустотные плиты | Пустотные плиты | Монолитная плита |
| Теплоизоляция цокольного перекрытия | |||
| Стяжка/подготовка под чистый пол | |||
| Перекрытия над первым и последующими этажами | |||
| Несущая часть перекрытия | Деревянное перекрытие | Плиты перекрытия | Плиты перекрытия |
| Звукоизоляция/теплоизоляция в перекрытии | |||
| Стяжка/подготовка под чистый пол | |||
| Отделка потолка нижележащего этажа | |||
| Окна и внешние двери | |||
| Окна | Профиль REHAU,
энергосберегающий стеклопакет | ||
| Оконные наличники | |||
| Откосы в помещении | |||
| Отливы снаружи | | | |
| Подоконники | | ||
| Входные двери | Дверь входная с термо-разрывом | ||
| Внутренние конструкции | |||
| Внутренние несущие стены | Блок газосиликатный D600
600*300*250 | Блок газосиликатный D600
600*300*250 | Блок газосиликатный D600
600*300*250 |
| Внутренние ненесущие стены | Блок газосиликатный D600
600*100*250 | Блок газосиликатный D600
600*100*250 | Блок газосиликатный D600
600*100*250 |
| Звукоизоляция внутренних стен/перегородок | |||
| Межэтажная строительная (черновая) лестница | | | |
| Межэтажная постоянная (чистовая) лестница | | ||
| Межкомнатные двери | |||
| Высота потолков 1 этажа | 2.7 метра | 2.7 метра | 2.7 метра |
| Высота потолков 2 этажа | 2.7 метра | 2.7 метра | 2.7 метра |
| Настилы полов и ограждения крылец, террас, балконов | |||
| Гидроизоляция полов балконов | |||
| Инженерное оснащение | |||
| Жидкостной теплый пол | |||
| Электрический теплый пол | |||
| Система вентиляции | |||
| Только вводы воды, электричества, выводы канализации | Ввод всех коммуникаций | Ввод всех коммуникаций | Ввод всех коммуникаций |
| Электроразводка и электрощит | |||
| Разводка хол. и гор. водоснабжения (ХВС и ГВС) | | ||
| Разводка батарей и/или системы теплого пола. Без оборудования котельной. | |||
| Иное инженерное оснащение | |||
| Подготовка участка для строительства | |||
| Устройство временного щита электроснабжения | | | |
| Устройство въезда на участок | |||
| Дорога на участке до пятна застройки | |||
| Подъем пятна застройки | |||
| Подготовка пятна застройки для фундаментных работ | | | |
| Перемещение или вывоз грунта из котлована фундамента | Перемещение по участку | Перемещение по участку | Перемещение по участку |
| Обеспечение строительного процесса | |||
| Доставка стройматериалов | | | |
| Генератор для обеспечения электричеством | | | |
| Уборка и вывоз строительного мусора | | | |
| Организация проживания рабочих (бытовка) | Доставка и вывоз строительной бытовки | Доставка и вывоз строительной бытовки | Доставка и вывоз строительной бытовки |
| Биотуалет для рабочих | Доставка, обслуживание и вывоз биотуалета | Доставка, обслуживание и вывоз биотуалета | Доставка, обслуживание и вывоз биотуалета |
| Гарантия на все выполненные работы | |||
| Гарантия | 5 лет | 5 лет | 5 лет |
| Свернуть | |||
| Минимальная | 16 275 919 ₽ |
| Стандарт | 22 493 686 ₽ |
| Под чистовую отделку | 25 785 445 ₽ |
| Показать подробные комплектации | |
| Сравнить 0 комплектаций Свернуть все Развернуть все | Минимальная 16 275 919 ₽ | Стандарт 22 493 686 ₽ | Под чистовую отделку 25 785 445 ₽ |
| Кровля | |||
| Кровельное покрытие | | | |
| Обрешетка | | | |
| Контробрешетка | |||
| Противоконденсатная (ветро-гидроизоляционная) пленка | |||
| Стропильная система | | | |
| Утепление чердачного перекрытия и стропильной системы | | | |
| Подшивка свесов кровли | | | |
| Подшивка потолков террас и лоджий | | | |
| Водосточная система | | | |
| Система снегозадержания | | | |
| Молниезащита | | | |
| Фундамент | |||
| Сваи ж/бетонные | |||
| Сваи стальные винтовые | |||
| Лента ж/бетонная монолитная мелкозаглубленная | |||
| Лента ж/бетонная монолитная на глубину промерзания | |||
| Лента ж/бетонная сборная (из ФБС) на глубину промерзания | |||
| Плита ж/бетонная монолитная мелкозаглубленная | | | |
| УШП (Утепленная Шведская Плита) | |||
| Бетоннная отмостка по периметру дома | | | |
| Дренажная система по периметру дома | | | |
| Ливневая система | |||
| Облицовка цоколя фундамента | | | |
| Система контурного заземления | |||
| Стены | |||
| Несущая часть стены | | | |
| Фасадная отделка | | | |
| Утепление стены | | | |
| Внутренняя обшивка/штукатурка со стороны помещения | | ||
| Пол первого этажа | |||
| Несущая часть перекрытия | | | |
| Теплоизоляция цокольного перекрытия | | | |
| Стяжка/подготовка под чистый пол | | | |
| Перекрытия над первым и последующими этажами | |||
| Несущая часть перекрытия | | | |
| Звукоизоляция/теплоизоляция в перекрытии | | ||
| Стяжка/подготовка под чистый пол | | | |
| Отделка потолка нижележащего этажа | | ||
| Окна и внешние двери | |||
| Окна | | | |
| Оконные наличники | | | |
| Откосы в помещении | | | |
| Отливы снаружи | | | |
| Подоконники | | | |
| Входные двери | | | |
| Внутренние конструкции | |||
| Внутренние несущие стены | | | |
| Внутренние ненесущие стены | | | |
| Звукоизоляция внутренних стен/перегородок | | | |
| Межэтажная строительная (черновая) лестница | | | |
| Межэтажная постоянная (чистовая) лестница | | ||
| Межкомнатные двери | | ||
| Высота потолков 1 этажа | |||
| Высота потолков 2 этажа | |||
| Настилы полов и ограждения крылец, террас, балконов | | ||
| Гидроизоляция полов балконов | |||
| Инженерное оснащение | |||
| Жидкостной теплый пол | |||
| Электрический теплый пол | |||
| Система вентиляции | | ||
| Только вводы воды, электричества, выводы канализации | |||
| Электроразводка и электрощит | | ||
| Разводка хол. и гор. водоснабжения (ХВС и ГВС) | | ||
| Разводка батарей и/или системы теплого пола. Без оборудования котельной. | | ||
| Иное инженерное оснащение | |||
| Подготовка участка для строительства | |||
| Устройство временного щита электроснабжения | | | |
| Устройство въезда на участок | |||
| Дорога на участке до пятна застройки | |||
| Подъем пятна застройки | |||
| Подготовка пятна застройки для фундаментных работ | |||
| Перемещение или вывоз грунта из котлована фундамента | |||
| Обеспечение строительного процесса | |||
| Доставка стройматериалов | | | |
| Генератор для обеспечения электричеством | |||
| Уборка и вывоз строительного мусора | |||
| Организация проживания рабочих (бытовка) | | | |
| Биотуалет для рабочих | | | |
| Гарантия на все выполненные работы | |||
| Гарантия | | | |
| Свернуть | |||
| Минимальная | 12 801 285 ₽ |
| Стандарт | 20 116 305 ₽ |
| Под чистовую отделку | 27 431 325 ₽ |
| Показать подробные комплектации | |
| Сравнить 0 комплектаций Свернуть все Развернуть все | Минимальная 12 801 285 ₽ | Стандарт 20 116 305 ₽ | Под чистовую отделку 27 431 325 ₽ |
| Кровля | |||
| Кровельное покрытие | Металлочерепица "Металл профиль" | Металлочерепица "Металл профиль" | Металлочерепица "Металл профиль" |
| Обрешетка | Доска 20х95 мм, сухая, строганная | Доска 20х95 мм, сухая, строганная | Доска 20х95 мм, сухая, строганная |
| Контробрешетка | Брус 40х50 мм, сухой, строганный | Брус 40х50 мм, сухой, строганный | Брус 40х50 мм, сухой, строганный |
| Противоконденсатная (ветро-гидроизоляционная) пленка | Ветро-влагозащита для кровли/стен Ondutiss Smart SA 115 с | Ветро-влагозащита для кровли/стен Ondutiss Smart SA 115 с | Ветро-влагозащита для кровли/стен Ondutiss Smart SA 115 с |
| Стропильная система | Доска строганная 45х195 сухая, обработанная антисептико | Доска строганная 45х195 сухая, обработанная антисептико | Доска строганная 45х195 сухая, обработанная антисептико |
| Утепление чердачного перекрытия и стропильной системы | Утеплитель Rockwool Лайт Баттс Экстра 100х600х1000 мм 2,4 кв.м | Утеплитель Rockwool Лайт Баттс Экстра 100х600х1000 мм 2,4 кв.м | |
| Подшивка свесов кровли | | | |
| Подшивка потолков террас и лоджий | | ||
| Водосточная система | | ||
| Система снегозадержания | | ||
| Молниезащита | |||
| Фундамент | |||
| Сваи ж/бетонные | |||
| Сваи стальные винтовые | |||
| Лента ж/бетонная монолитная мелкозаглубленная | Высота цоколя 400 мм | Высота цоколя 400 мм | Высота цоколя 400 мм |
| Лента ж/бетонная монолитная на глубину промерзания | |||
| Лента ж/бетонная сборная (из ФБС) на глубину промерзания | |||
| Плита ж/бетонная монолитная мелкозаглубленная | Толщина плиты 200 мм | | |
| УШП (Утепленная Шведская Плита) | |||
| Бетоннная отмостка по периметру дома | Ширина отмостки 1000 мм , армирование, деформационные шв | ||
| Дренажная система по периметру дома | Дренажный контур , дренажные колодцы, приямки под дожд | ||
| Ливневая система | |||
| Облицовка цоколя фундамента | |||
| Система контурного заземления | |||
| Стены | |||
| Несущая часть стены | Газобетонные блоки D400 400х250х625 мм | Газобетонные блоки D400 400х250х625 мм | Газобетонные блоки D400 400х250х625 мм |
| Фасадная отделка | Паропроницаемая штукатурка | Кирпич
| |
| Утепление стены | Базальтовый утеплитель ROCKWOOL Фасад Баттс 1200х600х50 | Базальтовый утеплитель ROCKWOOL Фасад Баттс 1200х600х50 | |
| Внутренняя обшивка/штукатурка со стороны помещения | Гипсовая штукатурка для сухих помещений | ||
| Пол первого этажа | |||
| Несущая часть перекрытия | Бетонная армированная стяжка 200 мм | Бетонная армированная стяжка 200 мм | Бетонная армированная стяжка 200 мм |
| Теплоизоляция цокольного перекрытия | Экструдированный пенополистирол Пеноплэкс Комфорт | ||
| Стяжка/подготовка под чистый пол | |||
| Перекрытия над первым и последующими этажами | |||
| Несущая часть перекрытия | Деревянные двутавровые балки 200 мм | Монолитные ж/б перекрытия 180-200 мм | Монолитные ж/б перекрытия 180-200 мм |
| Звукоизоляция/теплоизоляция в перекрытии | Утеплитель Ursa Terra | ||
| Стяжка/подготовка под чистый пол | | ||
| Отделка потолка нижележащего этажа | |||
| Окна и внешние двери | |||
| Окна | REHAU Grazio 70мм | REHAU Grazio 70мм | |
| Оконные наличники | |||
| Откосы в помещении | | | |
| Отливы снаружи | | | |
| Подоконники | | | |
| Входные двери | |||
| Внутренние конструкции | |||
| Внутренние несущие стены | Газобетон Ytong D400 250х250х625 | Газобетон Ytong D400 250х250х625 | Газобетон Ytong D400 250х250х625 |
| Внутренние ненесущие стены | Газобетонные блоки D500
625х250х200 | Газобетонные блоки D500
625х250х200 | Газобетонные блоки D500
625х250х200 |
| Звукоизоляция внутренних стен/перегородок | |||
| Межэтажная строительная (черновая) лестница | Маршевая деревянная | Маршевая деревянная | Маршевая деревянная |
| Межэтажная постоянная (чистовая) лестница | |||
| Межкомнатные двери | |||
| Высота потолков 1 этажа | по проекту | по проекту | по проекту |
| Высота потолков 2 этажа | по проекту | по проекту
| по проеккту |
| Настилы полов и ограждения крылец, террас, балконов | |||
| Гидроизоляция полов балконов | |||
| Инженерное оснащение | |||
| Жидкостной теплый пол | |||
| Электрический теплый пол | |||
| Система вентиляции | |||
| Только вводы воды, электричества, выводы канализации | | | |
| Электроразводка и электрощит | |||
| Разводка хол. и гор. водоснабжения (ХВС и ГВС) | |||
| Разводка батарей и/или системы теплого пола. Без оборудования котельной. | |||
| Иное инженерное оснащение | |||
| Подготовка участка для строительства | |||
| Устройство временного щита электроснабжения | | | |
| Устройство въезда на участок | | | |
| Дорога на участке до пятна застройки | |||
| Подъем пятна застройки | |||
| Подготовка пятна застройки для фундаментных работ | |||
| Перемещение или вывоз грунта из котлована фундамента | |||
| Обеспечение строительного процесса | |||
| Доставка стройматериалов | до 50 км от МКАД | до 50 км от МКАД | до 50 км от МКАД |
| Генератор для обеспечения электричеством | |||
| Уборка и вывоз строительного мусора | |||
| Организация проживания рабочих (бытовка) | | | |
| Биотуалет для рабочих | | | |
| Гарантия на все выполненные работы | |||
| Гарантия | 5 лет | 5 лет | 5 лет |
| Свернуть | |||
| Минимальная | 10 241 028 ₽ |
| Стандарт | 14 630 040 ₽ |
| Под чистовую отделку | 18 287 550 ₽ |
| Показать подробные комплектации | |
| Сравнить 0 комплектаций Свернуть все Развернуть все | Минимальная 10 241 028 ₽ | Стандарт 14 630 040 ₽ | Под чистовую отделку 18 287 550 ₽ |
| Кровля | |||
| Кровельное покрытие | Металлочерепица T05 (Zn140) PE-полиэстер. Цвет на выбор | Металлочерепица T05 (Zn140) PE-полиэстер. Цвет на выбор | Металлочерепица T05 (Zn140) PE-полиэстер. Цвет на выбор |
| Обрешетка | Доска 20х95 мм, сухая, строганная | Доска 20х95 мм, сухая, строганная | Доска 20х95 мм, сухая, строганная |
| Контробрешетка | Брус 45х45 мм, сухой, строганный | Брус 45х45 мм, сухой, строганный | Брус 45х45 мм, сухой, строганный |
| Противоконденсатная (ветро-гидроизоляционная) пленка | Гидроветроизоляция JUTA Ютавек | Гидроветроизоляция JUTA Ютавек | Гидроветроизоляция JUTA Ютавек |
| Стропильная система | Доска 50х200 мм | Доска 50х200 мм | Доска 50х200 мм |
| Утепление чердачного перекрытия и стропильной системы | Лайт Баттс СКАНДИК /ROCKWOOL | Лайт Баттс СКАНДИК /ROCKWOOL | |
| Подшивка свесов кровли | Софиты | ||
| Подшивка потолков террас и лоджий | Софиты | ||
| Водосточная система | Docke | ||
| Система снегозадержания | Трубчатая | Трубчатая | |
| Молниезащита | |||
| Фундамент | |||
| Сваи ж/бетонные | |||
| Сваи стальные винтовые | |||
| Лента ж/бетонная монолитная мелкозаглубленная | |||
| Лента ж/бетонная монолитная на глубину промерзания | |||
| Лента ж/бетонная сборная (из ФБС) на глубину промерзания | |||
| Плита ж/бетонная монолитная мелкозаглубленная | Высота над уровнем грунта 350мм | Высота над уровнем грунта 350мм | Высота над уровнем грунта 350мм |
| УШП (Утепленная Шведская Плита) | |||
| Бетоннная отмостка по периметру дома | |||
| Дренажная система по периметру дома | |||
| Ливневая система | |||
| Облицовка цоколя фундамента | |||
| Система контурного заземления | |||
| Стены | |||
| Несущая часть стены | Газобетонный блок BONOLIT 300*250*600 D500 | Газобетонный блок BONOLIT 300*250*600 D500 | Газобетонный блок BONOLIT 300*250*600 D500 |
| Фасадная отделка | |||
| Утепление стены | |||
| Внутренняя обшивка/штукатурка со стороны помещения | |||
| Пол первого этажа | |||
| Несущая часть перекрытия | Бетонный пол под стяжку | Бетонный пол под стяжку | Бетонный пол под стяжку |
| Теплоизоляция цокольного перекрытия | |||
| Стяжка/подготовка под чистый пол | Стяжка армированная выравнивающая под чистовое покры | ||
| Перекрытия над первым и последующими этажами | |||
| Несущая часть перекрытия | Плита монолитная ж/б 160мм | Плита монолитная ж/б 160мм | Плита монолитная ж/б 160мм |
| Звукоизоляция/теплоизоляция в перекрытии | |||
| Стяжка/подготовка под чистый пол | Стяжка армированная выравнивающая под чистовое покры | ||
| Отделка потолка нижележащего этажа | |||
| Окна и внешние двери | |||
| Окна | Профиль Рехау, стеклопакет с энергосберегающим стекло | Профиль Рехау, стеклопакет с энергосберегающим стекло | |
| Оконные наличники | |||
| Откосы в помещении | |||
| Отливы снаружи | Металлические по размеру проема, цвет на выбор | Металлические по размеру проема, цвет на выбор | |
| Подоконники | |||
| Входные двери | Металлическая дверь | Металлическая дверь | |
| Внутренние конструкции | |||
| Внутренние несущие стены | Газобетонный блок BONOLIT 300*250*600 D500 | Газобетонный блок BONOLIT 300*250*600 D500 | Газобетонный блок BONOLIT 300*250*600 D500 |
| Внутренние ненесущие стены | Кирпич пустотелый 120мм | ||
| Звукоизоляция внутренних стен/перегородок | |||
| Межэтажная строительная (черновая) лестница | Маршевая | Маршевая | Маршевая |
| Межэтажная постоянная (чистовая) лестница | |||
| Межкомнатные двери | |||
| Высота потолков 1 этажа | 2700мм | 2700мм | 2700мм |
| Высота потолков 2 этажа | 2600мм | 2600мм | 2600мм |
| Настилы полов и ограждения крылец, террас, балконов | |||
| Гидроизоляция полов балконов | |||
| Инженерное оснащение | |||
| Жидкостной теплый пол | |||
| Электрический теплый пол | |||
| Система вентиляции | |||
| Только вводы воды, электричества, выводы канализации | | | |
| Электроразводка и электрощит | Разводка электропроводки под точки | ||
| Разводка хол. и гор. водоснабжения (ХВС и ГВС) | |||
| Разводка батарей и/или системы теплого пола. Без оборудования котельной. | Сшитый полипропилен Рехау | ||
| Иное инженерное оснащение | Сшитый полипропилен Рехау | ||
| Подготовка участка для строительства | |||
| Устройство временного щита электроснабжения | |||
| Устройство въезда на участок | |||
| Дорога на участке до пятна застройки | |||
| Подъем пятна застройки | |||
| Подготовка пятна застройки для фундаментных работ | |||
| Перемещение или вывоз грунта из котлована фундамента | |||
| Обеспечение строительного процесса | |||
| Доставка стройматериалов | До 50 км от МКАД | До 50 км от МКАД | До 50 км от МКАД |
| Генератор для обеспечения электричеством | |||
| Уборка и вывоз строительного мусора | |||
| Организация проживания рабочих (бытовка) | |||
| Биотуалет для рабочих | |||
| Гарантия на все выполненные работы | |||
| Гарантия | 10 лет | 10 лет | 10 лет |
| Свернуть | |||
| Минимальная | 7 274 381 ₽ |
| Стандарт | 9 712 721 ₽ |
| Под чистовую отделку | 11 744 671 ₽ |
| Показать подробные комплектации | |
| Сравнить 0 комплектаций Свернуть все Развернуть все | Минимальная 7 274 381 ₽ | Стандарт 9 712 721 ₽ | Под чистовую отделку 11 744 671 ₽ |
| Кровля | |||
| Кровельное покрытие | Металлочерепица «GRAND LINE» | Металлочерепица «GRAND LINE» | Металлочерепица «GRAND LINE» |
| Обрешетка | Доска 100х25, сухая, строганная, с обработкой огнебиозащи | Доска 100х25, сухая, строганная, с обработкой огнебиозащи | Доска 100х25, сухая, строганная, с обработкой огнебиозащи |
| Контробрешетка | Брус 45х45 мм, сухой, строганный, с обработкой огнебиозащ | Брус 45х45 мм, сухой, строганный, с обработкой огнебиозащ | Брус 45х45 мм, сухой, строганный, с обработкой огнебиозащ |
| Противоконденсатная (ветро-гидроизоляционная) пленка | ветро-гидроизоляционная пленка Rockwool
| ветро-гидроизоляционная пленка Rockwool
| ветро-гидроизоляционная пленка Rockwool
|
| Стропильная система | Доска 200х50, сухая, строганная, с обработкой огнебиозащи | Доска 200х50, сухая, строганная, с обработкой огнебиозащи | Доска 200х50, сухая, строганная, с обработкой огнебиозащи |
| Утепление чердачного перекрытия и стропильной системы | Утеплитель Rockwool Лайт Баттс Скандик | Утеплитель Rockwool Лайт Баттс Скандик | |
| Подшивка свесов кровли | Софит пластиковый Grand Line | Софит пластиковый Grand Line | |
| Подшивка потолков террас и лоджий | Софит пластиковый Grand Line | Софит пластиковый Grand Line | |
| Водосточная система | Водосточная система пластиковая Döcke | ||
| Система снегозадержания | Снегозадержатели трубчатые | ||
| Молниезащита | |||
| Фундамент | |||
| Сваи ж/бетонные | |||
| Сваи стальные винтовые | |||
| Лента ж/бетонная монолитная мелкозаглубленная | |||
| Лента ж/бетонная монолитная на глубину промерзания | |||
| Лента ж/бетонная сборная (из ФБС) на глубину промерзания | |||
| Плита ж/бетонная монолитная мелкозаглубленная | Монолитная железобетонная плита 250мм с утеплением и ги | Монолитная железобетонная плита 250мм с утеплением и ги | Монолитная железобетонная плита 250мм с утеплением и ги |
| УШП (Утепленная Шведская Плита) | |||
| Бетоннная отмостка по периметру дома | Утепленная отмостка по периметру дома | ||
| Дренажная система по периметру дома | |||
| Ливневая система | Ливневая система с отводом дождевой воды | ||
| Облицовка цоколя фундамента | |||
| Система контурного заземления | |||
| Стены | |||
| Несущая часть стены | Газобетонные блоки D500 "Bonolit" 600х400х250мм | Газобетонные блоки D500 "Bonolit" 600х400х250мм | Газобетонные блоки D500 "Bonolit" 600х400х250мм |
| Фасадная отделка | Мокрый фасад,короед | Мокрый фасад,короед | |
| Утепление стены | Rockwool 100 мм | ||
| Внутренняя обшивка/штукатурка со стороны помещения | |||
| Пол первого этажа | |||
| Несущая часть перекрытия | Пол первого этажа - фундаментная плита
| Пол первого этажа - фундаментная плита
| Пол первого этажа - фундаментная плита
|
| Теплоизоляция цокольного перекрытия | |||
| Стяжка/подготовка под чистый пол | |||
| Перекрытия над первым и последующими этажами | |||
| Несущая часть перекрытия | Плиты перекрытия | Плиты перекрытия | Плиты перекрытия |
| Звукоизоляция/теплоизоляция в перекрытии | |||
| Стяжка/подготовка под чистый пол | |||
| Отделка потолка нижележащего этажа | |||
| Окна и внешние двери | |||
| Окна | Пластиковые окна REHAU 50мм, двухкамерный стеклопакет | Пластиковые окна REHAU 50мм, двухкамерный стеклопакет | |
| Оконные наличники | |||
| Откосы в помещении | |||
| Отливы снаружи | | | |
| Подоконники | |||
| Входные двери | | | |
| Внутренние конструкции | |||
| Внутренние несущие стены | Газобетонные блоки D500 "Bonolit" 600х350х250мм | Газобетонные блоки D500 "Bonolit" 600х350х250мм | Газобетонные блоки D500 "Bonolit" 600х350х250мм |
| Внутренние ненесущие стены | Газобетонный блоки D500 "Bonolit" 100мм | Газобетонный блоки D500 "Bonolit" 100мм | |
| Звукоизоляция внутренних стен/перегородок | |||
| Межэтажная строительная (черновая) лестница | | | |
| Межэтажная постоянная (чистовая) лестница | |||
| Межкомнатные двери | |||
| Высота потолков 1 этажа | 2.8 метра | 2.8 метра | 2.8 метра |
| Высота потолков 2 этажа | 2.8 метра | 2.8 метра | 2.8 метра |
| Настилы полов и ограждения крылец, террас, балконов | |||
| Гидроизоляция полов балконов | Оклеечная гидроизоляция | Оклеечная гидроизоляция | |
| Инженерное оснащение | |||
| Жидкостной теплый пол | |||
| Электрический теплый пол | |||
| Система вентиляции | |||
| Только вводы воды, электричества, выводы канализации | Ввод всех коммуникаций | Ввод всех коммуникаций | Ввод всех коммуникаций |
| Электроразводка и электрощит | |||
| Разводка хол. и гор. водоснабжения (ХВС и ГВС) | |||
| Разводка батарей и/или системы теплого пола. Без оборудования котельной. | |||
| Иное инженерное оснащение | |||
| Подготовка участка для строительства | |||
| Устройство временного щита электроснабжения | | | |
| Устройство въезда на участок | |||
| Дорога на участке до пятна застройки | |||
| Подъем пятна застройки | |||
| Подготовка пятна застройки для фундаментных работ | | | |
| Перемещение или вывоз грунта из котлована фундамента | Перемещение по участку | Перемещение по участку | Перемещение по участку |
| Обеспечение строительного процесса | |||
| Доставка стройматериалов | Контроль поставки и качества материалов | Контроль поставки и качества материалов | Контроль поставки и качества материалов |
| Генератор для обеспечения электричеством | |||
| Уборка и вывоз строительного мусора | | | |
| Организация проживания рабочих (бытовка) | Доставка и вывоз строительной бытовки | Доставка и вывоз строительной бытовки | Доставка и вывоз строительной бытовки |
| Биотуалет для рабочих | Доставка, обслуживание и вывоз биотуалета | Доставка, обслуживание и вывоз биотуалета | Доставка, обслуживание и вывоз биотуалета |
| Гарантия на все выполненные работы | |||
| Гарантия | 5 лет | 5 лет | 5 лет |
| Свернуть | |||
| Минимальная | 12 191 700 ₽ |
| Стандарт | 13 410 870 ₽ |
| Под чистовую отделку | 19 506 720 ₽ |
| Показать подробные комплектации | |
| Сравнить 0 комплектаций Свернуть все Развернуть все | Минимальная 12 191 700 ₽ | Стандарт 13 410 870 ₽ | Под чистовую отделку 19 506 720 ₽ |
| Кровля | |||
| Кровельное покрытие | Металлочерепица Grand Line классик Satin 0,5 RAL 8017
| Металлочерепица Grand Line классик Satin 0,5 RAL 8017
| Металлочерепица Grand Line классик Satin 0,5 RAL 8017
|
| Обрешетка | Доска 25х100 (1 сорт)
| Доска 25х100 (1 сорт)
| Доска 25х100 (1 сорт)
|
| Контробрешетка | Доска 25х100 (1 сорт)
| Доска 25х100 (1 сорт)
| Доска 25х100 (1 сорт)
|
| Противоконденсатная (ветро-гидроизоляционная) пленка | | ||
| Стропильная система | Пиломатериал обрезной (1 сорт)
| Пиломатериал обрезной (1 сорт)
| Пиломатериал обрезной (1 сорт)
|
| Утепление чердачного перекрытия и стропильной системы | Минераловатные плиты (Изомин, Изорок, Изолайт) 35 кг/м3
| Минераловатные плиты (Изомин, Изорок, Изолайт) 35 кг/м3
| |
| Подшивка свесов кровли | | ||
| Подшивка потолков террас и лоджий | | ||
| Водосточная система | | ||
| Система снегозадержания | | ||
| Молниезащита | |||
| Фундамент | |||
| Сваи ж/бетонные | |||
| Сваи стальные винтовые | |||
| Лента ж/бетонная монолитная мелкозаглубленная | |||
| Лента ж/бетонная монолитная на глубину промерзания | |||
| Лента ж/бетонная сборная (из ФБС) на глубину промерзания | |||
| Плита ж/бетонная монолитная мелкозаглубленная | Монолитная ребристая фундаментная плита (60 см над земл | Монолитная ребристая фундаментная плита (60 см над земл | Монолитная ребристая фундаментная плита (60 см над земл |
| УШП (Утепленная Шведская Плита) | |||
| Бетоннная отмостка по периметру дома | |||
| Дренажная система по периметру дома | | ||
| Ливневая система | |||
| Облицовка цоколя фундамента | | ||
| Система контурного заземления | |||
| Стены | |||
| Несущая часть стены | | | |
| Фасадная отделка | | ||
| Утепление стены | | ||
| Внутренняя обшивка/штукатурка со стороны помещения | |||
| Пол первого этажа | |||
| Несущая часть перекрытия | Монолитное перекрытие 200 мм | Монолитное перекрытие 200 мм | Монолитное перекрытие 200 мм |
| Теплоизоляция цокольного перекрытия | |||
| Стяжка/подготовка под чистый пол | |||
| Перекрытия над первым и последующими этажами | |||
| Несущая часть перекрытия | Монолитное перекрытие 160 мм | Монолитное перекрытие 160 мм | Монолитное перекрытие 160 мм |
| Звукоизоляция/теплоизоляция в перекрытии | |||
| Стяжка/подготовка под чистый пол | |||
| Отделка потолка нижележащего этажа | |||
| Окна и внешние двери | |||
| Окна | | ||
| Оконные наличники | |||
| Откосы в помещении | |||
| Отливы снаружи | | ||
| Подоконники | |||
| Входные двери | | ||
| Внутренние конструкции | |||
| Внутренние несущие стены | Блок газосиликатный D600 600x300x200
| Блок газосиликатный D600 600x300x200 | Блок газосиликатный D600 600x300x200 |
| Внутренние ненесущие стены | Блок газосиликатный D500 600x100x200
| Блок газосиликатный D500 600x100x200
| |
| Звукоизоляция внутренних стен/перегородок | |||
| Межэтажная строительная (черновая) лестница | |||
| Межэтажная постоянная (чистовая) лестница | | ||
| Межкомнатные двери | |||
| Высота потолков 1 этажа | 2,7
| 2,7 | 2,7 |
| Высота потолков 2 этажа | 2,7 | 2,7 | 2,7 |
| Настилы полов и ограждения крылец, террас, балконов | |||
| Гидроизоляция полов балконов | |||
| Инженерное оснащение | |||
| Жидкостной теплый пол | |||
| Электрический теплый пол | |||
| Система вентиляции | | | |
| Только вводы воды, электричества, выводы канализации | | | |
| Электроразводка и электрощит | |||
| Разводка хол. и гор. водоснабжения (ХВС и ГВС) | |||
| Разводка батарей и/или системы теплого пола. Без оборудования котельной. | |||
| Иное инженерное оснащение | |||
| Подготовка участка для строительства | |||
| Устройство временного щита электроснабжения | |||
| Устройство въезда на участок | |||
| Дорога на участке до пятна застройки | |||
| Подъем пятна застройки | |||
| Подготовка пятна застройки для фундаментных работ | | | |
| Перемещение или вывоз грунта из котлована фундамента | | | |
| Обеспечение строительного процесса | |||
| Доставка стройматериалов | | | |
| Генератор для обеспечения электричеством | |||
| Уборка и вывоз строительного мусора | | ||
| Организация проживания рабочих (бытовка) | |||
| Биотуалет для рабочих | |||
| Гарантия на все выполненные работы | |||
| Гарантия | | | |
| Свернуть | |||
| Минимальная | 12 191 700 ₽ |
| Стандарт | 16 255 600 ₽ |
| Под чистовую отделку | 18 287 550 ₽ |
| Показать подробные комплектации | |
| Сравнить 0 комплектаций Свернуть все Развернуть все | Минимальная 12 191 700 ₽ | Стандарт 16 255 600 ₽ | Под чистовую отделку 18 287 550 ₽ |
| Кровля | |||
| Кровельное покрытие | Металлочерепица
| Фальцевая кровля
Мягкая черепица
Натуральная черепи | Фальцевая кровля
Мягкая черепица
Натуральная черепи |
| Обрешетка | Доска 20х95 мм, сухая, строганная | Доска 20х95 мм, сухая, строганная | Доска 20х95 мм, сухая, строганная |
| Контробрешетка | Брус 45х45 мм, сухой, строганный | Брус 45х45 мм, сухой, строганный | Брус 45х45 мм, сухой, строганный |
| Противоконденсатная (ветро-гидроизоляционная) пленка | Изоспан | Изоспан | Изоспан |
| Стропильная система | Доска 50х200 мм | Доска 50х200 мм | Доска 50х200 мм |
| Утепление чердачного перекрытия и стропильной системы | Базальтовый утеплитель 250 мм | ||
| Подшивка свесов кровли | | | |
| Подшивка потолков террас и лоджий | | | |
| Водосточная система | | | |
| Система снегозадержания | | | |
| Молниезащита | | ||
| Фундамент | |||
| Сваи ж/бетонные | | | |
| Сваи стальные винтовые | |||
| Лента ж/бетонная монолитная мелкозаглубленная | | | |
| Лента ж/бетонная монолитная на глубину промерзания | | | |
| Лента ж/бетонная сборная (из ФБС) на глубину промерзания | | | |
| Плита ж/бетонная монолитная мелкозаглубленная | | | |
| УШП (Утепленная Шведская Плита) | |||
| Бетоннная отмостка по периметру дома | | | |
| Дренажная система по периметру дома | | ||
| Ливневая система | | | |
| Облицовка цоколя фундамента | | | |
| Система контурного заземления | | ||
| Стены | |||
| Несущая часть стены | Газобетон
Теплая керамика | Газобетон
Теплая керамика | Газобетон
Теплая керамика |
| Фасадная отделка | Штукатурка
Облицовочный кирпич | Натуральный камень
Штукатурка
Облицовочный кирпич | |
| Утепление стены | | ||
| Внутренняя обшивка/штукатурка со стороны помещения | | ||
| Пол первого этажа | |||
| Несущая часть перекрытия | | | |
| Теплоизоляция цокольного перекрытия | | ||
| Стяжка/подготовка под чистый пол | | ||
| Перекрытия над первым и последующими этажами | |||
| Несущая часть перекрытия | Деревянные балки | Монолитные ж/б перекрытия 180-200 мм | Монолитные ж/б перекрытия 180-200 мм |
| Звукоизоляция/теплоизоляция в перекрытии | Базальтовый утеплитель 200 мм | Базальтовый утеплитель 200 мм | |
| Стяжка/подготовка под чистый пол | | ||
| Отделка потолка нижележащего этажа | | ||
| Окна и внешние двери | |||
| Окна | | ||
| Оконные наличники | | ||
| Откосы в помещении | | ||
| Отливы снаружи | | | |
| Подоконники | | ||
| Входные двери | | ||
| Внутренние конструкции | |||
| Внутренние несущие стены | Газобетон
Керамический блок | Газобетон
Керамический блок | Газобетон
Керамический блок |
| Внутренние ненесущие стены | Газобетон
Керамический блок
| Газобетон
Керамический блок | Газобетон
Керамический блок |
| Звукоизоляция внутренних стен/перегородок | |||
| Межэтажная строительная (черновая) лестница | Монолитная | Монолитная | Монолитная |
| Межэтажная постоянная (чистовая) лестница | | ||
| Межкомнатные двери | |||
| Высота потолков 1 этажа | 3 м | 3 м | 3 м |
| Высота потолков 2 этажа | 3 м | 3 м | 3 м |
| Настилы полов и ограждения крылец, террас, балконов | |||
| Гидроизоляция полов балконов | |||
| Инженерное оснащение | |||
| Жидкостной теплый пол | |||
| Электрический теплый пол | |||
| Система вентиляции | |||
| Только вводы воды, электричества, выводы канализации | | | |
| Электроразводка и электрощит | |||
| Разводка хол. и гор. водоснабжения (ХВС и ГВС) | |||
| Разводка батарей и/или системы теплого пола. Без оборудования котельной. | |||
| Иное инженерное оснащение | |||
| Подготовка участка для строительства | |||
| Устройство временного щита электроснабжения | | | |
| Устройство въезда на участок | | | |
| Дорога на участке до пятна застройки | |||
| Подъем пятна застройки | |||
| Подготовка пятна застройки для фундаментных работ | |||
| Перемещение или вывоз грунта из котлована фундамента | |||
| Обеспечение строительного процесса | |||
| Доставка стройматериалов | | | |
| Генератор для обеспечения электричеством | | | |
| Уборка и вывоз строительного мусора | | | |
| Организация проживания рабочих (бытовка) | | | |
| Биотуалет для рабочих | | | |
| Гарантия на все выполненные работы | |||
| Гарантия | 5 лет | 5 лет | 5 лет |
| Свернуть | |||
| Минимальная | 9 103 136 ₽ |
| Стандарт | 9 753 360 ₽ |
| Под чистовую отделку | 13 004 480 ₽ |
| Показать подробные комплектации | |
| Сравнить 0 комплектаций Свернуть все Развернуть все | Минимальная 9 103 136 ₽ | Стандарт 9 753 360 ₽ | Под чистовую отделку 13 004 480 ₽ |
| Кровля | |||
| Кровельное покрытие | Металлочерепица | Битумная черепица | Битумная черепица |
| Обрешетка | Доска 100х25 | Доска 150х25 | Доска 150х25 |
| Контробрешетка | Брусок 40х40 | Брусок 50х50 | Брусок 50х50 |
| Противоконденсатная (ветро-гидроизоляционная) пленка | | | |
| Стропильная система | Доска 50х150 | Доска 50х200 | Доска 50х200 |
| Утепление чердачного перекрытия и стропильной системы | Базальтовый утеплитель 200мм | Базальтовый утеплитель 200мм | |
| Подшивка свесов кровли | Софиты | ||
| Подшивка потолков террас и лоджий | Софиты | ||
| Водосточная система | Пластиковый водосток | ||
| Система снегозадержания | Металл | Металл | Металл |
| Молниезащита | | ||
| Фундамент | |||
| Сваи ж/бетонные | |||
| Сваи стальные винтовые | |||
| Лента ж/бетонная монолитная мелкозаглубленная | | ||
| Лента ж/бетонная монолитная на глубину промерзания | |||
| Лента ж/бетонная сборная (из ФБС) на глубину промерзания | |||
| Плита ж/бетонная монолитная мелкозаглубленная | | | |
| УШП (Утепленная Шведская Плита) | |||
| Бетоннная отмостка по периметру дома | | ||
| Дренажная система по периметру дома | | ||
| Ливневая система | | ||
| Облицовка цоколя фундамента | | ||
| Система контурного заземления | |||
| Стены | |||
| Несущая часть стены | 300мм | 400мм | 400мм |
| Фасадная отделка | Декоративная штукатурка, облицовочный кирпич | ||
| Утепление стены | Проектная необходимость | ||
| Внутренняя обшивка/штукатурка со стороны помещения | |||
| Пол первого этажа | |||
| Несущая часть перекрытия | Облегченные плиты перекрытия | Монолитная плита | Монолитная плита |
| Теплоизоляция цокольного перекрытия | |||
| Стяжка/подготовка под чистый пол | |||
| Перекрытия над первым и последующими этажами | |||
| Несущая часть перекрытия | Облегченные плиты перекрытия | Монолитная плита | Монолитная плита |
| Звукоизоляция/теплоизоляция в перекрытии | Базальтовый утеплитель 200мм | Базальтовый утеплитель 200мм | |
| Стяжка/подготовка под чистый пол | |||
| Отделка потолка нижележащего этажа | |||
| Окна и внешние двери | |||
| Окна | ПВХ | ||
| Оконные наличники | |||
| Откосы в помещении | |||
| Отливы снаружи | Металл полиэстер | ||
| Подоконники | |||
| Входные двери | Металлическая | ||
| Внутренние конструкции | |||
| Внутренние несущие стены | 300мм | 400мм | 400мм |
| Внутренние ненесущие стены | 400мм | 400мм | |
| Звукоизоляция внутренних стен/перегородок | |||
| Межэтажная строительная (черновая) лестница | | | |
| Межэтажная постоянная (чистовая) лестница | | ||
| Межкомнатные двери | |||
| Высота потолков 1 этажа | 2,7 | 3,0 | 3,0 |
| Высота потолков 2 этажа | 2,7 | 3,0 | 3,0 |
| Настилы полов и ограждения крылец, террас, балконов | |||
| Гидроизоляция полов балконов | | | |
| Инженерное оснащение | |||
| Жидкостной теплый пол | |||
| Электрический теплый пол | |||
| Система вентиляции | Кирпичные вентканалы и дымоходы | Кирпичные вентканалы и дымоходы | |
| Только вводы воды, электричества, выводы канализации | | | |
| Электроразводка и электрощит | |||
| Разводка хол. и гор. водоснабжения (ХВС и ГВС) | |||
| Разводка батарей и/или системы теплого пола. Без оборудования котельной. | |||
| Иное инженерное оснащение | |||
| Подготовка участка для строительства | |||
| Устройство временного щита электроснабжения | | | |
| Устройство въезда на участок | | ||
| Дорога на участке до пятна застройки | |||
| Подъем пятна застройки | | ||
| Подготовка пятна застройки для фундаментных работ | | | |
| Перемещение или вывоз грунта из котлована фундамента | | ||
| Обеспечение строительного процесса | |||
| Доставка стройматериалов | | | |
| Генератор для обеспечения электричеством | |||
| Уборка и вывоз строительного мусора | | | |
| Организация проживания рабочих (бытовка) | | | |
| Биотуалет для рабочих | | ||
| Гарантия на все выполненные работы | |||
| Гарантия | 3 года | 5лет | 5лет |
| Свернуть | |||
| Минимальная | 9 326 650 ₽ |
| Стандарт | 12 984 160 ₽ |
| Под чистовую отделку | 17 738 923 ₽ |
| Показать подробные комплектации | |
| Сравнить 0 комплектаций Свернуть все Развернуть все | Минимальная 9 326 650 ₽ | Стандарт 12 984 160 ₽ | Под чистовую отделку 17 738 923 ₽ |
| Кровля | |||
| Кровельное покрытие | Мягкая черепица Shinglas (или на выбор металлочерепица Garda | Мягкая черепица Shinglas (или на выбор металлочерепица Garda | Мягкая черепица Shinglas (или на выбор металлочерепица Garda |
| Обрешетка | |||
| Контробрешетка | |||
| Противоконденсатная (ветро-гидроизоляционная) пленка | |||
| Стропильная система | |||
| Утепление чердачного перекрытия и стропильной системы | |||
| Подшивка свесов кровли | Софит металлический или планкен деревянный на выбор | Софит металлический или планкен деревянный на выбор | |
| Подшивка потолков террас и лоджий | |||
| Водосточная система | Docke Standart | Docke Standart | |
| Система снегозадержания | |||
| Молниезащита | |||
| Фундамент | |||
| Сваи ж/бетонные | Сваи 200х200х3000 | Сваи 200х200х3000 | Сваи 200х200х3000 |
| Сваи стальные винтовые | |||
| Лента ж/бетонная монолитная мелкозаглубленная | |||
| Лента ж/бетонная монолитная на глубину промерзания | | | |
| Лента ж/бетонная сборная (из ФБС) на глубину промерзания | | ||
| Плита ж/бетонная монолитная мелкозаглубленная | Плита 300 мм, бетон B25 (М350) | Плита 300 мм, бетон B25 (М350) | Плита 300 мм, бетон B25 (М350) 300 мм |
| УШП (Утепленная Шведская Плита) | | ||
| Бетоннная отмостка по периметру дома | |||
| Дренажная система по периметру дома | |||
| Ливневая система | |||
| Облицовка цоколя фундамента | Камень Whitehills | Камень Whitehills | |
| Система контурного заземления | |||
| Стены | |||
| Несущая часть стены | Газобетонные блоки Bonolit 400 мм | Газобетонные блоки Bonolit 400 мм | Газобетонные блоки Bonolit 400 мм |
| Фасадная отделка | Декоративная штукатурка Ceresit (силикатно-силиконовая) | Облицовочный кирпич | |
| Утепление стены | |||
| Внутренняя обшивка/штукатурка со стороны помещения | |||
| Пол первого этажа | |||
| Несущая часть перекрытия | Пол первого этажа - фундаментная плита | Пол первого этажа - фундаментная плита | Пол первого этажа - фундаментная плита |
| Теплоизоляция цокольного перекрытия | |||
| Стяжка/подготовка под чистый пол | |||
| Перекрытия над первым и последующими этажами | |||
| Несущая часть перекрытия | Железобетонные перекрытия 180-230 мм (проектные решения) | Железобетонные перекрытия 180-230 мм (проектные решения) | Железобетонные перекрытия 180-230 мм (проектные решения) |
| Звукоизоляция/теплоизоляция в перекрытии | |||
| Стяжка/подготовка под чистый пол | |||
| Отделка потолка нижележащего этажа | |||
| Окна и внешние двери | |||
| Окна | Окна Rehau Delight 70 | Окна Rehau Delight 70 | |
| Оконные наличники | |||
| Откосы в помещении | |||
| Отливы снаружи | Металлические | Металлические | |
| Подоконники | |||
| Входные двери | |||
| Внутренние конструкции | |||
| Внутренние несущие стены | Газобетонные блоки Bonolit 400 мм | Газобетонные блоки Bonolit 400 мм | Газобетонные блоки Bonolit 400 мм |
| Внутренние ненесущие стены | Перегородки - газобетонные блоки Bonolit 100 мм | Перегородки - газобетонные блоки Bonolit 100 мм | Перегородки - газобетонные блоки Bonolit 100 мм |
| Звукоизоляция внутренних стен/перегородок | |||
| Межэтажная строительная (черновая) лестница | |||
| Межэтажная постоянная (чистовая) лестница | |||
| Межкомнатные двери | |||
| Высота потолков 1 этажа | 3 м | 3 м | 3 м |
| Высота потолков 2 этажа | 3 м | 3 м | 3 м |
| Настилы полов и ограждения крылец, террас, балконов | |||
| Гидроизоляция полов балконов | |||
| Инженерное оснащение | |||
| Жидкостной теплый пол | |||
| Электрический теплый пол | |||
| Система вентиляции | |||
| Только вводы воды, электричества, выводы канализации | Закладные детали для вводов воды, электричества, вывод | Закладные детали для вводов воды, электричества, вывод | Закладные детали для вводов воды, электричества, вывод |
| Электроразводка и электрощит | |||
| Разводка хол. и гор. водоснабжения (ХВС и ГВС) | |||
| Разводка батарей и/или системы теплого пола. Без оборудования котельной. | |||
| Иное инженерное оснащение | |||
| Подготовка участка для строительства | |||
| Устройство временного щита электроснабжения | | | |
| Устройство въезда на участок | |||
| Дорога на участке до пятна застройки | |||
| Подъем пятна застройки | |||
| Подготовка пятна застройки для фундаментных работ | |||
| Перемещение или вывоз грунта из котлована фундамента | |||
| Обеспечение строительного процесса | |||
| Доставка стройматериалов | | | |
| Генератор для обеспечения электричеством | |||
| Уборка и вывоз строительного мусора | |||
| Организация проживания рабочих (бытовка) | | | |
| Биотуалет для рабочих | Биотуалет для рабочих с еженедельным обслуживанием | Биотуалет для рабочих с еженедельным обслуживанием | Биотуалет для рабочих с еженедельным обслуживанием |
| Гарантия на все выполненные работы | |||
| Гарантия | |||
| Свернуть | |||
| Минимальная | 13 817 260 ₽ |
| Стандарт | 17 068 380 ₽ |
| Под чистовую отделку | 22 351 450 ₽ |
| Показать подробные комплектации | |
| Сравнить 0 комплектаций Свернуть все Развернуть все | Минимальная 13 817 260 ₽ | Стандарт 17 068 380 ₽ | Под чистовую отделку 22 351 450 ₽ |
| Кровля | |||
| Кровельное покрытие | | | |
| Обрешетка | | | |
| Контробрешетка | | | |
| Противоконденсатная (ветро-гидроизоляционная) пленка | | | |
| Стропильная система | | | |
| Утепление чердачного перекрытия и стропильной системы | | | |
| Подшивка свесов кровли | | | |
| Подшивка потолков террас и лоджий | | | |
| Водосточная система | | | |
| Система снегозадержания | | | |
| Молниезащита | |||
| Фундамент | |||
| Сваи ж/бетонные | |||
| Сваи стальные винтовые | |||
| Лента ж/бетонная монолитная мелкозаглубленная | |||
| Лента ж/бетонная монолитная на глубину промерзания | |||
| Лента ж/бетонная сборная (из ФБС) на глубину промерзания | |||
| Плита ж/бетонная монолитная мелкозаглубленная | | | |
| УШП (Утепленная Шведская Плита) | |||
| Бетоннная отмостка по периметру дома | | ||
| Дренажная система по периметру дома | |||
| Ливневая система | |||
| Облицовка цоколя фундамента | | ||
| Система контурного заземления | | ||
| Стены | |||
| Несущая часть стены | | | |
| Фасадная отделка | | | |
| Утепление стены | |||
| Внутренняя обшивка/штукатурка со стороны помещения | | ||
| Пол первого этажа | |||
| Несущая часть перекрытия | | | |
| Теплоизоляция цокольного перекрытия | | ||
| Стяжка/подготовка под чистый пол | | ||
| Перекрытия над первым и последующими этажами | |||
| Несущая часть перекрытия | | | |
| Звукоизоляция/теплоизоляция в перекрытии | | ||
| Стяжка/подготовка под чистый пол | | ||
| Отделка потолка нижележащего этажа | |||
| Окна и внешние двери | |||
| Окна | | | |
| Оконные наличники | | ||
| Откосы в помещении | | ||
| Отливы снаружи | | | |
| Подоконники | | ||
| Входные двери | | | |
| Внутренние конструкции | |||
| Внутренние несущие стены | | | |
| Внутренние ненесущие стены | | | |
| Звукоизоляция внутренних стен/перегородок | |||
| Межэтажная строительная (черновая) лестница | | | |
| Межэтажная постоянная (чистовая) лестница | | ||
| Межкомнатные двери | | ||
| Высота потолков 1 этажа | 3 м | 3 м | 3м |
| Высота потолков 2 этажа | |||
| Настилы полов и ограждения крылец, террас, балконов | | ||
| Гидроизоляция полов балконов | | ||
| Инженерное оснащение | |||
| Жидкостной теплый пол | | ||
| Электрический теплый пол | |||
| Система вентиляции | | | |
| Только вводы воды, электричества, выводы канализации | | | |
| Электроразводка и электрощит | | ||
| Разводка хол. и гор. водоснабжения (ХВС и ГВС) | | ||
| Разводка батарей и/или системы теплого пола. Без оборудования котельной. | | ||
| Иное инженерное оснащение | | ||
| Подготовка участка для строительства | |||
| Устройство временного щита электроснабжения | | | |
| Устройство въезда на участок | |||
| Дорога на участке до пятна застройки | |||
| Подъем пятна застройки | |||
| Подготовка пятна застройки для фундаментных работ | |||
| Перемещение или вывоз грунта из котлована фундамента | |||
| Обеспечение строительного процесса | |||
| Доставка стройматериалов | | | |
| Генератор для обеспечения электричеством | |||
| Уборка и вывоз строительного мусора | | | |
| Организация проживания рабочих (бытовка) | | | |
| Биотуалет для рабочих | | | |
| Гарантия на все выполненные работы | |||
| Гарантия | |||
| Свернуть | |||
| Минимальная | 29 260 080 ₽ |
| Стандарт | 36 168 710 ₽ |
| Под чистовую отделку | 46 328 460 ₽ |
| Показать подробные комплектации | |
| Сравнить 0 комплектаций Свернуть все Развернуть все | Минимальная 29 260 080 ₽ | Стандарт 36 168 710 ₽ | Под чистовую отделку 46 328 460 ₽ |
| Кровля | |||
| Кровельное покрытие | Металлочерепица УНИКМА Т05 - 0,5 мм | Металлочерепица УНИКМА Т05 - 0,5 мм | Металлочерепица УНИКМА Т05 - 0,5 мм |
| Обрешетка | Обрешетка из сухого пиломатериала | Обрешетка из сухого пиломатериала | Обрешетка из сухого пиломатериала |
| Контробрешетка | Контробрешетка из сухого пилмата | Контробрешетка из сухого пилмата | Контробрешетка из сухого пилмата |
| Противоконденсатная (ветро-гидроизоляционная) пленка | Ветро-влагозащитная мембрана | Ветро-влагозащитная мембрана | Ветро-влагозащитная мембрана |
| Стропильная система | Стропильная система из сухого пилмата | Стропильная система из сухого пилмата | Стропильная система из сухого пилмата |
| Утепление чердачного перекрытия и стропильной системы | Минеральная вата 200 мм | Минеральная вата 200 мм | |
| Подшивка свесов кровли | Софит пластиковый перфорированный | ||
| Подшивка потолков террас и лоджий | |||
| Водосточная система | Водосточные трубы и желоба из ПВХ
| Водосточные трубы и желоба из ПВХ
| |
| Система снегозадержания | Снегозадержатель трубчатый | Снегозадержатель трубчатый | |
| Молниезащита | |||
| Фундамент | |||
| Сваи ж/бетонные | ЖБ сваи 200х200 мм длиной 3 м | ЖБ сваи 200х200 мм длиной 3 м | ЖБ сваи 200х200 мм длиной 3 м |
| Сваи стальные винтовые | |||
| Лента ж/бетонная монолитная мелкозаглубленная | |||
| Лента ж/бетонная монолитная на глубину промерзания | |||
| Лента ж/бетонная сборная (из ФБС) на глубину промерзания | |||
| Плита ж/бетонная монолитная мелкозаглубленная | Плоская ЖБ плита 300 мм с усилением в теле плиты | Плоская ЖБ плита 300 мм с усилением в теле плиты | Плоская ЖБ плита 300 мм с усилением в теле плиты |
| УШП (Утепленная Шведская Плита) | |||
| Бетоннная отмостка по периметру дома | |||
| Дренажная система по периметру дома | |||
| Ливневая система | |||
| Облицовка цоколя фундамента | |||
| Система контурного заземления | |||
| Стены | |||
| Несущая часть стены | Газосиликатный блок Bonolit D400 400мм | Газосиликатный блок Bonolit D400 400мм | Газосиликатный блок Bonolit D400 400мм |
| Фасадная отделка | Кирпич/АМК/Штукатурка | ||
| Утепление стены | |||
| Внутренняя обшивка/штукатурка со стороны помещения | Механизированная штукатурка | ||
| Пол первого этажа | |||
| Несущая часть перекрытия | Сборные ЖБ плиты ПНО 160 мм | Сборные ЖБ плиты ПНО 160 мм | Сборные ЖБ плиты ПНО 160 мм |
| Теплоизоляция цокольного перекрытия | Утепление пола 1 этажа ЭППС 100 мм | ||
| Стяжка/подготовка под чистый пол | Механизированная полусухая стяжка
| ||
| Перекрытия над первым и последующими этажами | |||
| Несущая часть перекрытия | Сборные ЖБ плиты ПНО 160 мм
| Сборные ЖБ плиты ПНО 160 мм | Сборные ЖБ плиты ПНО 160 мм |
| Звукоизоляция/теплоизоляция в перекрытии | |||
| Стяжка/подготовка под чистый пол | Механизированная полусухая стяжка | ||
| Отделка потолка нижележащего этажа | |||
| Окна и внешние двери | |||
| Окна | Окна ПВХ, профиль Rehau Delight, 70 мм | Окна ПВХ, профиль Rehau Delight, 70 мм | |
| Оконные наличники | |||
| Откосы в помещении | Механизированная штукатурка внутренних откосов | ||
| Отливы снаружи | Металлические отливы на окнах | ||
| Подоконники | |||
| Входные двери | Временная металлическая дверь | Временная металлическая дверь | |
| Внутренние конструкции | |||
| Внутренние несущие стены | Газосиликатный блок Bonolit D500 300мм | Газосиликатный блок Bonolit D500 300мм | Газосиликатный блок Bonolit D500 300мм |
| Внутренние ненесущие стены | Газосиликатный блок Bonolit D500 100мм | Газосиликатный блок Bonolit D500 100мм | Газосиликатный блок Bonolit D500 100мм |
| Звукоизоляция внутренних стен/перегородок | |||
| Межэтажная строительная (черновая) лестница | ЖБ лестница 18 ступеней | ЖБ лестница 18 ступеней | |
| Межэтажная постоянная (чистовая) лестница | ЖБ лестница 18 ступеней | ЖБ лестница 18 ступеней | |
| Межкомнатные двери | |||
| Высота потолков 1 этажа | 3 м | 3 м | 3 м |
| Высота потолков 2 этажа | 3 м | 3 м | 3 м |
| Настилы полов и ограждения крылец, террас, балконов | Покрытие черновой доской террас/крылец | Покрытие черновой доской террас/крылец | |
| Гидроизоляция полов балконов | |||
| Инженерное оснащение | |||
| Жидкостной теплый пол | Водяные теплые полы | ||
| Электрический теплый пол | |||
| Система вентиляции | Естественная вентиляция | ||
| Только вводы воды, электричества, выводы канализации | |||
| Электроразводка и электрощит | 100 точек электричества, 3 проходных выключателя, щиты | ||
| Разводка хол. и гор. водоснабжения (ХВС и ГВС) | Водоснабжение и канализация | ||
| Разводка батарей и/или системы теплого пола. Без оборудования котельной. | Радиаторное отопление | ||
| Иное инженерное оснащение | Комплектация котельной | ||
| Подготовка участка для строительства | |||
| Устройство временного щита электроснабжения | |||
| Устройство въезда на участок | |||
| Дорога на участке до пятна застройки | |||
| Подъем пятна застройки | |||
| Подготовка пятна застройки для фундаментных работ | |||
| Перемещение или вывоз грунта из котлована фундамента | |||
| Обеспечение строительного процесса | |||
| Доставка стройматериалов | | | |
| Генератор для обеспечения электричеством | |||
| Уборка и вывоз строительного мусора | |||
| Организация проживания рабочих (бытовка) | | | |
| Биотуалет для рабочих | | | |
| Гарантия на все выполненные работы | |||
| Гарантия | 5 лет | 5 лет | 5 лет |
| Свернуть | |||
| Минимальная | 7 111 825 ₽ |
| Стандарт | 9 956 555 ₽ |
| Под чистовую отделку | 13 004 480 ₽ |
| Показать подробные комплектации | |
| Сравнить 0 комплектаций Свернуть все Развернуть все | Минимальная 7 111 825 ₽ | Стандарт 9 956 555 ₽ | Под чистовую отделку 13 004 480 ₽ |
| Кровля | |||
| Кровельное покрытие | Металлочерепица «GRAND LINE» | Металлочерепица «GRAND LINE» | Металлочерепица «GRAND LINE» |
| Обрешетка | Доска 100х25, сухая, строганная, с обработкой огнебиозащитой | Доска 100х25, сухая, строганная, с обработкой огнебиозащитой | Доска 100х25, сухая, строганная, с обработкой огнебиозащитой |
| Контробрешетка | Брус 50х50 мм, сухой, строганный, с обработкой огнебиозащитой | Брус 50х50 мм, сухой, строганный, с обработкой огнебиозащитой | Брус 50х50 мм, сухой, строганный, с обработкой огнебиозащитой |
| Противоконденсатная (ветро-гидроизоляционная) пленка | Гидро-ветроизоляционная мембрана | Гидро-ветроизоляционная мембрана | Гидро-ветроизоляционная мембрана |
| Стропильная система | Доска 200х50, сухая, строганная, с обработкой огнебиозащитой | Доска 200х50, сухая, строганная, с обработкой огнебиозащитой | Доска 200х50, сухая, строганная, с обработкой огнебиозащитой |
| Утепление чердачного перекрытия и стропильной системы | Утеплитель Rockwool | Утеплитель Rockwool | |
| Подшивка свесов кровли | Софит пластиковый «GRAND LINE» | Софит пластиковый «GRAND LINE» | |
| Подшивка потолков террас и лоджий | Софит пластиковый «GRAND LINE» | ||
| Водосточная система | Водосточная система «GRAND LINE» | ||
| Система снегозадержания | Трубчатые снегодержатели «GRAND LINE» | ||
| Молниезащита | Система EZETEK | ||
| Фундамент | |||
| Сваи ж/бетонные | |||
| Сваи стальные винтовые | |||
| Лента ж/бетонная монолитная мелкозаглубленная | |||
| Лента ж/бетонная монолитная на глубину промерзания | |||
| Лента ж/бетонная сборная (из ФБС) на глубину промерзания | |||
| Плита ж/бетонная монолитная мелкозаглубленная | Монолитная железобетонная плита с утеплением и гидроизоляцией | Монолитная железобетонная плита с утеплением и гидроизоляцией | Монолитная железобетонная плита с утеплением и гидроизоляцией |
| УШП (Утепленная Шведская Плита) | |||
| Бетоннная отмостка по периметру дома | Утепленная отмостка по периметру дома | ||
| Дренажная система по периметру дома | | ||
| Ливневая система | Ливневая система с отводом дождевой воды | ||
| Облицовка цоколя фундамента | |||
| Система контурного заземления | |||
| Стены | |||
| Несущая часть стены | Газобетонные блоки D500 "YTONG" 600х375х250мм | Газобетонные блоки D500 "YTONG" 600х375х250мм | |
| Фасадная отделка | Мокрый фасад, декоративная штукатурка | Мокрый фасад, декоративная штукатурка | |
| Утепление стены | Утеплитель Rockwool | Утеплитель Rockwool | |
| Внутренняя обшивка/штукатурка со стороны помещения | |||
| Пол первого этажа | |||
| Несущая часть перекрытия | Пол первого этажа - фундаментная плита | Пол первого этажа - фундаментная плита | Пол первого этажа - фундаментная плита |
| Теплоизоляция цокольного перекрытия | |||
| Стяжка/подготовка под чистый пол | |||
| Перекрытия над первым и последующими этажами | |||
| Несущая часть перекрытия | Монолитные ж/б перекрытия 200 мм | Монолитные ж/б перекрытия 200 мм | |
| Звукоизоляция/теплоизоляция в перекрытии | |||
| Стяжка/подготовка под чистый пол | Стяжка армированная под чистовое покрытие | ||
| Отделка потолка нижележащего этажа | |||
| Окна и внешние двери | |||
| Окна | Профиль Rehau, стеклопакет с энергосберегающим стеклопакетом | Профиль Rehau, стеклопакет с энергосберегающим стеклопакетом | |
| Оконные наличники | |||
| Откосы в помещении | |||
| Отливы снаружи | | | |
| Подоконники | |||
| Входные двери | | | |
| Внутренние конструкции | |||
| Внутренние несущие стены | Газобетонные блоки D500 "YTONG" 600х250х300мм | Газобетонные блоки D500 "YTONG" 600х250х300мм | Газобетонные блоки D500 "YTONG" 600х250х300мм |
| Внутренние ненесущие стены | Газобетонные блоки D500 "YTONG" 600х100х300мм | Газобетонные блоки D500 "YTONG" 600х100х300мм | |
| Звукоизоляция внутренних стен/перегородок | |||
| Межэтажная строительная (черновая) лестница | | | |
| Межэтажная постоянная (чистовая) лестница | |||
| Межкомнатные двери | |||
| Высота потолков 1 этажа | 3000мм | 3000мм | 3000мм |
| Высота потолков 2 этажа | 3000мм | 3000мм | 3000мм |
| Настилы полов и ограждения крылец, террас, балконов | |||
| Гидроизоляция полов балконов | | | |
| Инженерное оснащение | |||
| Жидкостной теплый пол | |||
| Электрический теплый пол | |||
| Система вентиляции | |||
| Только вводы воды, электричества, выводы канализации | | | |
| Электроразводка и электрощит | |||
| Разводка хол. и гор. водоснабжения (ХВС и ГВС) | |||
| Разводка батарей и/или системы теплого пола. Без оборудования котельной. | |||
| Иное инженерное оснащение | |||
| Подготовка участка для строительства | |||
| Устройство временного щита электроснабжения | | | |
| Устройство въезда на участок | | | |
| Дорога на участке до пятна застройки | |||
| Подъем пятна застройки | |||
| Подготовка пятна застройки для фундаментных работ | | | |
| Перемещение или вывоз грунта из котлована фундамента | | | |
| Обеспечение строительного процесса | |||
| Доставка стройматериалов | | | |
| Генератор для обеспечения электричеством | | | |
| Уборка и вывоз строительного мусора | | | |
| Организация проживания рабочих (бытовка) | | | |
| Биотуалет для рабочих | | | |
| Гарантия на все выполненные работы | |||
| Гарантия | 2 года | 2 года | 2 года |
| Свернуть | |||
| Минимальная | 10 192 261 ₽ |
| Под чистовую отделку | 15 556 609 ₽ |
| Показать подробные комплектации | |
| Сравнить 0 комплектаций Свернуть все Развернуть все | Минимальная 10 192 261 ₽ | Под чистовую отделку 15 556 609 ₽ | |
| Кровля | |||
| Кровельное покрытие | Металлочерепица толщиной 0.5 мм | Металлочерепица толщиной 0.5 мм | |
| Обрешетка | 25х150 мм | 25х150 мм | |
| Контробрешетка | 25х50 мм | 25х50 мм | |
| Противоконденсатная (ветро-гидроизоляционная) пленка | | | |
| Стропильная система | | | |
| Утепление чердачного перекрытия и стропильной системы | 200 мм минеральной ватой | 200 мм минеральной ватой | |
| Подшивка свесов кровли | | | |
| Подшивка потолков террас и лоджий | | | |
| Водосточная система | | | |
| Система снегозадержания | |||
| Молниезащита | |||
| Фундамент | |||
| Сваи ж/бетонные | Диаметром 300 мм,
Уширение 600 мм в сонов | Диаметром 300 мм,
Уширение 600 мм в сонов | |
| Сваи стальные винтовые | |||
| Лента ж/бетонная монолитная мелкозаглубленная | | | |
| Лента ж/бетонная монолитная на глубину промерзания | |||
| Лента ж/бетонная сборная (из ФБС) на глубину промерзания | |||
| Плита ж/бетонная монолитная мелкозаглубленная | |||
| УШП (Утепленная Шведская Плита) | |||
| Бетоннная отмостка по периметру дома | |||
| Дренажная система по периметру дома | |||
| Ливневая система | |||
| Облицовка цоколя фундамента | |||
| Система контурного заземления | |||
| Стены | |||
| Несущая часть стены | | ||
| Фасадная отделка | |||
| Утепление стены | |||
| Внутренняя обшивка/штукатурка со стороны помещения | Штукатурка knauf мн Старт | ||
| Пол первого этажа | |||
| Несущая часть перекрытия | |||
| Теплоизоляция цокольного перекрытия | | ||
| Стяжка/подготовка под чистый пол | | ||
| Перекрытия над первым и последующими этажами | |||
| Несущая часть перекрытия | | | |
| Звукоизоляция/теплоизоляция в перекрытии | |||
| Стяжка/подготовка под чистый пол | | ||
| Отделка потолка нижележащего этажа | |||
| Окна и внешние двери | |||
| Окна | ПВХ 5-ти камерный, толщина профиля 70 мм, 2-х камерный эне | ПВХ 5-ти камерный, толщина профиля 70 мм, 2-х камерный эне | |
| Оконные наличники | |||
| Откосы в помещении | |||
| Отливы снаружи | | | |
| Подоконники | |||
| Входные двери | | | |
| Внутренние конструкции | |||
| Внутренние несущие стены | Кирпич 2.1 НФ толщиной 250 и 380 мм | Кирпич 2.1 НФ толщиной 250 и 380 мм | |
| Внутренние ненесущие стены | Кирпич 2.1 НФ толщиной 120 мм | Кирпич 2.1 НФ толщиной 120 мм | |
| Звукоизоляция внутренних стен/перегородок | |||
| Межэтажная строительная (черновая) лестница | | ||
| Межэтажная постоянная (чистовая) лестница | Металлический каркас | ||
| Межкомнатные двери | |||
| Высота потолков 1 этажа | 3 м | 3 м | |
| Высота потолков 2 этажа | 2,9 м | 2,9 м | |
| Настилы полов и ограждения крылец, террас, балконов | |||
| Гидроизоляция полов балконов | | | |
| Инженерное оснащение | |||
| Жидкостной теплый пол | весь этаж (если дом одноэтажный);
первый этаж + с.у втор | ||
| Электрический теплый пол | |||
| Система вентиляции | |||
| Только вводы воды, электричества, выводы канализации | | ||
| Электроразводка и электрощит | | ||
| Разводка хол. и гор. водоснабжения (ХВС и ГВС) | | ||
| Разводка батарей и/или системы теплого пола. Без оборудования котельной. | | ||
| Иное инженерное оснащение | |||
| Подготовка участка для строительства | |||
| Устройство временного щита электроснабжения | |||
| Устройство въезда на участок | | | |
| Дорога на участке до пятна застройки | |||
| Подъем пятна застройки | |||
| Подготовка пятна застройки для фундаментных работ | | | |
| Перемещение или вывоз грунта и | |||