D3754 Д-32

Сравнить проект В избранное
Д-32 / 1
Д-32 / 2
Д-32 / 1
Д-32 / 2
D3754
107 м²
Проект с подрядом
Компания: Домстрой36
Стоимость строительства
12 500 ₽
Заказать подробную смету
+7 (925) XXX-XX-XX Показать телефон
Задать вопрос по проекту
Технические характеристики
Общие
Материал стен
Брус
,
Клееный брус
,
Каркас
,
Каркасно-панельные
Общая площадь
107 м²
Жилая площадь
100 м²
Площадь застройки
8х10 м²
Приведенная площадь
100 м²
Количество жилых комнат/спален
1
Гараж
Нет гаража
Количество машин
нет
Подвал / цокольный этаж
Без подвала
Длина дома
10 м
Ширина дома
8 м
Кровля
Металлочерепица
Облицовка внешних стен
Без облицовки
,
Деревянная вагонка
,
Мокрая штукатурка
,
Облицовка камнем
,
Облицовочный кирпич
,
Сайдинг
,
Фасадные панели
Толщина несущих наружных стен
200 мм
Межэтажные перекрытия
По деревянным балкам
,
Сборные
,
Щитовые
Внутренние не несущие перегородки
Каркасно-обшивные
Фундамент
Свайный
Дополнительные
Окна
Окна до пола
,
Панорамные окна
Камин
Есть
Окно в ванной комнате
Есть
Дом для неровных участков (с рельефом)
Есть
Дом для узких участков
Есть
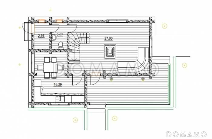
Планы помещений
Описание проекта
Каркас дома, стены:
Брус сечением 100\150\200*50мм с шагом 60см, нижняя обвязка 150*150, 200*200мм, угловые стойки брусовые 150\200*150мм, верхний пояс брусовой 150\200*150мм. Материал - естественной влажности или сухой принудительной сушки, пропитан антисептиком(Био-огне защита).
Лаги, стропила:
Брусовые сечением 100*150мм(ставятся на ребро), шаг 60см, стропильная система брус сечением 150\200*50мм, подстропильные балки доска сечением 150\200*50мм, порешетник обрезная доска 25мм, контр. обрешетка под кровлю брус 25-40мм.
Пол:
Черновой- обрезная доска 25мм, укладывается на черепной брусок сечением 50*50мм, чистовой- шпунтованная доска 36\46мм(Сухая)(Либо фанера или ОSB в 2 слоя).
Перегородки:
Брус сечением 100\150\200*50мм.
Утеплитель, мембранны:
Стены 100\150\200мм, пол - 150\200мм, межэтажное перекрытие от 100\150\200мм, Потолок мансарды - 150\200мм, ветро-паро-гидро защита.
Сборка дома:
Сборка дома на металлические усиленные оцинкованные уголки и пластины.
Категории проекта: деревянные для постоянного проживания каркасные из клееного бруса из бруса каркасно-панельные для узких участков дачные дома гостевые от 100 до 200 кв.м 8х10 каркасно-панельные в немецком стиле из бруса в немецком стиле из профилированного бруса до 120 кв.м до 150 кв.м до 200 кв.м с двухскатной крышей 6х10 загородные с камином узкие прямоугольные с барбекю с печью с панорамным остеклением загородные дома из бруса дачные из бруса дачные деревянные Проекты гостевых домов из дерева Проекты гостевых каркасных домов без гаража облицованные кирпичом дачные с камином каркасные для постоянного проживания из бруса для постоянного проживания на склоне деревянные для круглогодичного проживания дачные каркасные каменные до 140 кв м каркасно-щитовые до 130 кв м щитовые для постоянного проживания без гаража с подрядом для узких участков с камином с двухскатной крышей до 120 кв.м из клееного бруса до 120 кв.м каркасные до 120 кв.м с подрядом до 120 кв.м для постоянного проживания до 120 кв.м гостевые до 120 кв.м дачные до 120 кв.м без гаража до 120 кв.м с двухскатной крышей до 120 кв.м с окнами в пол до 120 кв.м с панорамными окнами до 120 кв.м прямоугольные до 120 кв.м 8х10 до 150 кв.м из клееного бруса до 150 кв.м каркасные до 150 кв.м для постоянного проживания до 150 кв.м гостевые до 150 кв.м дачные до 150 кв.м без гаража до 150 кв.м с двухскатной крышей до 150 кв.м с окнами до пола до 150 кв.м с панорамными окнами до 150 кв.м для узких участков до 150 кв.м с подрядом до 150 кв.м прямоугольные до 150 кв.м без подвала до 150 кв.м с камином деревянные для узких участков деревянные с окнами в пол деревянные с панорамными окнами деревянные прямоугольные деревянные с камином деревянные без гаража деревянные с подрядом деревянные без подвала деревянные 8х10 деревянные до 120 кв.м деревянные до 150 кв.м деревянные от 100 до 200 м2 недорогие гостевые недорогие с панорамными окнами из клееного бруса проект с подрядом из клееного бруса для узких участков из клееного бруса дачный дом из клееного бруса гостевой дом из клееного бруса для постоянного проживания из клееного бруса с окном в ванной комнате из клееного бруса с камином из клееного бруса прямоугольный из клееного бруса с окнами в пол (в гостиной) из клееного бруса с окнами в пол (на кухне) из клееного бруса с окнами в пол из клееного бруса с панорамными окнами из клееного бруса в скандинавском стиле из клееного бруса с двухскатной крышей из клееного бруса со свайным фундаментом из клееного бруса с каркасно-обшивными перегородками из клееного бруса без облицовки из клееного бруса с перекрытиями по деревянным балкам из клееного бруса с внешней облицовкой деревянной вагонкой из клееного бруса с кровлей из металлочерепицы из клееного бруса с выходом на терассу из гостиной из клееного бруса без подвала из клееного бруса без гаража из клееного бруса от 100 до 200 м2 из бруса проект с подрядом из бруса с окном в ванной комнате из бруса с камином из бруса прямоугольные из бруса с окнами до пола из бруса с двухскатной крышей из бруса со свайным фундаментом с каркасными стенами из бруса с перекрытиями по деревянным балкам из бруса с облицовкой сайдингом из бруса с облицовкой деревянной вагонкой из бруса без облицовки из бруса с кровлей из металлочерепицы из бруса без эркера из бруса с выходом на террасу из гостиной из бруса без подвала из бруса без гаража из бруса от 100 до 200 м2 Проекты домов с подрядом Показать все категории Скрыть категории

Похожие проекты
Состав проекта
Входит в стоимость
Цена, руб. Сроки, дней
Комплект архитектурно-строительных чертежей (АС) Входит в стоимость Готов к отправке
Разрабатывается отдельно
Цена, руб. Сроки, дней
Адаптация фундамента (изменение типа фундамента) по запросу 14 рабочих дней
Дизайн интерьера (стоимость от 2200руб. за квад.метр площади) по запросу 30 рабочих дней
Внесение изменений в проект по запросу 20 рабочих дней
Фэншуй дома 20 000 ₽ 14 рабочих дней в корзину
Фэншуй участка 15 000 ₽ 14 рабочих дней в корзину
Фэншуй полная консультация дом+участок с выездом на объект 100 000 ₽ 30 рабочих дней в корзину
Опции проекта вы можете заказать в корзине при оформлении заказа
Комплектации
Сравнить 0 комплектаций
Свернуть все
Развернуть все
Минимальная
12 500 ₽
Сравнить
Стандарт
15 000 ₽
Сравнить
Под чистовую отделку
16 500 ₽
Сравнить
Кровля
Кровельное покрытие
Обрешетка
Контробрешетка
Противоконденсатная (ветро-гидроизоляционная) пленка
Стропильная система
Утепление чердачного перекрытия и стропильной системы
Подшивка свесов кровли
Подшивка потолков террас и лоджий
Водосточная система
Система снегозадержания
Молниезащита
Фундамент
Сваи ж/бетонные
Сваи стальные винтовые
Лента ж/бетонная монолитная мелкозаглубленная
Лента ж/бетонная монолитная на глубину промерзания
Лента ж/бетонная сборная (из ФБС) на глубину промерзания
Плита ж/бетонная монолитная мелкозаглубленная
УШП (Утепленная Шведская Плита)
Бетоннная отмостка по периметру дома
Дренажная система по периметру дома
Ливневая система
Облицовка цоколя фундамента
Система контурного заземления
Стены
Несущая часть стены
Фасадная отделка
Ветрозащита
Утепление стены
Пароизоляция
Внутренняя обшивка/штукатурка со стороны помещения
Пол первого этажа
Несущая часть перекрытия
Теплоизоляция цокольного перекрытия
Стяжка/подготовка под чистый пол
Перекрытия над первым и последующими этажами
Несущая часть перекрытия
Звукоизоляция/теплоизоляция в перекрытии
Стяжка/подготовка под чистый пол
Отделка потолка нижележащего этажа
Окна и внешние двери
Окна
Оконные наличники
Откосы в помещении
Отливы снаружи
Подоконники
Входные двери
Внутренние конструкции
Внутренние несущие стены
Внутренние ненесущие стены
Звукоизоляция внутренних стен/перегородок
Межэтажная строительная (черновая) лестница
Межэтажная постоянная (чистовая) лестница
Межкомнатные двери
Высота потолков 1 этажа
2.7
Высота потолков 2 этажа
2.5
Настилы полов и ограждения крылец, террас, балконов
Гидроизоляция полов балконов
Инженерное оснащение
Жидкостной теплый пол
Электрический теплый пол
Система вентиляции
Только вводы воды, электричества, выводы канализации
Электроразводка и электрощит
Разводка хол. и гор. водоснабжения (ХВС и ГВС)
Разводка батарей и/или системы теплого пола. Без оборудования котельной.
Иное инженерное оснащение
Подготовка участка для строительства
Устройство временного щита электроснабжения
Устройство въезда на участок
Дорога на участке до пятна застройки
Подъем пятна застройки
Подготовка пятна застройки для фундаментных работ
Перемещение или вывоз грунта из котлована фундамента
Обеспечение строительного процесса
Доставка стройматериалов
Генератор для обеспечения электричеством
Уборка и вывоз строительного мусора
Организация проживания рабочих (бытовка)
Биотуалет для рабочих
Гарантия на все выполненные работы
Гарантия
5 лет
Отзывы покупателей
Рейтинг покупателей
0 / 5 5 5 1
На основе 1 оценок покупателей
0%
0%
0%
0%
0%
Отзывы о проекте D3754
Отзыв о проекте D3754
Чтобы оставить отзыв, пожалуйста авторизуйтесь.
Подбор строительной компании
Не знаете кому доверить строительство дома? Мы можем помочь! Подберем для вас из сотен наших партнеров несколько компаний с лучшем соотношением цена/качество под конкретно ваш запрос.
Подобрать