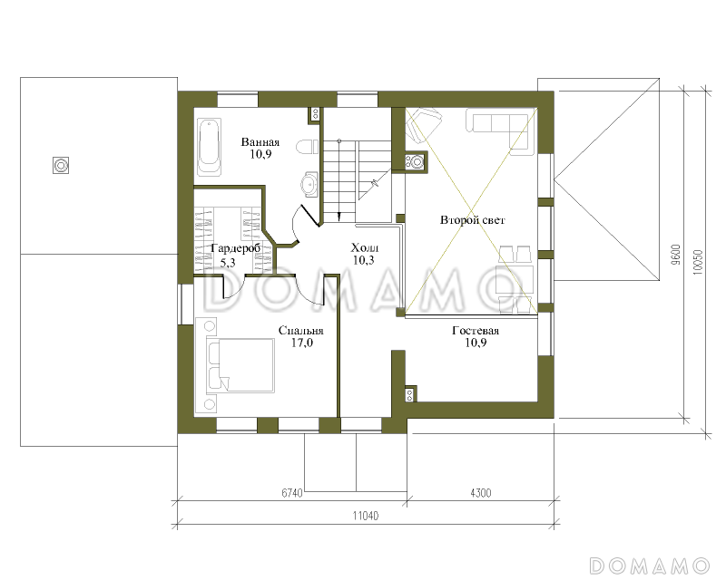
Просторный двухэтажный кирпичный современный коттедж, рассчитанный на круглогодичное комфортное проживание большой семьи. Имеет пять полноценных жилых комнат, совмещённое пространство гостиной и столовой, которые можно объединить с кухней, зонировать стеллажом или барной стойкой, или разделить на отдельные помещения перегородкой. Предусмотрена возможность установки камина. Большие окна гостиной-столовой с двухсторонним светом обеспечивают полный обзор участка. Также на первом этаже расположены кабинет, прихожая, санузел и кладовая. Для помещения котельной предусмотрен отдельный вход с террасы и из тамбура. На втором этаж расположены три спальни, гостевая/гардеробная, санузел, ванная комната и постирочная. Последние можно объединить в одно помещение.
| Цена, руб. | Сроки, дней | ||||||||||||||||||||||||||||||||||||||||||||||||||||||||||||||||||||||||||||||||||||||||||||||||||||||||||||||||||||||||||||||||||||||||||||||||||||||
|
Комплект архитектурно-строительных чертежей (АС)
|
Входит в стоимость | Готов к отправке | |||||||||||||||||||||||||||||||||||||||||||||||||||||||||||||||||||||||||||||||||||||||||||||||||||||||||||||||||||||||||||||||||||||||||||||||||||||
|
|
|||||||||||||||||||||||||||||||||||||||||||||||||||||||||||||||||||||||||||||||||||||||||||||||||||||||||||||||||||||||||||||||||||||||||||||||||||||||
| Цена, руб. | Сроки, дней | |||
| Паспорт рабочего проекта | 5 000 ₽ | 3 рабочих дня | в корзину | |
| Дополнительная копия проекта формата А3 | 4 000 ₽ | Готов к отправке | в корзину | |
| Электронная копия проекта (скан распечатанной версии) | 4 000 ₽ | 3 рабочих дня | в корзину | |
| Цена, руб. | Сроки, дней | |||
| Адаптация фундамента (изменение типа фундамента) | по запросу | 14 рабочих дней | ||
| Дизайн интерьера (стоимость от 2200руб. за квад.метр площади) | по запросу | 30 рабочих дней | ||
| Внесение изменений в проект | по запросу | 20 рабочих дней | ||
Инженерные разделы: ВК + ОВ + ЭО
Примерный состав типовых инженерных разделов
Раздел "Отопление и вентиляция"
ОВ-1 Общие данные (начало) Раздел "Водопровод и канализация"
ВК-1 Общие данные (начало) Раздел "Электрооборудование и освещение"
ЭО-1 Общие данные |
40 000 ₽ | 20 рабочих дней | в корзину | |
Примерный состав типовых инженерных разделов
Раздел "Отопление и вентиляция"
ОВ-1 Общие данные (начало) Раздел "Водопровод и канализация"
ВК-1 Общие данные (начало) Раздел "Электрооборудование и освещение"
ЭО-1 Общие данные |
||||
| Зеркалирование проекта (для которого нет зеркальной версии) | 8 000 ₽ | 5 рабочих дней | в корзину | |
| Разработка Генплана участка, в масштабе 1:250 | 7 500 ₽ | 5 рабочих дней | в корзину | |
| Фэншуй дома | 20 000 ₽ | 14 рабочих дней | в корзину | |
| Фэншуй участка | 15 000 ₽ | 14 рабочих дней | в корзину | |
| Фэншуй полная консультация дом+участок с выездом на объект | 100 000 ₽ | 30 рабочих дней | в корзину | |
|
Минимальная
|
17 248 200 ₽ |
|
Стандарт
|
20 292 000 ₽ |
|
Под чистовую отделку
|
26 379 600 ₽ |
| Показать подробные комплектации | |
|
Сравнить 0 комплектаций
Свернуть все
Развернуть все
|
Минимальная
17 248 200 ₽
|
Стандарт
20 292 000 ₽
|
Под чистовую отделку
26 379 600 ₽
|
| Кровля | |||
| Кровельное покрытие |
Металлочерепица «Металл Профиль»
|
Металлочерепица «Металл Профиль»
|
Металлочерепица «Металл Профиль»
|
| Обрешетка |
Доска 20х95 мм, сухая, строганная
|
Доска 20х95 мм, сухая, строганная
|
Доска 20х95 мм, сухая, строганная
|
| Контробрешетка |
Брус 45х45 мм, сухой, строганный
|
Брус 45х45 мм, сухой, строганный
|
Брус 45х45 мм, сухой, строганный
|
| Противоконденсатная (ветро-гидроизоляционная) пленка |
|
|
|
| Стропильная система |
Заводского изготовления. Доска 45х195 мм
|
Заводского изготовления. Доска 45х195 мм
|
Заводского изготовления. Доска 45х195 мм
|
| Утепление чердачного перекрытия и стропильной системы |
Базальтовый утеплитель Paroc Extra 250 мм
|
Базальтовый утеплитель Paroc Extra 250 мм
|
|
| Подшивка свесов кровли |
|
||
| Подшивка потолков террас и лоджий |
|
||
| Водосточная система | |||
| Система снегозадержания | |||
| Молниезащита | |||
| Фундамент | |||
| Сваи ж/бетонные | |||
| Сваи стальные винтовые | |||
| Лента ж/бетонная монолитная мелкозаглубленная | |||
| Лента ж/бетонная монолитная на глубину промерзания | |||
| Лента ж/бетонная сборная (из ФБС) на глубину промерзания | |||
| Плита ж/бетонная монолитная мелкозаглубленная |
Высота цоколя 350 мм
|
Высота цоколя 350 мм
|
Высота цоколя 350 мм
|
| УШП (Утепленная Шведская Плита) | |||
| Бетоннная отмостка по периметру дома | |||
| Дренажная система по периметру дома | |||
| Ливневая система | |||
| Облицовка цоколя фундамента | |||
| Система контурного заземления | |||
| Стены | |||
| Несущая часть стены |
Газобетон Ytong 300х250х625 мм
|
Газобетон Ytong 300х250х625 мм
|
Газобетон Ytong 300х250х625 мм
|
| Фасадная отделка |
Силикатная штукатурка
|
Лицевой
кирпич
|
|
| Утепление стены |
Базальтовый утеплитель ROCKWOOL Фасад Баттс 1200х600х50
|
Базальтовый утеплитель ROCKWOOL Фасад Баттс 1200х600х50
|
|
| Внутренняя обшивка/штукатурка со стороны помещения | |||
| Пол первого этажа | |||
| Несущая часть перекрытия | |||
| Теплоизоляция цокольного перекрытия | |||
| Стяжка/подготовка под чистый пол |
OSB-3 18 мм
|
||
| Перекрытия над первым и последующими этажами | |||
| Несущая часть перекрытия |
Монолитные ж/б перекрытия 180-200 мм
|
Монолитные ж/б перекрытия 180-200 мм
|
Монолитные ж/б перекрытия 180-200 мм
|
| Звукоизоляция/теплоизоляция в перекрытии |
Базальтовый утеплитель 150 мм
|
||
| Стяжка/подготовка под чистый пол |
OSB-3 18 мм
|
||
| Отделка потолка нижележащего этажа | |||
| Окна и внешние двери | |||
| Окна |
VEKA Softline 70 мм
|
VEKA Softline 70 мм
|
|
| Оконные наличники | |||
| Откосы в помещении | |||
| Отливы снаружи | |||
| Подоконники | |||
| Входные двери |
Jeld-Wen
|
Jeld-Wen
|
|
| Внутренние конструкции | |||
| Внутренние несущие стены |
Газобетон Ytong D400 250х250х625
|
Газобетон Ytong D400 250х250х625
|
Газобетон Ytong D400 250х250х625
|
| Внутренние ненесущие стены | |||
| Звукоизоляция внутренних стен/перегородок | |||
| Межэтажная строительная (черновая) лестница |
Маршевая
|
Маршевая
|
Маршевая
|
| Межэтажная постоянная (чистовая) лестница | |||
| Межкомнатные двери | |||
| Высота потолков 1 этажа |
2700 мм
|
2700 мм
|
2700 мм
|
| Высота потолков 2 этажа |
2500 мм
|
2500 мм
|
2500 мм
|
| Настилы полов и ограждения крылец, террас, балконов |
|
||
| Гидроизоляция полов балконов | |||
| Инженерное оснащение | |||
| Жидкостной теплый пол | |||
| Электрический теплый пол | |||
| Система вентиляции | |||
| Только вводы воды, электричества, выводы канализации |
|
|
|
| Электроразводка и электрощит | |||
| Разводка хол. и гор. водоснабжения (ХВС и ГВС) | |||
| Разводка батарей и/или системы теплого пола. Без оборудования котельной. | |||
| Иное инженерное оснащение | |||
| Подготовка участка для строительства | |||
| Устройство временного щита электроснабжения | |||
| Устройство въезда на участок | |||
| Дорога на участке до пятна застройки | |||
| Подъем пятна застройки | |||
| Подготовка пятна застройки для фундаментных работ | |||
| Перемещение или вывоз грунта из котлована фундамента | |||
| Обеспечение строительного процесса | |||
| Доставка стройматериалов |
50 км от КАД, МКАД
|
50 км от КАД, МКАД
|
50 км от КАД, МКАД
|
| Генератор для обеспечения электричеством | |||
| Уборка и вывоз строительного мусора | |||
| Организация проживания рабочих (бытовка) | |||
| Биотуалет для рабочих | |||
| Гарантия на все выполненные работы | |||
| Гарантия |
5 лет
|
5 лет
|
5 лет
|
| Свернуть | |||
|
Минимальная
|
9 184 159 ₽ |
|
Стандарт
|
13 628 107 ₽ |
|
Под чистовую отделку
|
21 627 213 ₽ |
| Показать подробные комплектации | |
|
Сравнить 0 комплектаций
Свернуть все
Развернуть все
|
Минимальная
9 184 159 ₽
|
Стандарт
13 628 107 ₽
|
Под чистовую отделку
21 627 213 ₽
|
| Кровля | |||
| Кровельное покрытие |
Металлочерепица Grand Line 0,5мм/ битумная черепица Шинглас
|
Металлочерепица Grand Line 0,5мм/ битумная черепица Шинглас
|
Металлочерепица Grand Line 0,5мм/ битумная черепица Шинглас
|
| Обрешетка |
Доска 100х25 с обработкой огнебиозащитой
|
Доска 100х25 с обработкой огнебиозащитой
|
Доска 100х25 с обработкой огнебиозащитой
|
| Контробрешетка |
Брусок 50х50 с обработкой огнебиозащитой
|
Брусок 50х50 с обработкой огнебиозащитой
|
Брусок 50х50 с обработкой огнебиозащитой
|
| Противоконденсатная (ветро-гидроизоляционная) пленка |
3-х слойная мембрана
|
3-х слойная мембрана
|
3-х слойная мембрана
|
| Стропильная система |
Доска 200х50 с обработкой огнебиозащитой
|
Доска 200х50 с обработкой огнебиозащитой
|
Доска 200х50 с обработкой огнебиозащитой
|
| Утепление чердачного перекрытия и стропильной системы |
Утеплитель Rockwool Лайт Баттс Скандик 200мм
|
Утеплитель Rockwool Лайт Баттс Скандик 200мм
|
|
| Подшивка свесов кровли |
Софит пластиковый Grand Line
|
Софит пластиковый Grand Line
|
|
| Подшивка потолков террас и лоджий |
Имитация бруса 145мм
|
||
| Водосточная система |
Водосточная система пластиковая Grand Line
|
Водосточная система пластиковая Grand Line
|
|
| Система снегозадержания |
Снегозадержатели трубчатые
|
Снегозадержатели трубчатые
|
|
| Молниезащита | |||
| Фундамент | |||
| Сваи ж/бетонные | |||
| Сваи стальные винтовые | |||
| Лента ж/бетонная монолитная мелкозаглубленная | |||
| Лента ж/бетонная монолитная на глубину промерзания | |||
| Лента ж/бетонная сборная (из ФБС) на глубину промерзания | |||
| Плита ж/бетонная монолитная мелкозаглубленная |
Монолитная железобетонная плита 300мм с утеплением и ги
|
Монолитная железобетонная плита 300мм с утеплением и ги
|
Монолитная железобетонная плита 300мм с утеплением и ги
|
| УШП (Утепленная Шведская Плита) | |||
| Бетоннная отмостка по периметру дома |
Утепленная отмостка по периметру дома
|
||
| Дренажная система по периметру дома |
Дренажная система с смотровыми колодцами
|
||
| Ливневая система |
Ливневая система с отводом дождевой воды
|
||
| Облицовка цоколя фундамента |
Облицовка цоколя камнем
|
||
| Система контурного заземления | |||
| Стены | |||
| Несущая часть стены |
Газобетонные блоки d500 Bonolit 375мм
|
Газобетонные блоки d500 Bonolit 375мм
|
Газобетонные блоки d500 Bonolit 375мм
|
| Фасадная отделка |
Облицовка кирпичом Braer
|
Облицовка кирпичом Braer
|
|
| Утепление стены | |||
| Внутренняя обшивка/штукатурка со стороны помещения |
Штукатурка стен
|
||
| Пол первого этажа | |||
| Несущая часть перекрытия |
Пол первого этажа - фундаментная плита
|
Пол первого этажа - фундаментная плита
|
Пол первого этажа - фундаментная плита
|
| Теплоизоляция цокольного перекрытия |
Утепление пенополистиролом 100мм над плитой
|
||
| Стяжка/подготовка под чистый пол |
Стяжка полов 80мм
|
||
| Перекрытия над первым и последующими этажами | |||
| Несущая часть перекрытия |
Монолитная железобетонная плита 180мм
|
Монолитная железобетонная плита 180мм
|
Монолитная железобетонная плита 180мм
|
| Звукоизоляция/теплоизоляция в перекрытии | |||
| Стяжка/подготовка под чистый пол |
Стяжка полов 80мм
|
||
| Отделка потолка нижележащего этажа |
Штукатурка потолков
|
||
| Окна и внешние двери | |||
| Окна |
Пластиковые окна REHAU GRAZIO 70мм, двухкамерный стеклопакет
|
Пластиковые окна REHAU GRAZIO 70мм, двухкамерный стеклопакет
|
|
| Оконные наличники | |||
| Откосы в помещении |
Штукатурка откосов
|
||
| Отливы снаружи |
Металлические оконный отливы
|
Металлические оконный отливы
|
|
| Подоконники |
Подоконники ПВХ
|
||
| Входные двери |
Входная утепленная дверь Torex
|
Входная утепленная дверь Torex
|
|
| Внутренние конструкции | |||
| Внутренние несущие стены |
Газобетонный блок d500 300мм
|
Газобетонный блок d500 300мм
|
Газобетонный блок d500 300мм
|
| Внутренние ненесущие стены |
Газобетонный блок d500 100мм
|
Газобетонный блок d500 100мм
|
|
| Звукоизоляция внутренних стен/перегородок | |||
| Межэтажная строительная (черновая) лестница | |||
| Межэтажная постоянная (чистовая) лестница |
Монолитная железобетонная лестница
|
Монолитная железобетонная лестница
|
|
| Межкомнатные двери | |||
| Высота потолков 1 этажа |
3 метра
|
3 метра
|
3 метра
|
| Высота потолков 2 этажа |
2,8 метра
|
2,8 метра
|
2,8 метра
|
| Настилы полов и ограждения крылец, террас, балконов | |||
| Гидроизоляция полов балконов |
Оклеечная гидроизоляция
|
Оклеечная гидроизоляция
|
|
| Инженерное оснащение | |||
| Жидкостной теплый пол | |||
| Электрический теплый пол | |||
| Система вентиляции |
Разводка систем вентиляции
|
||
| Только вводы воды, электричества, выводы канализации |
Ввод всех коммуникаций
|
Ввод всех коммуникаций
|
Ввод всех коммуникаций
|
| Электроразводка и электрощит |
Разводка электрики
|
||
| Разводка хол. и гор. водоснабжения (ХВС и ГВС) |
Разводка ХВС и ГВС
|
||
| Разводка батарей и/или системы теплого пола. Без оборудования котельной. |
Разводка отопления
|
||
| Иное инженерное оснащение | |||
| Подготовка участка для строительства | |||
| Устройство временного щита электроснабжения | |||
| Устройство въезда на участок | |||
| Дорога на участке до пятна застройки | |||
| Подъем пятна застройки | |||
| Подготовка пятна застройки для фундаментных работ |
Устройство песчаного основания с проливкой трамбовко
|
Устройство песчаного основания с проливкой трамбовко
|
Устройство песчаного основания с проливкой трамбовко
|
| Перемещение или вывоз грунта из котлована фундамента |
Перемещение по участку
|
Перемещение по участку
|
Перемещение по участку
|
| Обеспечение строительного процесса | |||
| Доставка стройматериалов |
Контроль поставки и качества материалов
|
Контроль поставки и качества материалов
|
Контроль поставки и качества материалов
|
| Генератор для обеспечения электричеством | |||
| Уборка и вывоз строительного мусора |
Уборка и вывоз строительного мусора
|
Уборка и вывоз строительного мусора
|
Уборка и вывоз строительного мусора
|
| Организация проживания рабочих (бытовка) |
Доставка и вывоз бытового помещения
|
Доставка и вывоз бытового помещения
|
|
| Биотуалет для рабочих |
Доставка, обслуживание и вывоз биотуалета
|
Доставка, обслуживание и вывоз биотуалета
|
|
| Гарантия на все выполненные работы | |||
| Гарантия |
10 лет
|
10 лет
|
10 лет
|
| Свернуть | |||
|
Минимальная
|
7 102 200 ₽ |
|
Стандарт
|
8 522 640 ₽ |
|
Под чистовую отделку
|
9 537 240 ₽ |
| Показать подробные комплектации | |
|
Сравнить 0 комплектаций
Свернуть все
Развернуть все
|
Минимальная
7 102 200 ₽
|
Стандарт
8 522 640 ₽
|
Под чистовую отделку
9 537 240 ₽
|
| Кровля | |||
| Кровельное покрытие |
Мететаллочерепица Grand Line
|
Мететаллочерепица Grand Line / мягкая кровля SHINGLAS
|
Мететаллочерепица Grand Line / мягкая кровля SHINGLAS / цементн
|
| Обрешетка |
Доска обрезная 25-100
|
Доска обрезная 25-100
|
Доска обрезная 25-100
|
| Контробрешетка |
Брусок 50х50
|
Брусок 50х50
|
Брусок 50х50
|
| Противоконденсатная (ветро-гидроизоляционная) пленка |
Isospan
|
Isospan
|
Isospan
|
| Стропильная система |
Доска обрезная 50х200 с пропиткой
|
Доска обрезная 50х200 с пропиткой
|
Доска обрезная 50х200 с пропиткой
|
| Утепление чердачного перекрытия и стропильной системы |
Минеральная вата Технониколь
|
Минеральная вата Технониколь
|
Минеральная вата Технониколь
|
| Подшивка свесов кровли |
AQUASYSTEM
|
AQUASYSTEM
|
|
| Подшивка потолков террас и лоджий |
AQUASYSTEM
|
AQUASYSTEM
|
|
| Водосточная система |
AQUASYSTEM
|
||
| Система снегозадержания |
GrandLine
|
||
| Молниезащита |
Torr
|
||
| Фундамент | |||
| Сваи ж/бетонные |
150*150
|
||
| Сваи стальные винтовые | |||
| Лента ж/бетонная монолитная мелкозаглубленная |
700*400 мм
|
700*400 мм
|
|
| Лента ж/бетонная монолитная на глубину промерзания | |||
| Лента ж/бетонная сборная (из ФБС) на глубину промерзания | |||
| Плита ж/бетонная монолитная мелкозаглубленная |
200 мм
|
||
| УШП (Утепленная Шведская Плита) | |||
| Бетоннная отмостка по периметру дома |
|
100*7000 мм
|
|
| Дренажная система по периметру дома |
|
||
| Ливневая система |
|
||
| Облицовка цоколя фундамента |
|
||
| Система контурного заземления |
Torr
|
||
| Стены | |||
| Несущая часть стены |
Газобетон Bonolit 400
D400
|
Газобетон Bonolit 400
D400
|
Газобетон Bonolit 400
D400
|
| Фасадная отделка |
Штукатурка
|
Кирпич
|
|
| Утепление стены | |||
| Внутренняя обшивка/штукатурка со стороны помещения | |||
| Пол первого этажа | |||
| Несущая часть перекрытия |
пустотные плиты
|
пустотные плиты
|
монолитная плита
|
| Теплоизоляция цокольного перекрытия |
Пеноплекс 50 мм
|
Пеноплекс 50 мм
|
Пеноплекс 50 мм
|
| Стяжка/подготовка под чистый пол | |||
| Перекрытия над первым и последующими этажами | |||
| Несущая часть перекрытия |
Деревянное переркрытие
|
Пустотные плиты
|
Монолитное перекрытие
|
| Звукоизоляция/теплоизоляция в перекрытии | |||
| Стяжка/подготовка под чистый пол | |||
| Отделка потолка нижележащего этажа | |||
| Окна и внешние двери | |||
| Окна |
REHAU DELIGHT-Design профиль 70мм
|
||
| Оконные наличники |
|
||
| Откосы в помещении | |||
| Отливы снаружи |
|
||
| Подоконники |
|
||
| Входные двери |
Дверь входная с термо-разрывом входная
|
||
| Внутренние конструкции | |||
| Внутренние несущие стены |
Газобетон 250 мм Bonolit
|
Газобетон 250 мм Bonolit
|
Газобетон 250 мм Bonolit
|
| Внутренние ненесущие стены |
Газобетон 100 мм Bonolit
|
Газобетон 100 мм Bonolit
|
|
| Звукоизоляция внутренних стен/перегородок | |||
| Межэтажная строительная (черновая) лестница |
есть
|
есть
|
есть
|
| Межэтажная постоянная (чистовая) лестница |
есть
|
||
| Межкомнатные двери | |||
| Высота потолков 1 этажа |
3000
|
3250
|
3250
|
| Высота потолков 2 этажа |
2750
|
3000
|
3250
|
| Настилы полов и ограждения крылец, террас, балконов | |||
| Гидроизоляция полов балконов |
есть
|
||
| Инженерное оснащение | |||
| Жидкостной теплый пол |
по выбору
|
||
| Электрический теплый пол |
по выбору
|
||
| Система вентиляции |
есть
|
||
| Только вводы воды, электричества, выводы канализации |
|
|
|
| Электроразводка и электрощит |
|
||
| Разводка хол. и гор. водоснабжения (ХВС и ГВС) |
|
||
| Разводка батарей и/или системы теплого пола. Без оборудования котельной. |
|
||
| Иное инженерное оснащение |
|
||
| Подготовка участка для строительства | |||
| Устройство временного щита электроснабжения |
|
|
|
| Устройство въезда на участок |
|
||
| Дорога на участке до пятна застройки |
|
||
| Подъем пятна застройки |
|
||
| Подготовка пятна застройки для фундаментных работ |
|
||
| Перемещение или вывоз грунта из котлована фундамента |
|
||
| Обеспечение строительного процесса | |||
| Доставка стройматериалов |
|
|
|
| Генератор для обеспечения электричеством |
|
|
|
| Уборка и вывоз строительного мусора |
|
|
|
| Организация проживания рабочих (бытовка) |
|
|
|
| Биотуалет для рабочих |
|
|
|
| Гарантия на все выполненные работы | |||
| Гарантия |
3 года
|
3 года
|
3 года
|
| Свернуть | |||
|
Минимальная
|
6 549 445 ₽ |
|
Стандарт
|
9 612 320 ₽ |
|
Под чистовую отделку
|
10 283 985 ₽ |
| Показать подробные комплектации | |
|
Сравнить 0 комплектаций
Свернуть все
Развернуть все
|
Минимальная
6 549 445 ₽
|
Стандарт
9 612 320 ₽
|
Под чистовую отделку
10 283 985 ₽
|
| Кровля | |||
| Кровельное покрытие |
Металочерепица Grand Line
|
Металочерепица Grand Line
|
Металочерепица Grand Line
|
| Обрешетка |
Доска 100х25, обработанная огне-биозащит
|
Доска 100х25, обработанная огне-биозащит
|
Доска 100х25, обработанная огне-биозащит
|
| Контробрешетка |
Брус 45х45, обработанный огне-биозащитн
|
Брус 45х45, обработанный огне-биозащитн
|
Брус 45х45, обработанный огне-биозащитн
|
| Противоконденсатная (ветро-гидроизоляционная) пленка |
Ветро - гидрозащита Изоспан АМ
|
Ветро - гидрозащита Изоспан АМ
|
Ветро - гидрозащита Изоспан АМ
|
| Стропильная система |
Доска 200х50, обработанная огне-биозащит
|
Доска 200х50, обработанная огне-биозащит
|
Доска 200х50, обработанная огне-биозащит
|
| Утепление чердачного перекрытия и стропильной системы |
Утеплитель минеральной ватой Rocwool Лай
|
Утеплитель минеральной ватой Rocwool Лай
|
|
| Подшивка свесов кровли |
ПВХ перфорированный софит Doce
|
ПВХ перфорированный софит Doce
|
|
| Подшивка потолков террас и лоджий |
ПВХ перфорированный софит Doce
|
ПВХ перфорированный софит Doce
|
|
| Водосточная система |
Водосточная система Doce
|
||
| Система снегозадержания |
Трубчатый снегозадержатель
|
||
| Молниезащита | |||
| Фундамент | |||
| Сваи ж/бетонные | |||
| Сваи стальные винтовые | |||
| Лента ж/бетонная монолитная мелкозаглубленная | |||
| Лента ж/бетонная монолитная на глубину промерзания | |||
| Лента ж/бетонная сборная (из ФБС) на глубину промерзания | |||
| Плита ж/бетонная монолитная мелкозаглубленная |
Монолитная плита толщиной 300мм. Армиро
|
Монолитная плита толщиной 300мм. Армиро
|
Монолитная плита толщиной 300мм. Армиро
|
| УШП (Утепленная Шведская Плита) | |||
| Бетоннная отмостка по периметру дома |
Утеплённая отмостка 100мм. Шириной 1 мет
|
Утеплённая отмостка 100мм. Шириной 1 мет
|
|
| Дренажная система по периметру дома |
Дренажная труба 100мм. Включая смотровы
|
Дренажная труба 100мм. Включая смотровы
|
|
| Ливневая система | |||
| Облицовка цоколя фундамента |
Утеплённый цоколь Облицованный декор
|
||
| Система контурного заземления | |||
| Стены | |||
| Несущая часть стены |
Газосиликатный Блок Bonolit D400 толщиной 40
|
Газосиликатный Блок Bonolit D400 толщиной 40
|
Газосиликатный Блок Bonolit D400 толщиной 40
|
| Фасадная отделка |
Облицовочный кирпич Терекс
|
||
| Утепление стены | |||
| Внутренняя обшивка/штукатурка со стороны помещения | |||
| Пол первого этажа | |||
| Несущая часть перекрытия |
Монолитная плита
|
Монолитная плита
|
Монолитная плита
|
| Теплоизоляция цокольного перекрытия | |||
| Стяжка/подготовка под чистый пол | |||
| Перекрытия над первым и последующими этажами | |||
| Несущая часть перекрытия |
Пустотные Ж/Б плиты перекрытия
|
Пустотные Ж/Б плиты перекрытия
|
Пустотные Ж/Б плиты перекрытия
|
| Звукоизоляция/теплоизоляция в перекрытии | |||
| Стяжка/подготовка под чистый пол | |||
| Отделка потолка нижележащего этажа | |||
| Окна и внешние двери | |||
| Окна |
REHAU Blitz ** 60 мм, стеклопакеты 3 камеры
|
REHAU Blitz ** 60 мм, стеклопакеты 3 камеры
|
REHAU Blitz ** 60 мм, стеклопакеты 3 камеры
|
| Оконные наличники | |||
| Откосы в помещении | |||
| Отливы снаружи | |||
| Подоконники | |||
| Входные двери | |||
| Внутренние конструкции | |||
| Внутренние несущие стены |
Газосиликатный Блок Bonolit D400 толщиной 30
|
Газосиликатный Блок Bonolit D400 толщиной 30
|
Газосиликатный Блок Bonolit D400 толщиной 30
|
| Внутренние ненесущие стены | |||
| Звукоизоляция внутренних стен/перегородок | |||
| Межэтажная строительная (черновая) лестница | |||
| Межэтажная постоянная (чистовая) лестница |
Бетонная армированная лестница
|
||
| Межкомнатные двери | |||
| Высота потолков 1 этажа | |||
| Высота потолков 2 этажа | |||
| Настилы полов и ограждения крылец, террас, балконов | |||
| Гидроизоляция полов балконов |
Двойная гидроизоляция ХПП
|
||
| Инженерное оснащение | |||
| Жидкостной теплый пол | |||
| Электрический теплый пол | |||
| Система вентиляции | |||
| Только вводы воды, электричества, выводы канализации | |||
| Электроразводка и электрощит | |||
| Разводка хол. и гор. водоснабжения (ХВС и ГВС) | |||
| Разводка батарей и/или системы теплого пола. Без оборудования котельной. | |||
| Иное инженерное оснащение | |||
| Подготовка участка для строительства | |||
| Устройство временного щита электроснабжения | |||
| Устройство въезда на участок | |||
| Дорога на участке до пятна застройки | |||
| Подъем пятна застройки | |||
| Подготовка пятна застройки для фундаментных работ | |||
| Перемещение или вывоз грунта из котлована фундамента | |||
| Обеспечение строительного процесса | |||
| Доставка стройматериалов |
Доставка и разгрузка строительных мат
|
Доставка и разгрузка строительных мат
|
Доставка и разгрузка строительных мат
|
| Генератор для обеспечения электричеством | |||
| Уборка и вывоз строительного мусора | |||
| Организация проживания рабочих (бытовка) |
Обеспечение рабочих строительным гор
|
Обеспечение рабочих строительным гор
|
Обеспечение рабочих строительным гор
|
| Биотуалет для рабочих | |||
| Гарантия на все выполненные работы | |||
| Гарантия |
5 лет
|
5 лет
|
5 лет
|
| Свернуть | |||
|
Минимальная
|
5 965 848 ₽ |
|
Стандарт
|
6 818 112 ₽ |
|
Под чистовую отделку
|
8 948 772 ₽ |
| Показать подробные комплектации | |
|
Сравнить 0 комплектаций
Свернуть все
Развернуть все
|
Минимальная
5 965 848 ₽
|
Стандарт
6 818 112 ₽
|
Под чистовую отделку
8 948 772 ₽
|
| Кровля | |||
| Кровельное покрытие |
450
|
640
|
910
|
| Обрешетка |
150
|
150
|
150
|
| Контробрешетка |
130
|
130
|
130
|
| Противоконденсатная (ветро-гидроизоляционная) пленка |
70
|
70
|
70
|
| Стропильная система |
650
|
750
|
850
|
| Утепление чердачного перекрытия и стропильной системы |
160
|
180
|
180
|
| Подшивка свесов кровли |
550
|
550
|
550
|
| Подшивка потолков террас и лоджий |
550
|
550
|
550
|
| Водосточная система |
550
|
550
|
550
|
| Система снегозадержания |
55
|
110
|
180
|
| Молниезащита |
110
|
110
|
110
|
| Фундамент | |||
| Сваи ж/бетонные |
7000
|
7000
|
7000
|
| Сваи стальные винтовые | |||
| Лента ж/бетонная монолитная мелкозаглубленная |
7000
|
7000
|
7000
|
| Лента ж/бетонная монолитная на глубину промерзания |
7000
|
7000
|
7000
|
| Лента ж/бетонная сборная (из ФБС) на глубину промерзания | |||
| Плита ж/бетонная монолитная мелкозаглубленная |
7000
|
7000
|
7000
|
| УШП (Утепленная Шведская Плита) |
7000
|
7000
|
7000
|
| Бетоннная отмостка по периметру дома |
320
|
320
|
320
|
| Дренажная система по периметру дома |
500
|
500
|
500
|
| Ливневая система |
450
|
450
|
450
|
| Облицовка цоколя фундамента |
1750
|
2000
|
2000
|
| Система контурного заземления | |||
| Стены | |||
| Несущая часть стены |
2600
|
2600
|
2600
|
| Фасадная отделка |
650
|
1300
|
1550
|
| Утепление стены |
380
|
380
|
380
|
| Внутренняя обшивка/штукатурка со стороны помещения |
420
|
450
|
480
|
| Пол первого этажа | |||
| Несущая часть перекрытия |
4800
|
4800
|
4800
|
| Теплоизоляция цокольного перекрытия |
280
|
300
|
320
|
| Стяжка/подготовка под чистый пол |
260
|
280
|
300
|
| Перекрытия над первым и последующими этажами | |||
| Несущая часть перекрытия |
4800
|
4800
|
4800
|
| Звукоизоляция/теплоизоляция в перекрытии |
280
|
300
|
320
|
| Стяжка/подготовка под чистый пол |
260
|
280
|
300
|
| Отделка потолка нижележащего этажа |
220
|
380
|
850
|
| Окна и внешние двери | |||
| Окна |
3800
|
4500
|
6500
|
| Оконные наличники |
150
|
150
|
150
|
| Откосы в помещении |
260
|
350
|
410
|
| Отливы снаружи |
120
|
120
|
120
|
| Подоконники |
320
|
320
|
320
|
| Входные двери |
3500
|
4800
|
9700
|
| Внутренние конструкции | |||
| Внутренние несущие стены |
1800
|
1900
|
2000
|
| Внутренние ненесущие стены |
320
|
450
|
600
|
| Звукоизоляция внутренних стен/перегородок |
220
|
260
|
330
|
| Межэтажная строительная (черновая) лестница |
100
|
100
|
100
|
| Межэтажная постоянная (чистовая) лестница |
9500
|
10500
|
15500
|
| Межкомнатные двери |
2700
|
3200
|
4500
|
| Высота потолков 1 этажа |
2700
|
2800
|
3000
|
| Высота потолков 2 этажа |
2700
|
2800
|
3000
|
| Настилы полов и ограждения крылец, террас, балконов |
450
|
480
|
670
|
| Гидроизоляция полов балконов |
80
|
320
|
380
|
| Инженерное оснащение | |||
| Жидкостной теплый пол | |||
| Электрический теплый пол | |||
| Система вентиляции | |||
| Только вводы воды, электричества, выводы канализации | |||
| Электроразводка и электрощит | |||
| Разводка хол. и гор. водоснабжения (ХВС и ГВС) | |||
| Разводка батарей и/или системы теплого пола. Без оборудования котельной. | |||
| Иное инженерное оснащение | |||
| Подготовка участка для строительства | |||
| Устройство временного щита электроснабжения |
|
|
|
| Устройство въезда на участок |
|
|
|
| Дорога на участке до пятна застройки |
|
|
|
| Подъем пятна застройки |
|
|
|
| Подготовка пятна застройки для фундаментных работ |
|
|
|
| Перемещение или вывоз грунта из котлована фундамента |
|
|
|
| Обеспечение строительного процесса | |||
| Доставка стройматериалов |
|
|
|
| Генератор для обеспечения электричеством |
|
|
|
| Уборка и вывоз строительного мусора |
|
|
|
| Организация проживания рабочих (бытовка) |
35000
|
35000
|
35000
|
| Биотуалет для рабочих |
5000
|
5000
|
5000
|
| Гарантия на все выполненные работы | |||
| Гарантия |
5
|
5
|
5
|
| Свернуть | |||
|
Минимальная
|
5 714 227 ₽ |
|
Стандарт
|
6 493 440 ₽ |
|
Под чистовую отделку
|
8 319 719 ₽ |
| Показать подробные комплектации | |
|
Сравнить 0 комплектаций
Свернуть все
Развернуть все
|
Минимальная
5 714 227 ₽
|
Стандарт
6 493 440 ₽
|
Под чистовую отделку
8 319 719 ₽
|
| Кровля | |||
| Кровельное покрытие |
Меллочерепица
|
Гибкая черепица
|
Фальцевая кровля
|
| Обрешетка |
|
|
|
| Контробрешетка |
|
|
|
| Противоконденсатная (ветро-гидроизоляционная) пленка |
|
|
|
| Стропильная система |
|
|
|
| Утепление чердачного перекрытия и стропильной системы |
|
|
|
| Подшивка свесов кровли |
|
|
|
| Подшивка потолков террас и лоджий |
|
|
|
| Водосточная система |
|
||
| Система снегозадержания |
|
||
| Молниезащита | |||
| Фундамент | |||
| Сваи ж/бетонные |
|
||
| Сваи стальные винтовые | |||
| Лента ж/бетонная монолитная мелкозаглубленная |
|
||
| Лента ж/бетонная монолитная на глубину промерзания | |||
| Лента ж/бетонная сборная (из ФБС) на глубину промерзания | |||
| Плита ж/бетонная монолитная мелкозаглубленная |
|
||
| УШП (Утепленная Шведская Плита) | |||
| Бетоннная отмостка по периметру дома | |||
| Дренажная система по периметру дома | |||
| Ливневая система | |||
| Облицовка цоколя фундамента | |||
| Система контурного заземления | |||
| Стены | |||
| Несущая часть стены |
|
|
|
| Фасадная отделка |
|
|
|
| Утепление стены |
|
|
|
| Внутренняя обшивка/штукатурка со стороны помещения | |||
| Пол первого этажа | |||
| Несущая часть перекрытия |
|
|
|
| Теплоизоляция цокольного перекрытия |
|
||
| Стяжка/подготовка под чистый пол | |||
| Перекрытия над первым и последующими этажами | |||
| Несущая часть перекрытия |
|
|
|
| Звукоизоляция/теплоизоляция в перекрытии |
|
||
| Стяжка/подготовка под чистый пол | |||
| Отделка потолка нижележащего этажа | |||
| Окна и внешние двери | |||
| Окна | |||
| Оконные наличники | |||
| Откосы в помещении | |||
| Отливы снаружи | |||
| Подоконники | |||
| Входные двери | |||
| Внутренние конструкции | |||
| Внутренние несущие стены |
|
|
|
| Внутренние ненесущие стены |
|
|
|
| Звукоизоляция внутренних стен/перегородок |
|
||
| Межэтажная строительная (черновая) лестница |
|
|
|
| Межэтажная постоянная (чистовая) лестница | |||
| Межкомнатные двери | |||
| Высота потолков 1 этажа | |||
| Высота потолков 2 этажа | |||
| Настилы полов и ограждения крылец, террас, балконов |
|
||
| Гидроизоляция полов балконов |
|
|
|
| Инженерное оснащение | |||
| Жидкостной теплый пол | |||
| Электрический теплый пол | |||
| Система вентиляции | |||
| Только вводы воды, электричества, выводы канализации |
|
|
|
| Электроразводка и электрощит | |||
| Разводка хол. и гор. водоснабжения (ХВС и ГВС) | |||
| Разводка батарей и/или системы теплого пола. Без оборудования котельной. | |||
| Иное инженерное оснащение | |||
| Подготовка участка для строительства | |||
| Устройство временного щита электроснабжения |
|
|
|
| Устройство въезда на участок |
|
||
| Дорога на участке до пятна застройки | |||
| Подъем пятна застройки | |||
| Подготовка пятна застройки для фундаментных работ |
|
|
|
| Перемещение или вывоз грунта из котлована фундамента |
|
||
| Обеспечение строительного процесса | |||
| Доставка стройматериалов |
|
|
|
| Генератор для обеспечения электричеством | |||
| Уборка и вывоз строительного мусора |
|
|
|
| Организация проживания рабочих (бытовка) |
|
|
|
| Биотуалет для рабочих | |||
| Гарантия на все выполненные работы | |||
| Гарантия |
5 лет
|
5 лет
|
5 лет
|
| Свернуть | |||
|
Минимальная
|
10 146 000 ₽ |
|
Стандарт
|
15 218 999 ₽ |
|
Под чистовую отделку
|
24 350 400 ₽ |
| Показать подробные комплектации | |
|
Сравнить 0 комплектаций
Свернуть все
Развернуть все
|
Минимальная
10 146 000 ₽
|
Стандарт
15 218 999 ₽
|
Под чистовую отделку
24 350 400 ₽
|
| Кровля | |||
| Кровельное покрытие |
|
|
|
| Обрешетка |
|
|
|
| Контробрешетка |
|
|
|
| Противоконденсатная (ветро-гидроизоляционная) пленка |
|
|
|
| Стропильная система |
|
|
|
| Утепление чердачного перекрытия и стропильной системы |
|
|
|
| Подшивка свесов кровли |
|
||
| Подшивка потолков террас и лоджий |
|
||
| Водосточная система |
|
|
|
| Система снегозадержания |
|
|
|
| Молниезащита | |||
| Фундамент | |||
| Сваи ж/бетонные | |||
| Сваи стальные винтовые | |||
| Лента ж/бетонная монолитная мелкозаглубленная | |||
| Лента ж/бетонная монолитная на глубину промерзания | |||
| Лента ж/бетонная сборная (из ФБС) на глубину промерзания | |||
| Плита ж/бетонная монолитная мелкозаглубленная |
|
|
|
| УШП (Утепленная Шведская Плита) | |||
| Бетоннная отмостка по периметру дома | |||
| Дренажная система по периметру дома | |||
| Ливневая система | |||
| Облицовка цоколя фундамента | |||
| Система контурного заземления | |||
| Стены | |||
| Несущая часть стены |
|
|
|
| Фасадная отделка |
|
||
| Утепление стены |
|
|
|
| Внутренняя обшивка/штукатурка со стороны помещения |
|
||
| Пол первого этажа | |||
| Несущая часть перекрытия |
|
|
|
| Теплоизоляция цокольного перекрытия |
|
|
|
| Стяжка/подготовка под чистый пол |
|
||
| Перекрытия над первым и последующими этажами | |||
| Несущая часть перекрытия |
|
|
|
| Звукоизоляция/теплоизоляция в перекрытии |
|
|
|
| Стяжка/подготовка под чистый пол |
|
||
| Отделка потолка нижележащего этажа |
|
||
| Окна и внешние двери | |||
| Окна |
|
|
|
| Оконные наличники |
|
||
| Откосы в помещении |
|
||
| Отливы снаружи |
|
|
|
| Подоконники |
|
||
| Входные двери |
|
|
|
| Внутренние конструкции | |||
| Внутренние несущие стены |
|
|
|
| Внутренние ненесущие стены |
|
|
|
| Звукоизоляция внутренних стен/перегородок |
|
|
|
| Межэтажная строительная (черновая) лестница |
|
|
|
| Межэтажная постоянная (чистовая) лестница | |||
| Межкомнатные двери | |||
| Высота потолков 1 этажа |
2,85
|
2,85
|
2,85
|
| Высота потолков 2 этажа |
2,75
|
2,75
|
2,75
|
| Настилы полов и ограждения крылец, террас, балконов |
|
||
| Гидроизоляция полов балконов |
|
||
| Инженерное оснащение | |||
| Жидкостной теплый пол |
|
||
| Электрический теплый пол |
|
||
| Система вентиляции |
естественная
|
естественная
|
естественная
|
| Только вводы воды, электричества, выводы канализации |
|
|
|
| Электроразводка и электрощит |
|
||
| Разводка хол. и гор. водоснабжения (ХВС и ГВС) |
|
||
| Разводка батарей и/или системы теплого пола. Без оборудования котельной. |
|
||
| Иное инженерное оснащение | |||
| Подготовка участка для строительства | |||
| Устройство временного щита электроснабжения |
|
|
|
| Устройство въезда на участок | |||
| Дорога на участке до пятна застройки | |||
| Подъем пятна застройки | |||
| Подготовка пятна застройки для фундаментных работ |
|
|
|
| Перемещение или вывоз грунта из котлована фундамента |
|
|
|
| Обеспечение строительного процесса | |||
| Доставка стройматериалов |
|
|
|
| Генератор для обеспечения электричеством | |||
| Уборка и вывоз строительного мусора |
|
|
|
| Организация проживания рабочих (бытовка) |
|
|
|
| Биотуалет для рабочих |
|
|
|
| Гарантия на все выполненные работы | |||
| Гарантия |
|
|
|
| Свернуть | |||
|
Минимальная
|
10 348 920 ₽ |
|
Стандарт
|
11 322 936 ₽ |
|
Под чистовую отделку
|
12 885 420 ₽ |
| Показать подробные комплектации | |
|
Сравнить 0 комплектаций
Свернуть все
Развернуть все
|
Минимальная
10 348 920 ₽
|
Стандарт
11 322 936 ₽
|
Под чистовую отделку
12 885 420 ₽
|
| Кровля | |||
| Кровельное покрытие |
Гибкая черепица, керамическая черепица, фальцевое пок
|
Гибкая черепица, керамическая черепиц
|
Гибкая черепица, керамическая черепиц
|
| Обрешетка |
Доска калиброванная 30 х120 обработанна
|
Доска калиброванная 30 х120 обработанна
|
Доска калиброванная 30 х120 обработанна
|
| Контробрешетка |
Брусок калиброванная 50 х 50 обработанн
|
Брусок калиброванная 50 х 50 обработанн
|
Брусок калиброванная 50 х 50 обработанн
|
| Противоконденсатная (ветро-гидроизоляционная) пленка |
В соответствии с проектом.
|
В соответствии с проектом.
|
В соответствии с проектом.
|
| Стропильная система |
Доска 50 Х 200 обработанная огнебиозащи
|
Доска 50 Х 200 обработанная огнебиозащи
|
Доска 50 Х 200 обработанная огнебиозащи
|
| Утепление чердачного перекрытия и стропильной системы |
Базальтовыми утеплителями, перекрест
|
Базальтовыми утеплителями, перекрест
|
Базальтовыми утеплителями, перекрест
|
| Подшивка свесов кровли |
Планкен крашенный , софит металл.
|
||
| Подшивка потолков террас и лоджий |
Планкен крашенный , софит металл.
|
||
| Водосточная система |
Пластиковая , металлическая в цвет кро
|
||
| Система снегозадержания |
В соответствии с типом покрытия кровл
|
В соответствии с типом покрытия кровл
|
В соответствии с типом покрытия кровл
|
| Молниезащита |
По согласованию.
|
||
| Фундамент | |||
| Сваи ж/бетонные |
По проекту.
|
По проекту.
|
По проекту.
|
| Сваи стальные винтовые | |||
| Лента ж/бетонная монолитная мелкозаглубленная |
По проекту.
|
По проекту.
|
По проекту.
|
| Лента ж/бетонная монолитная на глубину промерзания |
По проекту.
|
По проекту.
|
По проекту.
|
| Лента ж/бетонная сборная (из ФБС) на глубину промерзания |
По проекту.
|
По проекту.
|
По проекту.
|
| Плита ж/бетонная монолитная мелкозаглубленная |
По проекту.
|
По проекту.
|
По проекту.
|
| УШП (Утепленная Шведская Плита) |
По проекту.
|
По проекту.
|
По проекту.
|
| Бетоннная отмостка по периметру дома |
По проекту.
|
||
| Дренажная система по периметру дома |
По проекту.
|
||
| Ливневая система |
По проекту.
|
||
| Облицовка цоколя фундамента |
По проекту.
|
||
| Система контурного заземления |
По согласованию.
|
||
| Стены | |||
| Несущая часть стены |
По проекту.
|
По проекту.
|
По проекту.
|
| Фасадная отделка |
По проекту.
|
По проекту.
|
По проекту.
|
| Утепление стены |
По проекту.
|
По проекту.
|
|
| Внутренняя обшивка/штукатурка со стороны помещения |
По проекту.
|
||
| Пол первого этажа | |||
| Несущая часть перекрытия |
По проекту.
|
По проекту.
|
По проекту.
|
| Теплоизоляция цокольного перекрытия |
По проекту.
|
По проекту.
|
По проекту.
|
| Стяжка/подготовка под чистый пол |
По проекту.
|
||
| Перекрытия над первым и последующими этажами | |||
| Несущая часть перекрытия |
По проекту.
|
По проекту.
|
По проекту.
|
| Звукоизоляция/теплоизоляция в перекрытии |
По проекту.
|
||
| Стяжка/подготовка под чистый пол |
По проекту.
|
||
| Отделка потолка нижележащего этажа |
По проекту.
|
||
| Окна и внешние двери | |||
| Окна |
По проекту. Белый профиль.
|
По проекту. Белый профиль, энергоэффек
|
По проекту. Ламинированный теплый про
|
| Оконные наличники |
По проекту.
|
По проекту.
|
По проекту.
|
| Откосы в помещении |
|
||
| Отливы снаружи |
По проекту.
|
По проекту.
|
По проекту.
|
| Подоконники |
По проекту.
|
||
| Входные двери |
Стандартные.
|
Усиленные.
|
Усиленные с тероморазрывом.
|
| Внутренние конструкции | |||
| Внутренние несущие стены |
По проекту.
|
По проекту.
|
По проекту.
|
| Внутренние ненесущие стены |
По проекту.
|
По проекту.
|
По проекту.
|
| Звукоизоляция внутренних стен/перегородок |
По проекту.
|
||
| Межэтажная строительная (черновая) лестница |
По проекту.
|
По проекту.
|
|
| Межэтажная постоянная (чистовая) лестница |
По проекту.
|
||
| Межкомнатные двери | |||
| Высота потолков 1 этажа |
2,5 + по проекту
|
3,0 + по проекту.
|
3,5 + по проекту
|
| Высота потолков 2 этажа |
2,5 + по проекту
|
3,0 + по проекту.
|
3,5 + по проекту
|
| Настилы полов и ограждения крылец, террас, балконов |
По проекту.
|
По проекту.
|
|
| Гидроизоляция полов балконов |
По проекту.
|
По проекту.
|
По проекту.
|
| Инженерное оснащение | |||
| Жидкостной теплый пол |
По проекту.
|
||
| Электрический теплый пол |
По проекту.
|
||
| Система вентиляции |
По проекту.
|
||
| Только вводы воды, электричества, выводы канализации |
По проекту.
|
По проекту.
|
|
| Электроразводка и электрощит |
По проекту.
|
||
| Разводка хол. и гор. водоснабжения (ХВС и ГВС) |
По проекту.
|
||
| Разводка батарей и/или системы теплого пола. Без оборудования котельной. |
По проекту.
|
||
| Иное инженерное оснащение |
По проекту.
|
||
| Подготовка участка для строительства | |||
| Устройство временного щита электроснабжения |
|
|
|
| Устройство въезда на участок |
|
|
|
| Дорога на участке до пятна застройки |
|
||
| Подъем пятна застройки |
|
||
| Подготовка пятна застройки для фундаментных работ |
|
|
|
| Перемещение или вывоз грунта из котлована фундамента |
|
|
|
| Обеспечение строительного процесса | |||
| Доставка стройматериалов |
|
|
|
| Генератор для обеспечения электричеством |
|
|
|
| Уборка и вывоз строительного мусора |
|
|
|
| Организация проживания рабочих (бытовка) |
|
|
|
| Биотуалет для рабочих |
|
|
|
| Гарантия на все выполненные работы | |||
| Гарантия |
|
|
|
| Свернуть | |||
|
Минимальная
|
7 508 040 ₽ |
|
Стандарт
|
8 522 640 ₽ |
|
Под чистовую отделку
|
11 566 440 ₽ |
| Показать подробные комплектации | |
|
Сравнить 0 комплектаций
Свернуть все
Развернуть все
|
Минимальная
7 508 040 ₽
|
Стандарт
8 522 640 ₽
|
Под чистовую отделку
11 566 440 ₽
|
| Кровля | |||
| Кровельное покрытие |
Металлочерепица
(Без утепления)
|
Металлочерепица
(Без утепления)
|
Металлочерепица (Утепленная)
|
| Обрешетка |
Доска ЕВ 25х100х6000 мм (1-2 -й сорт)
|
Доска ЕВ 25х100х6000 мм (1-2 -й сорт)
|
Доска сухая 25х100х6000 мм (1-2 -й сорт)
|
| Контробрешетка |
Брусок ЕВ 50х50х6000 мм (1-2-й сорт)
|
Брусок ЕВ 50х50х6000 мм (1-2-й сорт)
|
Брусок Сухой 50х50х6000 мм (1-2-й сорт)
|
| Противоконденсатная (ветро-гидроизоляционная) пленка |
Ветро-влагозащита для кровли/стен Изоспан AQ Proff 185
|
Ветро-влагозащита для кровли/стен Изоспан AQ Proff 185
|
Ветро-влагозащита для кровли/стен Изоспан AQ Proff 185
|
| Стропильная система |
Доска ЕВ 50х150х6000 мм (1-2-й сорт)
|
Доска ЕВ 50х200х6000 мм (1-2-й сорт)
|
Доска Сухая 50х200х6000 мм (1-2-й сорт)
|
| Утепление чердачного перекрытия и стропильной системы |
Rockwool 200 мм
|
||
| Подшивка свесов кровли |
Сайдинг
|
Сайдинг
|
|
| Подшивка потолков террас и лоджий |
Сайдинг
|
Сайдинг
|
|
| Водосточная система |
Пластик
|
Пластик
Метал
|
|
| Система снегозадержания |
Снегозадержатели
|
||
| Молниезащита | |||
| Фундамент | |||
| Сваи ж/бетонные | |||
| Сваи стальные винтовые | |||
| Лента ж/бетонная монолитная мелкозаглубленная | |||
| Лента ж/бетонная монолитная на глубину промерзания | |||
| Лента ж/бетонная сборная (из ФБС) на глубину промерзания | |||
| Плита ж/бетонная монолитная мелкозаглубленная |
300 мм
|
300 мм
|
300 мм
|
| УШП (Утепленная Шведская Плита) | |||
| Бетоннная отмостка по периметру дома |
1м 100 мм
|
||
| Дренажная система по периметру дома |
|
||
| Ливневая система | |||
| Облицовка цоколя фундамента |
Клинкер
|
||
| Система контурного заземления | |||
| Стены | |||
| Несущая часть стены |
400 мм
|
400 мм
|
400 мм
|
| Фасадная отделка |
Короед, Кирпич
|
||
| Утепление стены | |||
| Внутренняя обшивка/штукатурка со стороны помещения | |||
| Пол первого этажа | |||
| Несущая часть перекрытия |
Монолит
|
Монолит
|
Монолит
|
| Теплоизоляция цокольного перекрытия | |||
| Стяжка/подготовка под чистый пол | |||
| Перекрытия над первым и последующими этажами | |||
| Несущая часть перекрытия |
Дерево
|
Плиты ЖБИ
|
Монолит 150 мм
|
| Звукоизоляция/теплоизоляция в перекрытии |
|
||
| Стяжка/подготовка под чистый пол |
|
||
| Отделка потолка нижележащего этажа |
|
||
| Окна и внешние двери | |||
| Окна |
|
||
| Оконные наличники | |||
| Откосы в помещении | |||
| Отливы снаружи |
|
||
| Подоконники | |||
| Входные двери |
|
||
| Внутренние конструкции | |||
| Внутренние несущие стены |
|
|
|
| Внутренние ненесущие стены |
|
|
|
| Звукоизоляция внутренних стен/перегородок | |||
| Межэтажная строительная (черновая) лестница |
|
|
|
| Межэтажная постоянная (чистовая) лестница |
Монолит
|
||
| Межкомнатные двери | |||
| Высота потолков 1 этажа |
2,75 м
|
2,75 м
|
2,75 м
|
| Высота потолков 2 этажа |
2,75 м
|
2,75 м
|
2,75 м
|
| Настилы полов и ограждения крылец, террас, балконов | |||
| Гидроизоляция полов балконов | |||
| Инженерное оснащение | |||
| Жидкостной теплый пол | |||
| Электрический теплый пол | |||
| Система вентиляции | |||
| Только вводы воды, электричества, выводы канализации |
|
|
|
| Электроразводка и электрощит | |||
| Разводка хол. и гор. водоснабжения (ХВС и ГВС) | |||
| Разводка батарей и/или системы теплого пола. Без оборудования котельной. | |||
| Иное инженерное оснащение | |||
| Подготовка участка для строительства | |||
| Устройство временного щита электроснабжения | |||
| Устройство въезда на участок | |||
| Дорога на участке до пятна застройки | |||
| Подъем пятна застройки |
|
|
|
| Подготовка пятна застройки для фундаментных работ |
|
|
|
| Перемещение или вывоз грунта из котлована фундамента |
|
|
|
| Обеспечение строительного процесса | |||
| Доставка стройматериалов |
|
|
|
| Генератор для обеспечения электричеством |
|
|
|
| Уборка и вывоз строительного мусора |
|
|
|
| Организация проживания рабочих (бытовка) |
|
|
|
| Биотуалет для рабочих |
|
|
|
| Гарантия на все выполненные работы | |||
| Гарантия |
10 лет
|
10 лет
|
10 лет
|
| Свернуть | |||
|
Минимальная
|
7 305 120 ₽ |
|
Стандарт
|
9 334 320 ₽ |
|
Под чистовую отделку
|
13 392 720 ₽ |
| Показать подробные комплектации | |
|
Сравнить 0 комплектаций
Свернуть все
Развернуть все
|
Минимальная
7 305 120 ₽
|
Стандарт
9 334 320 ₽
|
Под чистовую отделку
13 392 720 ₽
|
| Кровля | |||
| Кровельное покрытие |
Металлочерепица
|
Мягкая черепица
|
Цементно-песчаная черепица
|
| Обрешетка |
Сухой строганый брус
|
Сухой строганый брус
|
Сухой строганый брус
|
| Контробрешетка |
Сухой строганый брус
|
Сухой строганый брус
|
Сухой строганый брус
|
| Противоконденсатная (ветро-гидроизоляционная) пленка |
ПВХ пленка GrandLine
|
ПВХ пленка GrandLine
|
ПВХ пленка GrandLine
|
| Стропильная система |
Доска строганная антисептированная
|
Доска строганная антисептированная
|
Доска строганная антисептированная
|
| Утепление чердачного перекрытия и стропильной системы |
Утепление 200 мм
|
Утепление 200 мм
|
Утепление 200 мм
|
| Подшивка свесов кровли |
Установка J- профиля, J - фаска, саморезы оцинкованные с
|
Установка J- профиля, J - фаска, саморезы оцинкованные с
|
Устройство подсистемы из бруска сухого, строганного 45
|
| Подшивка потолков террас и лоджий | |||
| Водосточная система |
Водосточная система Grand Line пластиковая
Кронштейны мет
|
Водосточная система Grand Line пластиковая
Кронштейны мет
|
Водосточная система Grand Line пластиковая
Кронштейны мет
|
| Система снегозадержания |
Grand Line
|
Grand Line
|
Grand Line
|
| Молниезащита | |||
| Фундамент | |||
| Сваи ж/бетонные | |||
| Сваи стальные винтовые | |||
| Лента ж/бетонная монолитная мелкозаглубленная | |||
| Лента ж/бетонная монолитная на глубину промерзания | |||
| Лента ж/бетонная сборная (из ФБС) на глубину промерзания | |||
| Плита ж/бетонная монолитная мелкозаглубленная |
Плита монолитная 300 мм
|
Утепленная монолитная плита 300 мм
|
|
| УШП (Утепленная Шведская Плита) |
Утепленная шведская плита
|
||
| Бетоннная отмостка по периметру дома |
|
|
|
| Дренажная система по периметру дома |
|
|
|
| Ливневая система | |||
| Облицовка цоколя фундамента | |||
| Система контурного заземления | |||
| Стены | |||
| Несущая часть стены |
Стены наружные Газобетон 300 мм
|
Стены наружные Газобетон 375 мм
|
Стены наружные Газобетон 400 мм
|
| Фасадная отделка |
Фасад "Виниловый сайдинг"
|
Фасад штукатурный "Шуба" по утеплителю
|
Фасад утеплённый "Клинкерный кирпич"
|
| Утепление стены |
Утепление фасада утеплителем Paroc плотностью 110 кг\м3
|
Утепление фасада утеплителем Paroc плотностью 110 кг\м3
|
Утепление фасада утеплителем Paroc плотностью 110 кг\м3
|
| Внутренняя обшивка/штукатурка со стороны помещения | |||
| Пол первого этажа | |||
| Несущая часть перекрытия |
Межэтажное перекрытие "Стропильная система" 200 мм
|
Межэтажное перекрытие "Плита пустотная" 220 мм
|
Межэтажное перекрытие "Плита монолитная" 180 мм
|
| Теплоизоляция цокольного перекрытия | |||
| Стяжка/подготовка под чистый пол |
Стяжка по проекту
|
Стяжка по проекту
|
Стяжка по проекту
|
| Перекрытия над первым и последующими этажами | |||
| Несущая часть перекрытия |
Межэтажное перекрытие "Стропильная система" 200 мм
|
Межэтажное перекрытие "Плита пустотная" 220 мм
|
Межэтажное перекрытие "Плита монолитная" 180 мм
|
| Звукоизоляция/теплоизоляция в перекрытии | |||
| Стяжка/подготовка под чистый пол | |||
| Отделка потолка нижележащего этажа | |||
| Окна и внешние двери | |||
| Окна |
Двухкамерный стеклопакет
|
Двухкамерный стеклопакет
|
Двухкамерный стеклопакет
|
| Оконные наличники |
Металлические наличники
|
Металлические наличники
|
Металлические наличники
|
| Откосы в помещении | |||
| Отливы снаружи |
Металлические отливы
|
Металлические отливы
|
Металлические отливы
|
| Подоконники | |||
| Входные двери |
Дверь металлическая огнеупорная
|
Дверь металлическая огнеупорная
|
Дверь металлическая огнеупорная
|
| Внутренние конструкции | |||
| Внутренние несущие стены |
Стены внутренние, несущие 200 мм
|
Стены внутренние, несущие 250 мм
|
Стены внутренние, несущие 250 мм
|
| Внутренние ненесущие стены |
Перегородки внутренние 100 мм
|
Перегородки внутренние 150 мм
|
Перегородки внутренние 150 мм
|
| Звукоизоляция внутренних стен/перегородок | |||
| Межэтажная строительная (черновая) лестница |
Черновая деревянная лестница
|
Лестница железобетонная
|
Лестница металлическая сварная
|
| Межэтажная постоянная (чистовая) лестница | |||
| Межкомнатные двери | |||
| Высота потолков 1 этажа |
В соответствии с проектом
|
В соответствии с проектом
|
В соответствии с проектом
|
| Высота потолков 2 этажа |
В соответствии с проектом
|
В соответствии с проектом
|
В соответствии с проектом
|
| Настилы полов и ограждения крылец, террас, балконов | |||
| Гидроизоляция полов балконов | |||
| Инженерное оснащение | |||
| Жидкостной теплый пол | |||
| Электрический теплый пол | |||
| Система вентиляции |
В соответствии с проектом
|
В соответствии с проектом
|
В соответствии с проектом
|
| Только вводы воды, электричества, выводы канализации |
В соответствии с проектом
|
В соответствии с проектом
|
В соответствии с проектом
|
| Электроразводка и электрощит |
В соответствии с проектом
|
В соответствии с проектом
|
В соответствии с проектом
|
| Разводка хол. и гор. водоснабжения (ХВС и ГВС) |
В соответствии с проектом
|
В соответствии с проектом
|
В соответствии с проектом
|
| Разводка батарей и/или системы теплого пола. Без оборудования котельной. |
В соответствии с проектом
|
В соответствии с проектом
|
В соответствии с проектом
|
| Иное инженерное оснащение |
В соответствии с проектом
|
В соответствии с проектом
|
В соответствии с проектом
|
| Подготовка участка для строительства | |||
| Устройство временного щита электроснабжения |
В соответствии с проектом производства работ
|
В соответствии с проектом производства работ
|
В соответствии с проектом производства работ
|
| Устройство въезда на участок |
В соответствии с проектом производства работ
|
В соответствии с проектом производства работ
|
В соответствии с проектом производства работ
|
| Дорога на участке до пятна застройки | |||
| Подъем пятна застройки | |||
| Подготовка пятна застройки для фундаментных работ |
В соответствии с проектом производства работ
|
В соответствии с проектом производства работ
|
В соответствии с проектом производства работ
|
| Перемещение или вывоз грунта из котлована фундамента |
В соответствии с проектом производства работ
|
В соответствии с проектом производства работ
|
В соответствии с проектом производства работ
|
| Обеспечение строительного процесса | |||
| Доставка стройматериалов |
В соответствии с проектом производства работ
|
В соответствии с проектом производства работ
|
В соответствии с проектом производства работ
|
| Генератор для обеспечения электричеством |
В соответствии с проектом производства работ
|
В соответствии с проектом производства работ
|
В соответствии с проектом производства работ
|
| Уборка и вывоз строительного мусора |
В соответствии с проектом производства работ
|
В соответствии с проектом производства работ
|
В соответствии с проектом производства работ
|
| Организация проживания рабочих (бытовка) |
В соответствии с проектом производства работ
|
В соответствии с проектом производства работ
|
В соответствии с проектом производства работ
|
| Биотуалет для рабочих |
В соответствии с проектом производства работ
|
В соответствии с проектом производства работ
|
В соответствии с проектом производства работ
|
| Гарантия на все выполненные работы | |||
| Гарантия |
15 лет
|
15 лет
|
15 лет
|
| Свернуть | |||
|
Минимальная
|
11 160 600 ₽ |
|
Стандарт
|
14 204 400 ₽ |
|
Под чистовую отделку
|
21 306 600 ₽ |
| Показать подробные комплектации | |
|
Сравнить 0 комплектаций
Свернуть все
Развернуть все
|
Минимальная
11 160 600 ₽
|
Стандарт
14 204 400 ₽
|
Под чистовую отделку
21 306 600 ₽
|
| Кровля | |||
| Кровельное покрытие | |||
| Обрешетка | |||
| Контробрешетка | |||
| Противоконденсатная (ветро-гидроизоляционная) пленка | |||
| Стропильная система | |||
| Утепление чердачного перекрытия и стропильной системы | |||
| Подшивка свесов кровли | |||
| Подшивка потолков террас и лоджий | |||
| Водосточная система | |||
| Система снегозадержания | |||
| Молниезащита | |||
| Фундамент | |||
| Сваи ж/бетонные | |||
| Сваи стальные винтовые | |||
| Лента ж/бетонная монолитная мелкозаглубленная | |||
| Лента ж/бетонная монолитная на глубину промерзания | |||
| Лента ж/бетонная сборная (из ФБС) на глубину промерзания | |||
| Плита ж/бетонная монолитная мелкозаглубленная | |||
| УШП (Утепленная Шведская Плита) | |||
| Бетоннная отмостка по периметру дома | |||
| Дренажная система по периметру дома | |||
| Ливневая система | |||
| Облицовка цоколя фундамента | |||
| Система контурного заземления | |||
| Стены | |||
| Несущая часть стены | |||
| Фасадная отделка | |||
| Утепление стены | |||
| Внутренняя обшивка/штукатурка со стороны помещения | |||
| Пол первого этажа | |||
| Несущая часть перекрытия | |||
| Теплоизоляция цокольного перекрытия | |||
| Стяжка/подготовка под чистый пол | |||
| Перекрытия над первым и последующими этажами | |||
| Несущая часть перекрытия | |||
| Звукоизоляция/теплоизоляция в перекрытии | |||
| Стяжка/подготовка под чистый пол | |||
| Отделка потолка нижележащего этажа | |||
| Окна и внешние двери | |||
| Окна | |||
| Оконные наличники | |||
| Откосы в помещении | |||
| Отливы снаружи | |||
| Подоконники | |||
| Входные двери | |||
| Внутренние конструкции | |||
| Внутренние несущие стены | |||
| Внутренние ненесущие стены | |||
| Звукоизоляция внутренних стен/перегородок | |||
| Межэтажная строительная (черновая) лестница | |||
| Межэтажная постоянная (чистовая) лестница | |||
| Межкомнатные двери | |||
| Высота потолков 1 этажа | |||
| Высота потолков 2 этажа | |||
| Настилы полов и ограждения крылец, террас, балконов | |||
| Гидроизоляция полов балконов | |||
| Инженерное оснащение | |||
| Жидкостной теплый пол | |||
| Электрический теплый пол | |||
| Система вентиляции | |||
| Только вводы воды, электричества, выводы канализации | |||
| Электроразводка и электрощит | |||
| Разводка хол. и гор. водоснабжения (ХВС и ГВС) | |||
| Разводка батарей и/или системы теплого пола. Без оборудования котельной. | |||
| Иное инженерное оснащение | |||
| Подготовка участка для строительства | |||
| Устройство временного щита электроснабжения | |||
| Устройство въезда на участок | |||
| Дорога на участке до пятна застройки | |||
| Подъем пятна застройки | |||
| Подготовка пятна застройки для фундаментных работ | |||
| Перемещение или вывоз грунта из котлована фундамента | |||
| Обеспечение строительного процесса | |||
| Доставка стройматериалов | |||
| Генератор для обеспечения электричеством | |||
| Уборка и вывоз строительного мусора | |||
| Организация проживания рабочих (бытовка) | |||
| Биотуалет для рабочих | |||
| Гарантия на все выполненные работы | |||
| Гарантия |
|
|
|
| Свернуть | |||
|
Минимальная
|
5 986 140 ₽ |
|
Стандарт
|
6 594 900 ₽ |
|
Под чистовую отделку
|
9 638 700 ₽ |
| Показать подробные комплектации | |
|
Сравнить 0 комплектаций
Свернуть все
Развернуть все
|
Минимальная
5 986 140 ₽
|
Стандарт
6 594 900 ₽
|
Под чистовую отделку
9 638 700 ₽
|
| Кровля | |||
| Кровельное покрытие |
Металлочерепица Grand Line классик Satin 0,5 RAL 8017
|
Металлочерепица Grand Line классик Satin 0,5 RAL 8017
|
Металлочерепица Grand Line классик Satin 0,5 RAL 8017
|
| Обрешетка |
Доска обрезная 25*100
|
Доска обрезная 25*100
|
Доска обрезная 25*100
|
| Контробрешетка |
Брусок 50*50
|
Брусок 50*50
|
Брусок 50*50
|
| Противоконденсатная (ветро-гидроизоляционная) пленка |
|
|
|
| Стропильная система |
Доска обрезная 50*200 с пропиткой
|
Доска обрезная 50*200 с пропиткой
|
Доска обрезная 50*200 с пропиткой
|
| Утепление чердачного перекрытия и стропильной системы |
Минераловатные плиты (35 кг/м3)
|
Минераловатные плиты (35 кг/м3)
|
Минераловатные плиты (35 кг/м3)
|
| Подшивка свесов кровли |
|
|
|
| Подшивка потолков террас и лоджий |
|
|
|
| Водосточная система |
|
|
|
| Система снегозадержания |
|
||
| Молниезащита | |||
| Фундамент | |||
| Сваи ж/бетонные | |||
| Сваи стальные винтовые | |||
| Лента ж/бетонная монолитная мелкозаглубленная |
|
||
| Лента ж/бетонная монолитная на глубину промерзания |
|
||
| Лента ж/бетонная сборная (из ФБС) на глубину промерзания | |||
| Плита ж/бетонная монолитная мелкозаглубленная |
|
||
| УШП (Утепленная Шведская Плита) |
|
||
| Бетоннная отмостка по периметру дома |
|
|
|
| Дренажная система по периметру дома |
|
||
| Ливневая система | |||
| Облицовка цоколя фундамента |
|
||
| Система контурного заземления | |||
| Стены | |||
| Несущая часть стены |
Блок газосиликатный D600
600*375*250
|
Блок газосиликатный D600
600*375*250
|
Блок газосиликатный D600
600*375*250
|
| Фасадная отделка |
|
|
|
| Утепление стены |
|
||
| Внутренняя обшивка/штукатурка со стороны помещения | |||
| Пол первого этажа | |||
| Несущая часть перекрытия |
Пустотные плиты
|
Пустотные плиты
|
Монолитная плита
|
| Теплоизоляция цокольного перекрытия | |||
| Стяжка/подготовка под чистый пол | |||
| Перекрытия над первым и последующими этажами | |||
| Несущая часть перекрытия |
Деревянное перекрытие
|
Плиты перекрытия
|
Плиты перекрытия
|
| Звукоизоляция/теплоизоляция в перекрытии | |||
| Стяжка/подготовка под чистый пол | |||
| Отделка потолка нижележащего этажа | |||
| Окна и внешние двери | |||
| Окна |
Профиль REHAU,
энергосберегающий стеклопакет
|
||
| Оконные наличники | |||
| Откосы в помещении | |||
| Отливы снаружи |
|
|
|
| Подоконники |
|
||
| Входные двери |
Дверь входная с термо-разрывом
|
||
| Внутренние конструкции | |||
| Внутренние несущие стены |
Блок газосиликатный D600
600*300*250
|
Блок газосиликатный D600
600*300*250
|
Блок газосиликатный D600
600*300*250
|
| Внутренние ненесущие стены |
Блок газосиликатный D600
600*100*250
|
Блок газосиликатный D600
600*100*250
|
Блок газосиликатный D600
600*100*250
|
| Звукоизоляция внутренних стен/перегородок | |||
| Межэтажная строительная (черновая) лестница |
|
|
|
| Межэтажная постоянная (чистовая) лестница |
|
||
| Межкомнатные двери | |||
| Высота потолков 1 этажа |
2.7 метра
|
2.7 метра
|
2.7 метра
|
| Высота потолков 2 этажа |
2.7 метра
|
2.7 метра
|
2.7 метра
|
| Настилы полов и ограждения крылец, террас, балконов | |||
| Гидроизоляция полов балконов | |||
| Инженерное оснащение | |||
| Жидкостной теплый пол | |||
| Электрический теплый пол | |||
| Система вентиляции | |||
| Только вводы воды, электричества, выводы канализации |
Ввод всех коммуникаций
|
Ввод всех коммуникаций
|
Ввод всех коммуникаций
|
| Электроразводка и электрощит | |||
| Разводка хол. и гор. водоснабжения (ХВС и ГВС) |
|
||
| Разводка батарей и/или системы теплого пола. Без оборудования котельной. | |||
| Иное инженерное оснащение | |||
| Подготовка участка для строительства | |||
| Устройство временного щита электроснабжения |
|
|
|
| Устройство въезда на участок | |||
| Дорога на участке до пятна застройки | |||
| Подъем пятна застройки | |||
| Подготовка пятна застройки для фундаментных работ |
|
|
|
| Перемещение или вывоз грунта из котлована фундамента |
Перемещение по участку
|
Перемещение по участку
|
Перемещение по участку
|
| Обеспечение строительного процесса | |||
| Доставка стройматериалов |
|
|
|
| Генератор для обеспечения электричеством |
|
|
|
| Уборка и вывоз строительного мусора |
|
|
|
| Организация проживания рабочих (бытовка) |
Доставка и вывоз строительной бытовки
|
Доставка и вывоз строительной бытовки
|
Доставка и вывоз строительной бытовки
|
| Биотуалет для рабочих |
Доставка, обслуживание и вывоз биотуалета
|
Доставка, обслуживание и вывоз биотуалета
|
Доставка, обслуживание и вывоз биотуалета
|
| Гарантия на все выполненные работы | |||
| Гарантия |
5 лет
|
5 лет
|
5 лет
|
| Свернуть | |||
|
Минимальная
|
9 662 035 ₽ |
|
Стандарт
|
13 353 150 ₽ |
|
Под чистовую отделку
|
15 307 270 ₽ |
| Показать подробные комплектации | |
|
Сравнить 0 комплектаций
Свернуть все
Развернуть все
|
Минимальная
9 662 035 ₽
|
Стандарт
13 353 150 ₽
|
Под чистовую отделку
15 307 270 ₽
|
| Кровля | |||
| Кровельное покрытие |
|
|
|
| Обрешетка |
|
|
|
| Контробрешетка | |||
| Противоконденсатная (ветро-гидроизоляционная) пленка | |||
| Стропильная система |
|
|
|
| Утепление чердачного перекрытия и стропильной системы |
|
|
|
| Подшивка свесов кровли |
|
|
|
| Подшивка потолков террас и лоджий |
|
|
|
| Водосточная система |
|
|
|
| Система снегозадержания |
|
|
|
| Молниезащита |
|
|
|
| Фундамент | |||
| Сваи ж/бетонные | |||
| Сваи стальные винтовые | |||
| Лента ж/бетонная монолитная мелкозаглубленная | |||
| Лента ж/бетонная монолитная на глубину промерзания | |||
| Лента ж/бетонная сборная (из ФБС) на глубину промерзания | |||
| Плита ж/бетонная монолитная мелкозаглубленная |
|
|
|
| УШП (Утепленная Шведская Плита) | |||
| Бетоннная отмостка по периметру дома |
|
|
|
| Дренажная система по периметру дома |
|
|
|
| Ливневая система | |||
| Облицовка цоколя фундамента |
|
|
|
| Система контурного заземления | |||
| Стены | |||
| Несущая часть стены |
|
|
|
| Фасадная отделка |
|
|
|
| Утепление стены |
|
|
|
| Внутренняя обшивка/штукатурка со стороны помещения |
|
||
| Пол первого этажа | |||
| Несущая часть перекрытия |
|
|
|
| Теплоизоляция цокольного перекрытия |
|
|
|
| Стяжка/подготовка под чистый пол |
|
|
|
| Перекрытия над первым и последующими этажами | |||
| Несущая часть перекрытия |
|
|
|
| Звукоизоляция/теплоизоляция в перекрытии |
|
||
| Стяжка/подготовка под чистый пол |
|
|
|
| Отделка потолка нижележащего этажа |
|
||
| Окна и внешние двери | |||
| Окна |
|
|
|
| Оконные наличники |
|
|
|
| Откосы в помещении |
|
|
|
| Отливы снаружи |
|
|
|
| Подоконники |
|
|
|
| Входные двери |
|
|
|
| Внутренние конструкции | |||
| Внутренние несущие стены |
|
|
|
| Внутренние ненесущие стены |
|
|
|
| Звукоизоляция внутренних стен/перегородок |
|
|
|
| Межэтажная строительная (черновая) лестница |
|
|
|
| Межэтажная постоянная (чистовая) лестница |
|
||
| Межкомнатные двери |
|
||
| Высота потолков 1 этажа | |||
| Высота потолков 2 этажа | |||
| Настилы полов и ограждения крылец, террас, балконов |
|
||
| Гидроизоляция полов балконов | |||
| Инженерное оснащение | |||
| Жидкостной теплый пол | |||
| Электрический теплый пол | |||
| Система вентиляции |
|
||
| Только вводы воды, электричества, выводы канализации | |||
| Электроразводка и электрощит |
|
||
| Разводка хол. и гор. водоснабжения (ХВС и ГВС) |
|
||
| Разводка батарей и/или системы теплого пола. Без оборудования котельной. |
|
||
| Иное инженерное оснащение | |||
| Подготовка участка для строительства | |||
| Устройство временного щита электроснабжения |
|
|
|
| Устройство въезда на участок | |||
| Дорога на участке до пятна застройки | |||
| Подъем пятна застройки | |||
| Подготовка пятна застройки для фундаментных работ | |||
| Перемещение или вывоз грунта из котлована фундамента | |||
| Обеспечение строительного процесса | |||
| Доставка стройматериалов |
|
|
|
| Генератор для обеспечения электричеством | |||
| Уборка и вывоз строительного мусора | |||
| Организация проживания рабочих (бытовка) |
|
|
|
| Биотуалет для рабочих |
|
|
|
| Гарантия на все выполненные работы | |||
| Гарантия |
|
|
|
| Свернуть | |||
|
Минимальная
|
7 102 200 ₽ |
|
Стандарт
|
11 160 600 ₽ |
|
Под чистовую отделку
|
15 218 999 ₽ |
| Показать подробные комплектации | |
|
Сравнить 0 комплектаций
Свернуть все
Развернуть все
|
Минимальная
7 102 200 ₽
|
Стандарт
11 160 600 ₽
|
Под чистовую отделку
15 218 999 ₽
|
| Кровля | |||
| Кровельное покрытие |
Металлочерепица "Металл профиль"
|
Металлочерепица "Металл профиль"
|
Металлочерепица "Металл профиль"
|
| Обрешетка |
Доска 20х95 мм, сухая, строганная
|
Доска 20х95 мм, сухая, строганная
|
Доска 20х95 мм, сухая, строганная
|
| Контробрешетка |
Брус 40х50 мм, сухой, строганный
|
Брус 40х50 мм, сухой, строганный
|
Брус 40х50 мм, сухой, строганный
|
| Противоконденсатная (ветро-гидроизоляционная) пленка |
Ветро-влагозащита для кровли/стен Ondutiss Smart SA 115 с
|
Ветро-влагозащита для кровли/стен Ondutiss Smart SA 115 с
|
Ветро-влагозащита для кровли/стен Ondutiss Smart SA 115 с
|
| Стропильная система |
Доска строганная 45х195 сухая, обработанная антисептико
|
Доска строганная 45х195 сухая, обработанная антисептико
|
Доска строганная 45х195 сухая, обработанная антисептико
|
| Утепление чердачного перекрытия и стропильной системы |
Утеплитель Rockwool Лайт Баттс Экстра 100х600х1000 мм 2,4 кв.м
|
Утеплитель Rockwool Лайт Баттс Экстра 100х600х1000 мм 2,4 кв.м
|
|
| Подшивка свесов кровли |
|
|
|
| Подшивка потолков террас и лоджий |
|
||
| Водосточная система |
|
||
| Система снегозадержания |
|
||
| Молниезащита | |||
| Фундамент | |||
| Сваи ж/бетонные | |||
| Сваи стальные винтовые | |||
| Лента ж/бетонная монолитная мелкозаглубленная |
Высота цоколя 400 мм
|
Высота цоколя 400 мм
|
Высота цоколя 400 мм
|
| Лента ж/бетонная монолитная на глубину промерзания | |||
| Лента ж/бетонная сборная (из ФБС) на глубину промерзания | |||
| Плита ж/бетонная монолитная мелкозаглубленная |
Толщина плиты 200 мм
|
|
|
| УШП (Утепленная Шведская Плита) | |||
| Бетоннная отмостка по периметру дома |
Ширина отмостки 1000 мм , армирование, деформационные шв
|
||
| Дренажная система по периметру дома |
Дренажный контур , дренажные колодцы, приямки под дожд
|
||
| Ливневая система | |||
| Облицовка цоколя фундамента | |||
| Система контурного заземления | |||
| Стены | |||
| Несущая часть стены |
Газобетонные блоки D400 400х250х625 мм
|
Газобетонные блоки D400 400х250х625 мм
|
Газобетонные блоки D400 400х250х625 мм
|
| Фасадная отделка |
Паропроницаемая штукатурка
|
Кирпич
|
|
| Утепление стены |
Базальтовый утеплитель ROCKWOOL Фасад Баттс 1200х600х50
|
Базальтовый утеплитель ROCKWOOL Фасад Баттс 1200х600х50
|
|
| Внутренняя обшивка/штукатурка со стороны помещения |
Гипсовая штукатурка для сухих помещений
|
||
| Пол первого этажа | |||
| Несущая часть перекрытия |
Бетонная армированная стяжка 200 мм
|
Бетонная армированная стяжка 200 мм
|
Бетонная армированная стяжка 200 мм
|
| Теплоизоляция цокольного перекрытия |
Экструдированный пенополистирол Пеноплэкс Комфорт
|
||
| Стяжка/подготовка под чистый пол | |||
| Перекрытия над первым и последующими этажами | |||
| Несущая часть перекрытия |
Деревянные двутавровые балки 200 мм
|
Монолитные ж/б перекрытия 180-200 мм
|
Монолитные ж/б перекрытия 180-200 мм
|
| Звукоизоляция/теплоизоляция в перекрытии |
Утеплитель Ursa Terra
|
||
| Стяжка/подготовка под чистый пол |
|
||
| Отделка потолка нижележащего этажа | |||
| Окна и внешние двери | |||
| Окна |
REHAU Grazio 70мм
|
REHAU Grazio 70мм
|
|
| Оконные наличники | |||
| Откосы в помещении |
|
|
|
| Отливы снаружи |
|
|
|
| Подоконники |
|
|
|
| Входные двери | |||
| Внутренние конструкции | |||
| Внутренние несущие стены |
Газобетон Ytong D400 250х250х625
|
Газобетон Ytong D400 250х250х625
|
Газобетон Ytong D400 250х250х625
|
| Внутренние ненесущие стены |
Газобетонные блоки D500
625х250х200
|
Газобетонные блоки D500
625х250х200
|
Газобетонные блоки D500
625х250х200
|
| Звукоизоляция внутренних стен/перегородок | |||
| Межэтажная строительная (черновая) лестница |
Маршевая деревянная
|
Маршевая деревянная
|
Маршевая деревянная
|
| Межэтажная постоянная (чистовая) лестница | |||
| Межкомнатные двери | |||
| Высота потолков 1 этажа |
по проекту
|
по проекту
|
по проекту
|
| Высота потолков 2 этажа |
по проекту
|
по проекту
|
по проеккту
|
| Настилы полов и ограждения крылец, террас, балконов | |||
| Гидроизоляция полов балконов | |||
| Инженерное оснащение | |||
| Жидкостной теплый пол | |||
| Электрический теплый пол | |||
| Система вентиляции | |||
| Только вводы воды, электричества, выводы канализации |
|
|
|
| Электроразводка и электрощит | |||
| Разводка хол. и гор. водоснабжения (ХВС и ГВС) | |||
| Разводка батарей и/или системы теплого пола. Без оборудования котельной. | |||
| Иное инженерное оснащение | |||
| Подготовка участка для строительства | |||
| Устройство временного щита электроснабжения |
|
|
|
| Устройство въезда на участок |
|
|
|
| Дорога на участке до пятна застройки | |||
| Подъем пятна застройки | |||
| Подготовка пятна застройки для фундаментных работ | |||
| Перемещение или вывоз грунта из котлована фундамента | |||
| Обеспечение строительного процесса | |||
| Доставка стройматериалов |
до 50 км от МКАД
|
до 50 км от МКАД
|
до 50 км от МКАД
|
| Генератор для обеспечения электричеством | |||
| Уборка и вывоз строительного мусора | |||
| Организация проживания рабочих (бытовка) |
|
|
|
| Биотуалет для рабочих |
|
|
|
| Гарантия на все выполненные работы | |||
| Гарантия |
5 лет
|
5 лет
|
5 лет
|
| Свернуть | |||
|
Минимальная
|
5 681 760 ₽ |
|
Стандарт
|
8 116 799 ₽ |
|
Под чистовую отделку
|
10 146 000 ₽ |
| Показать подробные комплектации | |
|
Сравнить 0 комплектаций
Свернуть все
Развернуть все
|
Минимальная
5 681 760 ₽
|
Стандарт
8 116 799 ₽
|
Под чистовую отделку
10 146 000 ₽
|
| Кровля | |||
| Кровельное покрытие |
Металлочерепица T05 (Zn140) PE-полиэстер. Цвет на выбор
|
Металлочерепица T05 (Zn140) PE-полиэстер. Цвет на выбор
|
Металлочерепица T05 (Zn140) PE-полиэстер. Цвет на выбор
|
| Обрешетка |
Доска 20х95 мм, сухая, строганная
|
Доска 20х95 мм, сухая, строганная
|
Доска 20х95 мм, сухая, строганная
|
| Контробрешетка |
Брус 45х45 мм, сухой, строганный
|
Брус 45х45 мм, сухой, строганный
|
Брус 45х45 мм, сухой, строганный
|
| Противоконденсатная (ветро-гидроизоляционная) пленка |
Гидроветроизоляция JUTA Ютавек
|
Гидроветроизоляция JUTA Ютавек
|
Гидроветроизоляция JUTA Ютавек
|
| Стропильная система |
Доска 50х200 мм
|
Доска 50х200 мм
|
Доска 50х200 мм
|
| Утепление чердачного перекрытия и стропильной системы |
Лайт Баттс СКАНДИК /ROCKWOOL
|
Лайт Баттс СКАНДИК /ROCKWOOL
|
|
| Подшивка свесов кровли |
Софиты
|
||
| Подшивка потолков террас и лоджий |
Софиты
|
||
| Водосточная система |
Docke
|
||
| Система снегозадержания |
Трубчатая
|
Трубчатая
|
|
| Молниезащита | |||
| Фундамент | |||
| Сваи ж/бетонные | |||
| Сваи стальные винтовые | |||
| Лента ж/бетонная монолитная мелкозаглубленная | |||
| Лента ж/бетонная монолитная на глубину промерзания | |||
| Лента ж/бетонная сборная (из ФБС) на глубину промерзания | |||
| Плита ж/бетонная монолитная мелкозаглубленная |
Высота над уровнем грунта 350мм
|
Высота над уровнем грунта 350мм
|
Высота над уровнем грунта 350мм
|
| УШП (Утепленная Шведская Плита) | |||
| Бетоннная отмостка по периметру дома | |||
| Дренажная система по периметру дома | |||
| Ливневая система | |||
| Облицовка цоколя фундамента | |||
| Система контурного заземления | |||
| Стены | |||
| Несущая часть стены |
Газобетонный блок BONOLIT 300*250*600 D500
|
Газобетонный блок BONOLIT 300*250*600 D500
|
Газобетонный блок BONOLIT 300*250*600 D500
|
| Фасадная отделка | |||
| Утепление стены | |||
| Внутренняя обшивка/штукатурка со стороны помещения | |||
| Пол первого этажа | |||
| Несущая часть перекрытия |
Бетонный пол под стяжку
|
Бетонный пол под стяжку
|
Бетонный пол под стяжку
|
| Теплоизоляция цокольного перекрытия | |||
| Стяжка/подготовка под чистый пол |
Стяжка армированная выравнивающая под чистовое покры
|
||
| Перекрытия над первым и последующими этажами | |||
| Несущая часть перекрытия |
Плита монолитная ж/б 160мм
|
Плита монолитная ж/б 160мм
|
Плита монолитная ж/б 160мм
|
| Звукоизоляция/теплоизоляция в перекрытии | |||
| Стяжка/подготовка под чистый пол |
Стяжка армированная выравнивающая под чистовое покры
|
||
| Отделка потолка нижележащего этажа | |||
| Окна и внешние двери | |||
| Окна |
Профиль Рехау, стеклопакет с энергосберегающим стекло
|
Профиль Рехау, стеклопакет с энергосберегающим стекло
|
|
| Оконные наличники | |||
| Откосы в помещении | |||
| Отливы снаружи |
Металлические по размеру проема, цвет на выбор
|
Металлические по размеру проема, цвет на выбор
|
|
| Подоконники | |||
| Входные двери |
Металлическая дверь
|
Металлическая дверь
|
|
| Внутренние конструкции | |||
| Внутренние несущие стены |
Газобетонный блок BONOLIT 300*250*600 D500
|
Газобетонный блок BONOLIT 300*250*600 D500
|
Газобетонный блок BONOLIT 300*250*600 D500
|
| Внутренние ненесущие стены |
Кирпич пустотелый 120мм
|
||
| Звукоизоляция внутренних стен/перегородок | |||
| Межэтажная строительная (черновая) лестница |
Маршевая
|
Маршевая
|
Маршевая
|
| Межэтажная постоянная (чистовая) лестница | |||
| Межкомнатные двери | |||
| Высота потолков 1 этажа |
2700мм
|
2700мм
|
2700мм
|
| Высота потолков 2 этажа |
2600мм
|
2600мм
|
2600мм
|
| Настилы полов и ограждения крылец, террас, балконов | |||
| Гидроизоляция полов балконов | |||
| Инженерное оснащение | |||
| Жидкостной теплый пол | |||
| Электрический теплый пол | |||
| Система вентиляции | |||
| Только вводы воды, электричества, выводы канализации |
|
|
|
| Электроразводка и электрощит |
Разводка электропроводки под точки
|
||
| Разводка хол. и гор. водоснабжения (ХВС и ГВС) | |||
| Разводка батарей и/или системы теплого пола. Без оборудования котельной. |
Сшитый полипропилен Рехау
|
||
| Иное инженерное оснащение |
Сшитый полипропилен Рехау
|
||
| Подготовка участка для строительства | |||
| Устройство временного щита электроснабжения | |||
| Устройство въезда на участок | |||
| Дорога на участке до пятна застройки | |||
| Подъем пятна застройки | |||
| Подготовка пятна застройки для фундаментных работ | |||
| Перемещение или вывоз грунта из котлована фундамента | |||
| Обеспечение строительного процесса | |||
| Доставка стройматериалов |
До 50 км от МКАД
|
До 50 км от МКАД
|
До 50 км от МКАД
|
| Генератор для обеспечения электричеством | |||
| Уборка и вывоз строительного мусора | |||
| Организация проживания рабочих (бытовка) | |||
| Биотуалет для рабочих | |||
| Гарантия на все выполненные работы | |||
| Гарантия |
10 лет
|
10 лет
|
10 лет
|
| Свернуть | |||
|
Минимальная
|
3 632 268 ₽ |
|
Стандарт
|
4 849 788 ₽ |
|
Под чистовую отделку
|
5 864 388 ₽ |
| Показать подробные комплектации | |
|
Сравнить 0 комплектаций
Свернуть все
Развернуть все
|
Минимальная
3 632 268 ₽
|
Стандарт
4 849 788 ₽
|
Под чистовую отделку
5 864 388 ₽
|
| Кровля | |||
| Кровельное покрытие |
Металлочерепица «GRAND LINE»
|
Металлочерепица «GRAND LINE»
|
Металлочерепица «GRAND LINE»
|
| Обрешетка |
Доска 100х25, сухая, строганная, с обработкой огнебиозащи
|
Доска 100х25, сухая, строганная, с обработкой огнебиозащи
|
Доска 100х25, сухая, строганная, с обработкой огнебиозащи
|
| Контробрешетка |
Брус 45х45 мм, сухой, строганный, с обработкой огнебиозащ
|
Брус 45х45 мм, сухой, строганный, с обработкой огнебиозащ
|
Брус 45х45 мм, сухой, строганный, с обработкой огнебиозащ
|
| Противоконденсатная (ветро-гидроизоляционная) пленка |
ветро-гидроизоляционная пленка Rockwool
|
ветро-гидроизоляционная пленка Rockwool
|
ветро-гидроизоляционная пленка Rockwool
|
| Стропильная система |
Доска 200х50, сухая, строганная, с обработкой огнебиозащи
|
Доска 200х50, сухая, строганная, с обработкой огнебиозащи
|
Доска 200х50, сухая, строганная, с обработкой огнебиозащи
|
| Утепление чердачного перекрытия и стропильной системы |
Утеплитель Rockwool Лайт Баттс Скандик
|
Утеплитель Rockwool Лайт Баттс Скандик
|
|
| Подшивка свесов кровли |
Софит пластиковый Grand Line
|
Софит пластиковый Grand Line
|
|
| Подшивка потолков террас и лоджий |
Софит пластиковый Grand Line
|
Софит пластиковый Grand Line
|
|
| Водосточная система |
Водосточная система пластиковая Döcke
|
||
| Система снегозадержания |
Снегозадержатели трубчатые
|
||
| Молниезащита | |||
| Фундамент | |||
| Сваи ж/бетонные | |||
| Сваи стальные винтовые | |||
| Лента ж/бетонная монолитная мелкозаглубленная | |||
| Лента ж/бетонная монолитная на глубину промерзания | |||
| Лента ж/бетонная сборная (из ФБС) на глубину промерзания | |||
| Плита ж/бетонная монолитная мелкозаглубленная |
Монолитная железобетонная плита 250мм с утеплением и ги
|
Монолитная железобетонная плита 250мм с утеплением и ги
|
Монолитная железобетонная плита 250мм с утеплением и ги
|
| УШП (Утепленная Шведская Плита) | |||
| Бетоннная отмостка по периметру дома |
Утепленная отмостка по периметру дома
|
||
| Дренажная система по периметру дома | |||
| Ливневая система |
Ливневая система с отводом дождевой воды
|
||
| Облицовка цоколя фундамента | |||
| Система контурного заземления | |||
| Стены | |||
| Несущая часть стены |
Газобетонные блоки D500 "Bonolit" 600х400х250мм
|
Газобетонные блоки D500 "Bonolit" 600х400х250мм
|
Газобетонные блоки D500 "Bonolit" 600х400х250мм
|
| Фасадная отделка |
Мокрый фасад,короед
|
Мокрый фасад,короед
|
|
| Утепление стены |
Rockwool 100 мм
|
||
| Внутренняя обшивка/штукатурка со стороны помещения | |||
| Пол первого этажа | |||
| Несущая часть перекрытия |
Пол первого этажа - фундаментная плита
|
Пол первого этажа - фундаментная плита
|
Пол первого этажа - фундаментная плита
|
| Теплоизоляция цокольного перекрытия | |||
| Стяжка/подготовка под чистый пол | |||
| Перекрытия над первым и последующими этажами | |||
| Несущая часть перекрытия |
Плиты перекрытия
|
Плиты перекрытия
|
Плиты перекрытия
|
| Звукоизоляция/теплоизоляция в перекрытии | |||
| Стяжка/подготовка под чистый пол | |||
| Отделка потолка нижележащего этажа | |||
| Окна и внешние двери | |||
| Окна |
Пластиковые окна REHAU 50мм, двухкамерный стеклопакет
|
Пластиковые окна REHAU 50мм, двухкамерный стеклопакет
|
|
| Оконные наличники | |||
| Откосы в помещении | |||
| Отливы снаружи |
|
|
|
| Подоконники | |||
| Входные двери |
|
|
|
| Внутренние конструкции | |||
| Внутренние несущие стены |
Газобетонные блоки D500 "Bonolit" 600х350х250мм
|
Газобетонные блоки D500 "Bonolit" 600х350х250мм
|
Газобетонные блоки D500 "Bonolit" 600х350х250мм
|
| Внутренние ненесущие стены |
Газобетонный блоки D500 "Bonolit" 100мм
|
Газобетонный блоки D500 "Bonolit" 100мм
|
|
| Звукоизоляция внутренних стен/перегородок | |||
| Межэтажная строительная (черновая) лестница |
|
|
|
| Межэтажная постоянная (чистовая) лестница | |||
| Межкомнатные двери | |||
| Высота потолков 1 этажа |
2.8 метра
|
2.8 метра
|
2.8 метра
|
| Высота потолков 2 этажа |
2.8 метра
|
2.8 метра
|
2.8 метра
|
| Настилы полов и ограждения крылец, террас, балконов | |||
| Гидроизоляция полов балконов |
Оклеечная гидроизоляция
|
Оклеечная гидроизоляция
|
|
| Инженерное оснащение | |||
| Жидкостной теплый пол | |||
| Электрический теплый пол | |||
| Система вентиляции | |||
| Только вводы воды, электричества, выводы канализации |
Ввод всех коммуникаций
|
Ввод всех коммуникаций
|
Ввод всех коммуникаций
|
| Электроразводка и электрощит | |||
| Разводка хол. и гор. водоснабжения (ХВС и ГВС) | |||
| Разводка батарей и/или системы теплого пола. Без оборудования котельной. | |||
| Иное инженерное оснащение | |||
| Подготовка участка для строительства | |||
| Устройство временного щита электроснабжения |
|
|
|
| Устройство въезда на участок | |||
| Дорога на участке до пятна застройки | |||
| Подъем пятна застройки | |||
| Подготовка пятна застройки для фундаментных работ |
|
|
|
| Перемещение или вывоз грунта из котлована фундамента |
Перемещение по участку
|
Перемещение по участку
|
Перемещение по участку
|
| Обеспечение строительного процесса | |||
| Доставка стройматериалов |
Контроль поставки и качества материалов
|
Контроль поставки и качества материалов
|
Контроль поставки и качества материалов
|
| Генератор для обеспечения электричеством | |||
| Уборка и вывоз строительного мусора |
|
|
|
| Организация проживания рабочих (бытовка) |
Доставка и вывоз строительной бытовки
|
Доставка и вывоз строительной бытовки
|
Доставка и вывоз строительной бытовки
|
| Биотуалет для рабочих |
Доставка, обслуживание и вывоз биотуалета
|
Доставка, обслуживание и вывоз биотуалета
|
Доставка, обслуживание и вывоз биотуалета
|
| Гарантия на все выполненные работы | |||
| Гарантия |
5 лет
|
5 лет
|
5 лет
|
| Свернуть | |||
|
Минимальная
|
6 087 600 ₽ |
|
Стандарт
|
6 696 360 ₽ |
|
Под чистовую отделку
|
9 740 160 ₽ |
| Показать подробные комплектации | |
|
Сравнить 0 комплектаций
Свернуть все
Развернуть все
|
Минимальная
6 087 600 ₽
|
Стандарт
6 696 360 ₽
|
Под чистовую отделку
9 740 160 ₽
|
| Кровля | |||
| Кровельное покрытие |
Металлочерепица Grand Line классик Satin 0,5 RAL 8017
|
Металлочерепица Grand Line классик Satin 0,5 RAL 8017
|
Металлочерепица Grand Line классик Satin 0,5 RAL 8017
|
| Обрешетка |
Доска 25х100 (1 сорт)
|
Доска 25х100 (1 сорт)
|
Доска 25х100 (1 сорт)
|
| Контробрешетка |
Доска 25х100 (1 сорт)
|
Доска 25х100 (1 сорт)
|
Доска 25х100 (1 сорт)
|
| Противоконденсатная (ветро-гидроизоляционная) пленка |
|
||
| Стропильная система |
Пиломатериал обрезной (1 сорт)
|
Пиломатериал обрезной (1 сорт)
|
Пиломатериал обрезной (1 сорт)
|
| Утепление чердачного перекрытия и стропильной системы |
Минераловатные плиты (Изомин, Изорок, Изолайт) 35 кг/м3
|
Минераловатные плиты (Изомин, Изорок, Изолайт) 35 кг/м3
|
|
| Подшивка свесов кровли |
|
||
| Подшивка потолков террас и лоджий |
|
||
| Водосточная система |
|
||
| Система снегозадержания |
|
||
| Молниезащита | |||
| Фундамент | |||
| Сваи ж/бетонные | |||
| Сваи стальные винтовые | |||
| Лента ж/бетонная монолитная мелкозаглубленная | |||
| Лента ж/бетонная монолитная на глубину промерзания | |||
| Лента ж/бетонная сборная (из ФБС) на глубину промерзания | |||
| Плита ж/бетонная монолитная мелкозаглубленная |
Монолитная ребристая фундаментная плита (60 см над земл
|
Монолитная ребристая фундаментная плита (60 см над земл
|
Монолитная ребристая фундаментная плита (60 см над земл
|
| УШП (Утепленная Шведская Плита) | |||
| Бетоннная отмостка по периметру дома | |||
| Дренажная система по периметру дома |
|
||
| Ливневая система | |||
| Облицовка цоколя фундамента |
|
||
| Система контурного заземления | |||
| Стены | |||
| Несущая часть стены |
|
|
|
| Фасадная отделка |
|
||
| Утепление стены |
|
||
| Внутренняя обшивка/штукатурка со стороны помещения | |||
| Пол первого этажа | |||
| Несущая часть перекрытия |
Монолитное перекрытие 200 мм
|
Монолитное перекрытие 200 мм
|
Монолитное перекрытие 200 мм
|
| Теплоизоляция цокольного перекрытия | |||
| Стяжка/подготовка под чистый пол | |||
| Перекрытия над первым и последующими этажами | |||
| Несущая часть перекрытия |
Монолитное перекрытие 160 мм
|
Монолитное перекрытие 160 мм
|
Монолитное перекрытие 160 мм
|
| Звукоизоляция/теплоизоляция в перекрытии | |||
| Стяжка/подготовка под чистый пол | |||
| Отделка потолка нижележащего этажа | |||
| Окна и внешние двери | |||
| Окна |
|
||
| Оконные наличники | |||
| Откосы в помещении | |||
| Отливы снаружи |
|
||
| Подоконники | |||
| Входные двери |
|
||
| Внутренние конструкции | |||
| Внутренние несущие стены |
Блок газосиликатный D600 600x300x200
|
Блок газосиликатный D600 600x300x200
|
Блок газосиликатный D600 600x300x200
|
| Внутренние ненесущие стены |
Блок газосиликатный D500 600x100x200
|
Блок газосиликатный D500 600x100x200
|
|
| Звукоизоляция внутренних стен/перегородок | |||
| Межэтажная строительная (черновая) лестница | |||
| Межэтажная постоянная (чистовая) лестница |
|
||
| Межкомнатные двери | |||
| Высота потолков 1 этажа |
2,7
|
2,7
|
2,7
|
| Высота потолков 2 этажа |
2,7
|
2,7
|
2,7
|
| Настилы полов и ограждения крылец, террас, балконов | |||
| Гидроизоляция полов балконов | |||
| Инженерное оснащение | |||
| Жидкостной теплый пол | |||
| Электрический теплый пол | |||
| Система вентиляции |
|
|
|
| Только вводы воды, электричества, выводы канализации |
|
|
|
| Электроразводка и электрощит | |||
| Разводка хол. и гор. водоснабжения (ХВС и ГВС) | |||
| Разводка батарей и/или системы теплого пола. Без оборудования котельной. | |||
| Иное инженерное оснащение | |||
| Подготовка участка для строительства | |||
| Устройство временного щита электроснабжения | |||
| Устройство въезда на участок | |||
| Дорога на участке до пятна застройки | |||
| Подъем пятна застройки | |||
| Подготовка пятна застройки для фундаментных работ |
|
|
|
| Перемещение или вывоз грунта из котлована фундамента |
|
|
|
| Обеспечение строительного процесса | |||
| Доставка стройматериалов |
|
|
|
| Генератор для обеспечения электричеством | |||
| Уборка и вывоз строительного мусора |
|
||
| Организация проживания рабочих (бытовка) | |||
| Биотуалет для рабочих | |||
| Гарантия на все выполненные работы | |||
| Гарантия |
|
|
|
| Свернуть | |||
|
Минимальная
|
6 087 600 ₽ |
|
Стандарт
|
8 116 799 ₽ |
|
Под чистовую отделку
|
9 131 400 ₽ |
| Показать подробные комплектации | |
|
Сравнить 0 комплектаций
Свернуть все
Развернуть все
|
Минимальная
6 087 600 ₽
|
Стандарт
8 116 799 ₽
|
Под чистовую отделку
9 131 400 ₽
|
| Кровля | |||
| Кровельное покрытие |
Металлочерепица
|
Фальцевая кровля
Мягкая черепица
Натуральная черепи
|
Фальцевая кровля
Мягкая черепица
Натуральная черепи
|
| Обрешетка |
Доска 20х95 мм, сухая, строганная
|
Доска 20х95 мм, сухая, строганная
|
Доска 20х95 мм, сухая, строганная
|
| Контробрешетка |
Брус 45х45 мм, сухой, строганный
|
Брус 45х45 мм, сухой, строганный
|
Брус 45х45 мм, сухой, строганный
|
| Противоконденсатная (ветро-гидроизоляционная) пленка |
Изоспан
|
Изоспан
|
Изоспан
|
| Стропильная система |
Доска 50х200 мм
|
Доска 50х200 мм
|
Доска 50х200 мм
|
| Утепление чердачного перекрытия и стропильной системы |
Базальтовый утеплитель 250 мм
|
||
| Подшивка свесов кровли |
|
|
|
| Подшивка потолков террас и лоджий |
|
|
|
| Водосточная система |
|
|
|
| Система снегозадержания |
|
|
|
| Молниезащита |
|
||
| Фундамент | |||
| Сваи ж/бетонные |
|
|
|
| Сваи стальные винтовые | |||
| Лента ж/бетонная монолитная мелкозаглубленная |
|
|
|
| Лента ж/бетонная монолитная на глубину промерзания |
|
|
|
| Лента ж/бетонная сборная (из ФБС) на глубину промерзания |
|
|
|
| Плита ж/бетонная монолитная мелкозаглубленная |
|
|
|
| УШП (Утепленная Шведская Плита) | |||
| Бетоннная отмостка по периметру дома |
|
|
|
| Дренажная система по периметру дома |
|
||
| Ливневая система |
|
|
|
| Облицовка цоколя фундамента |
|
|
|
| Система контурного заземления |
|
||
| Стены | |||
| Несущая часть стены |
Газобетон
Теплая керамика
|
Газобетон
Теплая керамика
|
Газобетон
Теплая керамика
|
| Фасадная отделка |
Штукатурка
Облицовочный кирпич
|
Натуральный камень
Штукатурка
Облицовочный кирпич
|
|
| Утепление стены |
|
||
| Внутренняя обшивка/штукатурка со стороны помещения |
|
||
| Пол первого этажа | |||
| Несущая часть перекрытия |
|
|
|
| Теплоизоляция цокольного перекрытия |
|
||
| Стяжка/подготовка под чистый пол |
|
||
| Перекрытия над первым и последующими этажами | |||
| Несущая часть перекрытия |
Деревянные балки
|
Монолитные ж/б перекрытия 180-200 мм
|
Монолитные ж/б перекрытия 180-200 мм
|
| Звукоизоляция/теплоизоляция в перекрытии |
Базальтовый утеплитель 200 мм
|
Базальтовый утеплитель 200 мм
|
|
| Стяжка/подготовка под чистый пол |
|
||
| Отделка потолка нижележащего этажа |
|
||
| Окна и внешние двери | |||
| Окна |
|
||
| Оконные наличники |
|
||
| Откосы в помещении |
|
||
| Отливы снаружи |
|
|
|
| Подоконники |
|
||
| Входные двери |
|
||
| Внутренние конструкции | |||
| Внутренние несущие стены |
Газобетон
Керамический блок
|
Газобетон
Керамический блок
|
Газобетон
Керамический блок
|
| Внутренние ненесущие стены |
Газобетон
Керамический блок
|
Газобетон
Керамический блок
|
Газобетон
Керамический блок
|
| Звукоизоляция внутренних стен/перегородок | |||
| Межэтажная строительная (черновая) лестница |
Монолитная
|
Монолитная
|
Монолитная
|
| Межэтажная постоянная (чистовая) лестница |
|
||
| Межкомнатные двери | |||
| Высота потолков 1 этажа |
3 м
|
3 м
|
3 м
|
| Высота потолков 2 этажа |
3 м
|
3 м
|
3 м
|
| Настилы полов и ограждения крылец, террас, балконов | |||
| Гидроизоляция полов балконов | |||
| Инженерное оснащение | |||
| Жидкостной теплый пол | |||
| Электрический теплый пол | |||
| Система вентиляции | |||
| Только вводы воды, электричества, выводы канализации |
|
|
|
| Электроразводка и электрощит | |||
| Разводка хол. и гор. водоснабжения (ХВС и ГВС) | |||
| Разводка батарей и/или системы теплого пола. Без оборудования котельной. | |||
| Иное инженерное оснащение | |||
| Подготовка участка для строительства | |||
| Устройство временного щита электроснабжения |
|
|
|
| Устройство въезда на участок |
|
|
|
| Дорога на участке до пятна застройки | |||
| Подъем пятна застройки | |||
| Подготовка пятна застройки для фундаментных работ | |||
| Перемещение или вывоз грунта из котлована фундамента | |||
| Обеспечение строительного процесса | |||
| Доставка стройматериалов |
|
|
|
| Генератор для обеспечения электричеством |
|
|
|
| Уборка и вывоз строительного мусора |
|
|
|
| Организация проживания рабочих (бытовка) |
|
|
|
| Биотуалет для рабочих |
|
|
|
| Гарантия на все выполненные работы | |||
| Гарантия |
5 лет
|
5 лет
|
5 лет
|
| Свернуть | |||
|
Минимальная
|
5 681 760 ₽ |
|
Стандарт
|
6 087 600 ₽ |
|
Под чистовую отделку
|
8 116 799 ₽ |
| Показать подробные комплектации | |
|
Сравнить 0 комплектаций
Свернуть все
Развернуть все
|
Минимальная
5 681 760 ₽
|
Стандарт
6 087 600 ₽
|
Под чистовую отделку
8 116 799 ₽
|
| Кровля | |||
| Кровельное покрытие |
Металлочерепица
|
Битумная черепица
|
Битумная черепица
|
| Обрешетка |
Доска 100х25
|
Доска 150х25
|
Доска 150х25
|
| Контробрешетка |
Брусок 40х40
|
Брусок 50х50
|
Брусок 50х50
|
| Противоконденсатная (ветро-гидроизоляционная) пленка |
|
|
|
| Стропильная система |
Доска 50х150
|
Доска 50х200
|
Доска 50х200
|
| Утепление чердачного перекрытия и стропильной системы |
Базальтовый утеплитель 200мм
|
Базальтовый утеплитель 200мм
|
|
| Подшивка свесов кровли |
Софиты
|
||
| Подшивка потолков террас и лоджий |
Софиты
|
||
| Водосточная система |
Пластиковый водосток
|
||
| Система снегозадержания |
Металл
|
Металл
|
Металл
|
| Молниезащита |
|
||
| Фундамент | |||
| Сваи ж/бетонные | |||
| Сваи стальные винтовые | |||
| Лента ж/бетонная монолитная мелкозаглубленная |
|
||
| Лента ж/бетонная монолитная на глубину промерзания | |||
| Лента ж/бетонная сборная (из ФБС) на глубину промерзания | |||
| Плита ж/бетонная монолитная мелкозаглубленная |
|
|
|
| УШП (Утепленная Шведская Плита) | |||
| Бетоннная отмостка по периметру дома |
|
||
| Дренажная система по периметру дома |
|
||
| Ливневая система |
|
||
| Облицовка цоколя фундамента |
|
||
| Система контурного заземления | |||
| Стены | |||
| Несущая часть стены |
300мм
|
400мм
|
400мм
|
| Фасадная отделка |
Декоративная штукатурка, облицовочный кирпич
|
||
| Утепление стены |
Проектная необходимость
|
||
| Внутренняя обшивка/штукатурка со стороны помещения | |||
| Пол первого этажа | |||
| Несущая часть перекрытия |
Облегченные плиты перекрытия
|
Монолитная плита
|
Монолитная плита
|
| Теплоизоляция цокольного перекрытия | |||
| Стяжка/подготовка под чистый пол | |||
| Перекрытия над первым и последующими этажами | |||
| Несущая часть перекрытия |
Облегченные плиты перекрытия
|
Монолитная плита
|
Монолитная плита
|
| Звукоизоляция/теплоизоляция в перекрытии |
Базальтовый утеплитель 200мм
|
Базальтовый утеплитель 200мм
|
|
| Стяжка/подготовка под чистый пол | |||
| Отделка потолка нижележащего этажа | |||
| Окна и внешние двери | |||
| Окна |
ПВХ
|
||
| Оконные наличники | |||
| Откосы в помещении | |||
| Отливы снаружи |
Металл полиэстер
|
||
| Подоконники | |||
| Входные двери |
Металлическая
|
||
| Внутренние конструкции | |||
| Внутренние несущие стены |
300мм
|
400мм
|
400мм
|
| Внутренние ненесущие стены |
400мм
|
400мм
|
|
| Звукоизоляция внутренних стен/перегородок | |||
| Межэтажная строительная (черновая) лестница |
|
|
|
| Межэтажная постоянная (чистовая) лестница |
|
||
| Межкомнатные двери | |||
| Высота потолков 1 этажа |
2,7
|
3,0
|
3,0
|
| Высота потолков 2 этажа |
2,7
|
3,0
|
3,0
|
| Настилы полов и ограждения крылец, террас, балконов | |||
| Гидроизоляция полов балконов |
|
|
|
| Инженерное оснащение | |||
| Жидкостной теплый пол | |||
| Электрический теплый пол | |||
| Система вентиляции |
Кирпичные вентканалы и дымоходы
|
Кирпичные вентканалы и дымоходы
|
|
| Только вводы воды, электричества, выводы канализации |
|
|
|
| Электроразводка и электрощит | |||
| Разводка хол. и гор. водоснабжения (ХВС и ГВС) | |||
| Разводка батарей и/или системы теплого пола. Без оборудования котельной. | |||
| Иное инженерное оснащение | |||
| Подготовка участка для строительства | |||
| Устройство временного щита электроснабжения |
|
|
|
| Устройство въезда на участок |
|
||
| Дорога на участке до пятна застройки | |||
| Подъем пятна застройки |
|
||
| Подготовка пятна застройки для фундаментных работ |
|
|
|
| Перемещение или вывоз грунта из котлована фундамента |
|
||
| Обеспечение строительного процесса | |||
| Доставка стройматериалов |
|
|
|
| Генератор для обеспечения электричеством | |||
| Уборка и вывоз строительного мусора |
|
|
|
| Организация проживания рабочих (бытовка) |
|
|
|
| Биотуалет для рабочих |
|
||
| Гарантия на все выполненные работы | |||
| Гарантия |
3 года
|
5лет
|
5лет
|
| Свернуть | |||
|
Минимальная
|
5 691 906 ₽ |
|
Стандарт
|
7 924 026 ₽ |
|
Под чистовую отделку
|
10 825 782 ₽ |
| Показать подробные комплектации | |
|
Сравнить 0 комплектаций
Свернуть все
Развернуть все
|
Минимальная
5 691 906 ₽
|
Стандарт
7 924 026 ₽
|
Под чистовую отделку
10 825 782 ₽
|
| Кровля | |||
| Кровельное покрытие |
Мягкая черепица Shinglas (или на выбор металлочерепица Garda
|
Мягкая черепица Shinglas (или на выбор металлочерепица Garda
|
Мягкая черепица Shinglas (или на выбор металлочерепица Garda
|
| Обрешетка | |||
| Контробрешетка | |||
| Противоконденсатная (ветро-гидроизоляционная) пленка | |||
| Стропильная система | |||
| Утепление чердачного перекрытия и стропильной системы | |||
| Подшивка свесов кровли |
Софит металлический или планкен деревянный на выбор
|
Софит металлический или планкен деревянный на выбор
|
|
| Подшивка потолков террас и лоджий | |||
| Водосточная система |
Docke Standart
|
Docke Standart
|
|
| Система снегозадержания | |||
| Молниезащита | |||
| Фундамент | |||
| Сваи ж/бетонные |
Сваи 200х200х3000
|
Сваи 200х200х3000
|
Сваи 200х200х3000
|
| Сваи стальные винтовые | |||
| Лента ж/бетонная монолитная мелкозаглубленная | |||
| Лента ж/бетонная монолитная на глубину промерзания |
|
|
|
| Лента ж/бетонная сборная (из ФБС) на глубину промерзания |
|
||
| Плита ж/бетонная монолитная мелкозаглубленная |
Плита 300 мм, бетон B25 (М350)
|
Плита 300 мм, бетон B25 (М350)
|
Плита 300 мм, бетон B25 (М350) 300 мм
|
| УШП (Утепленная Шведская Плита) |
|
||
| Бетоннная отмостка по периметру дома | |||
| Дренажная система по периметру дома | |||
| Ливневая система | |||
| Облицовка цоколя фундамента |
Камень Whitehills
|
Камень Whitehills
|
|
| Система контурного заземления | |||
| Стены | |||
| Несущая часть стены |
Газобетонные блоки Bonolit 400 мм
|
Газобетонные блоки Bonolit 400 мм
|
Газобетонные блоки Bonolit 400 мм
|
| Фасадная отделка |
Декоративная штукатурка Ceresit (силикатно-силиконовая)
|
Облицовочный кирпич
|
|
| Утепление стены | |||
| Внутренняя обшивка/штукатурка со стороны помещения | |||
| Пол первого этажа | |||
| Несущая часть перекрытия |
Пол первого этажа - фундаментная плита
|
Пол первого этажа - фундаментная плита
|
Пол первого этажа - фундаментная плита
|
| Теплоизоляция цокольного перекрытия | |||
| Стяжка/подготовка под чистый пол | |||
| Перекрытия над первым и последующими этажами | |||
| Несущая часть перекрытия |
Железобетонные перекрытия 180-230 мм (проектные решения)
|
Железобетонные перекрытия 180-230 мм (проектные решения)
|
Железобетонные перекрытия 180-230 мм (проектные решения)
|
| Звукоизоляция/теплоизоляция в перекрытии | |||
| Стяжка/подготовка под чистый пол | |||
| Отделка потолка нижележащего этажа | |||
| Окна и внешние двери | |||
| Окна |
Окна Rehau Delight 70
|
Окна Rehau Delight 70
|
|
| Оконные наличники | |||
| Откосы в помещении | |||
| Отливы снаружи |
Металлические
|
Металлические
|
|
| Подоконники | |||
| Входные двери | |||
| Внутренние конструкции | |||
| Внутренние несущие стены |
Газобетонные блоки Bonolit 400 мм
|
Газобетонные блоки Bonolit 400 мм
|
Газобетонные блоки Bonolit 400 мм
|
| Внутренние ненесущие стены |
Перегородки - газобетонные блоки Bonolit 100 мм
|
Перегородки - газобетонные блоки Bonolit 100 мм
|
Перегородки - газобетонные блоки Bonolit 100 мм
|
| Звукоизоляция внутренних стен/перегородок | |||
| Межэтажная строительная (черновая) лестница | |||
| Межэтажная постоянная (чистовая) лестница | |||
| Межкомнатные двери | |||
| Высота потолков 1 этажа |
3 м
|
3 м
|
3 м
|
| Высота потолков 2 этажа |
3 м
|
3 м
|
3 м
|
| Настилы полов и ограждения крылец, террас, балконов | |||
| Гидроизоляция полов балконов | |||
| Инженерное оснащение | |||
| Жидкостной теплый пол | |||
| Электрический теплый пол | |||
| Система вентиляции | |||
| Только вводы воды, электричества, выводы канализации |
Закладные детали для вводов воды, электричества, вывод
|
Закладные детали для вводов воды, электричества, вывод
|
Закладные детали для вводов воды, электричества, вывод
|
| Электроразводка и электрощит | |||
| Разводка хол. и гор. водоснабжения (ХВС и ГВС) | |||
| Разводка батарей и/или системы теплого пола. Без оборудования котельной. | |||
| Иное инженерное оснащение | |||
| Подготовка участка для строительства | |||
| Устройство временного щита электроснабжения |
|
|
|
| Устройство въезда на участок | |||
| Дорога на участке до пятна застройки | |||
| Подъем пятна застройки | |||
| Подготовка пятна застройки для фундаментных работ | |||
| Перемещение или вывоз грунта из котлована фундамента | |||
| Обеспечение строительного процесса | |||
| Доставка стройматериалов |
|
|
|
| Генератор для обеспечения электричеством | |||
| Уборка и вывоз строительного мусора | |||
| Организация проживания рабочих (бытовка) |
|
|
|
| Биотуалет для рабочих |
Биотуалет для рабочих с еженедельным обслуживанием
|
Биотуалет для рабочих с еженедельным обслуживанием
|
Биотуалет для рабочих с еженедельным обслуживанием
|
| Гарантия на все выполненные работы | |||
| Гарантия | |||
| Свернуть | |||
|
Минимальная
|
6 899 280 ₽ |
|
Стандарт
|
8 522 640 ₽ |
|
Под чистовую отделку
|
11 160 600 ₽ |
| Показать подробные комплектации | |
|
Сравнить 0 комплектаций
Свернуть все
Развернуть все
|
Минимальная
6 899 280 ₽
|
Стандарт
8 522 640 ₽
|
Под чистовую отделку
11 160 600 ₽
|
| Кровля | |||
| Кровельное покрытие |
|
|
|
| Обрешетка |
|
|
|
| Контробрешетка |
|
|
|
| Противоконденсатная (ветро-гидроизоляционная) пленка |
|
|
|
| Стропильная система |
|
|
|
| Утепление чердачного перекрытия и стропильной системы |
|
|
|
| Подшивка свесов кровли |
|
|
|
| Подшивка потолков террас и лоджий |
|
|
|
| Водосточная система |
|
|
|
| Система снегозадержания |
|
|
|
| Молниезащита | |||
| Фундамент | |||
| Сваи ж/бетонные | |||
| Сваи стальные винтовые | |||
| Лента ж/бетонная монолитная мелкозаглубленная | |||
| Лента ж/бетонная монолитная на глубину промерзания | |||
| Лента ж/бетонная сборная (из ФБС) на глубину промерзания | |||
| Плита ж/бетонная монолитная мелкозаглубленная |
|
|
|
| УШП (Утепленная Шведская Плита) | |||
| Бетоннная отмостка по периметру дома |
|
||
| Дренажная система по периметру дома | |||
| Ливневая система | |||
| Облицовка цоколя фундамента |
|
||
| Система контурного заземления |
|
||
| Стены | |||
| Несущая часть стены |
|
|
|
| Фасадная отделка |
|
|
|
| Утепление стены | |||
| Внутренняя обшивка/штукатурка со стороны помещения |
|
||
| Пол первого этажа | |||
| Несущая часть перекрытия |
|
|
|
| Теплоизоляция цокольного перекрытия |
|
||
| Стяжка/подготовка под чистый пол |
|
||
| Перекрытия над первым и последующими этажами | |||
| Несущая часть перекрытия |
|
|
|
| Звукоизоляция/теплоизоляция в перекрытии |
|
||
| Стяжка/подготовка под чистый пол |
|
||
| Отделка потолка нижележащего этажа | |||
| Окна и внешние двери | |||
| Окна |
|
|
|
| Оконные наличники |
|
||
| Откосы в помещении |
|
||
| Отливы снаружи |
|
|
|
| Подоконники |
|
||
| Входные двери |
|
|
|
| Внутренние конструкции | |||
| Внутренние несущие стены |
|
|
|
| Внутренние ненесущие стены |
|
|
|
| Звукоизоляция внутренних стен/перегородок | |||
| Межэтажная строительная (черновая) лестница |
|
|
|
| Межэтажная постоянная (чистовая) лестница |
|
||
| Межкомнатные двери |
|
||
| Высота потолков 1 этажа |
3 м
|
3 м
|
3м
|
| Высота потолков 2 этажа | |||
| Настилы полов и ограждения крылец, террас, балконов |
|
||
| Гидроизоляция полов балконов |
|
||
| Инженерное оснащение | |||
| Жидкостной теплый пол |
|
||
| Электрический теплый пол | |||
| Система вентиляции |
|
|
|
| Только вводы воды, электричества, выводы канализации |
|
|
|
| Электроразводка и электрощит |
|
||
| Разводка хол. и гор. водоснабжения (ХВС и ГВС) |
|
||
| Разводка батарей и/или системы теплого пола. Без оборудования котельной. |
|
||
| Иное инженерное оснащение |
|
||
| Подготовка участка для строительства | |||
| Устройство временного щита электроснабжения |
|
|
|
| Устройство въезда на участок | |||
| Дорога на участке до пятна застройки | |||
| Подъем пятна застройки | |||
| Подготовка пятна застройки для фундаментных работ | |||
| Перемещение или вывоз грунта из котлована фундамента | |||
| Обеспечение строительного процесса | |||
| Доставка стройматериалов |
|
|
|
| Генератор для обеспечения электричеством | |||
| Уборка и вывоз строительного мусора |
|
|
|
| Организация проживания рабочих (бытовка) |
|
|
|
| Биотуалет для рабочих |
|
|
|
| Гарантия на все выполненные работы | |||
| Гарантия | |||
| Свернуть | |||
|
Минимальная
|
14 610 240 ₽ |
|
Стандарт
|
18 059 880 ₽ |
|
Под чистовую отделку
|
23 132 880 ₽ |
| Показать подробные комплектации | |
|
Сравнить 0 комплектаций
Свернуть все
Развернуть все
|
Минимальная
14 610 240 ₽
|
Стандарт
18 059 880 ₽
|
Под чистовую отделку
23 132 880 ₽
|
| Кровля | |||
| Кровельное покрытие |
Металлочерепица УНИКМА Т05 - 0,5 мм
|
Металлочерепица УНИКМА Т05 - 0,5 мм
|
Металлочерепица УНИКМА Т05 - 0,5 мм
|
| Обрешетка |
Обрешетка из сухого пиломатериала
|
Обрешетка из сухого пиломатериала
|
Обрешетка из сухого пиломатериала
|
| Контробрешетка |
Контробрешетка из сухого пилмата
|
Контробрешетка из сухого пилмата
|
Контробрешетка из сухого пилмата
|
| Противоконденсатная (ветро-гидроизоляционная) пленка |
Ветро-влагозащитная мембрана
|
Ветро-влагозащитная мембрана
|
Ветро-влагозащитная мембрана
|
| Стропильная система |
Стропильная система из сухого пилмата
|
Стропильная система из сухого пилмата
|
Стропильная система из сухого пилмата
|
| Утепление чердачного перекрытия и стропильной системы |
Минеральная вата 200 мм
|
Минеральная вата 200 мм
|
|
| Подшивка свесов кровли |
Софит пластиковый перфорированный
|
||
| Подшивка потолков террас и лоджий | |||
| Водосточная система |
Водосточные трубы и желоба из ПВХ
|
Водосточные трубы и желоба из ПВХ
|
|
| Система снегозадержания |
Снегозадержатель трубчатый
|
Снегозадержатель трубчатый
|
|
| Молниезащита | |||
| Фундамент | |||
| Сваи ж/бетонные |
ЖБ сваи 200х200 мм длиной 3 м
|
ЖБ сваи 200х200 мм длиной 3 м
|
ЖБ сваи 200х200 мм длиной 3 м
|
| Сваи стальные винтовые | |||
| Лента ж/бетонная монолитная мелкозаглубленная | |||
| Лента ж/бетонная монолитная на глубину промерзания | |||
| Лента ж/бетонная сборная (из ФБС) на глубину промерзания | |||
| Плита ж/бетонная монолитная мелкозаглубленная |
Плоская ЖБ плита 300 мм с усилением в теле плиты
|
Плоская ЖБ плита 300 мм с усилением в теле плиты
|
Плоская ЖБ плита 300 мм с усилением в теле плиты
|
| УШП (Утепленная Шведская Плита) | |||
| Бетоннная отмостка по периметру дома | |||
| Дренажная система по периметру дома | |||
| Ливневая система | |||
| Облицовка цоколя фундамента | |||
| Система контурного заземления | |||
| Стены | |||
| Несущая часть стены |
Газосиликатный блок Bonolit D400 400мм
|
Газосиликатный блок Bonolit D400 400мм
|
Газосиликатный блок Bonolit D400 400мм
|
| Фасадная отделка |
Кирпич/АМК/Штукатурка
|
||
| Утепление стены | |||
| Внутренняя обшивка/штукатурка со стороны помещения |
Механизированная штукатурка
|
||
| Пол первого этажа | |||
| Несущая часть перекрытия |
Сборные ЖБ плиты ПНО 160 мм
|
Сборные ЖБ плиты ПНО 160 мм
|
Сборные ЖБ плиты ПНО 160 мм
|
| Теплоизоляция цокольного перекрытия |
Утепление пола 1 этажа ЭППС 100 мм
|
||
| Стяжка/подготовка под чистый пол |
Механизированная полусухая стяжка
|
||
| Перекрытия над первым и последующими этажами | |||
| Несущая часть перекрытия |
Сборные ЖБ плиты ПНО 160 мм
|
Сборные ЖБ плиты ПНО 160 мм
|
Сборные ЖБ плиты ПНО 160 мм
|
| Звукоизоляция/теплоизоляция в перекрытии | |||
| Стяжка/подготовка под чистый пол |
Механизированная полусухая стяжка
|
||
| Отделка потолка нижележащего этажа | |||
| Окна и внешние двери | |||
| Окна |
Окна ПВХ, профиль Rehau Delight, 70 мм
|
Окна ПВХ, профиль Rehau Delight, 70 мм
|
|
| Оконные наличники | |||
| Откосы в помещении |
Механизированная штукатурка внутренних откосов
|
||
| Отливы снаружи |
Металлические отливы на окнах
|
||
| Подоконники | |||
| Входные двери |
Временная металлическая дверь
|
Временная металлическая дверь
|
|
| Внутренние конструкции | |||
| Внутренние несущие стены |
Газосиликатный блок Bonolit D500 300мм
|
Газосиликатный блок Bonolit D500 300мм
|
Газосиликатный блок Bonolit D500 300мм
|
| Внутренние ненесущие стены |
Газосиликатный блок Bonolit D500 100мм
|
Газосиликатный блок Bonolit D500 100мм
|
Газосиликатный блок Bonolit D500 100мм
|
| Звукоизоляция внутренних стен/перегородок | |||
| Межэтажная строительная (черновая) лестница |
ЖБ лестница 18 ступеней
|
ЖБ лестница 18 ступеней
|
|
| Межэтажная постоянная (чистовая) лестница |
ЖБ лестница 18 ступеней
|
ЖБ лестница 18 ступеней
|
|
| Межкомнатные двери | |||
| Высота потолков 1 этажа |
3 м
|
3 м
|
3 м
|
| Высота потолков 2 этажа |
3 м
|
3 м
|
3 м
|
| Настилы полов и ограждения крылец, террас, балконов |
Покрытие черновой доской террас/крылец
|
Покрытие черновой доской террас/крылец
|
|
| Гидроизоляция полов балконов | |||
| Инженерное оснащение | |||
| Жидкостной теплый пол |
Водяные теплые полы
|
||
| Электрический теплый пол | |||
| Система вентиляции |
Естественная вентиляция
|
||
| Только вводы воды, электричества, выводы канализации | |||
| Электроразводка и электрощит |
100 точек электричества, 3 проходных выключателя, щиты
|
||
| Разводка хол. и гор. водоснабжения (ХВС и ГВС) |
Водоснабжение и канализация
|
||
| Разводка батарей и/или системы теплого пола. Без оборудования котельной. |
Радиаторное отопление
|
||
| Иное инженерное оснащение |
Комплектация котельной
|
||
| Подготовка участка для строительства | |||
| Устройство временного щита электроснабжения | |||
| Устройство въезда на участок | |||
| Дорога на участке до пятна застройки | |||
| Подъем пятна застройки | |||
| Подготовка пятна застройки для фундаментных работ | |||
| Перемещение или вывоз грунта из котлована фундамента | |||
| Обеспечение строительного процесса | |||
| Доставка стройматериалов |
|
|
|
| Генератор для обеспечения электричеством | |||
| Уборка и вывоз строительного мусора | |||
| Организация проживания рабочих (бытовка) |
|
|
|
| Биотуалет для рабочих |
|
|
|
| Гарантия на все выполненные работы | |||
| Гарантия |
5 лет
|
5 лет
|
5 лет
|
| Свернуть | |||
|
Минимальная
|
3 551 100 ₽ |
|
Стандарт
|
4 971 540 ₽ |
|
Под чистовую отделку
|
6 493 440 ₽ |
| Показать подробные комплектации | |
|
Сравнить 0 комплектаций
Свернуть все
Развернуть все
|
Минимальная
3 551 100 ₽
|
Стандарт
4 971 540 ₽
|
Под чистовую отделку
6 493 440 ₽
|
| Кровля | |||
| Кровельное покрытие |
Металлочерепица «GRAND LINE»
|
Металлочерепица «GRAND LINE»
|
Металлочерепица «GRAND LINE»
|
| Обрешетка |
Доска 100х25, сухая, строганная, с обработкой огнебиозащитой
|
Доска 100х25, сухая, строганная, с обработкой огнебиозащитой
|
Доска 100х25, сухая, строганная, с обработкой огнебиозащитой
|
| Контробрешетка |
Брус 50х50 мм, сухой, строганный, с обработкой огнебиозащитой
|
Брус 50х50 мм, сухой, строганный, с обработкой огнебиозащитой
|
Брус 50х50 мм, сухой, строганный, с обработкой огнебиозащитой
|
| Противоконденсатная (ветро-гидроизоляционная) пленка |
Гидро-ветроизоляционная мембрана
|
Гидро-ветроизоляционная мембрана
|
Гидро-ветроизоляционная мембрана
|
| Стропильная система |
Доска 200х50, сухая, строганная, с обработкой огнебиозащитой
|
Доска 200х50, сухая, строганная, с обработкой огнебиозащитой
|
Доска 200х50, сухая, строганная, с обработкой огнебиозащитой
|
| Утепление чердачного перекрытия и стропильной системы |
Утеплитель Rockwool
|
Утеплитель Rockwool
|
|
| Подшивка свесов кровли |
Софит пластиковый «GRAND LINE»
|
Софит пластиковый «GRAND LINE»
|
|
| Подшивка потолков террас и лоджий |
Софит пластиковый «GRAND LINE»
|
||
| Водосточная система |
Водосточная система «GRAND LINE»
|
||
| Система снегозадержания |
Трубчатые снегодержатели «GRAND LINE»
|
||
| Молниезащита |
Система EZETEK
|
||
| Фундамент | |||
| Сваи ж/бетонные | |||
| Сваи стальные винтовые | |||
| Лента ж/бетонная монолитная мелкозаглубленная | |||
| Лента ж/бетонная монолитная на глубину промерзания | |||
| Лента ж/бетонная сборная (из ФБС) на глубину промерзания | |||
| Плита ж/бетонная монолитная мелкозаглубленная |
Монолитная железобетонная плита с утеплением и гидроизоляцией
|
Монолитная железобетонная плита с утеплением и гидроизоляцией
|
Монолитная железобетонная плита с утеплением и гидроизоляцией
|
| УШП (Утепленная Шведская Плита) | |||
| Бетоннная отмостка по периметру дома |
Утепленная отмостка по периметру дома
|
||
| Дренажная система по периметру дома |
|
||
| Ливневая система |
Ливневая система с отводом дождевой воды
|
||
| Облицовка цоколя фундамента | |||
| Система контурного заземления | |||
| Стены | |||
| Несущая часть стены |
Газобетонные блоки D500 "YTONG" 600х375х250мм
|
Газобетонные блоки D500 "YTONG" 600х375х250мм
|
|
| Фасадная отделка |
Мокрый фасад, декоративная штукатурка
|
Мокрый фасад, декоративная штукатурка
|
|
| Утепление стены |
Утеплитель Rockwool
|
Утеплитель Rockwool
|
|
| Внутренняя обшивка/штукатурка со стороны помещения | |||
| Пол первого этажа | |||
| Несущая часть перекрытия |
Пол первого этажа - фундаментная плита
|
Пол первого этажа - фундаментная плита
|
Пол первого этажа - фундаментная плита
|
| Теплоизоляция цокольного перекрытия | |||
| Стяжка/подготовка под чистый пол | |||
| Перекрытия над первым и последующими этажами | |||
| Несущая часть перекрытия |
Монолитные ж/б перекрытия 200 мм
|
Монолитные ж/б перекрытия 200 мм
|
|
| Звукоизоляция/теплоизоляция в перекрытии | |||
| Стяжка/подготовка под чистый пол |
Стяжка армированная под чистовое покрытие
|
||
| Отделка потолка нижележащего этажа | |||
| Окна и внешние двери | |||
| Окна |
Профиль Rehau, стеклопакет с энергосберегающим стеклопакетом
|
Профиль Rehau, стеклопакет с энергосберегающим стеклопакетом
|
|
| Оконные наличники | |||
| Откосы в помещении | |||
| Отливы снаружи |
|
|
|
| Подоконники | |||
| Входные двери |
|
|
|
| Внутренние конструкции | |||
| Внутренние несущие стены |
Газобетонные блоки D500 "YTONG" 600х250х300мм
|
Газобетонные блоки D500 "YTONG" 600х250х300мм
|
Газобетонные блоки D500 "YTONG" 600х250х300мм
|
| Внутренние ненесущие стены |
Газобетонные блоки D500 "YTONG" 600х100х300мм
|
Газобетонные блоки D500 "YTONG" 600х100х300мм
|
|
| Звукоизоляция внутренних стен/перегородок | |||
| Межэтажная строительная (черновая) лестница |
|
|
|
| Межэтажная постоянная (чистовая) лестница | |||
| Межкомнатные двери | |||
| Высота потолков 1 этажа |
3000мм
|
3000мм
|
3000мм
|
| Высота потолков 2 этажа |
3000мм
|
3000мм
|
3000мм
|
| Настилы полов и ограждения крылец, террас, балконов | |||
| Гидроизоляция полов балконов |
|
|
|
| Инженерное оснащение | |||
| Жидкостной теплый пол | |||
| Электрический теплый пол | |||
| Система вентиляции | |||
| Только вводы воды, электричества, выводы канализации |
|
|
|
| Электроразводка и электрощит | |||
| Разводка хол. и гор. водоснабжения (ХВС и ГВС) | |||
| Разводка батарей и/или системы теплого пола. Без оборудования котельной. | |||
| Иное инженерное оснащение | |||
| Подготовка участка для строительства | |||
| Устройство временного щита электроснабжения |
|
|
|
| Устройство въезда на участок |
|
|
|
| Дорога на участке до пятна застройки | |||
| Подъем пятна застройки | |||
| Подготовка пятна застройки для фундаментных работ |
|
|
|
| Перемещение или вывоз грунта из котлована фундамента |
|
|
|
| Обеспечение строительного процесса | |||
| Доставка стройматериалов |
|
|
|
| Генератор для обеспечения электричеством |
|
|
|
| Уборка и вывоз строительного мусора |
|
|
|
| Организация проживания рабочих (бытовка) |
|
|
|
| Биотуалет для рабочих |
|
|
|
| Гарантия на все выполненные работы | |||
| Гарантия |
2 года
|
2 года
|
2 года
|
| Свернуть | |||
|
Минимальная
|
5 494 059 ₽ |
|
Под чистовую отделку
|
8 385 669 ₽ |
| Показать подробные комплектации | |
|
Сравнить 0 комплектаций
Свернуть все
Развернуть все
|
Минимальная
5 494 059 ₽
|
Под чистовую отделку
8 385 669 ₽
|
|
| Кровля | |||
| Кровельное покрытие |
Металлочерепица толщиной 0.5 мм
|
Металлочерепица толщиной 0.5 мм
|
|
| Обрешетка |
25х150 мм
|
25х150 мм
|
|
| Контробрешетка |
25х50 мм
|
25х50 мм
|
|
| Противоконденсатная (ветро-гидроизоляционная) пленка |
|
|
|
| Стропильная система |
|
|
|
| Утепление чердачного перекрытия и стропильной системы |
200 мм минеральной ватой
|
200 мм минеральной ватой
|
|
| Подшивка свесов кровли |
|
|
|
| Подшивка потолков террас и лоджий |
|
|
|
| Водосточная система |
|
|
|
| Система снегозадержания | |||
| Молниезащита | |||
| Фундамент | |||
| Сваи ж/бетонные |
Диаметром 300 мм,
Уширение 600 мм в сонов
|
Диаметром 300 мм,
Уширение 600 мм в сонов
|
|
| Сваи стальные винтовые | |||
| Лента ж/бетонная монолитная мелкозаглубленная |
|
|
|
| Лента ж/бетонная монолитная на глубину промерзания | |||
| Лента ж/бетонная сборная (из ФБС) на глубину промерзания | |||
| Плита ж/бетонная монолитная мелкозаглубленная | |||
| УШП (Утепленная Шведская Плита) | |||
| Бетоннная отмостка по периметру дома | |||
| Дренажная система по периметру дома | |||
| Ливневая система | |||
| Облицовка цоколя фундамента | |||
| Система контурного заземления | |||
| Стены | |||
| Несущая часть стены |
|
||
| Фасадная отделка | |||
| Утепление стены | |||
| Внутренняя обшивка/штукатурка со стороны помещения |
Штукатурка knauf мн Старт
|
||
| Пол первого этажа | |||
| Несущая часть перекрытия | |||
| Теплоизоляция цокольного перекрытия |
|
||
| Стяжка/подготовка под чистый пол |
|
||
| Перекрытия над первым и последующими этажами | |||
| Несущая часть перекрытия |
|
|
|
| Звукоизоляция/теплоизоляция в перекрытии | |||
| Стяжка/подготовка под чистый пол |
|
||
| Отделка потолка нижележащего этажа | |||
| Окна и внешние двери | |||
| Окна |
ПВХ 5-ти камерный, толщина профиля 70 мм, 2-х камерный эне
|
ПВХ 5-ти камерный, толщина профиля 70 мм, 2-х камерный эне
|
|
| Оконные наличники | |||
| Откосы в помещении | |||
| Отливы снаружи |
|
|
|
| Подоконники | |||
| Входные двери |
|
|
|
| Внутренние конструкции | |||
| Внутренние несущие стены |
Кирпич 2.1 НФ толщиной 250 и 380 мм
|
Кирпич 2.1 НФ толщиной 250 и 380 мм
|
|
| Внутренние ненесущие стены |
Кирпич 2.1 НФ толщиной 120 мм
|
Кирпич 2.1 НФ толщиной 120 мм
|
|
| Звукоизоляция внутренних стен/перегородок | |||
| Межэтажная строительная (черновая) лестница |
|
||
| Межэтажная постоянная (чистовая) лестница |
Металлический каркас
|
||
| Межкомнатные двери | |||
| Высота потолков 1 этажа |
3 м
|
3 м
|
|
| Высота потолков 2 этажа |
2,9 м
|
2,9 м
|
|
| Настилы полов и ограждения крылец, террас, балконов | |||
| Гидроизоляция полов балконов |
|
|
|
| Инженерное оснащение | |||
| Жидкостной теплый пол |
весь этаж (если дом одноэтажный);
первый этаж + с.у втор
|
||
| Электрический теплый пол | |||
| Система вентиляции | |||
| Только вводы воды, электричества, выводы канализации |
|
||
| Электроразводка и электрощит |
|
||
| Разводка хол. и гор. водоснабжения (ХВС и ГВС) |
|
||
| Разводка батарей и/или системы теплого пола. Без оборудования котельной. |
|
||
| Иное инженерное оснащение | |||
| Подготовка участка для строительства | |||
| Устройство временного щита электроснабжения | |||
| Устройство въезда на участок |
|
|
|
| Дорога на участке до пятна застройки | |||
| Подъем пятна застройки | |||
| Подготовка пятна застройки для фундаментных работ |
|
|
|
| Перемещение или вывоз грунта из котлована фундамента |
|
|
|
| Обеспечение строительного процесса | |||
| Доставка стройматериалов |
|
|
|
| Генератор для обеспечения электричеством |
|
|
|
| Уборка и вывоз строительного мусора |
|
|
|
| Организация проживания рабочих (бытовка) |
|
|
|
| Биотуалет для рабочих |
|
|
|
| Гарантия на все выполненные работы | |||
| Гарантия |
10 лет
|
10 лет на коробку дома и до 10 лет на предчистовую отделк
|
|
| Свернуть | |||
|
Под чистовую отделку
|
6 696 360 ₽ |
| Показать подробные комплектации | |
|
Сравнить 0 комплектаций
Свернуть все
Развернуть все
|
Под чистовую отделку
6 696 360 ₽
|
||
| Кровля | |||
| Кровельное покрытие |
Металлочерепица Grand Line толщиной 0,5 мм
|
||
| Обрешетка |
25*100 мм камерной сушки
|
||
| Контробрешетка |
40*40 мм камерной сушки
|
||
| Противоконденсатная (ветро-гидроизоляционная) пленка |
ветро-гидроизоляционная мембрана
|
||
| Стропильная система |
Доска 40*200 мм камерной сушки
|
||
| Утепление чердачного перекрытия и стропильной системы |
200 мм в 4 слоя перекрестным способом
|
||
| Подшивка свесов кровли |
|
||
| Подшивка потолков террас и лоджий |
|
||
| Водосточная система | |||
| Система снегозадержания | |||
| Молниезащита | |||
| Фундамент | |||
| Сваи ж/бетонные | |||
| Сваи стальные винтовые | |||
| Лента ж/бетонная монолитная мелкозаглубленная | |||
| Лента ж/бетонная монолитная на глубину промерзания | |||
| Лента ж/бетонная сборная (из ФБС) на глубину промерзания | |||
| Плита ж/бетонная монолитная мелкозаглубленная |
|
||
| УШП (Утепленная Шведская Плита) | |||
| Бетоннная отмостка по периметру дома | |||
| Дренажная система по периметру дома | |||
| Ливневая система | |||
| Облицовка цоколя фундамента | |||
| Система контурного заземления | |||
| Стены | |||
| Несущая часть стены |
Газобетонные блоки толщиной 400 мм
|
||
| Фасадная отделка | |||
| Утепление стены | |||
| Внутренняя обшивка/штукатурка со стороны помещения | |||
| Пол первого этажа | |||
| Несущая часть перекрытия |
Сборное перекрытие из жб плит 220 мм
|
||
| Теплоизоляция цокольного перекрытия | |||
| Стяжка/подготовка под чистый пол | |||
| Перекрытия над первым и последующими этажами | |||
| Несущая часть перекрытия |
Сборное перекрытие из жб плит 220 мм
|
||
| Звукоизоляция/теплоизоляция в перекрытии |
|
||
| Стяжка/подготовка под чистый пол |
|
||
| Отделка потолка нижележащего этажа | |||
| Окна и внешние двери | |||
| Окна |
Пластиковые окна Rehau GRAZIO 70 мм
|
||
| Оконные наличники | |||
| Откосы в помещении | |||
| Отливы снаружи | |||
| Подоконники | |||
| Входные двери |
Металлическая дверь 2060х960 мм с фурнитурой
|
||
| Внутренние конструкции | |||
| Внутренние несущие стены | |||
| Внутренние ненесущие стены | |||
| Звукоизоляция внутренних стен/перегородок | |||
| Межэтажная строительная (черновая) лестница |
Техническая (один марш)
|
||
| Межэтажная постоянная (чистовая) лестница | |||
| Межкомнатные двери | |||
| Высота потолков 1 этажа |
3000 мм
|
||
| Высота потолков 2 этажа |
3000 мм
|
||
| Настилы полов и ограждения крылец, террас, балконов | |||
| Гидроизоляция полов балконов | |||
| Инженерное оснащение | |||
| Жидкостной теплый пол | |||
| Электрический теплый пол | |||
| Система вентиляции | |||
| Только вводы воды, электричества, выводы канализации | |||
| Электроразводка и электрощит | |||
| Разводка хол. и гор. водоснабжения (ХВС и ГВС) | |||
| Разводка батарей и/или системы теплого пола. Без оборудования котельной. | |||
| Иное инженерное оснащение | |||
| Подготовка участка для строительства | |||
| Устройство временного щита электроснабжения | |||
| Устройство въезда на участок | |||
| Дорога на участке до пятна застройки | |||
| Подъем пятна застройки | |||
| Подготовка пятна застройки для фундаментных работ |
Включено в стоимость
|
||
| Перемещение или вывоз грунта из котлована фундамента | |||
| Обеспечение строительного процесса | |||
| Доставка стройматериалов |
Включено в стоимость
|
||
| Генератор для обеспечения электричеством | |||
| Уборка и вывоз строительного мусора | |||
| Организация проживания рабочих (бытовка) |
Включено в стоимость
|
||
| Биотуалет для рабочих |
Включено в стоимость
|
||
| Гарантия на все выполненные работы | |||
| Гарантия |
5 лет + ТО дома в течение года БЕСПЛАТНО
|
||
| Свернуть | |||
|
Стандарт
|
3 855 479 ₽ |
| Показать подробные комплектации | |
|
Сравнить 0 комплектаций
Свернуть все
Развернуть все
|
Стандарт
3 855 479 ₽
|
||
| Кровля | |||
| Кровельное покрытие |
укладка готового кровельного материала заказчика
|
||
| Обрешетка |
|
||
| Контробрешетка |
|
||
| Противоконденсатная (ветро-гидроизоляционная) пленка |
|
||
| Стропильная система |
|
||
| Утепление чердачного перекрытия и стропильной системы | |||
| Подшивка свесов кровли | |||
| Подшивка потолков террас и лоджий | |||
| Водосточная система |
|
||
| Система снегозадержания |
|
||
| Молниезащита | |||
| Фундамент | |||
| Сваи ж/бетонные | |||
| Сваи стальные винтовые | |||
| Лента ж/бетонная монолитная мелкозаглубленная | |||
| Лента ж/бетонная монолитная на глубину промерзания |
|
||
| Лента ж/бетонная сборная (из ФБС) на глубину промерзания | |||