Главная Проекты домов Проект дома дома с тремя спальнями, кабинетом, баней и постирочной

D6431 Проект дома дома с тремя спальнями, кабинетом, баней и постирочной

Сравнить проект В избранное
Проект дома дома с тремя спальнями, кабинетом, баней и постирочной / 1
Проект дома дома с тремя спальнями, кабинетом, баней и постирочной / 2
Проект дома дома с тремя спальнями, кабинетом, баней и постирочной / 3
Проект дома дома с тремя спальнями, кабинетом, баней и постирочной / 4
Проект дома дома с тремя спальнями, кабинетом, баней и постирочной / 5
Проект дома дома с тремя спальнями, кабинетом, баней и постирочной / 6
Проект дома дома с тремя спальнями, кабинетом, баней и постирочной / 1
Проект дома дома с тремя спальнями, кабинетом, баней и постирочной / 2
Проект дома дома с тремя спальнями, кабинетом, баней и постирочной / 3
Проект дома дома с тремя спальнями, кабинетом, баней и постирочной / 4
Проект дома дома с тремя спальнями, кабинетом, баней и постирочной / 5
Проект дома дома с тремя спальнями, кабинетом, баней и постирочной / 6
D6431
162 м²
Подготовка проекта:
3 рабочих дня
Стоимость проекта
Купить проект
Задайте вопросы по проекту нашему архитектору
8 (800) 200-28-83
Время работы: пн-вс: с 9:00 до 20:00
Задать вопрос по проекту

Технические характеристики
Общие
Материал стен
Газобетон
Общая площадь
162 м²
Площадь застройки
162.8 м²
Приведенная площадь
149.22 м²
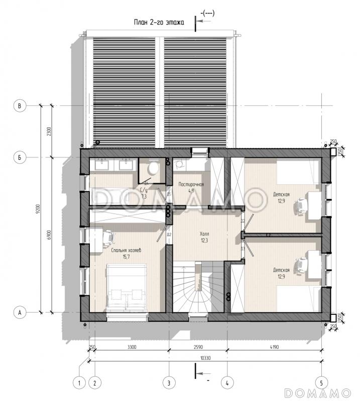
Количество жилых комнат/спален
4
Этажи
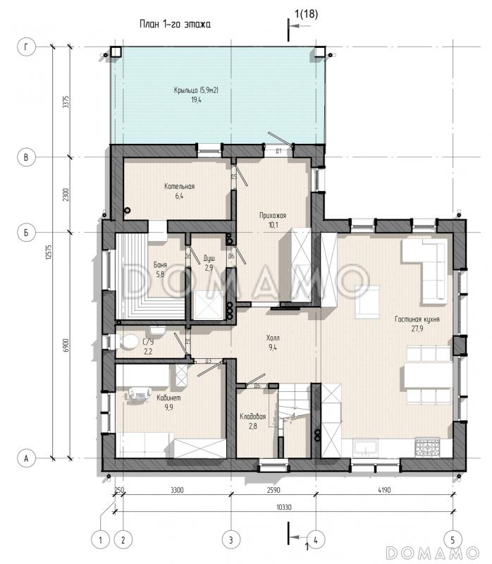
1 этаж + мансарда
Гараж
Нет гаража
Подвал / цокольный этаж
Без подвала
Длина дома
12.575 м
Ширина дома
10.33 м
Высота в коньке
6.947 м
Кровля
Оцинкованный стальной лист профилированный
Облицовка внешних стен
Деревянная вагонка
,
Мокрая штукатурка
,
Фасадные панели
Межэтажные перекрытия
Монолитные
Внутренние не несущие перегородки
Газобетонные
Фундамент
Монолитная ж/бетонная плита
Терраса
Терраса крытая
Дополнительные
Окна
Окна до пола
Мансардные окна
Есть
Сауна/баня внутри
Есть
Площадь гостиной
13.9 м²
Площадь кухни
14 м²
Количество санузлов
3
Окно в ванной комнате
Есть
Котельная
Есть
Кабинет
Есть
Постирочная
Есть
Кладовая
1
Планы помещений
Фасады
Описание проекта
Компания Domamo предлагает проект дома дома с тремя спальнями, кабинетом, баней и постирочной D6431. Общая площадь - 162 м2, размер - 12.575х10.33 м. Фундамент - монолитная ж/бетонная плита, кровля - оцинкованный стальной лист профилированный, внешняя отделка - фасадные панели деревянная вагонка мокрая штукатурка. Для заказа проекта или внесения изменений свяжитесь с нами с помощью форм обратной связи на сайте или по телефону +7 (800) 200-28-83.
Состав проекта
Входит в стоимость
Цена, руб. Сроки, дней
Комплект архитектурно-строительных чертежей (АС) Входит в стоимость 3 рабочих дня
Разрабатывается отдельно
Цена, руб. Сроки, дней
Адаптация фундамента (изменение типа фундамента) по запросу 14 рабочих дней
Дизайн интерьера (стоимость от 2200руб. за квад.метр площади) по запросу 30 рабочих дней
Внесение изменений в проект по запросу 20 рабочих дней
Фэншуй дома 20 000 ₽ 14 рабочих дней в корзину
Фэншуй участка 15 000 ₽ 14 рабочих дней в корзину
Фэншуй полная консультация дом+участок с выездом на объект 100 000 ₽ 30 рабочих дней в корзину
Опции проекта вы можете заказать в корзине при оформлении заказа
Отзывы покупателей
Рейтинг покупателей
0 / 5 5 5 1
На основе 1 оценок покупателей
0%
0%
0%
0%
0%
Отзывы о проекте D6431
Отзыв о проекте D6431
Чтобы оставить отзыв, пожалуйста авторизуйтесь.
Подбор строительной компании
Не знаете кому доверить строительство дома? Мы можем помочь! Подберем для вас из сотен наших партнеров несколько компаний с лучшем соотношением цена/качество под конкретно ваш запрос.
Подобрать