Главная Проекты домов Проект одноэтажного дома в стиле Барнхаус с мансардой, четырьмя спальнями и вторым светом

D5545 Проект одноэтажного дома в стиле Барнхаус с мансардой, четырьмя спальнями и вторым светом

Сравнить проект В избранное
Проект одноэтажного дома в стиле Барнхаус с мансардой, четырьмя спальнями и вторым светом / 1
Проект одноэтажного дома в стиле Барнхаус с мансардой, четырьмя спальнями и вторым светом / 2
Проект одноэтажного дома в стиле Барнхаус с мансардой, четырьмя спальнями и вторым светом / 3
Проект одноэтажного дома в стиле Барнхаус с мансардой, четырьмя спальнями и вторым светом / 4
Проект одноэтажного дома в стиле Барнхаус с мансардой, четырьмя спальнями и вторым светом / 1
Проект одноэтажного дома в стиле Барнхаус с мансардой, четырьмя спальнями и вторым светом / 2
Проект одноэтажного дома в стиле Барнхаус с мансардой, четырьмя спальнями и вторым светом / 3
Проект одноэтажного дома в стиле Барнхаус с мансардой, четырьмя спальнями и вторым светом / 4
D5545
243 м²
Подготовка проекта:
5 рабочих дней
Стоимость проекта
Купить проект
Задайте вопросы по проекту нашему архитектору
8 (800) 200-28-83
Время работы: пн-вс: с 9:00 до 20:00
Задать вопрос по проекту

Технические характеристики
Общие
Материал стен
Газобетон
Общая площадь
243 м²
Жилая площадь
180 м²
Площадь застройки
163 м²
Приведенная площадь
220.17 м²
Количество жилых комнат/спален
4
Этажи
1 этаж + мансарда
Гараж
Нет гаража
Количество машин
нет
Подвал / цокольный этаж
Без подвала
Длина дома
17.3 м
Ширина дома
12 м
Кровля
Оцинкованный стальной лист профилированный
Облицовка внешних стен
Деревянная вагонка
,
Мокрая штукатурка
Толщина несущих наружных стен
375 мм
Межэтажные перекрытия
Сборно-монолитные
Внутренние не несущие перегородки
Газобетонные
Фундамент
Утепленная шведская плита (УШП)
Терраса
Терраса крытая
Дополнительные
Второй свет
Есть
Мансардные окна
Есть
Сауна/баня внутри
Нет
Площадь гостиной
25.7 м²
Площадь кухни
22.9 м²
Количество санузлов
4
Котельная
Есть
Хозяйский санузел
Есть
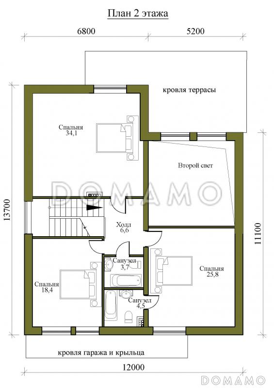
Планы помещений
Описание проекта
Компания Domamo предлагает проект одноэтажного дома в стиле барнхаус с мансардой, четырьмя спальнями и вторым светом D5545. Общая площадь - 243 м2, размер - 17.3х12 м. Фундамент - утепленная шведская плита (ушп), кровля - оцинкованный стальной лист профилированный, внешняя отделка - деревянная вагонка мокрая штукатурка. Для заказа проекта или внесения изменений свяжитесь с нами с помощью форм обратной связи на сайте или по телефону +7 (800) 200-28-83.
Категории проекта: с мансардой для постоянного проживания пенобетон современные дачные дома гостевые от 200 до 300 кв.м в европейском стиле с террасой из пеноблоков с мансардой из газобетона в немецком стиле из газобетона готовые из газобетона с мансардой одноэтажные с мансардой одноэтажные с котельной с котельной со вторым светом одноэтажные из газобетона из газосиликатных блоков дачные с мансардой дачные из пеноблоков дачные с верандой загородные с четырехскатной крышей из керамзитобетонных блоков из газобетона с террасой из блоков одноэтажные из блоков из блоков с мансардой из пеноблоков с террасой загородные из газобетона Проекты одноэтажных домов с террасой дачные одноэтажные Типовые проекты загородных одноэтажных домов без гаража одноэтажные без гаража дачные с террасой одноэтажных из керамзитобетонных блоков одноэтажные с 4 спальнями с мансардой и террасой полутораэтажные дачные с мансардой и верандой с 4 спальнями из пеноблоков загородные от 200 до 250 м сложной формы одноэтажные с мансардными окнами с мансардой с котельной с мансардой с четырехскатной крышей с мансардой современные с мансардой в европейском стиле с мансардой со вторым светом с мансардой с мансардными окнами с мансардой сложной формы с мансардой готовые с мансардой для постоянного проживания с мансардой гостевые одноэтажные из газобетона с террасой одноэтажные из газобетона с мансардой одноэтажные из газобетона с 4 спальнями со вторым светом из газобетона от 200 до 300 кв.м из газобетона с четырехскатной крышей из газобетона в европейском стиле из газобетона современные из газобетона с котельной из газобетона готовые из газобетона с большой кухней из газобетона с четырьмя спальнями из газобетона дачные из газобетона гостевые из газобетона для постоянного проживания из газобетона со вторым светом двухэтажные из газобетона без гаража двухэтажные из газобетона с террасой двухэтажные из газобетона с котельной двухэтажные из газобетона со вторым светом двухэтажные из газобетона в европейском стиле двухэтажные из газобетона современные двухэтажные из газобетона с четырехскатной крышей двухэтажные из газобетона с вальмовой крышей двухэтажные из газобетона без подвала двухэтажные из газобетона с 4 спальнями из газобетона с мансардой современные из газобетона с мансардой в европейском стиле из газобетона с мансардой с террасой из газобетона с мансардой для постоянного проживания из газобетона с мансардой дачные из газобетона с мансардой готовые из газобетона с мансардой с четырехскатной крышей из газобетона с мансардой с 4 спальнями из газобетона с мансардой с большой кухней из газобетона с мансардой со вторым светом одноэтажные с мансардой для постоянного проживания одноэтажные с мансардой гостевые одноэтажные с мансардой дачные одноэтажные с мансардой со вторым светом одноэтажные с мансардой с большой кухней одноэтажные с мансардой в европейском стиле одноэтажные с мансардой современные современные без гаража современные с террасой современные со вторым светом европейские для постоянного проживания европейские дачные европейские гостевые европейские готовые европейские без подвала европейские с террасой европейские с котельной европейские с вторым светом европейские с мансардными окнами европейские с четырехскатной крышей европейские с вальмовой крышей европейские 200-300 м2 из пеноблоков в современном стиле из пеноблоков в европейском стиле из пеноблоков с четырехскатной крышей из пеноблоков с вальмовой крышей из пеноблоков с вторым светом из пеноблоков нестандартные из пеноблоков для постоянного проживания из пеноблоков гостевые из пеноблоков готовые из пеноблоков от 200 до 300 м2 из пеноблоков с 4 спальнями из пеноблоков с большой кухней недорогие с мансардой недорогие без гаража недорогие с террасой недорогие для постоянного проживания недорогие гостевые недорогие дачные недорогие с четырехскатной крышей недорогие с вальмовой крышей недорогие без бани недорогие с котельной недорогие с мансардными окнами недорогие с вторым светом недорогие сложной формы недорогие от 200 до 300 м2 из клееного бруса без гаража Показать все категории Скрыть категории

Похожие проекты
Состав проекта
Входит в стоимость
Цена, руб. Сроки, дней
Комплект архитектурно-строительных чертежей (АС) Входит в стоимость Готов к отправке
Готово к продаже
Цена, руб. Сроки, дней
Паспорт рабочего проекта 5 000 ₽ 3 рабочих дня в корзину
Дополнительная копия проекта формата А3 4 000 ₽ Готов к отправке в корзину
Электронная копия проекта (скан распечатанной версии) 4 000 ₽ 3 рабочих дня в корзину
Разрабатывается отдельно
Цена, руб. Сроки, дней
Адаптация фундамента (изменение типа фундамента) по запросу 14 рабочих дней
Дизайн интерьера (стоимость от 2200руб. за квад.метр площади) по запросу 30 рабочих дней
Внесение изменений в проект по запросу 20 рабочих дней
Инженерные разделы: ВК + ОВ + ЭО 40 000 ₽ 20 рабочих дней в корзину
Зеркалирование проекта (для которого нет зеркальной версии) 8 000 ₽ 5 рабочих дней в корзину
Разработка Генплана участка, в масштабе 1:250 7 500 ₽ 5 рабочих дней в корзину
Фэншуй дома 20 000 ₽ 14 рабочих дней в корзину
Фэншуй участка 15 000 ₽ 14 рабочих дней в корзину
Фэншуй полная консультация дом+участок с выездом на объект 100 000 ₽ 30 рабочих дней в корзину
Опции проекта вы можете заказать в корзине при оформлении заказа
Отзывы покупателей
Рейтинг покупателей
0 / 5 5 5 1
На основе 1 оценок покупателей
0%
0%
0%
0%
0%
Отзывы о проекте D5545
Отзыв о проекте D5545
Чтобы оставить отзыв, пожалуйста авторизуйтесь.
Подбор строительной компании
Не знаете кому доверить строительство дома? Мы можем помочь! Подберем для вас из сотен наших партнеров несколько компаний с лучшем соотношением цена/качество под конкретно ваш запрос.
Подобрать