Главная Проекты домов Проект 2 х этажного дома с гаражом

D1407 Проект 2 х этажного дома с гаражом

Сравнить проект В избранное
Проект 2 х этажного дома с гаражом / 1
Проект 2 х этажного дома с гаражом / 1
D1407
345 м²
Подготовка проекта:
Готов к отправке
Стоимость проекта
Купить проект
Задайте вопросы по проекту нашему архитектору
8 (800) 200-28-83
Время работы: пн-вс: с 9:00 до 20:00
Задать вопрос по проекту

Технические характеристики
Общие
Материал стен
Газобетон
Общая площадь
345 м²
Жилая площадь
107 м²
Приведенная площадь
331.07 м²
Количество жилых комнат/спален
3
Этажи
2 этажа
Гараж
Пристроенный гараж
Количество машин
1
Подвал / цокольный этаж
Без окон
Длина дома
21.9 м
Ширина дома
17.5 м
Кровля
Оцинкованный стальной лист гладкий
Облицовка внешних стен
Мокрая штукатурка
,
Облицовка камнем
Толщина несущих наружных стен
375-400 мм
Внутренние не несущие перегородки
Кирпичные
Фундамент
Ленточный заглубленный из ФБС
Терраса
Без террасы
Дополнительные
Окна
Окна до пола
Камин
Есть
Сауна/баня внутри
Есть
Бассейн
Есть
Площадь гостиной
33.7 м²
Площадь кухни
16.7 м²
Количество санузлов
2
Окно в ванной комнате
Есть
Котельная
Есть
Кладовая
3
Балкон / лоджия
Балкон
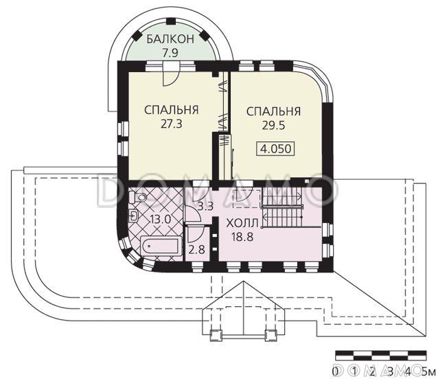
Планы помещений
Фасады
Описание проекта

Проект дома в стиле современного минимализма, который подойдет тем, кто любит совмещать красоту с практичностью. Необычные декоративные элементы экстерьера и высокие панорамные окна выделяют его среди остальных. 

На первом этаже дома располагается просторная гостиная, объединенная с кухней-столовой, одна из спален, технические помещения, а также большой закрытый бассейн. Мансардный этаж отведен под две спальных комнаты, в одной из которых предусмотрен выход на уютный балкончик. 

Преимущества и особенности:

  • В проекте предусмотрено наличие гаража с парковочным местом для одного автомобиля.

  • Спальная комната, расположенная на первом этаже, отлично подойдет для старших членов семьи.

  • Из бассейна хозяева дома сразу же смогут пройти на небольшую веранду.

Категории проекта: с гаражом для постоянного проживания пенобетон современные от 300 до 400 кв.м в европейском стиле с эркером из газобетона с цокольным этажом из газобетона с цокольным этажом и гаражом из газобетона с эркером и цоколем из газобетона с эркером из газобетона готовые из газобетона с гаражом с цокольным этажом двухэтажные двухэтажные с гаражом с подвалом с котельной двухэтажные из газобетона из газосиликатных блоков двухэтажные из пеноблоков из пеноблоков с гаражом с баней с бассейном загородные с четырехскатной крышей из керамзитобетонных блоков с баней и гаражом с баней и бассейном с камином с сауной с балконом из газобетона с баней двухэтажные с эркером из блоков двухэтажные из блоков из блоков с гаражом из блоков с эркером из пеноблоков с баней Проекты домов из пеноблоков с эркером загородные из газобетона Проекты двухэтажных домов с подвалом Проекты домов с тремя спальнями с гаражом под одной крышей каменные двухэтажные с сауной недорогие с бассейном и гаражом из пеноблоков загородные с эркером и гаражом сложной формы двухэтажные с камином двухэтажные с 3 спальнями двухэтажные с балконом двухэтажные с бассейном двухэтажные в современном стиле двухэтажные эконом класса из газобетона от 300 до 400 кв.м из газобетона с четырехскатной крышей из газобетона современные из газобетона с балконом из газобетона с котельной из газобетона готовые из газобетона с камином из газобетона с большой кухней из газобетона с тремя спальнями из газобетона недорогие из газобетона для постоянного проживания двухэтажные из газобетона с гаражом двухэтажные из газобетона без террасы двухэтажные из газобетона недорогие двухэтажные из газобетона с камином двухэтажные из газобетона с котельной двухэтажные из газобетона современные двухэтажные из газобетона с четырехскатной крышей двухэтажные из газобетона большие двухэтажные из газобетона с подвалом двухэтажные из газобетона с баней двухэтажные из газобетона с эркером двухэтажные из газобетона с 3 спальнями современные с гаражом современные с окнами в пол современные без террасы современные большие современные с подвалом из пеноблоков в современном стиле из пеноблоков с четырехскатной крышей из пеноблоков с окнами до пола из пеноблоков нестандартные из пеноблоков с балконом из пеноблоков для постоянного проживания из пеноблоков недорогие из пеноблоков готовые из пеноблоков с камином из пеноблоков с бассейном из пеноблоков от 300 до 400 м2 из пеноблоков большие из пеноблоков с 3 спальнями из пеноблоков с большой кухней недорогие двухэтажные недорогие с гаражом недорогие без террасы недорогие для постоянного проживания недорогие с четырехскатной крышей недорогие с окнами до пола недорогие с баней недорогие с котельной недорогие с балконом недорогие с камином недорогие сложной формы недорогие от 300 до 400 м2 из клееного бруса без гаража Показать все категории Скрыть категории

Похожие проекты
Состав проекта
Входит в стоимость
Цена, руб. Сроки, дней
Комплект архитектурно-строительных чертежей (АС) Входит в стоимость Готов к отправке
Готово к продаже
Цена, руб. Сроки, дней
Инженерные разделы: ВК + ОВ + ЭО 10 115 ₽ Готов к отправке в корзину
Разрабатывается отдельно
Цена, руб. Сроки, дней
Адаптация фундамента (изменение типа фундамента) по запросу 14 рабочих дней
Дизайн интерьера (стоимость от 2200руб. за квад.метр площади) по запросу 30 рабочих дней
Внесение изменений в проект по запросу 20 рабочих дней
Фэншуй дома 20 000 ₽ 14 рабочих дней в корзину
Фэншуй участка 15 000 ₽ 14 рабочих дней в корзину
Фэншуй полная консультация дом+участок с выездом на объект 100 000 ₽ 30 рабочих дней в корзину
Опции проекта вы можете заказать в корзине при оформлении заказа
Отзывы покупателей
Рейтинг покупателей
0 / 5 5 5 1
На основе 1 оценок покупателей
0%
0%
0%
0%
0%
Отзывы о проекте D1407
Отзыв о проекте D1407
Чтобы оставить отзыв, пожалуйста авторизуйтесь.
Подбор строительной компании
Не знаете кому доверить строительство дома? Мы можем помочь! Подберем для вас из сотен наших партнеров несколько компаний с лучшем соотношением цена/качество под конкретно ваш запрос.
Подобрать