Главная Проекты домов Проект дома с 3 спальнями, кабинетом, гаражом, сауной и спортзалом

D4768 Проект дома с 3 спальнями, кабинетом, гаражом, сауной и спортзалом

Сравнить проект В избранное
Технические характеристики
Общие
Материал стен
Газобетон
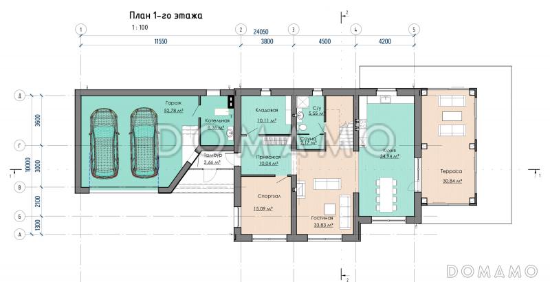
Общая площадь
316 м²
Площадь застройки
256 м²
Приведенная площадь
309.54 м²
Количество жилых комнат/спален
4
Этажи
2 этажа
Гараж
Пристроенный гараж
Количество машин
2
Подвал / цокольный этаж
Без подвала
Длина дома
24.05 м
Ширина дома
10 м
Высота в коньке
9.266 м
Облицовка внешних стен
Деревянная вагонка
,
Мокрая штукатурка
Межэтажные перекрытия
Монолитные
Внутренние не несущие перегородки
Газобетонные
Фундамент
Монолитная ж/бетонная плита
Терраса
Терраса застекленная (веранда)
Дополнительные
Окна
Окна до пола
Камин
Есть
Сауна/баня внутри
Есть
Площадь гостиной
33.83 м²
Площадь кухни
34.94 м²
Количество санузлов
3
Окно в ванной комнате
Есть
Котельная
Есть
Кабинет
Есть
Постирочная
Есть
Спортзал / детский / игровой зал
Есть
Хозяйский санузел
Есть
Хозяйская гардеробная
Есть
Кладовая
2
Планы помещений
Фасады
Описание проекта
Компания Domamo предлагает проект дома с 3 спальнями, кабинетом, гаражом, сауной и спортзалом D4768. Общая площадь - 316 м2, размер - 24.05х10 м. Фундамент - монолитная ж/бетонная плита, кровля - , внешняя отделка - деревянная вагонка мокрая штукатурка. Для заказа проекта или внесения изменений свяжитесь с нами с помощью форм обратной связи на сайте или по телефону +7 (800) 200-28-83.
Категории проекта: с гаражом для постоянного проживания пенобетон современные от 200 до 300 кв.м в европейском стиле с террасой из газобетона готовые из газобетона с гаражом двухэтажные двухэтажные с гаражом с котельной двухэтажные из газобетона из газосиликатных блоков двухэтажные из пеноблоков из пеноблоков с гаражом с баней загородные из керамзитобетонных блоков с баней и гаражом с камином с сауной с гардеробной с верандой из газобетона с баней из газобетона с террасой из блоков двухэтажные из блоков из блоков с гаражом из пеноблоков с баней из пеноблоков с террасой загородные из газобетона Проекты двухэтажных домов с террасой Проекты двухэтажных домов с верандой с террасой и камином с кабинетом с гаражом под одной крышей с гаражом на 2 машины с гаражом и террасой двухэтажные с террасой и гаражом с 4 спальнями двухэтажные с сауной из пеноблоков загородные от 200 до 250 м сложной формы двухэтажные с камином двухэтажные с 4 спальнями двухэтажные в современном стиле из газобетона от 200 до 300 кв.м из газобетона современные из газобетона с котельной из газобетона готовые из газобетона с камином из газобетона с большой кухней из газобетона с четырьмя спальнями из газобетона с кабинетом из газобетона с изолированной кухней из газобетона для постоянного проживания двухэтажные из газобетона с гаражом двухэтажные из газобетона с террасой двухэтажные из газобетона с камином двухэтажные из газобетона с прачечной двухэтажные из газобетона с кабинетом двухэтажные из газобетона с котельной двухэтажные из газобетона современные двухэтажные из газобетона с вальмовой крышей двухэтажные из газобетона без подвала двухэтажные из газобетона с изолированной кухней двухэтажные из газобетона с баней двухэтажные из газобетона с 4 спальнями современные с гаражом современные с окнами в пол современные с террасой из пеноблоков в современном стиле из пеноблоков с вальмовой крышей из пеноблоков с окнами до пола из пеноблоков нестандартные из пеноблоков для постоянного проживания из пеноблоков готовые из пеноблоков с камином из пеноблоков от 200 до 300 м2 из пеноблоков с 4 спальнями из пеноблоков с большой кухней из пеноблоков с изолированной кухней из клееного бруса без гаража Показать все категории Скрыть категории

Похожие проекты
Состав проекта
Входит в стоимость
Цена, руб. Сроки, дней
Комплект архитектурно-строительных чертежей (АС) Входит в стоимость 3 рабочих дня
Разрабатывается отдельно
Цена, руб. Сроки, дней
Адаптация фундамента (изменение типа фундамента) по запросу 14 рабочих дней
Дизайн интерьера (стоимость от 2200руб. за квад.метр площади) по запросу 30 рабочих дней
Внесение изменений в проект по запросу 20 рабочих дней
Фэншуй дома 20 000 ₽ 14 рабочих дней в корзину
Фэншуй участка 15 000 ₽ 14 рабочих дней в корзину
Фэншуй полная консультация дом+участок с выездом на объект 100 000 ₽ 30 рабочих дней в корзину
Опции проекта вы можете заказать в корзине при оформлении заказа
Предложения строителей Выбрать регион
Минимальная
10 524 360 ₽
Стандарт
13 000 680 ₽
Под чистовую отделку
17 024 700 ₽
Показать подробные комплектации
Минимальная
25 784 682 ₽
Стандарт
30 334 920 ₽
Под чистовую отделку
39 435 396 ₽
Показать подробные комплектации
Минимальная
12 282 547 ₽
Стандарт
18 225 715 ₽
Под чистовую отделку
28 923 417 ₽
Показать подробные комплектации
Минимальная
10 833 900 ₽
Стандарт
13 000 680 ₽
Под чистовую отделку
14 548 380 ₽
Показать подробные комплектации
Минимальная
9 990 713 ₽
Стандарт
14 662 909 ₽
Под чистовую отделку
15 687 487 ₽
Показать подробные комплектации
Минимальная
8 233 764 ₽
Стандарт
9 410 016 ₽
Под чистовую отделку
12 350 646 ₽
Показать подробные комплектации
Подбор строительной компании
Не знаете кому доверить строительство дома? Мы можем помочь! Подберем для вас из сотен наших партнеров несколько компаний с лучшем соотношением цена/качество под конкретно ваш запрос.
Подобрать
Посмотреть еще 32 компании Свернуть
Отзывы покупателей
Рейтинг покупателей
0 / 5 5 5 1
На основе 1 оценок покупателей
0%
0%
0%
0%
0%
Отзывы о проекте D4768
Отзыв о проекте D4768
Чтобы оставить отзыв, пожалуйста авторизуйтесь.
Подбор строительной компании
Не знаете кому доверить строительство дома? Мы можем помочь! Подберем для вас из сотен наших партнеров несколько компаний с лучшем соотношением цена/качество под конкретно ваш запрос.
Подобрать