Главная Проекты домов Проект дома с 3 спальнями, сауной и печью в кухне-гостиной

D629 Проект дома с 3 спальнями, сауной и печью в кухне-гостиной

Сравнить проект В избранное
Технические характеристики
Общие
Материал стен
Газобетон
Общая площадь
155 м²
Площадь застройки
190 м²
Приведенная площадь
128.53 м²
Количество жилых комнат/спален
3
Этажи
1 этаж
Гараж
Нет гаража
Подвал / цокольный этаж
Без подвала
Длина дома
16.71 м
Ширина дома
7.75 м
Высота в коньке
5.671 м
Кровля
Оцинкованный стальной лист профилированный
Облицовка внешних стен
Деревянная вагонка
,
Мокрая штукатурка
Межэтажные перекрытия
Монолитные
Внутренние не несущие перегородки
Газобетонные
Фундамент
Монолитная ж/бетонная плита
Терраса
Терраса крытая
Дополнительные
Окна
Окна до пола
,
Панорамные окна
Мансардные окна
Есть
Сауна/баня внутри
Есть
Площадь гостиной
20 м²
Площадь кухни
20.6 м²
Количество санузлов
2
Окно в ванной комнате
Есть
Котельная
Есть
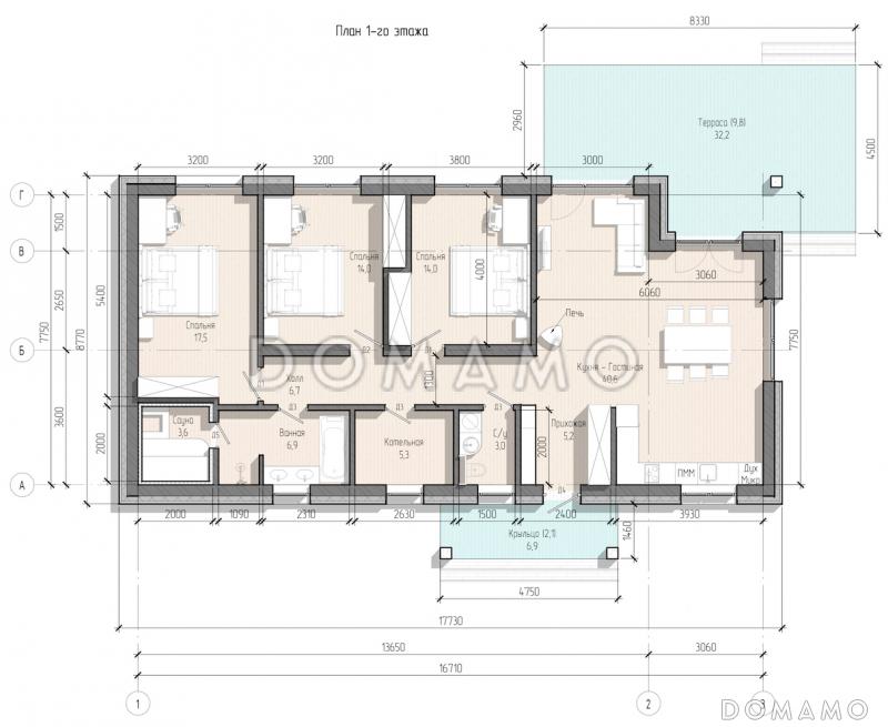
Планы помещений
Фасады
Описание проекта
Компания Domamo предлагает проект дома с 3 спальнями, сауной и печью в кухне-гостиной D629. Общая площадь - 155 м2, размер - 16.71х7.75 м. Фундамент - монолитная ж/бетонная плита, кровля - оцинкованный стальной лист профилированный, внешняя отделка - деревянная вагонка мокрая штукатурка. Для заказа проекта или внесения изменений свяжитесь с нами с помощью форм обратной связи на сайте или по телефону +7 (800) 200-28-83.
Категории проекта: для постоянного проживания пенобетон в английском стиле в скандинавском стиле для узких участков от 100 до 200 кв.м в европейском стиле с террасой из бруса в стиле замка из газобетона в стиле хай-тек из газобетона в стиле шале из газобетона в английском стиле из газобетона в немецком стиле из газобетона одноэтажные из пеноблоков готовые в финском стиле одноэтажные одноэтажные до 150 кв. м. одноэтажные с котельной с котельной одноэтажные из газобетона из газосиликатных блоков с баней до 150 кв.м до 200 кв.м с двухскатной крышей загородные из керамзитобетонных блоков с сауной узкие прямоугольные с печью с панорамным остеклением из газобетона с баней из газобетона с террасой из блоков одноэтажные из блоков из пеноблоков с баней из пеноблоков с террасой загородные из газобетона Проекты одноэтажных домов с террасой Типовые проекты загородных одноэтажных домов Проекты одноэтажных домов с баней без гаража одноэтажные без гаража одноэтажные с тремя спальнями Проекты домов с тремя спальнями одноэтажных из керамзитобетонных блоков одноэтажные финские с панорамными окнами и террасой одноэтажные до 200 кв м до 140 кв м недорогие до 130 кв м из пеноблоков загородные одноэтажные с двухскатной крышей одноэтажные прямоугольные одноэтажные с мансардными окнами одноэтажные с панорамными окнами одноэтажные с окнами в пол одноэтажные бюджетные одноэтажные с 2 санузлами одноэтажные до 180 м2 одноэтажные из газобетона с террасой одноэтажные из газобетона до 150 кв. м одноэтажные из газобетона с мансардой одноэтажные из газобетона с 3 спальнями скандинавский стиль панорамные окна окна в пол двухскатная крыша прямоугольные готовые проекты для постоянного проживания с сауной с котельной из газобетона до 150 кв.м из газобетона до 200 кв.м из газобетона от 100 до 200 кв.м из газобетона с двухскатной крышей из газобетона в скандинавском стиле из газобетона с панорамными окнами из газобетона с котельной из газобетона прямоугольные из газобетона готовые из газобетона с большой кухней из газобетона с тремя спальнями из газобетона недорогие из газобетона для постоянного проживания скандинавские для постоянного проживания скандинавские без гаража скандинавские с окнами в пол скандинавские с панорамными окнами скандинавские с террасой скандинавские с большой кухней скандинавские готовые скандинавские прямоугольные скандинавские до 150 кв. м скандинавские от 100 до 200 м2 скандинавские с двухскатной крышей скандинавские недорогие скандинавские с котельной до 150 кв.м для постоянного проживания до 150 кв.м без гаража до 150 кв.м с двухскатной крышей до 150 кв.м с окнами до пола до 150 кв.м с панорамными окнами до 150 кв.м готовые до 150 кв.м с мансардными окнами до 150 кв.м прямоугольные до 150 кв.м с котельной до 150 кв.м с баней до 150 кв.м с террасой до 150 кв.м без подвала до 150 кв.м с 3 спальнями до 150 кв.м с большой кухней из пеноблоков в скандинавском стиле из пеноблоков с двухскатной крышей из пеноблоков с окнами до пола из пеноблоков с панорамными окнами из пеноблоков прямоугольные из пеноблоков для постоянного проживания из пеноблоков недорогие из пеноблоков готовые из пеноблоков до 150 м кв. из пеноблоков от 100 до 200 м2 из пеноблоков с 3 спальнями из пеноблоков с большой кухней недорогие без гаража недорогие с террасой недорогие для постоянного проживания недорогие с двухскатной крышей недорогие с окнами до пола недорогие с панорамными окнами недорогие с баней недорогие с котельной недорогие с мансардными окнами недорогие прямоугольные недорогие до 150 м2 недорогие от 100 до 200 м2 из клееного бруса без гаража Показать все категории Скрыть категории

Похожие проекты
Состав проекта
Входит в стоимость
Цена, руб. Сроки, дней
Комплект архитектурно-строительных чертежей (АС) Входит в стоимость 3 рабочих дня
Разрабатывается отдельно
Цена, руб. Сроки, дней
Адаптация фундамента (изменение типа фундамента) по запросу 14 рабочих дней
Дизайн интерьера (стоимость от 2200руб. за квад.метр площади) по запросу 30 рабочих дней
Внесение изменений в проект по запросу 20 рабочих дней
Фэншуй дома 20 000 ₽ 14 рабочих дней в корзину
Фэншуй участка 15 000 ₽ 14 рабочих дней в корзину
Фэншуй полная консультация дом+участок с выездом на объект 100 000 ₽ 30 рабочих дней в корзину
Опции проекта вы можете заказать в корзине при оформлении заказа
Предложения строителей Выбрать регион
Минимальная
4 370 020 ₽
Стандарт
5 398 260 ₽
Под чистовую отделку
7 069 150 ₽
Показать подробные комплектации
Минимальная
13 110 060 ₽
Стандарт
15 423 600 ₽
Под чистовую отделку
20 050 680 ₽
Показать подробные комплектации
Минимальная
6 574 309 ₽
Стандарт
9 755 427 ₽
Под чистовую отделку
15 481 438 ₽
Показать подробные комплектации
Минимальная
4 498 550 ₽
Стандарт
5 398 260 ₽
Под чистовую отделку
6 040 910 ₽
Показать подробные комплектации
Минимальная
4 148 434 ₽
Стандарт
6 088 466 ₽
Под чистовую отделку
6 513 900 ₽
Показать подробные комплектации
Минимальная
4 498 550 ₽
Стандарт
5 141 200 ₽
Под чистовую отделку
6 747 825 ₽
Показать подробные комплектации
Подбор строительной компании
Не знаете кому доверить строительство дома? Мы можем помочь! Подберем для вас из сотен наших партнеров несколько компаний с лучшем соотношением цена/качество под конкретно ваш запрос.
Подобрать
Посмотреть еще 32 компании Свернуть
Отзывы покупателей
Рейтинг покупателей
0 / 5 5 5 1
На основе 1 оценок покупателей
0%
0%
0%
0%
0%
Отзывы о проекте D629
Отзыв о проекте D629
Чтобы оставить отзыв, пожалуйста авторизуйтесь.
Подбор строительной компании
Не знаете кому доверить строительство дома? Мы можем помочь! Подберем для вас из сотен наших партнеров несколько компаний с лучшем соотношением цена/качество под конкретно ваш запрос.
Подобрать