Главная Проекты домов Проект загородного дома с шатровой крышей и цокольным этажом

D5825 Проект загородного дома с шатровой крышей и цокольным этажом

Сравнить проект В избранное
Технические характеристики
Общие
Материал стен
Газобетон
Общая площадь
185 м²
Жилая площадь
111 м²
Приведенная площадь
186.58 м²
Количество жилых комнат/спален
4
Этажи
1 этаж + мансарда
Гараж
Нет гаража
Количество машин
нет
Подвал / цокольный этаж
С окнами
Длина дома
12.89 м
Ширина дома
10.78 м
Высота в коньке
10.54 м
Кровля
Гибкая черепица
Облицовка внешних стен
Облицовочный кирпич
Толщина несущих наружных стен
375 мм
Межэтажные перекрытия
По деревянным балкам
Внутренние не несущие перегородки
Газобетонные
Фундамент
Монолитная ж/бетонная плита
Терраса
Терраса крытая
Дополнительные
Камин
Есть
Сауна/баня внутри
Нет
Купель
Есть
Площадь гостиной
22.7 м²
Площадь кухни
10.1 м²
Количество санузлов
2
Окно в ванной комнате
Есть
Котельная
Есть
Кладовая
2
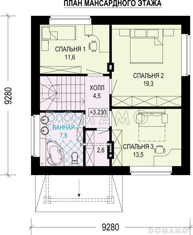
Планы помещений
Фасады
Описание проекта
Компания Domamo предлагает проект загородного дома с шатровой крышей и цокольным этажом D5825. Общая площадь - 185 м2, размер - 12.89х10.78 м. Фундамент - монолитная ж/бетонная плита, кровля - гибкая черепица, внешняя отделка - облицовочный кирпич. Для заказа проекта или внесения изменений свяжитесь с нами с помощью форм обратной связи на сайте или по телефону +7 (800) 200-28-83.
Категории проекта: с мансардой для постоянного проживания пенобетон современные от 100 до 200 кв.м в европейском стиле с террасой из пеноблоков с мансардой из газобетона с цокольным этажом из газобетона в немецком стиле из газобетона готовые из газобетона с мансардой с цокольным этажом одноэтажные с мансардой одноэтажные с цокольным этажом одноэтажные с котельной с котельной одноэтажные из газобетона из газосиликатных блоков с цокольным этажом и мансардой до 200 кв.м загородные с ломаной крышей из керамзитобетонных блоков с камином прямоугольные в стиле эклектика из газобетона с террасой из блоков одноэтажные из блоков из блоков с мансардой из пеноблоков с цокольным этажом из пеноблоков с террасой загородные из газобетона Проекты одноэтажных домов с террасой Типовые проекты загородных одноэтажных домов без гаража одноэтажные без гаража с террасой и камином облицованные кирпичом одноэтажных из керамзитобетонных блоков одноэтажные с 4 спальнями с мансардой и террасой полутораэтажные с 4 спальнями одноэтажные до 200 кв м из пеноблоков загородные с мансардой с котельной с мансардой с камином с мансардой современные с мансардой в европейском стиле с мансардой прямоугольные с мансардой готовые с мансардой для постоянного проживания с мансардой до 200 кв.м одноэтажные из газобетона с террасой одноэтажные из газобетона с мансардой одноэтажные из газобетона с 4 спальнями с подвалом из газобетона до 200 кв.м из газобетона от 100 до 200 кв.м из газобетона в европейском стиле из газобетона современные из газобетона с котельной из газобетона прямоугольные из газобетона готовые из газобетона с камином из газобетона с четырьмя спальнями из газобетона для постоянного проживания двухэтажные из газобетона без гаража двухэтажные из газобетона с террасой двухэтажные из газобетона с камином двухэтажные из газобетона с котельной двухэтажные из газобетона в европейском стиле двухэтажные из газобетона современные двухэтажные из газобетона до 200 кв. м двухэтажные из газобетона с подвалом двухэтажные из газобетона с 4 спальнями из газобетона с мансардой современные из газобетона с мансардой в стиле эклектика из газобетона с мансардой в европейском стиле из газобетона с мансардой с террасой из газобетона с мансардой с камином из газобетона с мансардой для постоянного проживания из газобетона с мансардой готовые из газобетона с мансардой с 4 спальнями из газобетона с мансардой прямоугольные одноэтажные с мансардой для постоянного проживания одноэтажные с мансардой в европейском стиле одноэтажные с мансардой современные одноэтажные с мансардой в стиле эклектика современные без гаража современные с террасой современные от 100 до 200 кв. м современные с подвалом европейские для постоянного проживания европейские дорогие европейские готовые европейские с подвалом европейские с террасой европейские с 2 санузлами европейские с котельной европейские с кладовой европейские прямоугольные европейские с камином европейские 100-200 м2 из пеноблоков в современном стиле из пеноблоков в стиле эклектика из пеноблоков в европейском стиле из пеноблоков прямоугольные из пеноблоков для постоянного проживания из пеноблоков готовые из пеноблоков с камином из пеноблоков от 100 до 200 м2 из пеноблоков с 4 спальнями из клееного бруса без гаража Показать все категории Скрыть категории

Похожие проекты
Состав проекта
Входит в стоимость
Цена, руб. Сроки, дней
Комплект архитектурно-строительных чертежей (АС) Входит в стоимость 3 рабочих дня
Готово к продаже
Цена, руб. Сроки, дней
Зеркальная версия проекта Входит в стоимость 3 рабочих дня
Паспорт рабочего проекта 5 000 ₽ 3 рабочих дня в корзину
Инженерные разделы: ВК + ОВ + ЭО 25 000 ₽ 3 рабочих дня в корзину
Дополнительная копия проекта формата А3 3 000 ₽ 3 рабочих дня в корзину
Две дополнительные копии проекта формата А3 + 1 паспорт рабочего проекта 10 100 ₽ 3 рабочих дня в корзину
Электронная копия проекта (скан распечатанной версии) 4 000 ₽ 3 рабочих дня в корзину
Разрабатывается отдельно
Цена, руб. Сроки, дней
Адаптация фундамента (изменение типа фундамента) по запросу 14 рабочих дней
Дизайн интерьера (стоимость от 2200руб. за квад.метр площади) по запросу 30 рабочих дней
Внесение изменений в проект по запросу 20 рабочих дней
Фэншуй дома 20 000 ₽ 14 рабочих дней в корзину
Фэншуй участка 15 000 ₽ 14 рабочих дней в корзину
Фэншуй полная консультация дом+участок с выездом на объект 100 000 ₽ 30 рабочих дней в корзину
Опции проекта вы можете заказать в корзине при оформлении заказа
Предложения строителей Выбрать регион
Минимальная
6 343 720 ₽
Стандарт
7 836 360 ₽
Под чистовую отделку
10 261 900 ₽
Показать подробные комплектации
Минимальная
15 859 300 ₽
Стандарт
18 658 000 ₽
Под чистовую отделку
24 255 400 ₽
Показать подробные комплектации
Минимальная
8 444 610 ₽
Стандарт
12 530 712 ₽
Под чистовую отделку
19 885 696 ₽
Показать подробные комплектации
Минимальная
6 530 300 ₽
Стандарт
7 836 360 ₽
Под чистовую отделку
8 769 260 ₽
Показать подробные комплектации
Минимальная
6 022 056 ₽
Стандарт
8 838 294 ₽
Под чистовую отделку
9 455 874 ₽
Показать подробные комплектации
Минимальная
5 485 452 ₽
Стандарт
6 269 088 ₽
Под чистовую отделку
8 228 178 ₽
Показать подробные комплектации
Подбор строительной компании
Не знаете кому доверить строительство дома? Мы можем помочь! Подберем для вас из сотен наших партнеров несколько компаний с лучшем соотношением цена/качество под конкретно ваш запрос.
Подобрать
Посмотреть еще 32 компании Свернуть
Отзывы покупателей
Рейтинг покупателей
0 / 5 5 5 1
На основе 1 оценок покупателей
0%
0%
0%
0%
0%
Отзывы о проекте D5825
Отзыв о проекте D5825
Чтобы оставить отзыв, пожалуйста авторизуйтесь.
Подбор строительной компании
Не знаете кому доверить строительство дома? Мы можем помочь! Подберем для вас из сотен наших партнеров несколько компаний с лучшем соотношением цена/качество под конкретно ваш запрос.
Подобрать