D5091 ИП Леонов О.В.

Сравнить проект В избранное
ИП Леонов О.В. / 1
ИП Леонов О.В. / 1
D5091
Проект с подрядом
Компания: ИП Леонов О.В.
Стоимость строительства
не указана
Заказать подробную смету
+7 (916) XXX-XX-XX Показать телефон
Задать вопрос по проекту
Технические характеристики
Общие
Материал стен
Газобетон
Приведенная площадь
106.766 м²
Количество жилых комнат/спален
5
Этажи
1 этаж + мансарда
Гараж
Нет гаража
Количество машин
нет
Подвал / цокольный этаж
Без подвала
Длина дома
9.000 м
Ширина дома
9.000 м
Высота в коньке
7.000 м
Кровля
Гибкая черепица
Облицовка внешних стен
Мокрая штукатурка
,
Облицовка камнем
,
Фасадные панели
Толщина несущих наружных стен
200 мм
Межэтажные перекрытия
По деревянным балкам
Внутренние не несущие перегородки
Каркасно-обшивные
Фундамент
Ленточный монолитный
Терраса
Терраса крытая
Дополнительные
Площадь кухни
19.8 м²
Количество санузлов
2
Котельная
Есть
Балкон / лоджия
Балкон
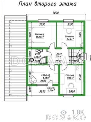
Планы помещений
Описание проекта
Компания Domamo предлагает проект дома с мансардой ИП Леонов О.В. D5091. Размер - 9х9 м. Фундамент - ленточный заглубленный монолитный, кровля - гибкая черепица, внешняя отделка - фасадные панели, мокрая штукатурка, облицовка камнем. Для заказа проекта или внесения изменений свяжитесь с нами с помощью форм обратной связи на сайте или по телефону +7 (812) 243-14-70.
Категории проекта: с мансардой для постоянного проживания пенобетон дачные дома с террасой из пеноблоков с мансардой из газобетона из газобетона с мансардой одноэтажные с мансардой одноэтажные с котельной с котельной одноэтажные из газобетона из газосиликатных блоков дачные с мансардой дачные из пеноблоков дачные с верандой 9 на 9 с мансардой 9х9 с двухскатной крышей 6х10 8х9 9х10 9х12 загородные из керамзитобетонных блоков прямоугольные с балконом из газобетона с террасой из блоков одноэтажные из блоков из блоков с мансардой из пеноблоков с террасой загородные из газобетона Проекты одноэтажных домов с террасой дачные одноэтажные Типовые проекты загородных одноэтажных домов без гаража одноэтажные без гаража дачные с террасой одноэтажных из керамзитобетонных блоков одноэтажные 9 на 9 с мансардой и террасой полутораэтажные дачные с мансардой и верандой одноэтажные шале каменные 9 на 12 с мансардой из пеноблоков 9 на 9 с балконом и террасой из газобетона 9x9 из пеноблоков загородные с 5 спальнями с мансардой с котельной с мансардой с двухскатной крышей с мансардой с балконом с мансардой прямоугольные с мансардой для постоянного проживания одноэтажные из газобетона с террасой одноэтажные из газобетона с мансардой из газобетона с двухскатной крышей из газобетона с балконом из газобетона с котельной из газобетона прямоугольные из газобетона с подрядом из газобетона с большой кухней из газобетона дачные из газобетона для постоянного проживания двухэтажные из газобетона без гаража двухэтажные из газобетона с террасой двухэтажные из газобетона с котельной двухэтажные из газобетона с двухскатной крышей двухэтажные из газобетона без подвала из газобетона с мансардой с балконом из газобетона с мансардой с террасой из газобетона с мансардой для постоянного проживания из газобетона с мансардой дачные из газобетона с мансардой с двухскатной крышей из газобетона с мансардой с большой кухней из газобетона с мансардой прямоугольные одноэтажные с мансардой для постоянного проживания одноэтажные с мансардой дачные одноэтажные с мансардой с большой кухней одноэтажные с мансардой с балконом из пеноблоков с двухскатной крышей из пеноблоков прямоугольные из пеноблоков с балконом из пеноблоков для постоянного проживания из пеноблоков с подрядом из пеноблоков с большой кухней из клееного бруса без гаража Проекты домов с подрядом Показать все категории Скрыть категории

Похожие проекты
Состав проекта
Входит в стоимость
Цена, руб. Сроки, дней
Комплект архитектурно-строительных чертежей (АС) Входит в стоимость Готов к отправке
Разрабатывается отдельно
Цена, руб. Сроки, дней
Адаптация фундамента (изменение типа фундамента) по запросу 14 рабочих дней
Дизайн интерьера (стоимость от 2200руб. за квад.метр площади) по запросу 30 рабочих дней
Внесение изменений в проект по запросу 20 рабочих дней
Фэншуй дома 20 000 ₽ 14 рабочих дней в корзину
Фэншуй участка 15 000 ₽ 14 рабочих дней в корзину
Фэншуй полная консультация дом+участок с выездом на объект 100 000 ₽ 30 рабочих дней в корзину
Опции проекта вы можете заказать в корзине при оформлении заказа
Комплектации
Отзывы покупателей
Рейтинг покупателей
0 / 5 5 5 1
На основе 1 оценок покупателей
0%
0%
0%
0%
0%
Отзывы о проекте D5091
Отзыв о проекте D5091
Чтобы оставить отзыв, пожалуйста авторизуйтесь.
Подбор строительной компании
Не знаете кому доверить строительство дома? Мы можем помочь! Подберем для вас из сотен наших партнеров несколько компаний с лучшем соотношением цена/качество под конкретно ваш запрос.
Подобрать