Главная Проекты домов Проект одноэтажного дома с мансардой и ломанной крышей

D5062 Проект одноэтажного дома с мансардой и ломанной крышей

Сравнить проект В избранное
Технические характеристики
Общие
Материал стен
Кирпич
Общая площадь
133.5 м²
Жилая площадь
76.9 м²
Площадь застройки
107.8 м²
Приведенная площадь
114.46 м²
Количество жилых комнат/спален
3
Этажи
1 этаж + мансарда
Гараж
Нет гаража
Количество машин
нет
Подвал / цокольный этаж
Без подвала
Длина дома
13.5 м
Ширина дома
10.1 м
Высота в коньке
9.3 м
Кровля
Гибкая черепица
Облицовка внешних стен
Мокрая штукатурка
Толщина несущих наружных стен
380 мм
Межэтажные перекрытия
По деревянным балкам
Внутренние не несущие перегородки
Кирпичные
Фундамент
Малозаглубленные ростверки
Терраса
Терраса крытая
Дополнительные
Окна
Окна до пола
Мансардные окна
Есть
Камин
Есть
Сауна/баня внутри
Нет
Купель
Есть
Площадь гостиной
23.3 м²
Площадь кухни
7.8 м²
Количество санузлов
2
Окно в ванной комнате
Есть
Котельная
Есть
Кладовая
1
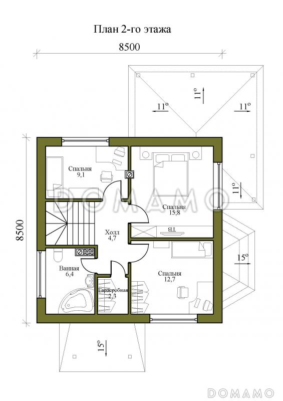
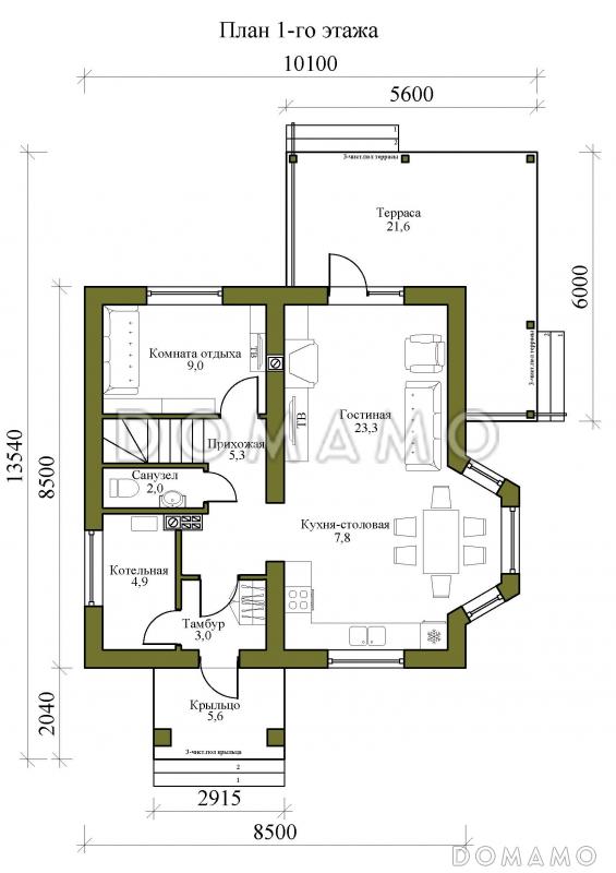
Планы помещений
Описание проекта
Компания Domamo предлагает проект одноэтажного дома с мансардой и ломанной крышей D5062. Общая площадь - 133.5 м2, размер - 13.5х10.1 м. Фундамент - малозаглубленные ростверки, кровля - гибкая черепица, внешняя отделка - мокрая штукатурка. Для заказа проекта или внесения изменений свяжитесь с нами с помощью форм обратной связи на сайте или по телефону +7 (800) 200-28-83.
Категории проекта: с мансардой для постоянного проживания кирпич в классическом стиле современные дачные дома гостевые от 100 до 200 кв.м кирпичные дома хай-тек классические кирпичные дома кирпичные дома с мансардой в европейском стиле кирпичные европейские дома с эркером кирпичные дома с эркером с террасой из кирпича с террасой готовые гостевые из кирпича дачные из кирпича загородные из кирпича одноэтажные из кирпича одноэтажные из кирпича с мансардой одноэтажные кирпичные с котельной одноэтажные с мансардой кирпичные площадью до 150 кв. м. кирпичные с котельной одноэтажные до 150 кв. м. одноэтажные с котельной с котельной кирпичные до 200 кв.м дачные с мансардой дачные с верандой до 150 кв.м до 200 кв.м загородные с ломаной крышей с мансардной крышей с камином с эркером и мансардой современные кирпичные Проекты одноэтажных домов с эркером Проекты одноэтажных домов с террасой дачные одноэтажные Типовые проекты загородных одноэтажных домов без гаража одноэтажные без гаража дачные с террасой с террасой и камином дачные с камином одноэтажные с тремя спальнями Проекты домов с тремя спальнями с мансардой до 150 кв м с мансардой и террасой полутораэтажные дачные с мансардой и верандой одноэтажные до 200 кв м до 140 кв м полутораэтажные из кирпича сложной формы одноэтажные с мансардными окнами с мансардой с котельной с мансардой с камином с мансардой в классическом стиле с мансардой современные с мансардой в европейском стиле с мансардой с окнами до пола с мансардой с мансардными окнами с мансардой сложной формы с мансардой готовые с мансардой для постоянного проживания с мансардой гостевые с мансардой до 200 кв.м с мансардой от 100 до 150 кв.м одноэтажные из кирпича с 3 спальнями готовые для постоянного проживания гостевые дачные с камином без гаража без подвала в европейском стиле классический стиль современные сложной формы одноэтажные с мансардой для постоянного проживания одноэтажные с мансардой гостевые одноэтажные с мансардой дачные одноэтажные с мансардой в европейском стиле одноэтажные с мансардой классические одноэтажные с мансардой современные современные без гаража современные с окнами в пол современные с террасой современные до 150 кв. м современные от 100 до 200 кв. м классические для постоянного проживания классические гостевые классические дачные классические без гаража классические с 3 спальнями классические с окнами в пол классические с террасой классические готовые классические с котельной классические без подвала классические с 2 санузлами классические нестандартные классические с камином классические с мансардной крышей европейские для постоянного проживания европейские дачные европейские гостевые европейские готовые европейские без подвала европейские с террасой европейские с 2 санузлами европейские с котельной европейские с кладовой европейские с мансардными окнами европейские с окнами в пол европейские с мансардной крышей европейские с камином европейские до 150 м2 европейские 100-200 м2 до 150 кв.м для постоянного проживания до 150 кв.м гостевые до 150 кв.м дачные до 150 кв.м без гаража до 150 кв.м с окнами до пола до 150 кв.м классические до 150 кв.м готовые до 150 кв.м с мансардными окнами до 150 кв.м с котельной до 150 кв.м без бани до 150 кв.м с террасой до 150 кв.м без подвала до 150 кв.м с 3 спальнями до 150 кв.м с камином недорогие с мансардой недорогие кирпичные недорогие без гаража недорогие с террасой недорогие для постоянного проживания недорогие гостевые недорогие дачные недорогие с мансардной крышей недорогие с окнами до пола недорогие без бани недорогие с котельной недорогие с мансардными окнами недорогие с камином недорогие сложной формы недорогие до 150 м2 недорогие от 100 до 200 м2 из клееного бруса без гаража Показать все категории Скрыть категории

Похожие проекты
Состав проекта
Входит в стоимость
Цена, руб. Сроки, дней
Комплект архитектурно-строительных чертежей (АС) Входит в стоимость Готов к отправке
Готово к продаже
Цена, руб. Сроки, дней
Паспорт рабочего проекта 5 000 ₽ 3 рабочих дня в корзину
Дополнительная копия проекта формата А3 4 000 ₽ Готов к отправке в корзину
Электронная копия проекта (скан распечатанной версии) 4 000 ₽ 3 рабочих дня в корзину
Разрабатывается отдельно
Цена, руб. Сроки, дней
Адаптация фундамента (изменение типа фундамента) по запросу 14 рабочих дней
Дизайн интерьера (стоимость от 2200руб. за квад.метр площади) по запросу 30 рабочих дней
Внесение изменений в проект по запросу 20 рабочих дней
Инженерные разделы: ВК + ОВ + ЭО 40 000 ₽ 20 рабочих дней в корзину
Зеркалирование проекта (для которого нет зеркальной версии) 8 000 ₽ 5 рабочих дней в корзину
Разработка Генплана участка, в масштабе 1:250 7 500 ₽ 5 рабочих дней в корзину
Фэншуй дома 20 000 ₽ 14 рабочих дней в корзину
Фэншуй участка 15 000 ₽ 14 рабочих дней в корзину
Фэншуй полная консультация дом+участок с выездом на объект 100 000 ₽ 30 рабочих дней в корзину
Опции проекта вы можете заказать в корзине при оформлении заказа
Предложения строителей Москва и Московская область
Минимальная
4 006 100 ₽
Стандарт
4 921 780 ₽
Под чистовую отделку
6 409 760 ₽
Показать подробные комплектации
Минимальная
11 674 920 ₽
Стандарт
13 735 200 ₽
Под чистовую отделку
17 855 760 ₽
Показать подробные комплектации
Минимальная
6 043 488 ₽
Стандарт
8 876 373 ₽
Под чистовую отделку
13 975 566 ₽
Показать подробные комплектации
Минимальная
4 586 412 ₽
Стандарт
5 266 304 ₽
Под чистовую отделку
6 743 067 ₽
Показать подробные комплектации
Минимальная
2 672 497 ₽
Стандарт
3 309 467 ₽
Под чистовую отделку
3 983 351 ₽
Показать подробные комплектации
Подбор строительной компании
Не знаете кому доверить строительство дома? Мы можем помочь! Подберем для вас из сотен наших партнеров несколько компаний с лучшем соотношением цена/качество под конкретно ваш запрос.
Подобрать
Посмотреть еще 20 компаний Свернуть
Отзывы покупателей
Рейтинг покупателей
0 / 5 5 5 1
На основе 1 оценок покупателей
0%
0%
0%
0%
0%
Отзывы о проекте D5062
Отзыв о проекте D5062
Чтобы оставить отзыв, пожалуйста авторизуйтесь.
Подбор строительной компании
Не знаете кому доверить строительство дома? Мы можем помочь! Подберем для вас из сотен наших партнеров несколько компаний с лучшем соотношением цена/качество под конкретно ваш запрос.
Подобрать