Главная Проекты домов Проект небольшого одноэтажного дома с двумя спальнями и просторной кухней-гостиной

D4354 Проект небольшого одноэтажного дома с двумя спальнями и просторной кухней-гостиной

Сравнить проект В избранное
Проект небольшого одноэтажного дома с двумя спальнями и просторной кухней-гостиной / 1
Проект небольшого одноэтажного дома с двумя спальнями и просторной кухней-гостиной / 2
Проект небольшого одноэтажного дома с двумя спальнями и просторной кухней-гостиной / 1
Проект небольшого одноэтажного дома с двумя спальнями и просторной кухней-гостиной / 2
D4354
84 м²
Подготовка проекта:
Готов к отправке
Стоимость проекта
Купить проект
Задайте вопросы по проекту нашему архитектору
8 (800) 200-28-83
Время работы: пн-вс: с 9:00 до 20:00
Задать вопрос по проекту

Технические характеристики
Общие
Материал стен
Газобетон
Общая площадь
84 м²
Жилая площадь
55 м²
Площадь застройки
111 м²
Приведенная площадь
83.56 м²
Количество жилых комнат/спален
2
Этажи
1 этаж
Гараж
Нет гаража
Количество машин
нет
Подвал / цокольный этаж
Без подвала
Длина дома
11.5 м
Ширина дома
11.2 м
Кровля
Металлочерепица
Облицовка внешних стен
Облицовочный кирпич
Толщина несущих наружных стен
375 мм
Внутренние не несущие перегородки
Газобетонные
Фундамент
Малозаглубленные ростверки
Терраса
Терраса крытая
Дополнительные
Окна
Окна до пола
Сауна/баня внутри
Нет
Площадь гостиной
22.3 м²
Площадь кухни
6 м²
Количество санузлов
1
Котельная
Есть
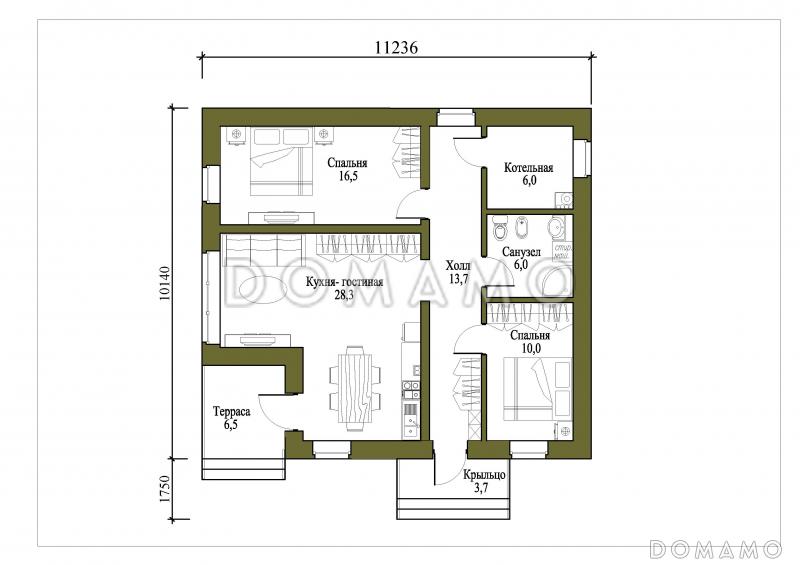
Планы помещений
Фасады
Описание проекта
Компания Domamo предлагает проект небольшого одноэтажного дома с двумя спальнями и просторной кухней-гостиной D4354. Общая площадь - 84 м2, размер - 11.5х11.2 м. Фундамент - малозаглубленные ростверки, кровля - металлочерепица, внешняя отделка - облицовочный кирпич. Для заказа проекта или внесения изменений свяжитесь с нами с помощью форм обратной связи на сайте или по телефону +7 (800) 200-28-83.
Категории проекта: для постоянного проживания пенобетон современные дачные дома гостевые до 100 кв.м в европейском стиле с террасой из газобетона одноэтажные из пеноблоков готовые одноэтажные одноэтажные до 150 кв. м. одноэтажные с котельной с котельной одноэтажные из газобетона из газосиликатных блоков дачные из пеноблоков дачные с верандой одноэтажные до 100 кв.м до 120 кв.м до 150 кв.м до 200 кв.м 9х12 загородные с четырехскатной крышей из керамзитобетонных блоков 11х11 квадратные 10х12 из газобетона с террасой из блоков одноэтажные из блоков из пеноблоков с террасой загородные из газобетона Проекты одноэтажных домов с террасой дачные одноэтажные Типовые проекты загородных одноэтажных домов без гаража одноэтажные без гаража дачные с террасой облицованные кирпичом маленькие одноэтажных из керамзитобетонных блоков одноэтажные с 2 спальнями маленькие одноэтажные одноэтажные до 120 кв.м одноэтажные из пеноблоков до 100 кв м одноэтажные из газобетона до 100м2 одноэтажные до 200 кв м до 140 кв м недорогие до 130 кв м из пеноблоков загородные одноэтажные современные одноэтажные с четырехскатной крышей одноэтажные квадратные одноэтажные с окнами в пол одноэтажные гостевые одноэтажные бюджетные одноэтажные до 180 м2 маленькие одноэтажные для постоянного проживания маленькие одноэтажные дачные маленькие одноэтажные с террасой маленькие одноэтажные из газобетона маленькие одноэтажные современные одноэтажные из газобетона с террасой одноэтажные из газобетона до 120 кв. м одноэтажные из газобетона до 150 кв. м одноэтажные из газобетона с мансардой одноэтажные из газобетона с 2 спальнями современные окна в пол четырехскатная крыша квадратные готовые проекты для постоянного проживания гостевые дачные с котельной из газобетона до 100 кв.м из газобетона до 120 кв.м из газобетона до 150 кв.м из газобетона до 200 кв.м из газобетона с четырехскатной крышей из газобетона современные из газобетона с котельной из газобетона квадратные из газобетона готовые из газобетона с двумя спальнями из газобетона дачные из газобетона гостевые из газобетона 11х11 из газобетона маленькие из газобетона недорогие из газобетона для постоянного проживания современные без гаража современные с окнами в пол современные с террасой современные небольшие современные 11х11 современные до 100 кв. м современные до 120 кв. м современные до 150 кв. м европейские 11х11 до 100 кв.м для постоянного проживания до 100 кв.м гостевые до 100 кв.м дачные до 100 кв.м с террасой до 100 кв.м с котельной до 100 кв.м с окнами в пол до 100 кв.м квадратные до 100 кв.м с четырехскатной крышей до 100 кв.м с вальмовой крышей до 100 кв.м с двумя спальнями до 120 кв.м готовые до 120 кв.м для постоянного проживания до 120 кв.м гостевые до 120 кв.м дачные до 120 кв.м без гаража до 120 кв.м с четырехскатной крышей до 120 кв.м с вальмовой крышей до 120 кв.м с окнами в пол до 120 кв.м с террасой до 120 кв.м с котельной до 120 кв.м с 2 спальнями до 120 кв.м квадратные до 150 кв.м для постоянного проживания до 150 кв.м гостевые до 150 кв.м дачные до 150 кв.м без гаража до 150 кв.м с четырехскатной крышей до 150 кв.м с вальмовой крышей до 150 кв.м с окнами до пола до 150 кв.м готовые до 150 кв.м квадратные до 150 кв.м с котельной до 150 кв.м без бани до 150 кв.м с террасой до 150 кв.м без подвала до 150 кв.м с 2 спальнями маленькие с террасой маленькие для постоянного проживания маленькие гостевые маленькие дачные маленькие недорогие маленькие готовые маленькие квадратные маленькие с окнами до пола маленькие с четырехскатной крышей маленькие без бани маленькие с 2 спальнями из пеноблоков в современном стиле из пеноблоков с четырехскатной крышей из пеноблоков с вальмовой крышей из пеноблоков с окнами до пола из пеноблоков квадратные из пеноблоков для постоянного проживания из пеноблоков гостевые из пеноблоков недорогие из пеноблоков готовые из пеноблоков 11х11 из пеноблоков до 120 м кв. из пеноблоков до 150 м кв. из пеноблоков маленькие из пеноблоков с 2 спальнями недорогие без гаража недорогие с террасой недорогие для постоянного проживания недорогие гостевые недорогие дачные недорогие с четырехскатной крышей недорогие с вальмовой крышей недорогие с окнами до пола недорогие без бани недорогие с котельной недорогие квадратные недорогие до 100 м2 недорогие до 120 м2 недорогие до 150 м2 из клееного бруса без гаража Показать все категории Скрыть категории

Похожие проекты
Состав проекта
Входит в стоимость
Цена, руб. Сроки, дней
Комплект архитектурно-строительных чертежей (АС) Входит в стоимость Готов к отправке
Готово к продаже
Цена, руб. Сроки, дней
Паспорт рабочего проекта 5 000 ₽ 3 рабочих дня в корзину
Дополнительная копия проекта формата А3 4 000 ₽ Готов к отправке в корзину
Электронная копия проекта (скан распечатанной версии) 4 000 ₽ 3 рабочих дня в корзину
Разрабатывается отдельно
Цена, руб. Сроки, дней
Адаптация фундамента (изменение типа фундамента) по запросу 14 рабочих дней
Дизайн интерьера (стоимость от 2200руб. за квад.метр площади) по запросу 30 рабочих дней
Внесение изменений в проект по запросу 20 рабочих дней
Зеркалирование проекта (для которого нет зеркальной версии) 8 000 ₽ 5 рабочих дней в корзину
Разработка Генплана участка, в масштабе 1:250 7 500 ₽ 5 рабочих дней в корзину
Фэншуй дома 20 000 ₽ 14 рабочих дней в корзину
Фэншуй участка 15 000 ₽ 14 рабочих дней в корзину
Фэншуй полная консультация дом+участок с выездом на объект 100 000 ₽ 30 рабочих дней в корзину
Опции проекта вы можете заказать в корзине при оформлении заказа
Отзывы покупателей
Рейтинг покупателей
0 / 5 5 5 1
На основе 1 оценок покупателей
0%
0%
0%
0%
0%
Отзывы о проекте D4354
Отзыв о проекте D4354
Чтобы оставить отзыв, пожалуйста авторизуйтесь.
Подбор строительной компании
Не знаете кому доверить строительство дома? Мы можем помочь! Подберем для вас из сотен наших партнеров несколько компаний с лучшем соотношением цена/качество под конкретно ваш запрос.
Подобрать