Главная Проекты домов Проект большого современного двухэтажного дома из кирпича с четырьмя спальнями, кабинетом и гаражом для участка с рельефом

D4321 Проект большого современного двухэтажного дома из кирпича с четырьмя спальнями, кабинетом и гаражом для участка с рельефом

Сравнить проект В избранное
Технические характеристики
Общие
Материал стен
Кирпич
Общая площадь
312 м²
Площадь застройки
486.8 м²
Приведенная площадь
367.1 м²
Количество жилых комнат/спален
6
Этажи
2 этажа
Гараж
Пристроенный гараж
Количество машин
2
Подвал / цокольный этаж
Без окон
Длина дома
24.86 м
Ширина дома
16.16 м
Высота в коньке
8.04 м
Кровля
Рулонная кровля
Облицовка внешних стен
Деревянная вагонка
,
Мокрая штукатурка
Толщина несущих наружных стен
380 мм
Межэтажные перекрытия
Монолитные
Внутренние не несущие перегородки
Кирпичные
Фундамент
Ленточный заглубленный из ФБС
Терраса
Терраса открытая
Дополнительные
Окна
Окна до пола
,
Панорамные окна
Камин
Есть
Площадь гостиной
41.6 м²
Площадь кухни
25.6 м²
Количество санузлов
5
Окно в ванной комнате
Есть
Котельная
Есть
Кабинет
Есть
Постирочная
Есть
Хозяйский санузел
Есть
Хозяйская гардеробная
Есть
Кладовая
4
Дом для неровных участков (с рельефом)
Есть
Длина участка
32.86 м
Ширина участка
24.66 м
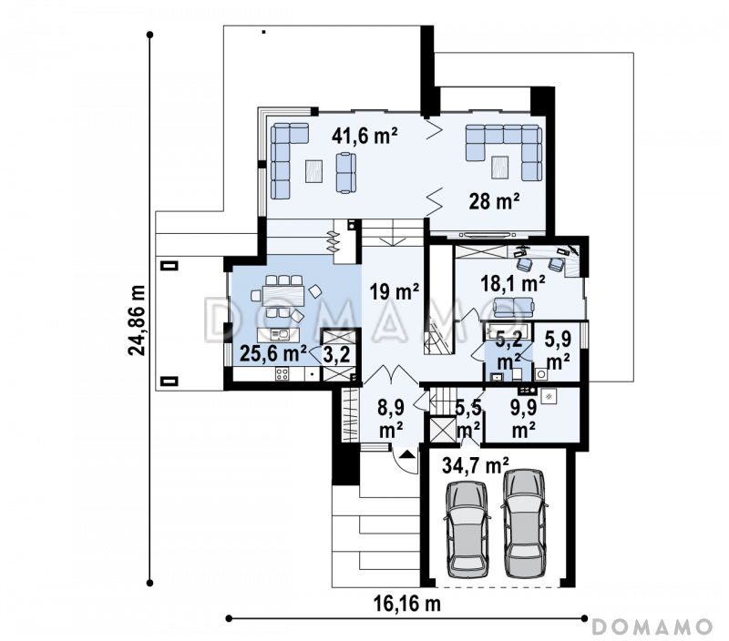
Планы помещений
Описание проекта
Компания Domamo предлагает проект большого современного двухэтажного дома из кирпича с четырьмя спальнями, кабинетом и гаражом для участка с рельефом D4321. Общая площадь - 312 м2, размер - 24.86х16.16 м. Фундамент - ленточный заглубленный из фбс, кровля - рулонная кровля, внешняя отделка - деревянная вагонка мокрая штукатурка. Для заказа проекта или внесения изменений свяжитесь с нами с помощью форм обратной связи на сайте или по телефону +7 (800) 200-28-83.
Категории проекта: с гаражом для постоянного проживания кирпич современные от 300 до 400 кв.м дома из кирпича с гаражом в европейском стиле с террасой из кирпича с террасой готовые с цокольным этажом загородные из кирпича двухэтажные из кирпича двухэтажные кирпичные с гаражом двухэтажные двухэтажные с гаражом кирпичные с подвалом кирпичные с котельной с подвалом с котельной загородные с камином с гардеробной с панорамным остеклением современные кирпичные Проекты двухэтажных домов с террасой Проекты двухэтажных домов с верандой Проекты двухэтажных домов с подвалом на две семьи с террасой и камином с кабинетом с гаражом под одной крышей на склоне с гаражом на 2 машины с гаражом и террасой двухэтажные с террасой и гаражом с панорамными окнами и террасой на склоне с цокольным этажом сложной формы двухэтажные с камином двухэтажные с панорамными окнами двухэтажные в современном стиле современные с гаражом современные с панорамными окнами современные с окнами в пол современные с террасой современные большие современные с подвалом недорогие с панорамными окнами из клееного бруса без гаража Показать все категории Скрыть категории

Похожие проекты
Состав проекта
Входит в стоимость
Цена, руб. Сроки, дней
Комплект архитектурно-строительных чертежей (АС) Входит в стоимость 33 рабочих дня
Готово к продаже
Цена, руб. Сроки, дней
Паспорт рабочего проекта 8 000 ₽ 5 рабочих дней в корзину
Дополнительная копия проекта формата А3 6 500 ₽ 5 рабочих дней в корзину
Электронная копия проекта (скан распечатанной версии) 4 000 ₽ 3 рабочих дня в корзину
Разрабатывается отдельно
Цена, руб. Сроки, дней
Адаптация фундамента (изменение типа фундамента) по запросу 14 рабочих дней
Дизайн интерьера (стоимость от 2200руб. за квад.метр площади) по запросу 30 рабочих дней
Внесение изменений в проект по запросу 20 рабочих дней
Инженерные разделы: ВК + ОВ + ЭО 35 880 ₽ 33 рабочих дня в корзину
Разработка Генплана участка, в масштабе 1:250 7 500 ₽ 15 рабочих дней в корзину
Фэншуй дома 20 000 ₽ 14 рабочих дней в корзину
Фэншуй участка 15 000 ₽ 14 рабочих дней в корзину
Фэншуй полная консультация дом+участок с выездом на объект 100 000 ₽ 30 рабочих дней в корзину
Опции проекта вы можете заказать в корзине при оформлении заказа
Предложения строителей Выбрать регион
Минимальная
12 848 500 ₽
Стандарт
15 785 300 ₽
Под чистовую отделку
20 557 600 ₽
Показать подробные комплектации
Минимальная
29 955 360 ₽
Стандарт
35 241 600 ₽
Под чистовую отделку
45 814 080 ₽
Показать подробные комплектации
Минимальная
14 449 056 ₽
Стандарт
21 222 051 ₽
Под чистовую отделку
33 413 442 ₽
Показать подробные комплектации
Минимальная
13 238 727 ₽
Стандарт
15 201 243 ₽
Под чистовую отделку
19 463 935 ₽
Показать подробные комплектации
Минимальная
6 171 354 ₽
Стандарт
7 642 251 ₽
Под чистовую отделку
9 198 387 ₽
Показать подробные комплектации
Подбор строительной компании
Не знаете кому доверить строительство дома? Мы можем помочь! Подберем для вас из сотен наших партнеров несколько компаний с лучшем соотношением цена/качество под конкретно ваш запрос.
Подобрать
Посмотреть еще 20 компаний Свернуть
Отзывы покупателей
Рейтинг покупателей
0 / 5 5 5 1
На основе 1 оценок покупателей
0%
0%
0%
0%
0%
Отзывы о проекте D4321
Отзыв о проекте D4321
Чтобы оставить отзыв, пожалуйста авторизуйтесь.
Подбор строительной компании
Не знаете кому доверить строительство дома? Мы можем помочь! Подберем для вас из сотен наших партнеров несколько компаний с лучшем соотношением цена/качество под конкретно ваш запрос.
Подобрать