Главная Проекты домов Проект большого современного двухэтажного дома из кирпича с большой площадью остекления, гаражом и просторными террасами на обоих уровнях

D4289 Проект большого современного двухэтажного дома из кирпича с большой площадью остекления, гаражом и просторными террасами на обоих уровнях

Сравнить проект В избранное
Технические характеристики
Общие
Материал стен
Кирпич
Общая площадь
293 м²
Площадь застройки
383.1 м²
Приведенная площадь
305 м²
Количество жилых комнат/спален
4
Этажи
2 этажа
Гараж
Встроенный гараж
Количество машин
2
Подвал / цокольный этаж
Без подвала
Длина дома
19.01 м
Ширина дома
15.71 м
Высота в коньке
8.05 м
Кровля
Рулонная кровля
Облицовка внешних стен
Деревянная вагонка
,
Мокрая штукатурка
,
Фасадные панели
Толщина несущих наружных стен
380 мм
Межэтажные перекрытия
Монолитные
Внутренние не несущие перегородки
Кирпичные
Фундамент
Ленточный заглубленный из ФБС
Терраса
Терраса открытая
,
Терраса крытая
Дополнительные
Окна
Окна до пола
,
Панорамные окна
Второй свет
Есть
Камин
Есть
Сауна/баня внутри
Нет
Площадь гостиной
47.9 м²
Площадь кухни
14.8 м²
Количество санузлов
3
Окно в ванной комнате
Есть
Котельная
Есть
Кабинет
Есть
Хозяйский санузел
Есть
Хозяйская гардеробная
Есть
Кладовая
3
Длина участка
26.56 м
Ширина участка
23.56 м
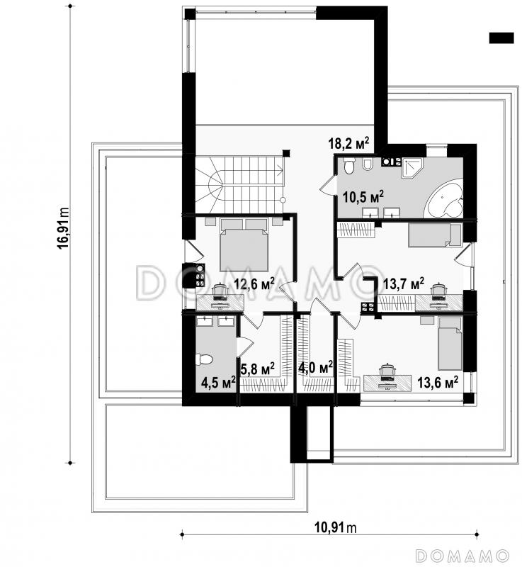
Планы помещений
Описание проекта
Компания Domamo предлагает проект большого современного двухэтажного дома из кирпича с большой площадью остекления, гаражом и просторными террасами на обоих уровнях D4289. Общая площадь - 293 м2, размер - 19.01х15.71 м. Фундамент - ленточный заглубленный из фбс, кровля - рулонная кровля, внешняя отделка - фасадные панели деревянная вагонка мокрая штукатурка. Для заказа проекта или внесения изменений свяжитесь с нами с помощью форм обратной связи на сайте или по телефону +7 (800) 200-28-83.
Категории проекта: с гаражом для постоянного проживания кирпич современные от 200 до 300 кв.м дома из кирпича с гаражом в европейском стиле с террасой из кирпича с террасой готовые загородные из кирпича двухэтажные из кирпича двухэтажные кирпичные с гаражом двухэтажные двухэтажные с гаражом кирпичные с котельной с котельной со вторым светом с плоской крышей загородные с камином с гардеробной со встроенным гаражом с панорамным остеклением современные кирпичные Проекты двухэтажных домов с террасой Проекты двухэтажных домов с верандой с террасой и камином с кабинетом с гаражом под одной крышей с гаражом на 2 машины с гаражом и террасой двухэтажные с террасой и гаражом с 4 спальнями с панорамными окнами и террасой современный с плоской крышей сложной формы двухэтажные с камином двухэтажные со вторым светом двухэтажные с панорамными окнами двухэтажные с 4 спальнями двухэтажные в современном стиле современные с гаражом современные с панорамными окнами современные с окнами в пол современные с террасой современные со вторым светом европейские с плоской крышей недорогие с панорамными окнами из клееного бруса без гаража с плоской крышей двухэтажные с плоской крышей и большой террасой с плоской крышей и большой гостиной с плоской крышей готовые с плоской крышей для постоянного проживания с плоской крышей и окном в ванной комнате с плоской крышей и камином с плоской крышей сложной формы с плоской крышей и окнами в пол в гостиной с плоской крышей и окнами в пол на кухне с плоской крышей и окнами до пола с плоской крышей и панорамными окнами с плоской крышей и монолитными перекрытиями с плоской крышей и облицовкой деревянной вагонкой с плоской крышей и облицовкой мокрой штукатуркой с плоской крышей и облицовкой фасадными панелями с плоской крышей кирпичные с плоской крышей и хозяйской гардеробной с плоской крышей и хозяйским санузлом с плоской крышей и кабинетом с плоской крышей и котельной с плоской крышей без сауны Показать все категории Скрыть категории

Похожие проекты
Состав проекта
Входит в стоимость
Цена, руб. Сроки, дней
Комплект архитектурно-строительных чертежей (АС) Входит в стоимость 33 рабочих дня
Готово к продаже
Цена, руб. Сроки, дней
Паспорт рабочего проекта 8 000 ₽ 5 рабочих дней в корзину
Дополнительная копия проекта формата А3 6 500 ₽ 5 рабочих дней в корзину
Электронная копия проекта (скан распечатанной версии) 4 000 ₽ 3 рабочих дня в корзину
Разрабатывается отдельно
Цена, руб. Сроки, дней
Адаптация фундамента (изменение типа фундамента) по запросу 14 рабочих дней
Дизайн интерьера (стоимость от 2200руб. за квад.метр площади) по запросу 30 рабочих дней
Внесение изменений в проект по запросу 20 рабочих дней
Инженерные разделы: ВК + ОВ + ЭО 31 590 ₽ 33 рабочих дня в корзину
Разработка Генплана участка, в масштабе 1:250 7 500 ₽ 15 рабочих дней в корзину
Фэншуй дома 20 000 ₽ 14 рабочих дней в корзину
Фэншуй участка 15 000 ₽ 14 рабочих дней в корзину
Фэншуй полная консультация дом+участок с выездом на объект 100 000 ₽ 30 рабочих дней в корзину
Опции проекта вы можете заказать в корзине при оформлении заказа
Предложения строителей Выбрать регион
Минимальная
10 675 000 ₽
Стандарт
13 115 000 ₽
Под чистовую отделку
17 080 000 ₽
Показать подробные комплектации
Минимальная
25 406 500 ₽
Стандарт
29 890 000 ₽
Под чистовую отделку
38 857 000 ₽
Показать подробные комплектации
Минимальная
12 492 800 ₽
Стандарт
18 348 800 ₽
Под чистовую отделку
28 889 600 ₽
Показать подробные комплектации
Минимальная
12 221 350 ₽
Стандарт
14 033 050 ₽
Под чистовую отделку
17 968 160 ₽
Показать подробные комплектации
Минимальная
5 412 240 ₽
Стандарт
6 702 207 ₽
Под чистовую отделку
8 066 929 ₽
Показать подробные комплектации
Подбор строительной компании
Не знаете кому доверить строительство дома? Мы можем помочь! Подберем для вас из сотен наших партнеров несколько компаний с лучшем соотношением цена/качество под конкретно ваш запрос.
Подобрать
Посмотреть еще 20 компаний Свернуть
Отзывы покупателей
Рейтинг покупателей
0 / 5 5 5 1
На основе 1 оценок покупателей
0%
0%
0%
0%
0%
Отзывы о проекте D4289
Отзыв о проекте D4289
Чтобы оставить отзыв, пожалуйста авторизуйтесь.
Подбор строительной компании
Не знаете кому доверить строительство дома? Мы можем помочь! Подберем для вас из сотен наших партнеров несколько компаний с лучшем соотношением цена/качество под конкретно ваш запрос.
Подобрать