Главная Проекты домов Проект просторного современного двухэтажного дома из кирпича с плоской крышей, с пятью комнатами, гаражом и террасой на втором этаже

D1959 Проект просторного современного двухэтажного дома из кирпича с плоской крышей, с пятью комнатами, гаражом и террасой на втором этаже

Сравнить проект В избранное
Технические характеристики
Общие
Материал стен
Кирпич
Общая площадь
300 м²
Площадь застройки
328.7 м²
Приведенная площадь
305.02 м²
Количество жилых комнат/спален
5
Этажи
2 этажа
Гараж
Встроенный гараж
Количество машин
2
Подвал / цокольный этаж
Без окон
Длина дома
15.82 м
Ширина дома
17.02 м
Высота в коньке
7.93 м
Кровля
Рулонная кровля
Облицовка внешних стен
Деревянная вагонка
,
Мокрая штукатурка
Толщина несущих наружных стен
380 мм
Межэтажные перекрытия
Монолитные
Внутренние не несущие перегородки
Кирпичные
Фундамент
Ленточный заглубленный из ФБС
Терраса
Терраса открытая
,
Терраса крытая
Дополнительные
Окна
Окна до пола
,
Панорамные окна
Камин
Есть
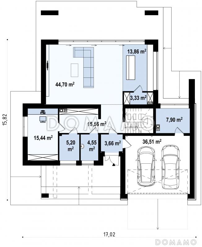
Площадь гостиной
44.7 м²
Площадь кухни
13.86 м²
Количество санузлов
3
Окно в ванной комнате
Есть
Котельная
Есть
Кабинет
Есть
Хозяйский санузел
Есть
Хозяйская гардеробная
Есть
Кладовая
3
Длина участка
25.82 м
Ширина участка
25.02 м
Планы помещений
Описание проекта
Компания Domamo предлагает проект просторного современного двухэтажного дома из кирпича с плоской крышей, с пятью комнатами, гаражом и террасой на втором этаже D1959. Общая площадь - 300 м2, размер - 15.82х17.02 м. Фундамент - ленточный заглубленный из фбс, кровля - рулонная кровля, внешняя отделка - деревянная вагонка мокрая штукатурка. Для заказа проекта или внесения изменений свяжитесь с нами с помощью форм обратной связи на сайте или по телефону +7 (800) 200-28-83.
Категории проекта: с гаражом для постоянного проживания кирпич современные от 200 до 300 кв.м от 300 до 400 кв.м дома из кирпича с гаражом в европейском стиле с террасой из кирпича с террасой готовые с цокольным этажом загородные из кирпича двухэтажные из кирпича двухэтажные кирпичные с гаражом двухэтажные двухэтажные с гаражом кирпичные с подвалом кирпичные с котельной с подвалом с котельной с плоской крышей загородные с камином с гардеробной со встроенным гаражом с панорамным остеклением современные кирпичные Проекты двухэтажных домов с террасой Проекты двухэтажных домов с верандой Проекты двухэтажных домов с подвалом с террасой и камином с кабинетом с гаражом под одной крышей с гаражом на 2 машины с гаражом и террасой двухэтажные с террасой и гаражом с панорамными окнами и террасой с цокольным этажом и гаражом современный с плоской крышей с 5 спальнями сложной формы двухэтажные с камином двухэтажные с панорамными окнами двухэтажные в современном стиле современные с гаражом современные с панорамными окнами современные с окнами в пол современные с террасой современные большие современные с подвалом европейские с плоской крышей недорогие с панорамными окнами из клееного бруса без гаража с плоской крышей двухэтажные с плоской крышей и большой террасой с плоской крышей и большой гостиной с плоской крышей готовые с плоской крышей для постоянного проживания с плоской крышей и окном в ванной комнате с плоской крышей и камином с плоской крышей сложной формы с плоской крышей и окнами в пол в гостиной с плоской крышей и окнами в пол на кухне с плоской крышей и окнами до пола с плоской крышей и панорамными окнами с плоской крышей и монолитными перекрытиями с плоской крышей и облицовкой деревянной вагонкой с плоской крышей и облицовкой мокрой штукатуркой с плоской крышей кирпичные с плоской крышей и хозяйской гардеробной с плоской крышей и хозяйским санузлом с плоской крышей и кабинетом с плоской крышей и котельной Показать все категории Скрыть категории

Похожие проекты
Состав проекта
Входит в стоимость
Цена, руб. Сроки, дней
Комплект архитектурно-строительных чертежей (АС) Входит в стоимость 33 рабочих дня
Готово к продаже
Цена, руб. Сроки, дней
Паспорт рабочего проекта 8 000 ₽ 5 рабочих дней в корзину
Дополнительная копия проекта формата А3 6 500 ₽ 5 рабочих дней в корзину
Электронная копия проекта (скан распечатанной версии) 4 000 ₽ 3 рабочих дня в корзину
Разрабатывается отдельно
Цена, руб. Сроки, дней
Адаптация фундамента (изменение типа фундамента) по запросу 14 рабочих дней
Дизайн интерьера (стоимость от 2200руб. за квад.метр площади) по запросу 30 рабочих дней
Внесение изменений в проект по запросу 20 рабочих дней
Инженерные разделы: ВК + ОВ + ЭО 31 590 ₽ 33 рабочих дня в корзину
Разработка Генплана участка, в масштабе 1:250 7 500 ₽ 15 рабочих дней в корзину
Фэншуй дома 20 000 ₽ 14 рабочих дней в корзину
Фэншуй участка 15 000 ₽ 14 рабочих дней в корзину
Фэншуй полная консультация дом+участок с выездом на объект 100 000 ₽ 30 рабочих дней в корзину
Опции проекта вы можете заказать в корзине при оформлении заказа
Предложения строителей Выбрать регион
Минимальная
10 675 700 ₽
Стандарт
13 115 860 ₽
Под чистовую отделку
17 081 120 ₽
Показать подробные комплектации
Минимальная
25 408 166 ₽
Стандарт
29 891 960 ₽
Под чистовую отделку
38 859 548 ₽
Показать подробные комплектации
Минимальная
12 493 619 ₽
Стандарт
18 350 003 ₽
Под чистовую отделку
28 891 494 ₽
Показать подробные комплектации
Минимальная
12 222 151 ₽
Стандарт
14 033 970 ₽
Под чистовую отделку
17 969 338 ₽
Показать подробные комплектации
Минимальная
5 412 595 ₽
Стандарт
6 702 646 ₽
Под чистовую отделку
8 067 458 ₽
Показать подробные комплектации
Подбор строительной компании
Не знаете кому доверить строительство дома? Мы можем помочь! Подберем для вас из сотен наших партнеров несколько компаний с лучшем соотношением цена/качество под конкретно ваш запрос.
Подобрать
Посмотреть еще 20 компаний Свернуть
Отзывы покупателей
Рейтинг покупателей
0 / 5 5 5 1
На основе 1 оценок покупателей
0%
0%
0%
0%
0%
Отзывы о проекте D1959
Отзыв о проекте D1959
Чтобы оставить отзыв, пожалуйста авторизуйтесь.
Подбор строительной компании
Не знаете кому доверить строительство дома? Мы можем помочь! Подберем для вас из сотен наших партнеров несколько компаний с лучшем соотношением цена/качество под конкретно ваш запрос.
Подобрать