Главная Проекты домов Проект большого современного двухэтажного дома из кирпича необычной формы, с тремя спальнями и кабинетом, сауной и гаражом

D4242 Проект большого современного двухэтажного дома из кирпича необычной формы, с тремя спальнями и кабинетом, сауной и гаражом

Сравнить проект В избранное
Технические характеристики
Общие
Материал стен
Кирпич
Общая площадь
312 м²
Площадь застройки
308.8 м²
Приведенная площадь
390.3 м²
Количество жилых комнат/спален
4
Этажи
2 этажа
Гараж
Встроенный гараж
Количество машин
2
Подвал / цокольный этаж
Без окон
Длина дома
22.81 м
Ширина дома
20.43 м
Высота в коньке
8.93 м
Кровля
Рулонная кровля
Облицовка внешних стен
Мокрая штукатурка
Толщина несущих наружных стен
380 мм
Межэтажные перекрытия
Монолитные
Внутренние не несущие перегородки
Кирпичные
Фундамент
Ленточный заглубленный из ФБС
Терраса
Терраса открытая
,
Терраса крытая
Дополнительные
Окна
Окна до пола
,
Панорамные окна
Камин
Есть
Сауна/баня внутри
Есть
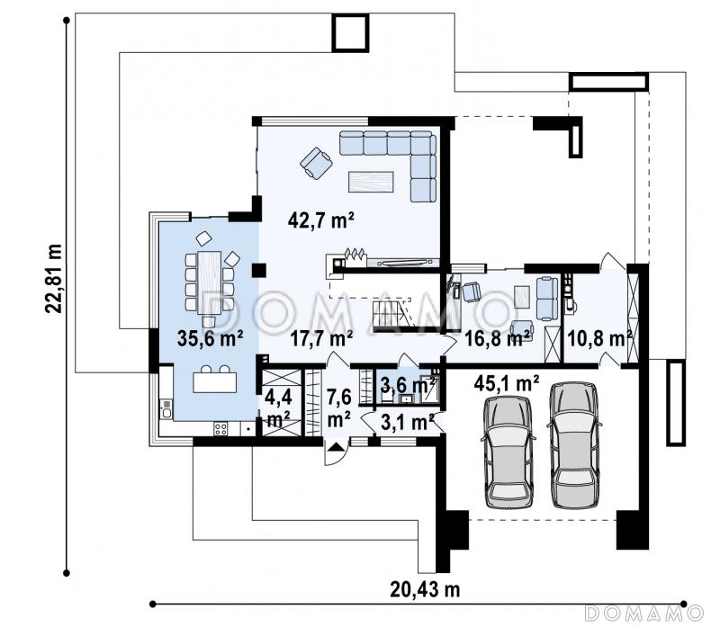
Площадь гостиной
42.7 м²
Площадь кухни
35.6 м²
Количество санузлов
3
Окно в ванной комнате
Есть
Котельная
Есть
Кабинет
Есть
Хозяйский санузел
Есть
Хозяйская гардеробная
Есть
Кладовая
2
Длина участка
28.31 м
Ширина участка
28.43 м
Планы помещений
Фасады
Описание проекта
Компания Domamo предлагает проект большого современного двухэтажного дома из кирпича необычной формы, с тремя спальнями и кабинетом, сауной и гаражом D4242. Общая площадь - 312 м2, размер - 22.81х20.43 м. Фундамент - ленточный заглубленный из фбс, кровля - рулонная кровля, внешняя отделка - мокрая штукатурка. Для заказа проекта или внесения изменений свяжитесь с нами с помощью форм обратной связи на сайте или по телефону +7 (800) 200-28-83.
Категории проекта: с гаражом для постоянного проживания кирпич современные от 300 до 400 кв.м дома из кирпича с гаражом в европейском стиле с террасой из кирпича с террасой готовые с цокольным этажом загородные из кирпича двухэтажные из кирпича двухэтажные кирпичные с гаражом двухэтажные двухэтажные с гаражом кирпичные с подвалом кирпичные с котельной с подвалом с котельной с баней загородные с баней и гаражом с камином с сауной с гардеробной со встроенным гаражом с панорамным остеклением кирпичные с баней современные кирпичные Проекты двухэтажных домов с террасой Проекты двухэтажных домов с верандой Проекты двухэтажных домов с подвалом с террасой и камином с кабинетом с гаражом под одной крышей с гаражом на 2 машины с гаражом и террасой двухэтажные с террасой и гаражом с 4 спальнями с панорамными окнами и террасой двухэтажные с сауной с цокольным этажом и гаражом сложной формы двухэтажные с камином двухэтажные с панорамными окнами двухэтажные с 4 спальнями двухэтажные в современном стиле современные с гаражом современные с панорамными окнами современные с окнами в пол современные с террасой современные большие современные с подвалом недорогие с панорамными окнами из клееного бруса без гаража Показать все категории Скрыть категории

Похожие проекты
Состав проекта
Входит в стоимость
Цена, руб. Сроки, дней
Комплект архитектурно-строительных чертежей (АС) Входит в стоимость 33 рабочих дня
Готово к продаже
Цена, руб. Сроки, дней
Паспорт рабочего проекта 8 000 ₽ 5 рабочих дней в корзину
Дополнительная копия проекта формата А3 6 500 ₽ 5 рабочих дней в корзину
Электронная копия проекта (скан распечатанной версии) 4 000 ₽ 3 рабочих дня в корзину
Разрабатывается отдельно
Цена, руб. Сроки, дней
Адаптация фундамента (изменение типа фундамента) по запросу 14 рабочих дней
Дизайн интерьера (стоимость от 2200руб. за квад.метр площади) по запросу 30 рабочих дней
Внесение изменений в проект по запросу 20 рабочих дней
Инженерные разделы: ВК + ОВ + ЭО 35 880 ₽ 33 рабочих дня в корзину
Разработка Генплана участка, в масштабе 1:250 7 500 ₽ 15 рабочих дней в корзину
Фэншуй дома 20 000 ₽ 14 рабочих дней в корзину
Фэншуй участка 15 000 ₽ 14 рабочих дней в корзину
Фэншуй полная консультация дом+участок с выездом на объект 100 000 ₽ 30 рабочих дней в корзину
Опции проекта вы можете заказать в корзине при оформлении заказа
Предложения строителей Выбрать регион
Минимальная
13 660 500 ₽
Стандарт
16 782 900 ₽
Под чистовую отделку
21 856 800 ₽
Показать подробные комплектации
Минимальная
31 848 480 ₽
Стандарт
37 468 800 ₽
Под чистовую отделку
48 709 440 ₽
Показать подробные комплектации
Минимальная
15 362 208 ₽
Стандарт
22 563 243 ₽
Под чистовую отделку
35 525 106 ₽
Показать подробные комплектации
Минимальная
14 075 388 ₽
Стандарт
16 161 932 ₽
Под чистовую отделку
20 694 018 ₽
Показать подробные комплектации
Минимальная
6 561 372 ₽
Стандарт
8 125 226 ₽
Под чистовую отделку
9 779 708 ₽
Показать подробные комплектации
Подбор строительной компании
Не знаете кому доверить строительство дома? Мы можем помочь! Подберем для вас из сотен наших партнеров несколько компаний с лучшем соотношением цена/качество под конкретно ваш запрос.
Подобрать
Посмотреть еще 20 компаний Свернуть
Отзывы покупателей
Рейтинг покупателей
0 / 5 5 5 1
На основе 1 оценок покупателей
0%
0%
0%
0%
0%
Отзывы о проекте D4242
Отзыв о проекте D4242
Чтобы оставить отзыв, пожалуйста авторизуйтесь.
Подбор строительной компании
Не знаете кому доверить строительство дома? Мы можем помочь! Подберем для вас из сотен наших партнеров несколько компаний с лучшем соотношением цена/качество под конкретно ваш запрос.
Подобрать