Главная Проекты домов Проект современного двухэтажного дома из газобетона в стиле модерн, с террасой на втором уровне и встроенным гаражом

D3944 Проект современного двухэтажного дома из газобетона в стиле модерн, с террасой на втором уровне и встроенным гаражом

Сравнить проект В избранное
Технические характеристики
Общие
Материал стен
Газобетон
Общая площадь
190 м²
Площадь застройки
136.2 м²
Приведенная площадь
223.9 м²
Количество жилых комнат/спален
4
Этажи
2 этажа
Гараж
Встроенный гараж
Количество машин
1
Подвал / цокольный этаж
Без подвала
Длина дома
17.34 м
Ширина дома
9.94 м
Высота в коньке
6.9 м
Кровля
Рулонная кровля
Облицовка внешних стен
Мокрая штукатурка
Толщина несущих наружных стен
380 мм
Межэтажные перекрытия
Монолитные
Внутренние не несущие перегородки
Газобетонные
Фундамент
Ленточный заглубленный из ФБС
Терраса
Терраса открытая
,
Терраса крытая
Дополнительные
Окна
Окна до пола
,
Панорамные окна
,
Окна с французским балконом
Камин
Есть
Площадь гостиной
35.1 м²
Площадь кухни
12.7 м²
Количество санузлов
3
Окно в ванной комнате
Есть
Котельная
Есть
Кабинет
Есть
Постирочная
Есть
Хозяйский санузел
Есть
Хозяйская гардеробная
Есть
Кладовая
3
Длина участка
25.34 м
Ширина участка
17.94 м
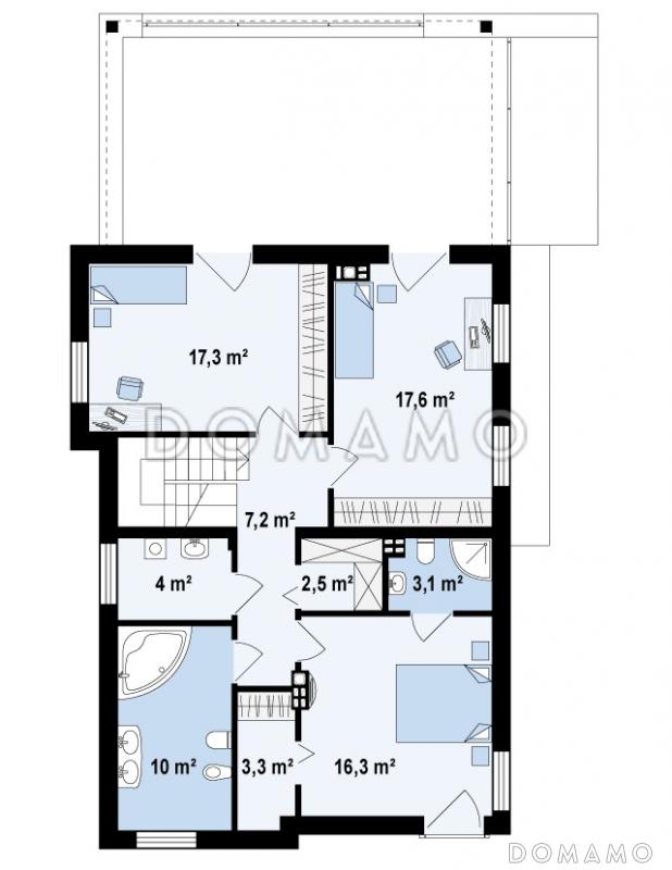
Планы помещений
Описание проекта
Компания Domamo предлагает проект современного двухэтажного дома из газобетона в стиле модерн, с террасой на втором уровне и встроенным гаражом D3944. Общая площадь - 190 м2, размер - 17.34х9.94 м. Фундамент - ленточный заглубленный из фбс, кровля - рулонная кровля, внешняя отделка - мокрая штукатурка. Для заказа проекта или внесения изменений свяжитесь с нами с помощью форм обратной связи на сайте или по телефону +7 (800) 200-28-83.
Категории проекта: с гаражом для постоянного проживания пенобетон в стиле хай-тек от 100 до 200 кв.м с террасой из газобетона в стиле хай-тек из газобетона готовые из газобетона с гаражом двухэтажные двухэтажные с гаражом с котельной двухэтажные из газобетона из газосиликатных блоков двухэтажные из пеноблоков из пеноблоков с гаражом с плоской крышей до 200 кв.м загородные из керамзитобетонных блоков с камином с гардеробной прямоугольные со встроенным гаражом с панорамным остеклением из газобетона с террасой из блоков двухэтажные из блоков из блоков с гаражом в стиле хай-тек с плоской крышей из пеноблоков с террасой загородные из газобетона Проекты двухэтажных домов с террасой Проекты двухэтажных домов с верандой с террасой и камином с кабинетом с гаражом под одной крышей с гаражом и террасой двухэтажные с террасой и гаражом двухэтажные 200 кв м с 4 спальнями с панорамными окнами и террасой двухэтажные от 150 до 200 кв м из пеноблоков загородные двухэтажные с камином двухэтажные с панорамными окнами двухэтажные с 4 спальнями из газобетона до 200 кв.м из газобетона от 100 до 200 кв.м из газобетона с плоской крышей из газобетона с панорамными окнами из газобетона с котельной из газобетона прямоугольные из газобетона готовые из газобетона с камином из газобетона с четырьмя спальнями из газобетона с кабинетом из газобетона с изолированной кухней из газобетона для постоянного проживания двухэтажные из газобетона с гаражом двухэтажные из газобетона с террасой двухэтажные из газобетона с камином двухэтажные из газобетона с прачечной двухэтажные из газобетона с кабинетом двухэтажные из газобетона с котельной двухэтажные из газобетона в стиле хай-тек двухэтажные из газобетона с плоской крышей двухэтажные из газобетона до 200 кв. м двухэтажные из газобетона без подвала двухэтажные из газобетона с изолированной кухней двухэтажные из газобетона с 4 спальнями из пеноблоков в стиле хай-тек из пеноблоков с плоской крышей из пеноблоков с окнами до пола из пеноблоков с панорамными окнами из пеноблоков прямоугольные из пеноблоков для постоянного проживания из пеноблоков готовые из пеноблоков с камином из пеноблоков от 100 до 200 м2 из пеноблоков с 4 спальнями из пеноблоков с изолированной кухней двухэтажные в стиле хай-тек хай-тек для постоянного проживания хай-тек с гаражом хай-тек с окнами в пол хай-тек с панорамными окнами хай-тек с террасой хай-тек прямоугольные хай-тек готовые хай-тек с камином хай-тек на ленточном фундаменте хай-тек с котельной хай-тек с кабинетом хай-тек с прачечной хай-тек с мастер-спальней хай-тек с 4 спальнями хай-тек с изолированной кухней хай-тек без подвала хай-тек от 100 до 200 м2 недорогие с панорамными окнами из клееного бруса без гаража с плоской крышей двухэтажные с плоской крышей и большой террасой с плоской крышей и большой гостиной с плоской крышей готовые с плоской крышей для постоянного проживания с плоской крышей и окном в ванной комнате с плоской крышей и камином с плоской крышей прямоугольные с плоской крышей и окнами в пол в гостиной с плоской крышей и окнами до пола с плоской крышей и панорамными окнами с плоской крышей и монолитными перекрытиями с плоской крышей и облицовкой мокрой штукатуркой с плоской крышей и хозяйской гардеробной с плоской крышей и хозяйским санузлом с плоской крышей и постирочной с плоской крышей и кабинетом с плоской крышей и котельной Показать все категории Скрыть категории

Похожие проекты
Состав проекта
Входит в стоимость
Цена, руб. Сроки, дней
Комплект архитектурно-строительных чертежей (АС) Входит в стоимость 30 рабочих дней
Готово к продаже
Цена, руб. Сроки, дней
Паспорт рабочего проекта 8 000 ₽ 5 рабочих дней в корзину
Инженерные разделы: ВК + ОВ + ЭО 44 150 ₽ 30 рабочих дней в корзину
Дополнительная копия проекта формата А3 6 500 ₽ 5 рабочих дней в корзину
Электронная копия проекта (скан распечатанной версии) 4 000 ₽ 3 рабочих дня в корзину
Разрабатывается отдельно
Цена, руб. Сроки, дней
Адаптация фундамента (изменение типа фундамента) по запросу 14 рабочих дней
Дизайн интерьера (стоимость от 2200руб. за квад.метр площади) по запросу 30 рабочих дней
Внесение изменений в проект по запросу 20 рабочих дней
Разработка Генплана участка, в масштабе 1:250 7 500 ₽ 15 рабочих дней в корзину
Фэншуй дома 20 000 ₽ 14 рабочих дней в корзину
Фэншуй участка 15 000 ₽ 14 рабочих дней в корзину
Фэншуй полная консультация дом+участок с выездом на объект 100 000 ₽ 30 рабочих дней в корзину
Опции проекта вы можете заказать в корзине при оформлении заказа
Предложения строителей Выбрать регион
Минимальная
7 612 600 ₽
Стандарт
9 403 800 ₽
Под чистовую отделку
12 314 500 ₽
Показать подробные комплектации
Минимальная
18 841 185 ₽
Стандарт
22 166 100 ₽
Под чистовую отделку
28 815 930 ₽
Показать подробные комплектации
Минимальная
9 578 442 ₽
Стандарт
14 213 171 ₽
Под чистовую отделку
22 555 686 ₽
Показать подробные комплектации
Минимальная
7 836 500 ₽
Стандарт
9 403 800 ₽
Под чистовую отделку
10 523 300 ₽
Показать подробные комплектации
Минимальная
7 226 596 ₽
Стандарт
10 606 143 ₽
Под чистовую отделку
11 347 252 ₽
Показать подробные комплектации
Минимальная
6 269 200 ₽
Стандарт
7 164 800 ₽
Под чистовую отделку
9 403 800 ₽
Показать подробные комплектации
Подбор строительной компании
Не знаете кому доверить строительство дома? Мы можем помочь! Подберем для вас из сотен наших партнеров несколько компаний с лучшем соотношением цена/качество под конкретно ваш запрос.
Подобрать
Посмотреть еще 32 компании Свернуть
Отзывы покупателей
Рейтинг покупателей
0 / 5 5 5 1
На основе 1 оценок покупателей
0%
0%
0%
0%
0%
Отзывы о проекте D3944
Отзыв о проекте D3944
Чтобы оставить отзыв, пожалуйста авторизуйтесь.
Подбор строительной компании
Не знаете кому доверить строительство дома? Мы можем помочь! Подберем для вас из сотен наших партнеров несколько компаний с лучшем соотношением цена/качество под конкретно ваш запрос.
Подобрать