Главная Проекты домов Проект изумительного белого цвета дома из клееного бруса

D2112 Проект изумительного белого цвета дома из клееного бруса

Сравнить проект В избранное
Проект изумительного белого цвета дома из клееного бруса / 1 Проект изумительного белого цвета дома из клееного бруса / 2 Проект изумительного белого цвета дома из клееного бруса / 3 Проект изумительного белого цвета дома из клееного бруса / 4 Проект изумительного белого цвета дома из клееного бруса / 5 Проект изумительного белого цвета дома из клееного бруса / 6 Проект изумительного белого цвета дома из клееного бруса / 7 Проект изумительного белого цвета дома из клееного бруса / 8 Проект изумительного белого цвета дома из клееного бруса / 9 Проект изумительного белого цвета дома из клееного бруса / 10
D2112
221 м²
Проект с подрядом
Артикул проекта: САТО
Компания: Ecohouse Group
Стоимость строительства
5 405 000 ₽
Заказать подробную смету
+7 (812) XXX-XX-XX Показать телефон
Задать вопрос по проекту
Технические характеристики
Общие
Материал стен
Клееный брус
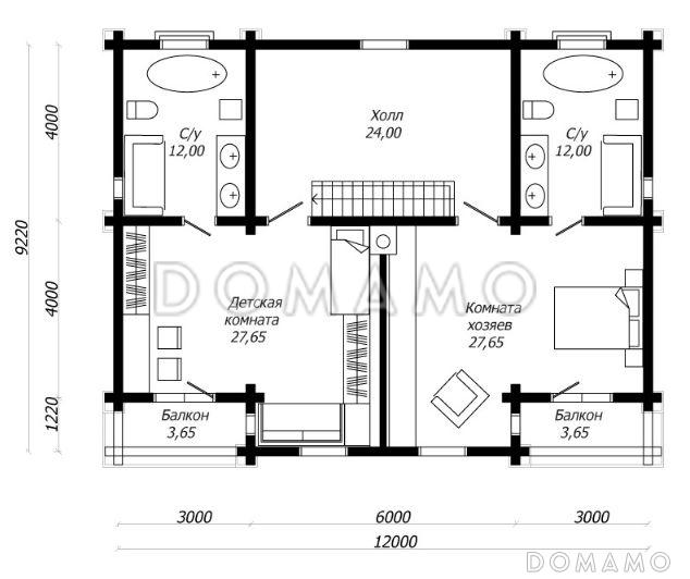
Общая площадь
221 м²
Приведенная площадь
210.66 м²
Количество жилых комнат/спален
3
Этажи
2 этажа
Гараж
Нет гаража
Подвал / цокольный этаж
Без подвала
Длина дома
12.0 м
Ширина дома
9.2 м
Кровля
Металлочерепица
Облицовка внешних стен
Без облицовки
Толщина несущих наружных стен
160 мм
Межэтажные перекрытия
По деревянным балкам
Внутренние не несущие перегородки
Каркасно-обшивные
Терраса
Терраса крытая
Дополнительные
Окна
Окна до пола
Камин
Есть
Сауна/баня внутри
Есть
Площадь гостиной
31.3 м²
Площадь кухни
12 м²
Количество санузлов
4
Окно в ванной комнате
Есть
Котельная
Есть
Кабинет
Есть
Хозяйский санузел
Есть
Балкон / лоджия
Балкон
Планы помещений
Описание проекта
Категории проекта: деревянные для постоянного проживания из клееного бруса современные от 200 до 300 кв.м в европейском стиле с эркером с террасой двухэтажные с котельной двухэтажные деревянные с баней с двухскатной крышей 9х12 загородные с камином с сауной прямоугольные с балконом двухэтажные с эркером Проекты деревянных домов с террасой Проекты деревянных домов с баней Проекты двухэтажных домов из клееного бруса Проекты двухэтажных домов с террасой Проекты двухэтажных домов с верандой без гаража с террасой и камином с кабинетом Проекты домов с тремя спальнями деревянные для круглогодичного проживания двухэтажные с сауной с балконом и террасой от 200 до 250 м двухэтажные с камином двухэтажные с двускатной крышей двухэтажные с 3 спальнями двухэтажные с балконом двухэтажные с балконом и террасой двухэтажные в современном стиле двухэтажные без гаража современные без гаража современные с двухскатной крышей современные с окнами в пол современные с террасой современные 9х12 европейские 9х12 деревянные современные деревянные с окнами в пол деревянные с балконом деревянные прямоугольные деревянные с камином деревянные без гаража деревянные с подрядом деревянные без подвала деревянные с 3 спальнями деревянные с большой гостиной деревянные с баней деревянные с изолированной кухней деревянные 9х12 деревянные от 200 до 300 м2 из клееного бруса проект с подрядом из клееного бруса для постоянного проживания из клееного бруса с окном в ванной комнате из клееного бруса с камином из клееного бруса прямоугольный из клееного бруса с балконом из клееного бруса с окнами в пол (в гостиной) из клееного бруса с окнами в пол из клееного бруса в скандинавском стиле из клееного бруса в современном стиле из клееного бруса с двухскатной крышей из клееного бруса с каркасно-обшивными перегородками из клееного бруса без облицовки из клееного бруса с перекрытиями по деревянным балкам из клееного бруса с кровлей из металлочерепицы из клееного бруса с хозяйским санузлом из клееного бруса с кабинетом из клееного бруса с котельной из клееного бруса с изолированной кухней из клееного бруса с сауной/баней внутри из клееного бруса с 1 эркером из клееного бруса с выходом на терассу из кухни из клееного бруса с крытой терассой из клееного бруса без подвала из клееного бруса без гаража из клееного бруса двухэтажные из клееного бруса от 200 до 300 м2 из клееного бруса с большой гостиной Проекты домов с подрядом Показать все категории Скрыть категории

Похожие проекты
Состав проекта
Входит в стоимость
Цена, руб. Сроки, дней
Комплект архитектурно-строительных чертежей (АС) Входит в стоимость Готов к отправке
Разрабатывается отдельно
Цена, руб. Сроки, дней
Адаптация фундамента (изменение типа фундамента) по запросу 14 рабочих дней
Дизайн интерьера (стоимость от 2200руб. за квад.метр площади) по запросу 30 рабочих дней
Внесение изменений в проект по запросу 20 рабочих дней
Фэншуй дома 20 000 ₽ 14 рабочих дней в корзину
Фэншуй участка 15 000 ₽ 14 рабочих дней в корзину
Фэншуй полная консультация дом+участок с выездом на объект 100 000 ₽ 30 рабочих дней в корзину
Опции проекта вы можете заказать в корзине при оформлении заказа
Комплектации
Подбор строительной компании
Не знаете кому доверить строительство дома? Мы можем помочь! Подберем для вас из сотен наших партнеров несколько компаний с лучшем соотношением цена/качество под конкретно ваш запрос.
Подобрать