Главная Проекты домов Проект двухэтажного дома из газобетона с террасой, гаражом на два автомобиля и большим погребом

D1767 Проект двухэтажного дома из газобетона с террасой, гаражом на два автомобиля и большим погребом

Сравнить проект В избранное
Проект двухэтажного дома из газобетона с террасой, гаражом на два автомобиля и большим погребом / 1
Проект двухэтажного дома из газобетона с террасой, гаражом на два автомобиля и большим погребом / 2
Проект двухэтажного дома из газобетона с террасой, гаражом на два автомобиля и большим погребом / 1
Проект двухэтажного дома из газобетона с террасой, гаражом на два автомобиля и большим погребом / 2
D1767
326 м²
Проект с подрядом
Артикул проекта: Нью-Норфолк
Компания: Брикхауз
Стоимость строительства
8 679 546 ₽
Заказать подробную смету
+7 (495) XXX-XX-XX Показать телефон
Задать вопрос по проекту
Технические характеристики
Общие
Материал стен
Кирпич
Общая площадь
326 м²
Жилая площадь
113.3 м²
Приведенная площадь
329.77 м²
Количество жилых комнат/спален
5
Этажи
2 этажа
Гараж
Пристроенный навес
Количество машин
4
Подвал / цокольный этаж
Без окон
Погреб
Есть
Длина дома
20.8 м
Ширина дома
12.4 м
Кровля
Гибкая черепица
Облицовка внешних стен
Деревянная вагонка
,
Облицовочный кирпич
Толщина несущих наружных стен
440 мм
Межэтажные перекрытия
Монолитные
Внутренние не несущие перегородки
Кирпичные
Фундамент
Монолитная ж/бетонная плита
Терраса
Терраса крытая
Дополнительные
Окна
Окна до пола
,
Панорамные окна
Второй свет
Есть
Камин
Есть
Площадь гостиной
32.4 м²
Площадь кухни
33.3 м²
Количество санузлов
3
Окно в ванной комнате
Есть
Котельная
Есть
Кабинет
Есть
Постирочная
Есть
Хозяйский санузел
Есть
Хозяйская гардеробная
Есть
Кладовая
1
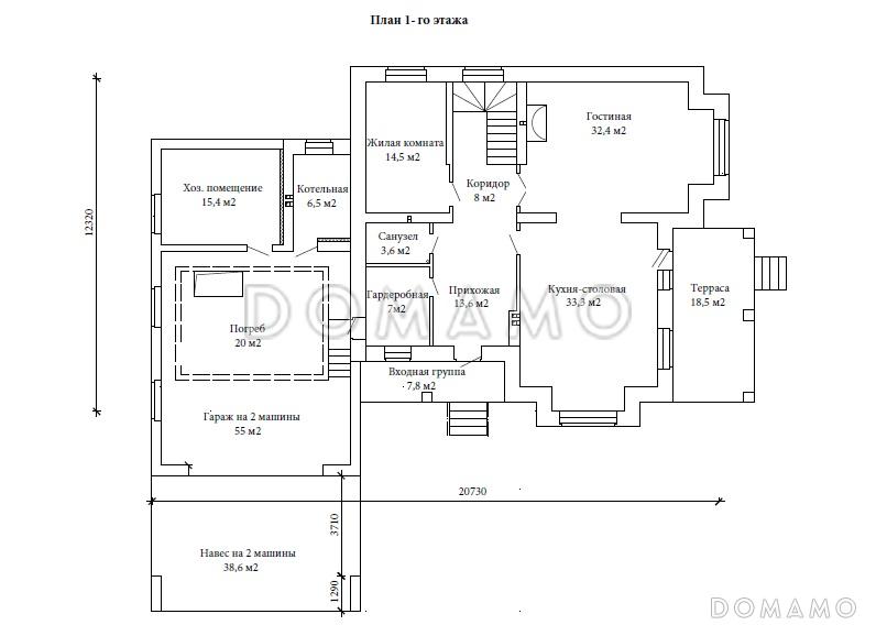
Планы помещений
Фасады
Описание проекта
Компания Domamo предлагает проект двухэтажного дома из газобетона с террасой, гаражом на два автомобиля и большим погребом D1767. Общая площадь - 326 м2, размер - 20.8х12.4 м. Фундамент - монолитная ж/бетонная плита, кровля - гибкая черепица, внешняя отделка - облицовочный кирпич деревянная вагонка. Для заказа проекта или внесения изменений свяжитесь с нами с помощью форм обратной связи на сайте или по телефону +7 (800) 200-28-83.
Категории проекта: с гаражом для постоянного проживания кирпич современные от 300 до 400 кв.м в европейском стиле с террасой из кирпича с террасой с цокольным этажом загородные из кирпича двухэтажные из кирпича двухэтажные кирпичные с гаражом двухэтажные двухэтажные с гаражом кирпичные с подвалом кирпичные с котельной с подвалом с котельной со вторым светом загородные с камином с гардеробной угловые с навесом для машины с панорамным остеклением современные кирпичные Проекты двухэтажных домов с террасой Проекты двухэтажных домов с верандой Проекты двухэтажных домов с подвалом с террасой и камином облицованные кирпичом с кабинетом с гаражом под одной крышей с гаражом и террасой двухэтажные с террасой и гаражом с панорамными окнами и террасой г-образные с 5 спальнями двухэтажные с камином двухэтажные со вторым светом двухэтажные с панорамными окнами двухэтажные в современном стиле современные с панорамными окнами современные с окнами в пол современные с террасой современные большие современные со вторым светом современные с подвалом недорогие с панорамными окнами из клееного бруса без гаража Проекты домов с подрядом Показать все категории Скрыть категории

Похожие проекты
Состав проекта
Входит в стоимость
Цена, руб. Сроки, дней
Комплект архитектурно-строительных чертежей (АС) Входит в стоимость Готов к отправке
Разрабатывается отдельно
Цена, руб. Сроки, дней
Адаптация фундамента (изменение типа фундамента) по запросу 14 рабочих дней
Дизайн интерьера (стоимость от 2200руб. за квад.метр площади) по запросу 30 рабочих дней
Внесение изменений в проект по запросу 20 рабочих дней
Фэншуй дома 20 000 ₽ 14 рабочих дней в корзину
Фэншуй участка 15 000 ₽ 14 рабочих дней в корзину
Фэншуй полная консультация дом+участок с выездом на объект 100 000 ₽ 30 рабочих дней в корзину
Опции проекта вы можете заказать в корзине при оформлении заказа
Комплектации
Сравнить 0 комплектаций
Свернуть все
Развернуть все
Минимальная
8 679 546 ₽
Сравнить
Стандарт
12 399 352 ₽
Сравнить
Под чистовую отделку
15 499 190 ₽
Сравнить
Кровля
Кровельное покрытие
Металлочерепица T05 (Zn140) PE-полиэстер. Цвет на выбор
Металлочерепица T05 (Zn140) PE-полиэстер. Цвет на выбор
Металлочерепица T05 (Zn140) PE-полиэстер. Цвет на выбор
Обрешетка
Доска 20х95 мм, сухая, строганная
Доска 20х95 мм, сухая, строганная
Доска 20х95 мм, сухая, строганная
Контробрешетка
Брус 45х45 мм, сухой, строганный
Брус 45х45 мм, сухой, строганный
Брус 45х45 мм, сухой, строганный
Противоконденсатная (ветро-гидроизоляционная) пленка
Гидроветроизоляция JUTA Ютавек
Гидроветроизоляция JUTA Ютавек
Гидроветроизоляция JUTA Ютавек
Стропильная система
Доска 50х200 мм
Доска 50х200 мм
Доска 50х200 мм
Утепление чердачного перекрытия и стропильной системы
Лайт Баттс СКАНДИК /ROCKWOOL
Лайт Баттс СКАНДИК /ROCKWOOL
Подшивка свесов кровли
Софиты
Подшивка потолков террас и лоджий
Софиты
Водосточная система
Docke
Система снегозадержания
Трубчатая
Трубчатая
Молниезащита
Фундамент
Сваи ж/бетонные
Сваи стальные винтовые
Лента ж/бетонная монолитная мелкозаглубленная
Лента ж/бетонная монолитная на глубину промерзания
Лента ж/бетонная сборная (из ФБС) на глубину промерзания
Плита ж/бетонная монолитная мелкозаглубленная
Высота над уровнем грунта 350мм
Высота над уровнем грунта 350мм
Высота над уровнем грунта 350мм
УШП (Утепленная Шведская Плита)
Бетоннная отмостка по периметру дома
Дренажная система по периметру дома
Ливневая система
Облицовка цоколя фундамента
Система контурного заземления
Стены
Несущая часть стены
380мм Кирпич щелевой рабочий 2.1 нф
380мм Кирпич щелевой рабочий 2.1 нф
380мм Кирпич щелевой рабочий 2.1 нф
Фасадная отделка
Декоративная штукатурка (фактура короед)
Ветрозащита
Утепление стены
Базальтовый утеплитель ROCKWOOL Фасад Баттс
Пароизоляция
Внутренняя обшивка/штукатурка со стороны помещения
Пол первого этажа
Несущая часть перекрытия
Бетонный пол под стяжку
Бетонный пол под стяжку
Бетонный пол под стяжку
Теплоизоляция цокольного перекрытия
Стяжка/подготовка под чистый пол
Стяжка армированная выравнивающая под чистовое покры
Перекрытия над первым и последующими этажами
Несущая часть перекрытия
Плита монолитная ж/б 160мм
Плита монолитная ж/б 160мм
Плита монолитная ж/б 160мм
Звукоизоляция/теплоизоляция в перекрытии
Стяжка/подготовка под чистый пол
Стяжка армированная выравнивающая под чистовое покры
Отделка потолка нижележащего этажа
Окна и внешние двери
Окна
Профиль Рехау, стеклопакет с энергосберегающим стекло
Профиль Рехау, стеклопакет с энергосберегающим стекло
Оконные наличники
Откосы в помещении
Отливы снаружи
Металлические по размеру проема, цвет на выбор
Металлические по размеру проема, цвет на выбор
Подоконники
Входные двери
Металлическая дверь
Металлическая дверь
Внутренние конструкции
Внутренние несущие стены
250мм Кирпич щелевой рабочий 2.1 нф
250мм Кирпич щелевой рабочий 2.1 нф
250мм Кирпич щелевой рабочий 2.1 нф
Внутренние ненесущие стены
Кирпич щелевой 120мм
Звукоизоляция внутренних стен/перегородок
Межэтажная строительная (черновая) лестница
Маршевая
Маршевая
Маршевая
Межэтажная постоянная (чистовая) лестница
Межкомнатные двери
Высота потолков 1 этажа
2700мм
2700мм
2700мм
Высота потолков 2 этажа
2600мм
2600мм
2600мм
Настилы полов и ограждения крылец, террас, балконов
Гидроизоляция полов балконов
Инженерное оснащение
Жидкостной теплый пол
Электрический теплый пол
Система вентиляции
Только вводы воды, электричества, выводы канализации
Электроразводка и электрощит
Разводка электропроводки под точки
Разводка хол. и гор. водоснабжения (ХВС и ГВС)
Сшитый полипропилен Рехау
Разводка батарей и/или системы теплого пола. Без оборудования котельной.
Сшитый полипропилен Рехау
Иное инженерное оснащение
Подготовка участка для строительства
Устройство временного щита электроснабжения
Устройство въезда на участок
Дорога на участке до пятна застройки
Подъем пятна застройки
Подготовка пятна застройки для фундаментных работ
Перемещение или вывоз грунта из котлована фундамента
Обеспечение строительного процесса
Доставка стройматериалов
До 50 км от МКАД
До 50 км от МКАД
До 50 км от МКАД
Генератор для обеспечения электричеством
Уборка и вывоз строительного мусора
Организация проживания рабочих (бытовка)
Биотуалет для рабочих
Гарантия на все выполненные работы
Гарантия
Отзывы покупателей
Рейтинг покупателей
0 / 5 5 5 1
На основе 1 оценок покупателей
0%
0%
0%
0%
0%
Отзывы о проекте D1767
Отзыв о проекте D1767
Чтобы оставить отзыв, пожалуйста авторизуйтесь.
Подбор строительной компании
Не знаете кому доверить строительство дома? Мы можем помочь! Подберем для вас из сотен наших партнеров несколько компаний с лучшем соотношением цена/качество под конкретно ваш запрос.
Подобрать