Главная Проекты домов Проект дома из клееного бруса с просторной сауной и спальней на первом этаже

D1311 Проект дома из клееного бруса с просторной сауной и спальней на первом этаже

Сравнить проект В избранное
Проект дома из клееного бруса с просторной сауной и спальней на первом этаже / 1
Проект дома из клееного бруса с просторной сауной и спальней на первом этаже / 2
Проект дома из клееного бруса с просторной сауной и спальней на первом этаже / 3
Проект дома из клееного бруса с просторной сауной и спальней на первом этаже / 4
Проект дома из клееного бруса с просторной сауной и спальней на первом этаже / 5
Проект дома из клееного бруса с просторной сауной и спальней на первом этаже / 6
Проект дома из клееного бруса с просторной сауной и спальней на первом этаже / 1
Проект дома из клееного бруса с просторной сауной и спальней на первом этаже / 2
Проект дома из клееного бруса с просторной сауной и спальней на первом этаже / 3
Проект дома из клееного бруса с просторной сауной и спальней на первом этаже / 4
Проект дома из клееного бруса с просторной сауной и спальней на первом этаже / 5
Проект дома из клееного бруса с просторной сауной и спальней на первом этаже / 6
D1311
198 м²
Домокомплект
Артикул проекта: Ольшанники
Компания: ГК "Приозерский лесокомбинат"
Стоимость домокомплекта
3 932 000 ₽
Заказать подробную смету
+7 (921) XXX-XX-XX Показать телефон
Задать вопрос по проекту
Технические характеристики
Общие
Материал стен
Клееный брус
Общая площадь
198 м²
Приведенная площадь
194.32 м²
Количество жилых комнат/спален
6
Этажи
1 этаж + мансарда
Гараж
Нет гаража
Подвал / цокольный этаж
Без подвала
Длина дома
11.6 м
Ширина дома
11.2 м
Облицовка внешних стен
Без облицовки
Толщина несущих наружных стен
166 мм
Межэтажные перекрытия
По деревянным балкам
Внутренние не несущие перегородки
Каркасно-обшивные
Терраса
Без террасы
Дополнительные
Сауна/баня внутри
Есть
Площадь гостиной
16 м²
Площадь кухни
21.6 м²
Количество санузлов
2
Окно в ванной комнате
Есть
Котельная
Есть
Кабинет
Есть
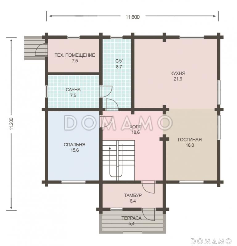
Планы помещений
Описание проекта
Компания Domamo предлагает проект дома из клееного бруса с просторной сауной и спальней на первом этаже D1311. Общая площадь - 198 м2, размер - 11.6х11.2 м. Фундамент - , кровля - , внешняя отделка - без облицовки. Для заказа проекта или внесения изменений свяжитесь с нами с помощью форм обратной связи на сайте или по телефону +7 (800) 200-28-83.
Категории проекта: с мансардой деревянные для постоянного проживания из клееного бруса в английском стиле в скандинавском стиле от 100 до 200 кв.м в европейском стиле из бруса в стиле замка в финском стиле одноэтажные с мансардой одноэтажные с котельной с котельной одноэтажные деревянные с баней до 200 кв.м с двухскатной крышей 9х12 загородные с сауной прямоугольные 10х12 Проекты деревянных домов с мансардой Проекты деревянных домов с баней Проекты домов из клееного бруса с мансардой Проекты одноэтажных домов из клееного бруса Типовые проекты загородных одноэтажных домов Проекты одноэтажных домов с баней на две семьи без гаража одноэтажные без гаража с кабинетом одноэтажные финские полутораэтажные деревянные для круглогодичного проживания 9 на 12 с мансардой одноэтажные до 200 кв м 10x12 с мансардой с мансардой с баней с мансардой с котельной с мансардой с двухскатной крышей с мансардой скандинавские с мансардой прямоугольные с мансардой для постоянного проживания с мансардой до 200 кв.м одноэтажные с мансардой из клееного бруса одноэтажные с мансардой для постоянного проживания одноэтажные с мансардой с большой кухней одноэтажные с мансардой скандинавские скандинавские для постоянного проживания скандинавские без гаража скандинавские без террасы скандинавские с большой кухней скандинавские прямоугольные скандинавские от 100 до 200 м2 скандинавские с двухскатной крышей скандинавские с котельной скандинавские с кабинетом деревянные в скандинавском стиле деревянные прямоугольные деревянные без гаража деревянные домокомплекты деревянные без подвала деревянные с большой кухней деревянные с баней деревянные от 100 до 200 м2 из клееного бруса домокомплект из клееного бруса для постоянного проживания из клееного бруса с окном в ванной комнате из клееного бруса прямоугольный из клееного бруса в скандинавском стиле из клееного бруса с двухскатной крышей из клееного бруса с каркасно-обшивными перегородками из клееного бруса без облицовки из клееного бруса с перекрытиями по деревянным балкам из клееного бруса с кабинетом из клееного бруса с котельной из клееного бруса с сауной/баней внутри из клееного бруса без терассы из клееного бруса без подвала из клееного бруса без гаража одноэтажные из клееного бруса с мансардой из клееного бруса от 100 до 200 м2 Показать все категории Скрыть категории

Похожие проекты
Состав проекта
Входит в стоимость
Цена, руб. Сроки, дней
Комплект архитектурно-строительных чертежей (АС) Входит в стоимость Готов к отправке
Разрабатывается отдельно
Цена, руб. Сроки, дней
Адаптация фундамента (изменение типа фундамента) по запросу 14 рабочих дней
Дизайн интерьера (стоимость от 2200руб. за квад.метр площади) по запросу 30 рабочих дней
Внесение изменений в проект по запросу 20 рабочих дней
Фэншуй дома 20 000 ₽ 14 рабочих дней в корзину
Фэншуй участка 15 000 ₽ 14 рабочих дней в корзину
Фэншуй полная консультация дом+участок с выездом на объект 100 000 ₽ 30 рабочих дней в корзину
Опции проекта вы можете заказать в корзине при оформлении заказа
Отзывы покупателей
Рейтинг покупателей
0 / 5 5 5 1
На основе 1 оценок покупателей
0%
0%
0%
0%
0%
Отзывы о проекте D1311
Отзыв о проекте D1311
Чтобы оставить отзыв, пожалуйста авторизуйтесь.
Подбор строительной компании
Не знаете кому доверить строительство дома? Мы можем помочь! Подберем для вас из сотен наших партнеров несколько компаний с лучшем соотношением цена/качество под конкретно ваш запрос.
Подобрать