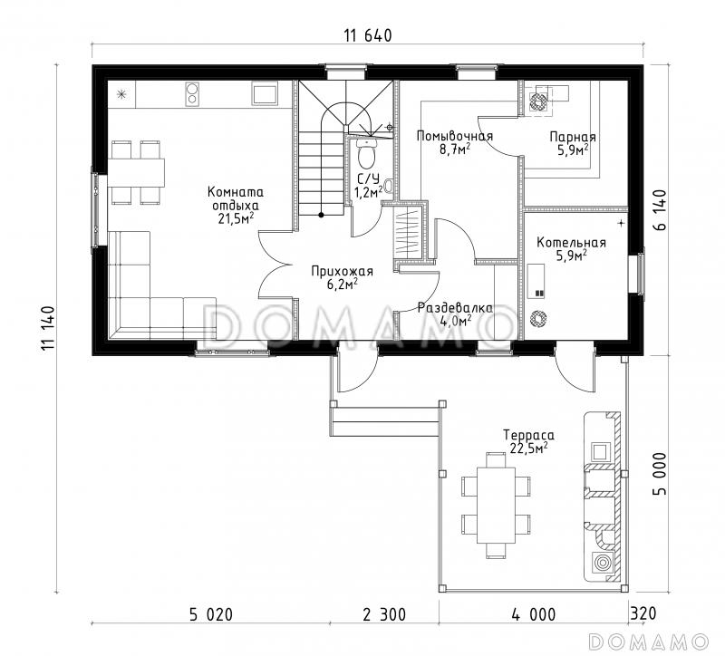
Проект просторной бани, которая может стать любимым местом для совместного времяпрепровождения всей семьи. Здание облицовано древесиной, перед входом расположена просторная терраса – где можно отдыхать сразу после посещения парной. Первый этаж включает в себя помывочную и парную, а также комнату отдыха. Мансарду занимают две жилых комнаты, в которых с удобством смогут разместится гости семьи.
Ключевые особенности:
| Цена, руб. | Сроки, дней | ||||||||||||||||||||||||||||||||||||||||||||||||||||||||||||||||||||||||||||||||||||||||||||||||||||||||||||||||||||||||||||||||||||||||||||||||||||||
|
Комплект архитектурно-строительных чертежей (АС)
|
Входит в стоимость | Готов к отправке | |||||||||||||||||||||||||||||||||||||||||||||||||||||||||||||||||||||||||||||||||||||||||||||||||||||||||||||||||||||||||||||||||||||||||||||||||||||
|
|
|||||||||||||||||||||||||||||||||||||||||||||||||||||||||||||||||||||||||||||||||||||||||||||||||||||||||||||||||||||||||||||||||||||||||||||||||||||||
| Цена, руб. | Сроки, дней | |||
| Паспорт рабочего проекта | 5 000 ₽ | 3 рабочих дня | в корзину | |
| Дополнительная копия проекта формата А3 | 4 000 ₽ | Готов к отправке | в корзину | |
| Электронная копия проекта (скан распечатанной версии) | 4 000 ₽ | 3 рабочих дня | в корзину | |
| Цена, руб. | Сроки, дней | |||
| Адаптация фундамента (изменение типа фундамента) | по запросу | 14 рабочих дней | ||
| Дизайн интерьера (стоимость от 2200руб. за квад.метр площади) | по запросу | 30 рабочих дней | ||
| Внесение изменений в проект | по запросу | 20 рабочих дней | ||
| Зеркалирование проекта (для которого нет зеркальной версии) | 8 000 ₽ | 5 рабочих дней | в корзину | |
| Разработка Генплана участка, в масштабе 1:250 | 7 500 ₽ | 5 рабочих дней | в корзину | |
| Фэншуй дома | 20 000 ₽ | 14 рабочих дней | в корзину | |
| Фэншуй участка | 15 000 ₽ | 14 рабочих дней | в корзину | |
| Фэншуй полная консультация дом+участок с выездом на объект | 100 000 ₽ | 30 рабочих дней | в корзину | |
| Минимальная | 6 542 550 ₽ |
| Стандарт | 9 969 600 ₽ |
| Под чистовую отделку | 11 631 200 ₽ |
| Показать подробные комплектации | |
| Сравнить 0 комплектаций Свернуть все Развернуть все | Минимальная 6 542 550 ₽ | Стандарт 9 969 600 ₽ | Под чистовую отделку 11 631 200 ₽ |
| Кровля | |||
| Кровельное покрытие | Комплект кровли - Металлочерепица GL Classic 0,50 мм, цвет на ? | Комплект кровли - Металлочерепица GL Classic 0,50 мм, цвет на ? | Комплект кровли - Металлочерепица GL Classic 0,50 мм, цвет на ? |
| Обрешетка | Доска сухая строганная 20*96 | Доска сухая строганная 20*96 | Доска сухая строганная 20*96 |
| Контробрешетка | Брусок сухой строганный с 2-х сторон 40х50 | Брусок сухой строганный с 2-х сторон 40х50 | Брусок сухой строганный с 2-х сторон 40х50 |
| Противоконденсатная (ветро-гидроизоляционная) пленка | Пленка влаговетрозащитная Delta | Пленка влаговетрозащитная Delta | Пленка влаговетрозащитная Delta |
| Стропильная система | Доска сухая строганная 46*196 | Доска сухая строганная 46*196 | Доска сухая строганная 46*196 |
| Утепление чердачного перекрытия и стропильной системы | Кнауф норд 250 мм | Кнауф норд 250 мм | |
| Подшивка свесов кровли | Доска сухая строганная 20*96 сосна, сорт АВ + сетка | Доска сухая строганная 20*96 сосна, сорт АВ + сетка | |
| Подшивка потолков террас и лоджий | Доска сухая строганная 20*96 сосна, сорт АВ | Доска сухая строганная 20*96 сосна, сорт АВ | |
| Водосточная система | На выбор | На выбор | На выбор |
| Система снегозадержания | да | да | да |
| Молниезащита | |||
| Фундамент | |||
| Сваи ж/бетонные | Сваи 200*200*3000 мм с металлическим оголовком | Сваи 200*200*3000 мм с металлическим оголовком | Сваи 200*200*3000 мм с металлическим оголовком |
| Сваи стальные винтовые | |||
| Лента ж/бетонная монолитная мелкозаглубленная | |||
| Лента ж/бетонная монолитная на глубину промерзания | |||
| Лента ж/бетонная сборная (из ФБС) на глубину промерзания | |||
| Плита ж/бетонная монолитная мелкозаглубленная | Железобетонная плита 200 м | Железобетонная плита 200 м | Железобетонная плита 200 м |
| УШП (Утепленная Шведская Плита) | |||
| Бетоннная отмостка по периметру дома | |||
| Дренажная система по периметру дома | |||
| Ливневая система | |||
| Облицовка цоколя фундамента | |||
| Система контурного заземления | |||
| Стены | |||
| Несущая часть стены | Панели CLT внутр.и внешней отделкой 270 мм | Панели CLT внутр.и внешней отделкой 270 мм | Панели CLT внутр.и внешней отделкой 270 мм |
| Фасадная отделка | Доска сухая строганная 20*120/140/160/180 - на выбор | Доска сухая строганная 20*120/140/160/180 - на выбор | Доска сухая строганная 20*120/140/160/180 - на выбор |
| Ветрозащита | Пленка влаговетрозащитная Delta | Пленка влаговетрозащитная Delta | Пленка влаговетрозащитная Delta |
| Утепление стены | да | да | да |
| Пароизоляция | |||
| Внутренняя обшивка/штукатурка со стороны помещения | Отделка внутри доска 20х120/140/160/180 - на выбор | Отделка внутри доска 20х120/140/160/180 - на выбор | Отделка внутри доска 20х120/140/160/180 - на выбор |
| Пол первого этажа | |||
| Несущая часть перекрытия | CLT панели 320 мм | CLT панели 320 мм | CLT панели 320 мм |
| Теплоизоляция цокольного перекрытия | да | да | да |
| Стяжка/подготовка под чистый пол | да | да | да |
| Перекрытия над первым и последующими этажами | |||
| Несущая часть перекрытия | |||
| Звукоизоляция/теплоизоляция в перекрытии | |||
| Стяжка/подготовка под чистый пол | |||
| Отделка потолка нижележащего этажа | |||
| Окна и внешние двери | |||
| Окна | Окно м/пластиковые 70 мм, рамные или безрамные - на выбор | Окно м/пластиковые 70 мм, рамные или безрамные - на выбор | Окно м/пластиковые 70 мм, рамные или безрамные - на выбор |
| Оконные наличники | да | да | |
| Откосы в помещении | да | ||
| Отливы снаружи | да | да | |
| Подоконники | да | ||
| Входные двери | Дверь входная металлическая с терморазрывом (временна | Дверь входная металлическая с терморазрывом (временна | Дверь входная металлическая с терморазрывом (временна |
| Внутренние конструкции | |||
| Внутренние несущие стены | CLT внутри с кабель каналами | CLT внутри с кабель каналами | CLT внутри с кабель каналами |
| Внутренние ненесущие стены | CLT внутри с кабель каналами + каркасные | CLT внутри с кабель каналами + каркасные | |
| Звукоизоляция внутренних стен/перегородок | да | да | да |
| Межэтажная строительная (черновая) лестница | |||
| Межэтажная постоянная (чистовая) лестница | |||
| Межкомнатные двери | |||
| Высота потолков 1 этажа | 3,4 метра | 3,4 метра | 3,4 метра |
| Высота потолков 2 этажа | |||
| Настилы полов и ограждения крылец, террас, балконов | Доска 25*140 - сорт АВ | Доска 25*140 - сорт АВ | |
| Гидроизоляция полов балконов | |||
| Инженерное оснащение | |||
| Жидкостной теплый пол | да | ||
| Электрический теплый пол | да | ||
| Система вентиляции | |||
| Только вводы воды, электричества, выводы канализации | да | ||
| Электроразводка и электрощит | да | ||
| Разводка хол. и гор. водоснабжения (ХВС и ГВС) | да | ||
| Разводка батарей и/или системы теплого пола. Без оборудования котельной. | да | ||
| Иное инженерное оснащение | Вся котельная целиком в сборе | ||
| Подготовка участка для строительства | |||
| Устройство временного щита электроснабжения | |||
| Устройство въезда на участок | |||
| Дорога на участке до пятна застройки | |||
| Подъем пятна застройки | |||
| Подготовка пятна застройки для фундаментных работ | |||
| Перемещение или вывоз грунта из котлована фундамента | |||
| Обеспечение строительного процесса | |||
| Доставка стройматериалов | |||
| Генератор для обеспечения электричеством | |||
| Уборка и вывоз строительного мусора | |||
| Организация проживания рабочих (бытовка) | |||
| Биотуалет для рабочих | |||
| Гарантия на все выполненные работы | |||
| Гарантия | 5 | 5 | 5 |
| Свернуть | |||
| Минимальная | 10 592 700 ₽ |
| Стандарт | 12 462 000 ₽ |
| Под чистовую отделку | 16 200 600 ₽ |
| Показать подробные комплектации | |
| Сравнить 0 комплектаций Свернуть все Развернуть все | Минимальная 10 592 700 ₽ | Стандарт 12 462 000 ₽ | Под чистовую отделку 16 200 600 ₽ |
| Кровля | |||
| Кровельное покрытие | Металлочерепица «Металл Профиль» | Металлочерепица «Металл Профиль» | Металлочерепица «Металл Профиль» |
| Обрешетка | Доска 20х95 мм, сухая, строганная | Доска 20х95 мм, сухая, строганная | Доска 20х95 мм, сухая, строганная |
| Контробрешетка | Брус 45х45 мм, сухой, строганный | Брус 45х45 мм, сухой, строганный | Брус 45х45 мм, сухой, строганный |
| Противоконденсатная (ветро-гидроизоляционная) пленка | | | |
| Стропильная система | Заводского изготовления. Доска 45х195 мм | Заводского изготовления. Доска 45х195 мм | Заводского изготовления. Доска 45х195 мм |
| Утепление чердачного перекрытия и стропильной системы | Базальтовый утеплитель Paroc Extra 250 мм | Базальтовый утеплитель Paroc Extra 250 мм | |
| Подшивка свесов кровли | | ||
| Подшивка потолков террас и лоджий | | ||
| Водосточная система | |||
| Система снегозадержания | |||
| Молниезащита | |||
| Фундамент | |||
| Сваи ж/бетонные | |||
| Сваи стальные винтовые | |||
| Лента ж/бетонная монолитная мелкозаглубленная | |||
| Лента ж/бетонная монолитная на глубину промерзания | |||
| Лента ж/бетонная сборная (из ФБС) на глубину промерзания | |||
| Плита ж/бетонная монолитная мелкозаглубленная | |||
| УШП (Утепленная Шведская Плита) | Высота цоколя 320 мм, с утеплением 200 мм | Высота цоколя 320 мм, с утеплением 200 мм | Высота цоколя 320 мм, с утеплением 200 мм |
| Бетоннная отмостка по периметру дома | |||
| Дренажная система по периметру дома | |||
| Ливневая система | |||
| Облицовка цоколя фундамента | |||
| Система контурного заземления | |||
| Стены | |||
| Несущая часть стены | Каркас заводского изготовления из бруса (45х145-195 мм, сух | Каркас заводского изготовления из бруса (45х145-195 мм, сух | Каркас заводского изготовления из бруса (45х145-195 мм, сух |
| Фасадная отделка | Отделочная доска | ||
| Ветрозащита | Isoplaat 25 мм + 25 мм | Isoplaat 25 мм + 25 мм | |
| Утепление стены | Базальтовый утеплитель Paroc Extra 250 мм | Базальтовый утеплитель Paroc Extra 250 мм | |
| Пароизоляция | Elkatek 150S | Elkatek 150S | |
| Внутренняя обшивка/штукатурка со стороны помещения | |||
| Пол первого этажа | |||
| Несущая часть перекрытия | |||
| Теплоизоляция цокольного перекрытия | |||
| Стяжка/подготовка под чистый пол | Стяжка 120 мм | Стяжка 120 мм | Стяжка 120 мм |
| Перекрытия над первым и последующими этажами | |||
| Несущая часть перекрытия | По деревянным балкам - брус 45х195 мм (сухой, строганный) | По деревянным балкам - брус 45х195 мм (сухой, строганный) | По деревянным балкам - брус 45х195 мм (сухой, строганный) |
| Звукоизоляция/теплоизоляция в перекрытии | Базальтовый утеплитель 150 мм | Базальтовый утеплитель 150 мм | |
| Стяжка/подготовка под чистый пол | OSB-3 18 мм | OSB-3 18 мм | |
| Отделка потолка нижележащего этажа | |||
| Окна и внешние двери | |||
| Окна | VEKA Softline 70 мм | VEKA Softline 70 мм | |
| Оконные наличники | |||
| Откосы в помещении | |||
| Отливы снаружи | |||
| Подоконники | |||
| Входные двери | Jeld-Wen | Jeld-Wen | |
| Внутренние конструкции | |||
| Внутренние несущие стены | Каркас из бруса 45х145 мм, сухая, строганная | Каркас из бруса 45х145 мм, сухая, строганная | Каркас из бруса 45х145 мм, сухая, строганная |
| Внутренние ненесущие стены | |||
| Звукоизоляция внутренних стен/перегородок | Базальтовый утеплитель 150 мм + пароизоляционная пленка | Базальтовый утеплитель 150 мм + пароизоляционная пленка | |
| Межэтажная строительная (черновая) лестница | Маршевая | Маршевая | Маршевая |
| Межэтажная постоянная (чистовая) лестница | |||
| Межкомнатные двери | |||
| Высота потолков 1 этажа | 2700 мм | 2700 мм | 2700 мм |
| Высота потолков 2 этажа | 2500 мм | 2500 мм | 2500 мм |
| Настилы полов и ограждения крылец, террас, балконов | | ||
| Гидроизоляция полов балконов | |||
| Инженерное оснащение | |||
| Жидкостной теплый пол | | | |
| Электрический теплый пол | |||
| Система вентиляции | |||
| Только вводы воды, электричества, выводы канализации | | | |
| Электроразводка и электрощит | |||
| Разводка хол. и гор. водоснабжения (ХВС и ГВС) | |||
| Разводка батарей и/или системы теплого пола. Без оборудования котельной. | |||
| Иное инженерное оснащение | |||
| Подготовка участка для строительства | |||
| Устройство временного щита электроснабжения | |||
| Устройство въезда на участок | |||
| Дорога на участке до пятна застройки | |||
| Подъем пятна застройки | |||
| Подготовка пятна застройки для фундаментных работ | |||
| Перемещение или вывоз грунта из котлована фундамента | |||
| Обеспечение строительного процесса | |||
| Доставка стройматериалов | 50 км от КАД, МКАД | 50 км от КАД, МКАД | 50 км от КАД, МКАД |
| Генератор для обеспечения электричеством | |||
| Уборка и вывоз строительного мусора | | | |
| Организация проживания рабочих (бытовка) | |||
| Биотуалет для рабочих | |||
| Гарантия на все выполненные работы | |||
| Гарантия | 5 лет | 5 лет | 5 лет |
| Свернуть | |||
| Минимальная | 1 142 350 ₽ |
| Стандарт | 1 453 900 ₽ |
| Под чистовую отделку | 1 557 750 ₽ |
| Показать подробные комплектации | |
| Сравнить 0 комплектаций Свернуть все Развернуть все | Минимальная 1 142 350 ₽ | Стандарт 1 453 900 ₽ | Под чистовую отделку 1 557 750 ₽ |
| Кровля | |||
| Кровельное покрытие | Меллочерепица | Гибкая черепица | Фальцевая кровля |
| Обрешетка | | | |
| Контробрешетка | | | |
| Противоконденсатная (ветро-гидроизоляционная) пленка | | | |
| Стропильная система | | | |
| Утепление чердачного перекрытия и стропильной системы | | | |
| Подшивка свесов кровли | | | |
| Подшивка потолков террас и лоджий | | | |
| Водосточная система | | ||
| Система снегозадержания | | ||
| Молниезащита | |||
| Фундамент | |||
| Сваи ж/бетонные | | ||
| Сваи стальные винтовые | |||
| Лента ж/бетонная монолитная мелкозаглубленная | | ||
| Лента ж/бетонная монолитная на глубину промерзания | |||
| Лента ж/бетонная сборная (из ФБС) на глубину промерзания | |||
| Плита ж/бетонная монолитная мелкозаглубленная | | ||
| УШП (Утепленная Шведская Плита) | |||
| Бетоннная отмостка по периметру дома | |||
| Дренажная система по периметру дома | |||
| Ливневая система | |||
| Облицовка цоколя фундамента | |||
| Система контурного заземления | |||
| Стены | |||
| Несущая часть стены | | | |
| Фасадная отделка | | | |
| Ветрозащита | |||
| Утепление стены | | | |
| Пароизоляция | |||
| Внутренняя обшивка/штукатурка со стороны помещения | |||
| Пол первого этажа | |||
| Несущая часть перекрытия | | | |
| Теплоизоляция цокольного перекрытия | | ||
| Стяжка/подготовка под чистый пол | |||
| Перекрытия над первым и последующими этажами | |||
| Несущая часть перекрытия | | | |
| Звукоизоляция/теплоизоляция в перекрытии | | ||
| Стяжка/подготовка под чистый пол | |||
| Отделка потолка нижележащего этажа | |||
| Окна и внешние двери | |||
| Окна | |||
| Оконные наличники | |||
| Откосы в помещении | |||
| Отливы снаружи | |||
| Подоконники | |||
| Входные двери | |||
| Внутренние конструкции | |||
| Внутренние несущие стены | | | |
| Внутренние ненесущие стены | | | |
| Звукоизоляция внутренних стен/перегородок | | ||
| Межэтажная строительная (черновая) лестница | | | |
| Межэтажная постоянная (чистовая) лестница | |||
| Межкомнатные двери | |||
| Высота потолков 1 этажа | |||
| Высота потолков 2 этажа | |||
| Настилы полов и ограждения крылец, террас, балконов | | ||
| Гидроизоляция полов балконов | | | |
| Инженерное оснащение | |||
| Жидкостной теплый пол | |||
| Электрический теплый пол | |||
| Система вентиляции | |||
| Только вводы воды, электричества, выводы канализации | | | |
| Электроразводка и электрощит | |||
| Разводка хол. и гор. водоснабжения (ХВС и ГВС) | |||
| Разводка батарей и/или системы теплого пола. Без оборудования котельной. | |||
| Иное инженерное оснащение | |||
| Подготовка участка для строительства | |||
| Устройство временного щита электроснабжения | | | |
| Устройство въезда на участок | | ||
| Дорога на участке до пятна застройки | |||
| Подъем пятна застройки | |||
| Подготовка пятна застройки для фундаментных работ | | | |
| Перемещение или вывоз грунта из котлована фундамента | | ||
| Обеспечение строительного процесса | |||
| Доставка стройматериалов | | | |
| Генератор для обеспечения электричеством | |||
| Уборка и вывоз строительного мусора | | | |
| Организация проживания рабочих (бытовка) | | | |
| Биотуалет для рабочих | |||
| Гарантия на все выполненные работы | |||
| Гарантия | 5 лет | 5 лет | 5 лет |
| Свернуть | |||
| Минимальная | 4 673 250 ₽ |
| Стандарт | 7 269 500 ₽ |
| Под чистовую отделку | 11 942 750 ₽ |
| Показать подробные комплектации | |
| Сравнить 0 комплектаций Свернуть все Развернуть все | Минимальная 4 673 250 ₽ | Стандарт 7 269 500 ₽ | Под чистовую отделку 11 942 750 ₽ |
| Кровля | |||
| Кровельное покрытие | | | |
| Обрешетка | | | |
| Контробрешетка | | | |
| Противоконденсатная (ветро-гидроизоляционная) пленка | | | |
| Стропильная система | | | |
| Утепление чердачного перекрытия и стропильной системы | | | |
| Подшивка свесов кровли | | ||
| Подшивка потолков террас и лоджий | | ||
| Водосточная система | | | |
| Система снегозадержания | | | |
| Молниезащита | |||
| Фундамент | |||
| Сваи ж/бетонные | |||
| Сваи стальные винтовые | |||
| Лента ж/бетонная монолитная мелкозаглубленная | |||
| Лента ж/бетонная монолитная на глубину промерзания | |||
| Лента ж/бетонная сборная (из ФБС) на глубину промерзания | |||
| Плита ж/бетонная монолитная мелкозаглубленная | | | |
| УШП (Утепленная Шведская Плита) | |||
| Бетоннная отмостка по периметру дома | |||
| Дренажная система по периметру дома | |||
| Ливневая система | |||
| Облицовка цоколя фундамента | |||
| Система контурного заземления | |||
| Стены | |||
| Несущая часть стены | | | |
| Фасадная отделка | | ||
| Ветрозащита | |||
| Утепление стены | | | |
| Пароизоляция | |||
| Внутренняя обшивка/штукатурка со стороны помещения | | ||
| Пол первого этажа | |||
| Несущая часть перекрытия | | | |
| Теплоизоляция цокольного перекрытия | | | |
| Стяжка/подготовка под чистый пол | | ||
| Перекрытия над первым и последующими этажами | |||
| Несущая часть перекрытия | | | |
| Звукоизоляция/теплоизоляция в перекрытии | | | |
| Стяжка/подготовка под чистый пол | | ||
| Отделка потолка нижележащего этажа | | ||
| Окна и внешние двери | |||
| Окна | | | |
| Оконные наличники | | ||
| Откосы в помещении | | ||
| Отливы снаружи | | | |
| Подоконники | | ||
| Входные двери | | | |
| Внутренние конструкции | |||
| Внутренние несущие стены | | | |
| Внутренние ненесущие стены | | | |
| Звукоизоляция внутренних стен/перегородок | | | |
| Межэтажная строительная (черновая) лестница | | | |
| Межэтажная постоянная (чистовая) лестница | |||
| Межкомнатные двери | |||
| Высота потолков 1 этажа | 2,85 | 2,85 | 2,85 |
| Высота потолков 2 этажа | 2,75 | 2,75 | 2,75 |
| Настилы полов и ограждения крылец, террас, балконов | | ||
| Гидроизоляция полов балконов | | ||
| Инженерное оснащение | |||
| Жидкостной теплый пол | | ||
| Электрический теплый пол | | ||
| Система вентиляции | естественная | естественная | естественная |
| Только вводы воды, электричества, выводы канализации | | | |
| Электроразводка и электрощит | | ||
| Разводка хол. и гор. водоснабжения (ХВС и ГВС) | | ||
| Разводка батарей и/или системы теплого пола. Без оборудования котельной. | | ||
| Иное инженерное оснащение | |||
| Подготовка участка для строительства | |||
| Устройство временного щита электроснабжения | | | |
| Устройство въезда на участок | |||
| Дорога на участке до пятна застройки | |||
| Подъем пятна застройки | |||
| Подготовка пятна застройки для фундаментных работ | | | |
| Перемещение или вывоз грунта из котлована фундамента | | | |
| Обеспечение строительного процесса | |||
| Доставка стройматериалов | | | |
| Генератор для обеспечения электричеством | |||
| Уборка и вывоз строительного мусора | | | |
| Организация проживания рабочих (бытовка) | | | |
| Биотуалет для рабочих | | | |
| Гарантия на все выполненные работы | |||
| Гарантия | | | |
| Свернуть | |||
| Минимальная | 3 946 300 ₽ |
| Стандарт | 4 673 250 ₽ |
| Под чистовую отделку | 5 400 200 ₽ |
| Показать подробные комплектации | |
| Сравнить 0 комплектаций Свернуть все Развернуть все | Минимальная 3 946 300 ₽ | Стандарт 4 673 250 ₽ | Под чистовую отделку 5 400 200 ₽ |
| Кровля | |||
| Кровельное покрытие | Гибкая черепица, керамическая черепиц | Гибкая черепица, керамическая черепиц | Гибкая черепица, керамическая черепиц |
| Обрешетка | Доска калиброванная 30 х120 обработанна | Доска калиброванная 30 х120 обработанна | Доска калиброванная 30 х120 обработанна |
| Контробрешетка | Брусок калиброванная 50 х 50 обработанн | Брусок калиброванная 50 х 50 обработанн | Брусок калиброванная 50 х 50 обработанн |
| Противоконденсатная (ветро-гидроизоляционная) пленка | В соответствии с проектом. | В соответствии с проектом. | В соответствии с проектом. |
| Стропильная система | Доска 50 Х 200 обработанная огнебиозащи | Доска 50 Х 200 обработанная огнебиозащи | Доска 50 Х 200 обработанная огнебиозащи |
| Утепление чердачного перекрытия и стропильной системы | Базальтовыми утеплителями, перекрест | Базальтовыми утеплителями, перекрест | Базальтовыми утеплителями, перекрест |
| Подшивка свесов кровли | Планкен крашенный , софит металл. | ||
| Подшивка потолков террас и лоджий | Планкен крашенный , софит металл. | ||
| Водосточная система | Пластиковая , металлическая в цвет кро | ||
| Система снегозадержания | В соответствии с типом покрытия кровл | В соответствии с типом покрытия кровл | В соответствии с типом покрытия кровл |
| Молниезащита | По согласованию. | ||
| Фундамент | |||
| Сваи ж/бетонные | По проекту. | По проекту. | По проекту. |
| Сваи стальные винтовые | |||
| Лента ж/бетонная монолитная мелкозаглубленная | По проекту. | По проекту. | По проекту. |
| Лента ж/бетонная монолитная на глубину промерзания | По проекту. | По проекту. | По проекту. |
| Лента ж/бетонная сборная (из ФБС) на глубину промерзания | По проекту. | По проекту. | По проекту. |
| Плита ж/бетонная монолитная мелкозаглубленная | По проекту. | По проекту. | По проекту. |
| УШП (Утепленная Шведская Плита) | По проекту. | По проекту. | По проекту. |
| Бетоннная отмостка по периметру дома | По проекту. | ||
| Дренажная система по периметру дома | По проекту. | ||
| Ливневая система | По проекту. | ||
| Облицовка цоколя фундамента | По проекту. | ||
| Система контурного заземления | По согласованию. | ||
| Стены | |||
| Несущая часть стены | По проекту. | По проекту. | По проекту. |
| Фасадная отделка | По проекту. | По проекту. | По проекту. |
| Ветрозащита | |||
| Утепление стены | По проекту. | По проекту. | |
| Пароизоляция | |||
| Внутренняя обшивка/штукатурка со стороны помещения | По проекту. | ||
| Пол первого этажа | |||
| Несущая часть перекрытия | По проекту. | По проекту. | По проекту. |
| Теплоизоляция цокольного перекрытия | По проекту. | По проекту. | По проекту. |
| Стяжка/подготовка под чистый пол | По проекту. | ||
| Перекрытия над первым и последующими этажами | |||
| Несущая часть перекрытия | По проекту. | По проекту. | По проекту. |
| Звукоизоляция/теплоизоляция в перекрытии | По проекту. | ||
| Стяжка/подготовка под чистый пол | По проекту. | ||
| Отделка потолка нижележащего этажа | По проекту. | ||
| Окна и внешние двери | |||
| Окна | По проекту. Белый профиль. | По проекту. Белый профиль, энергоэффек | По проекту. Ламинированный теплый про |
| Оконные наличники | По проекту. | По проекту. | По проекту. |
| Откосы в помещении | | ||
| Отливы снаружи | По проекту. | По проекту. | По проекту. |
| Подоконники | По проекту. | ||
| Входные двери | Стандартные. | Усиленные. | Усиленные с тероморазрывом. |
| Внутренние конструкции | |||
| Внутренние несущие стены | По проекту. | По проекту. | По проекту. |
| Внутренние ненесущие стены | По проекту. | По проекту. | По проекту. |
| Звукоизоляция внутренних стен/перегородок | По проекту. | ||
| Межэтажная строительная (черновая) лестница | По проекту. | По проекту. | |
| Межэтажная постоянная (чистовая) лестница | По проекту. | ||
| Межкомнатные двери | |||
| Высота потолков 1 этажа | 2,5 + по проекту | 3,0 + по проекту. | 3,5 + по проекту |
| Высота потолков 2 этажа | 2,5 + по проекту | 3,0 + по проекту. | 3,5 + по проекту |
| Настилы полов и ограждения крылец, террас, балконов | По проекту. | По проекту. | |
| Гидроизоляция полов балконов | По проекту. | По проекту. | По проекту. |
| Инженерное оснащение | |||
| Жидкостной теплый пол | По проекту. | ||
| Электрический теплый пол | По проекту. | ||
| Система вентиляции | По проекту. | ||
| Только вводы воды, электричества, выводы канализации | По проекту. | По проекту. | |
| Электроразводка и электрощит | По проекту. | ||
| Разводка хол. и гор. водоснабжения (ХВС и ГВС) | По проекту. | ||
| Разводка батарей и/или системы теплого пола. Без оборудования котельной. | По проекту. | ||
| Иное инженерное оснащение | По проекту. | ||
| Подготовка участка для строительства | |||
| Устройство временного щита электроснабжения | | | |
| Устройство въезда на участок | | | |
| Дорога на участке до пятна застройки | | ||
| Подъем пятна застройки | | ||
| Подготовка пятна застройки для фундаментных работ | | | |
| Перемещение или вывоз грунта из котлована фундамента | | | |
| Обеспечение строительного процесса | |||
| Доставка стройматериалов | | | |
| Генератор для обеспечения электричеством | | | |
| Уборка и вывоз строительного мусора | | | |
| Организация проживания рабочих (бытовка) | | | |
| Биотуалет для рабочих | | | |
| Гарантия на все выполненные работы | |||
| Гарантия | | | |
| Свернуть | |||
| Минимальная | 3 011 650 ₽ |
| Стандарт | 3 634 750 ₽ |
| Под чистовую отделку | 5 296 350 ₽ |
| Показать подробные комплектации | |
| Сравнить 0 комплектаций Свернуть все Развернуть все | Минимальная 3 011 650 ₽ | Стандарт 3 634 750 ₽ | Под чистовую отделку 5 296 350 ₽ |
| Кровля | |||
| Кровельное покрытие | Металлочерепица | Металлочерепица | Металлочерепица |
| Обрешетка | | | |
| Контробрешетка | | | |
| Противоконденсатная (ветро-гидроизоляционная) пленка | | | |
| Стропильная система | | | |
| Утепление чердачного перекрытия и стропильной системы | | ||
| Подшивка свесов кровли | | | |
| Подшивка потолков террас и лоджий | | ||
| Водосточная система | |||
| Система снегозадержания | |||
| Молниезащита | |||
| Фундамент | |||
| Сваи ж/бетонные | | | |
| Сваи стальные винтовые | |||
| Лента ж/бетонная монолитная мелкозаглубленная | |||
| Лента ж/бетонная монолитная на глубину промерзания | |||
| Лента ж/бетонная сборная (из ФБС) на глубину промерзания | |||
| Плита ж/бетонная монолитная мелкозаглубленная | |||
| УШП (Утепленная Шведская Плита) | |||
| Бетоннная отмостка по периметру дома | |||
| Дренажная система по периметру дома | |||
| Ливневая система | |||
| Облицовка цоколя фундамента | |||
| Система контурного заземления | |||
| Стены | |||
| Несущая часть стены | Каркас 150 мм | Каркас 150 мм | Каркас 150 мм |
| Фасадная отделка | Имитация бруса | Имитация бруса | Имитация бруса |
| Ветрозащита | | | |
| Утепление стены | | ||
| Пароизоляция | | ||
| Внутренняя обшивка/штукатурка со стороны помещения | Вагонка | ||
| Пол первого этажа | |||
| Несущая часть перекрытия | Каркас 150 мм | Каркас 150 мм | Каркас 150 мм |
| Теплоизоляция цокольного перекрытия | | ||
| Стяжка/подготовка под чистый пол | | ||
| Перекрытия над первым и последующими этажами | |||
| Несущая часть перекрытия | Каркас 150 мм | Каркас 150 мм | Каркас 150 мм |
| Звукоизоляция/теплоизоляция в перекрытии | | ||
| Стяжка/подготовка под чистый пол | | ||
| Отделка потолка нижележащего этажа | | ||
| Окна и внешние двери | |||
| Окна | | | |
| Оконные наличники | | ||
| Откосы в помещении | | ||
| Отливы снаружи | | ||
| Подоконники | | ||
| Входные двери | | | |
| Внутренние конструкции | |||
| Внутренние несущие стены | Каркас 150 мм | Каркас 150 мм | Каркас 150 мм |
| Внутренние ненесущие стены | Каркас 100 мм | Каркас 100 мм | Каркас 100 мм |
| Звукоизоляция внутренних стен/перегородок | | ||
| Межэтажная строительная (черновая) лестница | | ||
| Межэтажная постоянная (чистовая) лестница | | ||
| Межкомнатные двери | | ||
| Высота потолков 1 этажа | 2,55 м | 2,55 м | 2,55 м |
| Высота потолков 2 этажа | 2,55 м | 2,55 м | 2,55 м |
| Настилы полов и ограждения крылец, террас, балконов | | ||
| Гидроизоляция полов балконов | |||
| Инженерное оснащение | |||
| Жидкостной теплый пол | |||
| Электрический теплый пол | |||
| Система вентиляции | |||
| Только вводы воды, электричества, выводы канализации | | ||
| Электроразводка и электрощит | |||
| Разводка хол. и гор. водоснабжения (ХВС и ГВС) | |||
| Разводка батарей и/или системы теплого пола. Без оборудования котельной. | |||
| Иное инженерное оснащение | |||
| Подготовка участка для строительства | |||
| Устройство временного щита электроснабжения | |||
| Устройство въезда на участок | |||
| Дорога на участке до пятна застройки | |||
| Подъем пятна застройки | |||
| Подготовка пятна застройки для фундаментных работ | |||
| Перемещение или вывоз грунта из котлована фундамента | |||
| Обеспечение строительного процесса | |||
| Доставка стройматериалов | | | |
| Генератор для обеспечения электричеством | |||
| Уборка и вывоз строительного мусора | | | |
| Организация проживания рабочих (бытовка) | | | |
| Биотуалет для рабочих | | | |
| Гарантия на все выполненные работы | |||
| Гарантия | | | |
| Свернуть | |||
| Минимальная | 3 427 050 ₽ |
| Стандарт | 3 738 600 ₽ |
| Под чистовую отделку | 5 815 600 ₽ |
| Показать подробные комплектации | |
| Сравнить 0 комплектаций Свернуть все Развернуть все | Минимальная 3 427 050 ₽ | Стандарт 3 738 600 ₽ | Под чистовую отделку 5 815 600 ₽ |
| Кровля | |||
| Кровельное покрытие | Металлочерепица | Мягкая черепица | Цементно-песчаная черепица |
| Обрешетка | Сухой строганый брус | Сухой строганый брус | Сухой строганый брус |
| Контробрешетка | Сухой строганый брус | Сухой строганый брус | Сухой строганый брус |
| Противоконденсатная (ветро-гидроизоляционная) пленка | ПВХ пленка GrandLine | ПВХ пленка GrandLine | ПВХ пленка GrandLine |
| Стропильная система | Доска строганная антисептированная | Доска строганная антисептированная | Доска строганная антисептированная |
| Утепление чердачного перекрытия и стропильной системы | Утепление 200 мм | Утепление 200 мм | Утепление 200 мм |
| Подшивка свесов кровли | Установка J- профиля, J - фаска, саморезы оцинкованные с | Установка J- профиля, J - фаска, саморезы оцинкованные с | Устройство подсистемы из бруска сухого, строганного 45 |
| Подшивка потолков террас и лоджий | |||
| Водосточная система | Водосточная система Grand Line пластиковая
Кронштейны мет | Водосточная система Grand Line пластиковая
Кронштейны мет | Водосточная система Grand Line пластиковая
Кронштейны мет |
| Система снегозадержания | Grand Line | Grand Line | Grand Line |
| Молниезащита | |||
| Фундамент | |||
| Сваи ж/бетонные | Железобетонные забивные сваи 150*150 * 2500 | ||
| Сваи стальные винтовые | Сваи 108/2500
Заполнение полости свай ЦПС
Точечная прива | ||
| Лента ж/бетонная монолитная мелкозаглубленная | |||
| Лента ж/бетонная монолитная на глубину промерзания | |||
| Лента ж/бетонная сборная (из ФБС) на глубину промерзания | |||
| Плита ж/бетонная монолитная мелкозаглубленная | Плита монолитная 300 мм | ||
| УШП (Утепленная Шведская Плита) | |||
| Бетоннная отмостка по периметру дома | | ||
| Дренажная система по периметру дома | | ||
| Ливневая система | |||
| Облицовка цоколя фундамента | |||
| Система контурного заземления | |||
| Стены | |||
| Несущая часть стены | Стены наружные 150 мм | Стены наружные 200 мм | Стены наружные 200 мм |
| Фасадная отделка | Фасад "Виниловый сайдинг" | Фасад имитация бруса
| Фасад фиброцементный Cedral |
| Ветрозащита | |||
| Утепление стены | Утепление фасада утеплителем Paroc плотностью 110 кг\м3 | Утепление фасада утеплителем Paroc плотностью 110 кг\м3 | Утепление фасада утеплителем Paroc плотностью 110 кг\м3 |
| Пароизоляция | |||
| Внутренняя обшивка/штукатурка со стороны помещения | |||
| Пол первого этажа | |||
| Несущая часть перекрытия | Межэтажное перекрытие "Стропильная система" 200 мм | Межэтажное перекрытие "Стропильная система" 200 мм | Межэтажное перекрытие "Стропильная система" 200 мм |
| Теплоизоляция цокольного перекрытия | |||
| Стяжка/подготовка под чистый пол | |||
| Перекрытия над первым и последующими этажами | |||
| Несущая часть перекрытия | Межэтажное перекрытие "Стропильная система" 200 мм | Межэтажное перекрытие "Стропильная система" 200 мм | Межэтажное перекрытие "Стропильная система" 200 мм |
| Звукоизоляция/теплоизоляция в перекрытии | |||
| Стяжка/подготовка под чистый пол | |||
| Отделка потолка нижележащего этажа | |||
| Окна и внешние двери | |||
| Окна | Двухкамерный стеклопакет | Двухкамерный стеклопакет | Двухкамерный стеклопакет |
| Оконные наличники | Металлические наличники | Металлические наличники | Металлические наличники |
| Откосы в помещении | |||
| Отливы снаружи | Металлические отливы | Металлические отливы | Металлические отливы |
| Подоконники | |||
| Входные двери | Дверь металлическая огнеупорная | Дверь металлическая огнеупорная | Дверь металлическая огнеупорная |
| Внутренние конструкции | |||
| Внутренние несущие стены | Стены внутренние, несущие 150 мм | Стены внутренние, несущие 200 мм | Стены внутренние, несущие 200 мм |
| Внутренние ненесущие стены | Перегородки внутренние 100 мм | Перегородки внутренние 150 мм | Перегородки внутренние 150 мм |
| Звукоизоляция внутренних стен/перегородок | |||
| Межэтажная строительная (черновая) лестница | Черновая деревянная лестница | Черновая деревянная лестница | Черновая деревянная лестница |
| Межэтажная постоянная (чистовая) лестница | |||
| Межкомнатные двери | |||
| Высота потолков 1 этажа | В соответствии с проектом | В соответствии с проектом | В соответствии с проектом |
| Высота потолков 2 этажа | В соответствии с проектом | В соответствии с проектом | В соответствии с проектом |
| Настилы полов и ограждения крылец, террас, балконов | |||
| Гидроизоляция полов балконов | |||
| Инженерное оснащение | |||
| Жидкостной теплый пол | |||
| Электрический теплый пол | |||
| Система вентиляции | В соответствии с проектом | В соответствии с проектом | В соответствии с проектом |
| Только вводы воды, электричества, выводы канализации | В соответствии с проектом | В соответствии с проектом | В соответствии с проектом |
| Электроразводка и электрощит | В соответствии с проектом | В соответствии с проектом | В соответствии с проектом |
| Разводка хол. и гор. водоснабжения (ХВС и ГВС) | В соответствии с проектом | В соответствии с проектом | В соответствии с проектом |
| Разводка батарей и/или системы теплого пола. Без оборудования котельной. | В соответствии с проектом | В соответствии с проектом | В соответствии с проектом |
| Иное инженерное оснащение | В соответствии с проектом | В соответствии с проектом | В соответствии с проектом |
| Подготовка участка для строительства | |||
| Устройство временного щита электроснабжения | В соответствии с проектом производства работ | В соответствии с проектом производства работ | В соответствии с проектом производства работ |
| Устройство въезда на участок | В соответствии с проектом производства работ | В соответствии с проектом производства работ | В соответствии с проектом производства работ |
| Дорога на участке до пятна застройки | |||
| Подъем пятна застройки | |||
| Подготовка пятна застройки для фундаментных работ | В соответствии с проектом производства работ | В соответствии с проектом производства работ | В соответствии с проектом производства работ |
| Перемещение или вывоз грунта из котлована фундамента | В соответствии с проектом производства работ | В соответствии с проектом производства работ | В соответствии с проектом производства работ |
| Обеспечение строительного процесса | |||
| Доставка стройматериалов | В соответствии с проектом производства работ | В соответствии с проектом производства работ | В соответствии с проектом производства работ |
| Генератор для обеспечения электричеством | В соответствии с проектом производства работ | В соответствии с проектом производства работ | В соответствии с проектом производства работ |
| Уборка и вывоз строительного мусора | В соответствии с проектом производства работ | В соответствии с проектом производства работ | В соответствии с проектом производства работ |
| Организация проживания рабочих (бытовка) | В соответствии с проектом производства работ | В соответствии с проектом производства работ | В соответствии с проектом производства работ |
| Биотуалет для рабочих | В соответствии с проектом производства работ | В соответствии с проектом производства работ | В соответствии с проектом производства работ |
| Гарантия на все выполненные работы | |||
| Гарантия | 15 лет | 15 лет | 15 лет |
| Свернуть | |||
| Минимальная | 821 453 ₽ |
| Стандарт | 1 525 556 ₽ |
| Под чистовую отделку | 1 760 257 ₽ |
| Показать подробные комплектации | |
| Сравнить 0 комплектаций Свернуть все Развернуть все | Минимальная 821 453 ₽ | Стандарт 1 525 556 ₽ | Под чистовую отделку 1 760 257 ₽ |
| Кровля | |||
| Кровельное покрытие | | | |
| Обрешетка | | | |
| Контробрешетка | | ||
| Противоконденсатная (ветро-гидроизоляционная) пленка | | | |
| Стропильная система | | | |
| Утепление чердачного перекрытия и стропильной системы | | | |
| Подшивка свесов кровли | | | |
| Подшивка потолков террас и лоджий | | | |
| Водосточная система | | ||
| Система снегозадержания | |||
| Молниезащита | |||
| Фундамент | |||
| Сваи ж/бетонные | |||
| Сваи стальные винтовые | | | |
| Лента ж/бетонная монолитная мелкозаглубленная | | | |
| Лента ж/бетонная монолитная на глубину промерзания | | ||
| Лента ж/бетонная сборная (из ФБС) на глубину промерзания | |||
| Плита ж/бетонная монолитная мелкозаглубленная | |||
| УШП (Утепленная Шведская Плита) | |||
| Бетоннная отмостка по периметру дома | |||
| Дренажная система по периметру дома | |||
| Ливневая система | |||
| Облицовка цоколя фундамента | |||
| Система контурного заземления | |||
| Стены | |||
| Несущая часть стены | | | |
| Фасадная отделка | | | |
| Ветрозащита | | | |
| Утепление стены | | | |
| Пароизоляция | | | |
| Внутренняя обшивка/штукатурка со стороны помещения | | | |
| Пол первого этажа | |||
| Несущая часть перекрытия | | | |
| Теплоизоляция цокольного перекрытия | | | |
| Стяжка/подготовка под чистый пол | | ||
| Перекрытия над первым и последующими этажами | |||
| Несущая часть перекрытия | | | |
| Звукоизоляция/теплоизоляция в перекрытии | | | |
| Стяжка/подготовка под чистый пол | | ||
| Отделка потолка нижележащего этажа | | | |
| Окна и внешние двери | |||
| Окна | | | |
| Оконные наличники | | | |
| Откосы в помещении | | ||
| Отливы снаружи | | ||
| Подоконники | | ||
| Входные двери | | | |
| Внутренние конструкции | |||
| Внутренние несущие стены | | | |
| Внутренние ненесущие стены | | | |
| Звукоизоляция внутренних стен/перегородок | | | |
| Межэтажная строительная (черновая) лестница | | | |
| Межэтажная постоянная (чистовая) лестница | | ||
| Межкомнатные двери | | | |
| Высота потолков 1 этажа | | | |
| Высота потолков 2 этажа | | | |
| Настилы полов и ограждения крылец, террас, балконов | | | |
| Гидроизоляция полов балконов | | ||
| Инженерное оснащение | |||
| Жидкостной теплый пол | |||
| Электрический теплый пол | |||
| Система вентиляции | |||
| Только вводы воды, электричества, выводы канализации | |||
| Электроразводка и электрощит | |||
| Разводка хол. и гор. водоснабжения (ХВС и ГВС) | |||
| Разводка батарей и/или системы теплого пола. Без оборудования котельной. | |||
| Иное инженерное оснащение | |||
| Подготовка участка для строительства | |||
| Устройство временного щита электроснабжения | | | |
| Устройство въезда на участок | | | |
| Дорога на участке до пятна застройки | | ||
| Подъем пятна застройки | | ||
| Подготовка пятна застройки для фундаментных работ | | ||
| Перемещение или вывоз грунта из котлована фундамента | |||
| Обеспечение строительного процесса | |||
| Доставка стройматериалов | | | |
| Генератор для обеспечения электричеством | | | |
| Уборка и вывоз строительного мусора | | | |
| Организация проживания рабочих (бытовка) | | | |
| Биотуалет для рабочих | | | |
| Гарантия на все выполненные работы | |||
| Гарантия | | | |
| Свернуть | |||
| Стандарт | 6 854 100 ₽ |
| Под чистовую отделку | 9 138 800 ₽ |
| Показать подробные комплектации | |
| Сравнить 0 комплектаций Свернуть все Развернуть все | Стандарт 6 854 100 ₽ | Под чистовую отделку 9 138 800 ₽ | |
| Кровля | |||
| Кровельное покрытие | |||
| Обрешетка | |||
| Контробрешетка | |||
| Противоконденсатная (ветро-гидроизоляционная) пленка | |||
| Стропильная система | |||
| Утепление чердачного перекрытия и стропильной системы | |||
| Подшивка свесов кровли | |||
| Подшивка потолков террас и лоджий | |||
| Водосточная система | |||
| Система снегозадержания | |||
| Молниезащита | |||
| Фундамент | |||
| Сваи ж/бетонные | |||
| Сваи стальные винтовые | |||
| Лента ж/бетонная монолитная мелкозаглубленная | |||
| Лента ж/бетонная монолитная на глубину промерзания | |||
| Лента ж/бетонная сборная (из ФБС) на глубину промерзания | |||
| Плита ж/бетонная монолитная мелкозаглубленная | |||
| УШП (Утепленная Шведская Плита) | |||
| Бетоннная отмостка по периметру дома | |||
| Дренажная система по периметру дома | |||
| Ливневая система | |||
| Облицовка цоколя фундамента | |||
| Система контурного заземления | |||
| Стены | |||
| Несущая часть стены | |||
| Фасадная отделка | |||
| Ветрозащита | |||
| Утепление стены | |||
| Пароизоляция | |||
| Внутренняя обшивка/штукатурка со стороны помещения | |||
| Пол первого этажа | |||
| Несущая часть перекрытия | |||
| Теплоизоляция цокольного перекрытия | |||
| Стяжка/подготовка под чистый пол | |||
| Перекрытия над первым и последующими этажами | |||
| Несущая часть перекрытия | |||
| Звукоизоляция/теплоизоляция в перекрытии | |||
| Стяжка/подготовка под чистый пол | |||
| Отделка потолка нижележащего этажа | |||
| Окна и внешние двери | |||
| Окна | |||
| Оконные наличники | |||
| Откосы в помещении | |||
| Отливы снаружи | |||
| Подоконники | |||
| Входные двери | |||
| Внутренние конструкции | |||
| Внутренние несущие стены | |||
| Внутренние ненесущие стены | |||
| Звукоизоляция внутренних стен/перегородок | |||
| Межэтажная строительная (черновая) лестница | |||
| Межэтажная постоянная (чистовая) лестница | |||
| Межкомнатные двери | |||
| Высота потолков 1 этажа | |||
| Высота потолков 2 этажа | |||
| Настилы полов и ограждения крылец, террас, балконов | |||
| Гидроизоляция полов балконов | |||
| Инженерное оснащение | |||
| Жидкостной теплый пол | |||
| Электрический теплый пол | |||
| Система вентиляции | |||
| Только вводы воды, электричества, выводы канализации | |||
| Электроразводка и электрощит | |||
| Разводка хол. и гор. водоснабжения (ХВС и ГВС) | |||
| Разводка батарей и/или системы теплого пола. Без оборудования котельной. | |||
| Иное инженерное оснащение | |||
| Подготовка участка для строительства | |||
| Устройство временного щита электроснабжения | |||
| Устройство въезда на участок | |||
| Дорога на участке до пятна застройки | |||
| Подъем пятна застройки | |||
| Подготовка пятна застройки для фундаментных работ | |||
| Перемещение или вывоз грунта из котлована фундамента | |||
| Обеспечение строительного процесса | |||
| Доставка стройматериалов | |||
| Генератор для обеспечения электричеством | |||
| Уборка и вывоз строительного мусора | |||
| Организация проживания рабочих (бытовка) | |||
| Биотуалет для рабочих | |||
| Гарантия на все выполненные работы | |||
| Гарантия | | | |
| Свернуть | |||
| Стандарт | 2 705 292 ₽ |
| Под чистовую отделку | 2 967 513 ₽ |
| Показать подробные комплектации | |
| Сравнить 0 комплектаций Свернуть все Развернуть все | Стандарт 2 705 292 ₽ | Под чистовую отделку 2 967 513 ₽ | |
| Кровля | |||
| Кровельное покрытие | Металлочерепица Grand Line покрытие Satin | Металлочерепица Grand Line покрытие Satin | |
| Обрешетка | 45х195 мм | 45х195 мм | |
| Контробрешетка | 45х45 мм | 45х45 мм | |
| Противоконденсатная (ветро-гидроизоляционная) пленка | | | |
| Стропильная система | Доска 45х195 мм камерной сушки | Доска 45х195 мм камерной сушки | |
| Утепление чердачного перекрытия и стропильной системы | KNAUF INSULATION TS 037 в 4 слоя (200 мм) | KNAUF INSULATION TS 037 в 4 слоя (200 мм) | |
| Подшивка свесов кровли | софиты Docke | софиты Docke | |
| Подшивка потолков террас и лоджий | софиты Docke | софиты Docke | |
| Водосточная система | ПВХ DÖCKE PREMIUM | ПВХ DÖCKE PREMIUM | |
| Система снегозадержания | NEW Grand Line | NEW Grand Line | |
| Молниезащита | |||
| Фундамент | |||
| Сваи ж/бетонные | Железобетонные сваи 150х150 | Железобетонные сваи 150х150 | |
| Сваи стальные винтовые | |||
| Лента ж/бетонная монолитная мелкозаглубленная | |||
| Лента ж/бетонная монолитная на глубину промерзания | |||
| Лента ж/бетонная сборная (из ФБС) на глубину промерзания | |||
| Плита ж/бетонная монолитная мелкозаглубленная | |||
| УШП (Утепленная Шведская Плита) | |||
| Бетоннная отмостка по периметру дома | |||
| Дренажная система по периметру дома | |||
| Ливневая система | |||
| Облицовка цоколя фундамента | Дополнительная опция | Дополнительная опция | |
| Система контурного заземления | |||
| Стены | |||
| Несущая часть стены | доска камерной сушки | доска камерной сушки | |
| Фасадная отделка | Фасадный сайдинг Docke Premium | Фасадный сайдинг Docke Premium | |
| Ветрозащита | Ондутис смарт А | Ондутис смарт А | |
| Утепление стены | KNAUF INSULATION TS 200 мм | KNAUF INSULATION TS 200 мм | |
| Пароизоляция | FINKA Premium Plus 200 мкм | FINKA Premium Plus 200 мкм | |
| Внутренняя обшивка/штукатурка со стороны помещения | Гипсокартон влагостойкий KNAUF 12,5мм | Имитация бруса | |
| Пол первого этажа | |||
| Несущая часть перекрытия | Доска камерной сушки 45х195 | Доска камерной сушки 45х195 | |
| Теплоизоляция цокольного перекрытия | KNAUF INSULATION TS 200 мм | KNAUF INSULATION TS 200 мм | |
| Стяжка/подготовка под чистый пол | Фанера 21 мм ФК нешлифованная 1525x1525 | Фанера 21 мм ФК нешлифованная 1525x1525 | |
| Перекрытия над первым и последующими этажами | |||
| Несущая часть перекрытия | Доска камерной сушки 45х195 | Доска камерной сушки 45х195 | |
| Звукоизоляция/теплоизоляция в перекрытии | KNAUF INSULATION TS | KNAUF INSULATION TS | |
| Стяжка/подготовка под чистый пол | Фанера 21 мм ФК нешлифованная 1525x1525 | Фанера 21 мм ФК нешлифованная 1525x1525 | |
| Отделка потолка нижележащего этажа | Потолок натяжной | Вагонка ШТИЛЬ | |
| Окна и внешние двери | |||
| Окна | ПВХ, профиль REHAU BLITZ
| ПВХ, профиль REHAU BLITZ
| |
| Оконные наличники | | | |
| Откосы в помещении | | | |
| Отливы снаружи | Металлические отливы белого цвета | Металлические отливы белого цвета | |
| Подоконники | ПВХ белый 200 мм | ПВХ белый 200 мм | |
| Входные двери | Металлическая дверь | Металлическая дверь | |
| Внутренние конструкции | |||
| Внутренние несущие стены | доска камерной сушки | доска камерной сушки | |
| Внутренние ненесущие стены | |||
| Звукоизоляция внутренних стен/перегородок | KNAUF INSULATION TS | KNAUF INSULATION TS | |
| Межэтажная строительная (черновая) лестница | |||
| Межэтажная постоянная (чистовая) лестница | клееная древесина хвойных пород | клееная древесина хвойных пород | |
| Межкомнатные двери | |||
| Высота потолков 1 этажа | 2,6 м | 2,6 м | |
| Высота потолков 2 этажа | 2,6 м | 2,6 м | |
| Настилы полов и ограждения крылец, террас, балконов | Доска сухая строганая 35х145 мм | Доска сухая строганая 35х145 мм | |
| Гидроизоляция полов балконов | |||
| Инженерное оснащение | |||
| Жидкостной теплый пол | |||
| Электрический теплый пол | |||
| Система вентиляции | Дополнительная опция | Дополнительная опция | |
| Только вводы воды, электричества, выводы канализации | Дополнительная опция | Дополнительная опция | |
| Электроразводка и электрощит | Дополнительная опция | Дополнительная опция | |
| Разводка хол. и гор. водоснабжения (ХВС и ГВС) | Дополнительная опция | Дополнительная опция | |
| Разводка батарей и/или системы теплого пола. Без оборудования котельной. | Дополнительная опция | Дополнительная опция | |
| Иное инженерное оснащение | Дополнительная опция | Дополнительная опция | |
| Подготовка участка для строительства | |||
| Устройство временного щита электроснабжения | |||
| Устройство въезда на участок | |||
| Дорога на участке до пятна застройки | |||
| Подъем пятна застройки | |||
| Подготовка пятна застройки для фундаментных работ | Дополнительная опция | Дополнительная опция | |
| Перемещение или вывоз грунта из котлована фундамента | |||
| Обеспечение строительного процесса | |||
| Доставка стройматериалов | Дополнительная опция | Дополнительная опция | |
| Генератор для обеспечения электричеством | |||
| Уборка и вывоз строительного мусора | Дополнительная опция | Дополнительная опция | |
| Организация проживания рабочих (бытовка) | Дополнительная опция | Дополнительная опция | |
| Биотуалет для рабочих | Дополнительная опция | Дополнительная опция | |
| Гарантия на все выполненные работы | |||
| Гарантия | До 20 лет | До 20 лет | |
| Свернуть | |||
| Минимальная | 5 711 750 ₽ |
| Стандарт | 8 204 150 ₽ |
| Под чистовую отделку | 9 346 500 ₽ |
| Показать подробные комплектации | |
| Сравнить 0 комплектаций Свернуть все Развернуть все | Минимальная 5 711 750 ₽ | Стандарт 8 204 150 ₽ | Под чистовую отделку 9 346 500 ₽ |
| Кровля | |||
| Кровельное покрытие | Металлочерепица Супермонтеррей | Металлочерепица Супермонтеррей | Металлочерепица Супермонтеррей |
| Обрешетка | Сухая доска 25х100мм. | Сухая доска 25х100мм. | Сухая доска 25х100мм. |
| Контробрешетка | Сухой брусок 50х50мм | Сухой брусок 50х50мм | Сухой брусок 50х50мм |
| Противоконденсатная (ветро-гидроизоляционная) пленка | Ондутис Smart B | Ондутис Smart B | Пленка 200мкм |
| Стропильная система | Сухая доска 40х150мм. | Сухая доска 40х150мм. | Сухая доска 40х150мм. |
| Утепление чердачного перекрытия и стропильной системы | Rockwool Лайт Баттс 150мм. | Rockwool Лайт Баттс 150мм. | Rockwool Лайт Баттс 200мм. |
| Подшивка свесов кровли | Евровагонка | Евровагонка | Строганная доска |
| Подшивка потолков террас и лоджий | Евровагонка | Строганная доска
| Строганная доска
|
| Водосточная система | Пластиковая система Docke Premium | ||
| Система снегозадержания | |||
| Молниезащита | |||
| Фундамент | |||
| Сваи ж/бетонные | |||
| Сваи стальные винтовые | |||
| Лента ж/бетонная монолитная мелкозаглубленная | |||
| Лента ж/бетонная монолитная на глубину промерзания | |||
| Лента ж/бетонная сборная (из ФБС) на глубину промерзания | |||
| Плита ж/бетонная монолитная мелкозаглубленная | |||
| УШП (Утепленная Шведская Плита) | |||
| Бетоннная отмостка по периметру дома | |||
| Дренажная система по периметру дома | |||
| Ливневая система | |||
| Облицовка цоколя фундамента | |||
| Система контурного заземления | |||
| Стены | |||
| Несущая часть стены | Сухая доска 40х150мм. | Сухая доска 40х150мм. | Сухая доска 40х150мм. |
| Фасадная отделка | Имитация бруса, карельский профиль | Имитация бруса, карельский профиль | Имитация бруса, карельский профиль |
| Ветрозащита | Ондутис Smart A 100 | Ондутис Smart A 100 | Плиты Белтермо 20мм |
| Утепление стены | Rockwool Лайт Баттс 150мм. | Rockwool Лайт Баттс 150мм. | Rockwool Лайт Баттс 200мм. |
| Пароизоляция | Ондутис Smart B | Ондутис Smart B | Пленка 200мкм |
| Внутренняя обшивка/штукатурка со стороны помещения | Гипсокартон (ГКЛ), влагостойкий | Гипсокартон (ГКЛ), влагостойкий | |
| Пол первого этажа | |||
| Несущая часть перекрытия | Сухая доска 40х100мм. | Сухая доска 40х100мм. | Сухая доска 40х100мм. |
| Теплоизоляция цокольного перекрытия | Rockwool Лайт Баттс 150мм. | Rockwool Лайт Баттс 150мм. | Rockwool Лайт Баттс 200мм. |
| Стяжка/подготовка под чистый пол | Quick Deck Professional | Quick Deck Professional | |
| Перекрытия над первым и последующими этажами | |||
| Несущая часть перекрытия | Сухая доска 40х150мм. | Сухая доска 40х200мм. | Сухая доска 40х200мм. |
| Звукоизоляция/теплоизоляция в перекрытии | Rockwool Лайт Баттс 150мм. | Rockwool Лайт Баттс 200мм. | |
| Стяжка/подготовка под чистый пол | Quick Deck Professional | Quick Deck Professional | |
| Отделка потолка нижележащего этажа | Гипсокартон (ГКЛ), влагостойкий | Гипсокартон (ГКЛ), влагостойкий | |
| Окна и внешние двери | |||
| Окна | Двухкамерные стеклопакеты ПВХ | Двухкамерные стеклопакеты ПВХ | Пятикамерный профиль Veka Softline, 70мм. |
| Оконные наличники | Евровагонка | Евровагонка | Строганная доска |
| Откосы в помещении | | | |
| Отливы снаружи | Отливы металлические. Цвет белый. | Отливы металлические. Цвет белый. | Отливы металлические. Цвет белый. |
| Подоконники | Пластиковые. Цвет Белый. | ||
| Входные двери | Металлическая Россия | Металлическая Россия | Металлическая с терморазрывом |
| Внутренние конструкции | |||
| Внутренние несущие стены | Сухая доска 40х100мм. | Сухая доска 40х100мм. | Сухая доска 40х100мм. |
| Внутренние ненесущие стены | Сухая доска 40х100мм. | Сухая доска 40х100мм. | |
| Звукоизоляция внутренних стен/перегородок | Rockwool Лайт Баттс 100мм | Rockwool Лайт Баттс 100мм | |
| Межэтажная строительная (черновая) лестница | |||
| Межэтажная постоянная (чистовая) лестница | Заводская тетива и ступени | Заводская тетива и ступени | |
| Межкомнатные двери | |||
| Высота потолков 1 этажа | 2500мм. | 2500мм. | 2700мм. |
| Высота потолков 2 этажа | 2400мм. | 2400мм. | 2400мм. |
| Настилы полов и ограждения крылец, террас, балконов | Террасная доска, Вельвет, Строганная доска | Террасная доска, Вельвет, Строганная доска | Террасная доска, Вельвет, Строганная доска |
| Гидроизоляция полов балконов | | | |
| Инженерное оснащение | |||
| Жидкостной теплый пол | |||
| Электрический теплый пол | |||
| Система вентиляции | Приточный клапан в сан. узле | Приточные клапана на Кухне, Сан. узле | Приточные клапана на Кухне, Сан. узле |
| Только вводы воды, электричества, выводы канализации | |||
| Электроразводка и электрощит | |||
| Разводка хол. и гор. водоснабжения (ХВС и ГВС) | |||
| Разводка батарей и/или системы теплого пола. Без оборудования котельной. | |||
| Иное инженерное оснащение | |||
| Подготовка участка для строительства | |||
| Устройство временного щита электроснабжения | |||
| Устройство въезда на участок | |||
| Дорога на участке до пятна застройки | |||
| Подъем пятна застройки | |||
| Подготовка пятна застройки для фундаментных работ | |||
| Перемещение или вывоз грунта из котлована фундамента | |||
| Обеспечение строительного процесса | |||
| Доставка стройматериалов | Включена доставка и выгрузка | Включена доставка и выгрузка | Включена доставка и выгрузка |
| Генератор для обеспечения электричеством | |||
| Уборка и вывоз строительного мусора | |||
| Организация проживания рабочих (бытовка) | |||
| Биотуалет для рабочих | |||
| Гарантия на все выполненные работы | |||
| Гарантия | До 3 лет | До 3 лет | До 3 лет |
| Свернуть | |||
| Стандарт | 1 453 900 ₽ |
| Показать подробные комплектации | |
| Сравнить 0 комплектаций Свернуть все Развернуть все | Стандарт 1 453 900 ₽ | ||
| Кровля | |||
| Кровельное покрытие | Монтаж кровельного материала заказчика | ||
| Обрешетка | доска 50х100 (не строганная) | ||
| Контробрешетка | брусок 50х40(не строганый) | ||
| Противоконденсатная (ветро-гидроизоляционная) пленка | | ||
| Стропильная система | доска 50х150 | ||
| Утепление чердачного перекрытия и стропильной системы | | ||
| Подшивка свесов кровли | | ||
| Подшивка потолков террас и лоджий | | ||
| Водосточная система | Монтаж материала заказчика | ||
| Система снегозадержания | Монтаж материала заказчика | ||
| Молниезащита | Монтаж материала заказчика | ||
| Фундамент | |||
| Сваи ж/бетонные | |||
| Сваи стальные винтовые | согласно проекта | ||
| Лента ж/бетонная монолитная мелкозаглубленная | |||
| Лента ж/бетонная монолитная на глубину промерзания | |||
| Лента ж/бетонная сборная (из ФБС) на глубину промерзания | |||
| Плита ж/бетонная монолитная мелкозаглубленная | |||
| УШП (Утепленная Шведская Плита) | |||
| Бетоннная отмостка по периметру дома | |||
| Дренажная система по периметру дома | |||
| Ливневая система | |||
| Облицовка цоколя фундамента | |||
| Система контурного заземления | |||
| Стены | |||
| Несущая часть стены | Доска 50х150 сухая строганная камерной сушки | ||
| Фасадная отделка | |||
| Ветрозащита | | ||
| Утепление стены | 150мм базальтовая плита Роквул лайт батс скандик | ||
| Пароизоляция | Изоспан RS Prof | ||
| Внутренняя обшивка/штукатурка со стороны помещения | | ||
| Пол первого этажа | |||
| Несущая часть перекрытия | доска 50х250 | ||
| Теплоизоляция цокольного перекрытия | | ||
| Стяжка/подготовка под чистый пол | |||
| Перекрытия над первым и последующими этажами | |||
| Несущая часть перекрытия | |||
| Звукоизоляция/теплоизоляция в перекрытии | | ||
| Стяжка/подготовка под чистый пол | доска 50х250 | ||
| Отделка потолка нижележащего этажа | |||
| Окна и внешние двери | |||
| Окна | |||
| Оконные наличники | |||
| Откосы в помещении | | ||
| Отливы снаружи | | ||
| Подоконники | |||
| Входные двери | |||
| Внутренние конструкции | |||
| Внутренние несущие стены | | ||
| Внутренние ненесущие стены | | ||
| Звукоизоляция внутренних стен/перегородок | | ||
| Межэтажная строительная (черновая) лестница | | ||
| Межэтажная постоянная (чистовая) лестница | |||
| Межкомнатные двери | |||
| Высота потолков 1 этажа | согласно проекта | ||
| Высота потолков 2 этажа | согласно проекта | ||
| Настилы полов и ограждения крылец, террас, балконов | |||
| Гидроизоляция полов балконов | |||
| Инженерное оснащение | |||
| Жидкостной теплый пол | |||
| Электрический теплый пол | |||
| Система вентиляции | | ||
| Только вводы воды, электричества, выводы канализации | | ||
| Электроразводка и электрощит | |||
| Разводка хол. и гор. водоснабжения (ХВС и ГВС) | |||
| Разводка батарей и/или системы теплого пола. Без оборудования котельной. | |||
| Иное инженерное оснащение | |||
| Подготовка участка для строительства | |||
| Устройство временного щита электроснабжения | |||
| Устройство въезда на участок | |||
| Дорога на участке до пятна застройки | |||
| Подъем пятна застройки | |||
| Подготовка пятна застройки для фундаментных работ | |||
| Перемещение или вывоз грунта из котлована фундамента | |||
| Обеспечение строительного процесса | |||
| Доставка стройматериалов | | ||
| Генератор для обеспечения электричеством | |||
| Уборка и вывоз строительного мусора | |||
| Организация проживания рабочих (бытовка) | |||
| Биотуалет для рабочих | |||
| Гарантия на все выполненные работы | |||
| Гарантия | |||
| Свернуть | |||
| Минимальная | 2 388 550 ₽ |
| Стандарт | 2 803 950 ₽ |
| Под чистовую отделку | 2 803 950 ₽ |
| Показать подробные комплектации | |
| Сравнить 0 комплектаций Свернуть все Развернуть все | Минимальная 2 388 550 ₽ | Стандарт 2 803 950 ₽ | Под чистовую отделку 2 803 950 ₽ |
| Кровля | |||
| Кровельное покрытие | Металлочерепица (цвет на выбор бордов | Металлочерепица (цвет на выбор бордов | Металлочерепица (цвет на выбор бордов |
| Обрешетка | обрезная доска 20х100/150 мм. с шагом 300 мм | обрезная доска 20х100/150 мм. с шагом 300 мм | обрезная доска 20х100/150 мм. с шагом 300 мм |
| Контробрешетка | 20х40 мм | 20х40 мм | 20х40 мм |
| Противоконденсатная (ветро-гидроизоляционная) пленка | ветро-гидроизоляционная пленка с про | ветро-гидроизоляционная пленка с про | ветро-гидроизоляционная пленка с про |
| Стропильная система | обрезная доска 40х150 мм | обрезная доска 40х150 мм | обрезная доска 40х150 мм |
| Утепление чердачного перекрытия и стропильной системы | |||
| Подшивка свесов кровли | Свес 500 мм - подшивается евровагонка 88м | Свес 500 мм - подшивается евровагонка 88м | Свес 500 мм - подшивается евровагонка 88м |
| Подшивка потолков террас и лоджий | евровагонка 88мм класса «АВ» | евровагонка 88мм класса «АВ» | евровагонка 88мм класса «АВ» |
| Водосточная система | Водосточная система ПВХ | Водосточная система ПВХ | Водосточная система ПВХ |
| Система снегозадержания | |||
| Молниезащита | |||
| Фундамент | |||
| Сваи ж/бетонные | |||
| Сваи стальные винтовые | трубы диаметром 108 мм и общей длиной ст | трубы диаметром 108 мм и общей длиной ст | трубы диаметром 108 мм и общей длиной ст |
| Лента ж/бетонная монолитная мелкозаглубленная | |||
| Лента ж/бетонная монолитная на глубину промерзания | |||
| Лента ж/бетонная сборная (из ФБС) на глубину промерзания | |||
| Плита ж/бетонная монолитная мелкозаглубленная | |||
| УШП (Утепленная Шведская Плита) | |||
| Бетоннная отмостка по периметру дома | |||
| Дренажная система по периметру дома | |||
| Ливневая система | |||
| Облицовка цоколя фундамента | |||
| Система контурного заземления | |||
| Стены | |||
| Несущая часть стены | Стойки, пояса, укосины, ригели усиленн | Стойки, пояса, укосины, ригели усиленн | Стойки, пояса, укосины, ригели усиленн |
| Фасадная отделка | евровагонка 88мм класса «АВ» | Имитация бруса 16х135 мм сорт «АВ» по ко | Имитация бруса 16х135 мм сорт «АВ» по ко |
| Ветрозащита | ветро-влагозащита | ветро-влагозащита | ветро-влагозащита |
| Утепление стены | минеральные плиты– 150 мм. | минеральные плиты– 150 мм. | минеральные плиты– 150 мм. |
| Пароизоляция | Пароизоляция с проклейкой швов . | Пароизоляция с проклейкой швов . | Пароизоляция с проклейкой швов . |
| Внутренняя обшивка/штукатурка со стороны помещения | евровагонка 88мм класса «АВ» | евровагонка 88мм класса «АВ» | евровагонка 88мм класса «АВ» |
| Пол первого этажа | |||
| Несущая часть перекрытия | Брус 150х150 мм.
Обрабатывается антисеп | Брус 150х150 мм.
Обрабатывается антисеп | Брус 150х150 мм.
Обрабатывается антисеп |
| Теплоизоляция цокольного перекрытия | минеральные плиты 200 мм. | минеральные плиты 200 мм. | минеральные плиты 200 мм. |
| Стяжка/подготовка под чистый пол | доска пола 28*140 мм | доска пола 28*140 мм | доска пола 28*140 мм |
| Перекрытия над первым и последующими этажами | |||
| Несущая часть перекрытия | бруса 40х200 мм шаг 600 мм. | бруса 40х200 мм шаг 600 мм. | бруса 40х200 мм шаг 600 мм. |
| Звукоизоляция/теплоизоляция в перекрытии | минеральные плиты– 200 мм. | минеральные плиты– 200 мм. | минеральные плиты– 200 мм. |
| Стяжка/подготовка под чистый пол | доска пола 28*140 мм | доска пола 28*140 мм | доска пола 28*140 мм |
| Отделка потолка нижележащего этажа | евровагонка 88мм класса «АВ» | евровагонка 88мм класса «АВ» | евровагонка 88мм класса «АВ» |
| Окна и внешние двери | |||
| Окна | Двухкамерные ПВХ
Размеры (согласно п | Двухкамерные ПВХ
Размеры (согласно п | Двухкамерные ПВХ
Размеры (согласно п |
| Оконные наличники | деревянные | деревянные | деревянные |
| Откосы в помещении | деревянные | деревянные | деревянные |
| Отливы снаружи | |||
| Подоконники | ПВХ | ПВХ | ПВХ |
| Входные двери | Металлическая 0,8х2м утеплённая с фурн | Металлическая 0,8х2м утеплённая с фурн | Металлическая 0,8х2м утеплённая с фурн |
| Внутренние конструкции | |||
| Внутренние несущие стены | |||
| Внутренние ненесущие стены | |||
| Звукоизоляция внутренних стен/перегородок | |||
| Межэтажная строительная (черновая) лестница | Одномаршевая или двухмаршевая ширино | ||
| Межэтажная постоянная (чистовая) лестница | Одномаршевая или двухмаршевая ширино | Одномаршевая или двухмаршевая ширино | |
| Межкомнатные двери | Глухие деревянные филенчатые с ручкам | Глухие деревянные филенчатые с ручкам | Глухие деревянные филенчатые с ручкам |
| Высота потолков 1 этажа | 2,5м | 2,5м | 2,5м |
| Высота потолков 2 этажа | 2,4м
| 2,4м | 2,4м
|
| Настилы полов и ограждения крылец, террас, балконов | террасная деревянная доска 27мм (листв | террасная деревянная доска 27мм (листв | террасная деревянная доска 27мм (листв |
| Гидроизоляция полов балконов | + | + | + |
| Инженерное оснащение | |||
| Жидкостной теплый пол | |||
| Электрический теплый пол | |||
| Система вентиляции | |||
| Только вводы воды, электричества, выводы канализации | |||
| Электроразводка и электрощит | |||
| Разводка хол. и гор. водоснабжения (ХВС и ГВС) | |||
| Разводка батарей и/или системы теплого пола. Без оборудования котельной. | |||
| Иное инженерное оснащение | |||
| Подготовка участка для строительства | |||
| Устройство временного щита электроснабжения | |||
| Устройство въезда на участок | |||
| Дорога на участке до пятна застройки | |||
| Подъем пятна застройки | |||
| Подготовка пятна застройки для фундаментных работ | |||
| Перемещение или вывоз грунта из котлована фундамента | |||
| Обеспечение строительного процесса | |||
| Доставка стройматериалов | + | + | + |
| Генератор для обеспечения электричеством | |||
| Уборка и вывоз строительного мусора | + | + | + |
| Организация проживания рабочих (бытовка) | |||
| Биотуалет для рабочих | + | + | + |
| Гарантия на все выполненные работы | |||
| Гарантия | 25 лет | 25 лет | 25 лет |
| Свернуть | |||
| Минимальная | 2 596 250 ₽ |
| Показать подробные комплектации | |
| Сравнить 0 комплектаций Свернуть все Развернуть все | Минимальная 2 596 250 ₽ | ||
| Кровля | |||
| Кровельное покрытие | | ||
| Обрешетка | | ||
| Контробрешетка | | ||
| Противоконденсатная (ветро-гидроизоляционная) пленка | | ||
| Стропильная система | | ||
| Утепление чердачного перекрытия и стропильной системы | | ||
| Подшивка свесов кровли | | ||
| Подшивка потолков террас и лоджий | | ||
| Водосточная система | | ||
| Система снегозадержания | | ||
| Молниезащита | | ||
| Фундамент | |||
| Сваи ж/бетонные | | ||
| Сваи стальные винтовые | | ||
| Лента ж/бетонная монолитная мелкозаглубленная | | ||
| Лента ж/бетонная монолитная на глубину промерзания | | ||
| Лента ж/бетонная сборная (из ФБС) на глубину промерзания | | ||
| Плита ж/бетонная монолитная мелкозаглубленная | | ||
| УШП (Утепленная Шведская Плита) | | ||
| Бетоннная отмостка по периметру дома | | ||
| Дренажная система по периметру дома | | ||
| Ливневая система | | ||
| Облицовка цоколя фундамента | | ||
| Система контурного заземления | | ||
| Стены | |||
| Несущая часть стены | | ||
| Фасадная отделка | | ||
| Ветрозащита | | ||
| Утепление стены | | ||
| Пароизоляция | | ||
| Внутренняя обшивка/штукатурка со стороны помещения | | ||
| Пол первого этажа | |||
| Несущая часть перекрытия | | ||
| Теплоизоляция цокольного перекрытия | | ||
| Стяжка/подготовка под чистый пол | | ||
| Перекрытия над первым и последующими этажами | |||
| Несущая часть перекрытия | | ||
| Звукоизоляция/теплоизоляция в перекрытии | | ||
| Стяжка/подготовка под чистый пол | | ||
| Отделка потолка нижележащего этажа | | ||
| Окна и внешние двери | |||
| Окна | | ||
| Оконные наличники | | ||
| Откосы в помещении | | ||
| Отливы снаружи | | ||
| Подоконники | | ||
| Входные двери | | ||
| Внутренние конструкции | |||
| Внутренние несущие стены | | ||
| Внутренние ненесущие стены | | ||
| Звукоизоляция внутренних стен/перегородок | | ||
| Межэтажная строительная (черновая) лестница | | ||
| Межэтажная постоянная (чистовая) лестница | | ||
| Межкомнатные двери | | ||
| Высота потолков 1 этажа | | ||
| Высота потолков 2 этажа | | ||
| Настилы полов и ограждения крылец, террас, балконов | | ||
| Гидроизоляция полов балконов | | ||
| Инженерное оснащение | |||
| Жидкостной теплый пол | | ||
| Электрический теплый пол | | ||
| Система вентиляции | | ||
| Только вводы воды, электричества, выводы канализации | | ||
| Электроразводка и электрощит | | ||
| Разводка хол. и гор. водоснабжения (ХВС и ГВС) | | ||
| Разводка батарей и/или системы теплого пола. Без оборудования котельной. | | ||
| Иное инженерное оснащение | | ||
| Подготовка участка для строительства | |||
| Устройство временного щита электроснабжения | | ||
| Устройство въезда на участок | | ||
| Дорога на участке до пятна застройки | | ||
| Подъем пятна застройки | | ||
| Подготовка пятна застройки для фундаментных работ | | ||
| Перемещение или вывоз грунта из котлована фундамента | | ||
| Обеспечение строительного процесса | |||
| Доставка стройматериалов | | ||
| Генератор для обеспечения электричеством | | ||
| Уборка и вывоз строительного мусора | | ||
| Организация проживания рабочих (бытовка) | | ||
| Биотуалет для рабочих | | ||
| Гарантия на все выполненные работы | |||
| Гарантия | 5 лет | ||
| Свернуть | |||
| Под чистовую отделку | 2 388 550 ₽ |
| Показать подробные комплектации | |
| Сравнить 0 комплектаций Свернуть все Развернуть все | Под чистовую отделку 2 388 550 ₽ | ||
| Кровля | |||
| Кровельное покрытие | Металлочерепица 0,5 мм, Grand Line, цвет на выбор. | ||
| Обрешетка | Брусок из древесины хвойных пород камерной сушки 25*100 мм | ||
| Контробрешетка | Брусок из древесины хвойных пород камерной сушки 40*40 мм | ||
| Противоконденсатная (ветро-гидроизоляционная) пленка | Гидро-,ветроизоляционная мембрана диффузионная ISOBOX | ||
| Стропильная система | Доска из древесины хвойных пород камерной сушки 40*200 мм | ||
| Утепление чердачного перекрытия и стропильной системы | Утеплитель Rockwool Лайт Баттс Скандик / Paroc Extra Light четыре слоя | ||
| Подшивка свесов кровли | Евровагонка 88х12,5 мм из древесины хвойных пород, сорт А-В / Перфорир | ||
| Подшивка потолков террас и лоджий | Евровагонка 88х12,5 мм из древесины хвойных пород, сорт А-В / Перфорир | ||
| Водосточная система | Водосточная система пластиковая Технониколь/Docke | ||
| Система снегозадержания | Снегозадержание трубчатое | ||
| Молниезащита | |||
| Фундамент | |||
| Сваи ж/бетонные | |||
| Сваи стальные винтовые | Винтовые сваи Ø108 мм, толщина 4 мм, забуренные на глубину промерзани | ||
| Лента ж/бетонная монолитная мелкозаглубленная | |||
| Лента ж/бетонная монолитная на глубину промерзания | |||
| Лента ж/бетонная сборная (из ФБС) на глубину промерзания | |||
| Плита ж/бетонная монолитная мелкозаглубленная | |||
| УШП (Утепленная Шведская Плита) | |||
| Бетоннная отмостка по периметру дома | |||
| Дренажная система по периметру дома | |||
| Ливневая система | Отлив металлический в цвет кровли по периметру цоколя. | ||
| Облицовка цоколя фундамента | |||
| Система контурного заземления | Система заземления | ||
| Стены | |||
| Несущая часть стены | Стойки сечением 40х150 мм из древесины хвойных пород камерной сушки. Н | ||
| Фасадная отделка | Деревянные панели сечением 140х16 мм с пазогребневой системой соединен | ||
| Ветрозащита | Гидро-, ветрозащита ISOBOX 95 мембрана диффузионная | ||
| Утепление стены | Утеплитель Rockwool Лайт Баттс Скандик / Paroc Extra Light, укладка в | ||
| Пароизоляция | Паро-гидроизоляционная мембрана ЮТАФОЛ | ||
| Внутренняя обшивка/штукатурка со стороны помещения | Вагонка из древесины хвойных пород, сорт А-В 12,5 мм. Отделка осуществ | ||
| Пол первого этажа | |||
| Несущая часть перекрытия | Балки 40х200 мм из древесины хвойных пород камерной сушки с антисептир | ||
| Теплоизоляция цокольного перекрытия | Утеплитель Rockwool Лайт Баттс Скандик / Paroc Extra Light четыре слоя | ||
| Стяжка/подготовка под чистый пол | Доска шпунтованная толщиной 35 мм | ||
| Перекрытия над первым и последующими этажами | |||
| Несущая часть перекрытия | Балки из древесины хвойных пород камерной сушки сечением 40х200 мм | ||
| Звукоизоляция/теплоизоляция в перекрытии | Утеплитель Rockwool Лайт Баттс Скандик / Paroc Extra Light в два слоя | ||
| Стяжка/подготовка под чистый пол | Доска шпунтованная толщиной 35 мм | ||
| Отделка потолка нижележащего этажа | Вагонка из древесины хвойных пород, сорт А-В. Толщина не превышает 12, | ||
| Окна и внешние двери | |||
| Окна | Пластиковые, профиль REHAU BLITZ 60 мм с двухкамерным стеклопакетом | ||
| Оконные наличники | Деревянные/Металлические | ||
| Откосы в помещении | Деревянные | ||
| Отливы снаружи | Металлические | ||
| Подоконники | Деревянные | ||
| Входные двери | Металлический дверной блок размером 2060х960 мм, укомплектованный замк | ||
| Внутренние конструкции | |||
| Внутренние несущие стены | Стойки сечением 40х100 мм и 40х150 мм из древесины хвойных пород камер | ||
| Внутренние ненесущие стены | Стойки сечением 40х100 мм из древесины хвойных пород камерной сушки | ||
| Звукоизоляция внутренних стен/перегородок | |||
| Межэтажная строительная (черновая) лестница | Техническая (один марш) из доски сечением 40х200 мм из древесины хвойн | ||
| Межэтажная постоянная (чистовая) лестница | |||
| Межкомнатные двери | |||
| Высота потолков 1 этажа | Не менее 2600 мм (чистовая) | ||
| Высота потолков 2 этажа | Не менее 2500 мм (чистовая) | ||
| Настилы полов и ограждения крылец, террас, балконов | Палубная доска сухая строганная импрегнированная 32х140х6000мм | ||
| Гидроизоляция полов балконов | |||
| Инженерное оснащение | |||
| Жидкостной теплый пол | |||
| Электрический теплый пол | |||
| Система вентиляции | Вентиляционный стояк
ПВХ
| ||
| Только вводы воды, электричества, выводы канализации | Ввод воды: гильза с уклоном не менее 10 мм/м
Ввод канализации: выпус | ||
| Электроразводка и электрощит | Электрощиток 24 модуля 1 вводной автомат АВВ 25А 4 автомата 16А; 2 авт | ||
| Разводка хол. и гор. водоснабжения (ХВС и ГВС) | Укладка трубопровода внутри дома без установки. Трубы полипропилен | ||
| Разводка батарей и/или системы теплого пола. Без оборудования котельной. | |||
| Иное инженерное оснащение | |||
| Подготовка участка для строительства | |||
| Устройство временного щита электроснабжения | | ||
| Устройство въезда на участок | |||
| Дорога на участке до пятна застройки | |||
| Подъем пятна застройки | |||
| Подготовка пятна застройки для фундаментных работ | | ||
| Перемещение или вывоз грунта из котлована фундамента | | ||
| Обеспечение строительного процесса | |||
| Доставка стройматериалов | | ||
| Генератор для обеспечения электричеством | |||
| Уборка и вывоз строительного мусора | |||
| Организация проживания рабочих (бытовка) | Металлические отапливаемые бытовки | ||
| Биотуалет для рабочих | | ||
| Гарантия на все выполненные работы | |||
| Гарантия | Гарантия на конструктив от 20 лет | ||
| Свернуть | |||
| Минимальная | 2 803 950 ₽ |
| Показать подробные комплектации | |
| Сравнить 0 комплектаций Свернуть все Развернуть все | Минимальная 2 803 950 ₽ | ||
| Кровля | |||
| Кровельное покрытие | Металлочерепица Grand Line толщиной 0,5 мм, | ||
| Обрешетка | | ||
| Контробрешетка | |||
| Противоконденсатная (ветро-гидроизоляционная) пленка | | ||
| Стропильная система | Стропила, чердачные балки, ригеля, кон | ||
| Утепление чердачного перекрытия и стропильной системы | Базальтовый плитный (50х600х800 мм) утепли | ||
| Подшивка свесов кровли | | ||
| Подшивка потолков террас и лоджий | Евровагонка сечением 12х88мм из древеси | ||
| Водосточная система | |||
| Система снегозадержания | |||
| Молниезащита | |||
| Фундамент | |||
| Сваи ж/бетонные | Винтовые сваи Ø108мм, L=2500мм | ||
| Сваи стальные винтовые | |||
| Лента ж/бетонная монолитная мелкозаглубленная | |||
| Лента ж/бетонная монолитная на глубину промерзания | |||
| Лента ж/бетонная сборная (из ФБС) на глубину промерзания | |||
| Плита ж/бетонная монолитная мелкозаглубленная | |||
| УШП (Утепленная Шведская Плита) | |||
| Бетоннная отмостка по периметру дома | |||
| Дренажная система по периметру дома | |||
| Ливневая система | |||
| Облицовка цоколя фундамента | |||
| Система контурного заземления | |||
| Стены | |||
| Несущая часть стены | Стойки сечением 45х145 мм из древесины х | ||
| Фасадная отделка | Имитация бруса сечением 140х16 мм из дре | ||
| Ветрозащита | | ||
| Утепление стены | Теплоизоляция инновационным базальто | ||
| Пароизоляция | | ||
| Внутренняя обшивка/штукатурка со стороны помещения | | ||
| Пол первого этажа | |||
| Несущая часть перекрытия | Балки перекрытия сечением 50х200 мм (±10 м | ||
| Теплоизоляция цокольного перекрытия | Теплоизоляция инновационным базальто | ||
| Стяжка/подготовка под чистый пол | Покрытие полов: доска шпунтованная то | ||
| Перекрытия над первым и последующими этажами | |||
| Несущая часть перекрытия | Балки перекрытия сечением 50х200 мм (±10 м | ||
| Звукоизоляция/теплоизоляция в перекрытии | Базальтовый плитный (50х600х800 мм) утепли | ||
| Стяжка/подготовка под чистый пол | | ||
| Отделка потолка нижележащего этажа | Покрытие полов: доска шпунтованная то | ||
| Окна и внешние двери | |||
| Окна | Пластиковые, профиль KBE / REHAU (Цвет белы | ||
| Оконные наличники | | ||
| Откосы в помещении | | ||
| Отливы снаружи | Внешние отливы металлические, белого | ||
| Подоконники | |||
| Входные двери | Металлический дверной блок размером 20 | ||
| Внутренние конструкции | |||
| Внутренние несущие стены | Стойки, обвязки, усиления: сечением 40х1 | ||
| Внутренние ненесущие стены | Стойки, обвязки, усиления: сечением 40х1 | ||
| Звукоизоляция внутренних стен/перегородок | Базальтовый плитный (50х600х800 мм) утепли | ||
| Межэтажная строительная (черновая) лестница | |||
| Межэтажная постоянная (чистовая) лестница | | ||
| Межкомнатные двери | |||
| Высота потолков 1 этажа | 2,7 м | ||
| Высота потолков 2 этажа | 2,6 м | ||
| Настилы полов и ограждения крылец, террас, балконов | | ||
| Гидроизоляция полов балконов | | ||
| Инженерное оснащение | |||
| Жидкостной теплый пол | |||
| Электрический теплый пол | |||
| Система вентиляции | |||
| Только вводы воды, электричества, выводы канализации | |||
| Электроразводка и электрощит | |||
| Разводка хол. и гор. водоснабжения (ХВС и ГВС) | |||
| Разводка батарей и/или системы теплого пола. Без оборудования котельной. | |||
| Иное инженерное оснащение | |||
| Подготовка участка для строительства | |||
| Устройство временного щита электроснабжения | |||
| Устройство въезда на участок | |||
| Дорога на участке до пятна застройки | |||
| Подъем пятна застройки | |||
| Подготовка пятна застройки для фундаментных работ | |||
| Перемещение или вывоз грунта из котлована фундамента | |||
| Обеспечение строительного процесса | |||
| Доставка стройматериалов | Бесплатно до 50 км от МКАД | ||
| Генератор для обеспечения электричеством | |||
| Уборка и вывоз строительного мусора | |||
| Организация проживания рабочих (бытовка) | | ||
| Биотуалет для рабочих | | ||
| Гарантия на все выполненные работы | |||
| Гарантия | 5 лет | ||
| Свернуть | |||