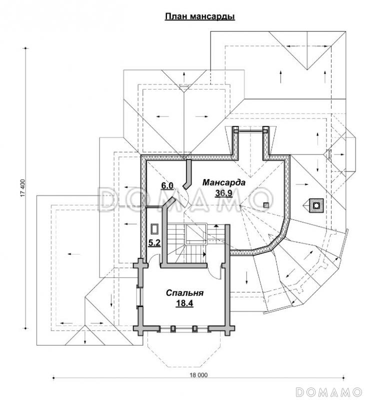
Семикомнатный жилой дом со стенами из клееного бруса решен в формах «деревянного модерна», сочетая западноевропейскую и «неорусскую» стилистику. В объеме дома, построенном на сочетании двух «восьмериков», доминирует центральная часть, завершенная шатровой складчатой кровлей. Пространственно ее уравновешивает, придавая динамику композиционному решению, башенка с высоким шпилем. В центральном «восьмерике» располагается двусветная гостиная и находящийся над ней мансардный кабинет с антресолью. Объемное решение гостиной подчеркивает центрически расположенный камин-очаг.
Сложное объемное построение дома, при котором отсутствует разделение на главный и второстепенные фасады, не противоречит функциональности здания. В нем предусмотрена удобная кухня-столовая, четыре блока спальных апартаментов с индивидуальными ванными комнатами и гардеробными, комфортная междуэтажная лестница и лифт, связывающий все три уровня дома.
| Цена, руб. | Сроки, дней | |||
| Комплект архитектурно-строительных чертежей (АС) | Входит в стоимость | Готов к отправке | ||
| Цена, руб. | Сроки, дней | |||
| Адаптация фундамента (изменение типа фундамента) | по запросу | 14 рабочих дней | ||
| Дизайн интерьера (стоимость от 2200руб. за квад.метр площади) | по запросу | 30 рабочих дней | ||
| Внесение изменений в проект | по запросу | 20 рабочих дней | ||
| Фэншуй дома | 20 000 ₽ | 14 рабочих дней | в корзину | |
| Фэншуй участка | 15 000 ₽ | 14 рабочих дней | в корзину | |
| Фэншуй полная консультация дом+участок с выездом на объект | 100 000 ₽ | 30 рабочих дней | в корзину | |
| Минимальная | 21 861 000 ₽ |
| Стандарт | 33 312 000 ₽ |
| Под чистовую отделку | 38 864 000 ₽ |
| Показать подробные комплектации | |
| Сравнить 0 комплектаций Свернуть все Развернуть все | Минимальная 21 861 000 ₽ | Стандарт 33 312 000 ₽ | Под чистовую отделку 38 864 000 ₽ |
| Кровля | |||
| Кровельное покрытие | Комплект кровли - Металлочерепица GL Classic 0,50 мм, цвет на ? | Комплект кровли - Металлочерепица GL Classic 0,50 мм, цвет на ? | Комплект кровли - Металлочерепица GL Classic 0,50 мм, цвет на ? |
| Обрешетка | Доска сухая строганная 20*96 | Доска сухая строганная 20*96 | Доска сухая строганная 20*96 |
| Контробрешетка | Брусок сухой строганный с 2-х сторон 40х50 | Брусок сухой строганный с 2-х сторон 40х50 | Брусок сухой строганный с 2-х сторон 40х50 |
| Противоконденсатная (ветро-гидроизоляционная) пленка | Пленка влаговетрозащитная Delta | Пленка влаговетрозащитная Delta | Пленка влаговетрозащитная Delta |
| Стропильная система | Доска сухая строганная 46*196 | Доска сухая строганная 46*196 | Доска сухая строганная 46*196 |
| Утепление чердачного перекрытия и стропильной системы | Кнауф норд 250 мм | Кнауф норд 250 мм | |
| Подшивка свесов кровли | Доска сухая строганная 20*96 сосна, сорт АВ + сетка | Доска сухая строганная 20*96 сосна, сорт АВ + сетка | |
| Подшивка потолков террас и лоджий | Доска сухая строганная 20*96 сосна, сорт АВ | Доска сухая строганная 20*96 сосна, сорт АВ | |
| Водосточная система | На выбор | На выбор | На выбор |
| Система снегозадержания | да | да | да |
| Молниезащита | |||
| Фундамент | |||
| Сваи ж/бетонные | Сваи 200*200*3000 мм с металлическим оголовком | Сваи 200*200*3000 мм с металлическим оголовком | Сваи 200*200*3000 мм с металлическим оголовком |
| Сваи стальные винтовые | |||
| Лента ж/бетонная монолитная мелкозаглубленная | |||
| Лента ж/бетонная монолитная на глубину промерзания | |||
| Лента ж/бетонная сборная (из ФБС) на глубину промерзания | |||
| Плита ж/бетонная монолитная мелкозаглубленная | Железобетонная плита 200 м | Железобетонная плита 200 м | Железобетонная плита 200 м |
| УШП (Утепленная Шведская Плита) | |||
| Бетоннная отмостка по периметру дома | |||
| Дренажная система по периметру дома | |||
| Ливневая система | |||
| Облицовка цоколя фундамента | |||
| Система контурного заземления | |||
| Стены | |||
| Несущая часть стены | Панели CLT внутр.и внешней отделкой 270 мм | Панели CLT внутр.и внешней отделкой 270 мм | Панели CLT внутр.и внешней отделкой 270 мм |
| Фасадная отделка | Доска сухая строганная 20*120/140/160/180 - на выбор | Доска сухая строганная 20*120/140/160/180 - на выбор | Доска сухая строганная 20*120/140/160/180 - на выбор |
| Ветрозащита | Пленка влаговетрозащитная Delta | Пленка влаговетрозащитная Delta | Пленка влаговетрозащитная Delta |
| Утепление стены | да | да | да |
| Пароизоляция | |||
| Внутренняя обшивка/штукатурка со стороны помещения | Отделка внутри доска 20х120/140/160/180 - на выбор | Отделка внутри доска 20х120/140/160/180 - на выбор | Отделка внутри доска 20х120/140/160/180 - на выбор |
| Пол первого этажа | |||
| Несущая часть перекрытия | CLT панели 320 мм | CLT панели 320 мм | CLT панели 320 мм |
| Теплоизоляция цокольного перекрытия | да | да | да |
| Стяжка/подготовка под чистый пол | да | да | да |
| Перекрытия над первым и последующими этажами | |||
| Несущая часть перекрытия | |||
| Звукоизоляция/теплоизоляция в перекрытии | |||
| Стяжка/подготовка под чистый пол | |||
| Отделка потолка нижележащего этажа | |||
| Окна и внешние двери | |||
| Окна | Окно м/пластиковые 70 мм, рамные или безрамные - на выбор | Окно м/пластиковые 70 мм, рамные или безрамные - на выбор | Окно м/пластиковые 70 мм, рамные или безрамные - на выбор |
| Оконные наличники | да | да | |
| Откосы в помещении | да | ||
| Отливы снаружи | да | да | |
| Подоконники | да | ||
| Входные двери | Дверь входная металлическая с терморазрывом (временна | Дверь входная металлическая с терморазрывом (временна | Дверь входная металлическая с терморазрывом (временна |
| Внутренние конструкции | |||
| Внутренние несущие стены | CLT внутри с кабель каналами | CLT внутри с кабель каналами | CLT внутри с кабель каналами |
| Внутренние ненесущие стены | CLT внутри с кабель каналами + каркасные | CLT внутри с кабель каналами + каркасные | |
| Звукоизоляция внутренних стен/перегородок | да | да | да |
| Межэтажная строительная (черновая) лестница | |||
| Межэтажная постоянная (чистовая) лестница | |||
| Межкомнатные двери | |||
| Высота потолков 1 этажа | 3,4 метра | 3,4 метра | 3,4 метра |
| Высота потолков 2 этажа | |||
| Настилы полов и ограждения крылец, террас, балконов | Доска 25*140 - сорт АВ | Доска 25*140 - сорт АВ | |
| Гидроизоляция полов балконов | |||
| Инженерное оснащение | |||
| Жидкостной теплый пол | да | ||
| Электрический теплый пол | да | ||
| Система вентиляции | |||
| Только вводы воды, электричества, выводы канализации | да | ||
| Электроразводка и электрощит | да | ||
| Разводка хол. и гор. водоснабжения (ХВС и ГВС) | да | ||
| Разводка батарей и/или системы теплого пола. Без оборудования котельной. | да | ||
| Иное инженерное оснащение | Вся котельная целиком в сборе | ||
| Подготовка участка для строительства | |||
| Устройство временного щита электроснабжения | |||
| Устройство въезда на участок | |||
| Дорога на участке до пятна застройки | |||
| Подъем пятна застройки | |||
| Подготовка пятна застройки для фундаментных работ | |||
| Перемещение или вывоз грунта из котлована фундамента | |||
| Обеспечение строительного процесса | |||
| Доставка стройматериалов | |||
| Генератор для обеспечения электричеством | |||
| Уборка и вывоз строительного мусора | |||
| Организация проживания рабочих (бытовка) | |||
| Биотуалет для рабочих | |||
| Гарантия на все выполненные работы | |||
| Гарантия | 5 | 5 | 5 |
| Свернуть | |||
| Минимальная | 3 470 000 ₽ |
| Стандарт | 6 940 000 ₽ |
| Под чистовую отделку | 12 145 000 ₽ |
| Показать подробные комплектации | |
| Сравнить 0 комплектаций Свернуть все Развернуть все | Минимальная 3 470 000 ₽ | Стандарт 6 940 000 ₽ | Под чистовую отделку 12 145 000 ₽ |
| Кровля | |||
| Кровельное покрытие | Рубероид; Металлочерепица. | Рубероид; Металлочерепица;
Мягкая кровля. | Металлочерепица; Мягкая кровля; Цементно-песчаная черепица;
Натуральн |
| Обрешетка | | | |
| Контробрешетка | | | |
| Противоконденсатная (ветро-гидроизоляционная) пленка | | | |
| Стропильная система | | | |
| Утепление чердачного перекрытия и стропильной системы | | | |
| Подшивка свесов кровли | | | |
| Подшивка потолков террас и лоджий | | | |
| Водосточная система | | | |
| Система снегозадержания | | | |
| Молниезащита | | | |
| Фундамент | |||
| Сваи ж/бетонные | | | |
| Сваи стальные винтовые | | | |
| Лента ж/бетонная монолитная мелкозаглубленная | | | |
| Лента ж/бетонная монолитная на глубину промерзания | | | |
| Лента ж/бетонная сборная (из ФБС) на глубину промерзания | | | |
| Плита ж/бетонная монолитная мелкозаглубленная | | | |
| УШП (Утепленная Шведская Плита) | | | |
| Бетоннная отмостка по периметру дома | | | |
| Дренажная система по периметру дома | | | |
| Ливневая система | | | |
| Облицовка цоколя фундамента | | | |
| Система контурного заземления | | | |
| Стены | |||
| Несущая часть стены | |||
| Фасадная отделка | |||
| Ветрозащита | |||
| Утепление стены | |||
| Пароизоляция | |||
| Внутренняя обшивка/штукатурка со стороны помещения | |||
| Пол первого этажа | |||
| Несущая часть перекрытия | |||
| Теплоизоляция цокольного перекрытия | |||
| Стяжка/подготовка под чистый пол | |||
| Перекрытия над первым и последующими этажами | |||
| Несущая часть перекрытия | |||
| Звукоизоляция/теплоизоляция в перекрытии | |||
| Стяжка/подготовка под чистый пол | |||
| Отделка потолка нижележащего этажа | |||
| Окна и внешние двери | |||
| Окна | | ||
| Оконные наличники | | ||
| Откосы в помещении | | ||
| Отливы снаружи | | ||
| Подоконники | | ||
| Входные двери | | ||
| Внутренние конструкции | |||
| Внутренние несущие стены | |||
| Внутренние ненесущие стены | |||
| Звукоизоляция внутренних стен/перегородок | |||
| Межэтажная строительная (черновая) лестница | |||
| Межэтажная постоянная (чистовая) лестница | |||
| Межкомнатные двери | |||
| Высота потолков 1 этажа | |||
| Высота потолков 2 этажа | |||
| Настилы полов и ограждения крылец, террас, балконов | |||
| Гидроизоляция полов балконов | |||
| Инженерное оснащение | |||
| Жидкостной теплый пол | | ||
| Электрический теплый пол | | ||
| Система вентиляции | | ||
| Только вводы воды, электричества, выводы канализации | | ||
| Электроразводка и электрощит | | ||
| Разводка хол. и гор. водоснабжения (ХВС и ГВС) | | ||
| Разводка батарей и/или системы теплого пола. Без оборудования котельной. | | ||
| Иное инженерное оснащение | | ||
| Подготовка участка для строительства | |||
| Устройство временного щита электроснабжения | |||
| Устройство въезда на участок | |||
| Дорога на участке до пятна застройки | |||
| Подъем пятна застройки | |||
| Подготовка пятна застройки для фундаментных работ | |||
| Перемещение или вывоз грунта из котлована фундамента | |||
| Обеспечение строительного процесса | |||
| Доставка стройматериалов | |||
| Генератор для обеспечения электричеством | |||
| Уборка и вывоз строительного мусора | |||
| Организация проживания рабочих (бытовка) | |||
| Биотуалет для рабочих | |||
| Гарантия на все выполненные работы | |||
| Гарантия | |||
| Свернуть | |||
| Минимальная | 4 858 000 ₽ |
| Стандарт | 5 552 000 ₽ |
| Под чистовую отделку | 6 593 000 ₽ |
| Показать подробные комплектации | |
| Сравнить 0 комплектаций Свернуть все Развернуть все | Минимальная 4 858 000 ₽ | Стандарт 5 552 000 ₽ | Под чистовую отделку 6 593 000 ₽ |
| Кровля | |||
| Кровельное покрытие | Меллочерепица | Гибкая черепица | Фальцевая кровля |
| Обрешетка | | | |
| Контробрешетка | | | |
| Противоконденсатная (ветро-гидроизоляционная) пленка | | | |
| Стропильная система | | | |
| Утепление чердачного перекрытия и стропильной системы | | | |
| Подшивка свесов кровли | | | |
| Подшивка потолков террас и лоджий | | | |
| Водосточная система | | ||
| Система снегозадержания | | ||
| Молниезащита | |||
| Фундамент | |||
| Сваи ж/бетонные | | ||
| Сваи стальные винтовые | |||
| Лента ж/бетонная монолитная мелкозаглубленная | | ||
| Лента ж/бетонная монолитная на глубину промерзания | |||
| Лента ж/бетонная сборная (из ФБС) на глубину промерзания | |||
| Плита ж/бетонная монолитная мелкозаглубленная | | ||
| УШП (Утепленная Шведская Плита) | |||
| Бетоннная отмостка по периметру дома | |||
| Дренажная система по периметру дома | |||
| Ливневая система | |||
| Облицовка цоколя фундамента | |||
| Система контурного заземления | |||
| Стены | |||
| Несущая часть стены | | | |
| Фасадная отделка | | | |
| Ветрозащита | |||
| Утепление стены | | | |
| Пароизоляция | |||
| Внутренняя обшивка/штукатурка со стороны помещения | |||
| Пол первого этажа | |||
| Несущая часть перекрытия | | | |
| Теплоизоляция цокольного перекрытия | | ||
| Стяжка/подготовка под чистый пол | |||
| Перекрытия над первым и последующими этажами | |||
| Несущая часть перекрытия | | | |
| Звукоизоляция/теплоизоляция в перекрытии | | ||
| Стяжка/подготовка под чистый пол | |||
| Отделка потолка нижележащего этажа | |||
| Окна и внешние двери | |||
| Окна | |||
| Оконные наличники | |||
| Откосы в помещении | |||
| Отливы снаружи | |||
| Подоконники | |||
| Входные двери | |||
| Внутренние конструкции | |||
| Внутренние несущие стены | | | |
| Внутренние ненесущие стены | | | |
| Звукоизоляция внутренних стен/перегородок | | ||
| Межэтажная строительная (черновая) лестница | | | |
| Межэтажная постоянная (чистовая) лестница | |||
| Межкомнатные двери | |||
| Высота потолков 1 этажа | |||
| Высота потолков 2 этажа | |||
| Настилы полов и ограждения крылец, террас, балконов | | ||
| Гидроизоляция полов балконов | | | |
| Инженерное оснащение | |||
| Жидкостной теплый пол | |||
| Электрический теплый пол | |||
| Система вентиляции | |||
| Только вводы воды, электричества, выводы канализации | | | |
| Электроразводка и электрощит | |||
| Разводка хол. и гор. водоснабжения (ХВС и ГВС) | |||
| Разводка батарей и/или системы теплого пола. Без оборудования котельной. | |||
| Иное инженерное оснащение | |||
| Подготовка участка для строительства | |||
| Устройство временного щита электроснабжения | | | |
| Устройство въезда на участок | | ||
| Дорога на участке до пятна застройки | |||
| Подъем пятна застройки | |||
| Подготовка пятна застройки для фундаментных работ | | | |
| Перемещение или вывоз грунта из котлована фундамента | | ||
| Обеспечение строительного процесса | |||
| Доставка стройматериалов | | | |
| Генератор для обеспечения электричеством | |||
| Уборка и вывоз строительного мусора | | | |
| Организация проживания рабочих (бытовка) | | | |
| Биотуалет для рабочих | |||
| Гарантия на все выполненные работы | |||
| Гарантия | 5 лет | 5 лет | 5 лет |
| Свернуть | |||
| Минимальная | 19 085 000 ₽ |
| Стандарт | 27 760 000 ₽ |
| Под чистовую отделку | 43 375 000 ₽ |
| Показать подробные комплектации | |
| Сравнить 0 комплектаций Свернуть все Развернуть все | Минимальная 19 085 000 ₽ | Стандарт 27 760 000 ₽ | Под чистовую отделку 43 375 000 ₽ |
| Кровля | |||
| Кровельное покрытие | | | |
| Обрешетка | | | |
| Контробрешетка | | | |
| Противоконденсатная (ветро-гидроизоляционная) пленка | | | |
| Стропильная система | | | |
| Утепление чердачного перекрытия и стропильной системы | | | |
| Подшивка свесов кровли | | ||
| Подшивка потолков террас и лоджий | | ||
| Водосточная система | | | |
| Система снегозадержания | | | |
| Молниезащита | |||
| Фундамент | |||
| Сваи ж/бетонные | |||
| Сваи стальные винтовые | |||
| Лента ж/бетонная монолитная мелкозаглубленная | |||
| Лента ж/бетонная монолитная на глубину промерзания | |||
| Лента ж/бетонная сборная (из ФБС) на глубину промерзания | |||
| Плита ж/бетонная монолитная мелкозаглубленная | | | |
| УШП (Утепленная Шведская Плита) | |||
| Бетоннная отмостка по периметру дома | |||
| Дренажная система по периметру дома | |||
| Ливневая система | |||
| Облицовка цоколя фундамента | |||
| Система контурного заземления | |||
| Стены | |||
| Несущая часть стены | | | |
| Фасадная отделка | | ||
| Ветрозащита | |||
| Утепление стены | | | |
| Пароизоляция | |||
| Внутренняя обшивка/штукатурка со стороны помещения | | ||
| Пол первого этажа | |||
| Несущая часть перекрытия | | | |
| Теплоизоляция цокольного перекрытия | | | |
| Стяжка/подготовка под чистый пол | | ||
| Перекрытия над первым и последующими этажами | |||
| Несущая часть перекрытия | | | |
| Звукоизоляция/теплоизоляция в перекрытии | | | |
| Стяжка/подготовка под чистый пол | | ||
| Отделка потолка нижележащего этажа | | ||
| Окна и внешние двери | |||
| Окна | | | |
| Оконные наличники | | ||
| Откосы в помещении | | ||
| Отливы снаружи | | | |
| Подоконники | | ||
| Входные двери | | | |
| Внутренние конструкции | |||
| Внутренние несущие стены | | | |
| Внутренние ненесущие стены | | | |
| Звукоизоляция внутренних стен/перегородок | | | |
| Межэтажная строительная (черновая) лестница | | | |
| Межэтажная постоянная (чистовая) лестница | |||
| Межкомнатные двери | |||
| Высота потолков 1 этажа | 2,85 | 2,85 | 2,85 |
| Высота потолков 2 этажа | 2,75 | 2,75 | 2,75 |
| Настилы полов и ограждения крылец, террас, балконов | | ||
| Гидроизоляция полов балконов | | ||
| Инженерное оснащение | |||
| Жидкостной теплый пол | | ||
| Электрический теплый пол | | ||
| Система вентиляции | естественная | естественная | естественная |
| Только вводы воды, электричества, выводы канализации | | | |
| Электроразводка и электрощит | | ||
| Разводка хол. и гор. водоснабжения (ХВС и ГВС) | | ||
| Разводка батарей и/или системы теплого пола. Без оборудования котельной. | | ||
| Иное инженерное оснащение | |||
| Подготовка участка для строительства | |||
| Устройство временного щита электроснабжения | | | |
| Устройство въезда на участок | |||
| Дорога на участке до пятна застройки | |||
| Подъем пятна застройки | |||
| Подготовка пятна застройки для фундаментных работ | | | |
| Перемещение или вывоз грунта из котлована фундамента | | | |
| Обеспечение строительного процесса | |||
| Доставка стройматериалов | | | |
| Генератор для обеспечения электричеством | |||
| Уборка и вывоз строительного мусора | | | |
| Организация проживания рабочих (бытовка) | | | |
| Биотуалет для рабочих | | | |
| Гарантия на все выполненные работы | |||
| Гарантия | | | |
| Свернуть | |||
| Минимальная | 12 145 000 ₽ |
| Стандарт | 26 025 000 ₽ |
| Под чистовую отделку | 46 845 000 ₽ |
| Показать подробные комплектации | |
| Сравнить 0 комплектаций Свернуть все Развернуть все | Минимальная 12 145 000 ₽ | Стандарт 26 025 000 ₽ | Под чистовую отделку 46 845 000 ₽ |
| Кровля | |||
| Кровельное покрытие | Цементо-песчаная черепица | Цементо-песчаная черепица | |
| Обрешетка | Брусок 45х45 мм, сухой, строганный | Брусок 45х45 мм, сухой, строганный | Брусок 45х45 мм, сухой, строганный |
| Контробрешетка | Брусок 45х45 мм, сухой, строганный | Брусок 45х45 мм, сухой, строганный | Брусок 45х45 мм, сухой, строганный |
| Противоконденсатная (ветро-гидроизоляционная) пленка | Ветро-гидроизоляционная пленка | Ветро-гидроизоляционная пленка | |
| Стропильная система | Доска 45х195 мм сухая, строганная | Доска 45х195 мм сухая, строганная | Доска 45х195 мм сухая, строганная |
| Утепление чердачного перекрытия и стропильной системы | Базальтовый утеплитель 250 мм | Базальтовый утеплитель 250 мм | |
| Подшивка свесов кровли | Доска 20х120мм с/с москитная сетка | ||
| Подшивка потолков террас и лоджий | Доска 20х120мм с/с москитная сетка | ||
| Водосточная система | Водосточная системы Docke Premium | Водосточная системы Docke Premium | |
| Система снегозадержания | |||
| Молниезащита | |||
| Фундамент | |||
| Сваи ж/бетонные | |||
| Сваи стальные винтовые | |||
| Лента ж/бетонная монолитная мелкозаглубленная | |||
| Лента ж/бетонная монолитная на глубину промерзания | |||
| Лента ж/бетонная сборная (из ФБС) на глубину промерзания | |||
| Плита ж/бетонная монолитная мелкозаглубленная | Монолитная ж/б плита 200мм с ростверком | Монолитная ж/б плита 200мм с ростверком | |
| УШП (Утепленная Шведская Плита) | |||
| Бетоннная отмостка по периметру дома | |||
| Дренажная система по периметру дома | Труба с перфорацией в геоткани | Труба с перфорацией в геоткани | |
| Ливневая система | |||
| Облицовка цоколя фундамента | Утепление цоколя пенополистиролом | ||
| Система контурного заземления | |||
| Стены | |||
| Несущая часть стены | Заводское изготовление | Заводское изготовление | Заводское изготовление |
| Фасадная отделка | Окраска в 3 слоя с шлифовкой фасада | ||
| Ветрозащита | |||
| Утепление стены | |||
| Пароизоляция | |||
| Внутренняя обшивка/штукатурка со стороны помещения | |||
| Пол первого этажа | |||
| Несущая часть перекрытия | Монолитная ж/б плита | Монолитная ж/б плита | |
| Теплоизоляция цокольного перекрытия | Керамзит, пролитый цем.молочком, пеноп | ||
| Стяжка/подготовка под чистый пол | Цементно-песчаная полусухая стяжка | ||
| Перекрытия над первым и последующими этажами | |||
| Несущая часть перекрытия | Лаги перекрытия 45х195мм сухая, строганн | Лаги перекрытия 45х195мм сухая, строганн | Лаги перекрытия 45х195мм сухая, строганн |
| Звукоизоляция/теплоизоляция в перекрытии | Базальтовый утеплитель 200мм | ||
| Стяжка/подготовка под чистый пол | Фанера 15мм в два слоя | ||
| Отделка потолка нижележащего этажа | Интерьерная доска | ||
| Окна и внешние двери | |||
| Окна | профиль Rehau, фурнитура ROTO | профиль Rehau, фурнитура ROTO | |
| Оконные наличники | | ||
| Откосы в помещении | | ||
| Отливы снаружи | | ||
| Подоконники | |||
| Входные двери | | | |
| Внутренние конструкции | |||
| Внутренние несущие стены | Заводское изготовление | Заводское изготовление | Заводское изготовление |
| Внутренние ненесущие стены | Заводское изготовление | Заводское изготовление | Заводское изготовление |
| Звукоизоляция внутренних стен/перегородок | |||
| Межэтажная строительная (черновая) лестница | | | |
| Межэтажная постоянная (чистовая) лестница | |||
| Межкомнатные двери | |||
| Высота потолков 1 этажа | по проекту | по проекту | по проекту |
| Высота потолков 2 этажа | по проекту | по проекту | по проекту |
| Настилы полов и ограждения крылец, террас, балконов | | ||
| Гидроизоляция полов балконов | | ||
| Инженерное оснащение | |||
| Жидкостной теплый пол | | ||
| Электрический теплый пол | |||
| Система вентиляции | | ||
| Только вводы воды, электричества, выводы канализации | | ||
| Электроразводка и электрощит | | ||
| Разводка хол. и гор. водоснабжения (ХВС и ГВС) | | ||
| Разводка батарей и/или системы теплого пола. Без оборудования котельной. | | ||
| Иное инженерное оснащение | | ||
| Подготовка участка для строительства | |||
| Устройство временного щита электроснабжения | | | |
| Устройство въезда на участок | |||
| Дорога на участке до пятна застройки | |||
| Подъем пятна застройки | | | |
| Подготовка пятна застройки для фундаментных работ | | | |
| Перемещение или вывоз грунта из котлована фундамента | | | |
| Обеспечение строительного процесса | |||
| Доставка стройматериалов | цена по запросу | цена по запросу | цена по запросу |
| Генератор для обеспечения электричеством | |||
| Уборка и вывоз строительного мусора | | | |
| Организация проживания рабочих (бытовка) | |||
| Биотуалет для рабочих | |||
| Гарантия на все выполненные работы | |||
| Гарантия | 25 лет на домокомплект | | |
| Свернуть | |||