111
Главная Проекты домов Проект двухэтажного дома из бревна с двумя спальнями, камином и верандой

D5646 Проект двухэтажного дома из бревна с двумя спальнями, камином и верандой

Сравнить проект В избранное
Проект двухэтажного дома из бревна с двумя спальнями, камином и верандой / 1
Проект двухэтажного дома из бревна с двумя спальнями, камином и верандой / 2
Проект двухэтажного дома из бревна с двумя спальнями, камином и верандой / 3
Проект двухэтажного дома из бревна с двумя спальнями, камином и верандой / 4
Проект двухэтажного дома из бревна с двумя спальнями, камином и верандой / 5
Проект двухэтажного дома из бревна с двумя спальнями, камином и верандой / 6
Проект двухэтажного дома из бревна с двумя спальнями, камином и верандой / 7
Проект двухэтажного дома из бревна с двумя спальнями, камином и верандой / 1
Проект двухэтажного дома из бревна с двумя спальнями, камином и верандой / 2
Проект двухэтажного дома из бревна с двумя спальнями, камином и верандой / 3
Проект двухэтажного дома из бревна с двумя спальнями, камином и верандой / 4
Проект двухэтажного дома из бревна с двумя спальнями, камином и верандой / 5
Проект двухэтажного дома из бревна с двумя спальнями, камином и верандой / 6
Проект двухэтажного дома из бревна с двумя спальнями, камином и верандой / 7
D5646
40.91 м²
Подготовка проекта:
Готов к отправке
Стоимость проекта
Купить проект
Задайте вопросы по проекту нашему архитектору
8 (800) 200-28-83
Время работы: пн-вс: с 9:00 до 20:00
Задать вопрос по проекту

Технические характеристики
Общие
Материал стен
Бревно
Общая площадь
40.91 м²
Жилая площадь
33.1 м²
Площадь застройки
48 м²
Приведенная площадь
62.38 м²
Количество жилых комнат/спален
2
Этажи
2 этажа
Гараж
Нет гаража
Количество машин
нет
Подвал / цокольный этаж
Без подвала
Длина дома
8.8 м
Ширина дома
6 м
Высота в коньке
7.4 м
Кровля
Медь
Облицовка внешних стен
Без облицовки
Толщина несущих наружных стен
200 мм
Межэтажные перекрытия
По деревянным балкам
Внутренние не несущие перегородки
Каркасно-обшивные
Фундамент
Монолитная ж/бетонная плита
Терраса
Терраса крытая
,
Терраса застекленная (веранда)
Дополнительные
Камин
Есть
Сауна/баня внутри
Нет
Площадь гостиной
9.15 м²
Площадь кухни
7.36 м²
Количество санузлов
1
Окно в ванной комнате
Есть
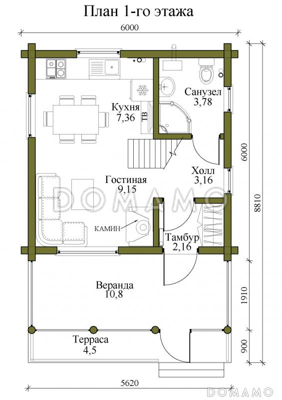
Планы помещений
Описание проекта
Компания Domamo предлагает проект двухэтажного дома из бревна с двумя спальнями, камином и верандой D5646. Общая площадь - 40.91 м2, размер - 8.8х6 м. Фундамент - монолитная ж/бетонная плита, кровля - медь, внешняя отделка - без облицовки. Для заказа проекта или внесения изменений свяжитесь с нами с помощью форм обратной связи на сайте или по телефону +7 (800) 200-28-83.
Категории проекта: деревянные для постоянного проживания из бревна для узких участков дачные дома гостевые до 100 кв.м 6х9 с террасой готовые двухэтажные двухэтажные деревянные оцилиндрованное бревно дачные с верандой 6х10 загородные с четырехскатной крышей с камином узкие прямоугольные с верандой в русском стиле дачных домов из бревна гостевых домов из бревна Проекты деревянных домов с террасой дачные деревянные Проекты гостевых домов из дерева Проекты двухэтажных домов с террасой Проекты двухэтажных домов с верандой без гаража дачные с террасой с террасой и камином дачные с камином деревянные для круглогодичного проживания из бревна для постоянного проживания двухэтажные 6 на 9 рубленные до 50 кв м до 140 кв м двухэтажные до 100 кв м недорогие до 130 кв м двухэтажные до 130 кв.м двухэтажные из бревна двухэтажные до 120 кв.м двухэтажные до 180 кв.м двухэтажные с камином двухэтажные дачные двухэтажные до 150 кв.м с террасой двухэтажные без гаража с мансардой в русском стиле с террасой с камином прямоугольные до 100 кв.м без гаража до 100 кв.м для постоянного проживания до 100 кв.м гостевые до 100 кв.м дачные до 100 кв.м с террасой до 100 кв.м прямоугольные до 100 кв.м с камином до 100 кв.м в русском стиле до 100 кв.м с четырехскатной крышей до 100 кв.м с вальмовой крышей до 100 кв.м с двумя спальнями до 120 кв.м готовые до 120 кв.м для постоянного проживания до 120 кв.м гостевые до 120 кв.м дачные до 120 кв.м без гаража до 120 кв.м с четырехскатной крышей до 120 кв.м с вальмовой крышей до 120 кв.м с террасой до 120 кв.м в русском стиле до 120 кв.м с 2 спальнями до 120 кв.м прямоугольные маленькие в русском стиле маленькие с террасой маленькие для постоянного проживания маленькие гостевые маленькие дачные маленькие недорогие маленькие готовые маленькие прямоугольные маленькие с четырехскатной крышей маленькие с камином маленькие без бани маленькие с 2 спальнями деревянные недорогие деревянные в русском стиле деревянные прямоугольные деревянные с камином деревянные без гаража деревянные готовые деревянные без подвала деревянные с 2 спальнями деревянные до 100 кв.м деревянные до 120 кв.м деревянные маленькие недорогие двухэтажные недорогие в русском стиле недорогие без гаража недорогие с террасой недорогие для постоянного проживания недорогие гостевые недорогие дачные недорогие с четырехскатной крышей недорогие с вальмовой крышей недорогие без бани недорогие с камином недорогие прямоугольные недорогие до 100 м2 недорогие до 120 м2 недорогие до 150 м2 в русском стиле без гаража в русском стиле с террасой в русском стиле прямоугольные в русском стиле для постоянного проживания в русском стиле гостевые в русском стиле дачные в русском стиле для с камином в русском стиле без бани из клееного бруса без гаража Показать все категории Скрыть категории

Похожие проекты
Состав проекта
Входит в стоимость
Цена, руб. Сроки, дней
Комплект архитектурно-строительных чертежей (АС) Входит в стоимость Готов к отправке
Готово к продаже
Цена, руб. Сроки, дней
Паспорт рабочего проекта 6 000 ₽ 3 рабочих дня в корзину
Дополнительная копия проекта формата А3 4 000 ₽ Готов к отправке в корзину
Электронная копия проекта (скан распечатанной версии) 4 000 ₽ 3 рабочих дня в корзину
Разрабатывается отдельно
Цена, руб. Сроки, дней
Адаптация фундамента (изменение типа фундамента) по запросу 14 рабочих дней
Дизайн интерьера (стоимость от 2200руб. за квад.метр площади) по запросу 30 рабочих дней
Внесение изменений в проект по запросу 20 рабочих дней
Зеркалирование проекта (для которого нет зеркальной версии) 8 000 ₽ 5 рабочих дней в корзину
Разработка Генплана участка, в масштабе 1:250 7 500 ₽ 5 рабочих дней в корзину
Фэншуй дома 20 000 ₽ 14 рабочих дней в корзину
Фэншуй участка 15 000 ₽ 14 рабочих дней в корзину
Фэншуй полная консультация дом+участок с выездом на объект 100 000 ₽ 30 рабочих дней в корзину
Опции проекта вы можете заказать в корзине при оформлении заказа
Предложения строителей Выбрать регион
Сравнить 0 комплектаций
Свернуть все
Развернуть все
Минимальная
436 660 ₽
Сравнить
Стандарт
1 122 840 ₽
Сравнить
Под чистовую отделку
1 684 260 ₽
Сравнить
Кровля
Кровельное покрытие
Рубероид; Металлочерепица.
Рубероид; Металлочерепица; Мягкая кровля.
Металлочерепица; Мягкая кровля; Цементно-песчаная черепица; Натуральн
Обрешетка
Контробрешетка
Противоконденсатная (ветро-гидроизоляционная) пленка
Стропильная система
Утепление чердачного перекрытия и стропильной системы
Подшивка свесов кровли
Подшивка потолков террас и лоджий
Водосточная система
Система снегозадержания
Молниезащита
Фундамент
Сваи ж/бетонные
Сваи стальные винтовые
Лента ж/бетонная монолитная мелкозаглубленная
Лента ж/бетонная монолитная на глубину промерзания
Лента ж/бетонная сборная (из ФБС) на глубину промерзания
Плита ж/бетонная монолитная мелкозаглубленная
УШП (Утепленная Шведская Плита)
Бетоннная отмостка по периметру дома
Дренажная система по периметру дома
Ливневая система
Облицовка цоколя фундамента
Система контурного заземления
Стены
Несущая часть стены
Фасадная отделка
Ветрозащита
Утепление стены
Пароизоляция
Внутренняя обшивка/штукатурка со стороны помещения
Пол первого этажа
Несущая часть перекрытия
Теплоизоляция цокольного перекрытия
Стяжка/подготовка под чистый пол
Перекрытия над первым и последующими этажами
Несущая часть перекрытия
Звукоизоляция/теплоизоляция в перекрытии
Стяжка/подготовка под чистый пол
Отделка потолка нижележащего этажа
Окна и внешние двери
Окна
Оконные наличники
Откосы в помещении
Отливы снаружи
Подоконники
Входные двери
Внутренние конструкции
Внутренние несущие стены
Внутренние ненесущие стены
Звукоизоляция внутренних стен/перегородок
Межэтажная строительная (черновая) лестница
Межэтажная постоянная (чистовая) лестница
Межкомнатные двери
Высота потолков 1 этажа
Высота потолков 2 этажа
Настилы полов и ограждения крылец, террас, балконов
Гидроизоляция полов балконов
Инженерное оснащение
Жидкостной теплый пол
Электрический теплый пол
Система вентиляции
Только вводы воды, электричества, выводы канализации
Электроразводка и электрощит
Разводка хол. и гор. водоснабжения (ХВС и ГВС)
Разводка батарей и/или системы теплого пола. Без оборудования котельной.
Иное инженерное оснащение
Подготовка участка для строительства
Устройство временного щита электроснабжения
Устройство въезда на участок
Дорога на участке до пятна застройки
Подъем пятна застройки
Подготовка пятна застройки для фундаментных работ
Перемещение или вывоз грунта из котлована фундамента
Обеспечение строительного процесса
Доставка стройматериалов
Генератор для обеспечения электричеством
Уборка и вывоз строительного мусора
Организация проживания рабочих (бытовка)
Биотуалет для рабочих
Свернуть
Подбор строительной компании
Не знаете кому доверить строительство дома? Мы можем помочь! Подберем для вас из сотен наших партнеров несколько компаний с лучшем соотношением цена/качество под конкретно ваш запрос.
Подобрать
Посмотреть еще 1 компанию Свернуть
Отзывы покупателей
Рейтинг покупателей
0 / 5 5 5 1
На основе 1 оценок покупателей
0%
0%
0%
0%
0%
Отзывы о проекте D5646
Отзыв о проекте D5646
Чтобы оставить отзыв, пожалуйста авторизуйтесь.
Подбор строительной компании
Не знаете кому доверить строительство дома? Мы можем помочь! Подберем для вас из сотен наших партнеров несколько компаний с лучшем соотношением цена/качество под конкретно ваш запрос.
Подобрать