Главная Проекты домов Проект дома с навесом на 2 машины, гостевой комнатой внизу и тремя спальнями наверху

D5462 Проект дома с навесом на 2 машины, гостевой комнатой внизу и тремя спальнями наверху

Сравнить проект В избранное
Технические характеристики
Общие
Материал стен
Газобетон
Общая площадь
145 м²
Приведенная площадь
144.78 м²
Количество жилых комнат/спален
4
Этажи
1 этаж + мансарда
Гараж
Пристроенный навес
Количество машин
2
Подвал / цокольный этаж
Без подвала
Длина дома
14.1 м
Ширина дома
13.58 м
Высота в коньке
9.86 м
Кровля
Гибкая черепица
Облицовка внешних стен
Мокрая штукатурка
,
Фасадные панели
Межэтажные перекрытия
По деревянным балкам
Внутренние не несущие перегородки
Газобетонные
Фундамент
Монолитная ж/бетонная плита
Терраса
Терраса крытая
Дополнительные
Окна
Окна до пола
Мансардные окна
Есть
Камин
Есть
Сауна/баня внутри
Нет
Площадь гостиной
23.9 м²
Площадь кухни
12 м²
Количество санузлов
2
Окно в ванной комнате
Есть
Котельная
Есть
Кладовая
1
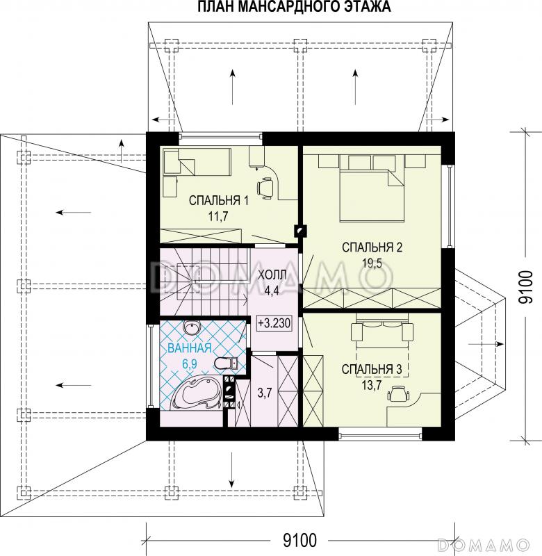
Планы помещений
Фасады
Описание проекта
Компания Domamo предлагает проект дома с навесом на 2 машины, гостевой комнатой внизу и тремя спальнями наверху D5462. Общая площадь - 145 м2, размер - 14.1х13.58 м. Фундамент - монолитная ж/бетонная плита, кровля - гибкая черепица, внешняя отделка - фасадные панели мокрая штукатурка. Для заказа проекта или внесения изменений свяжитесь с нами с помощью форм обратной связи на сайте или по телефону +7 (800) 200-28-83.
Категории проекта: с мансардой с гаражом с мансардой и гаражом для постоянного проживания пенобетон современные от 100 до 200 кв.м в европейском стиле с эркером с террасой из пеноблоков с мансардой из газобетона с мансардой и эркером из газобетона с эркером из газобетона готовые из газобетона с мансардой одноэтажные с гаражом одноэтажные с мансардой одноэтажные до 150 кв. м. одноэтажные с котельной с котельной одноэтажные из газобетона из газосиликатных блоков из пеноблоков с гаражом одноэтажные с гаражом и мансардой до 150 кв.м до 200 кв.м загородные из керамзитобетонных блоков с камином квадратные с навесом для машины из газобетона с террасой с эркером и мансардой из блоков одноэтажные из блоков из блоков с гаражом из блоков с мансардой из блоков с эркером Проекты домов из пеноблоков с эркером из пеноблоков с террасой загородные из газобетона Проекты одноэтажных домов с эркером Проекты одноэтажных домов с террасой Типовые проекты загородных одноэтажных домов с террасой и камином с гаражом под одной крышей одноэтажных из керамзитобетонных блоков одноэтажные с 4 спальнями одноэтажные с гаражом и террасой с мансардой до 150 кв м с гаражом на 2 машины с мансардой и террасой полутораэтажные с гаражом и террасой с 4 спальнями одноэтажные до 200 кв м из пеноблоков загородные одноэтажные с мансардными окнами с мансардой с котельной с мансардой с камином с мансардой современные с мансардой с окнами до пола с мансардой с мансардными окнами с мансардой квадратные с мансардой готовые с мансардой для постоянного проживания с мансардой до 200 кв.м с мансардой от 100 до 150 кв.м одноэтажные из газобетона с террасой одноэтажные из газобетона до 150 кв. м одноэтажные из газобетона с мансардой одноэтажные из газобетона с 4 спальнями из газобетона до 150 кв.м из газобетона до 200 кв.м из газобетона от 100 до 200 кв.м из газобетона современные из газобетона с котельной из газобетона квадратные из газобетона готовые из газобетона с камином из газобетона с четырьмя спальнями из газобетона для постоянного проживания двухэтажные из газобетона с террасой двухэтажные из газобетона с камином двухэтажные из газобетона с котельной двухэтажные из газобетона современные двухэтажные из газобетона до 150 кв. м двухэтажные из газобетона до 200 кв. м двухэтажные из газобетона без подвала двухэтажные из газобетона с эркером двухэтажные из газобетона с 4 спальнями из газобетона с мансардой современные из газобетона с мансардой с террасой из газобетона с мансардой с камином из газобетона с мансардой для постоянного проживания из газобетона с мансардой готовые из газобетона с мансардой с 4 спальнями из газобетона с мансардой квадратные одноэтажные с мансардой для постоянного проживания одноэтажные с мансардой современные современные с окнами в пол современные с террасой современные до 150 кв. м современные от 100 до 200 кв. м до 150 кв.м для постоянного проживания до 150 кв.м с окнами до пола до 150 кв.м готовые до 150 кв.м с мансардными окнами до 150 кв.м квадратные до 150 кв.м с котельной до 150 кв.м без бани до 150 кв.м с террасой до 150 кв.м без подвала до 150 кв.м с 4 спальнями до 150 кв.м с камином из пеноблоков в современном стиле из пеноблоков с окнами до пола из пеноблоков квадратные из пеноблоков для постоянного проживания из пеноблоков готовые из пеноблоков с камином из пеноблоков до 150 м кв. из пеноблоков от 100 до 200 м2 из пеноблоков с 4 спальнями из клееного бруса без гаража Показать все категории Скрыть категории

Похожие проекты
Состав проекта
Входит в стоимость
Цена, руб. Сроки, дней
Комплект архитектурно-строительных чертежей (АС) Входит в стоимость 3 рабочих дня
Готово к продаже
Цена, руб. Сроки, дней
Зеркальная версия проекта Входит в стоимость 3 рабочих дня
Паспорт рабочего проекта 5 000 ₽ 3 рабочих дня в корзину
Инженерные разделы: ВК + ОВ + ЭО 23 000 ₽ 3 рабочих дня в корзину
Дополнительная копия проекта формата А3 3 000 ₽ 3 рабочих дня в корзину
Две дополнительные копии проекта формата А3 + 1 паспорт рабочего проекта 10 100 ₽ 3 рабочих дня в корзину
Электронная копия проекта (скан распечатанной версии) 4 000 ₽ 3 рабочих дня в корзину
Разрабатывается отдельно
Цена, руб. Сроки, дней
Адаптация фундамента (изменение типа фундамента) по запросу 14 рабочих дней
Дизайн интерьера (стоимость от 2200руб. за квад.метр площади) по запросу 30 рабочих дней
Внесение изменений в проект по запросу 20 рабочих дней
Фэншуй дома 20 000 ₽ 14 рабочих дней в корзину
Фэншуй участка 15 000 ₽ 14 рабочих дней в корзину
Фэншуй полная консультация дом+участок с выездом на объект 100 000 ₽ 30 рабочих дней в корзину
Опции проекта вы можете заказать в корзине при оформлении заказа
Варианты проекта Сравнить все варианты
Избранные проекты
Избранные строители
Предложения строителей Выбрать регион
Минимальная
4 922 520 ₽
Стандарт
6 080 760 ₽
Под чистовую отделку
7 962 900 ₽
Показать подробные комплектации
Минимальная
14 767 560 ₽
Стандарт
17 373 600 ₽
Под чистовую отделку
22 585 680 ₽
Показать подробные комплектации
Минимальная
7 225 969 ₽
Стандарт
10 722 406 ₽
Под чистовую отделку
17 015 993 ₽
Показать подробные комплектации
Минимальная
5 067 300 ₽
Стандарт
6 080 760 ₽
Под чистовую отделку
6 804 660 ₽
Показать подробные комплектации
Минимальная
4 672 919 ₽
Стандарт
6 858 228 ₽
Под чистовую отделку
7 337 450 ₽
Показать подробные комплектации
Минимальная
4 661 916 ₽
Стандарт
5 327 904 ₽
Под чистовую отделку
6 992 873 ₽
Показать подробные комплектации
Подбор строительной компании
Не знаете кому доверить строительство дома? Мы можем помочь! Подберем для вас из сотен наших партнеров несколько компаний с лучшем соотношением цена/качество под конкретно ваш запрос.
Подобрать
Посмотреть еще 32 компании Свернуть
Отзывы покупателей
Рейтинг покупателей
0 / 5 5 5 1
На основе 1 оценок покупателей
0%
0%
0%
0%
0%
Отзывы о проекте D5462
Отзыв о проекте D5462
Чтобы оставить отзыв, пожалуйста авторизуйтесь.
Подбор строительной компании
Не знаете кому доверить строительство дома? Мы можем помочь! Подберем для вас из сотен наших партнеров несколько компаний с лучшем соотношением цена/качество под конкретно ваш запрос.
Подобрать