Главная Проекты домов Проект современного двухэтажного дома из кирпича с четырьмя спальнями, кабинетом и гаражом

D4723 Проект современного двухэтажного дома из кирпича с четырьмя спальнями, кабинетом и гаражом

Сравнить проект В избранное
Проект современного двухэтажного дома из кирпича с четырьмя спальнями, кабинетом и гаражом / 1
Проект современного двухэтажного дома из кирпича с четырьмя спальнями, кабинетом и гаражом / 2
Проект современного двухэтажного дома из кирпича с четырьмя спальнями, кабинетом и гаражом / 1
Проект современного двухэтажного дома из кирпича с четырьмя спальнями, кабинетом и гаражом / 2
D4723
280 м²
Подготовка проекта:
33 рабочих дня
Стоимость проекта
Купить проект
Задайте вопросы по проекту нашему архитектору
8 (800) 200-28-83
Время работы: пн-вс: с 9:00 до 20:00
Задать вопрос по проекту

Технические характеристики
Общие
Материал стен
Кирпич
Общая площадь
280 м²
Площадь застройки
263.4 м²
Приведенная площадь
280.56 м²
Количество жилых комнат/спален
5
Этажи
2 этажа
Гараж
Пристроенный гараж
Количество машин
2
Подвал / цокольный этаж
Без подвала
Длина дома
13.21 м
Ширина дома
16.96 м
Высота в коньке
7.08 м
Кровля
Рулонная кровля
Облицовка внешних стен
Без облицовки
,
Мокрая штукатурка
Толщина несущих наружных стен
380 мм
Межэтажные перекрытия
Монолитные
Внутренние не несущие перегородки
Кирпичные
Фундамент
Ленточный заглубленный из ФБС
Терраса
Терраса открытая
,
Терраса крытая
Дополнительные
Камин
Есть
Сауна/баня внутри
Нет
Площадь гостиной
43.5 м²
Площадь кухни
11.8 м²
Количество санузлов
3
Окно в ванной комнате
Есть
Котельная
Есть
Кабинет
Есть
Хозяйский санузел
Есть
Кладовая
1
Длина участка
21.14 м
Ширина участка
22.78 м
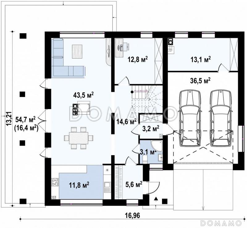
Планы помещений
Фасады
Описание проекта
Компания Domamo предлагает проект современного двухэтажного дома из кирпича с четырьмя спальнями, кабинетом и гаражом D4723. Общая площадь - 280 м2, размер - 13.21х16.96 м. Фундамент - ленточный заглубленный из фбс, кровля - рулонная кровля, внешняя отделка - без облицовки мокрая штукатурка. Для заказа проекта или внесения изменений свяжитесь с нами с помощью форм обратной связи на сайте или по телефону +7 (800) 200-28-83.
Категории проекта: с гаражом для постоянного проживания кирпич современные от 200 до 300 кв.м дома из кирпича с гаражом в европейском стиле с террасой из кирпича с террасой готовые загородные из кирпича двухэтажные из кирпича двухэтажные кирпичные с гаражом двухэтажные двухэтажные с гаражом кирпичные с котельной с котельной с плоской крышей загородные с камином прямоугольные современные кирпичные Проекты двухэтажных домов с террасой Проекты двухэтажных домов с верандой с террасой и камином с кабинетом с гаражом под одной крышей с гаражом на 2 машины с гаражом и террасой двухэтажные с террасой и гаражом современный с плоской крышей с 5 спальнями двухэтажные с камином двухэтажные в современном стиле современные с гаражом современные с террасой европейские с плоской крышей из клееного бруса без гаража с плоской крышей двухэтажные с плоской крышей и большой террасой с плоской крышей и большой гостиной с плоской крышей готовые с плоской крышей для постоянного проживания с плоской крышей и окном в ванной комнате с плоской крышей и камином с плоской крышей прямоугольные с плоской крышей и окнами в пол в гостиной с плоской крышей и окнами в пол на кухне с плоской крышей и монолитными перекрытиями с плоской крышей и облицовкой мокрой штукатуркой с плоской крышей кирпичные с плоской крышей и хозяйским санузлом с плоской крышей и кабинетом с плоской крышей и котельной с плоской крышей без сауны Показать все категории Скрыть категории

Похожие проекты
Состав проекта
Входит в стоимость
Цена, руб. Сроки, дней
Комплект архитектурно-строительных чертежей (АС) Входит в стоимость 33 рабочих дня
Готово к продаже
Цена, руб. Сроки, дней
Паспорт рабочего проекта 8 000 ₽ 5 рабочих дней в корзину
Дополнительная копия проекта формата А3 6 500 ₽ 5 рабочих дней в корзину
Электронная копия проекта (скан распечатанной версии) 4 000 ₽ 3 рабочих дня в корзину
Разрабатывается отдельно
Цена, руб. Сроки, дней
Адаптация фундамента (изменение типа фундамента) по запросу 14 рабочих дней
Дизайн интерьера (стоимость от 2200руб. за квад.метр площади) по запросу 30 рабочих дней
Внесение изменений в проект по запросу 20 рабочих дней
Инженерные разделы: ВК + ОВ + ЭО 29 610 ₽ 33 рабочих дня в корзину
Разработка Генплана участка, в масштабе 1:250 7 500 ₽ 15 рабочих дней в корзину
Фэншуй дома 20 000 ₽ 14 рабочих дней в корзину
Фэншуй участка 15 000 ₽ 14 рабочих дней в корзину
Фэншуй полная консультация дом+участок с выездом на объект 100 000 ₽ 30 рабочих дней в корзину
Опции проекта вы можете заказать в корзине при оформлении заказа
Отзывы покупателей
Рейтинг покупателей
0 / 5 5 5 1
На основе 1 оценок покупателей
0%
0%
0%
0%
0%
Отзывы о проекте D4723
Отзыв о проекте D4723
Чтобы оставить отзыв, пожалуйста авторизуйтесь.
Подбор строительной компании
Не знаете кому доверить строительство дома? Мы можем помочь! Подберем для вас из сотен наших партнеров несколько компаний с лучшем соотношением цена/качество под конкретно ваш запрос.
Подобрать