Главная Проекты домов Проект двухэтажного дома с функциональной планировкой, террасой, комнатой на первом этаже, санузлом под лестницей

D4696 Проект двухэтажного дома с функциональной планировкой, террасой, комнатой на первом этаже, санузлом под лестницей

Сравнить проект В избранное
Технические характеристики
Общие
Материал стен
Кирпич
Общая площадь
122 м²
Жилая площадь
75.06 м²
Площадь застройки
109.31 м²
Приведенная площадь
122.23 м²
Количество жилых комнат/спален
4
Этажи
2 этажа
Гараж
Нет гаража
Подвал / цокольный этаж
Без подвала
Длина дома
11.39 м
Ширина дома
10.19 м
Кровля
Рулонная кровля
Облицовка внешних стен
Деревянная вагонка
,
Фасадные панели
Толщина несущих наружных стен
380 мм
Межэтажные перекрытия
Монолитные
Фундамент
Ленточный монолитный
Терраса
Терраса открытая
Дополнительные
Камин
Есть
Сауна/баня внутри
Нет
Площадь гостиной
19.2 м²
Площадь кухни
8.5 м²
Количество санузлов
2
Окно в ванной комнате
Есть
Котельная
Есть
Длина участка
21.39 м
Ширина участка
16.19 м
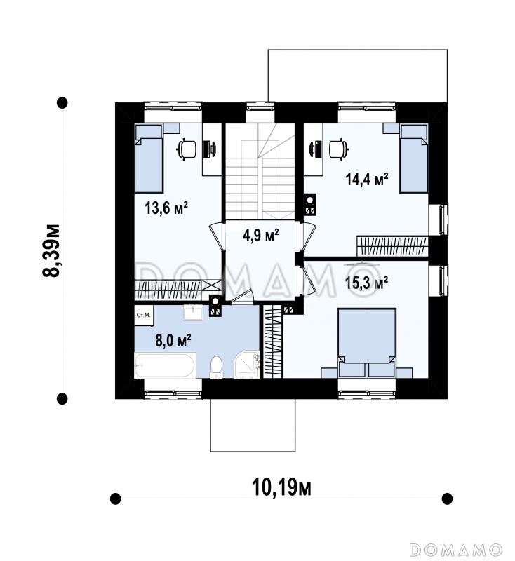
Планы помещений
Описание проекта
Компания Domamo предлагает проект двухэтажного дома с функциональной планировкой, террасой, комнатой на первом этаже, санузлом под лестницей D4696. Общая площадь - 122 м2, размер - 11.39х10.19 м. Фундамент - ленточный монолитный, кровля - рулонная кровля, внешняя отделка - фасадные панели деревянная вагонка. Для заказа проекта или внесения изменений свяжитесь с нами с помощью форм обратной связи на сайте или по телефону +7 (800) 200-28-83.
Категории проекта: для постоянного проживания кирпич современные от 100 до 200 кв.м в европейском стиле с террасой из кирпича с террасой готовые загородные из кирпича двухэтажные из кирпича двухэтажные кирпичные площадью до 150 кв. м. кирпичные с котельной с котельной кирпичные до 200 кв.м с плоской крышей до 150 кв.м до 200 кв.м 9х12 загородные с камином прямоугольные 10х12 современные кирпичные кирпичные 10х10 Проекты двухэтажных домов с террасой Проекты двухэтажных домов с верандой без гаража с террасой и камином двухэтажные 10 на 12 двухэтажные до 150 кв м двухэтажные 200 кв м с 4 спальнями до 140 кв м до 130 кв м двухэтажные до 130 кв.м современный с плоской крышей двухэтажные до 180 кв.м двухэтажные с камином двухэтажные с 4 спальнями двухэтажные в современном стиле двухэтажные до 150 кв.м с террасой двухэтажные без гаража современные без гаража современные с террасой современные до 150 кв. м современные от 100 до 200 кв. м европейские с плоской крышей до 150 кв.м для постоянного проживания до 150 кв.м без гаража до 150 кв.м с плоской крышей до 150 кв.м готовые до 150 кв.м прямоугольные до 150 кв.м с котельной до 150 кв.м без бани до 150 кв.м с террасой до 150 кв.м без подвала до 150 кв.м с 4 спальнями до 150 кв.м с камином из клееного бруса без гаража с плоской крышей двухэтажные с плоской крышей готовые с плоской крышей для постоянного проживания с плоской крышей и окном в ванной комнате с плоской крышей и камином с плоской крышей прямоугольные с плоской крышей и монолитными перекрытиями с плоской крышей и облицовкой деревянной вагонкой с плоской крышей и облицовкой фасадными панелями с плоской крышей кирпичные с плоской крышей и котельной с плоской крышей без сауны Показать все категории Скрыть категории

Похожие проекты
Состав проекта
Входит в стоимость
Цена, руб. Сроки, дней
Комплект архитектурно-строительных чертежей (АС) Входит в стоимость Готов к отправке
Готово к продаже
Цена, руб. Сроки, дней
Паспорт рабочего проекта 8 000 ₽ 5 рабочих дней в корзину
Инженерные разделы: ВК + ОВ + ЭО 18 050 ₽ Готов к отправке в корзину
Дополнительная копия проекта формата А3 6 500 ₽ 5 рабочих дней в корзину
Электронная копия проекта (скан распечатанной версии) 4 000 ₽ 3 рабочих дня в корзину
Разрабатывается отдельно
Цена, руб. Сроки, дней
Адаптация фундамента (изменение типа фундамента) по запросу 14 рабочих дней
Дизайн интерьера (стоимость от 2200руб. за квад.метр площади) по запросу 30 рабочих дней
Внесение изменений в проект по запросу 20 рабочих дней
Разработка Генплана участка, в масштабе 1:250 7 500 ₽ 15 рабочих дней в корзину
Фэншуй дома 20 000 ₽ 14 рабочих дней в корзину
Фэншуй участка 15 000 ₽ 14 рабочих дней в корзину
Фэншуй полная консультация дом+участок с выездом на объект 100 000 ₽ 30 рабочих дней в корзину
Опции проекта вы можете заказать в корзине при оформлении заказа
Предложения строителей Выбрать регион
Минимальная
4 278 050 ₽
Стандарт
5 255 890 ₽
Под чистовую отделку
6 844 880 ₽
Показать подробные комплектации
Минимальная
12 467 460 ₽
Стандарт
14 667 600 ₽
Под чистовую отделку
19 067 880 ₽
Показать подробные комплектации
Минимальная
6 453 744 ₽
Стандарт
9 478 936 ₽
Под чистовую отделку
14 924 283 ₽
Показать подробные комплектации
Минимальная
4 897 756 ₽
Стандарт
5 623 802 ₽
Под чистовую отделку
7 200 813 ₽
Показать подробные комплектации
Минимальная
2 853 917 ₽
Стандарт
3 534 127 ₽
Под чистовую отделку
4 253 756 ₽
Показать подробные комплектации
Подбор строительной компании
Не знаете кому доверить строительство дома? Мы можем помочь! Подберем для вас из сотен наших партнеров несколько компаний с лучшем соотношением цена/качество под конкретно ваш запрос.
Подобрать
Посмотреть еще 20 компаний Свернуть
Отзывы покупателей
Рейтинг покупателей
0 / 5 5 5 1
На основе 1 оценок покупателей
0%
0%
0%
0%
0%
Отзывы о проекте D4696
Отзыв о проекте D4696
Чтобы оставить отзыв, пожалуйста авторизуйтесь.
Подбор строительной компании
Не знаете кому доверить строительство дома? Мы можем помочь! Подберем для вас из сотен наших партнеров несколько компаний с лучшем соотношением цена/качество под конкретно ваш запрос.
Подобрать