Главная Проекты домов Проект эргономичного двухэтажного дома с террасой, кухней-столовой, тремя спальнями

D1937 Проект эргономичного двухэтажного дома с террасой, кухней-столовой, тремя спальнями

Сравнить проект В избранное
Технические характеристики
Общие
Материал стен
Кирпич
Общая площадь
97 м²
Жилая площадь
56.2 м²
Площадь застройки
67.2 м²
Приведенная площадь
95.1 м²
Количество жилых комнат/спален
3
Этажи
2 этажа
Гараж
Нет гаража
Подвал / цокольный этаж
Без подвала
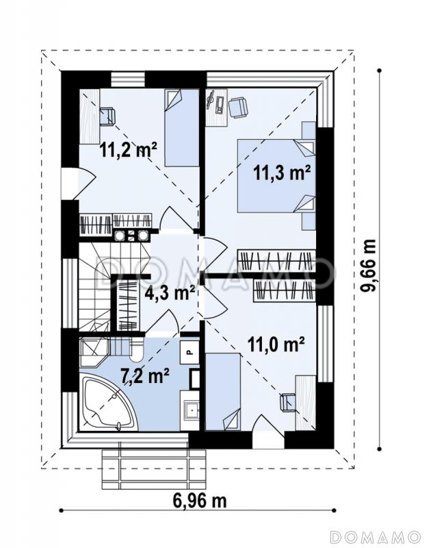
Длина дома
9.66 м
Ширина дома
6.96 м
Кровля
Металлочерепица
Облицовка внешних стен
Мокрая штукатурка
,
Фасадные панели
Толщина несущих наружных стен
380 мм
Межэтажные перекрытия
Монолитные
Фундамент
Ленточный монолитный
Терраса
Без террасы
Дополнительные
Окна
Окна до пола
,
Окна с французским балконом
Камин
Есть
Сауна/баня внутри
Нет
Площадь гостиной
22.7 м²
Площадь кухни
13 м²
Количество санузлов
2
Окно в ванной комнате
Есть
Дом для узких участков
Есть
Длина участка
17.66 м
Ширина участка
14.96 м
Планы помещений
Фасады
Описание проекта
Компания Domamo предлагает проект эргономичного двухэтажного дома с террасой, кухней-столовой, тремя спальнями D1937. Общая площадь - 97 м2, размер - 9.66х6.96 м. Фундамент - ленточный монолитный, кровля - металлочерепица, внешняя отделка - фасадные панели мокрая штукатурка. Для заказа проекта или внесения изменений свяжитесь с нами с помощью форм обратной связи на сайте или по телефону +7 (800) 200-28-83.
Категории проекта: для постоянного проживания кирпич современные для узких участков до 100 кв.м в европейском стиле готовые кирпичные для узких участков загородные из кирпича двухэтажные из кирпича двухэтажные кирпичные площадью до 150 кв. м. кирпичные до 100 кв.м кирпичные до 200 кв.м до 120 кв.м до 150 кв.м до 200 кв.м 6х10 загородные с четырехскатной крышей с камином узкие прямоугольные современные кирпичные без гаража Проекты домов с тремя спальнями маленькие двухэтажные до 150 кв м маленькие двухэтажные до 140 кв м двухэтажные до 100 кв м до 130 кв м двухэтажные до 130 кв.м узкие двухэтажные двухэтажные до 120 кв.м двухэтажные до 180 кв.м двухэтажные с камином двухэтажные с 3 спальнями двухэтажные в современном стиле двухэтажные до 150 кв.м с 3 спальнями двухэтажные без гаража современные без гаража современные с окнами в пол современные без террасы современные небольшие современные узкие современные до 100 кв. м современные до 120 кв. м современные до 150 кв. м до 100 кв.м для постоянного проживания до 100 кв.м без террасы до 100 кв.м с окнами в пол до 100 кв.м прямоугольные до 100 кв.м с камином до 100 кв.м для узких участков до 100 кв.м с четырехскатной крышей до 100 кв.м с тремя спальнями до 120 кв.м кирпичные до 120 кв.м готовые до 120 кв.м для постоянного проживания до 120 кв.м без гаража до 120 кв.м с четырехскатной крышей до 120 кв.м с окнами в пол до 120 кв.м без террасы до 120 кв.м с тремя спальнями до 120 кв.м прямоугольные до 150 кв.м для постоянного проживания до 150 кв.м без гаража до 150 кв.м с четырехскатной крышей до 150 кв.м с окнами до пола до 150 кв.м для узких участков до 150 кв.м готовые до 150 кв.м прямоугольные до 150 кв.м без бани до 150 кв.м без террасы до 150 кв.м без подвала до 150 кв.м с 3 спальнями до 150 кв.м с камином маленькие без террасы маленькие для постоянного проживания маленькие для узких участков маленькие готовые маленькие прямоугольные маленькие с окнами до пола маленькие с четырехскатной крышей маленькие с камином маленькие без бани маленькие с 3 спальнями из клееного бруса без гаража Показать все категории Скрыть категории

Похожие проекты
Состав проекта
Входит в стоимость
Цена, руб. Сроки, дней
Комплект архитектурно-строительных чертежей (АС) Входит в стоимость Готов к отправке
Готово к продаже
Цена, руб. Сроки, дней
Паспорт рабочего проекта 8 000 ₽ 5 рабочих дней в корзину
Инженерные разделы: ВК + ОВ + ЭО 16 325 ₽ Готов к отправке в корзину
Дополнительная копия проекта формата А3 6 500 ₽ 5 рабочих дней в корзину
Электронная копия проекта (скан распечатанной версии) 4 000 ₽ 3 рабочих дня в корзину
Разрабатывается отдельно
Цена, руб. Сроки, дней
Адаптация фундамента (изменение типа фундамента) по запросу 14 рабочих дней
Дизайн интерьера (стоимость от 2200руб. за квад.метр площади) по запросу 30 рабочих дней
Внесение изменений в проект по запросу 20 рабочих дней
Разработка Генплана участка, в масштабе 1:250 7 500 ₽ 15 рабочих дней в корзину
Фэншуй дома 20 000 ₽ 14 рабочих дней в корзину
Фэншуй участка 15 000 ₽ 14 рабочих дней в корзину
Фэншуй полная консультация дом+участок с выездом на объект 100 000 ₽ 30 рабочих дней в корзину
Опции проекта вы можете заказать в корзине при оформлении заказа
Предложения строителей Москва и Московская область
Минимальная
3 328 500 ₽
Стандарт
4 089 299 ₽
Под чистовую отделку
5 325 600 ₽
Показать подробные комплектации
Минимальная
9 700 199 ₽
Стандарт
11 412 000 ₽
Под чистовую отделку
14 835 600 ₽
Показать подробные комплектации
Минимальная
5 173 440 ₽
Стандарт
7 598 490 ₽
Под чистовую отделку
11 963 580 ₽
Показать подробные комплектации
Минимальная
4 191 722 ₽
Стандарт
4 813 106 ₽
Под чистовую отделку
6 162 784 ₽
Показать подробные комплектации
Минимальная
2 398 103 ₽
Стандарт
2 969 673 ₽
Под чистовую отделку
3 574 366 ₽
Показать подробные комплектации
Подбор строительной компании
Не знаете кому доверить строительство дома? Мы можем помочь! Подберем для вас из сотен наших партнеров несколько компаний с лучшем соотношением цена/качество под конкретно ваш запрос.
Подобрать
Посмотреть еще 20 компаний Свернуть
Отзывы покупателей
Рейтинг покупателей
0 / 5 5 5 1
На основе 1 оценок покупателей
0%
0%
0%
0%
0%
Отзывы о проекте D1937
Отзыв о проекте D1937
Чтобы оставить отзыв, пожалуйста авторизуйтесь.
Подбор строительной компании
Не знаете кому доверить строительство дома? Мы можем помочь! Подберем для вас из сотен наших партнеров несколько компаний с лучшем соотношением цена/качество под конкретно ваш запрос.
Подобрать