D4691 Мастер

Сравнить проект В избранное
Мастер / 1
Мастер / 1
D4691
Проект с подрядом
Компания: Мечтаево
Стоимость строительства
4 066 440 ₽
Заказать подробную смету
+7 (495) XXX-XX-XX Показать телефон
Задать вопрос по проекту
Технические характеристики
Общие
Материал стен
Каркас
Жилая площадь
134.7 м²
Приведенная площадь
100.99 м²
Количество жилых комнат/спален
4
Этажи
1 этаж
Гараж
Нет гаража
Количество машин
нет
Подвал / цокольный этаж
Без подвала
Длина дома
13.7 м
Ширина дома
12.4 м
Кровля
Металлочерепица
Облицовка внешних стен
Деревянная вагонка
Толщина несущих наружных стен
150 мм
Межэтажные перекрытия
По деревянным балкам
Внутренние не несущие перегородки
Каркасно-обшивные
Фундамент
Свайный
Терраса
Терраса крытая
Дополнительные
Окна
Окна до пола
Сауна/баня внутри
Есть
Площадь гостиной
32.2 м²
Количество санузлов
2
Окно в ванной комнате
Есть
Котельная
Есть
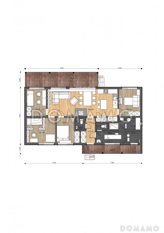
Планы помещений
Фасады
Описание проекта
Это очень индивидуальный дом, планировка непременно будет кроится под каждого. Но даже при первом рассмотрении видно, что дом необычный и очень функциональный. Здесь 4 комнаты, узкая гостиная – кухня, но ее объем визуально восполнен панорамными окнами и стеклянным ролл-дверями, ведущими на террасу. В доме нет лишних коридоров, холлов. Есть 2 с/у и целый spa-комплекс из парной, душевой, бойлерной, комнаты отдыха. Отделка фасада - скромная имитация бруса, кровля – металлочерепица цвета «шоколад», ламинация окон и кирпичный цоколь. Вроде все просто, но в том и прелесть –лаконичность форм и приглушенность тонов создает его загадку. А что разместить внутри – придумаете сами
Категории проекта: для постоянного проживания каркасные с террасой одноэтажные одноэтажные с котельной с котельной с баней с двухскатной крышей загородные с сауной прямоугольные Проекты одноэтажных каркасных домов Проекты каркасных домов с баней Проекты каркасных домов с террасой Проекты одноэтажных домов с террасой Типовые проекты загородных одноэтажных домов Проекты одноэтажных домов с баней без гаража одноэтажные без гаража каркасные для постоянного проживания одноэтажные с 4 спальнями одноэтажные каркасные для круглогодичного проживания с 4 спальнями одноэтажные с двухскатной крышей одноэтажные прямоугольные одноэтажные с окнами в пол одноэтажные с 2 санузлами без гаража с подрядом с котельной с двухскатной крышей с четырьмя спальнями из клееного бруса без гаража Проекты домов с подрядом Показать все категории Скрыть категории

Похожие проекты
Состав проекта
Входит в стоимость
Цена, руб. Сроки, дней
Комплект архитектурно-строительных чертежей (АС) Входит в стоимость Готов к отправке
Разрабатывается отдельно
Цена, руб. Сроки, дней
Адаптация фундамента (изменение типа фундамента) по запросу 14 рабочих дней
Дизайн интерьера (стоимость от 2200руб. за квад.метр площади) по запросу 30 рабочих дней
Внесение изменений в проект по запросу 20 рабочих дней
Фэншуй дома 20 000 ₽ 14 рабочих дней в корзину
Фэншуй участка 15 000 ₽ 14 рабочих дней в корзину
Фэншуй полная консультация дом+участок с выездом на объект 100 000 ₽ 30 рабочих дней в корзину
Опции проекта вы можете заказать в корзине при оформлении заказа
Комплектации
Сравнить 0 комплектаций
Свернуть все
Развернуть все
Под чистовую отделку
4 066 440 ₽
Сравнить
Кровля
Кровельное покрытие
Металлочерепица 0,5 мм, Grand Line, цвет на выбор.
Обрешетка
Брусок из древесины хвойных пород камерной сушки 25*100 мм
Контробрешетка
Брусок из древесины хвойных пород камерной сушки 40*40 мм
Противоконденсатная (ветро-гидроизоляционная) пленка
Гидро-,ветроизоляционная мембрана диффузионная ISOBOX
Стропильная система
Доска из древесины хвойных пород камерной сушки 40*200 мм
Утепление чердачного перекрытия и стропильной системы
Утеплитель Rockwool Лайт Баттс Скандик / Paroc Extra Light четыре слоя
Подшивка свесов кровли
Евровагонка 88х12,5 мм из древесины хвойных пород, сорт А-В / Перфорир
Подшивка потолков террас и лоджий
Евровагонка 88х12,5 мм из древесины хвойных пород, сорт А-В / Перфорир
Водосточная система
Водосточная система пластиковая Технониколь/Docke
Система снегозадержания
Снегозадержание трубчатое
Молниезащита
Фундамент
Сваи ж/бетонные
Сваи стальные винтовые
Винтовые сваи Ø108 мм, толщина 4 мм, забуренные на глубину промерзани
Лента ж/бетонная монолитная мелкозаглубленная
Лента ж/бетонная монолитная на глубину промерзания
Лента ж/бетонная сборная (из ФБС) на глубину промерзания
Плита ж/бетонная монолитная мелкозаглубленная
УШП (Утепленная Шведская Плита)
Бетоннная отмостка по периметру дома
Дренажная система по периметру дома
Ливневая система
Отлив металлический в цвет кровли по периметру цоколя.
Облицовка цоколя фундамента
Система контурного заземления
Система заземления
Стены
Несущая часть стены
Стойки сечением 40х150 мм из древесины хвойных пород камерной сушки. Н
Фасадная отделка
Деревянные панели сечением 140х16 мм с пазогребневой системой соединен
Ветрозащита
Гидро-, ветрозащита ISOBOX 95 мембрана диффузионная
Утепление стены
Утеплитель Rockwool Лайт Баттс Скандик / Paroc Extra Light, укладка в
Пароизоляция
Паро-гидроизоляционная мембрана ЮТАФОЛ
Внутренняя обшивка/штукатурка со стороны помещения
Вагонка из древесины хвойных пород, сорт А-В 12,5 мм. Отделка осуществ
Пол первого этажа
Несущая часть перекрытия
Балки 40х200 мм из древесины хвойных пород камерной сушки с антисептир
Теплоизоляция цокольного перекрытия
Утеплитель Rockwool Лайт Баттс Скандик / Paroc Extra Light четыре слоя
Стяжка/подготовка под чистый пол
Доска шпунтованная толщиной 35 мм
Перекрытия над первым и последующими этажами
Несущая часть перекрытия
Балки из древесины хвойных пород камерной сушки сечением 40х200 мм
Звукоизоляция/теплоизоляция в перекрытии
Утеплитель Rockwool Лайт Баттс Скандик / Paroc Extra Light в два слоя
Стяжка/подготовка под чистый пол
Доска шпунтованная толщиной 35 мм
Отделка потолка нижележащего этажа
Вагонка из древесины хвойных пород, сорт А-В. Толщина не превышает 12,
Окна и внешние двери
Окна
Пластиковые, профиль REHAU BLITZ 60 мм с двухкамерным стеклопакетом
Оконные наличники
Деревянные/Металлические
Откосы в помещении
Деревянные
Отливы снаружи
Металлические
Подоконники
Деревянные
Входные двери
Металлический дверной блок размером 2060х960 мм, укомплектованный замк
Внутренние конструкции
Внутренние несущие стены
Стойки сечением 40х100 мм и 40х150 мм из древесины хвойных пород камер
Внутренние ненесущие стены
Стойки сечением 40х100 мм из древесины хвойных пород камерной сушки
Звукоизоляция внутренних стен/перегородок
Межэтажная строительная (черновая) лестница
Техническая (один марш) из доски сечением 40х200 мм из древесины хвойн
Межэтажная постоянная (чистовая) лестница
Межкомнатные двери
Высота потолков 1 этажа
Не менее 2600 мм (чистовая)
Высота потолков 2 этажа
Не менее 2500 мм (чистовая)
Настилы полов и ограждения крылец, террас, балконов
Палубная доска сухая строганная импрегнированная 32х140х6000мм
Гидроизоляция полов балконов
Инженерное оснащение
Жидкостной теплый пол
Электрический теплый пол
Система вентиляции
Вентиляционный стояк ПВХ
Только вводы воды, электричества, выводы канализации
Ввод воды: гильза с уклоном не менее 10 мм/м Ввод канализации: выпус
Электроразводка и электрощит
Электрощиток 24 модуля 1 вводной автомат АВВ 25А 4 автомата 16А; 2 авт
Разводка хол. и гор. водоснабжения (ХВС и ГВС)
Укладка трубопровода внутри дома без установки. Трубы полипропилен
Разводка батарей и/или системы теплого пола. Без оборудования котельной.
Иное инженерное оснащение
Подготовка участка для строительства
Устройство временного щита электроснабжения
Устройство въезда на участок
Дорога на участке до пятна застройки
Подъем пятна застройки
Подготовка пятна застройки для фундаментных работ
Перемещение или вывоз грунта из котлована фундамента
Обеспечение строительного процесса
Доставка стройматериалов
Генератор для обеспечения электричеством
Уборка и вывоз строительного мусора
Организация проживания рабочих (бытовка)
Металлические отапливаемые бытовки
Биотуалет для рабочих
Гарантия на все выполненные работы
Гарантия
Гарантия на конструктив от 20 лет
Отзывы покупателей
Рейтинг покупателей
0 / 5 5 5 1
На основе 1 оценок покупателей
0%
0%
0%
0%
0%
Отзывы о проекте D4691
Отзыв о проекте D4691
Чтобы оставить отзыв, пожалуйста авторизуйтесь.
Подбор строительной компании
Не знаете кому доверить строительство дома? Мы можем помочь! Подберем для вас из сотен наших партнеров несколько компаний с лучшем соотношением цена/качество под конкретно ваш запрос.
Подобрать