Главная Проекты домов Проект компактного одноэтажного мансардного дома из кирпича с дополнительной спальней на первом этаже, адаптированный для сейсмоопасных регионов

D459 Проект компактного одноэтажного мансардного дома из кирпича с дополнительной спальней на первом этаже, адаптированный для сейсмоопасных регионов

Сравнить проект В избранное
Проект компактного одноэтажного мансардного дома из кирпича с дополнительной спальней на первом этаже, адаптированный для сейсмоопасных регионов / 1
Проект компактного одноэтажного мансардного дома из кирпича с дополнительной спальней на первом этаже, адаптированный для сейсмоопасных регионов / 2
Проект компактного одноэтажного мансардного дома из кирпича с дополнительной спальней на первом этаже, адаптированный для сейсмоопасных регионов / 1
Проект компактного одноэтажного мансардного дома из кирпича с дополнительной спальней на первом этаже, адаптированный для сейсмоопасных регионов / 2
D459
95 м²
Подготовка проекта:
33 рабочих дня
Стоимость проекта
Купить проект
Задайте вопросы по проекту нашему архитектору
8 (800) 200-28-83
Время работы: пн-вс: с 9:00 до 20:00
Задать вопрос по проекту

Технические характеристики
Общие
Материал стен
Кирпич
Общая площадь
95 м²
Площадь застройки
63.9 м²
Приведенная площадь
84.8 м²
Количество жилых комнат/спален
4
Этажи
1 этаж + мансарда
Гараж
Нет гаража
Подвал / цокольный этаж
Без подвала
Длина дома
7.14 м
Ширина дома
8.94 м
Высота в коньке
7.14 м
Кровля
Металлочерепица
Облицовка внешних стен
Деревянная вагонка
,
Мокрая штукатурка
Толщина несущих наружных стен
380 мм
Межэтажные перекрытия
Монолитные
Внутренние не несущие перегородки
Кирпичные
Фундамент
Ленточный заглубленный из ФБС
Терраса
Терраса открытая
,
Терраса крытая
Дополнительные
Окна
Окна до пола
,
Окна с французским балконом
Мансардные окна
Есть
Камин
Есть
Сауна/баня внутри
Нет
Площадь гостиной
20 м²
Площадь кухни
6.2 м²
Количество санузлов
2
Окно в ванной комнате
Есть
Котельная
Есть
Кладовая
3
Длина участка
15.14 м
Ширина участка
15.94 м
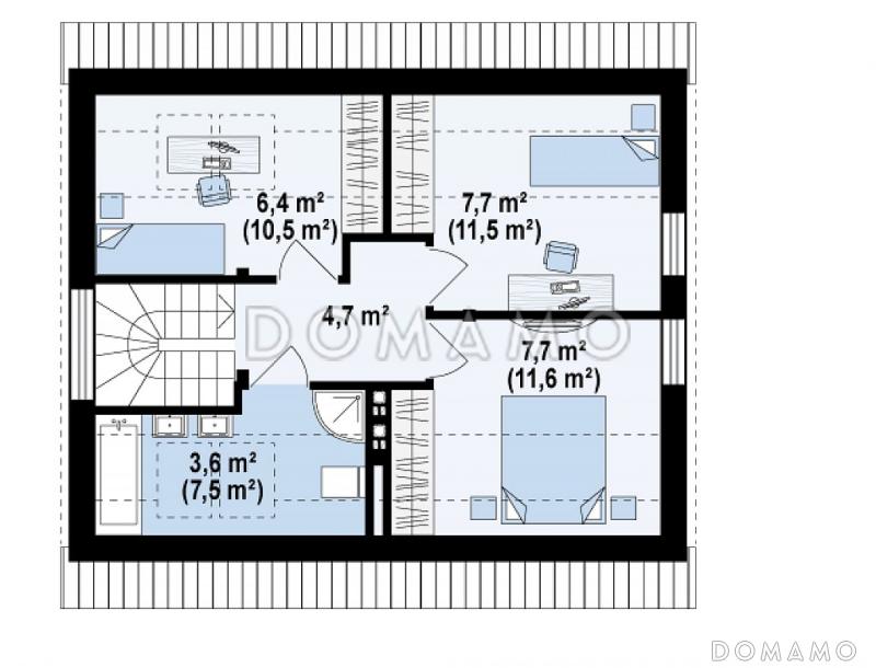
Планы помещений
Фасады
Описание проекта
Компания Domamo предлагает проект компактного одноэтажного мансардного дома из кирпича с дополнительной спальней на первом этаже, адаптированный для сейсмоопасных регионов D459. Общая площадь - 95 м2, размер - 7.14х8.94 м. Фундамент - ленточный заглубленный из фбс, кровля - металлочерепица, внешняя отделка - деревянная вагонка мокрая штукатурка. Для заказа проекта или внесения изменений свяжитесь с нами с помощью форм обратной связи на сайте или по телефону +7 (800) 200-28-83.
Категории проекта: с мансардой для постоянного проживания кирпич до 100 кв.м кирпичные дома с мансардой кирпичные европейские дома с террасой из кирпича с террасой готовые в стиле минимализм загородные из кирпича одноэтажные из кирпича одноэтажные из кирпича с мансардой одноэтажные кирпичные с котельной одноэтажные с мансардой кирпичные площадью до 150 кв. м. кирпичные с котельной одноэтажные до 150 кв. м. одноэтажные с котельной с котельной кирпичные до 100 кв.м кирпичные до 200 кв.м одноэтажные до 100 кв.м до 120 кв.м до 150 кв.м до 200 кв.м с двухскатной крышей 6х10 загородные с камином прямоугольные до 100 кв.м с мансардой Проекты одноэтажных домов с террасой Типовые проекты загородных одноэтажных домов без гаража одноэтажные без гаража с террасой и камином маленькие одноэтажные с 4 спальнями с мансардой до 150 кв м с мансардой и террасой полутораэтажные маленькие одноэтажные с мансардой до 120 кв.м одноэтажные до 120 кв.м маленькие с мансардой с 4 спальнями одноэтажные до 200 кв м до 140 кв м полутораэтажные из кирпича до 130 кв м одноэтажные с мансардными окнами с мансардой с котельной с мансардой с камином с мансардой с двухскатной крышей с мансардой в стиле минимализм с мансардой с окнами до пола с мансардой с мансардными окнами с мансардой прямоугольные с мансардой готовые с мансардой для постоянного проживания с мансардой 7х9 с мансардой до 200 кв.м одноэтажные из кирпича с 4 спальнями готовые для постоянного проживания с камином без гаража без подвала в стиле минимализм прямоугольные одноэтажные с мансардой для постоянного проживания одноэтажные с мансардой в стиле минимализм до 100 кв.м для постоянного проживания до 100 кв.м с террасой до 100 кв.м с котельной до 100 кв.м с окнами в пол до 100 кв.м прямоугольные до 100 кв.м с камином до 100 кв.м в стиле минимализм до 100 кв.м с двухскатной крышей до 100 кв.м с 4 спальнями до 120 кв.м кирпичные до 120 кв.м готовые до 120 кв.м для постоянного проживания до 120 кв.м без гаража до 120 кв.м с двухскатной крышей до 120 кв.м с окнами в пол до 120 кв.м с террасой до 120 кв.м минимализм до 120 кв.м с котельной до 120 кв.м с 4 спальнями до 120 кв.м прямоугольные до 150 кв.м для постоянного проживания до 150 кв.м без гаража до 150 кв.м с двухскатной крышей до 150 кв.м с окнами до пола до 150 кв.м минимализм до 150 кв.м готовые до 150 кв.м с мансардными окнами до 150 кв.м прямоугольные до 150 кв.м с котельной до 150 кв.м без бани до 150 кв.м с террасой до 150 кв.м без подвала до 150 кв.м с 4 спальнями до 150 кв.м с камином маленькие в стиле минимализм маленькие с террасой маленькие для постоянного проживания маленькие готовые маленькие прямоугольные маленькие с окнами до пола маленькие с двухскатной крышей маленькие с камином маленькие без бани в стиле минимализм для постоянного проживания в стиле минимализм без гаража в стиле минимализм прямоугольные в стиле минимализм с двухскатной крышей в стиле минимализм с окнами в пол в стиле минимализм с мансардными окнами в стиле минимализм с террасой в стиле минимализм с 4 спальнями в стиле минимализм с котельной в стиле минимализм с камином в стиле минимализм небольшие в стиле минимализм с ленточным фундаментом из клееного бруса без гаража Показать все категории Скрыть категории

Похожие проекты
Состав проекта
Входит в стоимость
Цена, руб. Сроки, дней
Комплект архитектурно-строительных чертежей (АС) Входит в стоимость 33 рабочих дня
Готово к продаже
Цена, руб. Сроки, дней
Паспорт рабочего проекта 8 000 ₽ 5 рабочих дней в корзину
Дополнительная копия проекта формата А3 6 500 ₽ 5 рабочих дней в корзину
Электронная копия проекта (скан распечатанной версии) 4 000 ₽ 3 рабочих дня в корзину
Разрабатывается отдельно
Цена, руб. Сроки, дней
Адаптация фундамента (изменение типа фундамента) по запросу 14 рабочих дней
Дизайн интерьера (стоимость от 2200руб. за квад.метр площади) по запросу 30 рабочих дней
Внесение изменений в проект по запросу 20 рабочих дней
Инженерные разделы: ВК + ОВ + ЭО 23 340 ₽ 33 рабочих дня в корзину
Разработка Генплана участка, в масштабе 1:250 7 500 ₽ 15 рабочих дней в корзину
Фэншуй дома 20 000 ₽ 14 рабочих дней в корзину
Фэншуй участка 15 000 ₽ 14 рабочих дней в корзину
Фэншуй полная консультация дом+участок с выездом на объект 100 000 ₽ 30 рабочих дней в корзину
Опции проекта вы можете заказать в корзине при оформлении заказа
Варианты проекта Сравнить все варианты
Избранные проекты
Избранные строители
Отзывы покупателей
Рейтинг покупателей
0 / 5 5 5 1
На основе 1 оценок покупателей
0%
0%
0%
0%
0%
Отзывы о проекте D459
Отзыв о проекте D459
Чтобы оставить отзыв, пожалуйста авторизуйтесь.
Подбор строительной компании
Не знаете кому доверить строительство дома? Мы можем помочь! Подберем для вас из сотен наших партнеров несколько компаний с лучшем соотношением цена/качество под конкретно ваш запрос.
Подобрать