Главная Проекты домов Проект компактного одноэтажного мансардного дома из газобетона с дополнительной спальней на первом этаже, адаптированный для сейсмоопасных регионов

D2893 Проект компактного одноэтажного мансардного дома из газобетона с дополнительной спальней на первом этаже, адаптированный для сейсмоопасных регионов

Сравнить проект В избранное
Технические характеристики
Общие
Материал стен
Газобетон
Общая площадь
95 м²
Площадь застройки
63.9 м²
Приведенная площадь
84.8 м²
Количество жилых комнат/спален
4
Этажи
1 этаж + мансарда
Гараж
Нет гаража
Подвал / цокольный этаж
Без подвала
Длина дома
7.14 м
Ширина дома
8.94 м
Высота в коньке
7.14 м
Кровля
Металлочерепица
Облицовка внешних стен
Деревянная вагонка
,
Мокрая штукатурка
Толщина несущих наружных стен
380 мм
Межэтажные перекрытия
Монолитные
Внутренние не несущие перегородки
Газобетонные
Фундамент
Ленточный заглубленный из ФБС
Терраса
Терраса открытая
,
Терраса крытая
Дополнительные
Окна
Окна до пола
,
Окна с французским балконом
Мансардные окна
Есть
Камин
Есть
Сауна/баня внутри
Нет
Площадь гостиной
20 м²
Площадь кухни
6.2 м²
Количество санузлов
2
Окно в ванной комнате
Есть
Котельная
Есть
Кладовая
3
Длина участка
15.14 м
Ширина участка
15.94 м
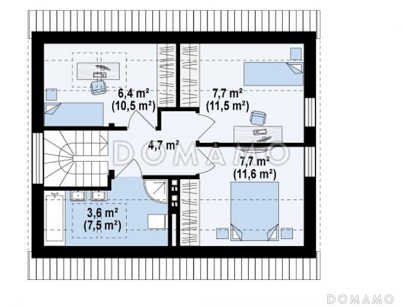
Планы помещений
Фасады
Описание проекта
Компания Domamo предлагает проект компактного одноэтажного мансардного дома из газобетона с дополнительной спальней на первом этаже, адаптированный для сейсмоопасных регионов D2893. Общая площадь - 95 м2, размер - 7.14х8.94 м. Фундамент - ленточный заглубленный из фбс, кровля - металлочерепица, внешняя отделка - деревянная вагонка мокрая штукатурка. Для заказа проекта или внесения изменений свяжитесь с нами с помощью форм обратной связи на сайте или по телефону +7 (800) 200-28-83.
Категории проекта: с мансардой для постоянного проживания пенобетон до 100 кв.м с террасой из пеноблоков с мансардой из газобетона готовые из газобетона с мансардой в стиле минимализм одноэтажные с мансардой одноэтажные до 150 кв. м. одноэтажные с котельной с котельной одноэтажные из газобетона из газосиликатных блоков одноэтажные до 100 кв.м до 120 кв.м до 150 кв.м до 200 кв.м с двухскатной крышей 6х10 загородные из керамзитобетонных блоков с камином прямоугольные из газобетона с террасой из блоков одноэтажные из блоков из блоков с мансардой до 100 кв.м с мансардой из пеноблоков с террасой загородные из газобетона Проекты одноэтажных домов с террасой Типовые проекты загородных одноэтажных домов без гаража одноэтажные без гаража с террасой и камином маленькие одноэтажных из керамзитобетонных блоков одноэтажные с 4 спальнями с мансардой до 150 кв м с мансардой и террасой полутораэтажные маленькие одноэтажные с мансардой до 120 кв.м одноэтажные до 120 кв.м маленькие с мансардой одноэтажные из пеноблоков до 100 кв м с 4 спальнями одноэтажные из газобетона до 100м2 одноэтажные до 200 кв м до 140 кв м до 130 кв м из пеноблоков загородные одноэтажные с мансардными окнами с мансардой с котельной с мансардой с камином с мансардой с двухскатной крышей с мансардой в стиле минимализм с мансардой с окнами до пола с мансардой с мансардными окнами с мансардой прямоугольные с мансардой готовые с мансардой для постоянного проживания с мансардой 7х9 с мансардой до 200 кв.м одноэтажные из газобетона с террасой одноэтажные из газобетона до 120 кв. м одноэтажные из газобетона до 150 кв. м одноэтажные из газобетона с мансардой одноэтажные из газобетона с 4 спальнями из газобетона до 100 кв.м из газобетона до 120 кв.м из газобетона до 150 кв.м из газобетона до 200 кв.м из газобетона с двухскатной крышей из газобетона в стиле минимализм из газобетона с котельной из газобетона прямоугольные из газобетона готовые из газобетона с камином из газобетона с четырьмя спальнями из газобетона маленькие из газобетона для постоянного проживания двухэтажные из газобетона без гаража двухэтажные из газобетона с террасой двухэтажные из газобетона с камином двухэтажные из газобетона с котельной двухэтажные из газобетона в стиле минимализм двухэтажные из газобетона с двухскатной крышей двухэтажные из газобетона маленькие двухэтажные из газобетона до 100 кв. м двухэтажные из газобетона до 120 кв. м двухэтажные из газобетона до 150 кв. м двухэтажные из газобетона до 200 кв. м двухэтажные из газобетона без подвала двухэтажные из газобетона с 4 спальнями из газобетона с мансардой в стиле минимализм из газобетона с мансардой с террасой из газобетона с мансардой с камином из газобетона с мансардой для постоянного проживания из газобетона с мансардой готовые из газобетона с мансардой с двухскатной крышей из газобетона с мансардой маленькие из газобетона с мансардой с 4 спальнями из газобетона с мансардой прямоугольные одноэтажные с мансардой для постоянного проживания одноэтажные с мансардой в стиле минимализм до 100 кв.м для постоянного проживания до 100 кв.м с террасой до 100 кв.м с котельной до 100 кв.м с окнами в пол до 100 кв.м прямоугольные до 100 кв.м с камином до 100 кв.м в стиле минимализм до 100 кв.м с двухскатной крышей до 100 кв.м с 4 спальнями до 120 кв.м готовые до 120 кв.м для постоянного проживания до 120 кв.м без гаража до 120 кв.м с двухскатной крышей до 120 кв.м с окнами в пол до 120 кв.м с террасой до 120 кв.м минимализм до 120 кв.м с котельной до 120 кв.м с 4 спальнями до 120 кв.м прямоугольные до 150 кв.м для постоянного проживания до 150 кв.м без гаража до 150 кв.м с двухскатной крышей до 150 кв.м с окнами до пола до 150 кв.м минимализм до 150 кв.м готовые до 150 кв.м с мансардными окнами до 150 кв.м прямоугольные до 150 кв.м с котельной до 150 кв.м без бани до 150 кв.м с террасой до 150 кв.м без подвала до 150 кв.м с 4 спальнями до 150 кв.м с камином маленькие в стиле минимализм маленькие с террасой маленькие для постоянного проживания маленькие готовые маленькие прямоугольные маленькие с окнами до пола маленькие с двухскатной крышей маленькие с камином маленькие без бани из пеноблоков в стиле минимализм из пеноблоков с двухскатной крышей из пеноблоков с окнами до пола из пеноблоков прямоугольные из пеноблоков для постоянного проживания из пеноблоков готовые из пеноблоков с камином из пеноблоков до 120 м кв. из пеноблоков до 150 м кв. из пеноблоков маленькие из пеноблоков с 4 спальнями в стиле минимализм для постоянного проживания в стиле минимализм без гаража в стиле минимализм прямоугольные в стиле минимализм с двухскатной крышей в стиле минимализм с окнами в пол в стиле минимализм с мансардными окнами в стиле минимализм с террасой в стиле минимализм с 4 спальнями в стиле минимализм с котельной в стиле минимализм с камином в стиле минимализм небольшие в стиле минимализм с ленточным фундаментом из клееного бруса без гаража Показать все категории Скрыть категории

Похожие проекты
Состав проекта
Входит в стоимость
Цена, руб. Сроки, дней
Комплект архитектурно-строительных чертежей (АС) Входит в стоимость 30 рабочих дней
Готово к продаже
Цена, руб. Сроки, дней
Паспорт рабочего проекта 8 000 ₽ 5 рабочих дней в корзину
Инженерные разделы: ВК + ОВ + ЭО 29 050 ₽ 30 рабочих дней в корзину
Дополнительная копия проекта формата А3 6 500 ₽ 5 рабочих дней в корзину
Электронная копия проекта (скан распечатанной версии) 4 000 ₽ 3 рабочих дня в корзину
Разрабатывается отдельно
Цена, руб. Сроки, дней
Адаптация фундамента (изменение типа фундамента) по запросу 14 рабочих дней
Дизайн интерьера (стоимость от 2200руб. за квад.метр площади) по запросу 30 рабочих дней
Внесение изменений в проект по запросу 20 рабочих дней
Разработка Генплана участка, в масштабе 1:250 7 500 ₽ 15 рабочих дней в корзину
Фэншуй дома 20 000 ₽ 14 рабочих дней в корзину
Фэншуй участка 15 000 ₽ 14 рабочих дней в корзину
Фэншуй полная консультация дом+участок с выездом на объект 100 000 ₽ 30 рабочих дней в корзину
Опции проекта вы можете заказать в корзине при оформлении заказа
Варианты проекта Сравнить все варианты
Избранные проекты
Избранные строители
Предложения строителей Выбрать регион
Минимальная
2 883 200 ₽
Стандарт
3 561 600 ₽
Под чистовую отделку
4 664 000 ₽
Показать подробные комплектации
Минимальная
8 649 600 ₽
Стандарт
10 176 000 ₽
Под чистовую отделку
13 228 800 ₽
Показать подробные комплектации
Минимальная
4 468 960 ₽
Стандарт
6 631 360 ₽
Под чистовую отделку
10 523 680 ₽
Показать подробные комплектации
Минимальная
3 264 800 ₽
Стандарт
3 917 760 ₽
Под чистовую отделку
4 384 160 ₽
Показать подробные комплектации
Минимальная
2 737 004 ₽
Стандарт
4 016 976 ₽
Под чистовую отделку
4 297 664 ₽
Показать подробные комплектации
Минимальная
3 205 440 ₽
Стандарт
3 663 360 ₽
Под чистовую отделку
4 808 160 ₽
Показать подробные комплектации
Подбор строительной компании
Не знаете кому доверить строительство дома? Мы можем помочь! Подберем для вас из сотен наших партнеров несколько компаний с лучшем соотношением цена/качество под конкретно ваш запрос.
Подобрать
Посмотреть еще 32 компании Свернуть
Отзывы покупателей
Рейтинг покупателей
0 / 5 5 5 1
На основе 1 оценок покупателей
0%
0%
0%
0%
0%
Отзывы о проекте D2893
Отзыв о проекте D2893
Чтобы оставить отзыв, пожалуйста авторизуйтесь.
Подбор строительной компании
Не знаете кому доверить строительство дома? Мы можем помочь! Подберем для вас из сотен наших партнеров несколько компаний с лучшем соотношением цена/качество под конкретно ваш запрос.
Подобрать