Главная Проекты домов Проект дома с гаражом для машины, подвалом, крытой террасой, кладовой

D4190 Проект дома с гаражом для машины, подвалом, крытой террасой, кладовой

Сравнить проект В избранное
Технические характеристики
Общие
Материал стен
Газобетон
Общая площадь
336 м²
Жилая площадь
118.69 м²
Площадь застройки
228.33 м²
Приведенная площадь
335.54 м²
Количество жилых комнат/спален
5
Этажи
2 этажа
Гараж
Нет гаража
Количество машин
1
Подвал / цокольный этаж
Без окон
Длина дома
17.35 м
Ширина дома
15.21 м
Кровля
Металлочерепица
Облицовка внешних стен
Мокрая штукатурка
,
Облицовочный кирпич
Толщина несущих наружных стен
375 мм
Межэтажные перекрытия
Монолитные
Фундамент
Ленточный монолитный
Терраса
Терраса крытая
Дополнительные
Окна
Круглые окна
Камин
Есть
Сауна/баня внутри
Нет
Площадь гостиной
34.8 м²
Площадь кухни
18.8 м²
Количество санузлов
3
Окно в ванной комнате
Есть
Котельная
Есть
Постирочная
Есть
Кладовая
3
Длина участка
27.35 м
Ширина участка
21.21 м
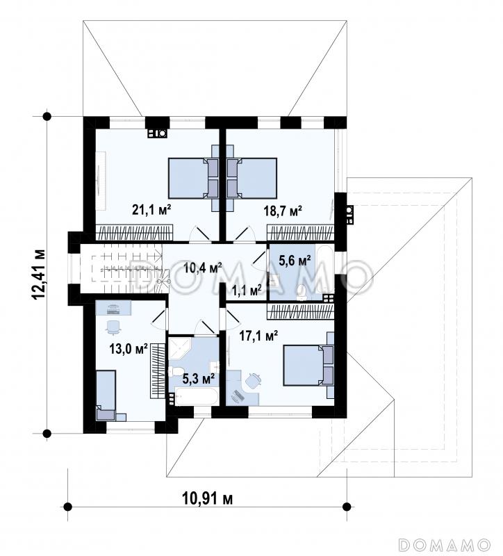
Планы помещений
Описание проекта
Компания Domamo предлагает проект дома с гаражом для машины, подвалом, крытой террасой, кладовой D4190. Общая площадь - 336 м2, размер - 17.35х15.21 м. Фундамент - ленточный монолитный, кровля - металлочерепица, внешняя отделка - облицовочный кирпич мокрая штукатурка. Для заказа проекта или внесения изменений свяжитесь с нами с помощью форм обратной связи на сайте или по телефону +7 (800) 200-28-83.
Категории проекта: для постоянного проживания пенобетон в классическом стиле от 300 до 400 кв.м с террасой из газобетона с цокольным этажом из газобетона готовые с цокольным этажом двухэтажные с подвалом с котельной двухэтажные из газобетона из газосиликатных блоков двухэтажные из пеноблоков загородные с четырехскатной крышей из керамзитобетонных блоков с камином элитные прямоугольные из газобетона с террасой из блоков двухэтажные из блоков из пеноблоков с террасой загородные из газобетона Проекты двухэтажных домов с террасой Проекты двухэтажных домов с верандой Проекты двухэтажных домов с подвалом без гаража с террасой и камином облицованные кирпичом из пеноблоков загородные с 5 спальнями двухэтажные с камином двухэтажные в классическом стиле двухэтажные без гаража из газобетона от 300 до 400 кв.м из газобетона с четырехскатной крышей из газобетона в классическом стиле из газобетона с котельной из газобетона прямоугольные из газобетона готовые из газобетона с камином из газобетона с большой кухней из газобетона для постоянного проживания двухэтажные из газобетона без гаража двухэтажные из газобетона с террасой двухэтажные из газобетона с камином двухэтажные из газобетона с прачечной двухэтажные из газобетона с котельной двухэтажные из газобетона классические двухэтажные из газобетона с четырехскатной крышей двухэтажные из газобетона большие двухэтажные из газобетона с подвалом классические для постоянного проживания классические без гаража классические с террасой классические готовые классические элитные классические с котельной классические с большой кухней классические с подвалом классические с прачечной классические прямоугольные классические с камином классические с четырехскатной крышей из пеноблоков в классическом стиле из пеноблоков с четырехскатной крышей из пеноблоков прямоугольные из пеноблоков для постоянного проживания из пеноблоков готовые из пеноблоков с камином из пеноблоков от 300 до 400 м2 из пеноблоков большие из пеноблоков с большой кухней из клееного бруса без гаража Показать все категории Скрыть категории

Похожие проекты
Состав проекта
Входит в стоимость
Цена, руб. Сроки, дней
Комплект архитектурно-строительных чертежей (АС) Входит в стоимость Готов к отправке
Готово к продаже
Цена, руб. Сроки, дней
Паспорт рабочего проекта 8 000 ₽ 5 рабочих дней в корзину
Инженерные разделы: ВК + ОВ + ЭО 14 450 ₽ Готов к отправке в корзину
Дополнительная копия проекта формата А3 6 500 ₽ 5 рабочих дней в корзину
Электронная копия проекта (скан распечатанной версии) 4 000 ₽ 3 рабочих дня в корзину
Разрабатывается отдельно
Цена, руб. Сроки, дней
Адаптация фундамента (изменение типа фундамента) по запросу 14 рабочих дней
Дизайн интерьера (стоимость от 2200руб. за квад.метр площади) по запросу 30 рабочих дней
Внесение изменений в проект по запросу 20 рабочих дней
Разработка Генплана участка, в масштабе 1:250 7 500 ₽ 15 рабочих дней в корзину
Фэншуй дома 20 000 ₽ 14 рабочих дней в корзину
Фэншуй участка 15 000 ₽ 14 рабочих дней в корзину
Фэншуй полная консультация дом+участок с выездом на объект 100 000 ₽ 30 рабочих дней в корзину
Опции проекта вы можете заказать в корзине при оформлении заказа
Варианты проекта Сравнить все варианты
Избранные проекты
Избранные строители

Предложения строителей Москва и Московская область
Минимальная
11 408 360 ₽
Стандарт
14 092 680 ₽
Под чистовую отделку
18 454 700 ₽
Показать подробные комплектации
Минимальная
27 380 064 ₽
Стандарт
32 211 840 ₽
Под чистовую отделку
41 875 392 ₽
Показать подробные комплектации
Минимальная
12 794 140 ₽
Стандарт
18 984 853 ₽
Под чистовую отделку
30 128 136 ₽
Показать подробные комплектации
Минимальная
10 569 510 ₽
Стандарт
12 683 412 ₽
Под чистовую отделку
14 193 342 ₽
Показать подробные комплектации
Минимальная
10 829 889 ₽
Стандарт
15 894 529 ₽
Под чистовую отделку
17 005 167 ₽
Показать подробные комплектации
Минимальная
8 455 608 ₽
Стандарт
9 663 552 ₽
Под чистовую отделку
12 683 412 ₽
Показать подробные комплектации
Подбор строительной компании
Не знаете кому доверить строительство дома? Мы можем помочь! Подберем для вас из сотен наших партнеров несколько компаний с лучшем соотношением цена/качество под конкретно ваш запрос.
Подобрать
Посмотреть еще 32 компании Свернуть
Отзывы покупателей
Рейтинг покупателей
0 / 5 5 5 1
На основе 1 оценок покупателей
0%
0%
0%
0%
0%
Отзывы о проекте D4190
Отзыв о проекте D4190
Чтобы оставить отзыв, пожалуйста авторизуйтесь.
Подбор строительной компании
Не знаете кому доверить строительство дома? Мы можем помочь! Подберем для вас из сотен наших партнеров несколько компаний с лучшем соотношением цена/качество под конкретно ваш запрос.
Подобрать