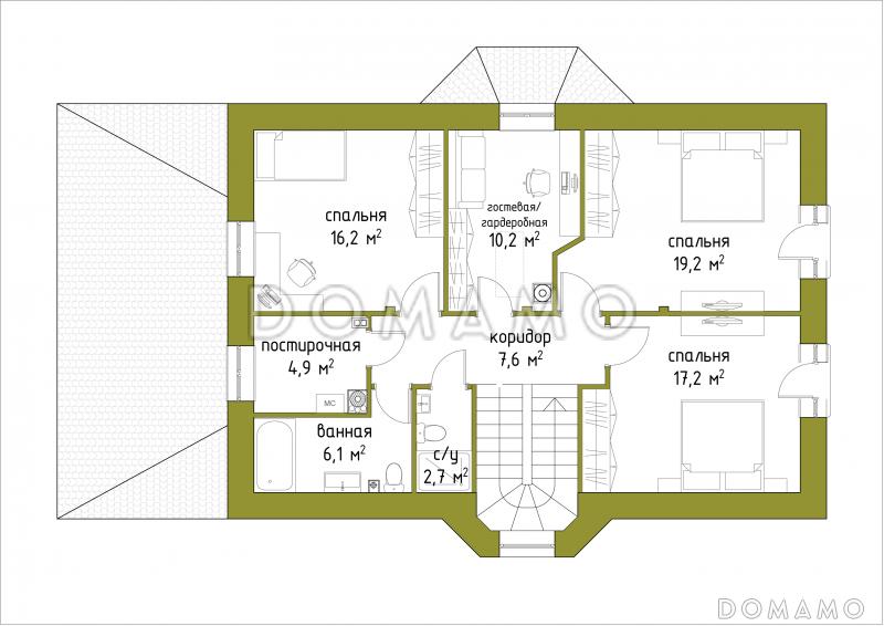
Просторный двухэтажный кирпичный коттедж, рассчитанный на круглогодичное комфортное проживание большой семьи. Имеет пять полноценных жилых комнат, совмещённое пространство гостиной и столовой, которые можно объединить с кухней, зонировать стеллажом или барной стойкой, или разделить на отдельные помещения перегородкой. Предусмотрена возможность установки камина. Большие окна гостиной-столовой с двухсторонним светом обеспечивают полный обзор участка. Также на первом этаже расположены кабинет, прихожая, санузел и кладовая. Для помещения котельной предусмотрен отдельный вход с террасы и из тамбура. На втором этаж расположены три спальни, гостевая/гардеробная, санузел, ванная комната и постирочная. Последние можно объединить в одно помещение.
| Цена, руб. | Сроки, дней | ||||||||||||||||||||||||||||||||||||||||||||||||||||||||||||||||||||||||||||||||||||||||||||||||||||||||||||||||||||||||||||||||||||||||||||||||||||||
|
Комплект архитектурно-строительных чертежей (АС)
|
Входит в стоимость | Готов к отправке | |||||||||||||||||||||||||||||||||||||||||||||||||||||||||||||||||||||||||||||||||||||||||||||||||||||||||||||||||||||||||||||||||||||||||||||||||||||
|
|
|||||||||||||||||||||||||||||||||||||||||||||||||||||||||||||||||||||||||||||||||||||||||||||||||||||||||||||||||||||||||||||||||||||||||||||||||||||||
| Цена, руб. | Сроки, дней | |||
| Паспорт рабочего проекта | 5 000 ₽ | 3 рабочих дня | в корзину | |
| Дополнительная копия проекта формата А3 | 4 000 ₽ | Готов к отправке | в корзину | |
| Электронная копия проекта (скан распечатанной версии) | 4 000 ₽ | 3 рабочих дня | в корзину | |
| Цена, руб. | Сроки, дней | |||
| Адаптация фундамента (изменение типа фундамента) | по запросу | 14 рабочих дней | ||
| Дизайн интерьера (стоимость от 2200руб. за квад.метр площади) | по запросу | 30 рабочих дней | ||
| Внесение изменений в проект | по запросу | 20 рабочих дней | ||
| Зеркалирование проекта (для которого нет зеркальной версии) | 8 000 ₽ | 5 рабочих дней | в корзину | |
| Разработка Генплана участка, в масштабе 1:250 | 7 500 ₽ | 5 рабочих дней | в корзину | |
| Фэншуй дома | 20 000 ₽ | 14 рабочих дней | в корзину | |
| Фэншуй участка | 15 000 ₽ | 14 рабочих дней | в корзину | |
| Фэншуй полная консультация дом+участок с выездом на объект | 100 000 ₽ | 30 рабочих дней | в корзину | |
| Минимальная | 6 241 200 ₽ |
| Стандарт | 7 667 760 ₽ |
| Под чистовую отделку | 9 985 920 ₽ |
| Показать подробные комплектации | |
| Сравнить 0 комплектаций Свернуть все Развернуть все | Минимальная 6 241 200 ₽ | Стандарт 7 667 760 ₽ | Под чистовую отделку 9 985 920 ₽ |
| Кровля | |||
| Кровельное покрытие | | | |
| Обрешетка | | | |
| Контробрешетка | | | |
| Противоконденсатная (ветро-гидроизоляционная) пленка | | | |
| Стропильная система | | | |
| Утепление чердачного перекрытия и стропильной системы | | | |
| Подшивка свесов кровли | | | |
| Подшивка потолков террас и лоджий | | | |
| Водосточная система | | | |
| Система снегозадержания | | | |
| Молниезащита | |||
| Фундамент | |||
| Сваи ж/бетонные | |||
| Сваи стальные винтовые | |||
| Лента ж/бетонная монолитная мелкозаглубленная | |||
| Лента ж/бетонная монолитная на глубину промерзания | |||
| Лента ж/бетонная сборная (из ФБС) на глубину промерзания | |||
| Плита ж/бетонная монолитная мелкозаглубленная | | | |
| УШП (Утепленная Шведская Плита) | |||
| Бетоннная отмостка по периметру дома | | ||
| Дренажная система по периметру дома | |||
| Ливневая система | |||
| Облицовка цоколя фундамента | | ||
| Система контурного заземления | | ||
| Стены | |||
| Несущая часть стены | | | |
| Фасадная отделка | | | |
| Утепление стены | |||
| Внутренняя обшивка/штукатурка со стороны помещения | | ||
| Пол первого этажа | |||
| Несущая часть перекрытия | | | |
| Теплоизоляция цокольного перекрытия | | ||
| Стяжка/подготовка под чистый пол | | ||
| Перекрытия над первым и последующими этажами | |||
| Несущая часть перекрытия | | | |
| Звукоизоляция/теплоизоляция в перекрытии | | ||
| Стяжка/подготовка под чистый пол | | ||
| Отделка потолка нижележащего этажа | |||
| Окна и внешние двери | |||
| Окна | | | |
| Оконные наличники | | ||
| Откосы в помещении | | ||
| Отливы снаружи | | | |
| Подоконники | | ||
| Входные двери | | | |
| Внутренние конструкции | |||
| Внутренние несущие стены | | | |
| Внутренние ненесущие стены | | | |
| Звукоизоляция внутренних стен/перегородок | |||
| Межэтажная строительная (черновая) лестница | | | |
| Межэтажная постоянная (чистовая) лестница | | ||
| Межкомнатные двери | | ||
| Высота потолков 1 этажа | 3 м | 3 м | 3м |
| Высота потолков 2 этажа | |||
| Настилы полов и ограждения крылец, террас, балконов | | ||
| Гидроизоляция полов балконов | | ||
| Инженерное оснащение | |||
| Жидкостной теплый пол | | ||
| Электрический теплый пол | |||
| Система вентиляции | | | |
| Только вводы воды, электричества, выводы канализации | | | |
| Электроразводка и электрощит | | ||
| Разводка хол. и гор. водоснабжения (ХВС и ГВС) | | ||
| Разводка батарей и/или системы теплого пола. Без оборудования котельной. | | ||
| Иное инженерное оснащение | | ||
| Подготовка участка для строительства | |||
| Устройство временного щита электроснабжения | | | |
| Устройство въезда на участок | |||
| Дорога на участке до пятна застройки | |||
| Подъем пятна застройки | |||
| Подготовка пятна застройки для фундаментных работ | |||
| Перемещение или вывоз грунта из котлована фундамента | |||
| Обеспечение строительного процесса | |||
| Доставка стройматериалов | | | |
| Генератор для обеспечения электричеством | |||
| Уборка и вывоз строительного мусора | | | |
| Организация проживания рабочих (бытовка) | | | |
| Биотуалет для рабочих | | | |
| Гарантия на все выполненные работы | |||
| Гарантия | |||
| Свернуть | |||
| Минимальная | 18 188 640 ₽ |
| Стандарт | 21 398 400 ₽ |
| Под чистовую отделку | 27 817 920 ₽ |
| Показать подробные комплектации | |
| Сравнить 0 комплектаций Свернуть все Развернуть все | Минимальная 18 188 640 ₽ | Стандарт 21 398 400 ₽ | Под чистовую отделку 27 817 920 ₽ |
| Кровля | |||
| Кровельное покрытие | Металлочерепица «Металл Профиль» | Металлочерепица «Металл Профиль» | Металлочерепица «Металл Профиль» |
| Обрешетка | Доска 20х95 мм, сухая, строганная | Доска 20х95 мм, сухая, строганная | Доска 20х95 мм, сухая, строганная |
| Контробрешетка | Брус 45х45 мм, сухой, строганный | Брус 45х45 мм, сухой, строганный | Брус 45х45 мм, сухой, строганный |
| Противоконденсатная (ветро-гидроизоляционная) пленка | | | |
| Стропильная система | Заводского изготовления. Доска 45х195 мм | Заводского изготовления. Доска 45х195 мм | Заводского изготовления. Доска 45х195 мм |
| Утепление чердачного перекрытия и стропильной системы | Базальтовый утеплитель Paroc Extra 250 мм | Базальтовый утеплитель Paroc Extra 250 мм | |
| Подшивка свесов кровли | | ||
| Подшивка потолков террас и лоджий | | ||
| Водосточная система | |||
| Система снегозадержания | |||
| Молниезащита | |||
| Фундамент | |||
| Сваи ж/бетонные | |||
| Сваи стальные винтовые | |||
| Лента ж/бетонная монолитная мелкозаглубленная | |||
| Лента ж/бетонная монолитная на глубину промерзания | |||
| Лента ж/бетонная сборная (из ФБС) на глубину промерзания | |||
| Плита ж/бетонная монолитная мелкозаглубленная | Цоколь 350 мм с утеплением 100 мм | Цоколь 350 мм с утеплением 100 мм | Цоколь 350 мм с утеплением 100 мм |
| УШП (Утепленная Шведская Плита) | |||
| Бетоннная отмостка по периметру дома | |||
| Дренажная система по периметру дома | |||
| Ливневая система | |||
| Облицовка цоколя фундамента | |||
| Система контурного заземления | |||
| Стены | |||
| Несущая часть стены | Поризованный кирпич Porotherm 10 NF 380х250х219 мм | Поризованный кирпич Porotherm 10 NF 380х250х219 мм | Поризованный кирпич Porotherm 10 NF 380х250х219 мм |
| Фасадная отделка | Отделочная доска | ||
| Утепление стены | Базальтовый утеплитель ROCKWOOL Фасад Баттс 1200х600х50 | Базальтовый утеплитель ROCKWOOL Фасад Баттс 1200х600х50 | |
| Внутренняя обшивка/штукатурка со стороны помещения | |||
| Пол первого этажа | |||
| Несущая часть перекрытия | |||
| Теплоизоляция цокольного перекрытия | |||
| Стяжка/подготовка под чистый пол | OSB-3 18 мм | ||
| Перекрытия над первым и последующими этажами | |||
| Несущая часть перекрытия | Монолитные ж/б перекрытия 180-200 мм | Монолитные ж/б перекрытия 180-200 мм | Монолитные ж/б перекрытия 180-200 мм |
| Звукоизоляция/теплоизоляция в перекрытии | Базальтовый утеплитель 150 мм | ||
| Стяжка/подготовка под чистый пол | OSB-3 18 мм | ||
| Отделка потолка нижележащего этажа | |||
| Окна и внешние двери | |||
| Окна | VEKA Softline 70 мм | VEKA Softline 70 мм | |
| Оконные наличники | |||
| Откосы в помещении | |||
| Отливы снаружи | |||
| Подоконники | |||
| Входные двери | Jeld-Wen | Jeld-Wen | |
| Внутренние конструкции | |||
| Внутренние несущие стены | Полнотелый кирпич 7 NF 250х380х219 мм | Полнотелый кирпич 7 NF 250х380х219 мм | Полнотелый кирпич 7 NF 250х380х219 мм |
| Внутренние ненесущие стены | |||
| Звукоизоляция внутренних стен/перегородок | |||
| Межэтажная строительная (черновая) лестница | Маршевая | Маршевая | Маршевая |
| Межэтажная постоянная (чистовая) лестница | |||
| Межкомнатные двери | |||
| Высота потолков 1 этажа | 2700 мм | 2700 мм | 2700 мм |
| Высота потолков 2 этажа | 2500 мм | 2500 мм | 2500 мм |
| Настилы полов и ограждения крылец, террас, балконов | | ||
| Гидроизоляция полов балконов | |||
| Инженерное оснащение | |||
| Жидкостной теплый пол | |||
| Электрический теплый пол | |||
| Система вентиляции | |||
| Только вводы воды, электричества, выводы канализации | | | |
| Электроразводка и электрощит | |||
| Разводка хол. и гор. водоснабжения (ХВС и ГВС) | |||
| Разводка батарей и/или системы теплого пола. Без оборудования котельной. | |||
| Иное инженерное оснащение | |||
| Подготовка участка для строительства | |||
| Устройство временного щита электроснабжения | |||
| Устройство въезда на участок | |||
| Дорога на участке до пятна застройки | |||
| Подъем пятна застройки | |||
| Подготовка пятна застройки для фундаментных работ | |||
| Перемещение или вывоз грунта из котлована фундамента | |||
| Обеспечение строительного процесса | |||
| Доставка стройматериалов | 50 км от КАД, МКАД | 50 км от КАД, МКАД | 50 км от КАД, МКАД |
| Генератор для обеспечения электричеством | |||
| Уборка и вывоз строительного мусора | |||
| Организация проживания рабочих (бытовка) | |||
| Биотуалет для рабочих | |||
| Гарантия на все выполненные работы | |||
| Гарантия | 5 лет | 5 лет | 5 лет |
| Свернуть | |||
| Минимальная | 9 187 046 ₽ |
| Стандарт | 13 493 474 ₽ |
| Под чистовую отделку | 21 245 044 ₽ |
| Показать подробные комплектации | |
| Сравнить 0 комплектаций Свернуть все Развернуть все | Минимальная 9 187 046 ₽ | Стандарт 13 493 474 ₽ | Под чистовую отделку 21 245 044 ₽ |
| Кровля | |||
| Кровельное покрытие | Металлочерепица Grand Line 0,5мм/ битумная черепица Шинглас | Металлочерепица Grand Line 0,5мм/ битумная черепица Шинглас | Металлочерепица Grand Line 0,5мм/ битумная черепица Шинглас |
| Обрешетка | Доска 100х25 с обработкой огнебиозащитой | Доска 100х25 с обработкой огнебиозащитой | Доска 100х25 с обработкой огнебиозащитой |
| Контробрешетка | Брусок 50х50 с обработкой огнебиозащитой | Брусок 50х50 с обработкой огнебиозащитой | Брусок 50х50 с обработкой огнебиозащитой |
| Противоконденсатная (ветро-гидроизоляционная) пленка | 3-х слойная мембрана | 3-х слойная мембрана | 3-х слойная мембрана |
| Стропильная система | Доска 200х50 с обработкой огнебиозащитой | Доска 200х50 с обработкой огнебиозащитой | Доска 200х50 с обработкой огнебиозащитой |
| Утепление чердачного перекрытия и стропильной системы | Утеплитель Rockwool Лайт Баттс Скандик 200мм | Утеплитель Rockwool Лайт Баттс Скандик 200мм | |
| Подшивка свесов кровли | Софит пластиковый Grand Line | Софит пластиковый Grand Line | |
| Подшивка потолков террас и лоджий | Имитация бруса 145мм | ||
| Водосточная система | Водосточная система пластиковая Grand Line | Водосточная система пластиковая Grand Line | |
| Система снегозадержания | Снегозадержатели трубчатые | Снегозадержатели трубчатые | |
| Молниезащита | |||
| Фундамент | |||
| Сваи ж/бетонные | |||
| Сваи стальные винтовые | |||
| Лента ж/бетонная монолитная мелкозаглубленная | |||
| Лента ж/бетонная монолитная на глубину промерзания | |||
| Лента ж/бетонная сборная (из ФБС) на глубину промерзания | |||
| Плита ж/бетонная монолитная мелкозаглубленная | Монолитная железобетонная плита 250мм с утеплением и ги | Монолитная железобетонная плита 250мм с утеплением и ги | Монолитная железобетонная плита 250мм с утеплением и ги |
| УШП (Утепленная Шведская Плита) | |||
| Бетоннная отмостка по периметру дома | Утепленная отмостка по периметру дома | ||
| Дренажная система по периметру дома | Дренажная система с смотровыми колодцами | ||
| Ливневая система | Ливневая система с отводом дождевой воды | ||
| Облицовка цоколя фундамента | Облицовка цоколя камнем | ||
| Система контурного заземления | |||
| Стены | |||
| Несущая часть стены | Керамические блоки Гжель 380мм | Керамические блоки Гжель 380мм | Керамические блоки Гжель 380мм |
| Фасадная отделка | Облицовка кирпичом Braer | Облицовка кирпичом Braer | |
| Утепление стены | |||
| Внутренняя обшивка/штукатурка со стороны помещения | Штукатурка стен | ||
| Пол первого этажа | |||
| Несущая часть перекрытия | Пол первого этажа - фундаментная плита | Пол первого этажа - фундаментная плита | Пол первого этажа - фундаментная плита |
| Теплоизоляция цокольного перекрытия | Утепление пенополистиролом 100мм над плитой | ||
| Стяжка/подготовка под чистый пол | Стяжка полов 80мм | ||
| Перекрытия над первым и последующими этажами | |||
| Несущая часть перекрытия | Монолитная железобетонная плита 180мм | Монолитная железобетонная плита 180мм | Монолитная железобетонная плита 180мм |
| Звукоизоляция/теплоизоляция в перекрытии | |||
| Стяжка/подготовка под чистый пол | Стяжка полов 80мм | ||
| Отделка потолка нижележащего этажа | Штукатурка потолков | ||
| Окна и внешние двери | |||
| Окна | Пластиковые окна REHAU GRAZIO 70мм, двухкамерный стеклопакет | Пластиковые окна REHAU GRAZIO 70мм, двухкамерный стеклопакет | |
| Оконные наличники | |||
| Откосы в помещении | Штукатурка откосов | ||
| Отливы снаружи | Металлические оконный отливы | Металлические оконный отливы | |
| Подоконники | Подоконники ПВХ | ||
| Входные двери | Входная утепленная дверь Torex | Входная утепленная дверь Torex | |
| Внутренние конструкции | |||
| Внутренние несущие стены | Керамический блок Гжель 250мм | Керамический блок Гжель 250мм | Керамический блок Гжель 250мм |
| Внутренние ненесущие стены | Керамический блок Гжель 120мм | Керамический блок Гжель 120мм | |
| Звукоизоляция внутренних стен/перегородок | |||
| Межэтажная строительная (черновая) лестница | |||
| Межэтажная постоянная (чистовая) лестница | Монолитная железобетонная лестница | Монолитная железобетонная лестница | |
| Межкомнатные двери | |||
| Высота потолков 1 этажа | 3 метра | 3 метра | 3 метра |
| Высота потолков 2 этажа | 2,8 метра | 2,8 метра | 2,8 метра |
| Настилы полов и ограждения крылец, террас, балконов | |||
| Гидроизоляция полов балконов | Оклеечная гидроизоляция | Оклеечная гидроизоляция | |
| Инженерное оснащение | |||
| Жидкостной теплый пол | |||
| Электрический теплый пол | |||
| Система вентиляции | |||
| Только вводы воды, электричества, выводы канализации | Ввод всех коммуникаций | Ввод всех коммуникаций | Ввод всех коммуникаций |
| Электроразводка и электрощит | |||
| Разводка хол. и гор. водоснабжения (ХВС и ГВС) | |||
| Разводка батарей и/или системы теплого пола. Без оборудования котельной. | |||
| Иное инженерное оснащение | |||
| Подготовка участка для строительства | |||
| Устройство временного щита электроснабжения | |||
| Устройство въезда на участок | |||
| Дорога на участке до пятна застройки | |||
| Подъем пятна застройки | |||
| Подготовка пятна застройки для фундаментных работ | Устройство песчаного основания с проливкой трамбовко | Устройство песчаного основания с проливкой трамбовко | Устройство песчаного основания с проливкой трамбовко |
| Перемещение или вывоз грунта из котлована фундамента | Перемещение по участку | Перемещение по участку | Перемещение по участку |
| Обеспечение строительного процесса | |||
| Доставка стройматериалов | Контроль поставки и качества материалов | Контроль поставки и качества материалов | Контроль поставки и качества материалов |
| Генератор для обеспечения электричеством | |||
| Уборка и вывоз строительного мусора | Уборка и вывоз строительного мусора | Уборка и вывоз строительного мусора | Уборка и вывоз строительного мусора |
| Организация проживания рабочих (бытовка) | Доставка и вывоз бытового помещения | Доставка и вывоз бытового помещения | |
| Биотуалет для рабочих | Доставка, обслуживание и вывоз биотуалета | Доставка, обслуживание и вывоз биотуалета | |
| Гарантия на все выполненные работы | |||
| Гарантия | 10 лет | 10 лет | 10 лет |
| Свернуть | |||
| Минимальная | 7 145 282 ₽ |
| Стандарт | 8 204 503 ₽ |
| Под чистовую отделку | 10 505 187 ₽ |
| Показать подробные комплектации | |
| Сравнить 0 комплектаций Свернуть все Развернуть все | Минимальная 7 145 282 ₽ | Стандарт 8 204 503 ₽ | Под чистовую отделку 10 505 187 ₽ |
| Кровля | |||
| Кровельное покрытие | Мететаллочерепица Grand Line | Мететаллочерепица Grand Line / мягкая кровля SHINGLAS
| Мететаллочерепица Grand Line / мягкая кровля SHINGLAS / цементн |
| Обрешетка | Доска обрезная 25-100 | Доска обрезная 25-100 | Доска обрезная 25-100 |
| Контробрешетка | Брусок 50х50 | Брусок 50х50 | Брусок 50х50 |
| Противоконденсатная (ветро-гидроизоляционная) пленка | Isospan | Isospan | Isospan |
| Стропильная система | Доска обрезная 50х200 с пропиткой | Доска обрезная 50х200 с пропиткой | Доска обрезная 50х200 с пропиткой |
| Утепление чердачного перекрытия и стропильной системы | Минеральная вата Технониколь | Минеральная вата Технониколь | Минеральная вата Технониколь |
| Подшивка свесов кровли | | | |
| Подшивка потолков террас и лоджий | | | |
| Водосточная система | AQUASYSTEM | ||
| Система снегозадержания | GrandLine | ||
| Молниезащита | Torr | ||
| Фундамент | |||
| Сваи ж/бетонные | | ||
| Сваи стальные винтовые | |||
| Лента ж/бетонная монолитная мелкозаглубленная | | | |
| Лента ж/бетонная монолитная на глубину промерзания | |||
| Лента ж/бетонная сборная (из ФБС) на глубину промерзания | |||
| Плита ж/бетонная монолитная мелкозаглубленная | | ||
| УШП (Утепленная Шведская Плита) | |||
| Бетоннная отмостка по периметру дома | | | |
| Дренажная система по периметру дома | | ||
| Ливневая система | | ||
| Облицовка цоколя фундамента | | ||
| Система контурного заземления | Torr | ||
| Стены | |||
| Несущая часть стены | Газобетон Bonolit 400
D400 | Газобетон Bonolit 400
D400 | Газобетон Bonolit 400
D400 |
| Фасадная отделка | Штукатурка | Кирпич | |
| Утепление стены | |||
| Внутренняя обшивка/штукатурка со стороны помещения | |||
| Пол первого этажа | |||
| Несущая часть перекрытия | пустотные плиты | пустотные плиты | монолитная плита |
| Теплоизоляция цокольного перекрытия | Пеноплекс 50 мм | Пеноплекс 50 мм | Пеноплекс 50 мм |
| Стяжка/подготовка под чистый пол | |||
| Перекрытия над первым и последующими этажами | |||
| Несущая часть перекрытия | Деревянное переркрытие | Пустотные плиты | Монолитное перекрытие |
| Звукоизоляция/теплоизоляция в перекрытии | |||
| Стяжка/подготовка под чистый пол | |||
| Отделка потолка нижележащего этажа | |||
| Окна и внешние двери | |||
| Окна | REHAU DELIGHT-Design профиль 70мм | ||
| Оконные наличники | | ||
| Откосы в помещении | |||
| Отливы снаружи | | ||
| Подоконники | | ||
| Входные двери | Дверь входная с термо-разрывом входная | ||
| Внутренние конструкции | |||
| Внутренние несущие стены | Газобетон 250 мм Bonolit | Газобетон 250 мм Bonolit | Газобетон 250 мм Bonolit |
| Внутренние ненесущие стены | Газобетон 100 мм Bonolit | Газобетон 100 мм Bonolit | |
| Звукоизоляция внутренних стен/перегородок | |||
| Межэтажная строительная (черновая) лестница | есть | есть | есть |
| Межэтажная постоянная (чистовая) лестница | есть | ||
| Межкомнатные двери | |||
| Высота потолков 1 этажа | 3000 | 3250 | 3250 |
| Высота потолков 2 этажа | 2750 | 3000 | 3250 |
| Настилы полов и ограждения крылец, террас, балконов | |||
| Гидроизоляция полов балконов | есть | ||
| Инженерное оснащение | |||
| Жидкостной теплый пол | по выбору | ||
| Электрический теплый пол | по выбору | ||
| Система вентиляции | есть | ||
| Только вводы воды, электричества, выводы канализации | | | |
| Электроразводка и электрощит | | ||
| Разводка хол. и гор. водоснабжения (ХВС и ГВС) | | ||
| Разводка батарей и/или системы теплого пола. Без оборудования котельной. | | ||
| Иное инженерное оснащение | | ||
| Подготовка участка для строительства | |||
| Устройство временного щита электроснабжения | | | |
| Устройство въезда на участок | | ||
| Дорога на участке до пятна застройки | | ||
| Подъем пятна застройки | | ||
| Подготовка пятна застройки для фундаментных работ | | ||
| Перемещение или вывоз грунта из котлована фундамента | | ||
| Обеспечение строительного процесса | |||
| Доставка стройматериалов | | | |
| Генератор для обеспечения электричеством | | | |
| Уборка и вывоз строительного мусора | | | |
| Организация проживания рабочих (бытовка) | | | |
| Биотуалет для рабочих | | | |
| Гарантия на все выполненные работы | |||
| Гарантия | 3 года | 3 года | 3 года |
| Свернуть | |||
| Минимальная | 3 830 465 ₽ |
| Стандарт | 4 743 427 ₽ |
| Под чистовую отделку | 5 709 298 ₽ |
| Показать подробные комплектации | |
| Сравнить 0 комплектаций Свернуть все Развернуть все | Минимальная 3 830 465 ₽ | Стандарт 4 743 427 ₽ | Под чистовую отделку 5 709 298 ₽ |
| Кровля | |||
| Кровельное покрытие | 380 | 510 | 720 |
| Обрешетка | 120 | 120 | 120 |
| Контробрешетка | 110 | 110 | 110 |
| Противоконденсатная (ветро-гидроизоляционная) пленка | 70 | 70 | 70 |
| Стропильная система | 420 | 460 | 520 |
| Утепление чердачного перекрытия и стропильной системы | 160 | 180 | 180 |
| Подшивка свесов кровли | 480 | 480 | 550 |
| Подшивка потолков террас и лоджий | 550 | 550 | 550 |
| Водосточная система | 480 | 480 | 480 |
| Система снегозадержания | 55 | 110 | 180 |
| Молниезащита | 110 | 110 | 110 |
| Фундамент | |||
| Сваи ж/бетонные | 4800 | 4800 | 4800 |
| Сваи стальные винтовые | |||
| Лента ж/бетонная монолитная мелкозаглубленная | 4800 | 4800 | 4800 |
| Лента ж/бетонная монолитная на глубину промерзания | 4800 | 4800 | 4800 |
| Лента ж/бетонная сборная (из ФБС) на глубину промерзания | |||
| Плита ж/бетонная монолитная мелкозаглубленная | 4800 | 4800 | 4800 |
| УШП (Утепленная Шведская Плита) | 6500 | 6500 | 6500 |
| Бетоннная отмостка по периметру дома | 320 | 320 | 320 |
| Дренажная система по периметру дома | 360 | 360 | 360 |
| Ливневая система | 450 | 450 | 450 |
| Облицовка цоколя фундамента | 1400 | 1500 | 1650 |
| Система контурного заземления | |||
| Стены | |||
| Несущая часть стены | 3300 | 3300 | 3300 |
| Фасадная отделка | 650 | 1300 | 1550 |
| Утепление стены | 220 | 330 | 330 |
| Внутренняя обшивка/штукатурка со стороны помещения | 420 | 450 | 480 |
| Пол первого этажа | |||
| Несущая часть перекрытия | 4800 | 4800 | 4800 |
| Теплоизоляция цокольного перекрытия | 280 | 300 | 320 |
| Стяжка/подготовка под чистый пол | 260 | 280 | 300 |
| Перекрытия над первым и последующими этажами | |||
| Несущая часть перекрытия | 4800 | 4800 | 4800 |
| Звукоизоляция/теплоизоляция в перекрытии | 280 | 300 | 320 |
| Стяжка/подготовка под чистый пол | 260 | 280 | 300 |
| Отделка потолка нижележащего этажа | 220 | 380 | 850 |
| Окна и внешние двери | |||
| Окна | 3800 | 4500 | 6500 |
| Оконные наличники | 150 | 150 | 150 |
| Откосы в помещении | 260 | 350 | 410 |
| Отливы снаружи | 120 | 120 | 120 |
| Подоконники | 320 | 320 | 320 |
| Входные двери | 3500 | 4800 | 9700 |
| Внутренние конструкции | |||
| Внутренние несущие стены | |||
| Внутренние ненесущие стены | |||
| Звукоизоляция внутренних стен/перегородок | |||
| Межэтажная строительная (черновая) лестница | |||
| Межэтажная постоянная (чистовая) лестница | |||
| Межкомнатные двери | |||
| Высота потолков 1 этажа | |||
| Высота потолков 2 этажа | |||
| Настилы полов и ограждения крылец, террас, балконов | |||
| Гидроизоляция полов балконов | |||
| Инженерное оснащение | |||
| Жидкостной теплый пол | |||
| Электрический теплый пол | |||
| Система вентиляции | |||
| Только вводы воды, электричества, выводы канализации | |||
| Электроразводка и электрощит | |||
| Разводка хол. и гор. водоснабжения (ХВС и ГВС) | |||
| Разводка батарей и/или системы теплого пола. Без оборудования котельной. | |||
| Иное инженерное оснащение | |||
| Подготовка участка для строительства | |||
| Устройство временного щита электроснабжения | | | |
| Устройство въезда на участок | | | |
| Дорога на участке до пятна застройки | | | |
| Подъем пятна застройки | | | |
| Подготовка пятна застройки для фундаментных работ | | | |
| Перемещение или вывоз грунта из котлована фундамента | | | |
| Обеспечение строительного процесса | |||
| Доставка стройматериалов | | | |
| Генератор для обеспечения электричеством | | | |
| Уборка и вывоз строительного мусора | | | |
| Организация проживания рабочих (бытовка) | 35000 | 35000 | 35000 |
| Биотуалет для рабочих | 5000 | 5000 | 5000 |
| Гарантия на все выполненные работы | |||
| Гарантия | 5 | 5 | 5 |
| Свернуть | |||
| Минимальная | 5 021 491 ₽ |
| Стандарт | 5 706 240 ₽ |
| Под чистовую отделку | 7 311 120 ₽ |
| Показать подробные комплектации | |
| Сравнить 0 комплектаций Свернуть все Развернуть все | Минимальная 5 021 491 ₽ | Стандарт 5 706 240 ₽ | Под чистовую отделку 7 311 120 ₽ |
| Кровля | |||
| Кровельное покрытие | Меллочерепица | Гибкая черепица | Фальцевая кровля |
| Обрешетка | | | |
| Контробрешетка | | | |
| Противоконденсатная (ветро-гидроизоляционная) пленка | | | |
| Стропильная система | | | |
| Утепление чердачного перекрытия и стропильной системы | | | |
| Подшивка свесов кровли | | | |
| Подшивка потолков террас и лоджий | | | |
| Водосточная система | | ||
| Система снегозадержания | | ||
| Молниезащита | |||
| Фундамент | |||
| Сваи ж/бетонные | | ||
| Сваи стальные винтовые | |||
| Лента ж/бетонная монолитная мелкозаглубленная | | ||
| Лента ж/бетонная монолитная на глубину промерзания | |||
| Лента ж/бетонная сборная (из ФБС) на глубину промерзания | |||
| Плита ж/бетонная монолитная мелкозаглубленная | | ||
| УШП (Утепленная Шведская Плита) | |||
| Бетоннная отмостка по периметру дома | |||
| Дренажная система по периметру дома | |||
| Ливневая система | |||
| Облицовка цоколя фундамента | |||
| Система контурного заземления | |||
| Стены | |||
| Несущая часть стены | | | |
| Фасадная отделка | | | |
| Утепление стены | | | |
| Внутренняя обшивка/штукатурка со стороны помещения | |||
| Пол первого этажа | |||
| Несущая часть перекрытия | | | |
| Теплоизоляция цокольного перекрытия | | ||
| Стяжка/подготовка под чистый пол | |||
| Перекрытия над первым и последующими этажами | |||
| Несущая часть перекрытия | | | |
| Звукоизоляция/теплоизоляция в перекрытии | | ||
| Стяжка/подготовка под чистый пол | |||
| Отделка потолка нижележащего этажа | |||
| Окна и внешние двери | |||
| Окна | |||
| Оконные наличники | |||
| Откосы в помещении | |||
| Отливы снаружи | |||
| Подоконники | |||
| Входные двери | |||
| Внутренние конструкции | |||
| Внутренние несущие стены | | | |
| Внутренние ненесущие стены | | | |
| Звукоизоляция внутренних стен/перегородок | | ||
| Межэтажная строительная (черновая) лестница | | | |
| Межэтажная постоянная (чистовая) лестница | |||
| Межкомнатные двери | |||
| Высота потолков 1 этажа | |||
| Высота потолков 2 этажа | |||
| Настилы полов и ограждения крылец, террас, балконов | | ||
| Гидроизоляция полов балконов | | | |
| Инженерное оснащение | |||
| Жидкостной теплый пол | |||
| Электрический теплый пол | |||
| Система вентиляции | |||
| Только вводы воды, электричества, выводы канализации | | | |
| Электроразводка и электрощит | |||
| Разводка хол. и гор. водоснабжения (ХВС и ГВС) | |||
| Разводка батарей и/или системы теплого пола. Без оборудования котельной. | |||
| Иное инженерное оснащение | |||
| Подготовка участка для строительства | |||
| Устройство временного щита электроснабжения | | | |
| Устройство въезда на участок | | ||
| Дорога на участке до пятна застройки | |||
| Подъем пятна застройки | |||
| Подготовка пятна застройки для фундаментных работ | | | |
| Перемещение или вывоз грунта из котлована фундамента | | ||
| Обеспечение строительного процесса | |||
| Доставка стройматериалов | | | |
| Генератор для обеспечения электричеством | |||
| Уборка и вывоз строительного мусора | | | |
| Организация проживания рабочих (бытовка) | | | |
| Биотуалет для рабочих | |||
| Гарантия на все выполненные работы | |||
| Гарантия | 5 лет | 5 лет | 5 лет |
| Свернуть | |||
| Минимальная | 9 807 600 ₽ |
| Стандарт | 14 265 600 ₽ |
| Под чистовую отделку | 22 290 000 ₽ |
| Показать подробные комплектации | |
| Сравнить 0 комплектаций Свернуть все Развернуть все | Минимальная 9 807 600 ₽ | Стандарт 14 265 600 ₽ | Под чистовую отделку 22 290 000 ₽ |
| Кровля | |||
| Кровельное покрытие | | | |
| Обрешетка | | | |
| Контробрешетка | | | |
| Противоконденсатная (ветро-гидроизоляционная) пленка | | | |
| Стропильная система | | | |
| Утепление чердачного перекрытия и стропильной системы | | | |
| Подшивка свесов кровли | | ||
| Подшивка потолков террас и лоджий | | ||
| Водосточная система | | | |
| Система снегозадержания | | | |
| Молниезащита | |||
| Фундамент | |||
| Сваи ж/бетонные | |||
| Сваи стальные винтовые | |||
| Лента ж/бетонная монолитная мелкозаглубленная | |||
| Лента ж/бетонная монолитная на глубину промерзания | |||
| Лента ж/бетонная сборная (из ФБС) на глубину промерзания | |||
| Плита ж/бетонная монолитная мелкозаглубленная | | | |
| УШП (Утепленная Шведская Плита) | |||
| Бетоннная отмостка по периметру дома | |||
| Дренажная система по периметру дома | |||
| Ливневая система | |||
| Облицовка цоколя фундамента | |||
| Система контурного заземления | |||
| Стены | |||
| Несущая часть стены | | | |
| Фасадная отделка | | ||
| Утепление стены | | | |
| Внутренняя обшивка/штукатурка со стороны помещения | | ||
| Пол первого этажа | |||
| Несущая часть перекрытия | | | |
| Теплоизоляция цокольного перекрытия | | | |
| Стяжка/подготовка под чистый пол | | ||
| Перекрытия над первым и последующими этажами | |||
| Несущая часть перекрытия | | | |
| Звукоизоляция/теплоизоляция в перекрытии | | | |
| Стяжка/подготовка под чистый пол | | ||
| Отделка потолка нижележащего этажа | | ||
| Окна и внешние двери | |||
| Окна | | | |
| Оконные наличники | | ||
| Откосы в помещении | | ||
| Отливы снаружи | | | |
| Подоконники | | ||
| Входные двери | | | |
| Внутренние конструкции | |||
| Внутренние несущие стены | | | |
| Внутренние ненесущие стены | | | |
| Звукоизоляция внутренних стен/перегородок | | | |
| Межэтажная строительная (черновая) лестница | | | |
| Межэтажная постоянная (чистовая) лестница | |||
| Межкомнатные двери | |||
| Высота потолков 1 этажа | 2,85 | 2,85 | 2,85 |
| Высота потолков 2 этажа | 2,75 | 2,75 | 2,75 |
| Настилы полов и ограждения крылец, террас, балконов | | ||
| Гидроизоляция полов балконов | | ||
| Инженерное оснащение | |||
| Жидкостной теплый пол | | ||
| Электрический теплый пол | | ||
| Система вентиляции | естественная | естественная | естественная |
| Только вводы воды, электричества, выводы канализации | | | |
| Электроразводка и электрощит | | ||
| Разводка хол. и гор. водоснабжения (ХВС и ГВС) | | ||
| Разводка батарей и/или системы теплого пола. Без оборудования котельной. | | ||
| Иное инженерное оснащение | |||
| Подготовка участка для строительства | |||
| Устройство временного щита электроснабжения | | | |
| Устройство въезда на участок | |||
| Дорога на участке до пятна застройки | |||
| Подъем пятна застройки | |||
| Подготовка пятна застройки для фундаментных работ | | | |
| Перемещение или вывоз грунта из котлована фундамента | | | |
| Обеспечение строительного процесса | |||
| Доставка стройматериалов | | | |
| Генератор для обеспечения электричеством | |||
| Уборка и вывоз строительного мусора | | | |
| Организация проживания рабочих (бытовка) | | | |
| Биотуалет для рабочих | | | |
| Гарантия на все выполненные работы | |||
| Гарантия | | | |
| Свернуть | |||
| Минимальная | 9 450 960 ₽ |
| Стандарт | 10 467 384 ₽ |
| Под чистовую отделку | 11 679 960 ₽ |
| Показать подробные комплектации | |
| Сравнить 0 комплектаций Свернуть все Развернуть все | Минимальная 9 450 960 ₽ | Стандарт 10 467 384 ₽ | Под чистовую отделку 11 679 960 ₽ |
| Кровля | |||
| Кровельное покрытие | Гибкая черепица, керамическая черепица, фальцевое пок | Гибкая черепица, керамическая черепица, фальцевое пок | Гибкая черепица, керамическая черепица, фальцевое пок |
| Обрешетка | Доска калиброванная 30 х120 обработанна | Доска калиброванная 30 х120 обработанна | Доска калиброванная 30 х120 обработанна |
| Контробрешетка | Брусок калиброванная 50 х 50 обработанн | Брусок калиброванная 50 х 50 обработанн | Брусок калиброванная 50 х 50 обработанн |
| Противоконденсатная (ветро-гидроизоляционная) пленка | В соответствии с проектом. | В соответствии с проектом. | В соответствии с проектом. |
| Стропильная система | Доска 50 Х 200 обработанная огнебиозащи | Доска 50 Х 200 обработанная огнебиозащи | Доска 50 Х 200 обработанная огнебиозащи |
| Утепление чердачного перекрытия и стропильной системы | Базальтовыми утеплителями, перекрест | Базальтовыми утеплителями, перекрест | Базальтовыми утеплителями, перекрест |
| Подшивка свесов кровли | Планкен крашенный , софит металл. | ||
| Подшивка потолков террас и лоджий | Планкен крашенный , софит металл. | ||
| Водосточная система | Пластиковая , металлическая в цвет кро | ||
| Система снегозадержания | В соответствии с типом покрытия кровл | В соответствии с типом покрытия кровл | В соответствии с типом покрытия кровл |
| Молниезащита | По согласованию. | ||
| Фундамент | |||
| Сваи ж/бетонные | По проекту. | По проекту. | По проекту. |
| Сваи стальные винтовые | |||
| Лента ж/бетонная монолитная мелкозаглубленная | По проекту. | По проекту. | По проекту. |
| Лента ж/бетонная монолитная на глубину промерзания | По проекту. | По проекту. | По проекту. |
| Лента ж/бетонная сборная (из ФБС) на глубину промерзания | По проекту. | По проекту. | По проекту. |
| Плита ж/бетонная монолитная мелкозаглубленная | По проекту. | По проекту. | По проекту. |
| УШП (Утепленная Шведская Плита) | По проекту. | По проекту. | По проекту. |
| Бетоннная отмостка по периметру дома | По проекту. | ||
| Дренажная система по периметру дома | По проекту. | ||
| Ливневая система | По проекту. | ||
| Облицовка цоколя фундамента | По проекту. | ||
| Система контурного заземления | По согласованию. | ||
| Стены | |||
| Несущая часть стены | По проекту. | По проекту. | По проекту. |
| Фасадная отделка | По проекту. | По проекту. | По проекту. |
| Утепление стены | По проекту. | По проекту. | |
| Внутренняя обшивка/штукатурка со стороны помещения | По проекту. | ||
| Пол первого этажа | |||
| Несущая часть перекрытия | По проекту. | По проекту. | По проекту. |
| Теплоизоляция цокольного перекрытия | По проекту. | По проекту. | По проекту. |
| Стяжка/подготовка под чистый пол | По проекту. | ||
| Перекрытия над первым и последующими этажами | |||
| Несущая часть перекрытия | По проекту. | По проекту. | По проекту. |
| Звукоизоляция/теплоизоляция в перекрытии | По проекту. | ||
| Стяжка/подготовка под чистый пол | По проекту. | ||
| Отделка потолка нижележащего этажа | По проекту. | ||
| Окна и внешние двери | |||
| Окна | По проекту. Белый профиль. | По проекту. Белый профиль, энергоэффек | По проекту. Ламинированный теплый про |
| Оконные наличники | По проекту. | По проекту. | По проекту. |
| Откосы в помещении | | ||
| Отливы снаружи | По проекту. | По проекту. | По проекту. |
| Подоконники | По проекту. | ||
| Входные двери | Стандартные. | Усиленные. | Усиленные с тероморазрывом. |
| Внутренние конструкции | |||
| Внутренние несущие стены | По проекту. | По проекту. | По проекту. |
| Внутренние ненесущие стены | По проекту. | По проекту. | По проекту. |
| Звукоизоляция внутренних стен/перегородок | По проекту. | ||
| Межэтажная строительная (черновая) лестница | По проекту. | По проекту. | |
| Межэтажная постоянная (чистовая) лестница | По проекту. | ||
| Межкомнатные двери | |||
| Высота потолков 1 этажа | 2,5 + по проекту | 3,0 + по проекту. | 3,5 + по проекту |
| Высота потолков 2 этажа | 2,5 + по проекту | 3,0 + по проекту. | 3,5 + по проекту |
| Настилы полов и ограждения крылец, террас, балконов | По проекту. | По проекту. | |
| Гидроизоляция полов балконов | По проекту. | По проекту. | По проекту. |
| Инженерное оснащение | |||
| Жидкостной теплый пол | По проекту. | ||
| Электрический теплый пол | По проекту. | ||
| Система вентиляции | По проекту. | ||
| Только вводы воды, электричества, выводы канализации | По проекту. | По проекту. | |
| Электроразводка и электрощит | По проекту. | ||
| Разводка хол. и гор. водоснабжения (ХВС и ГВС) | По проекту. | ||
| Разводка батарей и/или системы теплого пола. Без оборудования котельной. | По проекту. | ||
| Иное инженерное оснащение | По проекту. | ||
| Подготовка участка для строительства | |||
| Устройство временного щита электроснабжения | | | |
| Устройство въезда на участок | | | |
| Дорога на участке до пятна застройки | | ||
| Подъем пятна застройки | | ||
| Подготовка пятна застройки для фундаментных работ | | | |
| Перемещение или вывоз грунта из котлована фундамента | | | |
| Обеспечение строительного процесса | |||
| Доставка стройматериалов | | | |
| Генератор для обеспечения электричеством | | | |
| Уборка и вывоз строительного мусора | | | |
| Организация проживания рабочих (бытовка) | | | |
| Биотуалет для рабочих | | | |
| Гарантия на все выполненные работы | |||
| Гарантия | | | |
| Свернуть | |||
| Минимальная | 7 489 440 ₽ |
| Стандарт | 9 272 640 ₽ |
| Под чистовую отделку | 10 877 520 ₽ |
| Показать подробные комплектации | |
| Сравнить 0 комплектаций Свернуть все Развернуть все | Минимальная 7 489 440 ₽ | Стандарт 9 272 640 ₽ | Под чистовую отделку 10 877 520 ₽ |
| Кровля | |||
| Кровельное покрытие | Металлочерепица | Металлочерепица | Металлочерепица |
| Обрешетка | | | |
| Контробрешетка | | | |
| Противоконденсатная (ветро-гидроизоляционная) пленка | | | |
| Стропильная система | | | |
| Утепление чердачного перекрытия и стропильной системы | | ||
| Подшивка свесов кровли | | | |
| Подшивка потолков террас и лоджий | | ||
| Водосточная система | |||
| Система снегозадержания | |||
| Молниезащита | |||
| Фундамент | |||
| Сваи ж/бетонные | |||
| Сваи стальные винтовые | |||
| Лента ж/бетонная монолитная мелкозаглубленная | |||
| Лента ж/бетонная монолитная на глубину промерзания | |||
| Лента ж/бетонная сборная (из ФБС) на глубину промерзания | |||
| Плита ж/бетонная монолитная мелкозаглубленная | | | |
| УШП (Утепленная Шведская Плита) | |||
| Бетоннная отмостка по периметру дома | |||
| Дренажная система по периметру дома | |||
| Ливневая система | |||
| Облицовка цоколя фундамента | |||
| Система контурного заземления | |||
| Стены | |||
| Несущая часть стены | | | |
| Фасадная отделка | |||
| Утепление стены | |||
| Внутренняя обшивка/штукатурка со стороны помещения | | ||
| Пол первого этажа | |||
| Несущая часть перекрытия | |||
| Теплоизоляция цокольного перекрытия | |||
| Стяжка/подготовка под чистый пол | | ||
| Перекрытия над первым и последующими этажами | |||
| Несущая часть перекрытия | | | |
| Звукоизоляция/теплоизоляция в перекрытии | | ||
| Стяжка/подготовка под чистый пол | | ||
| Отделка потолка нижележащего этажа | | ||
| Окна и внешние двери | |||
| Окна | | | |
| Оконные наличники | | ||
| Откосы в помещении | | ||
| Отливы снаружи | | ||
| Подоконники | | ||
| Входные двери | | | |
| Внутренние конструкции | |||
| Внутренние несущие стены | | | |
| Внутренние ненесущие стены | | | |
| Звукоизоляция внутренних стен/перегородок | |||
| Межэтажная строительная (черновая) лестница | | ||
| Межэтажная постоянная (чистовая) лестница | | ||
| Межкомнатные двери | |||
| Высота потолков 1 этажа | 2,75 м | 2,75 м | 2,75 м |
| Высота потолков 2 этажа | 2,75 м | 2,75 м | 2,75 м |
| Настилы полов и ограждения крылец, террас, балконов | |||
| Гидроизоляция полов балконов | |||
| Инженерное оснащение | |||
| Жидкостной теплый пол | |||
| Электрический теплый пол | |||
| Система вентиляции | |||
| Только вводы воды, электричества, выводы канализации | | | |
| Электроразводка и электрощит | |||
| Разводка хол. и гор. водоснабжения (ХВС и ГВС) | |||
| Разводка батарей и/или системы теплого пола. Без оборудования котельной. | |||
| Иное инженерное оснащение | |||
| Подготовка участка для строительства | |||
| Устройство временного щита электроснабжения | |||
| Устройство въезда на участок | |||
| Дорога на участке до пятна застройки | |||
| Подъем пятна застройки | |||
| Подготовка пятна застройки для фундаментных работ | |||
| Перемещение или вывоз грунта из котлована фундамента | |||
| Обеспечение строительного процесса | |||
| Доставка стройматериалов | | | |
| Генератор для обеспечения электричеством | |||
| Уборка и вывоз строительного мусора | | | |
| Организация проживания рабочих (бытовка) | | | |
| Биотуалет для рабочих | | | |
| Гарантия на все выполненные работы | |||
| Гарантия | | | |
| Свернуть | |||
| Минимальная | 215 945 520 ₽ |
| Стандарт | 339 521 280 ₽ |
| Под чистовую отделку | 689 028 480 ₽ |
| Показать подробные комплектации | |
| Сравнить 0 комплектаций Свернуть все Развернуть все | Минимальная 215 945 520 ₽ | Стандарт 339 521 280 ₽ | Под чистовую отделку 689 028 480 ₽ |
| Кровля | |||
| Кровельное покрытие | 960 | 1250 | 1500 |
| Обрешетка | 420 | 430 | 450 |
| Контробрешетка | 420 | 430 | 450 |
| Противоконденсатная (ветро-гидроизоляционная) пленка | 80 | 100 | 110 |
| Стропильная система | 650 | 650 | 650 |
| Утепление чердачного перекрытия и стропильной системы | 350 | 350 | 350 |
| Подшивка свесов кровли | 700 | 700 | 700 |
| Подшивка потолков террас и лоджий | 700 | 700 | 700 |
| Водосточная система | 700 | 700 | 700 |
| Система снегозадержания | 450 | 450 | 450 |
| Молниезащита | 3500 | ||
| Фундамент | |||
| Сваи ж/бетонные | 4500 | 4500 | 4500 |
| Сваи стальные винтовые | 8500 | 8500 | 8500 |
| Лента ж/бетонная монолитная мелкозаглубленная | 8500 | 8500 | 8500 |
| Лента ж/бетонная монолитная на глубину промерзания | 8500 | 8500 | 8500 |
| Лента ж/бетонная сборная (из ФБС) на глубину промерзания | 11500 | 11500 | 11500 |
| Плита ж/бетонная монолитная мелкозаглубленная | 8500 | 8500 | 8500 |
| УШП (Утепленная Шведская Плита) | 21500 | 21500 | 21500 |
| Бетоннная отмостка по периметру дома | 4700 | 4700 | 4700 |
| Дренажная система по периметру дома | 1500 | 1500 | 1500 |
| Ливневая система | 2150 | 2150 | 2150 |
| Облицовка цоколя фундамента | 1800 | 1800 | 1800 |
| Система контурного заземления | 2000 | 2000 | 2000 |
| Стены | |||
| Несущая часть стены | 6500 | 6500 | 6500 |
| Фасадная отделка | 3500 | 3500 | 3500 |
| Утепление стены | 1500 | 1500 | 1500 |
| Внутренняя обшивка/штукатурка со стороны помещения | 1500 | 1500 | 15000 |
| Пол первого этажа | |||
| Несущая часть перекрытия | 4500 | 4500 | 4500 |
| Теплоизоляция цокольного перекрытия | 2500 | 2500 | 2500 |
| Стяжка/подготовка под чистый пол | 5500 | 5500 | 5500 |
| Перекрытия над первым и последующими этажами | |||
| Несущая часть перекрытия | 4500 | 4500 | 4500 |
| Звукоизоляция/теплоизоляция в перекрытии | 3600 | 3600 | 3600 |
| Стяжка/подготовка под чистый пол | 5500 | 5500 | 5500 |
| Отделка потолка нижележащего этажа | 4500 | 4500 | 4500 |
| Окна и внешние двери | |||
| Окна | 7600 | 7600 | 7600 |
| Оконные наличники | 1500 | 1500 | 1500 |
| Откосы в помещении | 450 | 450 | 450 |
| Отливы снаружи | 2500 | 2500 | 2500 |
| Подоконники | 7500 | 7500 | 7500 |
| Входные двери | 11000 | 11000 | 11000 |
| Внутренние конструкции | |||
| Внутренние несущие стены | 2500 | 2500 | 2500 |
| Внутренние ненесущие стены | 2500 | 2500 | 2500 |
| Звукоизоляция внутренних стен/перегородок | 3000 | 3000 | 3000 |
| Межэтажная строительная (черновая) лестница | 25000 | 25000 | 25000 |
| Межэтажная постоянная (чистовая) лестница | 60000 | 60000 | 60000 |
| Межкомнатные двери | 11000 | 11000 | 11000 |
| Высота потолков 1 этажа | 2.7 | 2.7 | 2.7 |
| Высота потолков 2 этажа | 2.7 | 2.7 | 2.7 |
| Настилы полов и ограждения крылец, террас, балконов | 4600 | 4600 | 46000 |
| Гидроизоляция полов балконов | 3600 | 3600 | 3600 |
| Инженерное оснащение | |||
| Жидкостной теплый пол | 70 | 70 | 70 |
| Электрический теплый пол | 100 | 100 | 100 |
| Система вентиляции | 450 | 450 | 450 |
| Только вводы воды, электричества, выводы канализации | 650 | 650 | 650 |
| Электроразводка и электрощит | 150 | 150 | 150 |
| Разводка хол. и гор. водоснабжения (ХВС и ГВС) | 250 | 250 | 250 |
| Разводка батарей и/или системы теплого пола. Без оборудования котельной. | 45000 | 45000 | 45000 |
| Иное инженерное оснащение | 70 | 70 | 70 |
| Подготовка участка для строительства | |||
| Устройство временного щита электроснабжения | 25000 | 25000 | 25000 |
| Устройство въезда на участок | 25000 | 25000 | 25000 |
| Дорога на участке до пятна застройки | 15000 | 15000 | 15000 |
| Подъем пятна застройки | 15000 | 15000 | 15000 |
| Подготовка пятна застройки для фундаментных работ | 50000 | 50000 | 50000 |
| Перемещение или вывоз грунта из котлована фундамента | 25000 | 25000 | 25000 |
| Обеспечение строительного процесса | |||
| Доставка стройматериалов | 4500 | 4500 | 4500 |
| Генератор для обеспечения электричеством | 75000 | 75000 | 75000 |
| Уборка и вывоз строительного мусора | 4500 | 4500 | 4500 |
| Организация проживания рабочих (бытовка) | 115000 | 115000 | 115000 |
| Биотуалет для рабочих | 75000 | 75000 | 75000 |
| Гарантия на все выполненные работы | |||
| Гарантия | 1000000 | 1000000 | 1000000 |
| Свернуть | |||
| Минимальная | 6 776 160 ₽ |
| Стандарт | 8 559 360 ₽ |
| Под чистовую отделку | 12 125 760 ₽ |
| Показать подробные комплектации | |
| Сравнить 0 комплектаций Свернуть все Развернуть все | Минимальная 6 776 160 ₽ | Стандарт 8 559 360 ₽ | Под чистовую отделку 12 125 760 ₽ |
| Кровля | |||
| Кровельное покрытие | Металлочерепица | Мягкая черепица | Цементно-песчаная черепица |
| Обрешетка | Сухой строганый брус | Сухой строганый брус | Сухой строганый брус |
| Контробрешетка | Сухой строганый брус | Сухой строганый брус | Сухой строганый брус |
| Противоконденсатная (ветро-гидроизоляционная) пленка | ПВХ пленка GrandLine | ПВХ пленка GrandLine | ПВХ пленка GrandLine |
| Стропильная система | Доска строганная антисептированная | Доска строганная антисептированная | Доска строганная антисептированная |
| Утепление чердачного перекрытия и стропильной системы | Утепление 200 мм | Утепление 200 мм | Утепление 200 мм |
| Подшивка свесов кровли | Установка J- профиля, J - фаска, саморезы оцинкованные с | Установка J- профиля, J - фаска, саморезы оцинкованные с | Устройство подсистемы из бруска сухого, строганного 45 |
| Подшивка потолков террас и лоджий | |||
| Водосточная система | Водосточная система Grand Line пластиковая
Кронштейны мет | Водосточная система Grand Line пластиковая
Кронштейны мет | Водосточная система Grand Line пластиковая
Кронштейны мет |
| Система снегозадержания | Grand Line | Grand Line | Grand Line |
| Молниезащита | |||
| Фундамент | |||
| Сваи ж/бетонные | |||
| Сваи стальные винтовые | |||
| Лента ж/бетонная монолитная мелкозаглубленная | |||
| Лента ж/бетонная монолитная на глубину промерзания | |||
| Лента ж/бетонная сборная (из ФБС) на глубину промерзания | |||
| Плита ж/бетонная монолитная мелкозаглубленная | Плита монолитная 300 мм | Утепленная монолитная плита 300 мм | |
| УШП (Утепленная Шведская Плита) | Утепленная шведская плита | ||
| Бетоннная отмостка по периметру дома | | | |
| Дренажная система по периметру дома | | | |
| Ливневая система | |||
| Облицовка цоколя фундамента | |||
| Система контурного заземления | |||
| Стены | |||
| Несущая часть стены | Стены наружные Газобетон 300 мм | Стены наружные Газобетон 375 мм | Стены наружные Газобетон 400 мм |
| Фасадная отделка | Фасад "Виниловый сайдинг" | Фасад штукатурный "Шуба" по утеплителю
| Фасад утеплённый "Клинкерный кирпич" |
| Утепление стены | Утепление фасада утеплителем Paroc плотностью 110 кг\м3 | Утепление фасада утеплителем Paroc плотностью 110 кг\м3 | Утепление фасада утеплителем Paroc плотностью 110 кг\м3 |
| Внутренняя обшивка/штукатурка со стороны помещения | |||
| Пол первого этажа | |||
| Несущая часть перекрытия | Межэтажное перекрытие "Стропильная система" 200 мм | Межэтажное перекрытие "Плита пустотная" 220 мм | Межэтажное перекрытие "Плита монолитная" 180 мм |
| Теплоизоляция цокольного перекрытия | |||
| Стяжка/подготовка под чистый пол | Стяжка по проекту | Стяжка по проекту | Стяжка по проекту |
| Перекрытия над первым и последующими этажами | |||
| Несущая часть перекрытия | Межэтажное перекрытие "Стропильная система" 200 мм | Межэтажное перекрытие "Плита пустотная" 220 мм | Межэтажное перекрытие "Плита монолитная" 180 мм |
| Звукоизоляция/теплоизоляция в перекрытии | |||
| Стяжка/подготовка под чистый пол | |||
| Отделка потолка нижележащего этажа | |||
| Окна и внешние двери | |||
| Окна | Двухкамерный стеклопакет | Двухкамерный стеклопакет | Двухкамерный стеклопакет |
| Оконные наличники | Металлические наличники | Металлические наличники | Металлические наличники |
| Откосы в помещении | |||
| Отливы снаружи | Металлические отливы | Металлические отливы | Металлические отливы |
| Подоконники | |||
| Входные двери | Дверь металлическая огнеупорная | Дверь металлическая огнеупорная | Дверь металлическая огнеупорная |
| Внутренние конструкции | |||
| Внутренние несущие стены | Стены внутренние, несущие 200 мм | Стены внутренние, несущие 250 мм | Стены внутренние, несущие 250 мм |
| Внутренние ненесущие стены | Перегородки внутренние 100 мм | Перегородки внутренние 150 мм | Перегородки внутренние 150 мм |
| Звукоизоляция внутренних стен/перегородок | |||
| Межэтажная строительная (черновая) лестница | Черновая деревянная лестница | Лестница железобетонная | Лестница металлическая сварная |
| Межэтажная постоянная (чистовая) лестница | |||
| Межкомнатные двери | |||
| Высота потолков 1 этажа | В соответствии с проектом | В соответствии с проектом | В соответствии с проектом |
| Высота потолков 2 этажа | В соответствии с проектом | В соответствии с проектом | В соответствии с проектом |
| Настилы полов и ограждения крылец, террас, балконов | |||
| Гидроизоляция полов балконов | |||
| Инженерное оснащение | |||
| Жидкостной теплый пол | |||
| Электрический теплый пол | |||
| Система вентиляции | В соответствии с проектом | В соответствии с проектом | В соответствии с проектом |
| Только вводы воды, электричества, выводы канализации | В соответствии с проектом | В соответствии с проектом | В соответствии с проектом |
| Электроразводка и электрощит | В соответствии с проектом | В соответствии с проектом | В соответствии с проектом |
| Разводка хол. и гор. водоснабжения (ХВС и ГВС) | В соответствии с проектом | В соответствии с проектом | В соответствии с проектом |
| Разводка батарей и/или системы теплого пола. Без оборудования котельной. | В соответствии с проектом | В соответствии с проектом | В соответствии с проектом |
| Иное инженерное оснащение | В соответствии с проектом | В соответствии с проектом | В соответствии с проектом |
| Подготовка участка для строительства | |||
| Устройство временного щита электроснабжения | В соответствии с проектом производства работ | В соответствии с проектом производства работ | В соответствии с проектом производства работ |
| Устройство въезда на участок | В соответствии с проектом производства работ | В соответствии с проектом производства работ | В соответствии с проектом производства работ |
| Дорога на участке до пятна застройки | |||
| Подъем пятна застройки | |||
| Подготовка пятна застройки для фундаментных работ | В соответствии с проектом производства работ | В соответствии с проектом производства работ | В соответствии с проектом производства работ |
| Перемещение или вывоз грунта из котлована фундамента | В соответствии с проектом производства работ | В соответствии с проектом производства работ | В соответствии с проектом производства работ |
| Обеспечение строительного процесса | |||
| Доставка стройматериалов | В соответствии с проектом производства работ | В соответствии с проектом производства работ | В соответствии с проектом производства работ |
| Генератор для обеспечения электричеством | В соответствии с проектом производства работ | В соответствии с проектом производства работ | В соответствии с проектом производства работ |
| Уборка и вывоз строительного мусора | В соответствии с проектом производства работ | В соответствии с проектом производства работ | В соответствии с проектом производства работ |
| Организация проживания рабочих (бытовка) | В соответствии с проектом производства работ | В соответствии с проектом производства работ | В соответствии с проектом производства работ |
| Биотуалет для рабочих | В соответствии с проектом производства работ | В соответствии с проектом производства работ | В соответствии с проектом производства работ |
| Гарантия на все выполненные работы | |||
| Гарантия | 15 лет | 15 лет | 15 лет |
| Свернуть | |||
| Минимальная | 10 699 200 ₽ |
| Стандарт | 13 374 000 ₽ |
| Под чистовую отделку | 19 615 200 ₽ |
| Показать подробные комплектации | |
| Сравнить 0 комплектаций Свернуть все Развернуть все | Минимальная 10 699 200 ₽ | Стандарт 13 374 000 ₽ | Под чистовую отделку 19 615 200 ₽ |
| Кровля | |||
| Кровельное покрытие | |||
| Обрешетка | |||
| Контробрешетка | |||
| Противоконденсатная (ветро-гидроизоляционная) пленка | |||
| Стропильная система | |||
| Утепление чердачного перекрытия и стропильной системы | |||
| Подшивка свесов кровли | |||
| Подшивка потолков террас и лоджий | |||
| Водосточная система | |||
| Система снегозадержания | |||
| Молниезащита | |||
| Фундамент | |||
| Сваи ж/бетонные | |||
| Сваи стальные винтовые | |||
| Лента ж/бетонная монолитная мелкозаглубленная | |||
| Лента ж/бетонная монолитная на глубину промерзания | |||
| Лента ж/бетонная сборная (из ФБС) на глубину промерзания | |||
| Плита ж/бетонная монолитная мелкозаглубленная | |||
| УШП (Утепленная Шведская Плита) | |||
| Бетоннная отмостка по периметру дома | |||
| Дренажная система по периметру дома | |||
| Ливневая система | |||
| Облицовка цоколя фундамента | |||
| Система контурного заземления | |||
| Стены | |||
| Несущая часть стены | |||
| Фасадная отделка | |||
| Утепление стены | |||
| Внутренняя обшивка/штукатурка со стороны помещения | |||
| Пол первого этажа | |||
| Несущая часть перекрытия | |||
| Теплоизоляция цокольного перекрытия | |||
| Стяжка/подготовка под чистый пол | |||
| Перекрытия над первым и последующими этажами | |||
| Несущая часть перекрытия | |||
| Звукоизоляция/теплоизоляция в перекрытии | |||
| Стяжка/подготовка под чистый пол | |||
| Отделка потолка нижележащего этажа | |||
| Окна и внешние двери | |||
| Окна | |||
| Оконные наличники | |||
| Откосы в помещении | |||
| Отливы снаружи | |||
| Подоконники | |||
| Входные двери | |||
| Внутренние конструкции | |||
| Внутренние несущие стены | |||
| Внутренние ненесущие стены | |||
| Звукоизоляция внутренних стен/перегородок | |||
| Межэтажная строительная (черновая) лестница | |||
| Межэтажная постоянная (чистовая) лестница | |||
| Межкомнатные двери | |||
| Высота потолков 1 этажа | |||
| Высота потолков 2 этажа | |||
| Настилы полов и ограждения крылец, террас, балконов | |||
| Гидроизоляция полов балконов | |||
| Инженерное оснащение | |||
| Жидкостной теплый пол | |||
| Электрический теплый пол | |||
| Система вентиляции | |||
| Только вводы воды, электричества, выводы канализации | |||
| Электроразводка и электрощит | |||
| Разводка хол. и гор. водоснабжения (ХВС и ГВС) | |||
| Разводка батарей и/или системы теплого пола. Без оборудования котельной. | |||
| Иное инженерное оснащение | |||
| Подготовка участка для строительства | |||
| Устройство временного щита электроснабжения | |||
| Устройство въезда на участок | |||
| Дорога на участке до пятна застройки | |||
| Подъем пятна застройки | |||
| Подготовка пятна застройки для фундаментных работ | |||
| Перемещение или вывоз грунта из котлована фундамента | |||
| Обеспечение строительного процесса | |||
| Доставка стройматериалов | |||
| Генератор для обеспечения электричеством | |||
| Уборка и вывоз строительного мусора | |||
| Организация проживания рабочих (бытовка) | |||
| Биотуалет для рабочих | |||
| Гарантия на все выполненные работы | |||
| Гарантия | | | |
| Свернуть | |||
| Минимальная | 5 260 440 ₽ |
| Стандарт | 5 795 400 ₽ |
| Под чистовую отделку | 8 470 200 ₽ |
| Показать подробные комплектации | |
| Сравнить 0 комплектаций Свернуть все Развернуть все | Минимальная 5 260 440 ₽ | Стандарт 5 795 400 ₽ | Под чистовую отделку 8 470 200 ₽ |
| Кровля | |||
| Кровельное покрытие | Металлочерепица Grand Line классик Satin 0,5 RAL 8017 | Металлочерепица Grand Line классик Satin 0,5 RAL 8017 | Металлочерепица Grand Line классик Satin 0,5 RAL 8017 |
| Обрешетка | Доска обрезная 25*100 | Доска обрезная 25*100 | Доска обрезная 25*100 |
| Контробрешетка | Брусок 50*50 | Брусок 50*50 | Брусок 50*50 |
| Противоконденсатная (ветро-гидроизоляционная) пленка | | | |
| Стропильная система | Доска обрезная 50*200 с пропиткой | Доска обрезная 50*200 с пропиткой | Доска обрезная 50*200 с пропиткой |
| Утепление чердачного перекрытия и стропильной системы | Минераловатные плиты (35 кг/м3) | Минераловатные плиты (35 кг/м3) | Минераловатные плиты (35 кг/м3) |
| Подшивка свесов кровли | | | |
| Подшивка потолков террас и лоджий | | | |
| Водосточная система | | | |
| Система снегозадержания | | ||
| Молниезащита | |||
| Фундамент | |||
| Сваи ж/бетонные | |||
| Сваи стальные винтовые | |||
| Лента ж/бетонная монолитная мелкозаглубленная | | ||
| Лента ж/бетонная монолитная на глубину промерзания | | ||
| Лента ж/бетонная сборная (из ФБС) на глубину промерзания | |||
| Плита ж/бетонная монолитная мелкозаглубленная | | ||
| УШП (Утепленная Шведская Плита) | | ||
| Бетоннная отмостка по периметру дома | | | |
| Дренажная система по периметру дома | | ||
| Ливневая система | |||
| Облицовка цоколя фундамента | | ||
| Система контурного заземления | |||
| Стены | |||
| Несущая часть стены | Блок газосиликатный D600
600*375*250 | Блок газосиликатный D600
600*375*250 | Блок газосиликатный D600
600*375*250 |
| Фасадная отделка | | | |
| Утепление стены | | ||
| Внутренняя обшивка/штукатурка со стороны помещения | |||
| Пол первого этажа | |||
| Несущая часть перекрытия | Пустотные плиты | Пустотные плиты | Монолитная плита |
| Теплоизоляция цокольного перекрытия | |||
| Стяжка/подготовка под чистый пол | |||
| Перекрытия над первым и последующими этажами | |||
| Несущая часть перекрытия | Деревянное перекрытие | Плиты перекрытия | Плиты перекрытия |
| Звукоизоляция/теплоизоляция в перекрытии | |||
| Стяжка/подготовка под чистый пол | |||
| Отделка потолка нижележащего этажа | |||
| Окна и внешние двери | |||
| Окна | Профиль REHAU,
энергосберегающий стеклопакет | ||
| Оконные наличники | |||
| Откосы в помещении | |||
| Отливы снаружи | | | |
| Подоконники | | ||
| Входные двери | Дверь входная с термо-разрывом | ||
| Внутренние конструкции | |||
| Внутренние несущие стены | Блок газосиликатный D600
600*300*250 | Блок газосиликатный D600
600*300*250 | Блок газосиликатный D600
600*300*250 |
| Внутренние ненесущие стены | Блок газосиликатный D600
600*100*250 | Блок газосиликатный D600
600*100*250 | Блок газосиликатный D600
600*100*250 |
| Звукоизоляция внутренних стен/перегородок | |||
| Межэтажная строительная (черновая) лестница | | | |
| Межэтажная постоянная (чистовая) лестница | | ||
| Межкомнатные двери | |||
| Высота потолков 1 этажа | 2.7 метра | 2.7 метра | 2.7 метра |
| Высота потолков 2 этажа | 2.7 метра | 2.7 метра | 2.7 метра |
| Настилы полов и ограждения крылец, террас, балконов | |||
| Гидроизоляция полов балконов | |||
| Инженерное оснащение | |||
| Жидкостной теплый пол | |||
| Электрический теплый пол | |||
| Система вентиляции | |||
| Только вводы воды, электричества, выводы канализации | Ввод всех коммуникаций | Ввод всех коммуникаций | Ввод всех коммуникаций |
| Электроразводка и электрощит | |||
| Разводка хол. и гор. водоснабжения (ХВС и ГВС) | | ||
| Разводка батарей и/или системы теплого пола. Без оборудования котельной. | |||
| Иное инженерное оснащение | |||
| Подготовка участка для строительства | |||
| Устройство временного щита электроснабжения | | | |
| Устройство въезда на участок | |||
| Дорога на участке до пятна застройки | |||
| Подъем пятна застройки | |||
| Подготовка пятна застройки для фундаментных работ | | | |
| Перемещение или вывоз грунта из котлована фундамента | Перемещение по участку | Перемещение по участку | Перемещение по участку |
| Обеспечение строительного процесса | |||
| Доставка стройматериалов | | | |
| Генератор для обеспечения электричеством | | | |
| Уборка и вывоз строительного мусора | | | |
| Организация проживания рабочих (бытовка) | Доставка и вывоз строительной бытовки | Доставка и вывоз строительной бытовки | Доставка и вывоз строительной бытовки |
| Биотуалет для рабочих | Доставка, обслуживание и вывоз биотуалета | Доставка, обслуживание и вывоз биотуалета | Доставка, обслуживание и вывоз биотуалета |
| Гарантия на все выполненные работы | |||
| Гарантия | 5 лет | 5 лет | 5 лет |
| Свернуть | |||
| Минимальная | 9 330 594 ₽ |
| Стандарт | 13 226 885 ₽ |
| Под чистовую отделку | 15 072 497 ₽ |
| Показать подробные комплектации | |
| Сравнить 0 комплектаций Свернуть все Развернуть все | Минимальная 9 330 594 ₽ | Стандарт 13 226 885 ₽ | Под чистовую отделку 15 072 497 ₽ |
| Кровля | |||
| Кровельное покрытие | | | |
| Обрешетка | | | |
| Контробрешетка | |||
| Противоконденсатная (ветро-гидроизоляционная) пленка | |||
| Стропильная система | | | |
| Утепление чердачного перекрытия и стропильной системы | | | |
| Подшивка свесов кровли | | | |
| Подшивка потолков террас и лоджий | | | |
| Водосточная система | | | |
| Система снегозадержания | | | |
| Молниезащита | | | |
| Фундамент | |||
| Сваи ж/бетонные | |||
| Сваи стальные винтовые | |||
| Лента ж/бетонная монолитная мелкозаглубленная | |||
| Лента ж/бетонная монолитная на глубину промерзания | |||
| Лента ж/бетонная сборная (из ФБС) на глубину промерзания | |||
| Плита ж/бетонная монолитная мелкозаглубленная | | | |
| УШП (Утепленная Шведская Плита) | |||
| Бетоннная отмостка по периметру дома | | | |
| Дренажная система по периметру дома | | | |
| Ливневая система | |||
| Облицовка цоколя фундамента | | | |
| Система контурного заземления | |||
| Стены | |||
| Несущая часть стены | | | |
| Фасадная отделка | | | |
| Утепление стены | | | |
| Внутренняя обшивка/штукатурка со стороны помещения | | ||
| Пол первого этажа | |||
| Несущая часть перекрытия | | | |
| Теплоизоляция цокольного перекрытия | | | |
| Стяжка/подготовка под чистый пол | | | |
| Перекрытия над первым и последующими этажами | |||
| Несущая часть перекрытия | | | |
| Звукоизоляция/теплоизоляция в перекрытии | |||
| Стяжка/подготовка под чистый пол | | | |
| Отделка потолка нижележащего этажа | | ||
| Окна и внешние двери | |||
| Окна | | | |
| Оконные наличники | | | |
| Откосы в помещении | | | |
| Отливы снаружи | | | |
| Подоконники | | | |
| Входные двери | | | |
| Внутренние конструкции | |||
| Внутренние несущие стены | | | |
| Внутренние ненесущие стены | | | |
| Звукоизоляция внутренних стен/перегородок | | | |
| Межэтажная строительная (черновая) лестница | | | |
| Межэтажная постоянная (чистовая) лестница | | ||
| Межкомнатные двери | | ||
| Высота потолков 1 этажа | |||
| Высота потолков 2 этажа | |||
| Настилы полов и ограждения крылец, террас, балконов | | ||
| Гидроизоляция полов балконов | |||
| Инженерное оснащение | |||
| Жидкостной теплый пол | |||
| Электрический теплый пол | |||
| Система вентиляции | | ||
| Только вводы воды, электричества, выводы канализации | |||
| Электроразводка и электрощит | | ||
| Разводка хол. и гор. водоснабжения (ХВС и ГВС) | | ||
| Разводка батарей и/или системы теплого пола. Без оборудования котельной. | | ||
| Иное инженерное оснащение | |||
| Подготовка участка для строительства | |||
| Устройство временного щита электроснабжения | | | |
| Устройство въезда на участок | |||
| Дорога на участке до пятна застройки | |||
| Подъем пятна застройки | |||
| Подготовка пятна застройки для фундаментных работ | |||
| Перемещение или вывоз грунта из котлована фундамента | |||
| Обеспечение строительного процесса | |||
| Доставка стройматериалов | | | |
| Генератор для обеспечения электричеством | |||
| Уборка и вывоз строительного мусора | |||
| Организация проживания рабочих (бытовка) | | | |
| Биотуалет для рабочих | | | |
| Гарантия на все выполненные работы | |||
| Гарантия | | | |
| Свернуть | |||
| Минимальная | 4 992 960 ₽ |
| Стандарт | 7 132 800 ₽ |
| Под чистовую отделку | 8 916 000 ₽ |
| Показать подробные комплектации | |
| Сравнить 0 комплектаций Свернуть все Развернуть все | Минимальная 4 992 960 ₽ | Стандарт 7 132 800 ₽ | Под чистовую отделку 8 916 000 ₽ |
| Кровля | |||
| Кровельное покрытие | Металлочерепица T05 (Zn140) PE-полиэстер. Цвет на выбор | Металлочерепица T05 (Zn140) PE-полиэстер. Цвет на выбор | Металлочерепица T05 (Zn140) PE-полиэстер. Цвет на выбор |
| Обрешетка | Доска 20х95 мм, сухая, строганная | Доска 20х95 мм, сухая, строганная | Доска 20х95 мм, сухая, строганная |
| Контробрешетка | Брус 45х45 мм, сухой, строганный | Брус 45х45 мм, сухой, строганный | Брус 45х45 мм, сухой, строганный |
| Противоконденсатная (ветро-гидроизоляционная) пленка | Гидроветроизоляция JUTA Ютавек | Гидроветроизоляция JUTA Ютавек | Гидроветроизоляция JUTA Ютавек |
| Стропильная система | Доска 50х200 мм | Доска 50х200 мм | Доска 50х200 мм |
| Утепление чердачного перекрытия и стропильной системы | Лайт Баттс СКАНДИК /ROCKWOOL | Лайт Баттс СКАНДИК /ROCKWOOL | |
| Подшивка свесов кровли | Софиты | ||
| Подшивка потолков террас и лоджий | Софиты | ||
| Водосточная система | Docke | ||
| Система снегозадержания | Трубчатая | Трубчатая | |
| Молниезащита | |||
| Фундамент | |||
| Сваи ж/бетонные | |||
| Сваи стальные винтовые | |||
| Лента ж/бетонная монолитная мелкозаглубленная | |||
| Лента ж/бетонная монолитная на глубину промерзания | |||
| Лента ж/бетонная сборная (из ФБС) на глубину промерзания | |||
| Плита ж/бетонная монолитная мелкозаглубленная | Высота над уровнем грунта 350мм | Высота над уровнем грунта 350мм | Высота над уровнем грунта 350мм |
| УШП (Утепленная Шведская Плита) | |||
| Бетоннная отмостка по периметру дома | |||
| Дренажная система по периметру дома | |||
| Ливневая система | |||
| Облицовка цоколя фундамента | |||
| Система контурного заземления | |||
| Стены | |||
| Несущая часть стены | 380мм Кирпич щелевой рабочий 2.1 нф | 380мм Кирпич щелевой рабочий 2.1 нф | 380мм Кирпич щелевой рабочий 2.1 нф |
| Фасадная отделка | Декоративная штукатурка (фактура короед) | ||
| Утепление стены | Базальтовый утеплитель ROCKWOOL Фасад Баттс | ||
| Внутренняя обшивка/штукатурка со стороны помещения | |||
| Пол первого этажа | |||
| Несущая часть перекрытия | Бетонный пол под стяжку | Бетонный пол под стяжку | Бетонный пол под стяжку |
| Теплоизоляция цокольного перекрытия | |||
| Стяжка/подготовка под чистый пол | Стяжка армированная выравнивающая под чистовое покры | ||
| Перекрытия над первым и последующими этажами | |||
| Несущая часть перекрытия | Плита монолитная ж/б 160мм | Плита монолитная ж/б 160мм | Плита монолитная ж/б 160мм |
| Звукоизоляция/теплоизоляция в перекрытии | |||
| Стяжка/подготовка под чистый пол | Стяжка армированная выравнивающая под чистовое покры | ||
| Отделка потолка нижележащего этажа | |||
| Окна и внешние двери | |||
| Окна | Профиль Рехау, стеклопакет с энергосберегающим стекло | Профиль Рехау, стеклопакет с энергосберегающим стекло | |
| Оконные наличники | |||
| Откосы в помещении | |||
| Отливы снаружи | Металлические по размеру проема, цвет на выбор | Металлические по размеру проема, цвет на выбор | |
| Подоконники | |||
| Входные двери | Металлическая дверь | Металлическая дверь | |
| Внутренние конструкции | |||
| Внутренние несущие стены | 250мм Кирпич щелевой рабочий 2.1 нф | 250мм Кирпич щелевой рабочий 2.1 нф | 250мм Кирпич щелевой рабочий 2.1 нф |
| Внутренние ненесущие стены | Кирпич щелевой 120мм | ||
| Звукоизоляция внутренних стен/перегородок | |||
| Межэтажная строительная (черновая) лестница | Маршевая | Маршевая | Маршевая |
| Межэтажная постоянная (чистовая) лестница | |||
| Межкомнатные двери | |||
| Высота потолков 1 этажа | 2700мм | 2700мм | 2700мм |
| Высота потолков 2 этажа | 2600мм | 2600мм | 2600мм |
| Настилы полов и ограждения крылец, террас, балконов | |||
| Гидроизоляция полов балконов | |||
| Инженерное оснащение | |||
| Жидкостной теплый пол | |||
| Электрический теплый пол | |||
| Система вентиляции | |||
| Только вводы воды, электричества, выводы канализации | |||
| Электроразводка и электрощит | Разводка электропроводки под точки | ||
| Разводка хол. и гор. водоснабжения (ХВС и ГВС) | Сшитый полипропилен Рехау | ||
| Разводка батарей и/или системы теплого пола. Без оборудования котельной. | Сшитый полипропилен Рехау | ||
| Иное инженерное оснащение | |||
| Подготовка участка для строительства | |||
| Устройство временного щита электроснабжения | |||
| Устройство въезда на участок | |||
| Дорога на участке до пятна застройки | |||
| Подъем пятна застройки | |||
| Подготовка пятна застройки для фундаментных работ | |||
| Перемещение или вывоз грунта из котлована фундамента | |||
| Обеспечение строительного процесса | |||
| Доставка стройматериалов | До 50 км от МКАД | До 50 км от МКАД | До 50 км от МКАД |
| Генератор для обеспечения электричеством | |||
| Уборка и вывоз строительного мусора | |||
| Организация проживания рабочих (бытовка) | |||
| Биотуалет для рабочих | |||
| Гарантия на все выполненные работы | |||
| Гарантия | |||
| Свернуть | |||
| Минимальная | 3 386 296 ₽ |
| Стандарт | 4 418 769 ₽ |
| Под чистовую отделку | 5 340 684 ₽ |
| Показать подробные комплектации | |
| Сравнить 0 комплектаций Свернуть все Развернуть все | Минимальная 3 386 296 ₽ | Стандарт 4 418 769 ₽ | Под чистовую отделку 5 340 684 ₽ |
| Кровля | |||
| Кровельное покрытие | Металлочерепица «GRAND LINE» | Металлочерепица «GRAND LINE» | Металлочерепица «GRAND LINE» |
| Обрешетка | Доска 100х25, сухая, строганная, с обработкой огнебиозащитой | Доска 100х25, сухая, строганная, с обработкой огнебиозащитой | Доска 100х25, сухая, строганная, с обработкой огнебиозащитой |
| Контробрешетка | Брус 45х45 мм, сухой, строганный, с обработкой огнебиозащитой | Брус 45х45 мм, сухой, строганный, с обработкой огнебиозащитой | Брус 45х45 мм, сухой, строганный, с обработкой огнебиозащитой |
| Противоконденсатная (ветро-гидроизоляционная) пленка | ветро-гидроизоляционная пленка Rockwool
| ветро-гидроизоляционная пленка Rockwool
| ветро-гидроизоляционная пленка Rockwool
|
| Стропильная система | Доска 200х50, сухая, строганная, с обработкой огнебиозащитой | Доска 200х50, сухая, строганная, с обработкой огнебиозащитой | Доска 200х50, сухая, строганная, с обработкой огнебиозащитой |
| Утепление чердачного перекрытия и стропильной системы | Утеплитель Rockwool Лайт Баттс Скандик | Утеплитель Rockwool Лайт Баттс Скандик | |
| Подшивка свесов кровли | Софит пластиковый Grand Line | Софит пластиковый Grand Line | |
| Подшивка потолков террас и лоджий | Софит пластиковый Grand Line | Софит пластиковый Grand Line | |
| Водосточная система | Водосточная система пластиковая Döcke | ||
| Система снегозадержания | Снегозадержатели трубчатые | ||
| Молниезащита | |||
| Фундамент | |||
| Сваи ж/бетонные | |||
| Сваи стальные винтовые | |||
| Лента ж/бетонная монолитная мелкозаглубленная | |||
| Лента ж/бетонная монолитная на глубину промерзания | |||
| Лента ж/бетонная сборная (из ФБС) на глубину промерзания | |||
| Плита ж/бетонная монолитная мелкозаглубленная | Монолитная железобетонная плита 250мм с утеплением и гидроизоляцией | Монолитная железобетонная плита 250мм с утеплением и гидроизоляцией | Монолитная железобетонная плита 250мм с утеплением и гидроизоляцией |
| УШП (Утепленная Шведская Плита) | |||
| Бетоннная отмостка по периметру дома | Утепленная отмостка по периметру дома | ||
| Дренажная система по периметру дома | |||
| Ливневая система | Ливневая система с отводом дождевой воды | ||
| Облицовка цоколя фундамента | |||
| Система контурного заземления | |||
| Стены | |||
| Несущая часть стены | Газобетонные блоки D500 "Bonolit" 600х400х250мм | Газобетонные блоки D500 "Bonolit" 600х400х250мм | Газобетонные блоки D500 "Bonolit" 600х400х250мм |
| Фасадная отделка | Мокрый фасад,короед | Мокрый фасад,короед | |
| Утепление стены | Rockwool 100 мм | ||
| Внутренняя обшивка/штукатурка со стороны помещения | |||
| Пол первого этажа | |||
| Несущая часть перекрытия | Пол первого этажа - фундаментная плита
| Пол первого этажа - фундаментная плита
| Пол первого этажа - фундаментная плита
|
| Теплоизоляция цокольного перекрытия | |||
| Стяжка/подготовка под чистый пол | |||
| Перекрытия над первым и последующими этажами | |||
| Несущая часть перекрытия | Плиты перекрытия | Плиты перекрытия | Плиты перекрытия |
| Звукоизоляция/теплоизоляция в перекрытии | |||
| Стяжка/подготовка под чистый пол | |||
| Отделка потолка нижележащего этажа | |||
| Окна и внешние двери | |||
| Окна | Пластиковые окна REHAU 50мм, двухкамерный стеклопакет | Пластиковые окна REHAU 50мм, двухкамерный стеклопакет | |
| Оконные наличники | |||
| Откосы в помещении | |||
| Отливы снаружи | | | |
| Подоконники | |||
| Входные двери | | | |
| Внутренние конструкции | |||
| Внутренние несущие стены | Газобетонные блоки D500 "Bonolit" 600х350х250мм | Газобетонные блоки D500 "Bonolit" 600х350х250мм | Газобетонные блоки D500 "Bonolit" 600х350х250мм |
| Внутренние ненесущие стены | Газобетонный блоки D500 "Bonolit" 100мм | Газобетонный блоки D500 "Bonolit" 100мм | |
| Звукоизоляция внутренних стен/перегородок | |||
| Межэтажная строительная (черновая) лестница | | | |
| Межэтажная постоянная (чистовая) лестница | |||
| Межкомнатные двери | |||
| Высота потолков 1 этажа | 2.8 метра | 2.8 метра | 2.8 метра |
| Высота потолков 2 этажа | 2.8 метра | 2.8 метра | 2.8 метра |
| Настилы полов и ограждения крылец, террас, балконов | |||
| Гидроизоляция полов балконов | Оклеечная гидроизоляция | Оклеечная гидроизоляция | |
| Инженерное оснащение | |||
| Жидкостной теплый пол | |||
| Электрический теплый пол | |||
| Система вентиляции | |||
| Только вводы воды, электричества, выводы канализации | Ввод всех коммуникаций | Ввод всех коммуникаций | Ввод всех коммуникаций |
| Электроразводка и электрощит | |||
| Разводка хол. и гор. водоснабжения (ХВС и ГВС) | |||
| Разводка батарей и/или системы теплого пола. Без оборудования котельной. | |||
| Иное инженерное оснащение | |||
| Подготовка участка для строительства | |||
| Устройство временного щита электроснабжения | | | |
| Устройство въезда на участок | |||
| Дорога на участке до пятна застройки | |||
| Подъем пятна застройки | |||
| Подготовка пятна застройки для фундаментных работ | | | |
| Перемещение или вывоз грунта из котлована фундамента | Перемещение по участку | Перемещение по участку | Перемещение по участку |
| Обеспечение строительного процесса | |||
| Доставка стройматериалов | Контроль поставки и качества материалов | Контроль поставки и качества материалов | Контроль поставки и качества материалов |
| Генератор для обеспечения электричеством | |||
| Уборка и вывоз строительного мусора | | | |
| Организация проживания рабочих (бытовка) | Доставка и вывоз строительной бытовки | Доставка и вывоз строительной бытовки | Доставка и вывоз строительной бытовки |
| Биотуалет для рабочих | Доставка, обслуживание и вывоз биотуалета | Доставка, обслуживание и вывоз биотуалета | Доставка, обслуживание и вывоз биотуалета |
| Гарантия на все выполненные работы | |||
| Гарантия | 5 лет | 5 лет | 5 лет |
| Свернуть | |||
| Минимальная | 3 923 040 ₽ |
| Стандарт | 4 458 000 ₽ |
| Под чистовую отделку | 6 776 160 ₽ |
| Показать подробные комплектации | |
| Сравнить 0 комплектаций Свернуть все Развернуть все | Минимальная 3 923 040 ₽ | Стандарт 4 458 000 ₽ | Под чистовую отделку 6 776 160 ₽ |
| Кровля | |||
| Кровельное покрытие | Металлочерепица Grand Line классик Satin 0,5 RAL 8017
| Металлочерепица Grand Line классик Satin 0,5 RAL 8017
| Металлочерепица Grand Line классик Satin 0,5 RAL 8017
|
| Обрешетка | Доска 25х100 (1 сорт)
| Доска 25х100 (1 сорт)
| Доска 25х100 (1 сорт)
|
| Контробрешетка | Доска 25х100 (1 сорт)
| Доска 25х100 (1 сорт)
| Доска 25х100 (1 сорт)
|
| Противоконденсатная (ветро-гидроизоляционная) пленка | | ||
| Стропильная система | Пиломатериал обрезной (1 сорт)
| Пиломатериал обрезной (1 сорт)
| Пиломатериал обрезной (1 сорт)
|
| Утепление чердачного перекрытия и стропильной системы | Минераловатные плиты (Изомин, Изорок, Изолайт) 35 кг/м3
| Минераловатные плиты (Изомин, Изорок, Изолайт) 35 кг/м3
| |
| Подшивка свесов кровли | | ||
| Подшивка потолков террас и лоджий | | ||
| Водосточная система | | ||
| Система снегозадержания | | ||
| Молниезащита | |||
| Фундамент | |||
| Сваи ж/бетонные | |||
| Сваи стальные винтовые | |||
| Лента ж/бетонная монолитная мелкозаглубленная | |||
| Лента ж/бетонная монолитная на глубину промерзания | |||
| Лента ж/бетонная сборная (из ФБС) на глубину промерзания | |||
| Плита ж/бетонная монолитная мелкозаглубленная | Монолитная ребристая фундаментная плита (60 см над землей)
| Монолитная ребристая фундаментная плита (60 см над землей) | Монолитная ребристая фундаментная плита (60 см над землей) |
| УШП (Утепленная Шведская Плита) | |||
| Бетоннная отмостка по периметру дома | |||
| Дренажная система по периметру дома | | ||
| Ливневая система | |||
| Облицовка цоколя фундамента | | ||
| Система контурного заземления | |||
| Стены | |||
| Несущая часть стены | кирпич щелевой | кирпич щелевой | кирпич щелевой |
| Фасадная отделка | | ||
| Утепление стены | | ||
| Внутренняя обшивка/штукатурка со стороны помещения | |||
| Пол первого этажа | |||
| Несущая часть перекрытия | Монолитное перекрытие 200 мм
| Монолитное перекрытие 200 мм | Монолитное перекрытие 200 мм |
| Теплоизоляция цокольного перекрытия | |||
| Стяжка/подготовка под чистый пол | |||
| Перекрытия над первым и последующими этажами | |||
| Несущая часть перекрытия | Монолитное перекрытие 160 мм | Монолитное перекрытие 160 мм | Монолитное перекрытие 160 мм |
| Звукоизоляция/теплоизоляция в перекрытии | |||
| Стяжка/подготовка под чистый пол | |||
| Отделка потолка нижележащего этажа | |||
| Окна и внешние двери | |||
| Окна | | ||
| Оконные наличники | |||
| Откосы в помещении | |||
| Отливы снаружи | | ||
| Подоконники | |||
| Входные двери | | ||
| Внутренние конструкции | |||
| Внутренние несущие стены | кирпич щелевой
| кирпич щелевой | кирпич щелевой |
| Внутренние ненесущие стены | кирпич щелевой | кирпич щелевой | |
| Звукоизоляция внутренних стен/перегородок | |||
| Межэтажная строительная (черновая) лестница | |||
| Межэтажная постоянная (чистовая) лестница | | ||
| Межкомнатные двери | |||
| Высота потолков 1 этажа | 2,7 | 2,7 | 2,7 |
| Высота потолков 2 этажа | 2,7 | 2,7 | 2,7 |
| Настилы полов и ограждения крылец, террас, балконов | |||
| Гидроизоляция полов балконов | |||
| Инженерное оснащение | |||
| Жидкостной теплый пол | |||
| Электрический теплый пол | |||
| Система вентиляции | | | |
| Только вводы воды, электричества, выводы канализации | | | |
| Электроразводка и электрощит | |||
| Разводка хол. и гор. водоснабжения (ХВС и ГВС) | |||
| Разводка батарей и/или системы теплого пола. Без оборудования котельной. | |||
| Иное инженерное оснащение | |||
| Подготовка участка для строительства | |||
| Устройство временного щита электроснабжения | |||
| Устройство въезда на участок | |||
| Дорога на участке до пятна застройки | |||
| Подъем пятна застройки | |||
| Подготовка пятна застройки для фундаментных работ | | | |
| Перемещение или вывоз грунта из котлована фундамента | | | |
| Обеспечение строительного процесса | |||
| Доставка стройматериалов | | | |
| Генератор для обеспечения электричеством | |||
| Уборка и вывоз строительного мусора | | ||
| Организация проживания рабочих (бытовка) | |||
| Биотуалет для рабочих | |||
| Гарантия на все выполненные работы | |||
| Гарантия | | | |
| Свернуть | |||
| Минимальная | 5 349 600 ₽ |
| Стандарт | 7 132 800 ₽ |
| Под чистовую отделку | 8 024 400 ₽ |
| Показать подробные комплектации | |
| Сравнить 0 комплектаций Свернуть все Развернуть все | Минимальная 5 349 600 ₽ | Стандарт 7 132 800 ₽ | Под чистовую отделку 8 024 400 ₽ |
| Кровля | |||
| Кровельное покрытие | Металлочерепица
| Фальцевая кровля
Мягкая черепица
Натуральная черепи | Фальцевая кровля
Мягкая черепица
Натуральная черепи |
| Обрешетка | Доска 20х95 мм, сухая, строганная | Доска 20х95 мм, сухая, строганная | Доска 20х95 мм, сухая, строганная |
| Контробрешетка | Брус 45х45 мм, сухой, строганный | Брус 45х45 мм, сухой, строганный | Брус 45х45 мм, сухой, строганный |
| Противоконденсатная (ветро-гидроизоляционная) пленка | Изоспан | Изоспан | Изоспан |
| Стропильная система | Доска 50х200 мм | Доска 50х200 мм | Доска 50х200 мм |
| Утепление чердачного перекрытия и стропильной системы | Базальтовый утеплитель 250 мм | ||
| Подшивка свесов кровли | | | |
| Подшивка потолков террас и лоджий | | | |
| Водосточная система | | | |
| Система снегозадержания | | | |
| Молниезащита | | ||
| Фундамент | |||
| Сваи ж/бетонные | | | |
| Сваи стальные винтовые | |||
| Лента ж/бетонная монолитная мелкозаглубленная | | | |
| Лента ж/бетонная монолитная на глубину промерзания | | | |
| Лента ж/бетонная сборная (из ФБС) на глубину промерзания | | | |
| Плита ж/бетонная монолитная мелкозаглубленная | | | |
| УШП (Утепленная Шведская Плита) | |||
| Бетоннная отмостка по периметру дома | | | |
| Дренажная система по периметру дома | | ||
| Ливневая система | | | |
| Облицовка цоколя фундамента | | | |
| Система контурного заземления | | ||
| Стены | |||
| Несущая часть стены | Газобетон
Теплая керамика | Газобетон
Теплая керамика | Газобетон
Теплая керамика |
| Фасадная отделка | Штукатурка
Облицовочный кирпич | Натуральный камень
Штукатурка
Облицовочный кирпич | |
| Утепление стены | | ||
| Внутренняя обшивка/штукатурка со стороны помещения | | ||
| Пол первого этажа | |||
| Несущая часть перекрытия | | | |
| Теплоизоляция цокольного перекрытия | | ||
| Стяжка/подготовка под чистый пол | | ||
| Перекрытия над первым и последующими этажами | |||
| Несущая часть перекрытия | Деревянные балки | Монолитные ж/б перекрытия 180-200 мм | Монолитные ж/б перекрытия 180-200 мм |
| Звукоизоляция/теплоизоляция в перекрытии | Базальтовый утеплитель 200 мм | Базальтовый утеплитель 200 мм | |
| Стяжка/подготовка под чистый пол | | ||
| Отделка потолка нижележащего этажа | | ||
| Окна и внешние двери | |||
| Окна | | ||
| Оконные наличники | | ||
| Откосы в помещении | | ||
| Отливы снаружи | | | |
| Подоконники | | ||
| Входные двери | | ||
| Внутренние конструкции | |||
| Внутренние несущие стены | Газобетон
Керамический блок | Газобетон
Керамический блок | Газобетон
Керамический блок |
| Внутренние ненесущие стены | Газобетон
Керамический блок
| Газобетон
Керамический блок | Газобетон
Керамический блок |
| Звукоизоляция внутренних стен/перегородок | |||
| Межэтажная строительная (черновая) лестница | Монолитная | Монолитная | Монолитная |
| Межэтажная постоянная (чистовая) лестница | | ||
| Межкомнатные двери | |||
| Высота потолков 1 этажа | 3 м | 3 м | 3 м |
| Высота потолков 2 этажа | 3 м | 3 м | 3 м |
| Настилы полов и ограждения крылец, террас, балконов | |||
| Гидроизоляция полов балконов | |||
| Инженерное оснащение | |||
| Жидкостной теплый пол | |||
| Электрический теплый пол | |||
| Система вентиляции | |||
| Только вводы воды, электричества, выводы канализации | | | |
| Электроразводка и электрощит | |||
| Разводка хол. и гор. водоснабжения (ХВС и ГВС) | |||
| Разводка батарей и/или системы теплого пола. Без оборудования котельной. | |||
| Иное инженерное оснащение | |||
| Подготовка участка для строительства | |||
| Устройство временного щита электроснабжения | | | |
| Устройство въезда на участок | | | |
| Дорога на участке до пятна застройки | |||
| Подъем пятна застройки | |||
| Подготовка пятна застройки для фундаментных работ | |||
| Перемещение или вывоз грунта из котлована фундамента | |||
| Обеспечение строительного процесса | |||
| Доставка стройматериалов | | | |
| Генератор для обеспечения электричеством | | | |
| Уборка и вывоз строительного мусора | | | |
| Организация проживания рабочих (бытовка) | | | |
| Биотуалет для рабочих | | | |
| Гарантия на все выполненные работы | |||
| Гарантия | 5 лет | 5 лет | 5 лет |
| Свернуть | |||
| Минимальная | 5 171 280 ₽ |
| Стандарт | 5 527 920 ₽ |
| Под чистовую отделку | 7 311 120 ₽ |
| Показать подробные комплектации | |
| Сравнить 0 комплектаций Свернуть все Развернуть все | Минимальная 5 171 280 ₽ | Стандарт 5 527 920 ₽ | Под чистовую отделку 7 311 120 ₽ |
| Кровля | |||
| Кровельное покрытие | | ||
| Обрешетка | | ||
| Контробрешетка | | ||
| Противоконденсатная (ветро-гидроизоляционная) пленка | | ||
| Стропильная система | | ||
| Утепление чердачного перекрытия и стропильной системы | |||
| Подшивка свесов кровли | |||
| Подшивка потолков террас и лоджий | |||
| Водосточная система | |||
| Система снегозадержания | |||
| Молниезащита | |||
| Фундамент | |||
| Сваи ж/бетонные | |||
| Сваи стальные винтовые | |||
| Лента ж/бетонная монолитная мелкозаглубленная | |||
| Лента ж/бетонная монолитная на глубину промерзания | |||
| Лента ж/бетонная сборная (из ФБС) на глубину промерзания | |||
| Плита ж/бетонная монолитная мелкозаглубленная | | ||
| УШП (Утепленная Шведская Плита) | |||
| Бетоннная отмостка по периметру дома | |||
| Дренажная система по периметру дома | |||
| Ливневая система | |||
| Облицовка цоколя фундамента | |||
| Система контурного заземления | |||
| Стены | |||
| Несущая часть стены | | ||
| Фасадная отделка | |||
| Утепление стены | |||
| Внутренняя обшивка/штукатурка со стороны помещения | |||
| Пол первого этажа | |||
| Несущая часть перекрытия | | ||
| Теплоизоляция цокольного перекрытия | |||
| Стяжка/подготовка под чистый пол | |||
| Перекрытия над первым и последующими этажами | |||
| Несущая часть перекрытия | | ||
| Звукоизоляция/теплоизоляция в перекрытии | |||
| Стяжка/подготовка под чистый пол | |||
| Отделка потолка нижележащего этажа | |||
| Окна и внешние двери | |||
| Окна | |||
| Оконные наличники | |||
| Откосы в помещении | |||
| Отливы снаружи | |||
| Подоконники | |||
| Входные двери | |||
| Внутренние конструкции | |||
| Внутренние несущие стены | | ||
| Внутренние ненесущие стены | |||
| Звукоизоляция внутренних стен/перегородок | |||
| Межэтажная строительная (черновая) лестница | | ||
| Межэтажная постоянная (чистовая) лестница | |||
| Межкомнатные двери | |||
| Высота потолков 1 этажа | 2,7 | ||
| Высота потолков 2 этажа | 2,7 | ||
| Настилы полов и ограждения крылец, террас, балконов | |||
| Гидроизоляция полов балконов | |||
| Инженерное оснащение | |||
| Жидкостной теплый пол | |||
| Электрический теплый пол | |||
| Система вентиляции | |||
| Только вводы воды, электричества, выводы канализации | | ||
| Электроразводка и электрощит | |||
| Разводка хол. и гор. водоснабжения (ХВС и ГВС) | |||
| Разводка батарей и/или системы теплого пола. Без оборудования котельной. | |||
| Иное инженерное оснащение | |||
| Подготовка участка для строительства | |||
| Устройство временного щита электроснабжения | |||
| Устройство въезда на участок | |||
| Дорога на участке до пятна застройки | |||
| Подъем пятна застройки | |||
| Подготовка пятна застройки для фундаментных работ | | ||
| Перемещение или вывоз грунта из котлована фундамента | |||
| Обеспечение строительного процесса | |||
| Доставка стройматериалов | |||
| Генератор для обеспечения электричеством | |||
| Уборка и вывоз строительного мусора | |||
| Организация проживания рабочих (бытовка) | |||
| Биотуалет для рабочих | |||
| Гарантия на все выполненные работы | |||
| Гарантия | | ||
| Свернуть | |||
| Минимальная | 5 492 256 ₽ |
| Стандарт | 7 289 721 ₽ |
| Под чистовую отделку | 9 886 060 ₽ |
| Показать подробные комплектации | |
| Сравнить 0 комплектаций Свернуть все Развернуть все | Минимальная 5 492 256 ₽ | Стандарт 7 289 721 ₽ | Под чистовую отделку 9 886 060 ₽ |
| Кровля | |||
| Кровельное покрытие | Мягкая черепица Shinglas (или на выбор металлочерепица Garda | Мягкая черепица Shinglas (или на выбор металлочерепица Garda | Мягкая черепица Shinglas (или на выбор металлочерепица Garda |
| Обрешетка | |||
| Контробрешетка | |||
| Противоконденсатная (ветро-гидроизоляционная) пленка | |||
| Стропильная система | |||
| Утепление чердачного перекрытия и стропильной системы | |||
| Подшивка свесов кровли | Софит металлический или планкен деревянный на выбор | Софит металлический или планкен деревянный на выбор | |
| Подшивка потолков террас и лоджий | |||
| Водосточная система | Docke Standart | Docke Standart | |
| Система снегозадержания | |||
| Молниезащита | |||
| Фундамент | |||
| Сваи ж/бетонные | Сваи 200х200х3000 | Сваи 200х200х3000 | Сваи 200х200х3000 |
| Сваи стальные винтовые | |||
| Лента ж/бетонная монолитная мелкозаглубленная | |||
| Лента ж/бетонная монолитная на глубину промерзания | | | |
| Лента ж/бетонная сборная (из ФБС) на глубину промерзания | | ||
| Плита ж/бетонная монолитная мелкозаглубленная | Плита 300 мм, бетон B25 (М350) | Плита 300 мм, бетон B25 (М350) | Плита 300 мм, бетон B25 (М350) 300 мм |
| УШП (Утепленная Шведская Плита) | | ||
| Бетоннная отмостка по периметру дома | |||
| Дренажная система по периметру дома | |||
| Ливневая система | |||
| Облицовка цоколя фундамента | Камень Whitehills | Камень Whitehills | |
| Система контурного заземления | |||
| Стены | |||
| Несущая часть стены | Газобетонные блоки Bonolit 400 мм | Газобетонные блоки Bonolit 400 мм | Газобетонные блоки Bonolit 400 мм |
| Фасадная отделка | Декоративная штукатурка Ceresit (силикатно-силиконовая) | Облицовочный кирпич | |
| Утепление стены | |||
| Внутренняя обшивка/штукатурка со стороны помещения | |||
| Пол первого этажа | |||
| Несущая часть перекрытия | Пол первого этажа - фундаментная плита | Пол первого этажа - фундаментная плита | Пол первого этажа - фундаментная плита |
| Теплоизоляция цокольного перекрытия | |||
| Стяжка/подготовка под чистый пол | |||
| Перекрытия над первым и последующими этажами | |||
| Несущая часть перекрытия | Железобетонные перекрытия 180-230 мм (проектные решения) | Железобетонные перекрытия 180-230 мм (проектные решения) | Железобетонные перекрытия 180-230 мм (проектные решения) |
| Звукоизоляция/теплоизоляция в перекрытии | |||
| Стяжка/подготовка под чистый пол | |||
| Отделка потолка нижележащего этажа | |||
| Окна и внешние двери | |||
| Окна | Окна Rehau Delight 70 | Окна Rehau Delight 70 | |
| Оконные наличники | |||
| Откосы в помещении | |||
| Отливы снаружи | Металлические | Металлические | |
| Подоконники | |||
| Входные двери | |||
| Внутренние конструкции | |||
| Внутренние несущие стены | Газобетонные блоки Bonolit 400 мм | Газобетонные блоки Bonolit 400 мм | Газобетонные блоки Bonolit 400 мм |
| Внутренние ненесущие стены | Перегородки - газобетонные блоки Bonolit 100 мм | Перегородки - газобетонные блоки Bonolit 100 мм | Перегородки - газобетонные блоки Bonolit 100 мм |
| Звукоизоляция внутренних стен/перегородок | |||
| Межэтажная строительная (черновая) лестница | |||
| Межэтажная постоянная (чистовая) лестница | |||
| Межкомнатные двери | |||
| Высота потолков 1 этажа | 3 м | 3 м | 3 м |
| Высота потолков 2 этажа | 3 м | 3 м | 3 м |
| Настилы полов и ограждения крылец, террас, балконов | |||
| Гидроизоляция полов балконов | |||
| Инженерное оснащение | |||
| Жидкостной теплый пол | |||
| Электрический теплый пол | |||
| Система вентиляции | |||
| Только вводы воды, электричества, выводы канализации | Закладные детали для вводов воды, электричества, вывод | Закладные детали для вводов воды, электричества, вывод | Закладные детали для вводов воды, электричества, вывод |
| Электроразводка и электрощит | |||
| Разводка хол. и гор. водоснабжения (ХВС и ГВС) | |||
| Разводка батарей и/или системы теплого пола. Без оборудования котельной. | |||
| Иное инженерное оснащение | |||
| Подготовка участка для строительства | |||
| Устройство временного щита электроснабжения | | | |
| Устройство въезда на участок | |||
| Дорога на участке до пятна застройки | |||
| Подъем пятна застройки | |||
| Подготовка пятна застройки для фундаментных работ | |||
| Перемещение или вывоз грунта из котлована фундамента | |||
| Обеспечение строительного процесса | |||
| Доставка стройматериалов | | | |
| Генератор для обеспечения электричеством | |||
| Уборка и вывоз строительного мусора | |||
| Организация проживания рабочих (бытовка) | | | |
| Биотуалет для рабочих | Биотуалет для рабочих с еженедельным обслуживанием | Биотуалет для рабочих с еженедельным обслуживанием | Биотуалет для рабочих с еженедельным обслуживанием |
| Гарантия на все выполненные работы | |||
| Гарантия | |||
| Свернуть | |||
| Минимальная | 4 101 360 ₽ |
| Стандарт | 4 992 960 ₽ |
| Показать подробные комплектации | |
| Сравнить 0 комплектаций Свернуть все Развернуть все | Минимальная 4 101 360 ₽ | Стандарт 4 992 960 ₽ | |
| Кровля | |||
| Кровельное покрытие | Металлочерепица «GRAND LINE» | Металлочерепица «GRAND LINE» | |
| Обрешетка | Доска 100х25, сухая, строганная, с обработкой огнебиозащитой | Доска 100х25, сухая, строганная, с обработкой огнебиозащитой | |
| Контробрешетка | Брус 50х50 мм, сухой, строганный, с обработкой огнебиозащитой | Брус 50х50 мм, сухой, строганный, с обработкой огнебиозащитой | |
| Противоконденсатная (ветро-гидроизоляционная) пленка | Гидро-ветроизоляционная мембрана | Гидро-ветроизоляционная мембрана | |
| Стропильная система | Доска 200х50, сухая, строганная, с обработкой огнебиозащитой | Доска 200х50, сухая, строганная, с обработкой огнебиозащитой | |
| Утепление чердачного перекрытия и стропильной системы | Утеплитель Rockwool | ||
| Подшивка свесов кровли | Софит пластиковый «GRAND LINE» | ||
| Подшивка потолков террас и лоджий | |||
| Водосточная система | |||
| Система снегозадержания | |||
| Молниезащита | |||
| Фундамент | |||
| Сваи ж/бетонные | |||
| Сваи стальные винтовые | |||
| Лента ж/бетонная монолитная мелкозаглубленная | |||
| Лента ж/бетонная монолитная на глубину промерзания | |||
| Лента ж/бетонная сборная (из ФБС) на глубину промерзания | |||
| Плита ж/бетонная монолитная мелкозаглубленная | Монолитная железобетонная плита с утеплением и гидроизоляцией | Монолитная железобетонная плита с утеплением и гидроизоляцией | |
| УШП (Утепленная Шведская Плита) | |||
| Бетоннная отмостка по периметру дома | |||
| Дренажная система по периметру дома | |||
| Ливневая система | |||
| Облицовка цоколя фундамента | |||
| Система контурного заземления | |||
| Стены | |||
| Несущая часть стены | Газобетонные блоки D500 "YTONG" 600х375х250мм | Газобетонные блоки D500 "YTONG" 600х375х250мм | |
| Фасадная отделка | Мокрый фасад, декоративная штукатурка | ||
| Утепление стены | Утеплитель Rockwool | ||
| Внутренняя обшивка/штукатурка со стороны помещения | |||
| Пол первого этажа | |||
| Несущая часть перекрытия | Пол первого этажа - фундаментная плита | Пол первого этажа - фундаментная плита | |
| Теплоизоляция цокольного перекрытия | |||
| Стяжка/подготовка под чистый пол | |||
| Перекрытия над первым и последующими этажами | |||
| Несущая часть перекрытия | Монолитные ж/б перекрытия 200 мм | Монолитные ж/б перекрытия 200 мм | |
| Звукоизоляция/теплоизоляция в перекрытии | |||
| Стяжка/подготовка под чистый пол | |||
| Отделка потолка нижележащего этажа | |||
| Окна и внешние двери | |||
| Окна | Профиль Rehau, стеклопакет с энергосберегающим стеклопакетом | ||
| Оконные наличники | |||
| Откосы в помещении | |||
| Отливы снаружи | | ||
| Подоконники | |||
| Входные двери | | ||
| Внутренние конструкции | |||
| Внутренние несущие стены | Газобетонные блоки D500 "YTONG" 600х250х300мм | Газобетонные блоки D500 "YTONG" 600х250х300мм | |
| Внутренние ненесущие стены | Газобетонные блоки D500 "YTONG" 600х100х300мм | ||
| Звукоизоляция внутренних стен/перегородок | |||
| Межэтажная строительная (черновая) лестница | | | |
| Межэтажная постоянная (чистовая) лестница | |||
| Межкомнатные двери | |||
| Высота потолков 1 этажа | 3000мм | 3000мм | |
| Высота потолков 2 этажа | 3000мм | 3000мм | |
| Настилы полов и ограждения крылец, террас, балконов | |||
| Гидроизоляция полов балконов | | ||
| Инженерное оснащение | |||
| Жидкостной теплый пол | |||
| Электрический теплый пол | |||
| Система вентиляции | |||
| Только вводы воды, электричества, выводы канализации | | | |
| Электроразводка и электрощит | |||
| Разводка хол. и гор. водоснабжения (ХВС и ГВС) | |||
| Разводка батарей и/или системы теплого пола. Без оборудования котельной. | |||
| Иное инженерное оснащение | |||
| Подготовка участка для строительства | |||
| Устройство временного щита электроснабжения | | | |
| Устройство въезда на участок | | ||
| Дорога на участке до пятна застройки | |||
| Подъем пятна застройки | |||
| Подготовка пятна застройки для фундаментных работ | | | |
| Перемещение или вывоз грунта из котлована фундамента | | ||
| Обеспечение строительного процесса | |||
| Доставка стройматериалов | | | |
| Генератор для обеспечения электричеством | | ||
| Уборка и вывоз строительного мусора | | | |
| Организация проживания рабочих (бытовка) | | | |
| Биотуалет для рабочих | | | |
| Гарантия на все выполненные работы | |||
| Гарантия | 2 года | 2 года | |
| Свернуть | |||
| Минимальная | 5 708 023 ₽ |
| Под чистовую отделку | 8 129 608 ₽ |
| Показать подробные комплектации | |
| Сравнить 0 комплектаций Свернуть все Развернуть все | Минимальная 5 708 023 ₽ | Под чистовую отделку 8 129 608 ₽ | |
| Кровля | |||
| Кровельное покрытие | Металлочерепица | | |
| Обрешетка | 25х150 мм | 25х150 мм | |
| Контробрешетка | 25х50 мм | 25х50 мм | |
| Противоконденсатная (ветро-гидроизоляционная) пленка | | | |
| Стропильная система | | | |
| Утепление чердачного перекрытия и стропильной системы | 200 мм | 200 мм | |
| Подшивка свесов кровли | | | |
| Подшивка потолков террас и лоджий | | | |
| Водосточная система | | | |
| Система снегозадержания | |||
| Молниезащита | |||
| Фундамент | |||
| Сваи ж/бетонные | Диаметром 300 мм,
Уширение 600 мм в сонов | Диаметром 300 мм,
Уширение 600 мм в сонов | |
| Сваи стальные винтовые | |||
| Лента ж/бетонная монолитная мелкозаглубленная | | | |
| Лента ж/бетонная монолитная на глубину промерзания | |||
| Лента ж/бетонная сборная (из ФБС) на глубину промерзания | |||
| Плита ж/бетонная монолитная мелкозаглубленная | |||
| УШП (Утепленная Шведская Плита) | |||
| Бетоннная отмостка по периметру дома | |||
| Дренажная система по периметру дома | |||
| Ливневая система | |||
| Облицовка цоколя фундамента | |||
| Система контурного заземления | |||
| Стены | |||
| Несущая часть стены | |||
| Фасадная отделка | |||
| Утепление стены | |||
| Внутренняя обшивка/штукатурка со стороны помещения | |||
| Пол первого этажа | |||
| Несущая часть перекрытия | |||
| Теплоизоляция цокольного перекрытия | |||
| Стяжка/подготовка под чистый пол | |||
| Перекрытия над первым и последующими этажами | |||
| Несущая часть перекрытия | |||
| Звукоизоляция/теплоизоляция в перекрытии | |||
| Стяжка/подготовка под чистый пол | |||
| Отделка потолка нижележащего этажа | |||
| Окна и внешние двери | |||
| Окна | | ||
| Оконные наличники | |||
| Откосы в помещении | |||
| Отливы снаружи | | ||
| Подоконники | |||
| Входные двери | |||
| Внутренние конструкции | |||
| Внутренние несущие стены | |||
| Внутренние ненесущие стены | |||
| Звукоизоляция внутренних стен/перегородок | |||
| Межэтажная строительная (черновая) лестница | |||
| Межэтажная постоянная (чистовая) лестница | |||
| Межкомнатные двери | |||
| Высота потолков 1 этажа | |||
| Высота потолков 2 этажа | |||
| Настилы полов и ограждения крылец, террас, балконов | |||
| Гидроизоляция полов балконов | |||
| Инженерное оснащение | |||
| Жидкостной теплый пол | |||
| Электрический теплый пол | |||
| Система вентиляции | |||
| Только вводы воды, электричества, выводы канализации | |||
| Электроразводка и электрощит | |||
| Разводка хол. и гор. водоснабжения (ХВС и ГВС) | |||
| Разводка батарей и/или системы теплого пола. Без оборудования котельной. | |||
| Иное инженерное оснащение | |||
| Подготовка участка для строительства | |||
| Устройство временного щита электроснабжения | |||
| Устройство въезда на участок | |||
| Дорога на участке до пятна застройки | |||
| Подъем пятна застройки | |||
| Подготовка пятна застройки для фундаментных работ | |||
| Перемещение или вывоз грунта из котлована фундамента | |||
| Обеспечение строительного процесса | |||
| Доставка стройматериалов | |||
| Генератор для обеспечения электричеством | |||
| Уборка и вывоз строительного мусора | |||
| Организация проживания рабочих (бытовка) | |||
| Биотуалет для рабочих | |||
| Гарантия на все выполненные работы | |||
| Гарантия | |||
| Свернуть | |||
| Под чистовую отделку | 7 132 800 ₽ |
| Показать подробные комплектации | |
| Сравнить 0 комплектаций Свернуть все Развернуть все | Под чистовую отделку 7 132 800 ₽ | ||
| Кровля | |||
| Кровельное покрытие | Металлочерепица Grand Line толщиной 0,5 мм | ||
| Обрешетка | 25*100 мм камерной сушки | ||
| Контробрешетка | 40*40 мм камерной сушки | ||
| Противоконденсатная (ветро-гидроизоляционная) пленка | ветро-гидроизоляционная мембрана | ||
| Стропильная система | Доска 40*200 мм камерной сушки | ||
| Утепление чердачного перекрытия и стропильной системы | 200 мм в 4 слоя перекрестным способом | ||
| Подшивка свесов кровли | | ||
| Подшивка потолков террас и лоджий | | ||
| Водосточная система | |||
| Система снегозадержания | |||
| Молниезащита | |||
| Фундамент | |||
| Сваи ж/бетонные | |||
| Сваи стальные винтовые | |||
| Лента ж/бетонная монолитная мелкозаглубленная | |||
| Лента ж/бетонная монолитная на глубину промерзания | |||
| Лента ж/бетонная сборная (из ФБС) на глубину промерзания | |||
| Плита ж/бетонная монолитная мелкозаглубленная | | ||
| УШП (Утепленная Шведская Плита) | |||
| Бетоннная отмостка по периметру дома | |||
| Дренажная система по периметру дома | |||
| Ливневая система | |||
| Облицовка цоколя фундамента | |||
| Система контурного заземления | |||
| Стены | |||
| Несущая часть стены | Кирпич | ||
| Фасадная отделка | |||
| Утепление стены | |||
| Внутренняя обшивка/штукатурка со стороны помещения | |||
| Пол первого этажа | |||
| Несущая часть перекрытия | Сборное перекрытие из жб плит 220 мм | ||
| Теплоизоляция цокольного перекрытия | |||
| Стяжка/подготовка под чистый пол | |||
| Перекрытия над первым и последующими этажами | |||
| Несущая часть перекрытия | Сборное перекрытие из жб плит 220 мм | ||
| Звукоизоляция/теплоизоляция в перекрытии | | ||
| Стяжка/подготовка под чистый пол | | ||
| Отделка потолка нижележащего этажа | |||
| Окна и внешние двери | |||
| Окна | Пластиковые окна Rehau GRAZIO 70 мм | ||
| Оконные наличники | |||
| Откосы в помещении | |||
| Отливы снаружи | |||
| Подоконники | |||
| Входные двери | Металлическая дверь 2060х960 мм с фурнитурой | ||
| Внутренние конструкции | |||
| Внутренние несущие стены | |||
| Внутренние ненесущие стены | |||
| Звукоизоляция внутренних стен/перегородок | |||
| Межэтажная строительная (черновая) лестница | Техническая (один марш) | ||
| Межэтажная постоянная (чистовая) лестница | |||
| Межкомнатные двери | |||
| Высота потолков 1 этажа | 3000 мм | ||
| Высота потолков 2 этажа | 3000 мм | ||
| Настилы полов и ограждения крылец, террас, балконов | |||
| Гидроизоляция полов балконов | |||
| Инженерное оснащение | |||
| Жидкостной теплый пол | |||
| Электрический теплый пол | |||
| Система вентиляции | |||
| Только вводы воды, электричества, выводы канализации | |||
| Электроразводка и электрощит | |||
| Разводка хол. и гор. водоснабжения (ХВС и ГВС) | |||
| Разводка батарей и/или системы теплого пола. Без оборудования котельной. | |||
| Иное инженерное оснащение | |||
| Подготовка участка для строительства | |||
| Устройство временного щита электроснабжения | |||
| Устройство въезда на участок | |||
| Дорога на участке до пятна застройки | |||
| Подъем пятна застройки | |||
| Подготовка пятна застройки для фундаментных работ | Включено в стоимость | ||
| Перемещение или вывоз грунта из котлована фундамента | |||
| Обеспечение строительного процесса | |||
| Доставка стройматериалов | Включено в стоимость | ||
| Генератор для обеспечения электричеством | |||
| Уборка и вывоз строительного мусора | |||
| Организация проживания рабочих (бытовка) | Включено в стоимость | ||
| Биотуалет для рабочих | Включено в стоимость | ||
| Гарантия на все выполненные работы | |||
| Гарантия | 5 лет + ТО дома в течение года БЕСПЛАТНО | ||
| Свернуть | |||
| Стандарт | 3 923 040 ₽ |
| Показать подробные комплектации | |
| Сравнить 0 комплектаций Свернуть все Развернуть все | Стандарт 3 923 040 ₽ | ||
| Кровля | |||
| Кровельное покрытие | Укладка готового кровельного покрытия Заказчика | ||
| Обрешетка | | ||
| Контробрешетка | | ||
| Противоконденсатная (ветро-гидроизоляционная) пленка | | ||
| Стропильная система | | ||
| Утепление чердачного перекрытия и стропильной системы | | ||
| Подшивка свесов кровли | | ||
| Подшивка потолков террас и лоджий | |||
| Водосточная система | | ||
| Система снегозадержания | | ||
| Молниезащита | | ||
| Фундамент | |||
| Сваи ж/бетонные | |||
| Сваи стальные винтовые | |||
| Лента ж/бетонная монолитная мелкозаглубленная | |||
| Лента ж/бетонная монолитная на глубину промерзания | Земляные работы
Закладные под коммуникации
Ленточный фундамент с гид | ||
| Лента ж/бетонная сборная (из ФБС) на глубину промерзания | |||
| Плита ж/бетонная монолитная мелкозаглубленная | |||
| УШП (Утепленная Шведская Плита) | |||
| Бетоннная отмостка по периметру дома | |||
| Дренажная система по периметру дома | |||
| Ливневая система | |||
| Облицовка цоколя фундамента | |||
| Система контурного заземления | |||
| Стены | |||
| Несущая часть стены | Двойной щелевой кирпич, М-150, ГОСТ | ||
| Фасадная отделка | |||
| Утепление стены | |||
| Внутренняя обшивка/штукатурка со стороны помещения | |||
| Пол первого этажа | |||
| Несущая часть перекрытия | | ||
| Теплоизоляция цокольного перекрытия | | ||
| Стяжка/подготовка под чистый пол | |||
| Перекрытия над первым и последующими этажами | |||
| Несущая часть перекрытия | | ||
| Звукоизоляция/теплоизоляция в перекрытии | |||
| Стяжка/подготовка под чистый пол | |||
| Отделка потолка нижележащего этажа | |||
| Окна и внешние двери | |||
| Окна | |||
| Оконные наличники | |||
| Откосы в помещении | |||
| Отливы снаружи | |||
| Подоконники | |||
| Входные двери | |||
| Внутренние конструкции | |||
| Внутренние несущие стены | | ||
| Внутренние ненесущие стены | | ||
| Звукоизоляция внутренних стен/перегородок | |||
| Межэтажная строительная (черновая) лестница | | ||
| Межэтажная постоянная (чистовая) лестница | |||
| Межкомнатные двери | |||
| Высота потолков 1 этажа | |||
| Высота потолков 2 этажа | |||
| Настилы полов и ограждения крылец, террас, балконов | |||
| Гидроизоляция полов балконов | |||
| Инженерное оснащение | |||
| Жидкостной теплый пол | |||
| Электрический теплый пол | |||
| Система вентиляции | |||
| Только вводы воды, электричества, выводы канализации | | ||
| Электроразводка и электрощит | |||
| Разводка хол. и гор. водоснабжения (ХВС и ГВС) | |||
| Разводка батарей и/или системы теплого пола. Без оборудования котельной. | |||
| Иное инженерное оснащение | |||
| Подготовка участка для строительства | |||
| Устройство временного щита электроснабжения | |||
| Устройство въезда на участок | |||
| Дорога на участке до пятна застройки | |||
| Подъем пятна застройки | |||
| Подготовка пятна застройки для фундаментных работ | |||
| Перемещение или вывоз грунта из котлована фундамента | |||
| Обеспечение строительного процесса | |||
| Доставка стройматериалов | | ||
| Генератор для обеспечения электричеством | |||
| Уборка и вывоз строительного мусора | |||
| Организация проживания рабочих (бытовка) | |||
| Биотуалет для рабочих | |||
| Гарантия на все выполненные работы | |||
| Гарантия | |||
| Свернуть | |||
| Стандарт | 4 101 360 ₽ |
| Показать подробные комплектации | |
| Сравнить 0 комплектаций Свернуть все Развернуть все | Стандарт 4 101 360 ₽ | ||
| Кровля | |||
| Кровельное покрытие | Металлочерепица М35 Супермонтеррей
0,5 мм | ||
| Обрешетка | Доска естественной влажности, хвойных пород, 25*100 мм | ||
| Контробрешетка | Рейка естественной влажности, хвойных пород, 25*25 мм | ||
| Противоконденсатная (ветро-гидроизоляционная) пленка | Противоконденсатная пленка Tyvek Soft | ||
| Стропильная система | Доска естественной влажности, хвойных пород, 50*200 мм | ||
| Утепление чердачного перекрытия и стропильной системы | Базальтовый утеплитель Роквулл Лайт Баттс, 200 мм | ||
| Подшивка свесов кровли | |||
| Подшивка потолков террас и лоджий | |||
| Водосточная система | |||
| Система снегозадержания | |||
| Молниезащита | |||
| Фундамент | |||
| Сваи ж/бетонные | |||
| Сваи стальные винтовые | |||
| Лента ж/бетонная монолитная мелкозаглубленная | |||
| Лента ж/бетонная монолитная на глубину промерзания | |||
| Лента ж/бетонная сборная (из ФБС) на глубину промерзания | |||
| Плита ж/бетонная монолитная мелкозаглубленная | Железобетонная монолитная плита
300 мм, марка бетона М350, В25 | ||
| УШП (Утепленная Шведская Плита) | |||
| Бетоннная отмостка по периметру дома | |||
| Дренажная система по периметру дома | |||
| Ливневая система | |||
| Облицовка цоколя фундамента | |||
| Система контурного заземления | |||
| Стены | |||
| Несущая часть стены | ЛСР Камень 10,7 NF рядовой поризованный, крупноформатный блок, 380 мм | ||
| Фасадная отделка | |||
| Утепление стены | |||
| Внутренняя обшивка/штукатурка со стороны помещения | |||
| Пол первого этажа | |||
| Несущая часть перекрытия | |||
| Теплоизоляция цокольного перекрытия | |||
| Стяжка/подготовка под чистый пол | |||
| Перекрытия над первым и последующими этажами | |||
| Несущая часть перекрытия | Железобетонное монолитное перекрытие,
толщина 200 мм, бетон В25 | ||
| Звукоизоляция/теплоизоляция в перекрытии | |||
| Стяжка/подготовка под чистый пол | |||
| Отделка потолка нижележащего этажа | |||
| Окна и внешние двери | |||
| Окна | |||
| Оконные наличники | |||
| Откосы в помещении | |||
| Отливы снаружи | |||
| Подоконники | |||
| Входные двери | |||
| Внутренние конструкции | |||
| Внутренние несущие стены | ЛСР Камень 10,7 NF рядовой поризованный, крупноформатный блок, 380 мм | ||
| Внутренние ненесущие стены | Газобетон "АЭРОК", D500, ширина 250/200/100 мм | ||
| Звукоизоляция внутренних стен/перегородок | |||
| Межэтажная строительная (черновая) лестница | Доска естественной влажности, хвоя, 50*200 | ||
| Межэтажная постоянная (чистовая) лестница | |||
| Межкомнатные двери | |||
| Высота потолков 1 этажа | В соответствии с проектом 3,0 м | ||
| Высота потолков 2 этажа | В соответствии с проектом | ||
| Настилы полов и ограждения крылец, террас, балконов | |||
| Гидроизоляция полов балконов | |||
| Инженерное оснащение | |||
| Жидкостной теплый пол | |||
| Электрический теплый пол | |||
| Система вентиляции | |||
| Только вводы воды, электричества, выводы канализации | |||
| Электроразводка и электрощит | |||
| Разводка хол. и гор. водоснабжения (ХВС и ГВС) | |||
| Разводка батарей и/или системы теплого пола. Без оборудования котельной. | |||
| Иное инженерное оснащение | |||
| Подготовка участка для строительства | |||
| Устройство временного щита электроснабжения | Да | ||
| Устройство въезда на участок | При необходимости | ||
| Дорога на участке до пятна застройки | |||
| Подъем пятна застройки | |||
| Подготовка пятна застройки для фундаментных работ | |||
| Перемещение или вывоз грунта из котлована фундамента | Перемещение грунта из котлована в место согласованное на участке | ||
| Обеспечение строительного процесса | |||
| Доставка стройматериалов | Доставка всех материалов по данному этапу | ||
| Генератор для обеспечения электричеством | Да | ||
| Уборка и вывоз строительного мусора | Да | ||
| Организация проживания рабочих (бытовка) | Бытовка | ||
| Биотуалет для рабочих | При необходимости | ||
| Гарантия на все выполненные работы | |||
| Гарантия | Гарантия на все выполненные работы 5 лет | ||
| Свернуть | |||