Главная Проекты домов Проект дома с большой и вместительной гостиной

D2264 Проект дома с большой и вместительной гостиной

Сравнить проект В избранное
Проект дома с большой и вместительной гостиной / 1
Проект дома с большой и вместительной гостиной / 1
D2264
99 м²
Домокомплект
Артикул проекта: ПД-18
Компания: Element-House
Стоимость домокомплекта
622 000 ₽
Заказать подробную смету
+7 (909) XXX-XX-XX Показать телефон
Задать вопрос по проекту
Технические характеристики
Общие
Материал стен
Бревно
Общая площадь
99 м²
Приведенная площадь
78.29 м²
Количество жилых комнат/спален
3
Этажи
1 этаж + мансарда
Гараж
Нет гаража
Подвал / цокольный этаж
Без подвала
Длина дома
9.8 м
Ширина дома
7.8 м
Облицовка внешних стен
Без облицовки
Межэтажные перекрытия
По деревянным балкам
Внутренние не несущие перегородки
Каркасно-обшивные
Терраса
Терраса крытая
Дополнительные
Второй свет
Есть
Камин
Есть
Сауна/баня внутри
Нет
Площадь кухни
7 м²
Количество санузлов
1
Окно в ванной комнате
Есть
Котельная
Есть
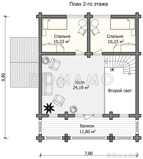
Планы помещений
Описание проекта
Компания Domamo предлагает проект дома с большой и вместительной гостиной D2264. Общая площадь - 99 м2, размер - 9.8х7.8 м. Фундамент - , кровля - , внешняя отделка - без облицовки. Для заказа проекта или внесения изменений свяжитесь с нами с помощью форм обратной связи на сайте или по телефону +7 (800) 200-28-83.
Категории проекта: с мансардой деревянные из бревна для узких участков дачные дома гостевые до 100 кв.м 8х10 с террасой одноэтажные с мансардой одноэтажные до 150 кв. м. одноэтажные с котельной с котельной со вторым светом одноэтажные деревянные оцилиндрованное бревно дачные с мансардой дачные с верандой одноэтажные до 100 кв.м до 120 кв.м до 150 кв.м до 200 кв.м с двухскатной крышей 6х10 загородные с камином узкие прямоугольные в русском стиле до 100 кв.м с мансардой одноэтажные из бревна из бревна с мансардой дачных домов из бревна гостевых домов из бревна Проекты деревянных домов с мансардой Проекты деревянных домов с террасой дачные деревянные Проекты гостевых домов из дерева Проекты одноэтажных домов с террасой дачные одноэтажные Типовые проекты загородных одноэтажных домов без гаража одноэтажные без гаража дачные с террасой с террасой и камином дачные с камином одноэтажные с тремя спальнями Проекты домов с тремя спальнями маленькие с мансардой до 150 кв м с мансардой и террасой полутораэтажные дачные с мансардой и верандой маленькие одноэтажные с мансардой до 120 кв.м одноэтажные до 120 кв.м маленькие с мансардой рубленные одноэтажные до 200 кв м до 140 кв м одноэтажные 8х10 до 130 кв м с мансардой с котельной с мансардой с камином с мансардой с двухскатной крышей с мансардой со вторым светом с мансардой прямоугольные с мансардой гостевые с мансардой до 200 кв.м со вторым светом с террасой с камином со вторым светом прямоугольные с котельной 8х9 до 100 кв.м до 120 кв.м до 150 кв.м. без гаража одноэтажные с мансардой из бревна одноэтажные с мансардой гостевые одноэтажные с мансардой дачные одноэтажные с мансардой со вторым светом одноэтажные с мансардой в русском стиле до 100 кв.м гостевые до 100 кв.м дачные до 100 кв.м с террасой до 100 кв.м с котельной до 100 кв.м прямоугольные до 100 кв.м с камином до 100 кв.м в русском стиле до 100 кв.м с двухскатной крышей до 100 кв.м с тремя спальнями до 120 кв.м домокомплекты до 120 кв.м гостевые до 120 кв.м дачные до 120 кв.м без гаража до 120 кв.м с двухскатной крышей до 120 кв.м с террасой до 120 кв.м в русском стиле до 120 кв.м с котельной до 120 кв.м с тремя спальнями до 120 кв.м прямоугольные до 120 кв.м 8х10 до 150 кв.м гостевые до 150 кв.м дачные до 150 кв.м без гаража до 150 кв.м с двухскатной крышей до 150 кв.м русские до 150 кв.м домокомплекты до 150 кв.м с вторым светом до 150 кв.м прямоугольные до 150 кв.м с котельной до 150 кв.м без бани до 150 кв.м с террасой до 150 кв.м без подвала до 150 кв.м с 3 спальнями до 150 кв.м с камином маленькие в русском стиле маленькие с террасой маленькие гостевые маленькие дачные маленькие прямоугольные маленькие с двухскатной крышей маленькие с камином маленькие без бани маленькие с 3 спальнями маленькие 8х10 деревянные в русском стиле деревянные с вторым светом деревянные прямоугольные деревянные с камином деревянные без гаража деревянные домокомплекты деревянные без подвала деревянные с 3 спальнями деревянные 8х10 деревянные до 100 кв.м деревянные до 120 кв.м деревянные до 150 кв.м деревянные маленькие недорогие гостевые в русском стиле без гаража в русском стиле с террасой в русском стиле прямоугольные в русском стиле гостевые в русском стиле дачные в русском стиле для с камином в русском стиле без бани в русском стиле с котельной в русском стиле с двускатной крышей из клееного бруса без гаража Показать все категории Скрыть категории

Похожие проекты
Состав проекта
Входит в стоимость
Цена, руб. Сроки, дней
Комплект архитектурно-строительных чертежей (АС) Входит в стоимость Готов к отправке
Разрабатывается отдельно
Цена, руб. Сроки, дней
Адаптация фундамента (изменение типа фундамента) по запросу 14 рабочих дней
Дизайн интерьера (стоимость от 2200руб. за квад.метр площади) по запросу 30 рабочих дней
Внесение изменений в проект по запросу 20 рабочих дней
Фэншуй дома 20 000 ₽ 14 рабочих дней в корзину
Фэншуй участка 15 000 ₽ 14 рабочих дней в корзину
Фэншуй полная консультация дом+участок с выездом на объект 100 000 ₽ 30 рабочих дней в корзину
Опции проекта вы можете заказать в корзине при оформлении заказа
Отзывы покупателей
Рейтинг покупателей
0 / 5 5 5 1
На основе 1 оценок покупателей
0%
0%
0%
0%
0%
Отзывы о проекте D2264
Отзыв о проекте D2264
Чтобы оставить отзыв, пожалуйста авторизуйтесь.
Подбор строительной компании
Не знаете кому доверить строительство дома? Мы можем помочь! Подберем для вас из сотен наших партнеров несколько компаний с лучшем соотношением цена/качество под конкретно ваш запрос.
Подобрать