Главная Проекты домов Проект дома из клееного бруса с тремя террасами

D160 Проект дома из клееного бруса с тремя террасами

Сравнить проект В избранное
Проект дома из клееного бруса с тремя террасами / 1
Проект дома из клееного бруса с тремя террасами / 2
Проект дома из клееного бруса с тремя террасами / 1
Проект дома из клееного бруса с тремя террасами / 2
D160
329 м²
Проект с подрядом
Артикул проекта: МОНТЕ
Компания: Ecohouse Group
Стоимость строительства
5 745 000 ₽
Заказать подробную смету
+7 (812) XXX-XX-XX Показать телефон
Задать вопрос по проекту
Технические характеристики
Общие
Материал стен
Клееный брус
Общая площадь
329 м²
Приведенная площадь
283.21 м²
Количество жилых комнат/спален
5
Этажи
1 этаж + мансарда
Гараж
Нет гаража
Подвал / цокольный этаж
Без подвала
Длина дома
15.0 м
Ширина дома
13.9 м
Кровля
Металлочерепица
Облицовка внешних стен
Без облицовки
Толщина несущих наружных стен
160 мм
Межэтажные перекрытия
По деревянным балкам
Внутренние не несущие перегородки
Каркасно-обшивные
Терраса
Терраса открытая
,
Терраса крытая
Дополнительные
Второй свет
Есть
Мансардные окна
Есть
Сауна/баня внутри
Есть
Площадь гостиной
33.5 м²
Площадь кухни
18.9 м²
Количество санузлов
3
Окно в ванной комнате
Есть
Кладовая
1
Балкон / лоджия
Балкон
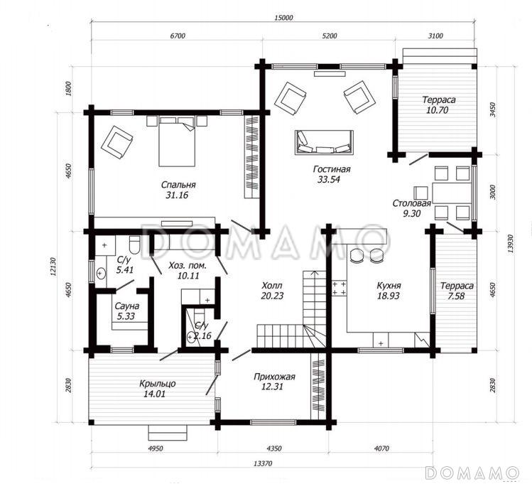
Планы помещений
Описание проекта
Компания Domamo предлагает проект дома из клееного бруса с тремя террасами D160. Общая площадь - 329 м2, размер - 15.0х13.9 м. Фундамент - , кровля - металлочерепица, внешняя отделка - без облицовки. Для заказа проекта или внесения изменений свяжитесь с нами с помощью форм обратной связи на сайте или по телефону +7 (800) 200-28-83.
Категории проекта: с мансардой деревянные для постоянного проживания из клееного бруса в английском стиле в скандинавском стиле от 300 до 400 кв.м в европейском стиле с эркером с террасой из бруса в стиле замка в финском стиле одноэтажные с мансардой со вторым светом одноэтажные деревянные с баней с двухскатной крышей загородные с сауной прямоугольные с балконом с эркером и мансардой Проекты деревянных домов с мансардой Проекты деревянных домов с террасой Проекты деревянных домов с баней Проекты домов из клееного бруса с мансардой Проекты одноэтажных домов из клееного бруса Проекты одноэтажных домов с эркером Проекты одноэтажных домов с террасой Типовые проекты загородных одноэтажных домов Проекты одноэтажных домов с баней без гаража одноэтажные без гаража одноэтажные финские с мансардой и террасой полутораэтажные деревянные для круглогодичного проживания с балконом и террасой с 5 спальнями одноэтажные с мансардными окнами с мансардой с баней с мансардой с двухскатной крышей с мансардой скандинавские с мансардой со вторым светом с мансардой с мансардными окнами с мансардой с балконом с мансардой прямоугольные с мансардой для постоянного проживания с мансардой элитные со вторым светом одноэтажные с мансардой из клееного бруса одноэтажные с мансардой для постоянного проживания одноэтажные с мансардой со вторым светом одноэтажные с мансардой с большой кухней одноэтажные с мансардой скандинавские одноэтажные с мансардой с балконом скандинавские для постоянного проживания скандинавские без гаража скандинавские с террасой скандинавские с большой кухней скандинавские с вторым светом скандинавские с балконом скандинавские прямоугольные скандинавские большие скандинавские с двухскатной крышей деревянные в скандинавском стиле деревянные с вторым светом деревянные с балконом деревянные прямоугольные деревянные без гаража деревянные с подрядом деревянные без подвала деревянные с большой гостиной деревянные с большой кухней деревянные с баней деревянные от 300 до 400 м2 из клееного бруса проект с подрядом из клееного бруса для постоянного проживания из клееного бруса с окном в ванной комнате из клееного бруса прямоугольный из клееного бруса с балконом из клееного бруса с мансардными окнами из клееного бруса с вторым светом из клееного бруса в скандинавском стиле из клееного бруса с двухскатной крышей из клееного бруса с каркасно-обшивными перегородками из клееного бруса без облицовки из клееного бруса с перекрытиями по деревянным балкам из клееного бруса с кровлей из металлочерепицы из клееного бруса с сауной/баней внутри из клееного бруса с 1 эркером из клееного бруса с выходом на терассу из гостиной из клееного бруса с выходом на терассу из кухни из клееного бруса с открытой терассой из клееного бруса с крытой терассой из клееного бруса без подвала из клееного бруса без гаража одноэтажные из клееного бруса с мансардой из клееного бруса от 300 до 400 м2 из клееного бруса с большой гостиной Проекты домов с подрядом Показать все категории Скрыть категории

Похожие проекты
Состав проекта
Входит в стоимость
Цена, руб. Сроки, дней
Комплект архитектурно-строительных чертежей (АС) Входит в стоимость Готов к отправке
Разрабатывается отдельно
Цена, руб. Сроки, дней
Адаптация фундамента (изменение типа фундамента) по запросу 14 рабочих дней
Дизайн интерьера (стоимость от 2200руб. за квад.метр площади) по запросу 30 рабочих дней
Внесение изменений в проект по запросу 20 рабочих дней
Фэншуй дома 20 000 ₽ 14 рабочих дней в корзину
Фэншуй участка 15 000 ₽ 14 рабочих дней в корзину
Фэншуй полная консультация дом+участок с выездом на объект 100 000 ₽ 30 рабочих дней в корзину
Опции проекта вы можете заказать в корзине при оформлении заказа
Комплектации
Отзывы покупателей
Рейтинг покупателей
0 / 5 5 5 1
На основе 1 оценок покупателей
0%
0%
0%
0%
0%
Отзывы о проекте D160
Отзыв о проекте D160
Чтобы оставить отзыв, пожалуйста авторизуйтесь.
Подбор строительной компании
Не знаете кому доверить строительство дома? Мы можем помочь! Подберем для вас из сотен наших партнеров несколько компаний с лучшем соотношением цена/качество под конкретно ваш запрос.
Подобрать