111
Главная Проекты домов Проект двухэтажного пятикомнатного дома из клееного бруса

D1014 Проект двухэтажного пятикомнатного дома из клееного бруса

Сравнить проект В избранное
Проект двухэтажного пятикомнатного дома из клееного бруса / 1
Проект двухэтажного пятикомнатного дома из клееного бруса / 2
Проект двухэтажного пятикомнатного дома из клееного бруса / 1
Проект двухэтажного пятикомнатного дома из клееного бруса / 2
D1014
174 м²
Проект с подрядом
Артикул проекта: Турин
Компания: Holz House
Стоимость строительства
4 800 000 ₽
Заказать подробную смету
+7 (800) XXX-XX-XX Показать телефон
Задать вопрос по проекту
Технические характеристики
Общие
Материал стен
Клееный брус
Общая площадь
174 м²
Приведенная площадь
159.78 м²
Количество жилых комнат/спален
4
Этажи
2 этажа
Гараж
Нет гаража
Подвал / цокольный этаж
Без подвала
Длина дома
10.0 м
Ширина дома
9.8 м
Кровля
Гибкая черепица
Облицовка внешних стен
Без облицовки
Толщина несущих наружных стен
185 мм
Межэтажные перекрытия
По деревянным балкам
Внутренние не несущие перегородки
Каркасно-обшивные
Фундамент
Свайный
Терраса
Терраса крытая
Дополнительные
Окна
Окна до пола
Сауна/баня внутри
Нет
Площадь гостиной
41.1 м²
Площадь кухни
8.8 м²
Количество санузлов
2
Окно в ванной комнате
Есть
Котельная
Есть
Хозяйская гардеробная
Есть
Кладовая
1
Балкон / лоджия
Балкон
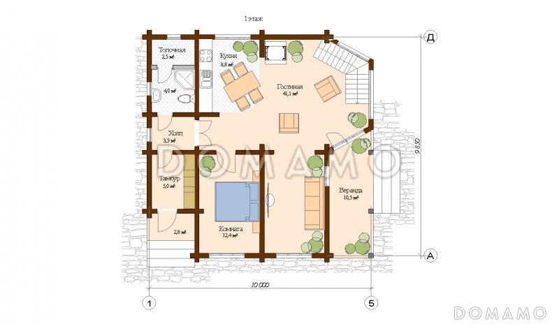
Планы помещений
Описание проекта

Проект двухэтажного дома с котельной и четырьмя спальнями подходит для строительства компактного коттеджа для семьи из 4-5 человек. Здание из светлого клееного бруса украшают элементы более темного оттенка: это ограждения террас и балкона, а также массивные оконные рамы с тонкими рейками, делящими стеклянную поверхность на несколько сегментов.

Первый этаж занимают гостиная с кухней, гостевая спальня, санузел, котельная. На втором три разные спальни. В одной из них предусмотрен гардероб. Вторая имеет большую площадь – 22,2 кв.м. Третья спальня стандартных размеров и, так же как и большая, имеет выход на балкон.

Преимущества и особенности:

  • пространство гостиной разделено на 2 зоны – здесь при желании вся семья может проводить вечер вместе, но каждый за своим занятием,

  • наличие котельной позволяет жить в таком доме и зимой и летом.

Категории проекта: деревянные для постоянного проживания из клееного бруса от 100 до 200 кв.м 10х10 с эркером с террасой двухэтажные с котельной двухэтажные деревянные до 200 кв.м с двухскатной крышей 6х10 9х10 9х12 загородные с гардеробной прямоугольные с балконом 10х12 в стиле эклектика двухэтажные с эркером Проекты деревянных домов с террасой Проекты двухэтажных домов из клееного бруса Проекты двухэтажных домов с террасой Проекты двухэтажных домов с верандой без гаража деревянные для круглогодичного проживания двухэтажные 10 на 12 двухэтажные 200 кв м с 4 спальнями двухэтажные от 150 до 200 кв м с балконом и террасой двухэтажные 10 x 10 двухэтажные до 180 кв.м двухэтажные с двускатной крышей двухэтажные с 4 спальнями двухэтажные с балконом двухэтажные с балконом и террасой двухэтажные без гаража деревянные в стиле эклектика деревянные с окнами в пол деревянные с балконом деревянные прямоугольные деревянные без гаража деревянные с подрядом деревянные без подвала деревянные с 4 спальнями деревянные с большой гостиной деревянные от 100 до 200 м2 из клееного бруса проект с подрядом из клееного бруса для постоянного проживания из клееного бруса с окном в ванной комнате из клееного бруса прямоугольный из клееного бруса с балконом из клееного бруса с окнами в пол (в гостиной) из клееного бруса с окнами в пол (на кухне) из клееного бруса с окнами в пол из клееного бруса в скандинавском стиле из клееного бруса в стиле эклектика из клееного бруса с двухскатной крышей из клееного бруса со свайным фундаментом из клееного бруса с каркасно-обшивными перегородками из клееного бруса без облицовки из клееного бруса с перекрытиями по деревянным балкам из клееного бруса с кровлей из гибкой черепицы из клееного бруса с хозяйской гардеробной из клееного бруса с котельной из клееного бруса с 1 эркером из клееного бруса с выходом на терассу из гостиной из клееного бруса с выходом на терассу из кухни из клееного бруса с крытой терассой из клееного бруса без подвала из клееного бруса без гаража из клееного бруса двухэтажные из клееного бруса от 100 до 200 м2 из клееного бруса с большой гостиной Проекты домов с подрядом Показать все категории Скрыть категории

Похожие проекты
Состав проекта
Входит в стоимость
Цена, руб. Сроки, дней
Комплект архитектурно-строительных чертежей (АС) Входит в стоимость Готов к отправке
Разрабатывается отдельно
Цена, руб. Сроки, дней
Адаптация фундамента (изменение типа фундамента) по запросу 14 рабочих дней
Дизайн интерьера (стоимость от 2200руб. за квад.метр площади) по запросу 30 рабочих дней
Внесение изменений в проект по запросу 20 рабочих дней
Фэншуй дома 20 000 ₽ 14 рабочих дней в корзину
Фэншуй участка 15 000 ₽ 14 рабочих дней в корзину
Фэншуй полная консультация дом+участок с выездом на объект 100 000 ₽ 30 рабочих дней в корзину
Опции проекта вы можете заказать в корзине при оформлении заказа
Комплектации
Отзывы покупателей
Рейтинг покупателей
0 / 5 5 5 1
На основе 1 оценок покупателей
0%
0%
0%
0%
0%
Отзывы о проекте D1014
Отзыв о проекте D1014
Чтобы оставить отзыв, пожалуйста авторизуйтесь.
Подбор строительной компании
Не знаете кому доверить строительство дома? Мы можем помочь! Подберем для вас из сотен наших партнеров несколько компаний с лучшем соотношением цена/качество под конкретно ваш запрос.
Подобрать