Главная Проекты домов Каркасный дом "Лангсдорф"

D6095 Каркасный дом "Лангсдорф"

Сравнить проект В избранное
Каркасный дом "Лангсдорф" / 1
Каркасный дом "Лангсдорф" / 2
Каркасный дом "Лангсдорф" / 3
Каркасный дом "Лангсдорф" / 4
Каркасный дом "Лангсдорф" / 5
Каркасный дом "Лангсдорф" / 1
Каркасный дом "Лангсдорф" / 2
Каркасный дом "Лангсдорф" / 3
Каркасный дом "Лангсдорф" / 4
Каркасный дом "Лангсдорф" / 5
D6095
224 м²
Проект с подрядом
Компания: Город Домов
Стоимость строительства
10 919 700 ₽
Заказать подробную смету
+7 (499) XXX-XX-XX Показать телефон
Задать вопрос по проекту
Технические характеристики
Общие
Материал стен
Каркас
Общая площадь
224 м²
Приведенная площадь
202.31 м²
Количество жилых комнат/спален
6
Этажи
2 этажа
Гараж
Нет гаража
Количество машин
нет
Подвал / цокольный этаж
Без подвала
Длина дома
11,5 м
Ширина дома
13,4 м
Кровля
Металлочерепица
Облицовка внешних стен
Сайдинг
Межэтажные перекрытия
По деревянным балкам
Внутренние не несущие перегородки
Каркасно-обшивные
Фундамент
Свайный
Терраса
Терраса открытая
,
Терраса крытая
Дополнительные
Окна
Окна до пола
Площадь гостиной
34.9 м²
Площадь кухни
8.2 м²
Количество санузлов
3
Окно в ванной комнате
Есть
Котельная
Есть
Кладовая
1
Дом для неровных участков (с рельефом)
Есть
Дом для узких участков
Есть
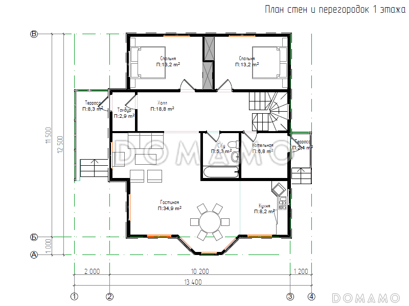
Планы помещений
Описание проекта
Не все изобретения и нововведения – результат технического прогресса или инженерной мысли. Так, например, современный галстук, каким мы привыкли его видеть и носить, – тоже изобретение! В 1924 году Джесси Лангсдорф переосмыслил классический крой галстука и представил новую усовершенствованную модель. Она была проще в использовании и выглядела аккуратнее. Совместив в одном предмете изящество классики и удобство современности, Джесси Лангсдорф совершил огромный вклад в историю костюма. Галстук в его современном прочтении по сей день остается модным и востребованным аксессуаром, популярным как среди мужчин, так и среди женщин, и помогает создавать стильные и элегантные образы.

Элегантность – это изящество, стиль и достоинство образа. Для нас одинаково важна как внутренняя функциональность и безопасность дома, так и его внешний облик. Мы выбираем самые качественные материалы, используем проверенные годами лучшие технологии для внешней отделки, а наши архитекторы всегда стремятся создавать эстетически привлекательные и запоминающиеся проекты. Среди них и дом Лангсдорф – яркий пример современной стильной архитектуры с нотами элегантной классики. Изящество геометрических форм, многогранный эркер и благородные оттенки материалов создают благородный внешний облик дома.

Планировка продумана для жизни большой семьи: в доме 6 спален разных площадей, расположенных на двух этажах, а также три санузла, большая кухня-гостиная, вместительная гардеробная и отдельное техническое помещение – котельная. Есть и небольшая уютная терраса для отдыха на свежем воздухе. Места хватит и для хозяев дома, и для гостей – дом очень просторный!

Проект дома Лангсдорф станет прекрасным выбором для тех, кто ценит простор и визуальную эстетику. Однако мы можем сделать его еще лучше специально для вас. Наш архитектор доработает проект по вашим индивидуальным пожеланиям, чтобы будущий дом получился по-настоящему уникальным.

Похожие проекты
Состав проекта
Входит в стоимость
Цена, руб. Сроки, дней
Комплект архитектурно-строительных чертежей (АС) Входит в стоимость Готов к отправке
Разрабатывается отдельно
Цена, руб. Сроки, дней
Адаптация фундамента (изменение типа фундамента) по запросу 14 рабочих дней
Дизайн интерьера (стоимость от 2200руб. за квад.метр площади) по запросу 30 рабочих дней
Внесение изменений в проект по запросу 20 рабочих дней
Фэншуй дома 20 000 ₽ 14 рабочих дней в корзину
Фэншуй участка 15 000 ₽ 14 рабочих дней в корзину
Фэншуй полная консультация дом+участок с выездом на объект 100 000 ₽ 30 рабочих дней в корзину
Опции проекта вы можете заказать в корзине при оформлении заказа
Комплектации
Сравнить 0 комплектаций
Свернуть все
Развернуть все
Минимальная
10 919 700 ₽
Сравнить
Стандарт
10 919 700 ₽
Сравнить
Под чистовую отделку
13 867 700 ₽
Сравнить
Кровля
Кровельное покрытие
Металлочерепица Grand Line покрытие Satin
Металлочерепица Grand Line покрытие Satin
Обрешетка
45х195 мм
45х195 мм
Контробрешетка
45х45 мм
45х45 мм
Противоконденсатная (ветро-гидроизоляционная) пленка
Стропильная система
Доска 45х195 мм камерной сушки
Доска 45х195 мм камерной сушки
Утепление чердачного перекрытия и стропильной системы
KNAUF INSULATION TS 037 в 4 слоя (200 мм)
KNAUF INSULATION TS 037 в 4 слоя (200 мм)
Подшивка свесов кровли
софиты Docke
софиты Docke
Подшивка потолков террас и лоджий
софиты Docke
софиты Docke
Водосточная система
ПВХ DÖCKE PREMIUM
ПВХ DÖCKE PREMIUM
Система снегозадержания
NEW Grand Line
NEW Grand Line
Молниезащита
Фундамент
Сваи ж/бетонные
Железобетонные сваи 150х150
Железобетонные сваи 150х150
Сваи стальные винтовые
Лента ж/бетонная монолитная мелкозаглубленная
Лента ж/бетонная монолитная на глубину промерзания
Лента ж/бетонная сборная (из ФБС) на глубину промерзания
Плита ж/бетонная монолитная мелкозаглубленная
УШП (Утепленная Шведская Плита)
Бетоннная отмостка по периметру дома
Дренажная система по периметру дома
Ливневая система
Облицовка цоколя фундамента
Дополнительная опция
Дополнительная опция
Система контурного заземления
Стены
Несущая часть стены
доска камерной сушки
доска камерной сушки
Фасадная отделка
Фасадный сайдинг Docke Premium
Фасадный сайдинг Docke Premium
Ветрозащита
Ондутис смарт А
Ондутис смарт А
Утепление стены
KNAUF INSULATION TS 200 мм
KNAUF INSULATION TS 200 мм
Пароизоляция
FINKA Premium Plus 200 мкм
FINKA Premium Plus 200 мкм
Внутренняя обшивка/штукатурка со стороны помещения
Гипсокартон влагостойкий KNAUF 12,5мм
Имитация бруса
Пол первого этажа
Несущая часть перекрытия
Доска камерной сушки 45х195
Доска камерной сушки 45х195
Теплоизоляция цокольного перекрытия
KNAUF INSULATION TS 200 мм
KNAUF INSULATION TS 200 мм
Стяжка/подготовка под чистый пол
Фанера 21 мм ФК нешлифованная 1525x1525
Фанера 21 мм ФК нешлифованная 1525x1525
Перекрытия над первым и последующими этажами
Несущая часть перекрытия
Доска камерной сушки 45х195
Доска камерной сушки 45х195
Звукоизоляция/теплоизоляция в перекрытии
KNAUF INSULATION TS
KNAUF INSULATION TS
Стяжка/подготовка под чистый пол
Фанера 21 мм ФК нешлифованная 1525x1525
Фанера 21 мм ФК нешлифованная 1525x1525
Отделка потолка нижележащего этажа
Потолок натяжной
Вагонка ШТИЛЬ
Окна и внешние двери
Окна
ПВХ, профиль REHAU BLITZ
ПВХ, профиль REHAU BLITZ
Оконные наличники
Откосы в помещении
Отливы снаружи
Металлические отливы белого цвета
Металлические отливы белого цвета
Подоконники
ПВХ белый 200 мм
ПВХ белый 200 мм
Входные двери
Металлическая дверь
Металлическая дверь
Внутренние конструкции
Внутренние несущие стены
доска камерной сушки
доска камерной сушки
Внутренние ненесущие стены
Звукоизоляция внутренних стен/перегородок
KNAUF INSULATION TS
KNAUF INSULATION TS
Межэтажная строительная (черновая) лестница
Межэтажная постоянная (чистовая) лестница
клееная древесина хвойных пород
клееная древесина хвойных пород
Межкомнатные двери
Высота потолков 1 этажа
2,6 м
2,6 м
Высота потолков 2 этажа
2,6 м
2,6 м
Настилы полов и ограждения крылец, террас, балконов
Доска сухая строганая 35х145 мм
Доска сухая строганая 35х145 мм
Гидроизоляция полов балконов
Инженерное оснащение
Жидкостной теплый пол
Электрический теплый пол
Система вентиляции
Дополнительная опция
Дополнительная опция
Только вводы воды, электричества, выводы канализации
Дополнительная опция
Дополнительная опция
Электроразводка и электрощит
Дополнительная опция
Дополнительная опция
Разводка хол. и гор. водоснабжения (ХВС и ГВС)
Дополнительная опция
Дополнительная опция
Разводка батарей и/или системы теплого пола. Без оборудования котельной.
Дополнительная опция
Дополнительная опция
Иное инженерное оснащение
Дополнительная опция
Дополнительная опция
Подготовка участка для строительства
Устройство временного щита электроснабжения
Устройство въезда на участок
Дорога на участке до пятна застройки
Подъем пятна застройки
Подготовка пятна застройки для фундаментных работ
Дополнительная опция
Дополнительная опция
Перемещение или вывоз грунта из котлована фундамента
Обеспечение строительного процесса
Доставка стройматериалов
Дополнительная опция
Дополнительная опция
Генератор для обеспечения электричеством
Уборка и вывоз строительного мусора
Дополнительная опция
Дополнительная опция
Организация проживания рабочих (бытовка)
Дополнительная опция
Дополнительная опция
Биотуалет для рабочих
Дополнительная опция
Дополнительная опция
Гарантия на все выполненные работы
Гарантия
До 20 лет
До 20 лет
Отзывы покупателей
Рейтинг покупателей
0 / 5 5 5 1
На основе 1 оценок покупателей
0%
0%
0%
0%
0%
Отзывы о проекте D6095
Отзыв о проекте D6095
Чтобы оставить отзыв, пожалуйста авторизуйтесь.
Подбор строительной компании
Не знаете кому доверить строительство дома? Мы можем помочь! Подберем для вас из сотен наших партнеров несколько компаний с лучшем соотношением цена/качество под конкретно ваш запрос.
Подобрать