Главная Проекты домов Проект современного дома с 3 спальнями и вторым светом в гостиной

D5716 Проект современного дома с 3 спальнями и вторым светом в гостиной

Сравнить проект В избранное
Технические характеристики
Общие
Материал стен
Газобетон
Общая площадь
179 м²
Площадь застройки
138.3 м²
Приведенная площадь
145.28 м²
Количество жилых комнат/спален
3
Этажи
1 этаж + мансарда
Гараж
Нет гаража
Подвал / цокольный этаж
Без подвала
Длина дома
11.6 м
Ширина дома
8.9 м
Высота в коньке
7.797 м
Кровля
Оцинкованный стальной лист профилированный
Облицовка внешних стен
Деревянная вагонка
,
Мокрая штукатурка
Межэтажные перекрытия
Монолитные
Внутренние не несущие перегородки
Газобетонные
Фундамент
Монолитная ж/бетонная плита
Терраса
Терраса крытая
Дополнительные
Окна
Окна до пола
,
Панорамные окна
Второй свет
Есть
Сауна/баня внутри
Нет
Площадь гостиной
28 м²
Площадь кухни
15.7 м²
Количество санузлов
3
Окно в ванной комнате
Есть
Котельная
Есть
Хозяйский санузел
Есть
Кладовая
2
Балкон / лоджия
Балкон
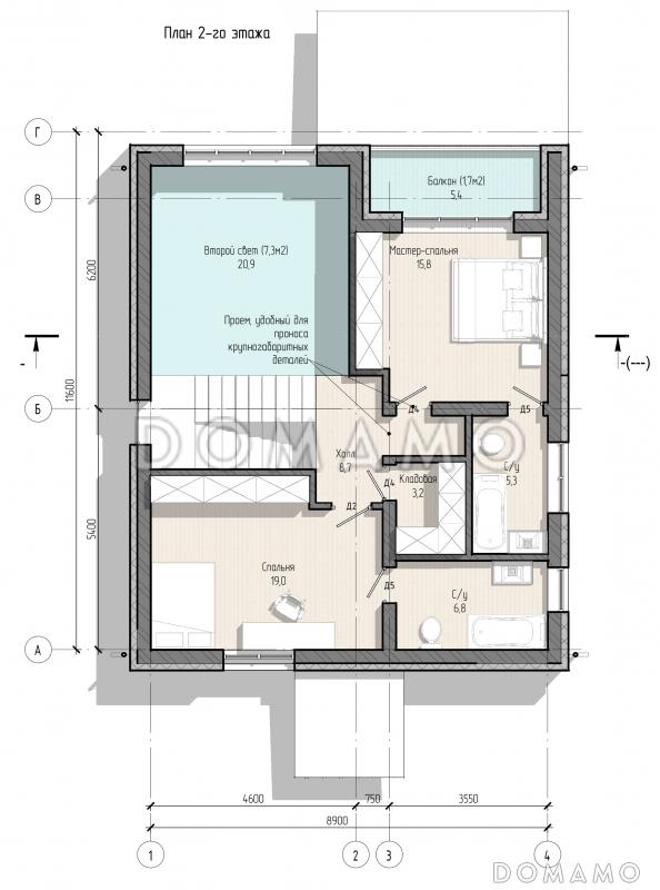
Планы помещений
Фасады
Описание проекта
Компания Domamo предлагает проект современного дома с 3 спальнями и вторым светом в гостиной D5716. Общая площадь - 179 м2, размер - 11.6х8.9 м. Фундамент - монолитная ж/бетонная плита, кровля - оцинкованный стальной лист профилированный, внешняя отделка - деревянная вагонка мокрая штукатурка. Для заказа проекта или внесения изменений свяжитесь с нами с помощью форм обратной связи на сайте или по телефону +7 (800) 200-28-83.
Категории проекта: с мансардой для постоянного проживания пенобетон фахверк современные от 100 до 200 кв.м в европейском стиле с террасой из пеноблоков с мансардой из газобетона готовые из газобетона с мансардой одноэтажные с мансардой одноэтажные с котельной с котельной со вторым светом одноэтажные из газобетона из газосиликатных блоков до 200 кв.м с двухскатной крышей 9х12 загородные из керамзитобетонных блоков прямоугольные с балконом с панорамным остеклением из газобетона с террасой из блоков одноэтажные из блоков из блоков с мансардой из пеноблоков с террасой загородные из газобетона Проекты одноэтажных домов с террасой Типовые проекты загородных одноэтажных домов без гаража одноэтажные без гаража одноэтажные с тремя спальнями Проекты домов с тремя спальнями одноэтажных из керамзитобетонных блоков с мансардой и террасой полутораэтажные с панорамными окнами и террасой 9 на 12 с мансардой одноэтажные до 200 кв м недорогие с балконом и террасой из пеноблоков загородные с мансардой с котельной с мансардой с двухскатной крышей с мансардой современные с мансардой фахверк с мансардой с панорамными окнами с мансардой с окнами до пола с мансардой со вторым светом с мансардой с балконом с мансардой прямоугольные с мансардой готовые с мансардой для постоянного проживания с мансардой до 200 кв.м одноэтажные из газобетона с террасой одноэтажные из газобетона с мансардой одноэтажные из газобетона с 3 спальнями со вторым светом из газобетона до 200 кв.м из газобетона от 100 до 200 кв.м из газобетона с двухскатной крышей из газобетона современные из газобетона фахверк из газобетона с панорамными окнами из газобетона с балконом из газобетона с котельной из газобетона прямоугольные из газобетона готовые из газобетона с большой кухней из газобетона с тремя спальнями из газобетона 9х12 из газобетона для постоянного проживания из газобетона со вторым светом двухэтажные из газобетона без гаража двухэтажные из газобетона с террасой двухэтажные из газобетона с котельной двухэтажные из газобетона со вторым светом двухэтажные из газобетона современные двухэтажные из газобетона с двухскатной крышей двухэтажные из газобетона до 200 кв. м двухэтажные из газобетона без подвала двухэтажные из газобетона с 3 спальнями из газобетона с мансардой современные из газобетона с мансардой с балконом из газобетона с мансардой с террасой из газобетона с мансардой для постоянного проживания из газобетона с мансардой готовые из газобетона с мансардой с двухскатной крышей из газобетона с мансардой с 3 спальнями из газобетона с мансардой с большой кухней из газобетона с мансардой с панорамными окнами из газобетона с мансардой со вторым светом из газобетона с мансардой прямоугольные одноэтажные с мансардой для постоянного проживания одноэтажные с мансардой со вторым светом одноэтажные с мансардой с большой кухней одноэтажные с мансардой с панорамными окнами одноэтажные с мансардой современные одноэтажные с мансардой в стиле фахверк одноэтажные с мансардой с балконом современные без гаража современные с двухскатной крышей современные с панорамными окнами современные с окнами в пол современные с террасой современные 9х12 современные от 100 до 200 кв. м современные со вторым светом европейские 9х12 из пеноблоков в современном стиле из пеноблоков в стиле фахверк из пеноблоков с двухскатной крышей из пеноблоков с окнами до пола из пеноблоков с панорамными окнами из пеноблоков с вторым светом из пеноблоков прямоугольные из пеноблоков с балконом из пеноблоков для постоянного проживания из пеноблоков недорогие из пеноблоков готовые из пеноблоков 9х12 из пеноблоков от 100 до 200 м2 из пеноблоков с 3 спальнями из пеноблоков с большой кухней недорогие с мансардой недорогие в стиле фахверк недорогие без гаража недорогие с террасой недорогие для постоянного проживания недорогие с двухскатной крышей недорогие с окнами до пола недорогие с панорамными окнами недорогие без бани недорогие с котельной недорогие с вторым светом недорогие с балконом недорогие прямоугольные недорогие 9х12 недорогие от 100 до 200 м2 из клееного бруса без гаража Показать все категории Скрыть категории

Похожие проекты
Состав проекта
Входит в стоимость
Цена, руб. Сроки, дней
Комплект архитектурно-строительных чертежей (АС) Входит в стоимость 3 рабочих дня
Разрабатывается отдельно
Цена, руб. Сроки, дней
Адаптация фундамента (изменение типа фундамента) по запросу 14 рабочих дней
Дизайн интерьера (стоимость от 2200руб. за квад.метр площади) по запросу 30 рабочих дней
Внесение изменений в проект по запросу 20 рабочих дней
Фэншуй дома 20 000 ₽ 14 рабочих дней в корзину
Фэншуй участка 15 000 ₽ 14 рабочих дней в корзину
Фэншуй полная консультация дом+участок с выездом на объект 100 000 ₽ 30 рабочих дней в корзину
Опции проекта вы можете заказать в корзине при оформлении заказа
Предложения строителей Выбрать регион
Минимальная
4 939 520 ₽
Стандарт
6 101 760 ₽
Под чистовую отделку
7 990 400 ₽
Показать подробные комплектации
Минимальная
14 818 560 ₽
Стандарт
17 433 600 ₽
Под чистовую отделку
22 663 680 ₽
Показать подробные комплектации
Минимальная
7 250 924 ₽
Стандарт
10 759 436 ₽
Под чистовую отделку
17 074 758 ₽
Показать подробные комплектации
Минимальная
5 084 800 ₽
Стандарт
6 101 760 ₽
Под чистовую отделку
6 828 160 ₽
Показать подробные комплектации
Минимальная
4 689 057 ₽
Стандарт
6 881 913 ₽
Под чистовую отделку
7 362 790 ₽
Показать подробные комплектации
Минимальная
4 678 016 ₽
Стандарт
5 346 304 ₽
Под чистовую отделку
7 017 023 ₽
Показать подробные комплектации
Подбор строительной компании
Не знаете кому доверить строительство дома? Мы можем помочь! Подберем для вас из сотен наших партнеров несколько компаний с лучшем соотношением цена/качество под конкретно ваш запрос.
Подобрать
Посмотреть еще 32 компании Свернуть
Отзывы покупателей
Рейтинг покупателей
0 / 5 5 5 1
На основе 1 оценок покупателей
0%
0%
0%
0%
0%
Отзывы о проекте D5716
Отзыв о проекте D5716
Чтобы оставить отзыв, пожалуйста авторизуйтесь.
Подбор строительной компании
Не знаете кому доверить строительство дома? Мы можем помочь! Подберем для вас из сотен наших партнеров несколько компаний с лучшем соотношением цена/качество под конкретно ваш запрос.
Подобрать