Главная Проекты домов Проект одноэтажного дома с просторной кухней-гостиной и террасой

D5416 Проект одноэтажного дома с просторной кухней-гостиной и террасой

Сравнить проект В избранное
Технические характеристики
Общие
Материал стен
Кирпич
Общая площадь
154 м²
Жилая площадь
97 м²
Площадь застройки
264.4 м²
Приведенная площадь
138.25 м²
Количество жилых комнат/спален
3
Этажи
2 этажа
Гараж
Нет гаража
Количество машин
нет
Подвал / цокольный этаж
Без подвала
Длина дома
17.3 м
Ширина дома
11.2 м
Высота в коньке
6.1 м
Кровля
Металлочерепица
Облицовка внешних стен
Облицовочный кирпич
Толщина несущих наружных стен
380 мм
Межэтажные перекрытия
По деревянным балкам
Внутренние не несущие перегородки
Кирпичные
Фундамент
Свайно-ростверковый
Терраса
Терраса крытая
Дополнительные
Камин
Есть
Сауна/баня внутри
Нет
Площадь гостиной
47.6 м²
Площадь кухни
6 м²
Количество санузлов
1
Котельная
Есть
Кабинет
Есть
Постирочная
Есть
Хозяйская гардеробная
Есть
Кладовая
3
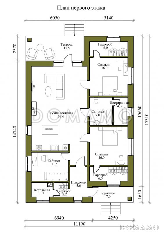
Планы помещений
Фасады
Описание проекта
Компания Domamo предлагает проект одноэтажного дома с просторной кухней-гостиной и террасой D5416. Общая площадь - 154 м2, размер - 17.3х11.2 м. Фундамент - свайно-ростверковый, кровля - металлочерепица, внешняя отделка - облицовочный кирпич. Для заказа проекта или внесения изменений свяжитесь с нами с помощью форм обратной связи на сайте или по телефону +7 (800) 200-28-83.
Категории проекта: для постоянного проживания кирпич современные от 100 до 200 кв.м в европейском стиле кирпичные европейские дома с террасой из кирпича с террасой готовые загородные из кирпича двухэтажные из кирпича двухэтажные кирпичные с котельной с котельной кирпичные до 200 кв.м до 200 кв.м загородные с четырехскатной крышей с камином с гардеробной прямоугольные современные кирпичные Проекты двухэтажных домов с террасой Проекты двухэтажных домов с верандой без гаража с террасой и камином облицованные кирпичом с кабинетом Проекты домов с тремя спальнями двухэтажные 200 кв м двухэтажные от 150 до 200 кв м недорогие двухэтажные до 180 кв.м двухэтажные с камином двухэтажные с 3 спальнями двухэтажные в современном стиле двухэтажные без гаража современные без гаража современные с террасой современные от 100 до 200 кв. м европейские для постоянного проживания европейские недорогие европейские готовые европейские без подвала европейские с террасой европейские с котельной европейские с кабинетом европейские с прачечной европейские с кладовой европейские прямоугольные европейские с четырехскатной крышей европейские с вальмовой крышей европейские с камином европейские 100-200 м2 недорогие двухэтажные недорогие кирпичные недорогие без гаража недорогие с террасой недорогие для постоянного проживания недорогие с четырехскатной крышей недорогие с вальмовой крышей недорогие с большой гостиной недорогие без бани недорогие с кабинетом недорогие с котельной недорогие с камином недорогие прямоугольные недорогие от 100 до 200 м2 из клееного бруса без гаража Показать все категории Скрыть категории

Похожие проекты
Состав проекта
Входит в стоимость
Цена, руб. Сроки, дней
Комплект архитектурно-строительных чертежей (АС) Входит в стоимость 15 рабочих дней
Готово к продаже
Цена, руб. Сроки, дней
Паспорт рабочего проекта 4 000 ₽ 3 рабочих дня в корзину
Дополнительная копия проекта формата А3 4 000 ₽ Готов к отправке в корзину
Электронная копия проекта (скан распечатанной версии) 4 000 ₽ 3 рабочих дня в корзину
Разрабатывается отдельно
Цена, руб. Сроки, дней
Адаптация фундамента (изменение типа фундамента) по запросу 14 рабочих дней
Дизайн интерьера (стоимость от 2200руб. за квад.метр площади) по запросу 30 рабочих дней
Внесение изменений в проект по запросу 20 рабочих дней
Зеркалирование проекта (для которого нет зеркальной версии) 8 000 ₽ 5 рабочих дней в корзину
Разработка Генплана участка, в масштабе 1:250 7 500 ₽ 5 рабочих дней в корзину
Фэншуй дома 20 000 ₽ 14 рабочих дней в корзину
Фэншуй участка 15 000 ₽ 14 рабочих дней в корзину
Фэншуй полная консультация дом+участок с выездом на объект 100 000 ₽ 30 рабочих дней в корзину
Опции проекта вы можете заказать в корзине при оформлении заказа
Предложения строителей Выбрать регион
Минимальная
4 838 750 ₽
Стандарт
5 944 750 ₽
Под чистовую отделку
7 742 000 ₽
Показать подробные комплектации
Минимальная
14 101 500 ₽
Стандарт
16 590 000 ₽
Под чистовую отделку
21 567 000 ₽
Показать подробные комплектации
Минимальная
7 299 600 ₽
Стандарт
10 721 287 ₽
Под чистовую отделку
16 880 325 ₽
Показать подробные комплектации
Минимальная
5 539 677 ₽
Стандарт
6 360 882 ₽
Под чистовую отделку
8 144 584 ₽
Показать подробные комплектации
Минимальная
3 227 964 ₽
Стандарт
3 997 325 ₽
Под чистовую отделку
4 811 272 ₽
Показать подробные комплектации
Подбор строительной компании
Не знаете кому доверить строительство дома? Мы можем помочь! Подберем для вас из сотен наших партнеров несколько компаний с лучшем соотношением цена/качество под конкретно ваш запрос.
Подобрать
Посмотреть еще 20 компаний Свернуть
Отзывы покупателей
Рейтинг покупателей
0 / 5 5 5 1
На основе 1 оценок покупателей
0%
0%
0%
0%
0%
Отзывы о проекте D5416
Отзыв о проекте D5416
Чтобы оставить отзыв, пожалуйста авторизуйтесь.
Подбор строительной компании
Не знаете кому доверить строительство дома? Мы можем помочь! Подберем для вас из сотен наших партнеров несколько компаний с лучшем соотношением цена/качество под конкретно ваш запрос.
Подобрать