Главная Проекты домов Проект крупномасштабного двухэтажного дома в стиле хай-тек с подвалом и бассейном

D4703 Проект крупномасштабного двухэтажного дома в стиле хай-тек с подвалом и бассейном

Сравнить проект В избранное
Технические характеристики
Общие
Материал стен
Кирпич
Общая площадь
703 м²
Жилая площадь
299 м²
Площадь застройки
427 м²
Приведенная площадь
572.32 м²
Количество жилых комнат/спален
5
Этажи
2 этажа
Гараж
Нет гаража
Количество машин
2
Подвал / цокольный этаж
Без окон
Длина дома
25.6 м
Ширина дома
21.9 м
Высота в коньке
9.1 м
Кровля
Рулонная кровля
Облицовка внешних стен
Мокрая штукатурка
Толщина несущих наружных стен
380 мм
Межэтажные перекрытия
Монолитные
Внутренние не несущие перегородки
Кирпичные
Фундамент
Свайно-ростверковый
Терраса
Терраса открытая
,
Терраса крытая
Дополнительные
Окна
Окна до пола
Камин
Есть
Сауна/баня внутри
Нет
Площадь гостиной
33.7 м²
Площадь кухни
24.8 м²
Количество санузлов
5
Окно в ванной комнате
Есть
Котельная
Есть
Кабинет
Есть
Постирочная
Есть
Хозяйский санузел
Есть
Кладовая
8
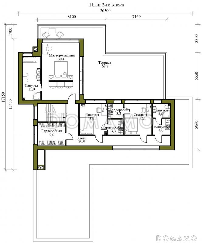
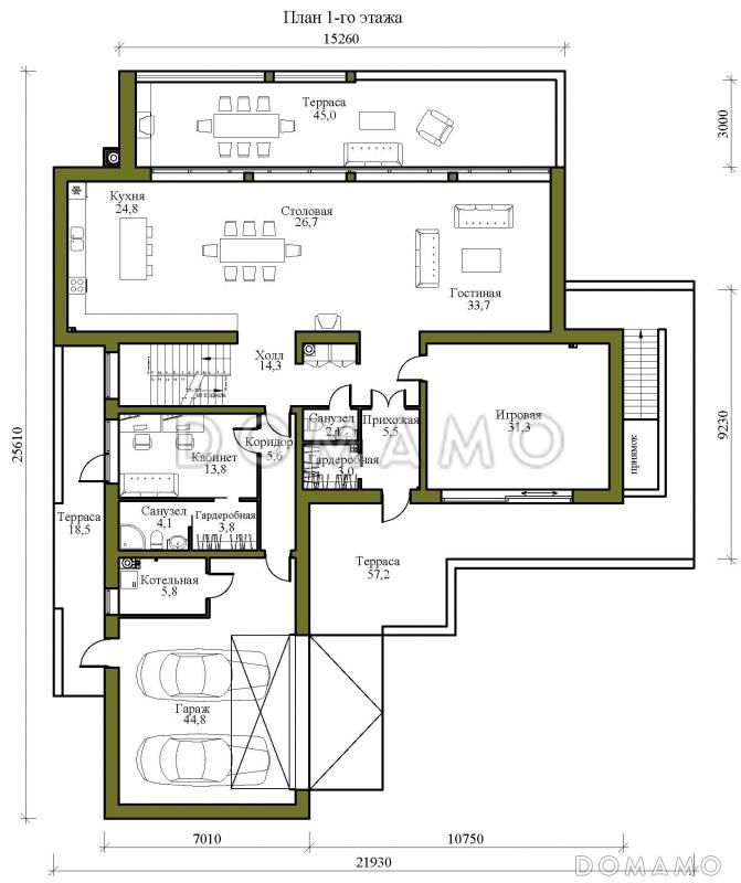
Планы помещений
Описание проекта
Компания Domamo предлагает проект крупномасштабного двухэтажного дома в стиле хай-тек с подвалом и бассейном D4703. Общая площадь - 703 м2, размер - 25.6х21.9 м. Фундамент - свайно-ростверковый, кровля - рулонная кровля, внешняя отделка - мокрая штукатурка. Для заказа проекта или внесения изменений свяжитесь с нами с помощью форм обратной связи на сайте или по телефону +7 (800) 200-28-83.
Категории проекта: для постоянного проживания кирпич в стиле хай-тек современные от 500 кв.м кирпичные дома хай-тек в европейском стиле кирпичные европейские дома с террасой из кирпича с террасой готовые в стиле минимализм с цокольным этажом загородные из кирпича двухэтажные из кирпича двухэтажные кирпичные с подвалом кирпичные с котельной с подвалом с котельной с плоской крышей загородные с камином в стиле хай-тек с плоской крышей современные кирпичные Проекты двухэтажных домов с террасой Проекты двухэтажных домов с верандой Проекты двухэтажных домов с подвалом без гаража с террасой и камином с кабинетом особняки современный с плоской крышей с 5 спальнями большие сложной формы двухэтажные с камином двухэтажные в современном стиле двухэтажные без гаража современные без гаража современные с окнами в пол современные с террасой современные большие современные с подвалом европейские с плоской крышей большие готовые большие сложной формы большие с камином большие с окном в ванной комнате большие с окнами в пол большие без гаража большие с большой кухней большие с террасой большие с прачечной большие с котельной большие с кабинетом двухэтажные в стиле хай-тек хай-тек для постоянного проживания хай-тек без гаража хай-тек с окнами в пол хай-тек с террасой хай-тек нестандартные хай-тек готовые хай-тек с камином хай-тек с котельной хай-тек с кабинетом хай-тек с прачечной хай-тек с мастер-спальней хай-тек без бани в стиле минимализм для постоянного проживания в стиле минимализм без гаража в стиле минимализм нестандартные в стиле минимализм с плоской крышей в стиле минимализм с окнами в пол в стиле минимализм с террасой в стиле минимализм с кабинетом в стиле минимализм с котельной в стиле минимализм с камином в стиле минимализм элитные в стиле минимализм с ростверкным фундаментом из клееного бруса без гаража с плоской крышей двухэтажные с плоской крышей и большой террасой с плоской крышей и большой гостиной с плоской крышей готовые с плоской крышей для постоянного проживания с плоской крышей и окном в ванной комнате с плоской крышей и камином с плоской крышей сложной формы с плоской крышей и окнами в пол в гостиной с плоской крышей и окнами в пол на кухне с плоской крышей и окнами до пола с плоской крышей и монолитными перекрытиями с плоской крышей и облицовкой мокрой штукатуркой с плоской крышей кирпичные с плоской крышей и хозяйским санузлом с плоской крышей и постирочной с плоской крышей и кабинетом с плоской крышей и котельной с плоской крышей без сауны Показать все категории Скрыть категории

Похожие проекты
Состав проекта
Входит в стоимость
Цена, руб. Сроки, дней
Комплект архитектурно-строительных чертежей (АС) Входит в стоимость Готов к отправке
Готово к продаже
Цена, руб. Сроки, дней
Паспорт рабочего проекта 5 000 ₽ 3 рабочих дня в корзину
Дополнительная копия проекта формата А3 4 000 ₽ Готов к отправке в корзину
Электронная копия проекта (скан распечатанной версии) 4 000 ₽ 3 рабочих дня в корзину
Разрабатывается отдельно
Цена, руб. Сроки, дней
Адаптация фундамента (изменение типа фундамента) по запросу 14 рабочих дней
Дизайн интерьера (стоимость от 2200руб. за квад.метр площади) по запросу 30 рабочих дней
Внесение изменений в проект по запросу 20 рабочих дней
Инженерные разделы: ВК + ОВ + ЭО 40 000 ₽ 20 рабочих дней в корзину
Зеркалирование проекта (для которого нет зеркальной версии) 8 000 ₽ 5 рабочих дней в корзину
Разработка Генплана участка, в масштабе 1:250 7 500 ₽ 5 рабочих дней в корзину
Фэншуй дома 20 000 ₽ 14 рабочих дней в корзину
Фэншуй участка 15 000 ₽ 14 рабочих дней в корзину
Фэншуй полная консультация дом+участок с выездом на объект 100 000 ₽ 30 рабочих дней в корзину
Опции проекта вы можете заказать в корзине при оформлении заказа
Предложения строителей Выбрать регион
Минимальная
20 031 200 ₽
Стандарт
24 609 760 ₽
Под чистовую отделку
32 049 920 ₽
Показать подробные комплектации
Минимальная
45 728 368 ₽
Стандарт
53 798 080 ₽
Под чистовую отделку
69 937 504 ₽
Показать подробные комплектации
Минимальная
21 061 376 ₽
Стандарт
30 933 896 ₽
Под чистовую отделку
48 704 431 ₽
Показать подробные комплектации
Минимальная
22 932 862 ₽
Стандарт
26 332 443 ₽
Под чистовую отделку
33 716 515 ₽
Показать подробные комплектации
Минимальная
9 300 617 ₽
Стандарт
11 517 350 ₽
Под чистовую отделку
13 862 546 ₽
Показать подробные комплектации
Подбор строительной компании
Не знаете кому доверить строительство дома? Мы можем помочь! Подберем для вас из сотен наших партнеров несколько компаний с лучшем соотношением цена/качество под конкретно ваш запрос.
Подобрать
Посмотреть еще 20 компаний Свернуть
Отзывы покупателей
Рейтинг покупателей
0 / 5 5 5 1
На основе 1 оценок покупателей
0%
0%
0%
0%
0%
Отзывы о проекте D4703
Отзыв о проекте D4703
Чтобы оставить отзыв, пожалуйста авторизуйтесь.
Подбор строительной компании
Не знаете кому доверить строительство дома? Мы можем помочь! Подберем для вас из сотен наших партнеров несколько компаний с лучшем соотношением цена/качество под конкретно ваш запрос.
Подобрать