Главная Проекты домов Проект мансардного дома из кирпича с тремя спальнями, кабинетом, балконом и гаражом

D3908 Проект мансардного дома из кирпича с тремя спальнями, кабинетом, балконом и гаражом

Сравнить проект В избранное
Проект мансардного дома из кирпича с тремя спальнями, кабинетом, балконом и гаражом / 1
Проект мансардного дома из кирпича с тремя спальнями, кабинетом, балконом и гаражом / 1
D3908
172 м²
Подготовка проекта:
60 рабочих дней
Стоимость проекта
Купить проект
Задайте вопросы по проекту нашему архитектору
8 (800) 200-28-83
Время работы: пн-вс: с 9:00 до 20:00
Задать вопрос по проекту

Технические характеристики
Общие
Материал стен
Кирпич
Общая площадь
172 м²
Площадь застройки
114.6 м²
Приведенная площадь
163.85 м²
Количество жилых комнат/спален
4
Этажи
1 этаж + мансарда
Гараж
Встроенный гараж
Количество машин
1
Подвал / цокольный этаж
Без подвала
Длина дома
9.24 м
Ширина дома
14.94 м
Высота в коньке
6.87 м
Кровля
Металлочерепица
Облицовка внешних стен
Деревянная вагонка
,
Мокрая штукатурка
Толщина несущих наружных стен
380 мм
Межэтажные перекрытия
Монолитные
Внутренние не несущие перегородки
Кирпичные
Фундамент
Ленточный заглубленный из ФБС
Терраса
Терраса открытая
Дополнительные
Окна
Окна до пола
Мансардные окна
Есть
Камин
Есть
Площадь гостиной
30.1 м²
Площадь кухни
10.3 м²
Количество санузлов
3
Окно в ванной комнате
Есть
Котельная
Есть
Кабинет
Есть
Постирочная
Есть
Хозяйский санузел
Есть
Кладовая
5
Балкон / лоджия
Балкон
Длина участка
17.24 м
Ширина участка
23.94 м
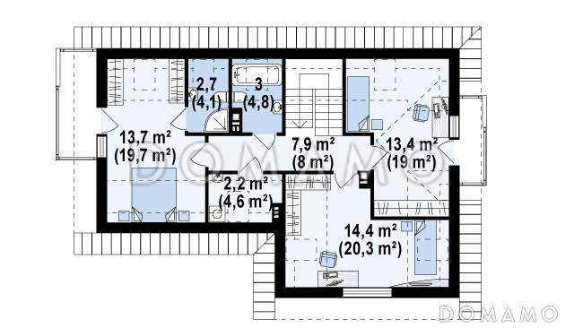
Планы помещений
Описание проекта
Компания Domamo предлагает проект мансардного дома из кирпича с тремя спальнями, кабинетом, балконом и гаражом D3908. Общая площадь - 172 м2, размер - 9.24х14.94 м. Фундамент - ленточный заглубленный из фбс, кровля - металлочерепица, внешняя отделка - деревянная вагонка мокрая штукатурка. Для заказа проекта или внесения изменений свяжитесь с нами с помощью форм обратной связи на сайте или по телефону +7 (800) 200-28-83.
Категории проекта: с мансардой с гаражом с мансардой и гаражом для постоянного проживания кирпич в классическом стиле от 100 до 200 кв.м кирпичные дома хай-тек классические кирпичные дома кирпичные дома с мансардой дома из кирпича с гаражом с террасой из кирпича с террасой готовые загородные из кирпича одноэтажные из кирпича одноэтажные из кирпича с гаражом одноэтажные из кирпича с мансардой одноэтажные кирпичные с котельной одноэтажные с гаражом одноэтажные с мансардой кирпичные с котельной одноэтажные с котельной с котельной кирпичные до 200 кв.м одноэтажные с гаражом и мансардой до 200 кв.м с двухскатной крышей загородные с камином угловые с балконом со встроенным гаражом Проекты одноэтажных домов с террасой Типовые проекты загородных одноэтажных домов с террасой и камином с кабинетом с гаражом под одной крышей одноэтажные с 4 спальнями одноэтажные с гаражом и террасой с мансардой и террасой полутораэтажные с гаражом и террасой с 4 спальнями г-образные одноэтажные до 200 кв м полутораэтажные из кирпича с балконом и террасой одноэтажные с мансардными окнами с мансардой с котельной с мансардой с камином с мансардой с двухскатной крышей с мансардой в классическом стиле с мансардой с окнами до пола с мансардой с мансардными окнами с мансардой с балконом с мансардой г-образные с мансардой готовые с мансардой для постоянного проживания с мансардой до 200 кв.м одноэтажные из кирпича с 4 спальнями готовые для постоянного проживания с камином без подвала классический стиль угловые с большой гостиной одноэтажные с мансардой для постоянного проживания одноэтажные с мансардой классические одноэтажные с мансардой с балконом классические для постоянного проживания классические с гаражом классические с 4 спальнями классические с окнами в пол классические с террасой классические готовые классические с котельной классические без подвала классические с прачечной классические с балконом классические угловые классические с камином классические с двухскатной крышей классические с кабинетом из клееного бруса без гаража Показать все категории Скрыть категории

Похожие проекты
Состав проекта
Входит в стоимость
Цена, руб. Сроки, дней
Комплект архитектурно-строительных чертежей (АС) Входит в стоимость 33 рабочих дня
Готово к продаже
Цена, руб. Сроки, дней
Паспорт рабочего проекта 8 000 ₽ 5 рабочих дней в корзину
Дополнительная копия проекта формата А3 6 500 ₽ 5 рабочих дней в корзину
Электронная копия проекта (скан распечатанной версии) 4 000 ₽ 3 рабочих дня в корзину
Разрабатывается отдельно
Цена, руб. Сроки, дней
Адаптация фундамента (изменение типа фундамента) по запросу 14 рабочих дней
Дизайн интерьера (стоимость от 2200руб. за квад.метр площади) по запросу 30 рабочих дней
Внесение изменений в проект по запросу 20 рабочих дней
Инженерные разделы: ВК + ОВ + ЭО 18 050 ₽ 33 рабочих дня в корзину
Разработка Генплана участка, в масштабе 1:250 7 500 ₽ 15 рабочих дней в корзину
Фэншуй дома 20 000 ₽ 14 рабочих дней в корзину
Фэншуй участка 15 000 ₽ 14 рабочих дней в корзину
Фэншуй полная консультация дом+участок с выездом на объект 100 000 ₽ 30 рабочих дней в корзину
Опции проекта вы можете заказать в корзине при оформлении заказа
Отзывы покупателей
Рейтинг покупателей
0 / 5 5 5 1
На основе 1 оценок покупателей
0%
0%
0%
0%
0%
Отзывы о проекте D3908
Отзыв о проекте D3908
Чтобы оставить отзыв, пожалуйста авторизуйтесь.
Подбор строительной компании
Не знаете кому доверить строительство дома? Мы можем помочь! Подберем для вас из сотен наших партнеров несколько компаний с лучшем соотношением цена/качество под конкретно ваш запрос.
Подобрать