D3189 Грифон

Сравнить проект В избранное
Грифон / 1
Грифон / 2
Грифон / 3
Грифон / 1
Грифон / 2
Грифон / 3
D3189
251 м²
Проект с подрядом
Компания: Строй и Живи
Стоимость строительства
1 852 200 ₽
Заказать подробную смету
+7 (812) XXX-XX-XX Показать телефон
Задать вопрос по проекту
Технические характеристики
Общие
Материал стен
Каркас
,
Фахверк
Общая площадь
251 м²
Жилая площадь
191.62 м²
Площадь застройки
139.33 м²
Приведенная площадь
185.22 м²
Количество жилых комнат/спален
4
Этажи
1 этаж + мансарда
Гараж
Нет гаража
Количество машин
нет
Подвал / цокольный этаж
Без подвала
Длина дома
12.920 м
Ширина дома
11.700 м
Кровля
Гибкая черепица
Облицовка внешних стен
Деревянная вагонка
Межэтажные перекрытия
По деревянным балкам
Внутренние не несущие перегородки
Каркасно-обшивные
Фундамент
Свайный
Дополнительные
Окна
Окна до пола
,
Панорамные окна
Сауна/баня внутри
Есть
Площадь гостиной
31.33 м²
Количество санузлов
3
Окно в ванной комнате
Есть
Котельная
Есть
Хозяйская гардеробная
Есть
Кладовая
1
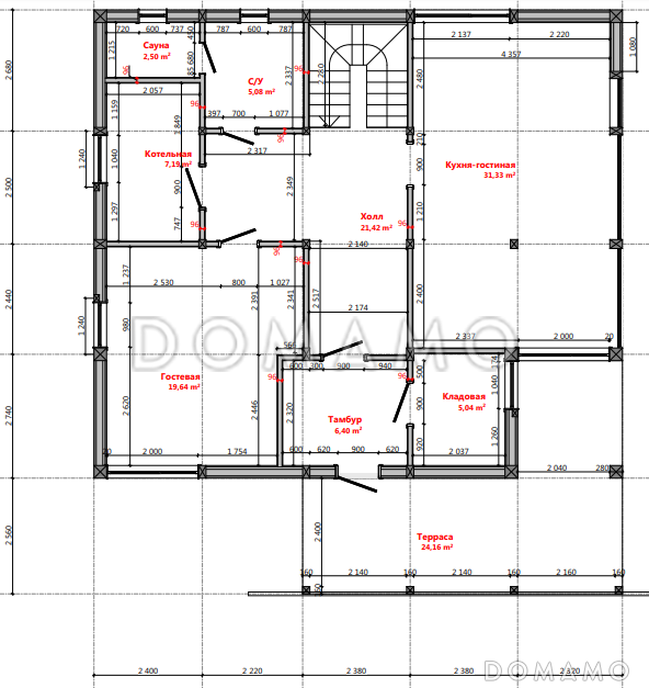
Планы помещений
Описание проекта
Компания Domamo предлагает проект мансардного дома Грифон D3189. Жилая площадь - 191 м2, размер - 12.920х11.700 м. Фундамент - свайный, кровля - гибкая черепица, внешняя отделка - деревянная вагонка. Для заказа проекта или внесения изменений свяжитесь с нами с помощью форм обратной связи на сайте или по телефону +7 (812) 243-14-70.
Категории проекта: с мансардой для постоянного проживания каркасные от 200 до 300 кв.м каркасные дома с мансардой одноэтажные с мансардой одноэтажные с котельной с котельной с баней с двухскатной крышей загородные с сауной с гардеробной прямоугольные с панорамным остеклением Проекты одноэтажных каркасных домов Проекты каркасных домов с баней Типовые проекты загородных одноэтажных домов Проекты одноэтажных домов с баней без гаража одноэтажные без гаража каркасные для постоянного проживания одноэтажные с 4 спальнями полутораэтажные одноэтажные каркасные для круглогодичного проживания с 4 спальнями с мансардой с баней с мансардой с котельной с мансардой с двухскатной крышей с мансардой с панорамными окнами с мансардой с окнами до пола с мансардой прямоугольные с мансардой для постоянного проживания без гаража с подрядом с котельной с двухскатной крышей с четырьмя спальнями одноэтажные с мансардой каркасные одноэтажные с мансардой для постоянного проживания одноэтажные с мансардой с панорамными окнами недорогие с панорамными окнами из клееного бруса без гаража Проекты домов с подрядом Показать все категории Скрыть категории

Похожие проекты
Состав проекта
Входит в стоимость
Цена, руб. Сроки, дней
Комплект архитектурно-строительных чертежей (АС) Входит в стоимость Готов к отправке
Разрабатывается отдельно
Цена, руб. Сроки, дней
Адаптация фундамента (изменение типа фундамента) по запросу 14 рабочих дней
Дизайн интерьера (стоимость от 2200руб. за квад.метр площади) по запросу 30 рабочих дней
Внесение изменений в проект по запросу 20 рабочих дней
Фэншуй дома 20 000 ₽ 14 рабочих дней в корзину
Фэншуй участка 15 000 ₽ 14 рабочих дней в корзину
Фэншуй полная консультация дом+участок с выездом на объект 100 000 ₽ 30 рабочих дней в корзину
Опции проекта вы можете заказать в корзине при оформлении заказа
Комплектации
Отзывы покупателей
Рейтинг покупателей
0 / 5 5 5 1
На основе 1 оценок покупателей
0%
0%
0%
0%
0%
Отзывы о проекте D3189
Отзыв о проекте D3189
Чтобы оставить отзыв, пожалуйста авторизуйтесь.
Подбор строительной компании
Не знаете кому доверить строительство дома? Мы можем помочь! Подберем для вас из сотен наших партнеров несколько компаний с лучшем соотношением цена/качество под конкретно ваш запрос.
Подобрать