Главная Проекты домов Проект большого одноэтажного дома со встроенным гаражом и большой террасой

D2657 Проект большого одноэтажного дома со встроенным гаражом и большой террасой

Сравнить проект В избранное
Технические характеристики
Общие
Материал стен
Газобетон
Общая площадь
217 м²
Площадь застройки
311.46 м²
Приведенная площадь
203.14 м²
Количество жилых комнат/спален
3
Этажи
1 этаж
Гараж
Встроенный гараж
Подвал / цокольный этаж
Без подвала
Длина дома
21.76 м
Ширина дома
18.6 м
Высота в коньке
6.4 м
Кровля
Металлочерепица
Облицовка внешних стен
Облицовочный кирпич
Толщина несущих наружных стен
520 мм
Межэтажные перекрытия
Сборные
Внутренние не несущие перегородки
Газобетонные
Фундамент
Ленточный заглубленный из ФБС
Терраса
Терраса крытая
Дополнительные
Окна
Окна до пола
Сауна/баня внутри
Нет
Площадь гостиной
35.38 м²
Площадь кухни
15.61 м²
Количество санузлов
2
Котельная
Есть
Хозяйский санузел
Есть
Хозяйская гардеробная
Есть
Кладовая
1
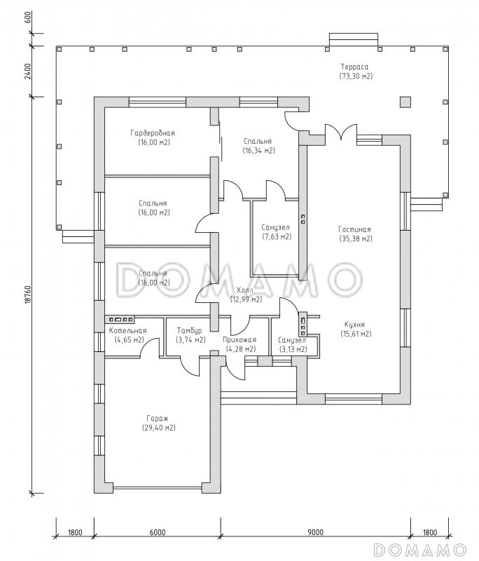
Планы помещений
Описание проекта
Компания Domamo предлагает проект большого одноэтажного дома со встроенным гаражом и большой террасой D2657. Общая площадь - 217 м2, размер - 21.76х18.6 м. Фундамент - ленточный заглубленный из фбс, кровля - металлочерепица, внешняя отделка - облицовочный кирпич. Для заказа проекта или внесения изменений свяжитесь с нами с помощью форм обратной связи на сайте или по телефону +7 (800) 200-28-83.
Категории проекта: с гаражом для постоянного проживания пенобетон в классическом стиле от 200 до 300 кв.м с террасой из газобетона одноэтажные из пеноблоков готовые из газобетона с гаражом одноэтажные одноэтажные с гаражом одноэтажные с котельной с котельной одноэтажные из газобетона из газосиликатных блоков из пеноблоков с гаражом загородные с четырехскатной крышей из керамзитобетонных блоков с гардеробной прямоугольные со встроенным гаражом из газобетона с террасой из блоков одноэтажные из блоков из блоков с гаражом из пеноблоков с террасой загородные из газобетона Проекты одноэтажных домов с террасой Типовые проекты загородных одноэтажных домов облицованные кирпичом одноэтажные с тремя спальнями Проекты домов с тремя спальнями с гаражом под одной крышей одноэтажных из керамзитобетонных блоков одноэтажные с гаражом и террасой с гаражом и террасой недорогие из пеноблоков загородные от 200 до 250 м одноэтажные в классическом стиле одноэтажные с четырехскатной крышей одноэтажные прямоугольные одноэтажные с окнами в пол одноэтажные с 2 санузлами одноэтажные из газобетона с гаражом одноэтажные из газобетона с террасой одноэтажные из газобетона с мансардой одноэтажные из газобетона с 3 спальнями классические окна в пол четырехскатная крыша прямоугольные с большой гостиной готовые проекты для постоянного проживания с котельной с гардеробной из газобетона от 200 до 300 кв.м из газобетона с четырехскатной крышей из газобетона в классическом стиле из газобетона с котельной из газобетона прямоугольные из газобетона готовые из газобетона с большой кухней из газобетона с тремя спальнями из газобетона для постоянного проживания классические для постоянного проживания классические с гаражом классические с 3 спальнями классические с окнами в пол классические с террасой классические готовые классические с котельной классические с большой кухней классические без подвала классические с 2 санузлами классические прямоугольные классические с четырехскатной крышей из пеноблоков в классическом стиле из пеноблоков с четырехскатной крышей из пеноблоков с окнами до пола из пеноблоков прямоугольные из пеноблоков для постоянного проживания из пеноблоков недорогие из пеноблоков готовые из пеноблоков от 200 до 300 м2 из пеноблоков с 3 спальнями из пеноблоков с большой кухней недорогие с гаражом недорогие с террасой недорогие для постоянного проживания недорогие с четырехскатной крышей недорогие с окнами до пола недорогие без бани недорогие с котельной недорогие прямоугольные недорогие от 200 до 300 м2 из клееного бруса без гаража Показать все категории Скрыть категории

Похожие проекты
Состав проекта
Входит в стоимость
Цена, руб. Сроки, дней
Комплект архитектурно-строительных чертежей (АС) Входит в стоимость 23 рабочих дня
Зеркальная версия проекта Входит в стоимость 23 рабочих дня
Готово к продаже
Цена, руб. Сроки, дней
Паспорт рабочего проекта 4 000 ₽ 23 рабочих дня в корзину
Дополнительная копия проекта формата А3 4 000 ₽ 23 рабочих дня в корзину
Электронная копия проекта (скан распечатанной версии) 4 000 ₽ 23 рабочих дня в корзину
3D модель дома 20 000 ₽ 23 рабочих дня в корзину
Разрабатывается отдельно
Цена, руб. Сроки, дней
Адаптация фундамента (изменение типа фундамента) по запросу 14 рабочих дней
Дизайн интерьера (стоимость от 2200руб. за квад.метр площади) по запросу 30 рабочих дней
Внесение изменений в проект по запросу 20 рабочих дней
Разработка Генплана участка, в масштабе 1:250 7 000 ₽ 23 рабочих дня в корзину
Фэншуй дома 20 000 ₽ 14 рабочих дней в корзину
Фэншуй участка 15 000 ₽ 14 рабочих дней в корзину
Фэншуй полная консультация дом+участок с выездом на объект 100 000 ₽ 30 рабочих дней в корзину
Опции проекта вы можете заказать в корзине при оформлении заказа
Предложения строителей Выбрать регион
Минимальная
6 906 760 ₽
Стандарт
8 531 880 ₽
Под чистовую отделку
11 172 700 ₽
Показать подробные комплектации
Минимальная
17 266 900 ₽
Стандарт
20 314 000 ₽
Под чистовую отделку
26 408 200 ₽
Показать подробные комплектации
Минимальная
9 194 116 ₽
Стандарт
13 642 882 ₽
Под чистовую отделку
21 650 661 ₽
Показать подробные комплектации
Минимальная
7 109 899 ₽
Стандарт
8 531 880 ₽
Под чистовую отделку
9 547 580 ₽
Показать подробные комплектации
Минимальная
6 556 546 ₽
Стандарт
9 622 741 ₽
Под чистовую отделку
10 295 135 ₽
Показать подробные комплектации
Минимальная
5 972 316 ₽
Стандарт
6 825 504 ₽
Под чистовую отделку
8 958 474 ₽
Показать подробные комплектации
Подбор строительной компании
Не знаете кому доверить строительство дома? Мы можем помочь! Подберем для вас из сотен наших партнеров несколько компаний с лучшем соотношением цена/качество под конкретно ваш запрос.
Подобрать
Посмотреть еще 32 компании Свернуть
Отзывы покупателей
Рейтинг покупателей
0 / 5 5 5 1
На основе 1 оценок покупателей
0%
0%
0%
0%
0%
Отзывы о проекте D2657
Отзыв о проекте D2657
Чтобы оставить отзыв, пожалуйста авторизуйтесь.
Подбор строительной компании
Не знаете кому доверить строительство дома? Мы можем помочь! Подберем для вас из сотен наших партнеров несколько компаний с лучшем соотношением цена/качество под конкретно ваш запрос.
Подобрать