Главная Проекты домов Проект небольшого дома, который очень хорошо подойдет для проживания небольшой семьи

D2085 Проект небольшого дома, который очень хорошо подойдет для проживания небольшой семьи

Сравнить проект В избранное
Проект небольшого дома, который очень хорошо подойдет для проживания небольшой семьи / 1
Проект небольшого дома, который очень хорошо подойдет для проживания небольшой семьи / 1
D2085
86 м²
Домокомплект
Артикул проекта: ПД-17
Компания: Element-House
Стоимость домокомплекта
487 000 ₽
Заказать подробную смету
+7 (909) XXX-XX-XX Показать телефон
Задать вопрос по проекту
Технические характеристики
Общие
Материал стен
Бревно
Общая площадь
86 м²
Приведенная площадь
88.38 м²
Количество жилых комнат/спален
1
Этажи
1 этаж + мансарда
Гараж
Нет гаража
Подвал / цокольный этаж
Без подвала
Длина дома
8.8 м
Ширина дома
8.8 м
Облицовка внешних стен
Без облицовки
Межэтажные перекрытия
По деревянным балкам
Внутренние не несущие перегородки
Каркасно-обшивные
Терраса
Терраса крытая
Дополнительные
Камин
Есть
Сауна/баня внутри
Нет
Площадь гостиной
21.2 м²
Площадь кухни
12.4 м²
Количество санузлов
1
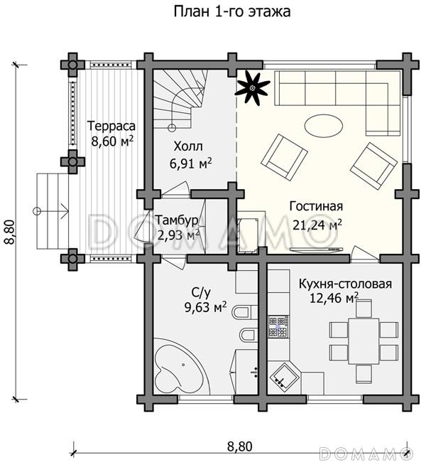
Планы помещений
Описание проекта
Компания Domamo предлагает проект небольшого дома, который очень хорошо подойдет для проживания небольшой семьи D2085. Общая площадь - 86 м2, размер - 8.8х8.8 м. Фундамент - , кровля - , внешняя отделка - без облицовки. Для заказа проекта или внесения изменений свяжитесь с нами с помощью форм обратной связи на сайте или по телефону +7 (800) 200-28-83.
Категории проекта: с мансардой деревянные из бревна дачные дома гостевые до 100 кв.м с террасой одноэтажные с мансардой одноэтажные до 150 кв. м. одноэтажные деревянные оцилиндрованное бревно дачные с мансардой дачные с верандой одноэтажные до 100 кв.м 9 на 9 с мансардой 9х9 до 120 кв.м до 150 кв.м до 200 кв.м с двухскатной крышей 6х10 8х9 9х10 9х12 загородные с камином прямоугольные в русском стиле до 100 кв.м с мансардой одноэтажные из бревна из бревна с мансардой дачных домов из бревна гостевых домов из бревна Проекты деревянных домов с мансардой Проекты деревянных домов с террасой дачные деревянные Проекты гостевых домов из дерева Проекты одноэтажных домов с террасой дачные одноэтажные Типовые проекты загородных одноэтажных домов без гаража одноэтажные без гаража дачные с террасой с террасой и камином дачные с камином маленькие одноэтажные 9 на 9 с мансардой до 150 кв м с мансардой и террасой полутораэтажные дачные с мансардой и верандой маленькие одноэтажные с мансардой до 120 кв.м одноэтажные до 120 кв.м маленькие с мансардой рубленные 9 на 12 с мансардой одноэтажные до 200 кв м до 140 кв м до 130 кв м с мансардой с камином с мансардой с двухскатной крышей с мансардой прямоугольные с мансардой гостевые с мансардой до 200 кв.м с террасой с камином прямоугольные до 100 кв.м до 120 кв.м до 150 кв.м. без гаража одноэтажные с мансардой из бревна одноэтажные с мансардой гостевые одноэтажные с мансардой дачные одноэтажные с мансардой с изолированной кухней одноэтажные с мансардой в русском стиле до 100 кв.м гостевые до 100 кв.м дачные до 100 кв.м с террасой до 100 кв.м прямоугольные до 100 кв.м с камином до 100 кв.м в русском стиле до 100 кв.м с двухскатной крышей до 100 кв.м с изолированной кухней до 100 кв.м 9х9 до 120 кв.м домокомплекты до 120 кв.м гостевые до 120 кв.м дачные до 120 кв.м без гаража до 120 кв.м с двухскатной крышей до 120 кв.м с террасой до 120 кв.м в русском стиле до 120 кв.м с изолированной кухней до 120 кв.м прямоугольные до 150 кв.м гостевые до 150 кв.м дачные до 150 кв.м без гаража до 150 кв.м с двухскатной крышей до 150 кв.м русские до 150 кв.м домокомплекты до 150 кв.м прямоугольные до 150 кв.м с изолированной кухней до 150 кв.м без бани до 150 кв.м с террасой до 150 кв.м без подвала до 150 кв.м с камином маленькие в русском стиле маленькие с террасой маленькие гостевые маленькие дачные маленькие прямоугольные маленькие с двухскатной крышей маленькие с камином маленькие без бани маленькие с изолированной кухней деревянные в русском стиле деревянные прямоугольные деревянные с камином деревянные без гаража деревянные домокомплекты деревянные без подвала деревянные с изолированной кухней деревянные до 100 кв.м деревянные до 120 кв.м деревянные до 150 кв.м деревянные маленькие недорогие гостевые в русском стиле без гаража в русском стиле с террасой в русском стиле прямоугольные в русском стиле гостевые в русском стиле дачные в русском стиле для с камином в русском стиле без бани в русском стиле с изолированной кухней в русском стиле с двускатной крышей из клееного бруса без гаража Показать все категории Скрыть категории

Похожие проекты
Состав проекта
Входит в стоимость
Цена, руб. Сроки, дней
Комплект архитектурно-строительных чертежей (АС) Входит в стоимость Готов к отправке
Разрабатывается отдельно
Цена, руб. Сроки, дней
Адаптация фундамента (изменение типа фундамента) по запросу 14 рабочих дней
Дизайн интерьера (стоимость от 2200руб. за квад.метр площади) по запросу 30 рабочих дней
Внесение изменений в проект по запросу 20 рабочих дней
Фэншуй дома 20 000 ₽ 14 рабочих дней в корзину
Фэншуй участка 15 000 ₽ 14 рабочих дней в корзину
Фэншуй полная консультация дом+участок с выездом на объект 100 000 ₽ 30 рабочих дней в корзину
Опции проекта вы можете заказать в корзине при оформлении заказа
Отзывы покупателей
Рейтинг покупателей
0 / 5 5 5 1
На основе 1 оценок покупателей
0%
0%
0%
0%
0%
Отзывы о проекте D2085
Отзыв о проекте D2085
Чтобы оставить отзыв, пожалуйста авторизуйтесь.
Подбор строительной компании
Не знаете кому доверить строительство дома? Мы можем помочь! Подберем для вас из сотен наших партнеров несколько компаний с лучшем соотношением цена/качество под конкретно ваш запрос.
Подобрать