Главная Проекты домов Проект дома из клееного бруса с тремя светлыми спальнями на втором этаже

D1454 Проект дома из клееного бруса с тремя светлыми спальнями на втором этаже

Сравнить проект В избранное
Проект дома из клееного бруса с тремя светлыми спальнями на втором этаже / 1
Проект дома из клееного бруса с тремя светлыми спальнями на втором этаже / 2
Проект дома из клееного бруса с тремя светлыми спальнями на втором этаже / 1
Проект дома из клееного бруса с тремя светлыми спальнями на втором этаже / 2
D1454
213 м²
Проект с подрядом
Артикул проекта: ЛЛОЙД
Компания: Ecohouse Group
Стоимость строительства
4 935 000 ₽
Заказать подробную смету
+7 (812) XXX-XX-XX Показать телефон
Задать вопрос по проекту
Технические характеристики
Общие
Материал стен
Клееный брус
Общая площадь
213 м²
Приведенная площадь
151.32 м²
Количество жилых комнат/спален
4
Этажи
2 этажа
Гараж
Нет гаража
Подвал / цокольный этаж
Без подвала
Длина дома
10.0 м
Ширина дома
9.0 м
Кровля
Металлочерепица
Облицовка внешних стен
Без облицовки
Толщина несущих наружных стен
160 мм
Межэтажные перекрытия
По деревянным балкам
Внутренние не несущие перегородки
Каркасно-обшивные
Терраса
Терраса открытая
Дополнительные
Окна
Окна до пола
Второй свет
Есть
Камин
Есть
Сауна/баня внутри
Нет
Площадь гостиной
30 м²
Площадь кухни
8.5 м²
Количество санузлов
2
Окно в ванной комнате
Есть
Котельная
Есть
Балкон / лоджия
Балкон
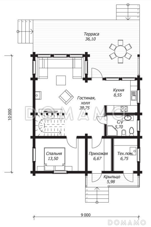
Планы помещений
Описание проекта
Компания Domamo предлагает проект дома из клееного бруса с тремя светлыми спальнями на втором этаже D1454. Общая площадь - 213 м2, размер - 10.0х9.0 м. Фундамент - , кровля - металлочерепица, внешняя отделка - без облицовки. Для заказа проекта или внесения изменений свяжитесь с нами с помощью форм обратной связи на сайте или по телефону +7 (800) 200-28-83.
Категории проекта: деревянные для постоянного проживания из клееного бруса современные от 200 до 300 кв.м в европейском стиле с эркером с террасой двухэтажные с котельной со вторым светом двухэтажные деревянные 6х10 9х10 9х12 загородные с четырехскатной крышей с камином прямоугольные с балконом двухэтажные с эркером Проекты деревянных домов с террасой Проекты двухэтажных домов из клееного бруса Проекты двухэтажных домов с террасой Проекты двухэтажных домов с верандой без гаража с террасой и камином деревянные для круглогодичного проживания с 4 спальнями с балконом и террасой от 200 до 250 м двухэтажные 10 x 10 двухэтажные с камином двухэтажные со вторым светом двухэтажные с 4 спальнями двухэтажные с балконом двухэтажные с балконом и террасой двухэтажные в современном стиле двухэтажные без гаража современные без гаража современные с окнами в пол современные с террасой современные 9х10 современные со вторым светом европейские 8х9 европейские 9х10 деревянные современные деревянные с окнами в пол деревянные с вторым светом деревянные с балконом деревянные прямоугольные деревянные с камином деревянные без гаража деревянные с подрядом деревянные без подвала деревянные с 4 спальнями деревянные с большой гостиной деревянные от 200 до 300 м2 из клееного бруса проект с подрядом из клееного бруса для постоянного проживания из клееного бруса с окном в ванной комнате из клееного бруса с камином из клееного бруса прямоугольный из клееного бруса с балконом из клееного бруса с вторым светом из клееного бруса с окнами в пол из клееного бруса в скандинавском стиле из клееного бруса в современном стиле из клееного бруса с четырехскатной крышей из клееного бруса с каркасно-обшивными перегородками из клееного бруса без облицовки из клееного бруса с перекрытиями по деревянным балкам из клееного бруса с кровлей из металлочерепицы из клееного бруса с котельной из клееного бруса с 1 эркером из клееного бруса с выходом на терассу из гостиной из клееного бруса с выходом на терассу из кухни из клееного бруса с открытой терассой из клееного бруса без подвала из клееного бруса без гаража из клееного бруса двухэтажные из клееного бруса от 200 до 300 м2 из клееного бруса с большой гостиной Проекты домов с подрядом Показать все категории Скрыть категории

Похожие проекты
Состав проекта
Входит в стоимость
Цена, руб. Сроки, дней
Комплект архитектурно-строительных чертежей (АС) Входит в стоимость Готов к отправке
Разрабатывается отдельно
Цена, руб. Сроки, дней
Адаптация фундамента (изменение типа фундамента) по запросу 14 рабочих дней
Дизайн интерьера (стоимость от 2200руб. за квад.метр площади) по запросу 30 рабочих дней
Внесение изменений в проект по запросу 20 рабочих дней
Фэншуй дома 20 000 ₽ 14 рабочих дней в корзину
Фэншуй участка 15 000 ₽ 14 рабочих дней в корзину
Фэншуй полная консультация дом+участок с выездом на объект 100 000 ₽ 30 рабочих дней в корзину
Опции проекта вы можете заказать в корзине при оформлении заказа
Комплектации
Отзывы покупателей
Рейтинг покупателей
0 / 5 5 5 1
На основе 1 оценок покупателей
0%
0%
0%
0%
0%
Отзывы о проекте D1454
Отзыв о проекте D1454
Чтобы оставить отзыв, пожалуйста авторизуйтесь.
Подбор строительной компании
Не знаете кому доверить строительство дома? Мы можем помочь! Подберем для вас из сотен наших партнеров несколько компаний с лучшем соотношением цена/качество под конкретно ваш запрос.
Подобрать