Главная Проекты домов Проект двухэтажного дома с гаражом и навесом для автомобилей

D6547 Проект двухэтажного дома с гаражом и навесом для автомобилей

Сравнить проект В избранное
Технические характеристики
Общие
Материал стен
Газобетон
Общая площадь
181 м²
Жилая площадь
82 м²
Приведенная площадь
181.44 м²
Количество жилых комнат/спален
3
Этажи
2 этажа
Гараж
Пристроенный навес
Количество машин
3
Подвал / цокольный этаж
Без подвала
Длина дома
15.3 м
Ширина дома
12.7 м
Высота в коньке
9.5 м
Кровля
Натуральная черепица
Облицовка внешних стен
Деревянная вагонка
,
Мокрая штукатурка
Толщина несущих наружных стен
375 мм
Межэтажные перекрытия
По деревянным балкам
Внутренние не несущие перегородки
Газобетонные
Фундамент
Монолитная ж/бетонная плита
Терраса
Терраса крытая
Дополнительные
Окна
Окна до пола
Камин
Есть
Сауна/баня внутри
Нет
Площадь гостиной
23.2 м²
Площадь кухни
11.3 м²
Количество санузлов
3
Окно в ванной комнате
Есть
Котельная
Есть
Кладовая
1
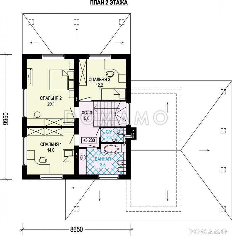
Планы помещений
Фасады
Описание проекта
Компания Domamo предлагает проект двухэтажного дома с гаражом и навесом для автомобилей D6547. Общая площадь - 181 м2, размер - 15.3х12.7 м. Фундамент - монолитная ж/бетонная плита, кровля - натуральная черепица, внешняя отделка - деревянная вагонка мокрая штукатурка. Для заказа проекта или внесения изменений свяжитесь с нами с помощью форм обратной связи на сайте или по телефону +7 (800) 200-28-83.

Похожие проекты
Состав проекта
Входит в стоимость
Цена, руб. Сроки, дней
Комплект архитектурно-строительных чертежей (АС) Входит в стоимость 3 рабочих дня
Готово к продаже
Цена, руб. Сроки, дней
Паспорт рабочего проекта 5 000 ₽ 3 рабочих дня в корзину
Инженерные разделы: ВК + ОВ + ЭО 23 000 ₽ 3 рабочих дня в корзину
Дополнительная копия проекта формата А3 3 000 ₽ 3 рабочих дня в корзину
Две дополнительные копии проекта формата А3 + 1 паспорт рабочего проекта 10 100 ₽ 3 рабочих дня в корзину
Электронная копия проекта (скан распечатанной версии) 4 000 ₽ 3 рабочих дня в корзину
Разрабатывается отдельно
Цена, руб. Сроки, дней
Адаптация фундамента (изменение типа фундамента) по запросу 14 рабочих дней
Дизайн интерьера (стоимость от 2200руб. за квад.метр площади) по запросу 30 рабочих дней
Внесение изменений в проект по запросу 20 рабочих дней
Фэншуй дома 20 000 ₽ 14 рабочих дней в корзину
Фэншуй участка 15 000 ₽ 14 рабочих дней в корзину
Фэншуй полная консультация дом+участок с выездом на объект 100 000 ₽ 30 рабочих дней в корзину
Опции проекта вы можете заказать в корзине при оформлении заказа
Варианты проекта Сравнить все варианты
Предложения строителей Выбрать регион
Минимальная
6 168 960 ₽
Стандарт
7 620 480 ₽
Под чистовую отделку
9 979 200 ₽
Показать подробные комплектации
Минимальная
15 422 400 ₽
Стандарт
18 144 000 ₽
Под чистовую отделку
23 587 200 ₽
Показать подробные комплектации
Минимальная
8 211 974 ₽
Стандарт
12 185 510 ₽
Под чистовую отделку
19 337 875 ₽
Показать подробные комплектации
Минимальная
6 350 400 ₽
Стандарт
7 620 480 ₽
Под чистовую отделку
8 527 680 ₽
Показать подробные комплектации
Минимальная
5 856 157 ₽
Стандарт
8 594 812 ₽
Под чистовую отделку
9 195 379 ₽
Показать подробные комплектации
Минимальная
5 334 336 ₽
Стандарт
6 096 384 ₽
Под чистовую отделку
8 001 504 ₽
Показать подробные комплектации
Подбор строительной компании
Не знаете кому доверить строительство дома? Мы можем помочь! Подберем для вас из сотен наших партнеров несколько компаний с лучшем соотношением цена/качество под конкретно ваш запрос.
Подобрать
Посмотреть еще 32 компании Свернуть
Отзывы покупателей
Рейтинг покупателей
0 / 5 5 5 1
На основе 1 оценок покупателей
0%
0%
0%
0%
0%
Отзывы о проекте D6547
Отзыв о проекте D6547
Чтобы оставить отзыв, пожалуйста авторизуйтесь.
Подбор строительной компании
Не знаете кому доверить строительство дома? Мы можем помочь! Подберем для вас из сотен наших партнеров несколько компаний с лучшем соотношением цена/качество под конкретно ваш запрос.
Подобрать