D6227 12-135

Сравнить проект В избранное
12-135 / 1
12-135 / 2
12-135 / 1
12-135 / 2
D6227
135 м²
Проект с подрядом
Компания: ООО "ДОМ ОТ ПРОФИ"
Стоимость строительства
8 549 000 ₽
Заказать подробную смету
+7 (495) XXX-XX-XX Показать телефон
Задать вопрос по проекту
Технические характеристики
Общие
Материал стен
Газобетон
Общая площадь
135 м²
Жилая площадь
95 м²
Приведенная площадь
93.81 м²
Количество жилых комнат/спален
3
Этажи
1 этаж
Гараж
Нет гаража
Количество машин
нет
Подвал / цокольный этаж
Без подвала
Длина дома
14м м
Ширина дома
10,1м м
Кровля
Натуральная черепица
Межэтажные перекрытия
По деревянным балкам
Внутренние не несущие перегородки
Газобетонные
Фундамент
Монолитная ж/бетонная плита
Дополнительные
Сауна/баня внутри
Есть
Площадь гостиной
30.05 м²
Количество санузлов
2
Котельная
Есть
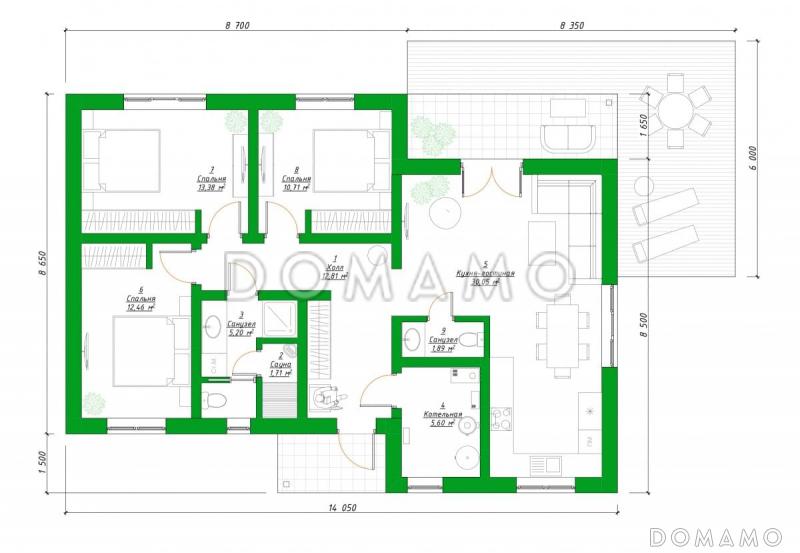
Планы помещений
Описание проекта
Одноэтажный дом 135кв.м. с 3мя спальнями и сауной.

ДОМ ОТ ПРОФИ - это теплые и надежные дома из газобетона, которыми Вы будете гордиться.

500+ счастливых семей переехали с нами в свой дом за 17 лет.

✔  Строим по реальной цене: не занижаем стоимость, чтобы допродать “допы”.

✔  Несем гарантию, соблюдаем сроки и бюджет.

✔  Нас рекомендуют и выбирают эксперты и разработчики строительных стандартов: Глеб Гринфельд, Сергей Зенин.

✔  Свой выставочный дом-офис 25км по Ярославке.

✔  Бесплатно считаем сметы. Бесплатно проектируем.


Вам нужно скорее переехать в новый дом? 

Построим под ключ, и меньше чем за год Вы переедете в дом мечты.


Хотите строить поэтапно в комфортном для себя темпе? 

Подберем оптимальную комплектацию под Ваш бюджет и потребности, построим поэтапно. Вы всегда сможете дозаказать отдельные работы. 


Все хлопоты начиная от подбора участка, разработки продуманного проекта, организации заезда, геологических изысканий, топосъемки, организации воды и электричества берем на себя.

В работе для нас важно качество, а не количество. На каждый объект наш технадзор делает от 16 выездов. Мы предпочтем построить 40 отличных домов за год, чем 100 плохих.


Если строить дом – то только ДОМ ОТ ПРОФИ.


Контакты:

Московская обл., 

Пушкинский р-н, пос.Левково, 

КП "Левково-3" , стр.23, уч. 318

+7 495 109 33 53

info@domotprofi.ru

domotprofi.ru



Похожие проекты
Состав проекта
Входит в стоимость
Цена, руб. Сроки, дней
Комплект архитектурно-строительных чертежей (АС) Входит в стоимость Готов к отправке
Разрабатывается отдельно
Цена, руб. Сроки, дней
Адаптация фундамента (изменение типа фундамента) по запросу 14 рабочих дней
Дизайн интерьера (стоимость от 2200руб. за квад.метр площади) по запросу 30 рабочих дней
Внесение изменений в проект по запросу 20 рабочих дней
Фэншуй дома 20 000 ₽ 14 рабочих дней в корзину
Фэншуй участка 15 000 ₽ 14 рабочих дней в корзину
Фэншуй полная консультация дом+участок с выездом на объект 100 000 ₽ 30 рабочих дней в корзину
Опции проекта вы можете заказать в корзине при оформлении заказа
Комплектации
Сравнить 0 комплектаций
Свернуть все
Развернуть все
Минимальная
8 549 000 ₽
Сравнить
Стандарт
4 502 880 ₽
Сравнить
Кровля
Кровельное покрытие
ПРИМЕР: ДОМ 2 этажа 10*10
ПРИМЕР: ДОМ 2 этажа 10*10
Обрешетка
Контробрешетка
Противоконденсатная (ветро-гидроизоляционная) пленка
Стропильная система
Утепление чердачного перекрытия и стропильной системы
Подшивка свесов кровли
Подшивка потолков террас и лоджий
Водосточная система
Система снегозадержания
Молниезащита
Фундамент
Сваи ж/бетонные
Сваи стальные винтовые
Лента ж/бетонная монолитная мелкозаглубленная
Лента ж/бетонная монолитная на глубину промерзания
Лента ж/бетонная сборная (из ФБС) на глубину промерзания
Плита ж/бетонная монолитная мелкозаглубленная
УШП (Утепленная Шведская Плита)
Плита 250мм без утепления
Плита 300мм утепленная
Бетоннная отмостка по периметру дома
Дренажная система по периметру дома
Ливневая система
Облицовка цоколя фундамента
Система контурного заземления
Стены
Несущая часть стены
Фасадная отделка
Ветрозащита
Утепление стены
Пароизоляция
Внутренняя обшивка/штукатурка со стороны помещения
Пол первого этажа
Несущая часть перекрытия
Теплоизоляция цокольного перекрытия
Стяжка/подготовка под чистый пол
Перекрытия над первым и последующими этажами
Несущая часть перекрытия
Звукоизоляция/теплоизоляция в перекрытии
Стяжка/подготовка под чистый пол
Отделка потолка нижележащего этажа
Окна и внешние двери
Окна
Оконные наличники
Откосы в помещении
Отливы снаружи
Подоконники
Входные двери
Внутренние конструкции
Внутренние несущие стены
Внутренние ненесущие стены
Звукоизоляция внутренних стен/перегородок
Межэтажная строительная (черновая) лестница
Межэтажная постоянная (чистовая) лестница
Межкомнатные двери
Высота потолков 1 этажа
Высота потолков 2 этажа
Настилы полов и ограждения крылец, террас, балконов
Гидроизоляция полов балконов
Инженерное оснащение
Жидкостной теплый пол
Электрический теплый пол
Система вентиляции
Только вводы воды, электричества, выводы канализации
Электроразводка и электрощит
Разводка хол. и гор. водоснабжения (ХВС и ГВС)
Разводка батарей и/или системы теплого пола. Без оборудования котельной.
Иное инженерное оснащение
Подготовка участка для строительства
Устройство временного щита электроснабжения
Устройство въезда на участок
Дорога на участке до пятна застройки
Подъем пятна застройки
Подготовка пятна застройки для фундаментных работ
Перемещение или вывоз грунта из котлована фундамента
Обеспечение строительного процесса
Доставка стройматериалов
Генератор для обеспечения электричеством
Уборка и вывоз строительного мусора
Организация проживания рабочих (бытовка)
Биотуалет для рабочих
Гарантия на все выполненные работы
Гарантия
5 лет
5 лет
Отзывы покупателей
Рейтинг покупателей
0 / 5 5 5 1
На основе 1 оценок покупателей
0%
0%
0%
0%
0%
Отзывы о проекте D6227
Отзыв о проекте D6227
Чтобы оставить отзыв, пожалуйста авторизуйтесь.
Подбор строительной компании
Не знаете кому доверить строительство дома? Мы можем помочь! Подберем для вас из сотен наших партнеров несколько компаний с лучшем соотношением цена/качество под конкретно ваш запрос.
Подобрать