D6125 ОД-137

Сравнить проект В избранное
ОД-137 / 1
ОД-137 / 2
ОД-137 / 3
ОД-137 / 4
ОД-137 / 5
ОД-137 / 1
ОД-137 / 2
ОД-137 / 3
ОД-137 / 4
ОД-137 / 5
D6125
137,83 м²
Проект с подрядом
Компания: ARLINE GROUP
Стоимость строительства
6 570 500 ₽
Заказать подробную смету
+7 (978) XXX-XX-XX Показать телефон
Задать вопрос по проекту
Технические характеристики
Общие
Материал стен
Газобетон
Общая площадь
137,83 м²
Жилая площадь
113,17 м²
Площадь застройки
137,83 м²
Приведенная площадь
113.77 м²
Количество жилых комнат/спален
4
Этажи
1 этаж
Гараж
Нет гаража
Количество машин
нет
Подвал / цокольный этаж
Без подвала
Длина дома
14,90 м
Ширина дома
9,25 м
Кровля
Гибкая черепица
Облицовка внешних стен
Мокрая штукатурка
Толщина несущих наружных стен
300 мм
Межэтажные перекрытия
По деревянным балкам
Внутренние не несущие перегородки
Газобетонные
Фундамент
Ленточный монолитный
Дополнительные
Окна
Окна до пола
,
Панорамные окна
Площадь кухни
30.6 м²
Количество санузлов
2
Окно в ванной комнате
Есть
Кабинет
Есть
Кладовая
2
Дом для неровных участков (с рельефом)
Есть
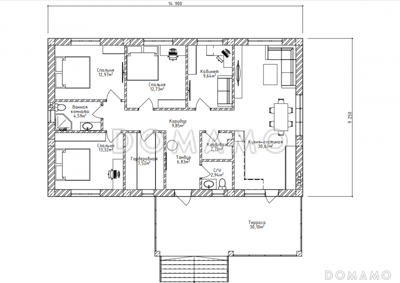
Планы помещений
Описание проекта
Компания Domamo предлагает од-137 D6125. Общая площадь - 137,83 м2, размер - 14,90х9,25 м. Фундамент - ленточный монолитный, кровля - гибкая черепица, внешняя отделка - мокрая штукатурка. Для заказа проекта или внесения изменений свяжитесь с нами с помощью форм обратной связи на сайте или по телефону +7 (800) 200-28-83.

Похожие проекты
Состав проекта
Входит в стоимость
Цена, руб. Сроки, дней
Комплект архитектурно-строительных чертежей (АС) Входит в стоимость Готов к отправке
Разрабатывается отдельно
Цена, руб. Сроки, дней
Адаптация фундамента (изменение типа фундамента) по запросу 14 рабочих дней
Дизайн интерьера (стоимость от 2200руб. за квад.метр площади) по запросу 30 рабочих дней
Внесение изменений в проект по запросу 20 рабочих дней
Фэншуй дома 20 000 ₽ 14 рабочих дней в корзину
Фэншуй участка 15 000 ₽ 14 рабочих дней в корзину
Фэншуй полная консультация дом+участок с выездом на объект 100 000 ₽ 30 рабочих дней в корзину
Опции проекта вы можете заказать в корзине при оформлении заказа
Комплектации
Отзывы покупателей
Рейтинг покупателей
0 / 5 5 5 1
На основе 1 оценок покупателей
0%
0%
0%
0%
0%
Отзывы о проекте D6125
Отзыв о проекте D6125
Чтобы оставить отзыв, пожалуйста авторизуйтесь.
Подбор строительной компании
Не знаете кому доверить строительство дома? Мы можем помочь! Подберем для вас из сотен наших партнеров несколько компаний с лучшем соотношением цена/качество под конкретно ваш запрос.
Подобрать