D6042 Нида 140

Сравнить проект В избранное
Нида 140 / 1
Нида 140 / 2
Нида 140 / 3
Нида 140 / 4
Нида 140 / 5
Нида 140 / 1
Нида 140 / 2
Нида 140 / 3
Нида 140 / 4
Нида 140 / 5
D6042
149.85 м²
Проект с подрядом
Артикул проекта: Нида 140
Компания: IZLESA
Стоимость строительства
6 085 800 ₽
Заказать подробную смету
+7 (911) XXX-XX-XX Показать телефон
Задать вопрос по проекту
Технические характеристики
Общие
Материал стен
Брус
,
Каркасно-панельные
Общая площадь
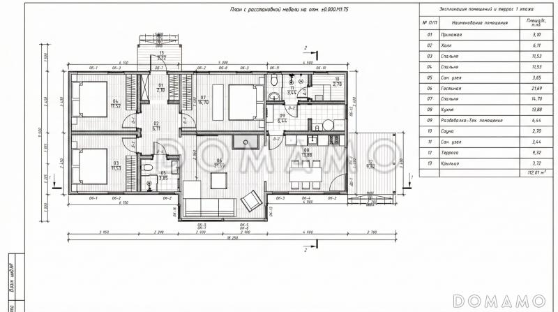
149.85 м²
Жилая площадь
74.5 м²
Площадь застройки
149.85 м²
Приведенная площадь
96.6 м²
Количество жилых комнат/спален
3
Этажи
1 этаж
Гараж
Нет гаража
Количество машин
2
Подвал / цокольный этаж
Без подвала
Длина дома
18.5 м
Ширина дома
8.2 м
Высота в коньке
4.2 м
Кровля
Металлочерепица
Облицовка внешних стен
Деревянная вагонка
,
Фасадные панели
Толщина несущих наружных стен
270 мм мм
Внутренние не несущие перегородки
Каркасно-обшивные
Фундамент
Монолитная ж/бетонная плита
Дополнительные
Окна
Окна до пола
,
Панорамные окна
Площадь гостиной
21.81 м²
Площадь кухни
14.12 м²
Количество санузлов
2
Окно в ванной комнате
Есть
Котельная
Есть
Хозяйский санузел
Есть
Хозяйская гардеробная
Есть
Дом для неровных участков (с рельефом)
Есть
Планы помещений
Описание проекта
Компания Domamo предлагает нида 140 D6042. Общая площадь - 149.85 м2, размер - 18.5х8.2 м. Фундамент - монолитная ж/бетонная плита, кровля - металлочерепица, внешняя отделка - фасадные панели деревянная вагонка. Для заказа проекта или внесения изменений свяжитесь с нами с помощью форм обратной связи на сайте или по телефону +7 (800) 200-28-83.

Похожие проекты
Состав проекта
Входит в стоимость
Цена, руб. Сроки, дней
Комплект архитектурно-строительных чертежей (АС) Входит в стоимость Готов к отправке
Разрабатывается отдельно
Цена, руб. Сроки, дней
Адаптация фундамента (изменение типа фундамента) по запросу 14 рабочих дней
Дизайн интерьера (стоимость от 2200руб. за квад.метр площади) по запросу 30 рабочих дней
Внесение изменений в проект по запросу 20 рабочих дней
Фэншуй дома 20 000 ₽ 14 рабочих дней в корзину
Фэншуй участка 15 000 ₽ 14 рабочих дней в корзину
Фэншуй полная консультация дом+участок с выездом на объект 100 000 ₽ 30 рабочих дней в корзину
Опции проекта вы можете заказать в корзине при оформлении заказа
Комплектации
Сравнить 0 комплектаций
Свернуть все
Развернуть все
Минимальная
6 085 800 ₽
Сравнить
Стандарт
9 273 600 ₽
Сравнить
Под чистовую отделку
10 819 200 ₽
Сравнить
Кровля
Кровельное покрытие
Комплект кровли - Металлочерепица GL Clas
Комплект кровли - Металлочерепица GL Clas
Комплект кровли - Металлочерепица GL Clas
Обрешетка
Доска сухая строганная 20*96
Доска сухая строганная 20*96
Доска сухая строганная 20*96
Контробрешетка
Брусок сухой строганный с 2-х сторон 40х
Брусок сухой строганный с 2-х сторон 40х
Брусок сухой строганный с 2-х сторон 40х
Противоконденсатная (ветро-гидроизоляционная) пленка
Пленка влаговетрозащитная Delta
Пленка влаговетрозащитная Delta
Пленка влаговетрозащитная Delta
Стропильная система
Доска сухая строганная 46*196
Доска сухая строганная 46*196
Доска сухая строганная 46*196
Утепление чердачного перекрытия и стропильной системы
Кнауф норд 250 мм
Кнауф норд 250 мм
Подшивка свесов кровли
Доска сухая строганная 20*96 сосна, сорт
Доска сухая строганная 20*96 сосна, сорт
Подшивка потолков террас и лоджий
Доска сухая строганная 20*96 сосна, сорт
Доска сухая строганная 20*96 сосна, сорт
Водосточная система
На выбор
На выбор
На выбор
Система снегозадержания
да
да
да
Молниезащита
Фундамент
Сваи ж/бетонные
Сваи 200*200*3000 мм с металлическим оголов?
Сваи 200*200*3000 мм с металлическим оголов?
Сваи 200*200*3000 мм с металлическим оголов?
Сваи стальные винтовые
Лента ж/бетонная монолитная мелкозаглубленная
Лента ж/бетонная монолитная на глубину промерзания
Лента ж/бетонная сборная (из ФБС) на глубину промерзания
Плита ж/бетонная монолитная мелкозаглубленная
Железобетонная плита 200 м
Железобетонная плита 200 м
Железобетонная плита 200 м
УШП (Утепленная Шведская Плита)
Бетоннная отмостка по периметру дома
Дренажная система по периметру дома
Ливневая система
Облицовка цоколя фундамента
Система контурного заземления
Стены
Несущая часть стены
Панели CLT внутр.и внешней отделкой 270 м
Панели CLT внутр.и внешней отделкой 270 м
Панели CLT внутр.и внешней отделкой 270 м
Фасадная отделка
Доска сухая строганная 20*120/140/160/180 - на ?
Доска сухая строганная 20*120/140/160/180 - на ?
Доска сухая строганная 20*120/140/160/180 - на ?
Ветрозащита
Пленка влаговетрозащитная Delta
Пленка влаговетрозащитная Delta
Пленка влаговетрозащитная Delta
Утепление стены
да
да
да
Пароизоляция
Внутренняя обшивка/штукатурка со стороны помещения
Отделка внутри доска 20х120/140/160/180 - на вы
Отделка внутри доска 20х120/140/160/180 - на вы
Отделка внутри доска 20х120/140/160/180 - на вы
Пол первого этажа
Несущая часть перекрытия
CLT панели 320 мм
CLT панели 320 мм
CLT панели 320 мм
Теплоизоляция цокольного перекрытия
да
да
да
Стяжка/подготовка под чистый пол
да
да
да
Перекрытия над первым и последующими этажами
Несущая часть перекрытия
Звукоизоляция/теплоизоляция в перекрытии
Стяжка/подготовка под чистый пол
Отделка потолка нижележащего этажа
Окна и внешние двери
Окна
Окно м/пластиковые 70 мм, рамные или без
Окно м/пластиковые 70 мм, рамные или без
Окно м/пластиковые 70 мм, рамные или без
Оконные наличники
да
да
Откосы в помещении
да
Отливы снаружи
да
да
Подоконники
да
Входные двери
Дверь входная металлическая с термора
Дверь входная металлическая с термора
Дверь входная металлическая с термора
Внутренние конструкции
Внутренние несущие стены
CLT внутри с кабель каналами
CLT внутри с кабель каналами
CLT внутри с кабель каналами
Внутренние ненесущие стены
CLT внутри с кабель каналами + каркасные
CLT внутри с кабель каналами + каркасные
Звукоизоляция внутренних стен/перегородок
да
да
да
Межэтажная строительная (черновая) лестница
Межэтажная постоянная (чистовая) лестница
Межкомнатные двери
Высота потолков 1 этажа
3,4 метра
3,4 метра
3,4 метра
Высота потолков 2 этажа
Настилы полов и ограждения крылец, террас, балконов
Доска 25*140 - сорт АВ
Доска 25*140 - сорт АВ
Гидроизоляция полов балконов
Инженерное оснащение
Жидкостной теплый пол
да
Электрический теплый пол
да
Система вентиляции
Только вводы воды, электричества, выводы канализации
да
Электроразводка и электрощит
да
Разводка хол. и гор. водоснабжения (ХВС и ГВС)
да
Разводка батарей и/или системы теплого пола. Без оборудования котельной.
да
Иное инженерное оснащение
Вся котельная целиком в сборе
Подготовка участка для строительства
Устройство временного щита электроснабжения
Устройство въезда на участок
Дорога на участке до пятна застройки
Подъем пятна застройки
Подготовка пятна застройки для фундаментных работ
Перемещение или вывоз грунта из котлована фундамента
Обеспечение строительного процесса
Доставка стройматериалов
Генератор для обеспечения электричеством
Уборка и вывоз строительного мусора
Организация проживания рабочих (бытовка)
Биотуалет для рабочих
Гарантия на все выполненные работы
Гарантия
5
5
5
Отзывы покупателей
Рейтинг покупателей
0 / 5 5 5 1
На основе 1 оценок покупателей
0%
0%
0%
0%
0%
Отзывы о проекте D6042
Отзыв о проекте D6042
Чтобы оставить отзыв, пожалуйста авторизуйтесь.
Подбор строительной компании
Не знаете кому доверить строительство дома? Мы можем помочь! Подберем для вас из сотен наших партнеров несколько компаний с лучшем соотношением цена/качество под конкретно ваш запрос.
Подобрать