D5754 ТУРИН 150

Сравнить проект В избранное
ТУРИН 150 / 1
ТУРИН 150 / 2
ТУРИН 150 / 1
ТУРИН 150 / 2
D5754
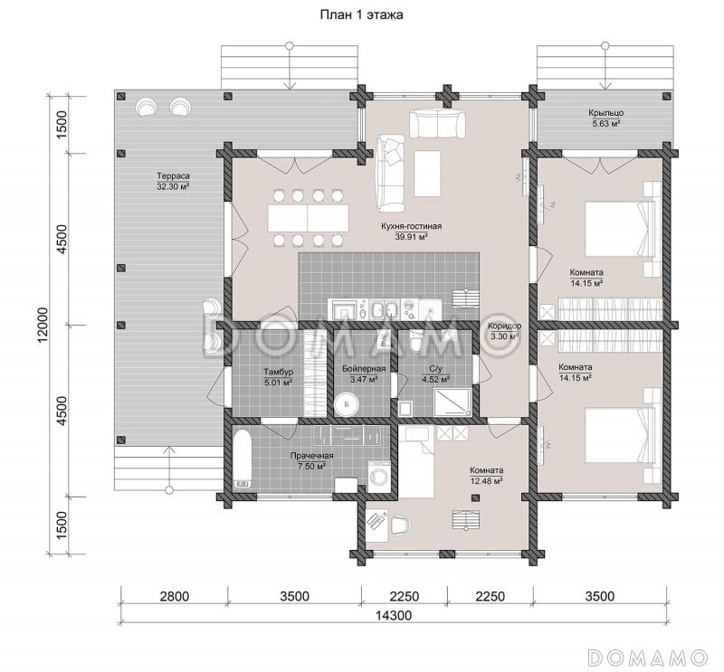
150 м²
Проект с подрядом
Компания: АПС ДСК
Стоимость строительства
4 921 590 ₽
Заказать подробную смету
+7 (495) XXX-XX-XX Показать телефон
Задать вопрос по проекту
Технические характеристики
Общие
Материал стен
Клееный брус
Общая площадь
150 м²
Приведенная площадь
130.969 м²
Количество жилых комнат/спален
3
Этажи
1 этаж + мансарда
Гараж
Нет гаража
Подвал / цокольный этаж
Без подвала
Длина дома
14.3 м
Ширина дома
12.0 м
Кровля
Гибкая черепица
Толщина несущих наружных стен
200/245 мм
Межэтажные перекрытия
По деревянным балкам
Фундамент
Монолитная ж/бетонная плита
Терраса
Терраса крытая
Дополнительные
Окна
Окна до пола
Мансардные окна
Есть
Камин
Есть
Сауна/баня внутри
Нет
Площадь гостиной
20.91 м²
Площадь кухни
19 м²
Количество санузлов
1
Котельная
Есть
Постирочная
Есть
Планы помещений
Фасады
Описание проекта
  • Изменения в проект - БЕСПЛАТНО 
  • Техническое обслуживание - БЕСПЛАТНО 
  • Кредитование во всех ведущих банках 
  • Гибкий график финансирования 
  • Собственное производство 
  • Гарантия 15 лет
Категории проекта: с мансардой деревянные для постоянного проживания из клееного бруса от 100 до 200 кв.м с террасой одноэтажные с мансардой одноэтажные до 150 кв. м. одноэтажные с котельной с котельной одноэтажные деревянные до 150 кв.м до 200 кв.м с двухскатной крышей загородные с камином прямоугольные Проекты деревянных домов с мансардой Проекты деревянных домов с террасой Проекты домов из клееного бруса с мансардой Проекты одноэтажных домов из клееного бруса Проекты одноэтажных домов с террасой Типовые проекты загородных одноэтажных домов без гаража одноэтажные без гаража с террасой и камином одноэтажные с тремя спальнями Проекты домов с тремя спальнями с мансардой до 150 кв м с мансардой и террасой полутораэтажные деревянные для круглогодичного проживания одноэтажные до 200 кв м одноэтажные с мансардными окнами с мансардой с котельной с мансардой с камином с мансардой с двухскатной крышей с мансардой с окнами до пола с мансардой с мансардными окнами с мансардой прямоугольные с мансардой для постоянного проживания с мансардой до 200 кв.м с мансардой от 100 до 150 кв.м одноэтажные с мансардой из клееного бруса одноэтажные с мансардой для постоянного проживания одноэтажные с мансардой с большой кухней до 150 кв.м из клееного бруса до 150 кв.м для постоянного проживания до 150 кв.м без гаража до 150 кв.м с двухскатной крышей до 150 кв.м с окнами до пола до 150 кв.м с подрядом до 150 кв.м с мансардными окнами до 150 кв.м прямоугольные до 150 кв.м с котельной до 150 кв.м с прачечной до 150 кв.м без бани до 150 кв.м с террасой до 150 кв.м без подвала до 150 кв.м с 3 спальнями до 150 кв.м с большой кухней до 150 кв.м с камином деревянные с окнами в пол деревянные прямоугольные деревянные с камином деревянные без гаража деревянные с подрядом деревянные без подвала деревянные с 3 спальнями деревянные с большой кухней деревянные до 150 кв.м деревянные от 100 до 200 м2 из клееного бруса проект с подрядом из клееного бруса для постоянного проживания из клееного бруса с камином из клееного бруса прямоугольный из клееного бруса с мансардными окнами из клееного бруса с окнами в пол (в гостиной) из клееного бруса с окнами в пол (на кухне) из клееного бруса с окнами в пол из клееного бруса в скандинавском стиле из клееного бруса с двухскатной крышей из клееного бруса с фундаментом из монолитной железобетонной плиты из клееного бруса с перекрытиями по деревянным балкам из клееного бруса с кровлей из гибкой черепицы из клееного бруса с котельной из клееного бруса с выходом на терассу из гостиной из клееного бруса с выходом на терассу из кухни из клееного бруса с крытой терассой из клееного бруса без подвала из клееного бруса без гаража одноэтажные из клееного бруса с мансардой из клееного бруса от 100 до 200 м2 Проекты домов с подрядом Показать все категории Скрыть категории

Похожие проекты
Состав проекта
Входит в стоимость
Цена, руб. Сроки, дней
Комплект архитектурно-строительных чертежей (АС) Входит в стоимость Готов к отправке
Разрабатывается отдельно
Цена, руб. Сроки, дней
Адаптация фундамента (изменение типа фундамента) по запросу 14 рабочих дней
Дизайн интерьера (стоимость от 2200руб. за квад.метр площади) по запросу 30 рабочих дней
Внесение изменений в проект по запросу 20 рабочих дней
Фэншуй дома 20 000 ₽ 14 рабочих дней в корзину
Фэншуй участка 15 000 ₽ 14 рабочих дней в корзину
Фэншуй полная консультация дом+участок с выездом на объект 100 000 ₽ 30 рабочих дней в корзину
Опции проекта вы можете заказать в корзине при оформлении заказа
Комплектации
Сравнить 0 комплектаций
Свернуть все
Развернуть все
Минимальная
4 921 590 ₽
Сравнить
Кровля
Кровельное покрытие
Металлочерепица: Grand Line - цвет на выбор
Обрешетка
Контробрешетка
Противоконденсатная (ветро-гидроизоляционная) пленка
Пленки: паро-гидроизоляции
Стропильная система
Стропильная система: доска обрезная 50*200мм (сосна,ель).
Утепление чердачного перекрытия и стропильной системы
Утеплитель - Rockwool
Подшивка свесов кровли
Подшивка потолков террас и лоджий
Водосточная система
Водосточная система
Система снегозадержания
Молниезащита
Фундамент
Сваи ж/бетонные
Забивные сваи ж/б 200*200мм * 3м с металлическими оголовкам
Сваи стальные винтовые
Лента ж/бетонная монолитная мелкозаглубленная
Лента ж/бетонная монолитная на глубину промерзания
Лента ж/бетонная сборная (из ФБС) на глубину промерзания
Плита ж/бетонная монолитная мелкозаглубленная
УШП (Утепленная Шведская Плита)
Бетоннная отмостка по периметру дома
Дренажная система по периметру дома
Ливневая система
Облицовка цоколя фундамента
Система контурного заземления
Стены
Несущая часть стены
Комплект из клееного бруса: 180*200мм (толщина), опц. 260*200 /24
Фасадная отделка
Ветрозащита
Утепление стены
Пароизоляция
Внутренняя обшивка/штукатурка со стороны помещения
Пол первого этажа
Несущая часть перекрытия
Межэтажное балки перекрытия 80*180 мм усиленные клееные
Теплоизоляция цокольного перекрытия
Стяжка/подготовка под чистый пол
Перекрытия над первым и последующими этажами
Несущая часть перекрытия
Межэтажное балки перекрытия 80*180 мм усиленные клееные
Звукоизоляция/теплоизоляция в перекрытии
Стяжка/подготовка под чистый пол
Отделка потолка нижележащего этажа
Окна и внешние двери
Окна
REHAU с 2-х камерным стеклопакетом (3 стекла) 3-х камерный
Оконные наличники
Откосы в помещении
Отливы снаружи
Подоконники
Входные двери
Внутренние конструкции
Внутренние несущие стены
Внутренние ненесущие стены
Звукоизоляция внутренних стен/перегородок
Межэтажная строительная (черновая) лестница
Лестница однопролетная, строительная
Межэтажная постоянная (чистовая) лестница
Межкомнатные двери
Высота потолков 1 этажа
по проекту
Высота потолков 2 этажа
по проекту
Настилы полов и ограждения крылец, террас, балконов
Гидроизоляция полов балконов
Инженерное оснащение
Жидкостной теплый пол
Электрический теплый пол
Система вентиляции
Только вводы воды, электричества, выводы канализации
Электроразводка и электрощит
Разводка хол. и гор. водоснабжения (ХВС и ГВС)
Разводка батарей и/или системы теплого пола. Без оборудования котельной.
Иное инженерное оснащение
Подготовка участка для строительства
Устройство временного щита электроснабжения
Устройство въезда на участок
Дорога на участке до пятна застройки
Подъем пятна застройки
Подготовка пятна застройки для фундаментных работ
Перемещение или вывоз грунта из котлована фундамента
Обеспечение строительного процесса
Доставка стройматериалов
Генератор для обеспечения электричеством
Уборка и вывоз строительного мусора
Организация проживания рабочих (бытовка)
Биотуалет для рабочих
Гарантия на все выполненные работы
Гарантия
Приемка инспектором технадзора скрытых работ, готовог
Отзывы покупателей
Рейтинг покупателей
0 / 5 5 5 1
На основе 1 оценок покупателей
0%
0%
0%
0%
0%
Отзывы о проекте D5754
Отзыв о проекте D5754
Чтобы оставить отзыв, пожалуйста авторизуйтесь.
Подбор строительной компании
Не знаете кому доверить строительство дома? Мы можем помочь! Подберем для вас из сотен наших партнеров несколько компаний с лучшем соотношением цена/качество под конкретно ваш запрос.
Подобрать