Главная Проекты домов Проект кирпичного дома с кабинетом, 4 спальнями и крытой террасой

D5714 Проект кирпичного дома с кабинетом, 4 спальнями и крытой террасой

Сравнить проект В избранное
Технические характеристики
Общие
Материал стен
Кирпич
Общая площадь
169 м²
Жилая площадь
89.5 м²
Приведенная площадь
169.64 м²
Количество жилых комнат/спален
5
Этажи
2 этажа
Гараж
Нет гаража
Подвал / цокольный этаж
Без подвала
Длина дома
16.36 м
Ширина дома
12.6 м
Высота в коньке
9.29 м
Кровля
Металлочерепица
Облицовка внешних стен
Облицовочный кирпич
Межэтажные перекрытия
Монолитные
Внутренние не несущие перегородки
Кирпичные
Фундамент
Монолитная ж/бетонная плита
Терраса
Терраса крытая
Дополнительные
Окна
Окна до пола
Камин
Есть
Сауна/баня внутри
Нет
Площадь гостиной
18.5 м²
Площадь кухни
13.2 м²
Количество санузлов
3
Окно в ванной комнате
Есть
Котельная
Есть
Кабинет
Есть
Хозяйская гардеробная
Есть
Кладовая
3
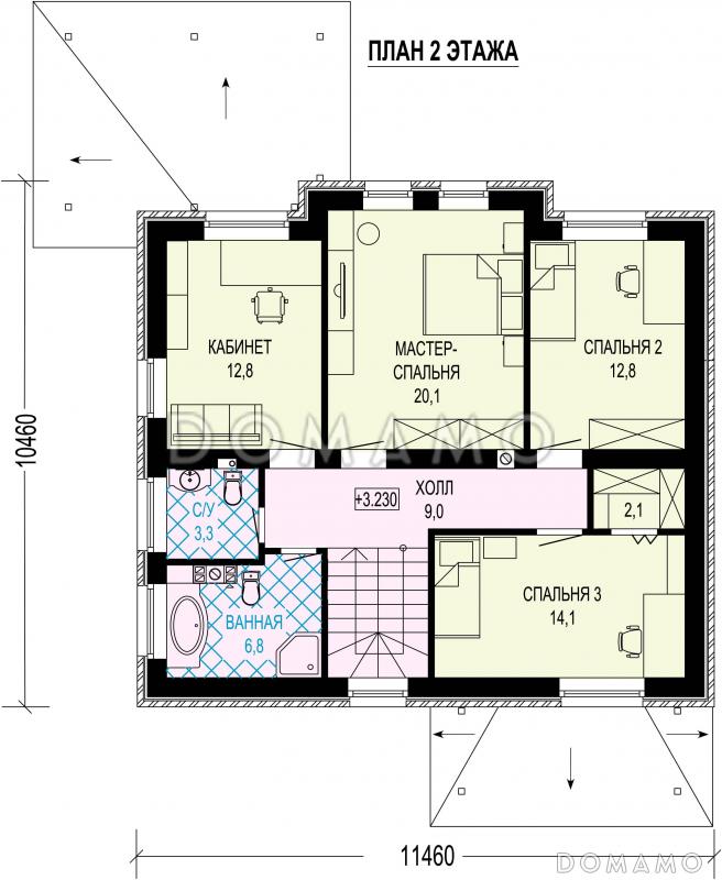
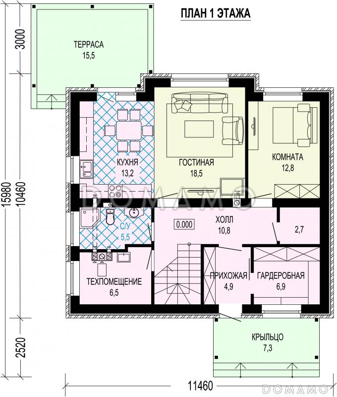
Планы помещений
Фасады
Описание проекта
Компания Domamo предлагает проект кирпичного дома с кабинетом, 4 спальнями и крытой террасой D5714. Общая площадь - 169 м2, размер - 16.36х12.6 м. Фундамент - монолитная ж/бетонная плита, кровля - металлочерепица, внешняя отделка - облицовочный кирпич. Для заказа проекта или внесения изменений свяжитесь с нами с помощью форм обратной связи на сайте или по телефону +7 (800) 200-28-83.

Похожие проекты
Состав проекта
Входит в стоимость
Цена, руб. Сроки, дней
Комплект архитектурно-строительных чертежей (АС) Входит в стоимость 5 рабочих дней
Готово к продаже
Цена, руб. Сроки, дней
Зеркальная версия проекта Входит в стоимость 5 рабочих дней
Паспорт рабочего проекта 5 000 ₽ 5 рабочих дней в корзину
Инженерные разделы: ВК + ОВ + ЭО 23 000 ₽ 5 рабочих дней в корзину
Электронная копия проекта (скан распечатанной версии) 4 000 ₽ 3 рабочих дня в корзину
Разрабатывается отдельно
Цена, руб. Сроки, дней
Адаптация фундамента (изменение типа фундамента) по запросу 14 рабочих дней
Дизайн интерьера (стоимость от 2200руб. за квад.метр площади) по запросу 30 рабочих дней
Внесение изменений в проект по запросу 20 рабочих дней
Фэншуй дома 20 000 ₽ 14 рабочих дней в корзину
Фэншуй участка 15 000 ₽ 14 рабочих дней в корзину
Фэншуй полная консультация дом+участок с выездом на объект 100 000 ₽ 30 рабочих дней в корзину
Опции проекта вы можете заказать в корзине при оформлении заказа
Варианты проекта Сравнить все варианты
Избранные проекты
Избранные строители
Предложения строителей Выбрать регион
Минимальная
5 937 399 ₽
Стандарт
7 294 519 ₽
Под чистовую отделку
9 499 840 ₽
Показать подробные комплектации
Минимальная
17 303 279 ₽
Стандарт
20 356 800 ₽
Под чистовую отделку
26 463 840 ₽
Показать подробные комплектации
Минимальная
8 739 852 ₽
Стандарт
12 836 658 ₽
Под чистовую отделку
20 210 909 ₽
Показать подробные комплектации
Минимальная
6 797 474 ₽
Стандарт
7 805 136 ₽
Под чистовую отделку
9 993 831 ₽
Показать подробные комплектации
Минимальная
3 644 011 ₽
Стандарт
4 512 534 ₽
Под чистовую отделку
5 431 389 ₽
Показать подробные комплектации
Подбор строительной компании
Не знаете кому доверить строительство дома? Мы можем помочь! Подберем для вас из сотен наших партнеров несколько компаний с лучшем соотношением цена/качество под конкретно ваш запрос.
Подобрать
Посмотреть еще 20 компаний Свернуть
Отзывы покупателей
Рейтинг покупателей
0 / 5 5 5 1
На основе 1 оценок покупателей
0%
0%
0%
0%
0%
Отзывы о проекте D5714
Отзыв о проекте D5714
Чтобы оставить отзыв, пожалуйста авторизуйтесь.
Подбор строительной компании
Не знаете кому доверить строительство дома? Мы можем помочь! Подберем для вас из сотен наших партнеров несколько компаний с лучшем соотношением цена/качество под конкретно ваш запрос.
Подобрать